Folio of works- Paul Sterkenburg

Page 1

Folio : Paul Sterkenburg

This folio is a snapshot of my work spanning 20+ years across multiple sectors in the design profession.

I completed a Bachelor of Arts in Industrial Design(Honours), and have progressed from product design, into shopfitting, internal architecture and interiors. I have had a strong focus on interiors and joinery design.

Proficient in most cad software, my strengths have been in Autocad, Revit Architecture (family parametric experience) and some rendering packages.

I strive for excellence, always seeking to achieve the best possible design based on client needs. I have highly developed design skills, and seek to provide the most cost effective solutions. Key strengths are an extensive knowledge of materials, attention to detail and value engineering skills.

Paul Sterkenburg

Education : Bachelor of Arts ( Industrial Design Major) Hons. Swinburne University Graduated1992.

Experience: Senior Designer, ACRD, Just Group, Parker Design, The Buchan Group.

Qualifications: Concept Design, 20+ years experience using Autocad, Revit Architecture 2021 , Photoshop, Illustrator, Indesign. Specific design skills in Industrial design, store planning, retail roll out experience, Fixture & Joinery design with Kit of parts experience, Shopfitting experience with POS hardware design & specification. Experienced client manager.

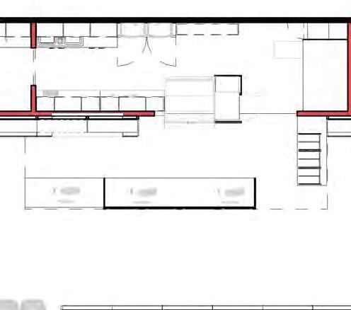
A S/S CORNER ANGLE PROTECTOR DOUBLE BOWL ST/ST SINK UNIT SINGLE BOWL ST/ST SINK UNIT BOLLARD (SIZE) COOL ROOM BUMPER RAIL CUSTOM DISPLAY COVED EPOXY SKIRTING CEILING HEIGHT CLEANERS SINK COLUMN DISTRIBUTION BOARD DENSE END DOUBLE SIDED DRAWER UNDER BENCH FORCE DRAFT COOLER FINISHED FLOOR LEVEL FIRE HOSE REEL HAND BASIN -KNEE OPERATED HAND BASKET HOT WATER UNIT INSECTOCUTER MOBILE BENCH MAIN SWITCH BOARD SCALE SINGLE SIDED STORAGE SHELVING STAINLESS STEEL WORKBENCH WASH DOWN HOSE CERAMIC TILES 150 CCP CBR CD CES CH CS COL CT DBS DB DE DS DWR FDC FFL FHR HB HBKT HWU INS MB MDF SB SBS SC SS ST/SH S/S WB WDH TUNDISH TD FILING CABINET FC FLOOR WASTE FW GRATE DRAIN GD UNIFORM RAIL UR B MOP RACK MR TIMBER BUMPER RAIL TBR COLORBOND COOLROOM PANEL TELECOM MAIN DISTRUBUTION FRAME GENERAL ABBREVIATIONS SYMBOL DESCRIPTION CEILING LEVEL CL MICROWAVE MW PAPER TOWEL DISPENSER PTD SOAP DISPENSER SC SPLASHBACK SPLB MANUAL BENCH TOP WRAPPER WR PIN BOARD PB DRYING RACK UNDER DRU S/S FOOT RAIL FIXED TO FLOOR SFR WING SHELF WS CRYOVAC VACUUM SEALER MACHINE CVC PANNINI GRILLE PG USE FIGURED DIMENSIONS ONLY. DO NOT SCALE FROM DRAWINGS ALL DRAWINGS TO BE READ IN CONJUNCTION WITH RELEVANT SCHEDULES (TBC) AND GENERAL NOTES AND AGREED IGA DESIGN BRIEF. ANY DISCREPANCIES MUST BE CLARIFIED WITH PROJECT MANAGER PRIOR TO CONSTRUCTION CHECK ALL DIMENSIONS ON SITE BEFORE SETOUT, FABRICATION OR COMPLETION OF WORKSHOP DRAWINGS ALL FINAL DETAILS MUST MEET ALL SITE CONDITIONS, RELEVANT AUTHORITIES AND APPLICABLE AUSTRALIAN STANDARDS. THIS DRAWING IS THE PROPERTY OF METCASH FOOD AND GROCERY AND MUST NOT BE RETAINED COPIED NOR USED WITHOUT THE WRITTEN PERMISSION OF METCASH FOOD AND GROCERY GENERAL NOTES PRODUCE -3750PRODUCE -3750PRODUCE -2500 MEAT -3750 DRINKS -1875 MEAT -3750 MEALS -2500 MEAT -1875 LOW TEMP COOLRM SS BAY -2250HT DS BAY -2250HT DS BAY -2250HT DS BAY -2250HT FROZEN -5DR MED. TEMP. COOLRM LIQUOR COOLROOM FRESH DELI PRODUCE COOLRM PRODUCE PREP TROLLEY PARK BELTED HOT FD CHECKOUTS PRODUCE BARGE -3600PRODUCE BARGE -3600 SS BAY -1200HT BAKERY ISLAND POS DAIRY -2500DAIRY -2500 DAIRY -3750 DAIRY -2500 SS BAY -1200HT SS BAY -1200HT PALLET RACKING ROLLER SHUTTER PRIMARY ENTRY EXIT PBU CUSTOMER AUTO DOOR TRUCK DOCK SADIE AVENUE 14 750 W DOORS 3 x 750 W DOORS COOL ROOM RACKING CLEAR GLAZING SHE NG 1 W D X1 H 7 STOCK ROOM 4 PALLET RACKS (3 HIGH) REF. BOARD INTERNAL VINLY APPLIED FILM WATER METER BIN BIN FRONT END 7952485 750 1140660 LIQUOR REG. 2 FIRE EXIT FIRE EXIT FIRE EXIT DELI SERVICE OVEN WITH DUCTED RANGE HOOD OVER FX 700 HR BIN SS BENCH WR 1 DBS RACKS HB HR UNDER BIN INS DRY STORE SHELVING OVER BENCH HB NBN CO CENTRAL CONNECTION POINT REQUIRED THIS LOCATION & COMMS CABINET CS FHR ROOF PLANT OVER REFER DETAILS SHEET 07-02 ROOF PLANT COL 1800 DOOR 920 DOOR 1400 DUAL SWING DOOR DB/SWB INS ST/SHELVING 1825x610 NOM(x3) SS BENCH FHR SS BAY -1500HT FROZEN 3DRFROZEN -5DRFROZEN 3DRFROZEN 3DR AMB. WC C1 C1 CA CA C2 C2 C3 C3 C4 C4 C5 C5 C6 C6 C7 C7 C8 C8 C9 C9 CB CB CC CC CD CD CE CE CF CF CG CG 515073003380525547805215 62056370470047005135 4425 54555500 SS BENCH COL BASIN 900 CS CLEAR 920 DOOR 1500 HIGH WALL 6 x 75 W DOOR 1235 1405 1 3 8 5 14501440 1690 1510 CLEAR GLAZING B-SERIES BALER VERTICAL 10251200965 WASTEC BW-5 OR SIMILAR VERTICAL BAILER. 600 KG. 5t 1355 895 x 2370 OPENING 1000 500 POWER 240V 10A FULL HEIGHT LIQUOR RACKING 2200H 600D 900w ICE SHELVING 1200W 610D X1880H (X1) S E G 1 W 10 8 X AMB. TOILET BASE BUILD FHR PROVIDED PREFERRED THIS LOCATION. REFER ERBAS DRG EL22027H200 WORKSTATION 145579012001525 LOW HEIGHT GONDOLA BASKETS PLANT AREA SHOWN DASHED OVER 1545 ACCESS LADDER. REFER SHEET 07-02 ROOF OVER @4000 DS BAY_1500HT ACCESS LADDER ACCES TOILET SERVICE DAIRY -3750 SS BAY -2250HT SS BAY -1500HT LIQUOR BULKHEAD 35501700 100 545160031080015009001385150021601100 EXPRESS BELTED (x2) BELTED BELTED SS BAY -2250HT CIG SAFES FLORAL 1500 mm HIGH WALL WITH 800 MM GLAZING T0 2300 O/A US B/HEAD 1200H WALL WITH 1100 MM HIGH GLAZING T0 DATUM 2300 O/A 1935 1500 195019551800115018001150180011501900 8451502730 22300 95 255 1800 75 27057501450341018003600180036001855400018553690 1290 BAGGING AREA ATM SECONDARY ENTRY LIQUOR ENTRY 1800 1800 1785 37151670 600 210511702115 COOLROOM SLIDING DOOR 1500 920 2530 1130 COOLROOM SLIDING DOOR 1500 RETAIL COOLROOM SLIDING DOOR 1500 COOLROOM SLIDING DOOR 1000 DELI DISPLAY CABINET DELI DISPLAY CABINET HOTBOX DRINKS FRIDGE 6001755600 STAFF PHC PRINT PH COMMS RACK KITCHENETTE SINK CB O/H OFFICE PH 1615 400 3300 400 325 LANDLORD PROVIDED AUTOMATIC ROLLER DOOR. POWER SUPPLY SCOPE BY BASE BUILD WORKS. NOTE- DOOR NOT DEEMED ACCESSIBLE PATH OF TRAVEL. PATH OF TRAVEL DOOR TO COMPLY WITH EXIT DOORS MUST COMPLY WITH D2.21 (EMERGENCY EXITS) AND AS1428.1 (DDA DISABLED COMPLIANCE) SCOPE BY BASE BUILDER RAMP UP 1:27 GRADE SS BAY -2250HT MEAT -LOW HT -2500 SEAFOOD-LOW HT -2500 HEATING ELEMENT IN SLAB COL. COL. COL. COL. COL. COL. COL. COL. COL. COL. COL. COL. COL. LOW HT. WALL TO FRONT OF CASES SFR BASE BUILD FHR PROVIDED THIS LOCATION. REFER ERBAS DRG EL22027H200 SFR SFR 515073003380525547805215 ROLLER SHUTTER & LINE OF DOOR CLOSURE LIQUOR REG. 1 TBR (BASE) TBR (BASE) WALL PROTECTION 31080 42490 31080 SFR SFR SFRSFR SFR SFR SFR SFR SFR SB 100 SB 100 SB 100 SB 100SB 100 SB 100 SB 100 SB 150 SB 150 SB 150 SB 150SB 150SB 150 COOLROOM SLIDING DOOR 1500 19452940200 SB 100SB 100 PHONE PA WASTE BIN FIRST AID GALV. ANGLE FIXED TO FLOOR 1000 2055 BENCH SEATING 28001735 SCALE WALL PROTECTION 62056370470047005135442554555500 42490 SS BAY -1500HT 2105 PALLET BUMPER RAIL BUMPER RAIL 1040 500 900 SS SS ST/SHELVING 1525x610 NOM(x1) AUTO GATES-BASE PLATE MECH. FIXED TO SLAB. SCALE 750H750H750H GRAPH C B TENANT GRAPH CS BY TENAN GRAP CS BY TENAN GR PH CS GRAPHICS GRAPHICS METCASH RETAIL DEVELOPMENT 71 HUNTINGWOOD DRIVE HUNTINGWOOD NSW 2766 PH: (02) 8822 3600 REVISION: DRAWING: CLIENT: SITE: AS SHOWN PROJECT: DRAWN: CHECKED: DATE: PROJECT NUMBER: PROJECT STAGE: SHEET NO: SCALE: @ A1 TENDER ISSUE THIS DRAWING IS FOR DESIGN GUIDANCE ONLY. FINAL DETAILS MUST MEET SITE CONDITIONS, THE REQUIREMENTS OF ALL RELEVANT AUTHORITIES, APPLICABLE AUSTRALIAN STANDARDS AND THE BUILDING CODE OF AUSTRALIA. THE CONTRACTOR MUST VERIFY ALL DIMENSIONS ON SITE BEFORE COMMENCING ANY WORK OR MAKING SHOP DRAWINGS. FIGURED DIMENSIONS ARE NOT TO BE USED, SCALED DIMENSIONS MUST BE CHECKED. DO NOT SCALE THIS DRAWING. THE DRAWING IS THE PROPERTY OF METCASH LTD. AND MUST NOT BE RETAINED, COPIED OR USED WITHOUT WRITTEN PERMISSION OF METCASH RETAIL DEVELOPMENT 5 221204 THORNHILL PARK IGA + LIQUORCENTRAL SQUARE LANDMARK DEVELOPMENTS 1.12.2022 PB/PS PB 2 SADIE AVENUE, THORNHILL PARK 3335 TENDER 02 00 CONTROL PLAN @ A1 1 100 02 00 CONTROL PLAN 1 SHELVING SCHEDULE - PROP. DESCRIPTIONBAYS BAKERY BAKERY ISLAND6 BAKERY ISLAND3 SS BAY 1200HT1.5 SS BAY 1500HT9.75 20.25 GROCERY DS BAY 2250HT138 DS BAY_1500HT4.5 END BAY_1500HT1.5 END BAY_2250HT5 SS BAY 1200HT2 SS BAY 1500HT9.75 SS BAY 2250HT30 190.75 LIQUOR DS BAY 1500HT4.5 END BAY_1500HT1.5 PRODUCE PRODUCE BARGE 360016 16 Grand total: 153233 REFRIG. SCHEDULE - PROP. DESCRIPTIONDRSFTM HOT CHICKENS041 041 DELI DISPLAY CABINET0165 HOTBOX041 0206 DAIRY DAIRY 250012258 DAIRY 375012258 REFRIGERATION GLASS FRAMED DOORS 6155 306520 FROZEN FROZEN 3DR9237 FROZEN 5DR5134 FROZEN 5DR5134 194915 GROCERY DRINKS 1875062 062 LIQUOR REFRIGERATION GLASS FRAMED DOORS 382 REFRIGERATION GLASS FRAMED DOORS 133310 164112 MEALS MEALS 2500083 PRODUCE 2500083 0165 MEAT MEAT 1875062 MEAT 37500258 MEAT LOW HT - 2500083 SEAFOOD- LOW HT 2500083 04714 PRODUCE PRODUCE 37500258 0258 Grand total: 276527383 AREA RATIO - PROP. TYPERATIO LIQUOR10% NON-TRADING19% TRADING71% AREA - PROP. NAMETYPEAREARATIO LIQUOR LIQUORLIQUOR60.00 m²6% LIQUOR COOLROOMLIQUOR36.00 m²4% 96.00 m² NON-TRADING ACCES TOILETNON-TRADING6.00 m²1% AMB. TOILETNON-TRADING4.00 m²0% LOW TEMP COOLRMNON-TRADING17.00 m²2% MED. TEMP. COOLRM 1NON-TRADING30.00 m²3% OFFICENON-TRADING11.00 m²1% PRODUCE COOLRMNON-TRADING18.00 m²2% PRODUCE PREPNON-TRADING15.00 m²1% STAFFNON-TRADING17.00 m²2% STOCK ROOMNON-TRADING73.00 m²7% 191.00 m² TRADING DELITRADING53.00 m²5% FRESHTRADING174.00 m²17% FRONT ENDTRADING129.00 m²13% RETAILTRADING356.00 m²36% 712.00 m² Grand total999.00 m² REVAMENDMENT DETAILSDATEBY AFOR INTERNAL REVIEW28/03/2022PB BFIRST ISSUE29/03/2022PB CFOR INTERNAL REVIEW16/05/2022PS DFOR INTERNAL REVIEW21/07/2022PS EISSUED FOR COORDINATION29/07/2022PS 1CONTROL PLAN ISSUED1710/2022PS 2REVISED CONTROL PLAN18/11/2022PS 3REVISED CONTROL PLAN10/02/2023PS 4INNTERNAL ISSUE31/03/2023PS 5TENDER ISSUE20/04/2023PS
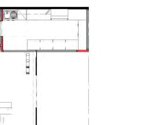
USE FIGURED DIMENSIONS ONLY. DO NOT SCALE FROM DRAWINGS ALL DRAWINGS TO BE READ IN CONJUNCTION WITH RELEVANT SCHEDULES (TBC) AND GENERAL NOTES AND AGREED IGA DESIGN BRIEF. ANY DISCREPANCIES MUST BE CLARIFIED WITH PROJECT MANAGER PRIOR TO CONSTRUCTION CHECK ALL DIMENSIONS ON SITE BEFORE SETOUT, FABRICATION OR COMPLETION OF WORKSHOP DRAWINGS ALL FINAL DETAILS MUST MEET ALL SITE CONDITIONS, RELEVANT AUTHORITIES AND APPLICABLE AUSTRALIAN STANDARDS. THIS DRAWING IS THE PROPERTY OF METCASH FOOD AND GROCERY AND MUST NOT BE RETAINED COPIED NOR USED WITHOUT THE WRITTEN PERMISSION OF METCASH FOOD AND GROCERY GENERAL NOTES NOTES -CEILING & LIGHTING REFLECTED CEILING PLAN IS TO BE READ IN CONJUNCTION WITH THE PROPOSED CEILING/MECH SERVICES DOCUMENTATION & LIGHTING DESIGN LAYOUT BY LIGHTING SUPPLIER. REPORT ANY EXISTING SERVICES CONFLICTING WITH THE PROPOSED EXTENT OF WORKS TO METCASH PROJECT MANAGER PRIOR TO COMMENCING WORKS FOR DETAILS OF FINISHES REFER TO FINISHES SCHEDULE #SCHE01 PROVIDE EXPANSION JOINTS TO NEW FLUSH-SET PLASTERBOARD CEILING IF REQUIRED. ALLOW FOR FRAMELESS FLUSH ACCESS PANEL TO CEILINGS AND/OR BULKHEADS AS REQ'D. SIZE, LOCATION AND SETOUT OF ACCESS PANELS AP TO BE COORDINATED WITH THE PROJECT MANAGER ON SITE PRIOR TO INSTALLATION. THE CEILING CONTRACTOR IS TO PROVIDE CERTIFICATION FOR ALL BULKHEADS AND INSET CEILINGS TO VERIFY STRUCTURAL INTEGRITY. PAINT FINISH FOR BULKHEAD TO BE APPLIED TO ALL HORIZONTAL AND VERTICAL FACES UNLESS OTHERWISE NOTED ARTIFICAL LIGHTING TO COMPLY WITH BCA/NCC SECTION AS 1680 AND ALL RELAVANT STANDARDS. DISTRIBUTION BOARD TO COMPLY WITH AS 2293.1, AND ALL RELEVANT STANDARDS, INCLUDING TEST SWITCH FOR TESTING EMERGENCY LIGHT SYSTEM LIGHTING DESIGN INTENT FOR GUIDANCE -FINAL DESIGN SUBJECT TO SELECTED LIGHTING DESIGN CONTRACTOR C1 C1 CA CA C2 C2 C3 C3 C4 C4 C5 C5 C6 C6 C7 C7 C8 C8 C9 C9 CB CB CC CC CD CD CE CE CF CF CG CG LOW TEMP COOLRM MED. TEMP. COOLRM 1 STAFF LIQUOR COOLROOM FRESH PRODUCE PREP PRODUCE COOLRM AMB. TOILET ACCES TOILET LIQUOR CE-02 CH3000 CE-03 CH3000 CE-03 CH3000 CE-03 CH3000 CE-04 CH3300 CE-07 CH3200 CE-01 CH4000 CE-01 CH4000 CE-05 CH2300 CE-05 CH2300 CE-05 CH2300 CE-06 CH3200 CE-08 OPEN CE-09 CH2800 CE-03 CH2950 CE-03 CH2950 1275 1500 LINE OF BULKHEAD @ 3200 AFFL 9400 7195 EX. ST. BEAM@3000 AFFL REDLINE DEPICTS EXTENT OF BULKHEADS WALLS EXTENDING TO ROOF OVER BUILDER TO ENSURE COMPLIANCE WITH ALL RELEVANT NCC SECTION 'J' REQUIREMENTS IN PARTICULAR TREATMENT OF CONDITIONED AND NON CONDITIONED SPACES 145 75 300 5930 CE-10 3200 5120 15388515 225 123051530123052490 94533002290 630 955 FEATURE ENTRY SUSPENDED BULKHEAD. 25 MM BLADE ALUM RHS PROFILES@ 276 MM CTRS 1003100100 (EX) OPEN LINE OF AWNING OVER @ 4500MM ABOVE SLAB ROLLER SHUTTER & EXIT DOOR BY BASE BUILDER SCOPE COOL ROOMS BY REFRIGERATION CONTRACTOR. (EX) OPEN FEATURE ENTRY SUSPENDED BULKHEAD LINE OF WALL BULKHEAD OVER TO CLOSE OFF EXISTING RETAIL CONDITIONED SPACE FROM 3200AFFL TO 5000 MM AFFL TBC ON SITE. (INDICATED RED) NOTE FACE OF FRONT OF BULKHEAD TO ALIGN WITH ENTRY MULLION FRONT CORNER 520 COL. COL. COL. COL. COL. COL. COL. COL. COL. COL. COL. COL. COL. COL. (EX) OPEN (EX) OPEN (EX) OPEN (EX) OPEN CE-04B CH2700 CE-04B CH2700 P2 WP02 P2B P2B WP01 WP01 P2 WP02 WP02 WP02 WP02 CT(B) ENTRY CEILING FEATURE. FINISH TBC,REFER SCHEDULE HUNTER DOUGLAS, CT (B) NOTE AREA 86 M SQ. FEATURE ENTRY SUSPENDED BULKHEAD. ALLOW FOR 10 MM GYPROCK FIXED OVER RONDO KEYLOCK GRID SYSTEM. SIDES PREPARED FOR APPLIED DIGITAL WALLPAPER. EXTERNAL SIGNAGE BY NOMINATED SIGNAGE CONTRACTORS. APPROVALS BY BASE BUILDER. T2 TV T2 25351825 2535 FEATURE SUSPENDED CEILING. ALLOW FOR 10 MM GYPROCK FIXED OVER RONDO KEYLOCK GRID SYSTEM. RETURNS PAINTED P1, APPLIED DIGITAL WALLPAPER TO BASE OF PANEL. REFER T2 BY OTHERS Y O HERS BY BY OTH RS B OTHER BY OTH RS BY OTHERS ROOF ACCESS LADDER BY LANDLORD. NOT IN SCOPE BY OTHERS BY OTHERS BY OTHERS REDLINE DEPICTS EXTENT OF BULKHEADS WALLS EXTENDING TO ROOF OVER BUILDER TO ENSURE COMPLIANCE WITH ALL RELEVANT NCC SECTION 'J' REQUIREMENTS IN PARTICULAR TREATMENT OF CONDITIONED AND NON CONDITIONED SPACES CE-05 CH2300 LINE OF BULKHEAD @ 2300 AFFL LINE OF BULKHEAD @ 2300 AFFL LINE OF BULKHEAD @ 2300 AFFL LINE OF BULKHEAD @ 3200 AFFL CE-04 CH3300 REDLINE DEPICTS EXTENT OF BULKHEADS WALLS EXTENDING TO ROOF OVER BUILDER TO ENSURE COMPLIANCE WITH ALL RELEVANT NCC SECTION 'J' REQUIREMENTS IN PARTICULAR TREATMENT OF CONDITIONED AND NON CONDITIONED SPACES 2470 31850 WP01 2675 3300 630 4045 19005160 LINE OF BULKHEAD @ 3200 AFFL 4 0FF MDF INSET 180 MM DEEP PREFABRICATED RECESS BOXES PAINTED P1 INTERNAL. CONFIRM CNC ROUTER HOLE DIA. SETOUT FOR 3 OFF LED DOWNLIGHTS. 7002501695250169525016952501695250700 EXISTING BULKHEAD OVER @3800 AFFL SS HOOD TO MECH. DETAILS. ALLOW TO PAINT OUT ALL EXISTING STRUCTURAL COLUMNS IN P4 EXISTING SUSPENDED CEILING SYSTEM OVER @4000 AFFL 1285 11300 7170 CE-08 OPEN BY OTHERS BY OTHERS BUILDER TO CONFIRM CLEARANCE TO US STEEL BEAM. ALLOW TO LAY HARD UP TO US EXISTING STRUCTURE. 140 FEATURE CEILING @4000 AFFL 5865 150 F E A T U R E C E L N G @ 4 0 0 0 A F F L 2 5 2 9 5 P2B PC1 PC1 11400 PC1 PC1 P1 P1 P1 P1 ROLLER SHUTTER CLOUSURE LINE OVER DRAWINGS TO BE READ IN CONJUNCTION WITH FINISHES SPECIFICATION SCHEDULE # SCHE01 ALL FINISHES TO BE INSTALLED AND APPLIED STRICTLY IN ACCORDANCE WITH THE MANUFACTURER'S INSTRUCTIONS AND RECOMMENDATIONS. ALL COLOURS TO BE CONFIRMED BY TENANT PRIOR TO THE ORDERING OF ANY LISTED ITEMS IN THES SCHEDULE BUILDER TO ALLOW TO PAINT WALLS BEHIND REFIGERATION CASES TO MATCH ADJOINING. ALL PERIMETER WALLS TO BE PAINTED. SIGNAGE TO BE MOUNTED ON FACE OF BULKHEADS/ WALLS BY TENANT. ENSURE PAINT FINISH BEHIND GRAPHIC PANEL. SS WF STAINLESS STEEL KICKER 150 MM WALL TYPE FINISH FINISHES CODES DECOR NOTES PF PAINT TYPE FINISH TF TILE FINISH ICP INSULATED PANEL FINISH LF JOINERY FINISH ALL EXPOSED PREP AREA CORNERS: LINED WITH 1.6MM STAINLESS STEEL 50x50mm CORNER ANGLE OR CHANNEL FULL HEIGHT ALL EXPOSED PREP AREA WALL ENDS LINED WITH 1.6MM STAINLESS STEEL WALL GAURD/CAPPING FULL HEIGHT ALL EXPOSED COLUMNS IN SALES AREA: LINED WITH 1.6MM STAINLESS STEEL 50x50mm CORNER ANGLE OR CHANNEL TO 1500AFFL PAINTED FINISH OVER, UNLESS OTHERWISE STATED 100mm BLACK VINYL FEATHER EDGE SKIRTING TO BASE, UNLESS OTHERWISE STATED PREP AREA STAINLESS STEEL TO ALIGN WITH EXHAUST CANOPIES OVER UNLESS OTHERWISE NOTED ALL STAINLESS STEEL ANGLES TO BE COUNTERSUNK STAINLESS STEEL SCREW FIXED AT 300MM CENTRES ALL EXPOSED EDGES OF ROLLER DOCK SHUTTER 6mm HOT DIPPED GALVANSED STEEL ANGLES 150x150 FULL HEIGHT ALL EXPOSED STOCKROOM EDGES 6mm HOT DIPPED GALVANSED STEEL ANGLES 150x150 FULL HEIGHT ALL EXPOSED STOCKROOM WALLS 1500 CHECKERPLATE CLADDING ICP(150) INSULATED PANEL 150MM FINISH TV TIMBER VENEER HAVWOODS RECLAIMED BARN OAK RUSTIK 100-130MM 15 MM THICK T&G WAX PC1 DULUX POWDERCOAT BLACK SATIN T2 PB FORMED SUSPENDED FEATURE CEILING. 200 MM BLACK PAINTED RETURNS, WITH INSET DIGITAL TIMBER LOOK PLANK FLOORING. WP01 LARGE FORMAT DIGITAL PRINT. PLASTER TO BE SUITABLE PREPARED WITH SUITABLE SEALER PRIOR TO APPLICATION. WP02 LARGE FORMAT DIGITAL PRINT. PLASTER TO BE SUITABLE PREPARED WITH SUITABLE SEALER PRIOR TO APPLICATION. TF01 CERAMIC WALL TILES DELI PREP WHERE NOTED STACK BOND PATTERN SET-OUT AS PER DRAWINGS 2MM GAPS WITH WHITE MATCHING EPOXY GROUT TF02 CERAMIC WALL TILES GENERAL STACK BOND PATTERN SET-OUT AS PER DRAWINGS 2MM GAPS WITH WHITE MATCHING EPOXY GROUT S/S FOOT RAIL FIXED TO FLOOR SFR V1 Armstong CX SKIRTING 100MM Fa8x850511 L01 PREFINISHED BOARD ‘POLYTEC 'BOSTON-OAK' LAMINATE L02 PREFINISHED BOARD “CLASSIC WHITE TEXTURED”BENCHTOP, 21MM THICK HPL L03 PREFINISHED BOARD “WHITE MELAMINE” L04 BLACK MELAMINE 12MM MRM LOW PRESSURE SSF SOLID SURFACE CORIAN GLACIER WHITE PRICE GROUP A P1 PAINT DULUX DULUX –‘KLAVIER’ P2 PAINT DULUX DULUX –‘LEXICON QTR’ P2B PAINT DULUX DULUX –‘LEXICON QTR’ACRATEX P3 PAINT DULUX DULUX –‘GREY PAIL' P4 MURROBOND MICACEOUS IRON OXIDE PAINT CARBON NOTE METCASH RETAIL DEVELOPMENT 71 HUNTINGWOOD DRIVE HUNTINGWOOD NSW 2766 PH: (02) 8822 3600 REVISION: DRAWING: CLIENT: SITE: AS SHOWN PROJECT: DRAWN: CHECKED: DATE: PROJECT NUMBER: PROJECT STAGE: SHEET NO: SCALE: @ A1 TENDER ISSUE THIS DRAWING IS FOR DESIGN GUIDANCE ONLY. FINAL DETAILS MUST MEET SITE CONDITIONS, THE REQUIREMENTS OF ALL RELEVANT AUTHORITIES, APPLICABLE AUSTRALIAN STANDARDS AND THE BUILDING CODE OF AUSTRALIA. THE CONTRACTOR MUST VERIFY ALL DIMENSIONS ON SITE BEFORE COMMENCING ANY WORK OR MAKING SHOP DRAWINGS. FIGURED DIMENSIONS ARE NOT TO BE USED, SCALED DIMENSIONS MUST BE CHECKED. DO NOT SCALE THIS DRAWING. THE DRAWING IS THE PROPERTY OF METCASH LTD. AND MUST NOT BE RETAINED, COPIED OR USED WITHOUT WRITTEN PERMISSION OF METCASH RETAIL DEVELOPMENT 2 221204 THORNHILL PARK IGA + LIQUORCENTRAL SQUARE LANDMARK DEVELOPMENTS 1.12.2022 PS NO 2 SADIE AVENUE, THORNHILL PARK 3335 TENDER 07 00 REFLECTED CEILING PLAN @ A1 1 : 100 07 00 REFLECTED CEILING PLAN 1 EXIT EXIT Ceiling Schedule MarkDescriptionManufacturerArea CE-01CEILING TILE METAL HUNTER DOUGLAS REFER CT(B) IN FINISHES SCHEDULE84.62 m² CE-02SUSPENDED FEATURE CEILING, PAINT RETURNS WITH DIGITAL PRINT REFER FINISHES SCHEDULE T2 28.53 m² CE-03INSULATED COOLROOM PANEL BY COOLROOM CONTRACTOR @3000 U/S80.61 m² CE-03BINSULATED COOLROOM PANEL BY COOLROOM CONTRACTOR @2950 U/S33.18 m² CE-04SET PLASTERBOARD @ 3300 AFFL29.30 m² CE-04BSET PLASTERBOARD @ 2700 AFFL9.42 m² CE-05SET PLASTERBOARD @2300 AFFL38.04 m² CE-06SET PLASTERBOARD @ 3200 AFFL29.25 m² CE-07FEATURE ENTRY @3200 AFFL BULKHEAD RECESSED SLOTS42.56 m² CE-08SUSPENDED RAFT CEILING FABRICATED OR SYSTEM CEILING TBC0.02 m² CE-09SET PLASTERBOARD BULKHEAD @ 2800 AFFL0.12 m² CE-10ENTRY BULKHEAD TIMBER CLAD VISIBLE SIDES @3200 AFFL0.66 m² N/A OPEN 15.36 EX(OPEN) EXISTING OPEN CEILING TO BASE BUILD ROOF STRUCTURE OVER N/A OPEN REVAMENDMENT DETAILSDATEBY 1INNTERNAL ISSUE31/03/2023PS 2TENDER ISSUE20/04/2023PS
USE FIGURED DIMENSIONS ONLY. DO NOT SCALE FROM DRAWINGS ALL DRAWINGS TO BE READ IN CONJUNCTION WITH RELEVANT SCHEDULES (TBC) AND GENERAL NOTES AND AGREED IGA DESIGN BRIEF. ANY DISCREPANCIES MUST BE CLARIFIED WITH PROJECT MANAGER PRIOR TO CONSTRUCTION CHECK ALL DIMENSIONS ON SITE BEFORE SETOUT, FABRICATION OR COMPLETION OF WORKSHOP DRAWINGS ALL FINAL DETAILS MUST MEET ALL SITE CONDITIONS, RELEVANT AUTHORITIES AND APPLICABLE AUSTRALIAN STANDARDS. THIS DRAWING IS THE PROPERTY OF METCASH FOOD AND GROCERY AND MUST NOT BE RETAINED COPIED NOR USED WITHOUT THE WRITTEN PERMISSION OF METCASH FOOD AND GROCERY GENERAL NOTES C1 C2 C3 C4 C5 C6 C7 3 9 8 5 WP01 ICP P2 SS ICP PANELS BLACK TO RETAIL AREAS BULKHEAD OVER LIQUOR ENTRY GLAZING FEATURE APPLIED PANELS OVER BULKHEAAD WP01 DIGITAL PRINT WALLPAPER OVER SEALED ONLY PLASTERBOARD SELECTED CEILING SYSTEM OVER. SELECTED COOLROOM SLIDING DOOR STAFF TEAMS ROOM ACCESS ICP BULKHEAD OVER TO CLOSE OFF RETAIL AREA TO BACK OF STORE V1 T 0 U S P U R L N S 1 1 8 0 NOTE: EXTENT OF BULKHEADS WALLS EXTENDING TO ROOF OVER BUILDER TO ENSURE COMPLIANCE WITH ALL RELEVANT NCC SECTION 'J' REQUIREMENTS IN PARTICULAR TREATMENT OF CONDITIONED AND NON CONDITIONED SPACES P2B P2 P2B P2B 1 10-00-5-2 2 10-00-5-2 CB CC CD CE 1 10-00 -5DELI DISPLAY CABINET DELI DISPLAY CABINET HOTBOX SS FABRICATED HOOD P2B P2 TF01 WP01 WP02 TF01 TF01 3 2 0 0 1 3 4 5 SCALE 11B 08 01 11B 08 01 1 4 7 0 2 3 0 0 1 2 0 0 DOUBLE DOORS, APPROVED REMAX OPAQUE PVC NOTE: BULKHEADS WALLS EXTENDING TO ROOF OVER BUILDER TO ENSURE COMPLIANCE WITH ALL RELEVANT NCC SECTION 'J' REQUIREMENTS IN PARTICULAR TREATMENT OF CONDITIONED AND NON CONDITIONED SPACES FABRICATED HOOD WITH EXHAUST VENTED VIA ROOF BY MECH SERVICES SUPPLIER. DIGITAL PRINT WALLPAPER OVER SEALED ONLY PLASTERBOARD DIGITAL PRINT WALLPAPER OVER SEALED ONLY PLASTERBOARD SCALE BOLLARD REMAX DOOR. NOTE-BUILDER TO PROVIDE SUITABLE STRUCTURAL SUPPORT TO SECURE JAMB AND HEAD FIXINGS. WP02 WP01 DRAWINGS TO BE READ IN CONJUNCTION WITH FINISHES SPECIFICATION SCHEDULE # SCHE01 ALL FINISHES TO BE INSTALLED AND APPLIED STRICTLY IN ACCORDANCE WITH THE MANUFACTURER'S INSTRUCTIONS AND RECOMMENDATIONS. ALL COLOURS TO BE CONFIRMED BY TENANT PRIOR TO THE ORDERING OF ANY LISTED ITEMS IN THES SCHEDULE BUILDER TO ALLOW TO PAINT WALLS BEHIND REFIGERATION CASES TO MATCH ADJOINING. ALL PERIMETER WALLS TO BE PAINTED. SIGNAGE TO BE MOUNTED ON FACE OF BULKHEADS/ WALLS BY TENANT. ENSURE PAINT FINISH BEHIND GRAPHIC PANEL. SS WF STAINLESS STEEL KICKER 150 MM WALL TYPE FINISH FINISHES CODES DECOR NOTES PF PAINT TYPE FINISH TF TILE FINISH ICP INSULATED PANEL FINISH LF JOINERY FINISH ALL EXPOSED PREP AREA CORNERS: LINED WITH 1.6MM STAINLESS STEEL 50x50mm CORNER ANGLE OR CHANNEL FULL HEIGHT ALL EXPOSED PREP AREA WALL ENDS LINED WITH 1.6MM STAINLESS STEEL WALL GAURD/CAPPING FULL HEIGHT ALL EXPOSED COLUMNS IN SALES AREA: LINED WITH 1.6MM STAINLESS STEEL 50x50mm CORNER ANGLE OR CHANNEL TO 1500AFFL PAINTED FINISH OVER, UNLESS OTHERWISE STATED 100mm BLACK VINYL FEATHER EDGE SKIRTING TO BASE, UNLESS OTHERWISE STATED PREP AREA STAINLESS STEEL TO ALIGN WITH EXHAUST CANOPIES OVER UNLESS OTHERWISE NOTED ALL STAINLESS STEEL ANGLES TO BE COUNTERSUNK STAINLESS STEEL SCREW FIXED AT 300MM CENTRES ALL EXPOSED EDGES OF ROLLER DOCK SHUTTER 6mm HOT DIPPED GALVANSED STEEL ANGLES 150x150 FULL HEIGHT ALL EXPOSED STOCKROOM EDGES 6mm HOT DIPPED GALVANSED STEEL ANGLES 150x150 FULL HEIGHT ALL EXPOSED STOCKROOM WALLS 1500 CHECKERPLATE CLADDING ICP(150) INSULATED PANEL 150MM FINISH TV TIMBER VENEER HAVWOODS RECLAIMED BARN OAK RUSTIK 100-130MM 15 MM THICK T&G WAX PC1 DULUX POWDERCOAT BLACK SATIN T2 PB FORMED SUSPENDED FEATURE CEILING. 200 MM BLACK PAINTED RETURNS, WITH INSET DIGITAL TIMBER LOOK PLANK FLOORING. WP01 LARGE FORMAT DIGITAL PRINT. PLASTER TO BE SUITABLE PREPARED WITH SUITABLE SEALER PRIOR TO APPLICATION. WP02 LARGE FORMAT DIGITAL PRINT. PLASTER TO BE SUITABLE PREPARED WITH SUITABLE SEALER PRIOR TO APPLICATION. TF01 CERAMIC WALL TILES DELI PREP WHERE NOTED STACK BOND PATTERN SET-OUT AS PER DRAWINGS 2MM GAPS WITH WHITE MATCHING EPOXY GROUT TF02 CERAMIC WALL TILES GENERAL STACK BOND PATTERN SET-OUT AS PER DRAWINGS 2MM GAPS WITH WHITE MATCHING EPOXY GROUT S/S FOOT RAIL FIXED TO FLOOR SFR V1 Armstong CX SKIRTING 100MM Fa8x850511 L01 PREFINISHED BOARD ‘POLYTEC 'BOSTON-OAK' LAMINATE L02 PREFINISHED BOARD “CLASSIC WHITE TEXTURED”BENCHTOP, 21MM THICK HPL L03 PREFINISHED BOARD “WHITE MELAMINE” L04 BLACK MELAMINE 12MM MRM LOW PRESSURE SSF SOLID SURFACE CORIAN GLACIER WHITE PRICE GROUP A P1 PAINT DULUX DULUX –‘KLAVIER’ P2 PAINT DULUX DULUX –‘LEXICON QTR’ P2B PAINT DULUX DULUX –‘LEXICON QTR’ACRATEX P3 PAINT DULUX DULUX –‘GREY PAIL' P4 MURROBOND MICACEOUS IRON OXIDE PAINT CARBON NOTE METCASH RETAIL DEVELOPMENT 71 HUNTINGWOOD DRIVE HUNTINGWOOD NSW 2766 PH: (02) 8822 3600 REVISION: DRAWING: CLIENT: SITE: AS SHOWN PROJECT: DRAWN: CHECKED: DATE: PROJECT NUMBER: PROJECT STAGE: SHEET NO: SCALE: @ A1 TENDER ISSUE THIS DRAWING IS FOR DESIGN GUIDANCE ONLY. FINAL DETAILS MUST MEET SITE CONDITIONS, THE REQUIREMENTS OF ALL RELEVANT AUTHORITIES, APPLICABLE AUSTRALIAN STANDARDS AND THE BUILDING CODE OF AUSTRALIA. THE CONTRACTOR MUST VERIFY ALL DIMENSIONS ON SITE BEFORE COMMENCING ANY WORK OR MAKING SHOP DRAWINGS. FIGURED DIMENSIONS ARE NOT TO BE USED, SCALED DIMENSIONS MUST BE CHECKED. DO NOT SCALE THIS DRAWING. THE DRAWING IS THE PROPERTY OF METCASH LTD. AND MUST NOT BE RETAINED, COPIED OR USED WITHOUT WRITTEN PERMISSION OF METCASH RETAIL DEVELOPMENT 2 221204 THORNHILL PARK IGA + LIQUORCENTRAL SQUARE LANDMARK DEVELOPMENTS 1.12.2022 PS NO 2 SADIE AVENUE, THORNHILL PARK 3335 TENDER 10 00 INTERNAL ELEVATIONS -RETAIL @ A1 1 50 10 00 Elevation 1 - a 1 @ A1 1 50 10 00 Elevation 2 - a 3 REVAMENDMENT DETAILSDATEBY 1INNTERNAL ISSUE31/03/2023PS 2TENDER ISSUE20/04/2023PS
LINE OF 90 MM HORIZONTAL STEEL FRAMING SYSTEM TO BRACE ICP INTO ROOF STRUCTURE INSULATION. REFER TO SECTION J OF THE BCA
M E T A L S T U D W A L L S Y S T E M C O S L E N G H T T O U S R O O F P U R L N S 1 6 6 0 3 3 0 0 C P P A N E L 90 INDICATIVE CEILING LEVEL VARIES) P A N T O U T P 1 C O S ) V A R E S W P F N S H ( T Y P C A L ) 1 3 2 0 1 2 0 0 A P P L E D T I M B E R P A N E L T R E A T M E N T 2 3 0 0 GYPROCK 2300 FFL RETAIL REFRIGERATION BULKHEAD 35 1275 9 90 X 35 TIMBER APPLIED PANELS FINISH IN P2 MDF V-GROVE @ 100 MM CTRS. INDICATIVE SIGNAGE BY OTHERS ROOF STRUCTURE CONFIRM EXTENT ON SITE BULKHEADS EXTENDING TO ROOF OVERBUILDER TO ENSURE COMPLIANCE WITH ALL RELEVANT NCC SECTION 'J' REQUIREMENTS IN PARTICULAR TREATMENT OF CONDITIONED AND NON CONDITIONED SPACES BULKHEADS EXTENDING TO ROOF OVERBUILDER TO ENSURE COMPLIANCE WITH ALL RELEVANT NCC SECTION 'J' REQUIREMENTS IN PARTICULAR TREATMENT OF CONDITIONED AND NON CONDITIONED SPACES ICP NOTE: ALL VISIBLE ICP PANELS TO RETAIL AREAS MUST BE BLACK PRE FINISHED 100 MM VINLY SKIRTING CB P1 P2 P2B P2 WP01 GYPROCK LINING OVER TIMBER PANEL GENERALLY TO BE SEALED ONLY SUITABLE FOR DIGITAL APPLIED VINLY GRAPHIC P1 DATUM 3500 FFL TOP WALLPAPER 4820 FFL LINE OF 90 MM HORIZONTAL STEEL FRAMING SYSTEM TO BRACE ICP INTO ROOF STRUCTURE INSULATION. REFER TO SECTION J OF THE BCA 7 0 0 1 0 0 9 8 5 C O O L R O O M D O O R 3 0 0 90 IPC CEILING BY REFRIG. CONTRACTOR P A N T O U T P 1 C O S ) V A R E S W P F N S H ( T Y P C A L ) 1 3 2 0 1 2 0 0 A P P L E D T I M B E R P A N E L T R E A T M E N T 2 3 0 0 GYPROCK 2300 FFL RETAIL REFRIGERATION BULKHEAD 35 1275 90 X 35 TIMBER APPLIED PANELS FINISH IN P2 MDF V-GROVE @ 100 MM CTRS. INDICATIVE SIGNAGE BY OTHERS ROOF STRUCTURE CONFIRM EXTENT ON SITE BULKHEADS EXTENDING TO ROOF OVERBUILDER TO ENSURE COMPLIANCE WITH ALL RELEVANT NCC SECTION 'J' REQUIREMENTS IN PARTICULAR TREATMENT OF CONDITIONED AND NON CONDITIONED SPACES BULKHEADS EXTENDING TO ROOF OVERBUILDER TO ENSURE COMPLIANCE WITH ALL RELEVANT NCC SECTION 'J' REQUIREMENTS IN PARTICULAR TREATMENT OF CONDITIONED AND NON CONDITIONED SPACES ICP NOTE: ALL VISIBLE ICP PANELS TO RETAIL AREAS MUST BE BLACK PRE FINISHED 100 MM VINLY SKIRTING P1 P2 P2B P2 WP01 GYPROCK LINING OVER TIMBER PANEL GENERALLY TO BE SEALED ONLY SUITABLE FOR DIGITAL APPLIED VINLY GRAPHIC P1 ICP 3 3 0 0 L Q U O R E N T R Y B U L K H E A D 3 2 0 0 8 0 0 SUSPENDED LIQUOR FEATURE CEILING TRACK LIGHTS BY OTHERS LINE OF ROLLER SHUTTER DRUM OVER LINE OF ENTRY CEILING BEYOND @4000 AFFL DATUM 3500 FFL FCL 4000 FFL ICP 3000 FFL 3 0 0 3 0 0 0 CB REAR FACE OF TIMBER CLADDING TO LIQUOR SHOPFRONT 3 5 0 0 TOP WALLPAPER 4820 FFL METCASH RETAIL DEVELOPMENT 71 HUNTINGWOOD DRIVE HUNTINGWOOD NSW 2766 PH: (02) 8822 3600 REVISION: DRAWING: CLIENT: SITE: AS SHOWN PROJECT: DRAWN: CHECKED: DATE: PROJECT NUMBER: PROJECT STAGE: SHEET NO: SCALE: @ A1 TENDER ISSUE THIS DRAWING IS FOR DESIGN GUIDANCE ONLY. FINAL DETAILS MUST MEET SITE CONDITIONS, THE REQUIREMENTS OF ALL RELEVANT AUTHORITIES, APPLICABLE AUSTRALIAN STANDARDS AND THE BUILDING CODE OF AUSTRALIA. THE CONTRACTOR MUST VERIFY ALL DIMENSIONS ON SITE BEFORE COMMENCING ANY WORK OR MAKING SHOP DRAWINGS. FIGURED DIMENSIONS ARE NOT TO BE USED, SCALED DIMENSIONS MUST BE CHECKED. DO NOT SCALE THIS DRAWING. THE DRAWING IS THE PROPERTY OF METCASH LTD. AND MUST NOT BE RETAINED, COPIED OR USED WITHOUT WRITTEN PERMISSION OF METCASH RETAIL DEVELOPMENT 2 221204 THORNHILL PARK IGA + LIQUORCENTRAL SQUARE LANDMARK DEVELOPMENTS 1.12.2022 PS NO 2 SADIE AVENUE, THORNHILL PARK 3335 TENDER 10-00-5-2 DETAILS SHEET 2 REVAMENDMENT DETAILSDATEBY 1INNTERNAL ISSUE31/03/2023PS 2TENDER ISSUE20/04/2023PS @ A1 1 10 10-00-5-2 TYPICAL BULKHEAD SECTION 1 @ A1 1 : 10 10-00-5-2 TYPICAL BULKHEAD SECTION LIQUOR - TOWARDS ENTRY 2
CB
C2 C2 CC CC CD CD CE CE 1 3 8 5 9 0 0 1 5 0 0 8 0 0 75015501550105 540210 1290 7501165 1 0 0 5 9 5 CIG SAFES UNDER CIG SAFES SSF SSF SSF SSF DOOR 32 MM MDF CLAD IN 6MM SSF. SS APPLIED KICK PLATE JUSTOR HD DOUBLE ACTION HINGES ST. COL DROPPER POLE FOR POWER/DATA LOW HEIGHT WALL WITH FOLDED SS CAPPING TO EXPOSED ENDS EXPRESS BELTED CHECKOUT 8 0 0 3 0 0 1 1 0 0 9 0 0 SWING ACCESS DOOR WITH DOUBLE ACTION JUSTOR SS HINGES. SS FACE KICKPLATE BOTH SIDES OF 33 MM MDF PFB. 3011959208451025540 4555 INFILL IMPULSE JOINERY UNIT TO MATCH COUNTER FINISHES 1 0 0 1 1 0 0 SS KICKER 1 1 0 0 9 0 0 1 0 0 9 0 0 SSF SSF SSF 3 0 0 8 0 0 SS KICKER L01 SS KICKERS TO JOINERY FULLY INTEGRATED BELTED CHECKOUTS. FINISHES TO MATCH. 1 2 0 0 1 0 0 1 1 0 0 LOW HEIGHT JOINERY CLAD IN SOLID SURFACE. CORIAN 6MM GLACIER WHITE. EXPRESS BELTED CHECKOUTS (x2) 155015505100 SERVICE COUNTER PFB CONSTRUCTION SS KICK PLATE 1 0 0 8 0 0 9 8 5 SS FACE KICKPLATE 1OO MM L01 L01 SSF JOINERY MDF CLAD IN 6MM CORIAN,GLACIER WHITE. GRAIN DIRECTION L01 GRAIN DIRECTION L01 3 0 8 7 0 3 0 0 1 2 0 0 30 10885885100 UNDER BENCH SHEETMETAL CIG DRAWERS SS KICKER 8 0 0 1 0 0 DROP POLE WITH DATA SEGRETATION ADJACENT TO COLUMN GRID LINE CD-C2 P4 DRAWINGS TO BE READ IN CONJUNCTION WITH FINISHES SPECIFICATION SCHEDULE # SCHE01 ALL FINISHES TO BE INSTALLED AND APPLIED STRICTLY IN ACCORDANCE WITH THE MANUFACTURER'S INSTRUCTIONS AND RECOMMENDATIONS. ALL COLOURS TO BE CONFIRMED BY TENANT PRIOR TO THE ORDERING OF ANY LISTED ITEMS IN THES SCHEDULE BUILDER TO ALLOW TO PAINT WALLS BEHIND REFIGERATION CASES TO MATCH ADJOINING. ALL PERIMETER WALLS TO BE PAINTED. SIGNAGE TO BE MOUNTED ON FACE OF BULKHEADS/ WALLS BY TENANT. ENSURE PAINT FINISH BEHIND GRAPHIC PANEL. SS WF STAINLESS STEEL KICKER 150 MM WALL TYPE FINISH FINISHES CODES DECOR NOTES PF PAINT TYPE FINISH TF TILE FINISH ICP INSULATED PANEL FINISH LF JOINERY FINISH ALL EXPOSED PREP AREA CORNERS: LINED WITH 1.6MM STAINLESS STEEL 50x50mm CORNER ANGLE OR CHANNEL FULL HEIGHT ALL EXPOSED PREP AREA WALL ENDS LINED WITH 1.6MM STAINLESS STEEL WALL GAURD/CAPPING FULL HEIGHT ALL EXPOSED COLUMNS IN SALES AREA: LINED WITH 1.6MM STAINLESS STEEL 50x50mm CORNER ANGLE OR CHANNEL TO 1500AFFL PAINTED FINISH OVER, UNLESS OTHERWISE STATED 100mm BLACK VINYL FEATHER EDGE SKIRTING TO BASE, UNLESS OTHERWISE STATED PREP AREA STAINLESS STEEL TO ALIGN WITH EXHAUST CANOPIES OVER UNLESS OTHERWISE NOTED ALL STAINLESS STEEL ANGLES TO BE COUNTERSUNK STAINLESS STEEL SCREW FIXED AT 300MM CENTRES ALL EXPOSED EDGES OF ROLLER DOCK SHUTTER 6mm HOT DIPPED GALVANSED STEEL ANGLES 150x150 FULL HEIGHT ALL EXPOSED STOCKROOM EDGES 6mm HOT DIPPED GALVANSED STEEL ANGLES 150x150 FULL HEIGHT ALL EXPOSED STOCKROOM WALLS 1500 CHECKERPLATE CLADDING ICP(150) INSULATED PANEL 150MM FINISH TV TIMBER VENEER HAVWOODS RECLAIMED BARN OAK RUSTIK 100-130MM 15 MM THICK T&G WAX PC1 DULUX POWDERCOAT BLACK SATIN T2 PB FORMED SUSPENDED FEATURE CEILING. 200 MM BLACK PAINTED RETURNS, WITH INSET DIGITAL TIMBER LOOK PLANK FLOORING. WP01 LARGE FORMAT DIGITAL PRINT. PLASTER TO BE SUITABLE PREPARED WITH SUITABLE SEALER PRIOR TO APPLICATION. WP02 LARGE FORMAT DIGITAL PRINT. PLASTER TO BE SUITABLE PREPARED WITH SUITABLE SEALER PRIOR TO APPLICATION. TF01 CERAMIC WALL TILES DELI PREP WHERE NOTED STACK BOND PATTERN SET-OUT AS PER DRAWINGS 2MM GAPS WITH WHITE MATCHING EPOXY GROUT TF02 CERAMIC WALL TILES GENERAL STACK BOND PATTERN SET-OUT AS PER DRAWINGS 2MM GAPS WITH WHITE MATCHING EPOXY GROUT S/S FOOT RAIL FIXED TO FLOOR SFR V1 Armstong CX SKIRTING 100MM Fa8x850511 L01 PREFINISHED BOARD ‘POLYTEC 'BOSTON-OAK' LAMINATE L02 PREFINISHED BOARD “CLASSIC WHITE TEXTURED”BENCHTOP, 21MM THICK HPL L03 PREFINISHED BOARD “WHITE MELAMINE” L04 BLACK MELAMINE 12MM MRM LOW PRESSURE SSF SOLID SURFACE CORIAN GLACIER WHITE PRICE GROUP A P1 PAINT DULUX DULUX –‘KLAVIER’ P2 PAINT DULUX DULUX –‘LEXICON QTR’ P2B PAINT DULUX DULUX –‘LEXICON QTR’ACRATEX P3 PAINT DULUX DULUX –‘GREY PAIL' P4 MURROBOND MICACEOUS IRON OXIDE PAINT CARBON NOTE METCASH RETAIL DEVELOPMENT 71 HUNTINGWOOD DRIVE HUNTINGWOOD NSW 2766 PH: (02) 8822 3600 REVISION: DRAWING: CLIENT: SITE: AS SHOWN PROJECT: DRAWN: CHECKED: DATE: PROJECT NUMBER: PROJECT STAGE: SHEET NO: SCALE: @ A1 TENDER ISSUE THIS DRAWING IS FOR DESIGN GUIDANCE ONLY. FINAL DETAILS MUST MEET SITE CONDITIONS, THE REQUIREMENTS OF ALL RELEVANT AUTHORITIES, APPLICABLE AUSTRALIAN STANDARDS AND THE BUILDING CODE OF AUSTRALIA. THE CONTRACTOR MUST VERIFY ALL DIMENSIONS ON SITE BEFORE COMMENCING ANY WORK OR MAKING SHOP DRAWINGS. FIGURED DIMENSIONS ARE NOT TO BE USED, SCALED DIMENSIONS MUST BE CHECKED. DO NOT SCALE THIS DRAWING. THE DRAWING IS THE PROPERTY OF METCASH LTD. AND MUST NOT BE RETAINED, COPIED OR USED WITHOUT WRITTEN PERMISSION OF METCASH RETAIL DEVELOPMENT 2 221204 THORNHILL PARK IGA + LIQUORCENTRAL SQUARE LANDMARK DEVELOPMENTS 1.12.2022 PS NO 2 SADIE AVENUE, THORNHILL PARK 3335 TENDER 103 CHECKOUT DETAILS @ A1 1 50 103 PLAN SERVICE & CHECKOUTS 1 @ A1 103 3D Ortho 2 @ A1 1 20 103 Detail Section B 4 @ A1 1 20 103 Elevation Left 8 @ A1 1 20 103 Elevation Front 9 @ A1 1 20 103 Elevation Back 10 @ A1 1 20 103 Detail Section A 3 REVAMENDMENT DETAILSDATEBY 1INNTERNAL ISSUE31/03/2023PS 2TENDER ISSUE20/04/2023PS

Client : BARED SHOES LUXURY RETAIL DESIGN

Task: Design development from 3D model. Model exported from Rhino as 2D plans & elevations. Full Revit design development suitable for Setout & Construction.

4 5 0 3 6 5 75 100 1000 100 75 75 100 1000 100 75 TB TB TB TB TB TB RT 5 4 0 1041186 UNIT A 1350 UNIT 1350 ST1 ST1 5 4 0 3 0 ST1 2700 GRAIN DIRECTION GRAIN DIRECTION ST1 301290 30 30 129030 75100 PART 10001007575100 PART B 100010075 1380 1290 30 0 3 3 6 3 0 2 0 4 J-03A 7 0 16 MM BLACK MELAMINE DRAWER CARCASS WITH BLACK MELAMINE DIVIDERS TO SUIT CUSTOMER" FITTING SYSTEM KITS" CONFIRM WITH CLIENT STORAGE SIZES) 30 1320 43118916 650600 3 5 3 5 5 7 0 100 7 7 RATAN FABRIC PANEL INSET AND SET IN MM REBATE CHANNEL MOCK PANEL BEHIND OPEN WOVEN FABRIC, SET BACK 70 MM FROM REAR FACE OF SIDE PANELS BOTH SIDES). FINISH MATCHING LAMINATE TO MATCH TIMBER TM STAIN. SELECTED SOLID TIMBER FINISHED BODY LEG FRAMES (TB) MECHANICALLY FIXED FURNITURE GLIDES HAFELE MM PLASTIC KNOCK IN PIN. CAT #650.05.716 OR SIMMILAR. SOFT CLOSE BALL BEARING RUNNERS, FULL EXTENSION, LOADBEARING CAPACITY UP TO 45 KG, STEEL, SIDE MOUNTING 450 INSTALLED 450 EXTENSION. CAT# 422.58.345 ST1 TB TB TB BLACK MELAMINE 16 MM PFB DRAWER WITH MATCHING MM ABS EDGE TAPE TIMBER EDGE DETAIL WITH INSET STONE TOP 9 21 30 42 16 1212 TB TB RT 3D Ortho 5 20 Elevation Front 2 20 Plan Detail 1 20 Detail Section A 3 20 Elevation Left 6 1 Detail 21 4 GRAIN DIR. HANDLES INDICATIVE ONLY. SPECIFICATION TBC SOFT CLOSE BALL BEARING RUNNERS, FULL EXTENSION, LOAD-BEARING CAPACITY UP TO 45 KG, STEEL, SIDE MOUNTING 450 INSTALLED 450 EXTENSION. CAT# 422.58.345 DRAWER FRONT WITH INSET RATAN MESH INSERT DRAWER VISIBLE EXTERNAL FACES TO BE FINISHED IN TIMBER LAMINATE TO MATCH TB VENEER. INSET FLUSH STONE TOP. JOINERY SUPPIER TO CO-ORDINATE WITH STONE MASON. 30540 TB ST1 TB ST1 TB SELECTED FABRIC UPHOLSTERY DETAIL BY CLIENT. CLIENT TO LIASE WITH UPHOLSTERER. C O N F R M W T H S E A T P R O F L E D E S G N T B C 4 5 12 MM BLACK MELAMINE DIVIDERS. DETAILS TBC WITH CLIENT TO ACCOMODATE "FIT KITS" DRAWER FRONT TO BE FIXED TO DRAWER INSERT AT TOP BOTTOM AND BOTH SIDE RETURNS IN TB1 VENEER) FIT SHOE STORAGE DRAWER FIT SHOE STORAGE DRAWER MECHANICALLY FIXED FURNITURE GLIDES HAFELE MM PLASTIC KNOCK IN PIN. CAT #650.05.716 OR SIMMILAR. 3 2 4 3 2 5 INDICATIVE ONLY DRAWER PULLS. SPECIFICATION TBC TIMBER VENEER DISPLAY RISER. NOTE ALLOW FOR CLEAR SILICON RUBBER GLIDES TO BASE. SHOPFITTER TO CONFIRM WITH CLIENT OPTION TO REDUCE LENGHT TO 800 MM WIDE MODULES. TBC WITH CLIENT. HARDWOOD TIMBER RAILS TB VELCRO STAPLED FIXED TO JOINERY TO SECURE UPHOLSERY SEAT CUSHIONS 100550 DEEP SEAT UNIT DISPLAY UNIT 600 4DIA. 2004 UPHOSTERED SEAT 650 3090278908230 9 1 3 9 3 0 7 5 5 0 3 2 442208 LEATHER STRAP TO SECURE SEAT BOLSTER TO REAR FACE OF FLOOR UNIT JA-03A OPEN DRAWERS) 2 HANDLES INDICATIVE ONLY. SPECIFICATION TBC GRAIN DIRECTION
1 J-01-3 5044050793504905010105010105010601730795 450 8578 2 J-01-3 3 J-01-3 1 J-01-2.2 4 2 3 4 5 5 5 0 8 6 0 5 0 4 5 0 5 0 2TYP. 87 TYP 2 8 7 3 5 0 4 5 5 RADIAL RETURN 95050440507935049050 (MATCH 4 x TREAD SIZE) 1060 COS (MATCH 4 x TREAD SIZE) 1060 COS (MATCH 4 x TREAD SIZE) 1060 COS COS 1730 (MATCH 3 x TREAD SIZE) 795 MODULE B 950 MODULE C 1923 MODULE D 1060 MODULE E 1060 MODULE F 1060 MODULE G 1730 MODULE H 795 4 8 3 5 0 ( M A T C H 4 x R S E R S I Z E ) 7 1 4 2 6 8 0 2 0 C O SN O T E H E I G H T D E T E R M I N E D B Y S T A R R I S E R S 2 6 8 0 P2 V1 V2 P2 P2 P2 P2 P2 P2 P2 P2 P2 P2 V1 V1 V2 V2 V2 V1 V1 V2 V1 V2 V1 V2 V1 V2 V1 V1 V2 V2 V2 V1 V2 V1 V2 V1 V2 V1 V2 V2 V1 V2 V1 V2 P2 V1 V2 V2 V2 V2 50050 "DRAWER" 44050 "DRAWER" 79350 "DRAWER" 49050 "DRAWER" 101050 "DRAWER" 101050 "DRAWER" 101050168050795 ALLOW FOR 20 MM DEEP SETBACK SHADOWLINE PAINTED TO MATCH P2 FINISH AT CEILING JUNCTION M1 V2 V1 V2 V2 SELECTED LED WALL LIGHT. CONFIRM CUTOUT DIAMETER WITH LIGHTING CONSULTANT. 1010 133 133 4 7 4 4 0 0 ( C O S ) 1 7 1 3 R I S E R S ( C O S ) 5 1 3 ( C O S ) 1 6 1 C O S 9 6 3 R I S E R S ( C O S ) 5 1 3 3 R I S E R S ( C O S ) 5 1 3 SELECTED LED RECESS D/L NARROW SPOT 3 WATT LIGHT. CONFIRM CUTOUT DIAMETER WITH LIGHTING CONSULTANT. LINE DENOTES LED UPLIGHT DOWNLIGHT AT FRONT/ REAR OF SHELF 3 7 1 5 0 3 7 1 5 0 3 7 1 5 0 3 7 1 5 0 3 7 1 5 0 4 7 5 5 0 1 25 Plan Detail 1 1 25 Elevation Front 2

Client : BARED SHOES LUXURY RETAIL DESIGN

Task: Design development from 3D model. . Fully developed Architectural documentation from exported 2D plans from Rhino

UP ACCESS TO BASEMENT SUBSTATION UNDER RETAIL STAIRS ELIZABETH STREET KING STREET LIFT NOT PART OF TENANCY 5 10 11 12 13 14 15 16 17 18 19 20 21 125.22 m² GF RETAIL A2-04 13 A2-05 13 4 A2-06 3 5 1 A2-07 1 2 3 4 2 ROUND TABLE 1500 DIA (TBC) POT MIRROR MIRROR MIRROR COUNTER 2400 BIRRUS COCOMAT 2500 X 740 BULKHEAD ENTRY EXISTING OUTDOOR TILES PODIUM 400 PODIUM 400 PODIUM 400 PODIUM 400 PODIUM 400 PODIUM 400 PODIUM 400 PODIUM 400 PODIUM 400 PODIUM 400 WALL SHELF 1200WALL SHELF 1200 VOIDVOIDVOIDVOID VOID HERO 400 VOID WALL DISPLAY 1500 WALL DISPLAY 1500 MIRROR HERO 450 EX. GLASS DOOR FLOOR UNIT A 2700 WIDE CUSTOM BENCH 2400 WIDE NICHE CUSTOM BENCH 2400 WIDE CUSTOM BENCH 2400 WIDE CUSTOM BENCH 2400 WIDE TGSI -1400X600 DIGITAL WALL -P2 SMD LED 2560 x1440 1CLEAR 241 C L E A R 1 2 0 0 DIGITAL SCREEN HERO 450 DIGITAL SCREEN MOVABLE FURNITURE TBC BY CLIENT POT POTPOT POT POT POT POT 65" DIGITAL SCREENx2 A1-10.2 1 180' TURNING CIRCLE 1500X2070 CLEARANCE 60TURNINGCIRCLE1200WIDE 720 DIA x 920 H 3 4 1 2 A1-18 3 5 5 0 S T A R S 1 4 2 5 9 0 P O D I U M 4 0 0 2 9 8 B E N C H 4 5 0 1 6 2 3 8 0 5 9 0 1 4 2 5 1 1 1 7 O P E N I N G 1 2 0 0 1 2 3 3 C L E A R 1 6 2 3 CLEAR 870 334175 CLICK & COLLECT 175651 COUNTER AREA 3794102 WOMENS AREA 7263 MENS AREA 86402823 NICHE 4507088 1 0 0 7 4 3 1 B E N C H 4 5 0 2 6 0 P O D I U M 4 0 0 7 4 3 1 6 2 5 7 3 5 OVERALL COS. 19001 6035 12966 2 8 0 2 5 5 6 4 9 7 5 O V E R A L L C O S 8 8 9 5 1 4 2 5 3 5 5 0 220510306566030655103070117530655102735355 220510320246028566030524403205102852500285117529824673005102952440300116 7740 11261 C L E A R 1 3 9 4 C L E A R 1 4 0 6 J-06B(M1) 5 0 J-06B(M1) KITCHENETTE CONFIRM PIPE LOCATION PRIOR TO SETOUT & ALLOW TO MODIFY IF REQUIRED TO CONCEAL. 2 1 7 0 4 5 0 PIGEON BOXES 2 5 BULKHEAD 2080 65" DIGITAL SCREENx2 MIRROR WALL SHELF 1000 102 122 REBATE 2 2 J-17A 1 J-17B WALL SHELF 2200 1 2 5 0 1 7 4 8 1 2 5 0 1 2 0 0 210727001811 681120065022006501200681 J-03 J-03 2700 FLOOR UNIT A 2700 WIDE J-04 J-04 3 1 5 MOVABLE FURNITURE TBC BY CLIENT MOVABLE FURNITURE TBC BY CLIENT 7 0 0 ZZZA1-10.2
EXCLUSION ZONE NO SHELVING OR FIXTURES TO ALLOW ACCESS TO SWITCH ROOM AND FIRE EXIT 6.11 m² ACCESSIBLE TOILET 20.05 m² STOCK ROOM FOR STORAGE LAYOUT REFER TO STORAGE BY BOWEN A2-04 3 A2-051 2 1 4 WALL DISPLAY 2000 WIDE WALL DISPLAY 1500WALL DISPLAY 1500CORNER W. DISPLAY MIRROR MIRROR WALL 920 X 2700 NEW DOOR FOR SHELVING SOLUTIONS REFER TO STORAGE BY BOWEN EDB EX. BALUSTRADE VOID LOOKING DOWN VOID LOOKING DOWNVOID LOOKING DOWN VOID LOOKING DOWN VOID LOOKING DOWN VOID LOOKING DOWN EX. EDB CONCEALED BEHIND TO BE RELOCATED PEACOCK BENCH 2400 WIDE PEACOCK BENCH 2400 WIDE POT VOIDVOIDVOIDVOID HERO 400 HERO 400 CUSTOM BENCH 2700 WIDE ROUND TABLE 1500 (TBC) TGSI -1400X600 COUNTER 1800 WIDE EXISTING BALUSTRADE DIGIITAL WALL DISPLAY POT TV SCREEN 60TURNINGCIRCLE1200WIDE PLINTH FOR POT PLANTER OVER ARCHWAY EMERGERNCY EXIT DOOR FLOOR UNIT 2700 FLOOR UNIT 2400 180' TURNING CIRCLE 1500X2070 CLEARANCE 72022800 13366 1 5 2 6 5 7 9 6 O V E R A L L A P P R O X 1 5 2 6 5 1665 N E W W A L L 3 4 4 9 1 0 1 2 6 9 3 7 0 0 2 1 7 9 6 6 9 9 0 1 0 6 0 7 1 4 5 1 9 2 2 4 0 5 0 1 0 0 0 16759464265 BENCH 34151095 TABLE 15001979675 D O O R 9 2 0 5 2 0 OVERALL COS. 19041 288026404695314046061080 WALL SHELF 1835 WIDE
2 6 8 1 6 0 0 1 5 9 -INSET ARCH EQ.1200EQ. KITCHENETTE BOWEN 1205BOWEN 1505BOWEN 1505BOWEN 1505BOWEN 1205BOWEN 1205 BOWEN 1505 BOWEN 1505 BOWEN 1505 BOWEN 1505 BOWEN 1505 BOWEN 1505 BOWEN 1505 4 2 0 2 0 0 VOID 2 1 3 7 5 A2-09 21 J-16B FULL HEIGHT SLIDING PANEL ACCESS DOOR WITH SHELVING LAN RACK CURTAIN J-03 T01 J-05 J-05 J-03 4 8 1 2 8 0 4 8 M I R R O R 2 0 1 7 1 0 0 4 0 0 1 0 0 1 8 4 8 S T O C K R O O M 1 9 2 2 LINE OF CEILING OVER LINE OF CEILING OVER CURTAIN AT REAR OF ARCHWAY. FABRIC TBC 88 2000 7 6 1 WALL SHELF700 7 1 4 7 1 3 RETAIL & COMMERCIAL LIFT LOCKABLE ACCESS) POT 1000MIN . 1 : 75 1F FLOOR PLAN 1
167158240015526404695314046061080

Client : PHARMACIUM

Task: Design development from sketch up and 2D CAD data. Provided client with template for in house design moving forward, including fixtures.

Client : MACPHEES

Task: Cellar design including fixture developement for custom Cellars. Designs were developed in Revit with 3DS max renders and Revit for presentation.

Client : MACPHEES

Task: Cellar design including fixture developement for custom Cellars. Designs were developed in Revit with 3DS max renders and Revit for presentation.

G2 G2 G2 G2 G2 G2 G2 G2 L1 L1 L1 L1 L1 L1 TS1 TS1 L1 TS1 L1 L1 L1 TS1 TS1 TS1 TS1 Q1 G2

Client : LEVIS JEAN CO.

Task: Concession designs for approval with Client and Myer Stores. Revit model set up, for multiple sites achieved.

Client : LEVIS JEAN CO.

Task: Concession designs for approval with Client and Myer Stores. Revit model set up, for multiple sites achieved.

Client : LEVIS JEAN CO.

Task: Concession designs for approval with Client and Myer Stores. Revit model set up, for multiple sites achieved.

Client : ACCENT GROUP -TRYBE

Task: Architectural detail design & documentation

CLEAR GLAZING OVER PORTAL FRAME

P3

EXISTING WHITE PAINTED SUSPENDED CEILING. ALLOW TO PATCH & PAINT NEW LIGHTING TO BE INSTALLED. RETAIN & REUSE EXISTING SERVICES.

NOTE SHOPFITTER TO CONFIRM STRUCTURAL DESIGN & INTEGRITY OF RE-USED STRUCTURAL ELEMENTS AND CONFIRM THE INTEGITY OF ALL STRUCTURAL ELEMENTS ON COMPLETION.

EXISTING WHITE PAINTED STEPPED CEILING SOFFIT. RETAIN IN FITOUT-IF NEED BE CUT BACK TO ENABLE FITMENT FOR ABOVE TRANSOM GLAZING.

MALL BULKHEAD & LEASE LINE SS

S /ST. IT WALL CAPPING TO BE INSTALLED OVER IT WALL. (COS

NEW CLEAR GLAZING OVER PORTAL FRAME

ILLUMINATED LETTERS FIXED TO ENTRY BULKHEAD & SUPPORTED BY STRUCTURE TO ENGINEERS DETAILS.

ENGINEER TO PROVIDE DETAILS FOR SHOPFRONT SUPPORT & DOOR TRACK

POWDERCOATED ALUMINIUM PANELS FIXED DIRECTLY TO ALUMINIUM FLAT SHEET.

FIXED DIRECTLY TO ALUMINIUM FLAT SHEET.

POWDERCOATED ALUMINIUM PANELS FIXED DIRECTLY TO ALUMINIUM FLAT SHEET.

EXTERNAL ALUMINIUM ANGLE EXTRUSION 25mm x 25mm PACKET OUT TO MATCH METAL CLADDING PROFILE.

SHOP FRONT GLAZING T0 AS1288. GLAZING TO BE RECESSED IN GLAZING CHANNEL WITH 800 MM GLAZING RETURN WITH STRUCTURAL SILICON JOINT

RETURN GLAZING TO BE CAPPED IN ALUM FOLD CHANNEL, POWDERCOAT TO MATCH.

1000mm HIGH NOMINAL SHOPFRONT FLAT PLATE ALUMINIUM KICK PLATE WITH SELECTED POWDER COAT FINISH OVER

SHOPFRONT

P3 MR MR MR MR MR MR MR MR P3

EXISTING WHITE PAINTED SUSPENDED CEILING. ALLOW TO PATCH & PAINT NEW LIGHTING TO BE INSTALLED. RETAIN & REUSE EXISTING SERVICES.

MALL BULKHEAD & LEASE LINE

FINISHES

S /ST. IT WALL CAPPING TO BE INSTALLED OVER IT WALL. (COS )

800

PC2 PC2 PC2 PC2 PC2 PC2 PC2 PC2 PC2

260840 CLEAR TO GLAZING 265 2 A4-02

ILLUMINATED LETTERS FIXED TO ENTRY BULKHEAD & SUPPORTED BY STRUCTURE TO ENGINEERS DETAILS.

Task: Architectural detail design & documentation

NEW DOOR TO BE CLAD IN SELECTED FINISH

GRAPHIC PRINTED ON MAGNETIC RECEPTIVE PAPER TO INTERNAL ROW OF PANELS -REFER TO SIGNAGE PLAN FOR DETAILS

POWDERCOATED ALUMINIUM PANELS FIXED DIRECTLY TO ALUMINIUM FLAT SHEET.

MR FINISH OVER PC2 PANELS

1.6mm thick ALUMINIUM FLAT SHEET WITH SELECTED FINISH OVER ON 18mm MDF SUB-STRATE

1000mm HIGH NOMINAL SHOPFRONT FLAT PLATE ALUMINIUM KICK PLATE WITH SELECTED POWDER COAT FINISH OVER

J 4380 1120 100
100
265 CLEAR TO GLAZING
PC2 PC2 PC1 PC1 PC2 PC2 PC1 PC2
1100 3 2797 480 3 800 WHITE TBC P3 COS 320 J
NEW CLEAR GLAZING OVER PORTAL FRAME 327010
NEW DOOR 760MM O/A) TO ALIGN WITH GRID PATTERN.
1.6mm thick ALUMINIUM FLAT SHEET WITH SELECTED FINISH OVER ON 18mm MDF SUB-STRATE
RETURN TO IT WALL TO CLOSE OFF VISIBILITY FROM OVERHEAD TRANSOM GLAZING. FINISH P3
EXTERNAL RETURN TO GLAZING TO MATCH MALL BULKHEAD
NEW
ENGINEER
WHITE TBC
POWDERCOATED ALUMINIUM PANELS FIXED DIRECTLY TO ALUMINIUM FLAT SHEET.
TO PROVIDE DETAILS FOR SHOPFRONT SUPPORT & DOOR TRACK ACROSS SHOPFRONT
DISPLAY CUBE BY JOINERY SUPPLIER P3 PC1 SHOPFRONT PLINTH WINDOW DISPLAY WITH RECCESSED GLAZING CHANNELS. 700 400 2800 480 270 800 800 655 EXTERNAL RETURN TO GLAZING TO MATCH MALL BULKHEAD FINISHES PC2 PC2 PC2 PC2 PC2 PC2 PC2 PC2 PC2 PC2 PC2 PC2 1 25 SHOPFRONT SECTION 2 1 25
SECTION2 3 1 25 SHOPFRONT SECTION1 1
POWDERCOATED ALUMINIUM PANELS
SHOPFITTER
TO ENSURE DIGITAL SCREEN SHROUD CAN BE ROTATED TO ENABLE SERVICING OF SCREEN AND ACCESS TO SHOPFRONT WINDOW
Client : ACCENT GROUP -TRYBE

Client : LEVEL CROSSINGS VICTORIA

Task: Commercial office/ workshop space designed for multiple staff needs. ( approx 200)

Client : LEVEL CROSSINGS VICTORIA

Task: Commercial office/ workshop space designed for multiple staff needs. ( approx 200)

LEVEL 107200 GROUND FLOOR CEILING 103600 NATURAL GOUND LEVEL ADJACENT BASEMENT) 101800 nOT SURE 106300 LEVEL 1 FCL 109900 NOTE: FINAL LEVEL TO BE CONFIRMED ON SITE PRIOR TO MANUFACTURE 5620 1800 4000110022501100 75110075 8450 4300 12750 1100500 2950 1100 NEW AUTO DOORS AT LEVEL 1 EXISTING HAND RAIL TO GROUND WALKWAY NATURAL GOUND LEVEL ADJACENT BASEMENT) 101800 3780 EXISTING BIN ENCLOSURE SITE BOUNDARY 40001100225011004300 18641086 2950 4000110022501100 986 4357 292 1540 1100 C C C SHS POSTS TO ENGINEERS DETAILS ON PAD FOOTINGS 100 2881100886100 SHS POSTS TO ENGINEERS DETAILS ON PAD FOOTINGS. REFER FINAL DETAILS BY FABRICATOR. C 1832 1100 75110075 40 250 230 PFC 230X 75MM FOLDED CHECKERPLATE TREADS. 33 TREADS @ 170.3 MM 170.3 170.3 170.3 170.3 HOT DIPPED GALV. STEEL STAIR CONSTRUCTION TO FABRICICATORS DETAILS. BALUSTRADE PER SPECIFATION FROM STAIR BUILDER. 1 50 NEW STAIR PLAN VIEW 1 STAIR 01 5 1 50 A BD-04GROUND BIN ENCLOSURE PROPOSED 7 SHS SHS 1 20 ABD-04-1 NATURAL GROUND STAIR DETAIL 6 STRUCTURAL SUPPORT DESIGN BY STAIR FABRICATOR TO ENGINEERS APPROVAL. PAD FOOTINGS TO SUIT. REFER ENGINEER FOR DETAILS & FIXING METHODS. 1 20 ABD-04-1 Section 30 8 NOTES FOR EXTERNAL STAIRS: Comply with applicable portions of the following Australian Standards AS 1170 1989 SAA Loading Code Part Dead and Live Loads Part.2 Wind loads, amended 1993 AS 1657 1992 SAA Code for Fixed Platforms, Walkways, Stairways and Ladders AS 1664 1979 SAA Aluminium Structures Code AS 3715 1989 Metal finishing - Thermoset powder coatings for architectural applications EXISTING TREE TO BE RETAINED EXISTING LOW LEVEL PLANT COVER, TO BE CLEANED UP AND NEW PLANTING REQUIRED TO INFILL AREA

Client : LEVEL CROSSINGS VICTORIA

Task: Commercial office/ workshop space designed for multiple staff needs. ( approx 200)

Client : LEVEL CROSSINGS VICTORIA

Task: Commercial office ( approx 200)

UPF.2 F.3 F.4 F.5 F.6 F.7 B1 B2 B3 B4 7230 85 m² Room 240 21 m² OFFICE 243 NORTH SUN W/S 1-6 W/S 7-12 W/S 13-18 W/S 19-24 W/S 25-30 W/S 31-36 W/S 37-42 1580 1000 RAMPED ACCESS TO BUILDING ENTRY ENTRY TO CARPARK BELOW FIRST AID ROOM KITCHEN BOARDROOM MEETING ROOM BREAK/ COLLABORATE ZONE PRESTART AREA 2130 WORK AREA 12760 1520 PRAYER ROOM CRIPPING ROOM MEETING ROOM NOTICE BD 7940 BENCH BINS FRIDGES FRIDGES. 7950 BENCH 480 7940 BENCH 480 6070 BENCH MENS TOILETS WOMENS TOILETS OFFICE BINS 170 DDA 1540 1570
Melbourne Central
BRANDING/ GRAPHIC TO REAR WALL NEW SIGN -1800 MM LED SMIGGLE LOGO BRA A RA R B NDI I DI ND D N G/ NG/ / G NG N GR R G APH PH P AP A IC C I TO O T REA A EA E RE R R W RW ALL LL L L AL A E NEW EW W NE N SI I S GN N G 18 -18 8 1 -100 0 0 MM M M ED SM SMIGG GG IGG G LE EL LOG LO OGO
Concept floor planning
Melbourne Central Concept

Client : THE JUST GROUP - SMIGGLE

Task: Design Management role with concept development.

I developed the concept & construction documents for Melbourne Central. This was further developed and rolled out in the hundreds across the UK. Development of fixtures for off shore manufacture. This involved fixture prototype approvals in China. Specifically I developed standard details for Signage, and fixture design development. Completed design for Flagship London Store, Westfield Stratford, and Several UK stores.

Client : THE JUST GROUP - SMIGGLE

Task: Design Management role with concept development Design Management role with concept development. short term kiosk, to be rolled out in multipe sites. This was palletised and redeployed for several years.

Client : THE JUST GROUP - PETER ALEXANDER

Task: Design Management role with concept development Design Management role with concept development. Complete concept design for Peter Alexander Junior. Detail designed all fixtures & tender documentation.

Client : THE JUST GROUP - PETER ALEXANDER

Task: Design Management role with concept development Design Management role with concept development. Complete concept design for Peter Alexander Junior. Detail designed all fixtures & tender documentation.

Client : THE JUST GROUP - PETER ALEXANDER

Task: Design Management role with concept development Design Management role with concept development. Complete concept design for Peter Alexander Junior. Detail designed all fixtures & tender documentation.

Client : THE JUST GROUP - JUST JEANS

Task: Design Management role with concept development for fixture package for tender & bulk procurement.

1 PERSPECTIVE
ISOMETRIC 1 ISOMETRIC 2
Client : THE JUST GROUP - DOTTI Task: Design Management role with concept development for fixture package for tender & bulk procurement.

GLAZING PANELS TO PASS THROUGH SOFFIT OF CEILING( MDF OR PLASTERBOARD)CUT INTO TO SHOFRONT CEILING. CLEARANCE FIT REQUIRED WITH GLAZING CHANNELS FIXED TO STRUCTURAL DETAILS BY ENGINEER. REFER 107, DETAIL O2 FOR INDICATIVE SECTION. SETOUT PER 1O2 DRAWING

SUGGESTED 16.38 HEAT STRENGTHENED LAMINATED STARFIRE GLASS WITH 5MM CLEARANCE SLOTS AROUND PERIMETER OF GLASS BLADES. SHOPFITTER TO PROVIDE MDF SOFFIT WITH MATCHING TEMPLATE TO SUIT LAYOUT TO MATCH SETOUT.

FULL HEIGHT STARFIRE SHOPFRONT GLAZING BLADES SET OUT AS INDICATED. GLAZING TO AS1288, WITH SUGGESTED 16.38 LAM.GLASS. STARFIRE 12MM MAX) WITH RECESSED GLAZING CHANNELS SET IN FLOOR TILES. GLAZING TO BE SLOTTED THRU CEILING TO STRUCTURAL COMPONENTS. REFER TO DETAIL 2. CERTIFIER TO CONFIRM IF OTHER REQUIREMENTS REQUIRED.

LIGHTING TO BE LOCATED AS INDICATED. SHOPFITTER TO COORDINATE ON SITE.

GLAZING PANELS IN FULLY RECESSED GLAZING CHANNELS SET FLUSH TO FINISHED MALL TILES

CLEARANCE REQUIRED FOR GLAZING TO PASS THROUGH CEILING INTO STRUCTURAL FIXINGS

ELEVATION A1 2

Client : TELSTRA RETAIL NETWORK

Task: Design Management role with concept development for fixture package for tender & bulk procurement. I have personally worked on over 100 Telstra retail store designs with rollout experience. I was presented with an achievement award from Telstra at a function in Sydney for 75 store deliveries in a short lead time.on over

2 A111 1 A111 2 A111 4 A111 3 A111 5 7 4 5 6 0 4 5 0 5 5 0 6 4 1 SHOPFRONT GLAZING TO AS1288. GLAZING 16.38MM LAMINATED, OR OTHERWISE PER GLAZING ENGINEER RECOMMENDATION. FFL 0 3597 GLAZING HEAD 3600 12 322 574 3 6 1 8 8600° 94.00° FP 3500 9 5 9 5 5 8 3 2 6 6 0 7 4 3 0 3 7 1 3 2 2 F A S A R A F A S A R A C L E A R G L A S S C L E A R G L A S S C L E A R G L A S S

10 MM SELECTED ACRYLIC PINNED OFF. FIXINGS TO BE FIX SYSTEMS FX-25 TRI HEAD WITH ISOLATING SLEEVE OR SIMMILAR. STUD TO BE 1/4" BSW WELD TO FRAME ASSEMBLY TO SUIT FIX SYSTEMS. ENSURE THREAD PROTECTED DURING FINISHING

10 MM SELECTED ACRYLIC PINNED OFF. SIDES TO BE FIXED WITH3 x 25 MM FIX SYSTEMS PIN HEAD, TAPPED TO SUIT STUD WELD TO FRAME

760 mm HIGH x 360mm X 360 mm "EMECO" STOOL, FINISHED IN BRUSHED ANODIZED FINISH

POWER & DATA LOCATION TO UNDERSIDE OF SHEETMETAL FOLD SHELF INSERTS

Copy of 3D VIEW FRONT

SHEETMETAL SHELF TRAY ASSEMBLIES TO BE SECURELY FIXED TO UNDERSIDE OF STEEL FRAME

FIX VIA FLUSH SOCKET HEAD CONCRETE SCREW FIXINGS, MIN 50 MM PENETRATION TO SLAB

50 x 5 MM FLAT BAR WELD TO END FRAME PANELS AS INDICATED

TELSTRA STANDARD HAND SCANNER . BASE TO BE REMOVED & HEAD OF SCANNER BASE TO BE SCREW FIXED TO SHEETMETAL FOLD TRAY

LAPTOPS WITH CABLE VIA DESKTOP NOTE ONLY "CUSTOMER SERVICE"CABLES TO PASS OVER TOP SURFACE OF SALES COUNTER

3MM SHEETMETAL FRONT & SIDES TO WRAP AROUND 600 MM WHITE SHEETMETAL INSERT SHELF MODULES

600 MM FABRICATED SHEETMETAL MODULES WITH INTEGRATED POWER/ DATA MODULE TO TOP OF UNIT. ENSURE CLEARANCE FOR PHONE CHARGERS- IE SET FLUSH TO FRONT FACE OF SHEETMETAL FOLDED BOX.

POWER FED VIA FLOOR CHASE & TERMINATED AT PVC JUNCTION FOR POWER & DATA TO BE FED INTERNALLY TO REAR OF SHEETMETAL SUSPENDED TRAY MODULES.

TELSTRA STANDARD CASH DRAWER. SIZE 410 x 412 MM x 112 MM. POWER & DATA VIA CONDUIT FED WITHIN REAR FACE OF SHEETMETAL FRONT VIA SUPPORT HANGAR RAIL

Client : TELSTRA RETAIL NETWORK

Task: Design Management role with concept development for fixture package for tender & bulk procurement. I have personally worked on over 100 Telstra retail store designs with rollout experience. I was presented with an achievement award from Telstra at a function in Sydney for 75 store deliveries in a short lead time.on over

TENDER ISSUE
2
3D VIEW REAR
3

Client : TELSTRA RETAIL NETWORK

Task: Design Management role with concept development for fixture package for tender & bulk procurement. I have personally worked on over 100 Telstra retail store designs with rollout experience. I was presented with an achievement award from Telstra at a function in Sydney for 75 store deliveries in a short lead time.on over

Client : KMART AUSTRALIA

Task: Retail design specialist working on new store formats, including Central Counter design, Self service checkouts, joinery design, standard details, External signage & branding guidelines.100 Telstra retail designs with Rollout skills pro-

Client : KMART AUSTRALIA

Task: Retail design specialist working on new store formats, including Central Counter design, Self service checkouts, joinery design, standard details, External signage & branding guidelines.100 Telstra retail designs with Rollout skills pro-

Client : REJECT SHOP

Task: Concept design done with some initiatives instigated by me to stimulate changes required to cope with customer circulation with “Covid-19” considerations.rked on over 100 Telstra retail designs with Rollout skills.

Client : REJECT SHOP

Task: Concept design done with some initiatives instigated by me to stimulate changes required to cope with customer circulation with “Covid-19” considerations.rked on over 100 Telstra retail designs with Rollout skills.

Client : DYSON AUSTRALIA

Task: Design co-ordination. Imported CAD data and converted to Revit for DA/CC approvals & future client co-ordination. Cad Files were live linked into Revit, for change management. Localised Global design standard to suit Australian Standards and approvals. Developed signage for approval for Heritage building. d

A DUCT GE10 EDB IDF FIXED RACK 1200W 400D 2000H FIXED RACK 1200W 400D x 2000H FIXED RACK 1400W 400D 2000H FIXED RACK FIXED RACK L L Waste Store GS.42 Office Lobby GS.40 Fire stair Corridor GS.43 Lift 34 GS.40 D01 GS.41 D01 S02-GS D01 GS.42 D01 GS.41 D02 GS.42 D02 GS.42 D03 C L C L C L C L C L C L C L C L FIRE ESCAPE CORRIDOR ED.00.03 E D 0 0 0 1 E D 0 0 0 2 ED.00.04 ND.00.01 ND.00.02 ND.00.03 ND.00.04 G E 2 GE6 G E 7 G E 8 G E 1 G E 9 E X 2 EX1 GE8 GE5 / GE6 GE4 GE2 GE3 GE3 GE4 / GE5 EX2 E X 1 H A R S C E N C E B A R 6 5 0 3 3 3 5 PC ENHANCEMENT PLINTH SG1 S G 2 SG3 S G 4 EW.00.02 EW.00.01 E W 0 0 0 7 E W 0 0 0 8 E W 0 0 0 5 EW.00.03 E W 0 0 0 6 EW.00.04 285 GEORGE STREET G S 3 5 R E A L GS.35 RETAIL COMMUNAL ACCESS DISH WASHER FRIDGE/ FREEZER 600 BASE UNIT NOTICE/ Structural Slab Level +13.295 Finished Floor Level +13.355 GL +13.370 Structural Slab Level +12.960 Finished Floor Level +13.010 Finished Floor Level +12.920 Finished Floor Level +12.935 Finished Floor Level +12.955 Finished Floor Level +12.959 Finished Floor Level +12.990 LINE OF FLOOR SLOPE TO MAIN FLOOR LEVEL LINE OF FLOOR SLOPE TO MAIN FLOOR LEVEL AREA OUTSIDE OF DYSON LEASE ABCDEFG 2 3 1 1 3 2 4 5 E S2 S2 E S1 S3 S3 S4 S5 S6 S7 S7 FREE STANDING PLINTH 1000 X 1000 HEIGHTS VARY FREE STANDING PLINTH 1000 1000 HEIGHTS VARY FREE STANDING PLINTH 1000 X 1000 HEIGHTS VARY FREE STANDING PLINTH 1000 X 1000 HEIGHTS VARY PERSONALISATION BAR 650 3335 FREE STANDING PLINTH 1000 X 1000 HEIGHTS VARY FREE STANDING PLINTH 1000 X 1000 HEIGHTS VARY FREE STANDING PLINTH 1000 X 1000 HEIGHTS VARY FREE STANDING PLINTH 1000 X 1000 HEIGHTS VARY FREE FREE STANDING PLINTH 1000 1000 HEIGHTS VARY FREE STANDING PLINTH 1000 X 1000 HEIGHTS VARY UN462VAUN462VAUN462VA STYLING ST. UNIT 900 W STYLING ST. UNIT 900 W STYLING ST. UNIT 900 W STYLING ST. UNIT 600 W STYLING ST. UNIT 600 W STYLING ACCES. PLINTH STYLING ACCES. PLINTH STYLING NetShelter SV 42U SERVER RACK WITH FRONT & SIDE ACCESS 800 X 1200 X 2057 EXISTING DOUBLE DOORS STAFF COMM'S TV SCREEN MTD TO WALL SHOPFITTER TO FORM STEP UP BETWEEN HERITAGE AND GLASS BOX AREA. REFER TO DETAIL FOR STEP CONSTRUCTION & FINISHING IN ACCORDANCE WITH LOCAL CODE. STEPS TO HAVE TACTILE HAZARD PINS SPACED 600MM FROM TOP/BOTTOM TREAD WITH HANDRAIL BOTH SIDES. REFER DRAWING 4005. 2 G1.4005 ALL DIMENSIONS TO BE CHECKED AND CONFIRMED ON SITE BY SHOPFITTER. ANY CRITICAL SETTING OUT DIMENSIONS THAT ARE NOT ACHIEVABLE TO BE NOTIFIED TO THE DYSON PROJECT TEAM IMMEDIATELY. SETTING OUT OF FLOOR BOXES BELOW PLINTHS AND FURNITURE IS CRITICAL. ALIGNMENT MUST BE CENTRAL TO PLINTH ABOVE AS INDICATED TO ALLOW FOR FUTURE MOVEMENT OF PLINTHS. CONTROL SETTING OUT TILES SHOULD BE FULL SIZE TILES POSITIONED EXACTLY AS INDICATED AND FIXED BY THE SHOPFITTER AS A FIRST PRIORITY. THESE TILES SHOULD THEN BE USED TO CHECK DIMENSIONS.

Client : DYSON AUSTRALIA

Task: Design co-ordination. Imported CAD data and converted to Revit for DA/CC approvals & future client co-ordination. Cad Files were live linked into Revit, for change management. Localised Global design standard to suit Australian Standards and approvals. Developed signage for approval for Heritage building. d

F.O.H WF01 WF01 WF02 WF02 WF02 WF02 WF02 WF02 WF02 WF02 WF02 2 0 0 0 1 7 4 0 5 0 0 2 0 0 0 2 0 0 0 2 0 0 0 2 0 0 0 5 0 0 3 2 4 1 6 0 6 1 7 4 0 1 9 3 0 1 7 4 0 6 0 1 0 1 9 3 0 1 7 4 0 5 0 0 9 3 3 1 0 0 V e n a io n G a p 2488 (=) 2488 (=) 538 538 75 1 7 3 2 ( L G H T B O X ) 1023 (LB) 3068 (LIGHTBOX) 1 7 3 2 L B 787 787 787 1026.5 1292 920 150 4 5811200581 4 0 0 0 ( U S R A C K L G H T N G 1023 1026.5 4 0 0 0 U / S T R A C K L G H N G ) 1 6 8 8 3 7 1 0 0 C L C L F3004 F3004 E 2 0 0 8 2 08 E2054 E2054 F3006 H 00 H5 29 GE6 (PC REFRESH CUSTOMISATION WALL) PC ENHANCEMENT PLINTH CLAD WITH AP TO FRONT LED SCREENS = 6 (W) X 17 (H) 102 TOTAL 285 GEORGE STREET COMMUNAL ACCESS GS.35 RETAIL TRANSIT HALL AREA OUTSIDE OF DYSON LEASE A A B B C C D D E E F G S1 S4 S5 S6 S1 S5 DECONSTRUCTED DISPLAY UN462VA FREE STANDING PLINTH 1000 X 1000 HEIGHTS VARY FREE STANDING PLINTH 1000 X 1000 HEIGHTS VARY FREE STANDING PLINTH 1000 X 1000 HEIGHTS VARY DURING BUILDING WORKS ALL EXISTING HERITAGE COLUMN CASINGS TO BE PROTECTED TO PREVENT DAMAGE TO CASINGS. DURING BUILDING WORKS ALL EXISTING HERITAGE COLUMN CASINGS TO BE PROTECTED PREVENT DAMAGE TO CASINGS. PROPOSED GLASS BOX FFL +0.324 PROPOSED HERITAGE FFL +0.000 PROPOSED HERITAGE DATUM LINE FFL +2.000 PROPOSED GLASS BOX DATUM FFL +2.324 EXISTING & PROPOSED MAXIMUM MEP ZONE(HERITAGE) FFL +3.74 EXISTING & PROPOSED MAXIMUM MEP FFL +12.732 ALL DIMENSIONS TO BE CHECKED AND CONFIRMED ON SITE BY SHOPFITTER. ANY CRITICAL SETTING OUT DIMENSIONS THAT ARE NOT ACHIEVABLE TO BE NOTIFIED TO THE DYSON PROJECT TEAM IMMEDIATELY. SETTING OUT OF FLOOR BOXES BELOW PLINTHS AND FURNITURE IS CRITICAL. ALIGNMENT MUST BE CENTRAL TO PLINTH ABOVE AS INDICATED TO ALLOW FOR FUTURE MOVEMENT OF PLINTHS. CONTROL SETTING OUT TILES SHOULD BE FULL SIZE TILES POSITIONED EXACTLY AS INDICATED AND FIXED BY THE SHOPFITTER AS A FIRST PRIORITY. THESE TILES SHOULD THEN BE USED TO CHECK DIMENSIONS. STORE CENTERLINE IS POSITIONED USING EXISTING STRUCTURE/WALLS. SHOPFITTER TO POSITION CENTERLINE OF STORE AS FIRST TASK BEFORE ANY REQUIRED DEMOLITION WORKS TAKE PLACE. ***SPECIAL NOTE*** PLEASE BE ADVISED THAT THE SUBMISSION IS FOR THE PROPOSAL FOR THE EXTERNAL SHOPFRONT WORKS FOR BOTH WYNYARD PLACE, 285 & 301 GEORGE STREETSYDNEYASWELLASTHEINTERNALONLYFOR285GEORGESTREET
For any further information contact Paul Sterkenburg , psterken@icloud.com Mob: 0457859513. Albert Park, Victoria. Australia. Thank- you for your attention

Turn static files into dynamic content formats.

Create a flipbook
Issuu converts static files into: digital portfolios, online yearbooks, online catalogs, digital photo albums and more. Sign up and create your flipbook.
Folio of works- Paul Sterkenburg by sterkenburg - Issuu