Stephen Yung | Portfolio

Page 1

STEPHEN YUNG

interiors

Creative thinker with an affinity for spatial design and a passion for uplifting and welcoming spaces for people and communities.

I am seeking an opportunity as a junior designer in a design or research role.

email:

phone:

linkedin

instagram

stephenhyung@gmail.com

929 384 2817

www.linkedin.com/in/stephenhyung

@stephenyungwork

EXPERIENCE

July ‘22 - Aug ‘23

Junior Interior Designer

The New Design Project

Brooklyn, NY

2019 - 2020

Freelance Media Manager

Freelance Product Photography.

New York, NY

2014 - 2018

Digital Strategist and Media Asset Manager

MacGuffin Films

New York, NY

2010 - 2014

Route Setter | Instructor

Toronto Climbing Academy

Toronto, Canada

01

ELEVENTH

Co -Work Space | Williamsburg Brooklyn

The New Design Project

02

LEVELS CLIMBING

Rock Climbing Wall + Retail

Parsons School of Design - Studio 01

03

TOO BRASS TO HANDLE

Jazz Hotel

Parsons School of Design - Studio 03

04

THE GALLERY

Promenade and Gallery Art Gallery Space

Parsons School of Design - Principles of Interiors

CONTENTS
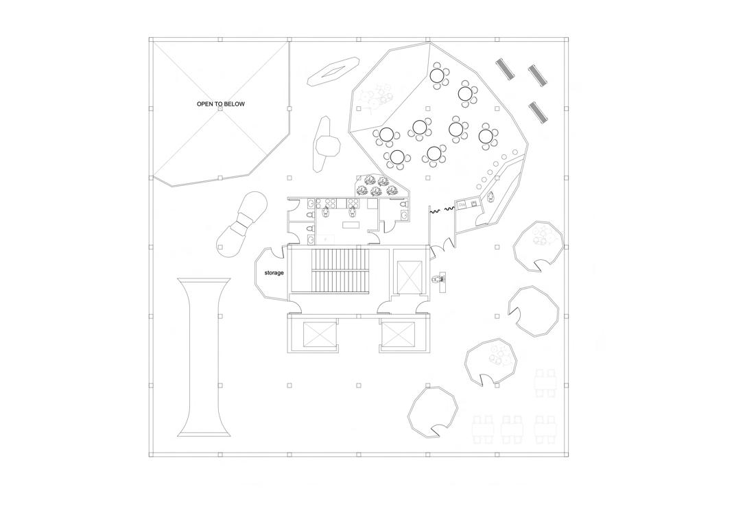
ELEVENTH | THE NEW WORK PROJECT 01 CO-WORK SPACE | WILLIAMSBURG, BROOKLYN ELEVENTH, Williamsburg

THE SPACE

ELEVENTH is a co-work space extension opened in June 2023 to The New Work Project’s original space TENTH.

Located in the heart of Williamsburg, Brooklyn, the space is owned and operated by The New Work Project Group.

Eleventh was designed with a warm, neutral color palette, signature scent and soft curves to create a calming work environment for members.

The spatial design incorporates distinct workplace zones, that provide a range of private, semiprivate, and shared workspaces, catering to various membership tiers.

LOUNGE GALLERY
STUDIOS private GALLERY semi-privat e LOUNGE shared
CONFERENCE ROOMS shared / private
ELEVENTH, Williamsburg

WORK SPACE | ELEVATIONS

APERTURE

TRIM LOCATION

LOCATION | WINDOW AND DOORS
ELEVENTH, Williamsburg

STUDIO DESKS DESIGN

Three private studios sizes designed for teams of 3, 6 and 10 feature long floating work surfaces, overhead shelf storage and personal filing cabinets.

arrangement remains open to the overall space while offering sufficient privacy for extended collaborative sessions.

Plan

Elevation

LOUNGE TABLES

Custom table designed with a trio of silver creme laminate legs reflecting the curved shapes in the space.

Elevation

Plan
SECTION
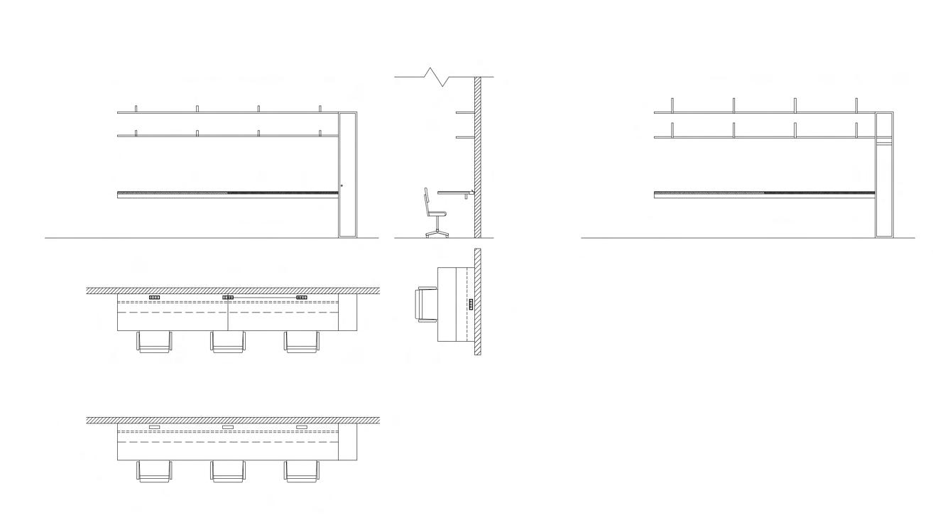
ELEVENTH, Williamsburg
PLAN

CONFERENCE TABLE DESIGN

The conference room tables were designed to sit 8 team members. With a grey wooded tabletop and a champagne metallic finish on the base, the table was designed with two opposing L shaped legs. This creates a modern look while allowing and hiding cables from the surface-mount conference power and AV unit to the power outlet on the ground.

SECTION PLAN ELEVENTH, Williamsburg
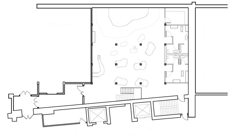
RETAIL CONCEPT STORE | MANHATTAN, NEW YORK Parsons School of Design - Studio LEVELS CLIMBING 02 LEVELS CLIMBING

Levels is a place to climb

LEVELS is a new retail concept that transforms the climbing gym into a spectacle and shopping experience.

At their very core, climbing gyms are a place for community.

They are a place for us to push each other past our comfort zones, a place to support one another, and sometimes just a place for us to gather and hangout.

It’s also a place of spectacle.

When a climber isn’t climbing, we are often sitting around, helping a friend solve a problem, or simply admiring the grace and strength that it takes to move one’s body from one hold to the next. LEVELS will bring that sense of community and that sense of spectacle into a space that is more inclusive for newcomers to the sport without compromising those values.

LEVELS CLIMBING
Chipboard STORY | INSPIRATION
VISUAL SPACE PLANNING LOCATION
Topographie Topographie Topographie DISCOVERY ACCESS COMMUNITY

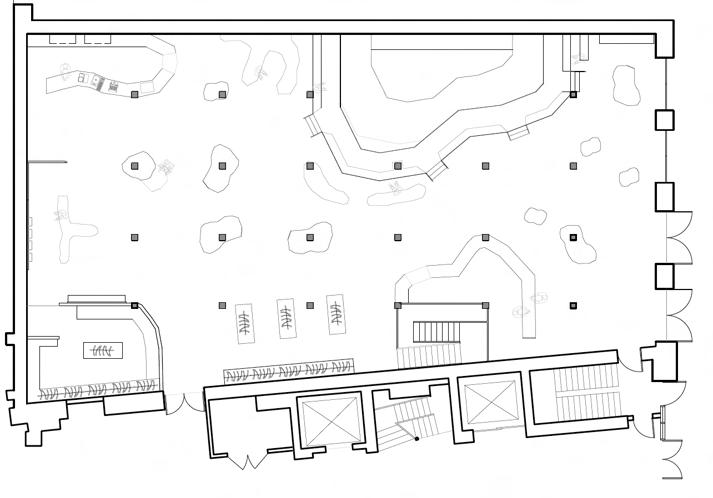
FLOOR PLAN PROGRAM

Climbing Wall

The 25” climbing wall is the centerpiece of the space used as a dynamic visual “eye-catcher” for passers-by. The climbing wall will be used to draw customers into LEVELS and gives a reason for customers to stick around and watch climbers in-action. In the basement, climbers can congregate aro und the base of the wall away from the shoppers, separating the “hang out” climbing space from the hustle and bustle above. Ultimately the wall will serve as a functional “mini-gym” but will also drive customers to shop as they experience “climbing” first hand.

Coffee Bar

The coffee bar services climbers and customers alike. Customers can escape the chaos of the mall with a coffee, can watch climbers scale up and down the wall, as they wait for a friend trying on new clothing and gear. They can stand around our counter style tables, sit on the benches, or bring their coffee into our drop style balcony seating around the perimeter of the wall. Climbers can step away from the wall itself and hangout in the coffee bar area or grab a co!ee on their way out.

Retail Space

Inspired by the spectacle before them, customers can shop from our assortment of technical climbing gear (shoes, harness, chalk bags, etc.) as well as from our “lifestyle” offerings (shirts, pants, jackets, hats, etc). Our retail offerings wil lbe presented and merchandized in a way that appeals to the full spectrum of climbers, but with a focus on lifestyle.

FIRST FLOOR LOWER LEVEL

LEVELS CLIMBING
LEVELS CLIMBING
LEVELS CLIMBING
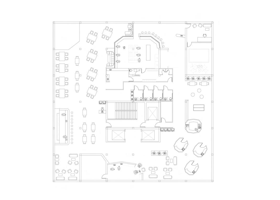
03 TOO BRASS TO HANDLE JAZZ HOTEL | HARLEM, NEW YORK Parsons School of Design - Studio TOO BRASS TO HANDLE

For this project, we explored the design of hotels in New York City by studying the phenomenon of a “staycation” in order to redesign their interiors for a three story hotel.

This project looks at changes in the hospitality industry through the lens of materiality to analyze and describe underobserved relations between the way hotels in New York are designed to emerging trends in alternative, apparently more sustainable, forms of vacations such as “staycations.”

To explore this, we began development by researching architectural elements in hotels and their capacity to inform the larger design of interiors. I selected the door handle because it’s the first element guests encounter when entering a hotel and I focused particularly on those made of brass once I noticed that the majority of hotels in New York, particularly luxury hotels, feature brass handles at their entrance.

VISUAL STORY

TOO BRASS TO HANDLE
Mural of Dizzy Gillespie Shapes of soundproof rooms Alberto Garutti ‘Egg’
SPACE PLANNING
CONCEPT Floor1 Floor2 Floor3

The site is in Harlem at the crossroads at Frederick Douglas and 135th street. This is a site currently undergoing heavy gentrification and locating a staycation hotel might create some conflicts especially connected to the mentality of extraction, not only visible to extraction of material but through urban development that extracts values from land.

While the overuse of certain materials that come with negative externalities of production like brass, in luxury hotels which are prime destinations in staycations, New York is rooted in a mentality of extraction that, at diverse scales, impacts the society and the environment.

This project challenges the mentality of extraction in hospitality design and construction in two ways. The first is by constructing with reclaimed materials, specifically engaging with brass. The second is by providing a functional program rooted in Jazz that engages with the community of Harlem and contributes to its development and empowerment, in contrast to cultural erosion due to ongoing gentrification and displacement in the neighborhood.

TOO BRASS TO HANDLE
COMMUNITY
LOCATION AND
CIRCULATION

FLOOR

The first floor is a welcoming area for visitors and guests. Amenities include a restaurant with jazz performances, jazz store /coffee shop with three listening pods to listen to vinyl as well as a community serving production studio.

FLOOR 02 FLOOR 03

The second floor is welcomed by an exhibition space in the shape of a large brass tunnel. Inside is a gallery about the history of jazz in Harlem The tunnel leads towards a rotating exhibition space to rotating features of various artists. Opposite is a small jazz club inspired to capture the intimacy of smaller clubs around the New York. There are also four orthogonal sound-proof orthogonal pods for guests and visitors to practice and play instruments.

TOO BRASS TO HANDLE
The third floor is reserved to hotel rooms and guests of the hotel. This floor is designed with single and double rooms, billiards room, yoga and multipurpose space, work stations and a small theatre. 01
TOO BRASS TO HANDLE SECTION
SECTION
CUT MODEL
CUT
TOO BRASS TO HANDLE BRASS TUNNEL | Floor 2 FLOOR OPENING | Floors 1 and 2 HOTEL ROOMS HALLWAY | Floor 3 HOTEL ROOM | Floor 3 PRACTICE PODS | Floor 2

THE GALLERY

MASSING AND PATTERN STUDY

Parsons School of Design - Principles of Interior Design

04
THE GALLERY

The Gallery is a space born out of a study of simple shapes and creating a new form using principles of of design including synthetic patterning, scale, massing, color and aggregation.

The flat pattern study is inspired by traditional Chinese design. The massing and aggregation study comes from the rectangle and the pentagon. These shapes were extruded and massed together to form the base of a 3D Shape. This shape served as the base to explore how simple shapes and how they can inform movement an interaction with space.

FLAT PATTERN STUDY

MASSING and AGGREGATION STUDY

Rectangles and Pentagon

Extension Massing Porous Mass Aggregation of Mass

THE GALLERY

The Gallery is an aggregation of the porous shape, each connected through a lower level hallway.

The exterior creates a semi circle and at the center is a common community garden with trees, seating areas, and space for large scale sculptures.

At the heart of each interior space, the pentagonal room is a large foyer for large sculptural pieces or common spaces.

EXTERIOR APERTURE

EXTERIOR COMMON PROMENADE

EXTERIOR APERTURE

INTERIOR HALLWAY

INTERIOR GALLERY

THE GALLERY

Turn static files into dynamic content formats.

Create a flipbook
Issuu converts static files into: digital portfolios, online yearbooks, online catalogs, digital photo albums and more. Sign up and create your flipbook.