

About Me
Stephanie Xu
Stephaniexu7167@gmail.com
As a recent graduate with a master’s degree in architecture, I have a strong foundation in design principles and proficiency with design software through my internship. Additionally, my other job practices as an real estate agent and purchasing agent cultivated my communication and relationship maintenance skills with different clients.
Education
• Master of Architecture
The University of Texas at San Antonio, US 2021-2023, 2010-2014
• Bachelor of Science in Architecture
Guilin University of Technology, China 2004-2009
Experience
• Real estate agent
Keller Williams 2017-2018 San Antonio
• Conducted market research, prepared the closing documents, and hosted the open houses.
• Restaurant Owner
Sichuan Cuisine 2015-2017 San Antonio
• Operated all-aspects of the restaurant business.
• Manage the employee team of six.
• Junior Architectural Designer
Guilin Urban Planning and Design Institute 2009-2011 China
• Collaborated with the design team through all phases of projects.
• Completed energy analysis for projects.
• Architecture Intern
Guilin Qixing People` s Government 2007-2009 China
• Utilized software to complete the construction documents.
• Conducted site visits to gather data and record site conditions.
Skill
• Revit
• Autocad
• Sketchup
• Photoshop
• Indesign Language
• English
• Mandarin


Art School Campus Master Plan
Art school campus master plan. The project will include redevelopment of the existing campus and a master plan for the new campus; The project aims to add educational buildings to supplement the current educational shortage and some entertainment, catering, and accommodation to create a complete college daily life cycle.
The coral-tone frame at the elevation will echo the neighborhood's architectural style. The protruding part will provide outdoor patio space for students to relax. The perforated panel will shade patio spaces from local year-round sunshine.





campus is in the downarea with convenient commute benefits. Also, the utilization of the parking spaces in the neighborhood reduce parking demand the new campus master
the cross walk-path will connect all essential facilities the campus as well as parking and bus stops on ends of the campus.
Plan Legend
Classroom & library
(3 story)
Laboratory & research story)
Gallery (1 story)
Cafeteria (1 story)
Foodcourt & Dormitory Story)
Central couryard
Outdoor stage Picnic area
Outdoor exhibition gallery
Campus existing buildings
Central Library
Parking Garage

2nd Floor plan

3rd Floor plan

route
Central courtyard

School entrance
Existing campus entrance
Patio layout
Facade environmental performance
Protruded patio--Coral-frame
Echo the color coding with the most important building of this neighborhood--central library.
performance

Perforated panel--Tree pattern
Involved with biophilia design to simulate a forest feeling when sunshine crosses the panel
Veneer--Limestone slab
Compromise with the existing campus architectural style also benefits from its local manufacture.
Materiality
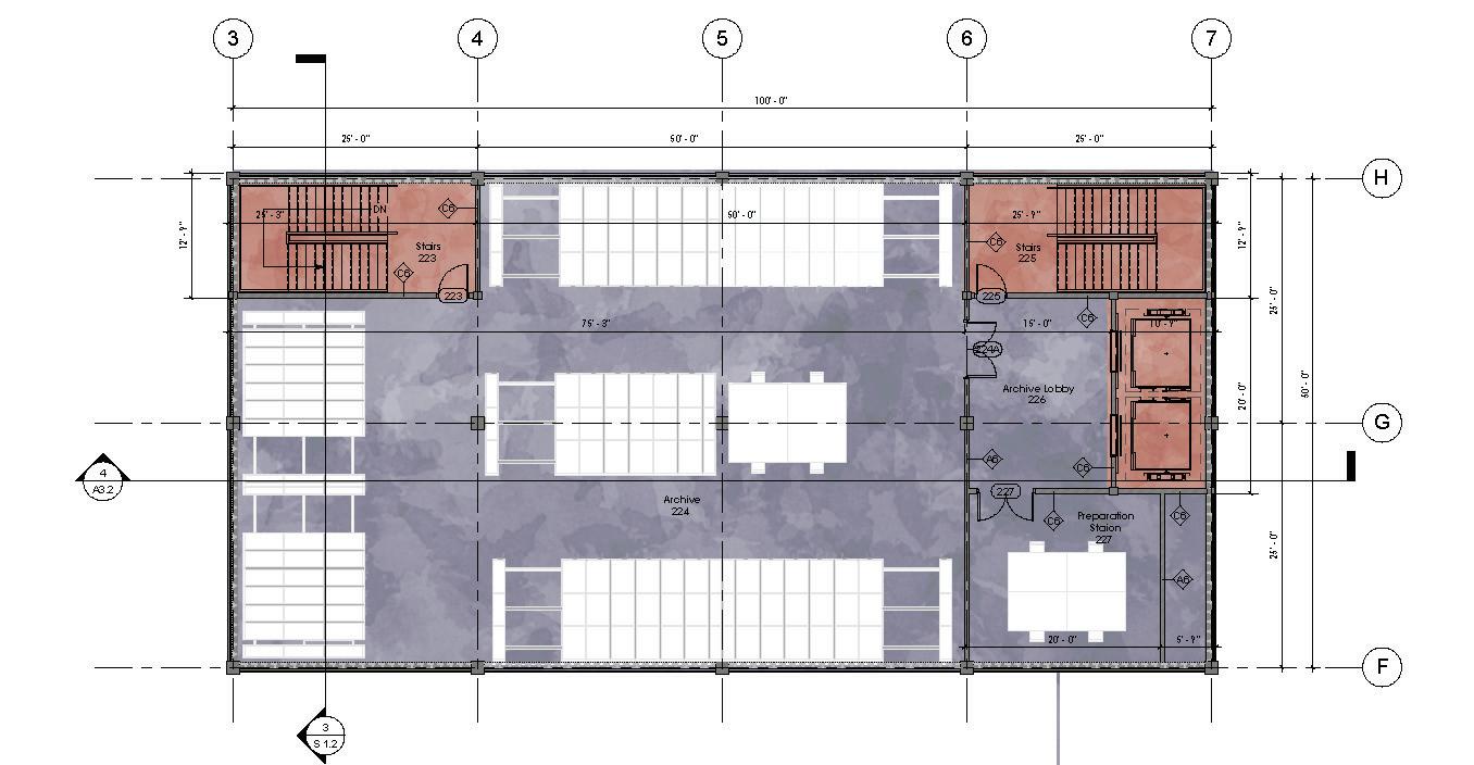
Archive & Visitor Center
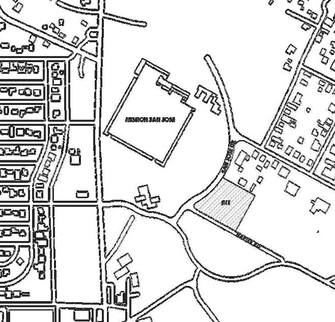
• The site is next to the historical Spanish Mission San Jose in suburb area of San Antonio.
• Desired visitors include historical scholarch and people interested in Mission's history.
• The new structure will store documents and historical pieces from all the Missions in the San Antonio area.
• New buildings include a two-story archive space, a library, galleries, meeting rooms, and offices.
• The courtyard layout will provide security for archive buildings also maximum daylight use for other indoor spaces.

Site plan

Site context

Program


Ground Floor plan





In the Archive
At the Reading room

South elevation

E/W section


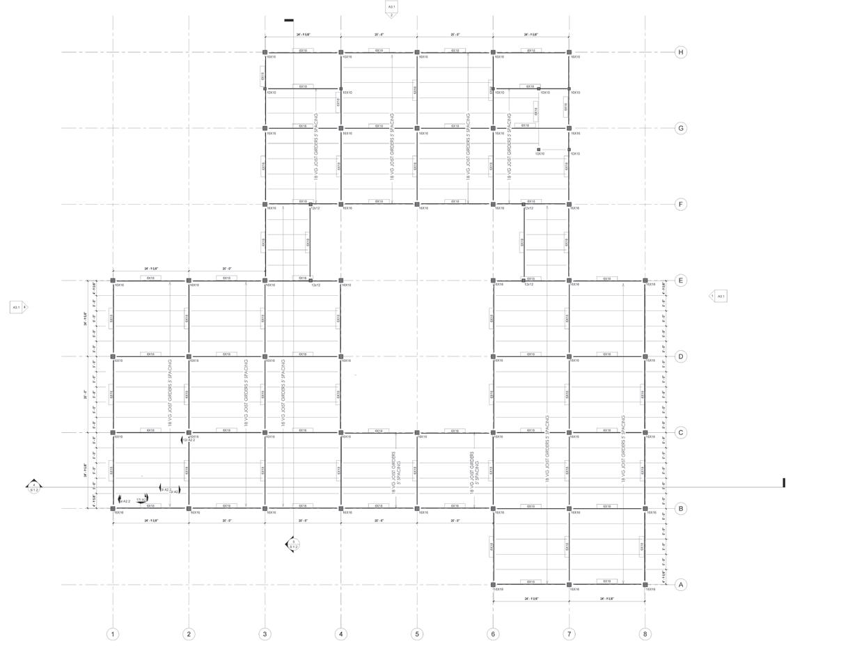
Structural plan

Structural model


Wall section
Wall detail section
Community Park Redevelopment
Overview:
This project will include rehabilitating three historic structures and developing the area around them.
The project's site is inside a historical park--Hemisfair, which includes 78 acres and 24 historical structures.
Context:
The park is located in the downtown area of the city, neighboring a large residential area. It is also surrounded by many tourist attractions and next to two famous historical districts, King William and Lavaca, which are rich in architecture and culture. So, how to attract and accommodate those potential visiting groups will be the primary consideration during the programming.
History:
Hemisfair has experienced three important periods. 1968 was the most important time in the park's timeline; the World's Fair was held there, and some historical structures were remodeled for commercial use. It also added many entertainment facilities to greet visitors. They are the most flourishing decade of the park until the trend has passed and the small business gets shutting down. However, 1968 is still the most markable year because the 1968 Fair changed San Antonio from a provincial community into a modern city. In 2010, HPARC requested a new proposal master plan. It aimed to create more public areas for social activities, preserve the historic buildings on the site, and include more retails to get the park back to its peak status.So, to align with this new proposal, the following elements will be addressed and redeveloped to fulfill the goal.
Project proposal
• Historical structure use for commercial spaces
• Gathering places for the neighborhood
• Art elements echo the cultural characteristic
• Vine & plants to hide the unmovable electrical boxes







(2) It has a well-preserved exterior and is the perfect size for food service. Serious leaking and mold problems need to be addressed during the rehabilitation process.
(4) Adequate ground space can be used for an attached kitchen and outdoor dining.
(6) The alley can transform into a walking path to integrate the architecture with the site.
(7) Replace the shrubs with colorful landscaping to earn more attractions.
(8) A vertical green wall will be added to hide the boxes for safety considerations.
(9) Ruins--where the outdoor exhibitions will stay.
(11) The new bear garden will echo the previous result from the survey.
(13&14) Excellent natural shade space for outdoor activities, especially in hot climate area.
Site current condition
Site map






Restaurant (2)
Central
Vertical Garden &
Outdoor


Exhibition (8 &9)



Beer Garden (11)

Martian Resort
This project is about an imaginary resort on Mars. The resort aims to build a tourist place for visitors to relax and enjoy the onsite entertainment. The suites can accommodate around 100 visitors, and the resort will be food self-sufficient from its central plant garden; the wall-size windows in the theater, restaurant, and activities center will let the visitors enjoy the spectacular Mars landscape during the events. Additionally, the bookstore, game center, casino, and chocolate bar on the semi-glass pods will provide various choices for visitors to kill time. The suites at the back of the resort will offer a quiet environment for guests to relax. Also, each suite’s large windows facing different directions will ensure an unobstructed Mars landscape view.





System analysis




Food garden section

Indoor botanical garden
Big Event--Shows, Concerts, Exhibitions, Conference


Small Attractions--Cafeteria, Library, Souvenir, Gambling, Desert, etc

Relaxation--Queen, King, Famiy Suite




Solar panel & pavilion roof`s angel adapted to the sun direction

Plaza can host various size groups

Tree type depends on activities on site





Buffalo grass
Corten steel
Small gravel
Paver (Brown)
Paver (Grey)
Plants &Trees legend
Sustainable--Panels are made from weathering corten steel, which will cut the painting labor, reduce environmental harm, and last longer than the other steels.
Flexible—Single panel come in different heights and can be assembled with others based on shading and safety needs.
Public welfare--The top part of the panel will be used for outdoor exhibitions to support the community's public events. The bottom part will be planted with various types of vines, which can create a relaxed and colorful corridor when people walk through it.
Aesthetic--Vine can assemble into different patterns based on the cutting and color.
Multi-function--A solid panel stored on specific panels can be used as a chair, table, or message board.





Single panel
Multifunction furniture in the central path Central Pavilion with
Reading

maximize power of the growing vine(result can see in 3 years)



Multi-function furniture
Sitting
Writing