

PORTFOLIO
ARCHITECTURAL DRAFTER

WILDWOOD
RESIDENCE
Two story residential house designed in AutoCAD during the ARC 113 class, designed following local codes, ordinances, laws, etc. An complete set of drawings, and construction documents were created using AutoCAD.
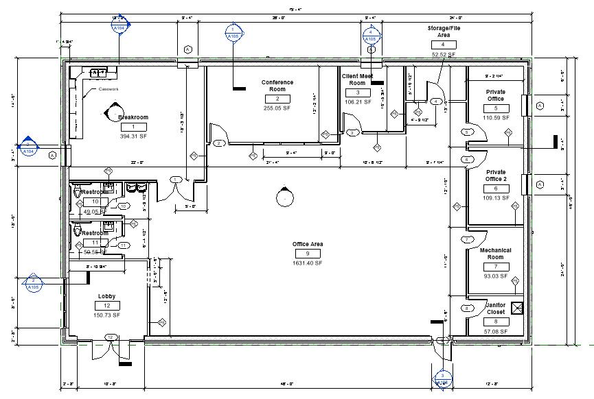
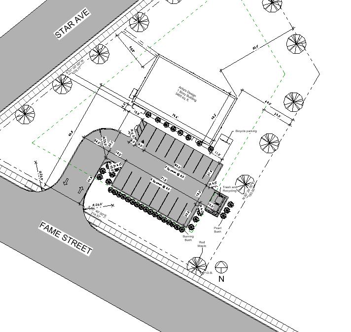
ARITA’S DESIGN


Site Plan

Building Section North Building Section


3D View
BACKYARDS RESIDENCE

Site Plan

South Elevation

East Elevation
BREAK ROOM


