| Portafolio Arquitectura |

Page 1


porta

Arquitectura folio

Arq. Stephanie Fonseca Novoa

20 | septiembre | 2000 24 años

Morelia, Mich

arq.sfonsecan@gmail.com

stephyfn@gmail.com

443 221 6053

Stephanie Fonseca Novoa Arquitecta Jr

Perfil

Graduada de la licenciatura en arquitectura por la Universidad La Salle Morelia, donde he logrado desarrollar un nivel alto de compromiso y organización por medio de administrar mi tiempo escolar, deportivo y cultural con actividades complementarias.

Arquitecta de gran capacidad creativa y grafica con ganas de seguir desarrollando habilidades en el diseño arquitectónico e interiorismo, asi como el desarrollo de mobiliario y retail.

Formación académica

Licenciatura en Arquitectura | Universidad La Salle Morelia | 2018-2023 |Nota media 9.73

(Proceso de titulacion por eficiencia terminal |Tesis “Centro Entretenimiento Infantil “Ciudad para niños en Morelia”

Bachillerato artes gráficas y diseño | Universidad La Salle Morelia|2015-2018

Experiencia

Freelance | Proyecto ejecutivo casa habitación comunidad triguillos. Mich| 2019

Voluntariado | ARQ. MARÍA DE LOURDES RODRÍGUEZ GONZÁLEZ y asociados

Constructor, Calculista y Consultor

Desarrollo de proyecto asilo para personas en situación de calle. | Proyecto solicitado por las hermanas del sagrado corazón de los pobres. | Dibujante y renderista | 2022

ADC Studio Arq. Enrique Carillo | Despacho arquitectura

Dibujante |Proyectos ejecutivos | 2022- 2023

Freelance | Proyecto Diseño Interior | Remodelacion Departamento Morelia, Mich| 2023

Arq. Marina Goméz | Despacho arquitectura y diseño de interiores

Arquitecta |Proyectos ejecutivos, interiores, Renderista | 2023- Actualidad

Idiomas

Ingles Portugues Español B1 A1

NATIVO

SOFTWARE

/ Contenido

Centro de Entretenimiento Infantil “Ciudad para niños”

Proyecto Eficiencia Terminal 2022

Proyecto Ejecutivo | Tesis | 9°Semestre - 10°semestre

Planta Baja
Centro Entretenimiento Infantil “Ciudad para niños” Morelia,Mich.

Administración | Areas

Acceso Principal | Taquillas
zona Playground
Area peatonal
Teatro | cine
de trabajo
Restaurante

piso | Planta azotea

Centro Entretenimiento Infantil “Ciudad para niños” Morelia,Mich.

Primer

Areas Recreativas

Planta Conjunto
Centro Entretenimiento Infantil “Ciudad para niños” Morelia,Mich.

DEPARTAMENTO TIPO LOFT | Morelia, Mich

Proyecto Ejecutivo 2023

Obra en ejecución- 2023-2024 (Primera Etapa)

Colaboracion Estudiante de Arquitectura y supervisor de obra | Jose Ricardo Guillen

Av. Michoacán
Las Margaritas

Primer Nivel | Estado Actual

DEPARTAMENTO TIPO LOFT | Morelia,Mich.

Primer Nivel | Remodelación

DEPARTAMENTO TIPO LOFT | Morelia,Mich.

Obra en Ejecución Estado Actual Junio 2024
Primera Etapa

Planta Azotea | Remodelación

DEPARTAMENTO TIPO LOFT | Morelia,Mich.

Alzado | Estado Actual

DEPARTAMENTO TIPO LOFT | Morelia,Mich.

Renders

Propuesta de Diseño
Noviembre 2023

DEPARTAMENTO TIPO

| Morelia,Mich.

DEPARTAMENTO TIPO LOFT | Morelia,Mich.

Alzado | Propuesta
LOFT
Alzado | Propuesta

BIBLIOTECA CASA VR | Club de Golf Tres Marias, Morelia Mich

Proyecto Interiorismo| 2023

Desarrollo de proyecto interior para Casa Residencial

Dirección de Proyecto Nomena Studio

Diseño Proyecto | Diseño 3D- Renderista | Edición y presentación virtual Arq. Jr Stephanie Fonseca Novoa | Parte del equipo de Nomena Studio

Distribución| Propuesta

Biblioteca Casa VR | Morelia,Mich.

Moodboard | Propuesta
Biblioteca Casa VR | Morelia,Mich.
Render| Propuesta
Biblioteca Casa VR | Morelia,Mich.

Entrega| Ejecución

Biblioteca Casa VR | Morelia,Mich. Fotografia:Nomena Studio

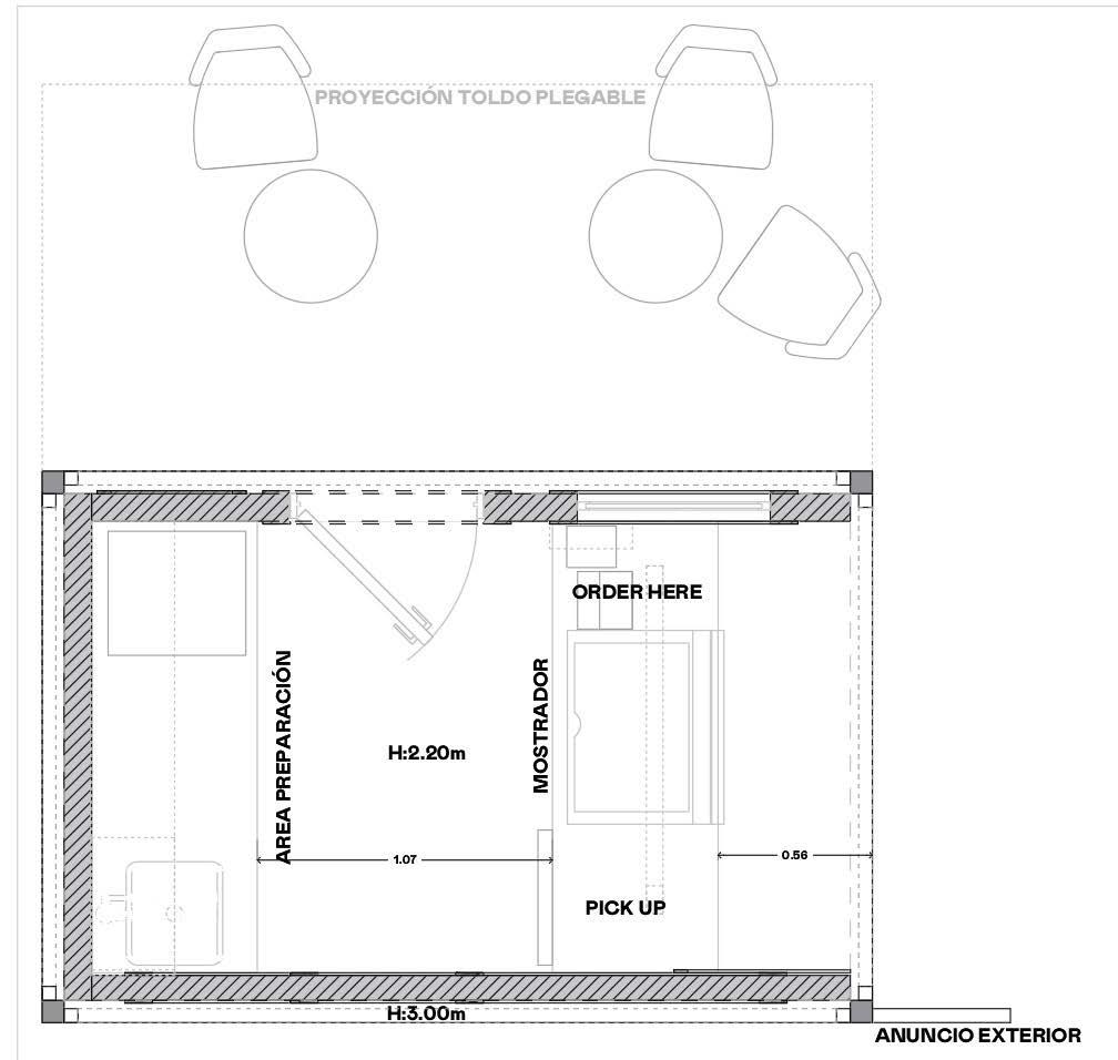
KIOSCO NECTA| Aguascalientes, Ags.

Proyecto Interiorismo 2024

Desarrollo de proyecto Retail para Kiosco de venta

Dirección de Proyecto | Nomena Studio

Diseño Proyecto | Diseño 3D- Renderista | Edición y presentación virtual Arq. Jr Stephanie Fonseca Novoa | Parte del equipo de Nomena Studio

Planta| Propuesta Diseño Kiosco NECTA | Aguascalientes, Ags
Moodboard | Propuesta
Kiosco NECTA | Aguascalientes, Ags
Render| Propuesta
Kiosco NECTA | Aguascalientes, Ags

Render| Propuesta

Kiosco NECTA | Aguascalientes, Ags

Ejecución privada local Kiosco NECTA | Aguascalientes, Ags Fotografia:NECTA HEALTHY BAKERY | @necta_healthybakery

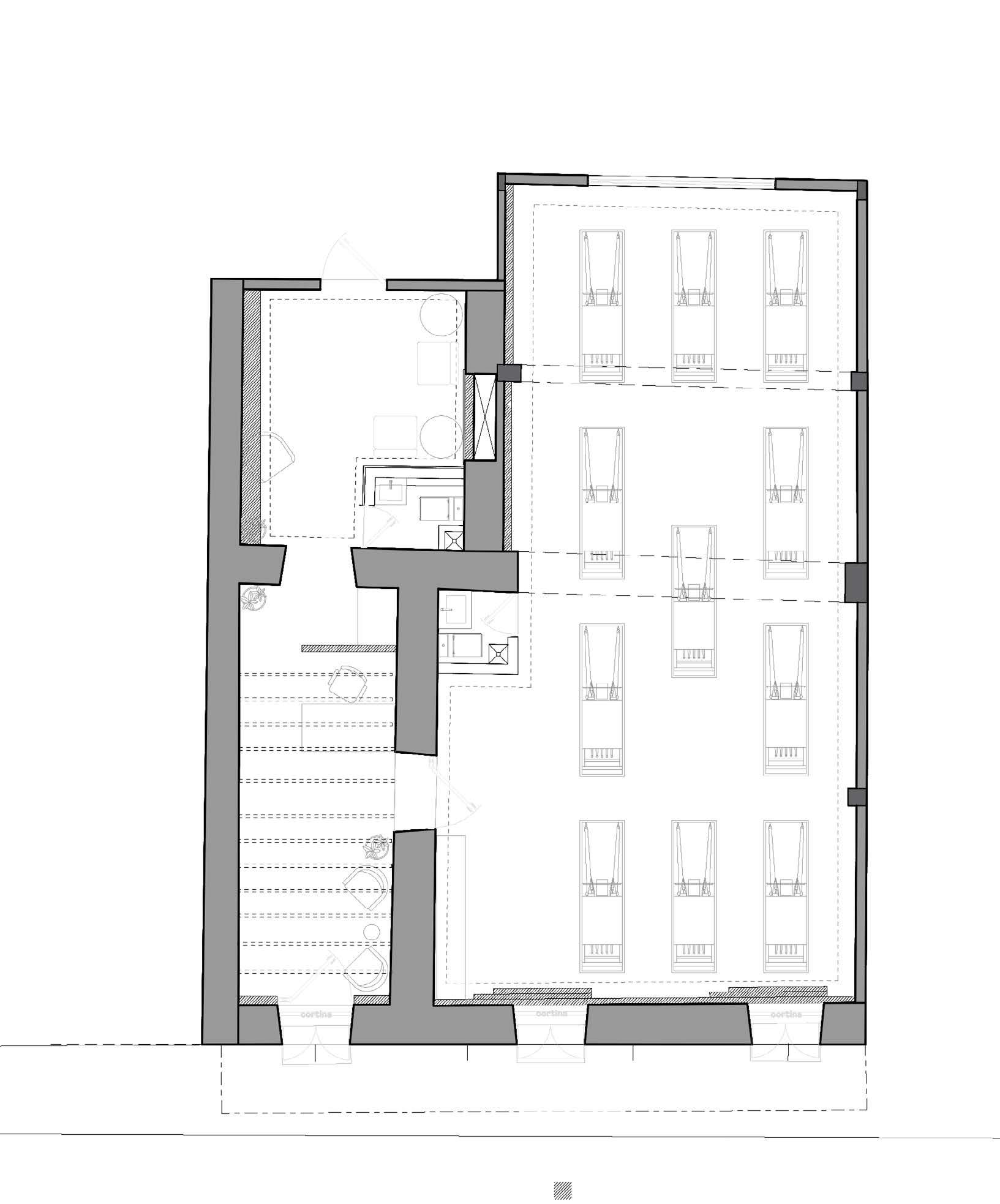
Mandonela Pilates House |Ario de Rosales, Mich

Proyecto Interiorismo| 2024-2025

Desarrollo de proyecto Retail para Pilates

Dirección de Proyecto | Nomena Studio

Ejecución de Proyecto | Studio Fabiana Emilia

Diseño Proyecto | Diseño 3D- Renderista | Edición y presentación virtual Arq. Jr Stephanie Fonseca Novoa | Parte del equipo de Nomena Studio

Planta| Propuesta Diseño
Mandonela Pilates House | Ario de Rosales, Mich.

Diseño Interior| Propuesta

Mandonela Pilates House | Ario de Rosales, Mich.
Moodboard | Propuesta
Mandonela Pilates House | Ario de Rosales, Mich.

Diseño: Nomena Studio |Ejecución: Studio Fabiana Emilia

Mandonela Pilates House | Ario de Rosales, Mich.

Fotografia:Arelis St | @art.arest

@mandonela.house

Render| Propuesta
Mandonela Pilates House | Ario de Rosales, Mich.

arq.sfonsecan@gmail.com

stephyfn@gmail.com

arq.sfonsecan@gmail.com

stephyfn@gmail.com

Arquitectura

folio

Turn static files into dynamic content formats.

Create a flipbook
Issuu converts static files into: digital portfolios, online yearbooks, online catalogs, digital photo albums and more. Sign up and create your flipbook.