Steffie Chan - Cumulative Portfolio

Page 1

STEFFIE CHAN ARCHITECTURE PORTFOLIO

Steffie Chan

Cornell University: College of Architecture, Art and Planning

Bachelor of Architecture, Class of 2025

steffie.lok.chan@gmail.com

917-743-2526

Full portfolio available at issuu.com/steffiechan

2 //
// 3 Resilient Roots 4 12 18 30 38 Unhurried Microcosmic Sanctuary Meditation Mine Verdant Hills Library

Resilient Roots

Community Center // Miami, FL Instructor: Tao DuFour

Miami’s Overtown is a historical hub of cultural diaspora – Seminoles, Africans, Afro-Caribbeans, Bahamians, and Spaniards all inhabited the area, culminating in a thriving mecca of businesses, arts, entertainment, and food during the Jim Crow era. Although the construction of the interstate highway in the 1960s and 70s left the neighborhood reeling socioeconomically, displaced most of Overtown’s residents, and severed once-thriving community connections, Overtown remains a testament to the resilience, adaptability, and vibrant character of Miami’s diverse communities. This project seeks to connect Overtown’s residents back to the natural landscape that once nourished the creolized foodways of the neighborhood and celebrate the complex history of Overtown through the act of storytelling, strengthening community bonds through food and shared history.

4 // RESILIENT ROOTS
6 // RESEARCH
RESEARCH // 7
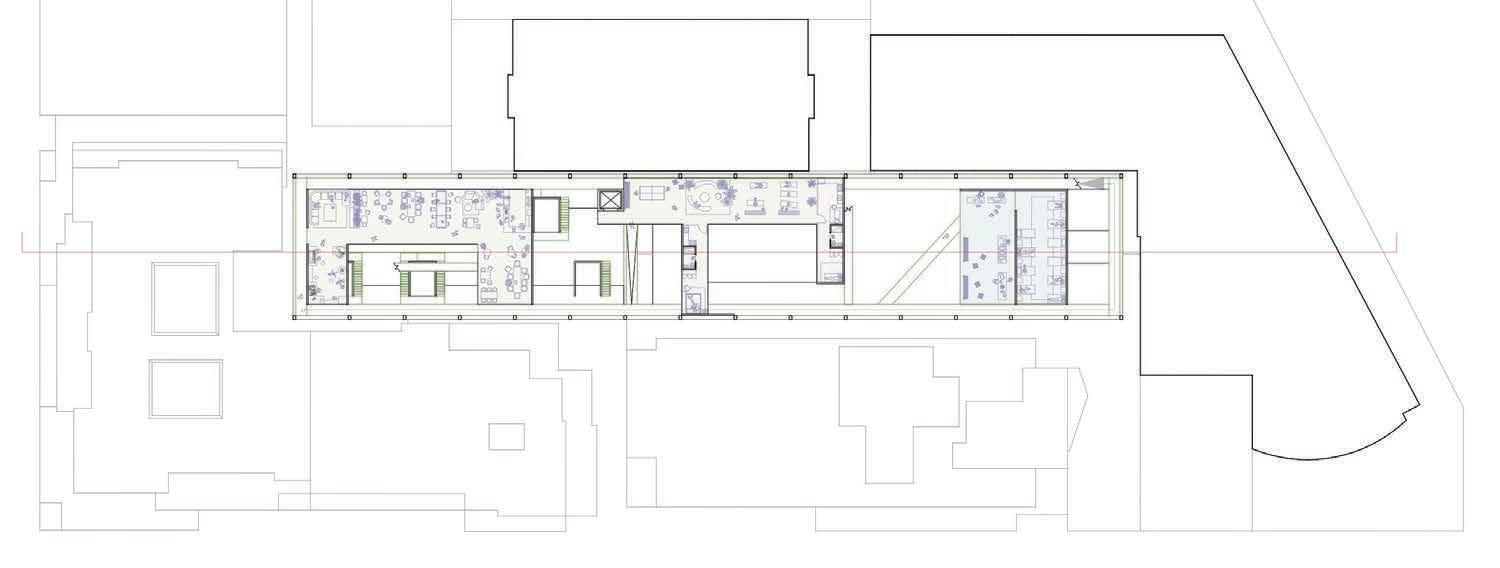
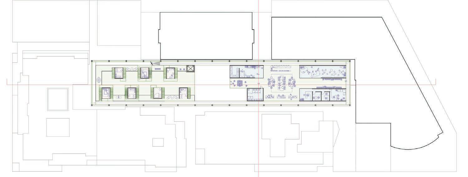
8 // RESILIENT ROOTS : PLAN 1/8" = 1'
RESILIENT ROOTS: SECTIONS // 9 1/8” = 1’ 1/8” = 1’ 1/8” = 1’

RESILIENT ROOTS: STRUCTURAL AXON

10 //
RESILIENT ROOTS: MODEL PERSPECTIVE // 11

Unhurried

Situated next to Ithaca’s Asbury Cemetery, this bus stop/library hybrid utilizes bamboo, plant-fiber fabric, and native reeds to create a habitable intervention that reflects the passing of time. The bus stop serves as a space for contemplation and introspection, overlooking the historic cemetery and the rushing creek below. The intervention is composed of a system of fabrics draped over bamboo frames, varying in length and tautness to serve as hammocks, benches, seats, and overhangs. The bamboo framework becomes denser at the foot of each hammock to act as surfaces for personal belongings and rods for books to hang from. The reeds, which are common throughout Ithaca’s landscape, are planted to create screens for privacy while preventing soil erosion of the grassy slope that the bus stop sits on. As the seasons change, the reeds change from a lush green to a barren bronze, visually symbolic of the cycles of life and death. Eventually, the intervention itself collapses and decays with time, plant matter returning to the earth.

12 // UNHURRIED
Bus Stop + Library // Ithaca, NY Instructor: Iris Ma
14 // MATERIAL ANALYSIS
SITE ANALYSIS // 15

Microcosmic Sanctuary

Urban Housing // New York, NY

Instructor: Luben Dimcheff

Located between Julliard and the Lincoln Center buildings, this building serves undocumented immigrants with community spaces that are open to the public and houses a museum for the art created by the displaced residents of what used to be the San Juan Hill neighborhood. Informed by a series of drawings of the NYC subway, this project seeks to challenge the thresholds between private and public through spaces that allow for perceiving and being perceived. The ground floor creates an uninterrupted ground plane as a continuation of the street, inviting passerby to stroll in the park or visit the museum connecting to the subway below. A long, winding ramp surrounds a series of smaller, stacked volumes. These volumes are defined by the folding of a double-sided surface (concrete exterior, wood interior) inspired by the visual language of the paper model. Narrow ramps connect the volumes, encouraging interaction between occupants. The public spaces can expand to encapsulate the apartments adjacent to them and grow to accommodate more occupants in need of housing.

18 // MICROCOSMIC SANCTUARY
20 // CONCEPT ART - NYC SUBWAY
CONCEPT ART - NYC SUBWAY // 21
22 // CONCEPT ART + MODEL - NYC SUBWAY
MICROCOSMIC SANCTUARY // 23
24 // MICROCOSMIC SANCTUARY
SECTIONAL DIAGRAMS // 25
26 // MICROCOSMIC SANCTUARY
ZOOM-INS // 27
28 // MICROCOSMIC SANCTUARY
MICROCOSMIC SANCTUARY // 29

Meditation Mine

Young Architects Competition // Allihies, Ireland with Elaine Khoo & Danilo Velazquez

Wood studs mark the threshold between rolling moors and tranquil interiors; the nooks created by the studs serve as spaces for rest and contemplation, windows to the ancient landscape, and displays for relics of a centuries-old history. The studs become mullions for a glass enclosure between the jagged walls of ruins, encapsulating a space to serve as a museum for visitors to experience the rich history of Allihies under the shadow of a towering chimney. Corten steel roofs invite visitors to reflect on the industrial yet richly overgrown nature of the site and harken back to the arduous search for copper that brought Allihies its renowned status. The interventions, with their elevated wooden decks, rest gently on the land, creating inviting outdoor spaces that maintain the respect that the land demands. Only a winding path of embedded corten steel steps guides visitors through the green moors and seaside cliffs, encouraging exploration of the true gem of Allihies — the land itself.

30 // MEDITATION MINE
32 // MEDITATION MINE
MEDITATION MINE // 33 MUSEUM + YOGA GYM RESTAURANT + SERVICE CENTER
34 // MEDITATION MINE
MUSEUM + CAFÉ
36 // MEDITATION MINE // 36 ACCOMMODATIONS
// 37 37 // MEDITATION MINE YOGA GYM + MEDITATION

Verdant Hills Library

Library and Community Center // Ithaca, NY

Instructor: Emma Silverblatt

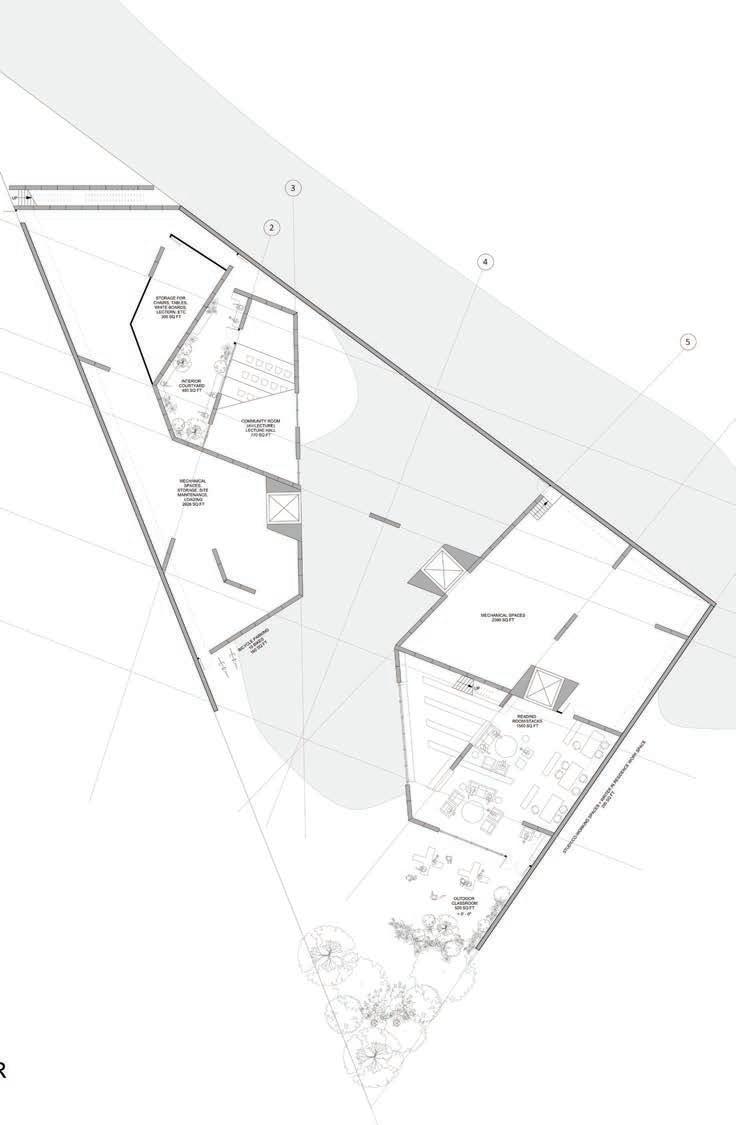
With the precedents of Ensamble Studio’s Hemeroscopium House and OMA’s Seattle Public Library, this project seeks to combine concrete’s load-bearing abilities with the concept of stacked volumes as programmatic divisions. Trumansburg’s largest populations (children and elderly) require green space and community areas that are separate without being entirely disengaged from the other. Three volumes serve three groups: administration, children, and elderly/the general public, with the interstitial space serving as an outdoor lobby. The volumes flow into each other, creating spaces that are physically separate yet acoustically and visually linked; sloped ceilings are used to amplify acoustics and liveliness in highly public areas or minimize sound in quiet spaces. These ceilings are created by inclined green roofs that allow the building to blend into the surrounding landscape, as it sits on a terraformed hill to prevent serious flooding from the nearby creek. Rain gardens and stream buffers are planted on site to assist with flood protection while enhancing green spaces.

38 // VERDANT HILLS LIBRARY
40 // VERDANT HILLS LIBRARY
VERDANT HILLS LIBRARY // 41
42 // VERDANT HILLS LIBRARY
VERDANT HILLS LIBRARY // 43
44 // VERDANT HILLS LIBRARY
VERDANT HILLS LIBRARY // 45
46 // VERDANT HILLS LIBRARY
VERDANT HILLS LIBRARY // 47
48 // VERDANT HILLS LIBRARY
CONCEPT MODEL // 49

Turn static files into dynamic content formats.

Create a flipbook
Issuu converts static files into: digital portfolios, online yearbooks, online catalogs, digital photo albums and more. Sign up and create your flipbook.
Steffie Chan - Cumulative Portfolio by Steffie Chan - Issuu