Portfolio

Page 1


CONTENTS

ARCHITECTURE COMPETITION BY TERRAVIVA

Silos Buoenos Aires, Project “ACQUA ARIA TERRA”

Research Project “Smart Cities and Urban entrepreneurship: the study of Chicago and Medini”

RESEARCH AT IMAGINEERING INSTITUTE

Research Project “BeMe: the Bench of Memories”

Research Project “Smart Cities and Urban entrepreneurship: the study of Chicago and Medini”

PHD IN ARCHITECTURE

PhD Thesis “Centers of Knowledge: urban devices for the creation of Smart Cities”

RESEARCH AT MIT MOBILE EXPERIENCE LAB

Design Research “Avea Smart Home: Re:thinking the Future of Smart Living”

RESEARCH

AT IIT INSTITUTE OF DESIGN

Design Research “New Spaces of Innovation: the emerging landscape of workspaces in the (omni)presence of technology”

RESEARCH AT UNIVERSITÀ DI CAGLIARI

Research Project “Sustainable Planning and Urban Design: the model of Smart City”

Research Study “Complexity in urban relations: a tool to define multi - scale indicators”

Research Study “Spatial analysis of the opportunities: a parameter to define urban accessibility”

Research Study “Smart mobility awareness in the urban context”

Research Study “Smart city: a model solving the conflicts between tourism and urbanism”

MASTER IN ADVANCED ARCHITECTURE

MAA Thesis “Hybrid Housing”

Design Studios - Parametric Design and Digital Fabrication /Scripting

MASTER DEGREE IN BUILDING ENGINEERING AND ARCHITECTURE

Master Degree Thesis “Regeneration project of the ex-factory of potassium salt located in the Park of Molentargius”

Design Studio “Lagoon waves”

Design Studio “City Box”

Design Studio “Hausing / Atelier”

ARCHITECTURE Competition project

SILOS BUENOS AIRES: ARIA ACQUA TERRA

Project Statement

TerraViva Competitions: Architecture and Design Competitions

Silos Buenos Aires

Design Team: Stefania Placco, Stefania Sini

Competition organizer: Terraviva weblink: https://www.terravivacompetitions.com/silosbuenos-aires-competition-2022/

Images: on the top, three-dimensional view of the building and diagram of the functions; on the bottom, floor plans and exterior view of the building.

The project constitutes a reflection, at the urban scale, on the planetary changes that are occurring within the ecosystem of the planet Earth. The concept for the rehabilitation project of the silos reflects on the role of some of the vital elements on planet Earth and imagines new modes of interaction with them. The spaces are designed to generate playable experiences and, at the same time, create awareness on the importance of these element to support a sustainable life on the planet in the future. Water, Air and Earth are the vital elements that determine the concept for the space: Water defines the spaces of the deep swimming pools that are used for training on deep diving and for interactive installations on water; Air defines the space of the zero-gravity rooms that are used for training on space travelling; Earth defines the space for in-door vertical gardens that support the production of food at the ultra-local scale. In the ground floor of the block with the silos there is an exhibition space that promotes the activities accessible in the silos and hosts exhibition on planetary changes in the ecosystem of the Earth. In the tower there is a restaurant, a lounge bar, a concept shop and additional services for the swimming pools; these spaces are designed to reflect the concept of the vital elements on planet Earth.

RESEARCH Research Project

INTERACTIVE CITY

BeMe: the Bench of Memories

Imagineering Institute

The Research Fellowship at Imagineering Institute has been funded by the Malaysian Government.

Principal Investigator: Stefania Sini, Research Fellow Collaborators: Nur Ain binti Mustafa and Hamizah binti Anuar, Research Engineers; Alvin Tan, Artist that provided the Bamboo bench Scientific Coordinator: Adrian David Cheok, Director

The Extended abstract titled “BeMe: the Bench of Memories” has been accepted at the Conference “DIS 2017 :: Designing Interactive System :: Space, Place and Interfaces”, but has been then withdrawn: Stefania Sini, Nur Ain binti Mustafa, Hamizah binti Anuar, and Adrian D. Cheok. 2017. BeMe: the Bench of Memories. WITHDRAWN from the DIS’17 Companion, June 10-14, 2017, Edinburgh, United Kingdom. ISBN 978-1-4503-4991-8/17/06. DOI=http://dx.doi. org/10.1145/3064857.3079116.

Images: on the top, the concept of BeMe; on the bottom-right, the low-resolution and the medium-resolution prototypes; on the bottom-left, the set-up of the space of the public event with the low-resolution prototype, and of the pilot test with the medium-resolution prototype.

Research Statement

The pervasiveness of information and communication technologies (ICT) has dramatically changed the way we build, sense and interpret places, and it increasingly intensifies the complexity of relations on which places are created and experienced. What if cities have dedicated urban interfaces in public spaces that invite people to share stories and memories of public interest, and facilitate the creation of a public narrative? What if people share and access these stories and memories while chatting with a public bench? Will the interaction with the bench provide a meaningful, memorable and playful experience of a place? The Bench of Memories, BeMe, constitutes a preliminary proposal for an urban interface, whose objective is to investigate the role of urban media in placemaking. The key research novelty of the project consists in exploring the effectiveness of a conversational bench in mediating the creation of a narrative. Moreover, the research project forms the basis for future studies on how a conversational bench mediates the experience of a place.

Research Methodology

The project is framed in the RtD method of inquiry, and it tests the concept of a novel urban interface, and its effectiveness in shaping a meaningful and memorable experience, through the design of different prototypes, with increasingly higher resolution. The research involves the development of two prototypes that identifies two different stages of the study:

1. First stage of the study with the development of the low-resolution prototype that is exhibited during a public event, in which comments from the visitors are collected;

2. Second stage of the study with the development of the medium-resolution prototype to test the interaction with the system through a pilot test conducted in a laboratory setting.

Results

We believe that sharing stories and memories within a public space is crucial in shaping the sense of a place, therefore we developed BeMe, the Bench of Memories. The aim of the study is to test the effectiveness of BeMe in mediating the creation of a public narrative made of stories shared by people, as well in supporting a significant experience of a place. The user studies conducted until now did not allow us to assess the

effectiveness of BeMe in facilitating the creation of a public narrative and in building a meaningful experience of a place, because they were conducted in a laboratory environment. Although that, the results of the user studies provide positive insights into the effectiveness and meaningfulness of the overall concept of the project, and suggest further investigations, which should involve one or more user studies conducted in a public space, in order to assess how people experience a public space mediated by a conversational bench. Moreover, the results provide positive feedback on the employment of auditory stimuli for generating a narrative; therefore, in our future researches, we will explore more in deep the topic of urban interfaces that effectively and creatively mediate communication within a public space through spoken dialogues.

RESEARCH Research Project

SMART CITY

Smart Cities and Urban entrepreneurship: the study of Chicago and Medini

Imagineering Institute

The Research Fellowship at Imagineering Institute has been funded by the Malaysian Government.

Principal Investigator: Stefania Sini, Research Fellow Scientific Coordinator: Adrian David Cheok, Director

Images: on the top, the Merchandise Mart in Chicago where is located the 1871, the technological and entrepreneurial hub of the city, view of the building, the entrance and the co-working spaces of the 1871; on the bottom, the Masterplan of Medini and the scheme of the ecosystem for Smart City Medini.

Image credits: North Branch / Merchandise Mart, Mobilisage, Creative Commons Attribution 2.0 Generic License(CC BY 2.0), the photo has been converted into black and white https://www.flickr.com/photos/ mobilesage/8026558020/; Masterplan of Medini and Scheme of the Ecosystem, © Medini Iskandar Malaysia Sdn. Bhd.

Research Statement

The pervasiveness of information and communication technologies in cities have made them hyperconnected, thus dramatically increasing the amount of data produced and consumed.

The Internet of Things has generated networked systems of sensors and actuators: these systems create a continuous flow of data that provide a dynamic representation of urban contexts, and that allows to embed intelligence into the vital systems of cities. Moreover, the increasing accessibility to these data has brought new opportunities for collaborating effectively and for facilitating entrepreneurial initiatives oriented to develop products and services for cities. Increasingly, the strategies and the projects that give meaning and value to data are providing results that are beneficial to cities.

The research presents a study on Smart Cities that describes how two diverse contexts, the city of Chicago and the newly emerging city of Medini in Malaysia, are utilizing new forms of urban entrepreneurship to develop products and services for cities that are able to increase the quality of life of citizens. Chicago supports the creation of a broad civic tech community and a rich ecosystem of innovation, sourcing the Open Data projects, to improve services and facilitate economic recovery. Medini has the objective of creating a smart city with key values conceptualized as safe, connected, livable and efficient. It has recently launched the Medini Innovention Challenge to facilitate the commercialization of smart city ideas.

Both cases studies provide valuable approaches and challenges to the topic of Smart Cities, and suggest how tangible interventions that promote urban entrepreneurship and innovation could have a positive impact on urban development. In the following sections, the Open Data project, especially in relation to the US context, is described; then the case studies of Chicago and Medini are presented. In the case of Medini, although the vision proposed by Medini Smart City has no relations with the Open Data project, we suggest how the culture and the initiatives that gravitate around this concept could open up new opportunities for local development and innovation.

CHICAGO

PHD IN ARCHITECTURE

Thesis

CENTERS

OF KNOWLEDGE:

URBAN DEVICES FOR THE CREATION OF SMART CITIES

Università di Cagliari,

PhD School of Civil Engineering and Architecture

Scientific Tutor: Emanuela Abis

Student: Stefania Sini

Thesis available in the open access archive of Università degli Studi di Cagliari, UniCA Eprint, http://veprints.unica.it/1162/

Images: on the right, material and immaterial components of the centers of knowledge; in the following pages, scheme of the relations between data-driven categories, components of the centers of knowledge and guide lines of the centers of knowledge, cloud words of the transcripts of the interviews, the cloudwords have been generated through the opensource software Wordcram.

Abstract

The PhD research investigates the meaning of the paradigm of Smart City, or Intelligent City, that, from several time, started to be discussed and applied in diverse urban contexts in the world. Smart Cities are characterized by the presence of pervasive and cooperating information and communication technologies. These technologies improve the efficiency of urban resources' management and increase relations and interaction within the urban space. However, a Smart City doesn't prescind from the fundamental role of citizens in the urban space's transformation and development, for this reason information and communication infrastructure are primarily a tool for intensifying connections and exchanges among citizens. In a sense, according with the vision proposed in this research, a Smart City is not exclusively a concept through which efficiency and resources optimization are emphasized, as in the visions that represent the city as a machine constituted of technological cooperating components, but definitively suggests a more holistic vision, which considers the complexity of contemporary cities. This approach underlines that the city is constituted of several interacting components, human and non-human, that together create a complex ecological system where the technological tools, proper of the Smart Cities, can facilitate its management, without adopting rigid standards that limit its free evolution.

The intensifying and multiplying of relations and interactions is therefore a concept at the base of the vision proposed by the Intelligent City model, where urban space's development is realized through new practices that enable novel opportunities for collaboration, based on a system of diffused knowledge. Context-knowledge is amplified by the information belonging to the digital space: urban space is increasingly constituted of digital elements that fundamentally contribute in shaping urban places, blending and integrating themselves into the physical space to which they relate and in which they are inscribed.

The development of approaches and methodologies capable of facilitating transformational processes of existing urban contexts towards more intelligent configurations can be a solution for the problems faced by contemporary cities. Defining solutions capable to imagine the space as a construct integrating physical and digital components, whose distinction is ever more labile, it is possible to develop new criteria that design and modi-

CENTERS OF

- MATERIAL COMPONENTS

CENTERS OF KNOWLEDGE - IMMATERIAL COMPONENTS

URBAN OPERATING

fied cities sustainably, favoring the increase of quality of life for citizens.

The research's unfolding has lead to observe how diffused knowledge and citizens' ability to cooperatively act are peculiar characteristics of intelligent cities, accelerated by pervasive urban technologies that facilitate the rapid diffusion on information and enable new forms of interaction through physical and digital space. Final results of the research define the Centers of Knowledge as conceptual devices that facilitate the creation of Smart Cities, suggesting material and immaterial forms with which generate intelligent urban contexts. The thesis is articulated into four chapters: in the first and second chapter principal theoretical references and best practices on Smart City are described; the third chapter contains the analysis conducted in Chicago, which is considered an optimum example of an intelligent urban context; in the forth chapter the concept of Center of Knowledge is explicated, describing the ways through which it can be shaped to develop new urban scenarios. Hopefully, the results of the research will provide a valid contribution in the rich debate around Smart Cities or Intelligent Cities, with the awareness that technological innovations and increasing experimentation of new modes of interactions produce rapid changes of the frame of references.

DATA-DRIVEN CATEGORIES

CMI - City Management Infrastructure

Urban prototype

Locality

Read / Write city

Civic hacking

Interactivity

Open-ended process

Connectivity

Visibility

Information >> Connection >> Actio n

Meaningful interactions

Civic innovatio n Civic engagement

People knowledge / Common knowledge

Cohesive and altruistic communitie s Social entrepreneurshi p

COMPONENTS OF THE CENTERS OF KNOWLEDGE

GUIDE LINES OF THE CENTERS OF KNOWLEDGE

City testbed

Operation center

Innovation center

Ambient informatio n

Urban operating system

Data portal

Digital archive

LBS

LBSN

Civic accelerator

Share resources

Completely understand and manage events and flows

Interact with users

Share dat a

Support knowledge spillover and collaboration for producing urban and civic innovatio n

Create information systems and start processes of hyperlocal collaboratio n

Facilitate the creation of global networks

Integrate media in the configuration of physical spaces

Methodology

The analysis of the urban context of Chicago has been conducted through semi-structured and open-ended interview with experts, whose results have been transcribed and interpreted in order to create valuable knowledge. The methodology is mainly qualitative because of two reasons: first, data are co-created with the interviewees through open-ended conversations; second, the research approach is mainly subjective, because of the researcher’s ability in interpreting the data collected, as well as in understanding the context of the analysis, is fundamental in the process of the creation of knowledge. In addition, the methodology employs quantitative analyses that support the main qualitative analysis of data. Expert or elites interviews are conducted to access knowledge and perspective about a specific topic from privileged points of views. The interviewees own specific experiences and, therefore, their opinions represent visions of trends and innovations in a specific field, in that case the city of Chicago, and constitute a valuable support for defining future scenarios. In order to efficiently conduct the interviews, the interviewer should take an active approach both in introducing the topic of discussion and in listening to the interviewee. Moreover, the interviewer should have a solid knowledge of the topic of discussion, as well as of the professional experience of the interviewee. The interview constitutes a primary tool for collecting data, or co-creating data through the dialogue between the interviewer and the interviewee. In the first definition, collecting data, the importance of the interviewer’s ability in conducting and leading the interview around a specific topic is stressed; in the second definition, co-creating data, the importance of the open-ended dialogue that facilitates the emergence of counterintuitive elements is emphasized. Defining the interview protocol and conducting, transcribing and interpreting the interviews are the steps that have to be clearly identified and communicated to make the research methodology and results replicable and valuable respectively.

Next Door
Sustainable New Cities
Food Genius
EveryBlock
OhSoWe
Northewestern University Knight Lab
Impact Engine Airbnb
Civic Innovation

RESEARCH Design Research AVEA SMART HOME:

RE:THINKING

THE

FUTURE OF SMART LIVING

MIT Mobile Experience Lab

Intern

CNI - ISSNAF Internship 2013

Project Team: Federico Casalegno | Director, Chaterine Winfield | Creativive Director, Pelin Arslan | Project Leader, Cagri Hakan Zaman | Research Assistant, Neil Legband | Lead Physical Designer, Yihyun Lim | Research Assistant, Marcus J. Lowe | Research Assistant, Kwesi Philips | UI Designer, Gabriele Lobaccaro | Intern, Stefania Sini | Intern.

More details about the project are available at http://mobile.mit.edu/smartliving/

Images: ethnographical observations made during the third phase of design.

Abstract

The future of smart home appliances promise to make the future home a much more easy-to-use experience for dwellers. Are there any other ways of using technology where the concept of smart homes goes far beyond the existing applications to enhance interaction between emerging devices and human towards smart living applications?

With AveaLabs, we rethought the future living and the digital products and services that supported the experience. Using a human-centered design approach and our extensive knowledge of cutting-edge technologies, we designed physical products as well as mobile experiences around smart living spaces. The final design components included four prototypes: 1. Floc: a wearable clip with a mobile application for entertaining in smart living spaces with different means of digital devices; 2. Sol-Charge: a set of smart textile for harvesting and consuming energy in a more rigidless way in smart living spaces; 3. The Box of Holding: an intelligent container system that helps to store digitally tagged objects and enhances the relation of memory and physical objects in smart living spaces through RFID and an accompanying application; 4. Cookbox.net: a smart kitchen appliance that augments and explores different means of shared cooking experience in smart living spaces.

Methodology

The Smart Living Project consists of six main phases of design that explore future experiences and interactions in living environments. The methodology started with the definition of design brief to explore the disruptive technologies and experiences in future smart living. We collected and analyzed existing and inspiring cases and projects in the field to identify opportunity areas, and we conducted ethnographical observations in living environments to identify opportunities and inspirations for the concept and design stages. As the next step, we brainstormed and sketched initial ideas to design concepts with storyboards, scenarios and journey maps. The defined concepts were prototyped in wireframes, mock-ups and tested with users to understand the feasibility and usability of the product. The design process of the project and final designs were delivered to Avea in three different formats: Final design prototype showed how the technology works, the demo video explained the user interaction with the product, and the final report gave a detail information and guidelines for the process of each product from an ideation phase to prototyping.

Being connected with guests coming for dinner and remote friends is essential to improve efficiency in the cooking process. Sometimes it is physically difficult to manage both activities, as handling a mobile phone and continue to prepare food at the same time.

Ingredients, activities and notes on the overall process of food preparation are converted in sketches and saved into a sketchbook.

Although the most of times recipes are designed with no strict rules, learning how to cook through different experiences and cultures is a enjoyable activity. Italian, and Nordic cookbooks are on the shelves, also allowing to express personal interests through visual information.

Mobile phones are used to check recipes on the web. Ingredients and quantities are set previously, but different cooking process found in different recipes and inspirational material on the web may enable the creation of a new recipe.

RESEARCH Design Research

NEW SPACES OF INNOVATION:THE EMERGING LANDSCAPE OF

WORKSPACES IN THE (OMNI)PRESENCE OF

TECHNOLOGY

IIT Institute of Design

Visitiong Scholar, 2012-2013

Networked Cities Class

Faculty: Laura Forlano

Students: Rodrigo Isasi, Aashika Jain, Minji Kim, Priyanka Marawar, Keta Patel, Kunitake Saso, Paul Sheetz, Stefania Sini, Chia-ling Yu

Images: photos and quotes collected during the ethnographic observations and comprehensive interviews in the innovations spaces associated to the key themes identified.

Abstract

Digital technologies have enabled emergent forms of collaboration, organizing, and urbanism. Increasingly, work is project-based, virtual and embedded in complex socio-technical systems. In order to capitalize on these developments, cities around the world have heralded the economic potential of new spaces of innovation such as entrepreneurial incubators, innovation labs, media labs, living labs, coworking communities, and hackerspaces.Throughout the Fall 2012 semester, our Networked Cities Workshop at the Institute of Design, of the Illinois Institute of Technology, attempted to better understand the emerging socio-technical practices by studying the people and technologies that inhabit these spaces in the city of Chicago and surrounding areas. The class, taught by Professor Laura Forlano, was comprised of 9 multi-cultural students spanning countries of Korea, Japan, India, Peru, Italy, and the United States. We sought out local spaces within Chicago that fit the parameters of our research project and conducted ethnographic observations and comprehensive interviews at different nnovation spaces around the City of Chicago. Over an eight week period, the motivated students succeeded in immersing themselves into both the culture and physical environments in order to collect, analyze, and synthesize the rich findings. As a result, the class has developed several key themes congruent among the spaces, interesting stories, quotes, and design guidelines to consider for future development. The key themes, on which are based the design guidelines, are: Office is a Mindset, Dual Identity, Permanently Beta, Semi-openness, Do-ocracy, Self-motivated Learning, Symbiotic Relationships.

OFFICE IS A MINDSET

“All I need is a desk and chair.. I just park myself in a little corner”

DUAL IDENTITY

PERMANENTLY BETA

“[The] place for creativity is not in any office, this is a place of execution...this place is unstructured.”

DO-OCRACY

“If you want something done, just do it! Everything that you see was done by someone because they decided it was necessary and were proactive about it.”

“People working here are willing to trade corporate salaries for small companies/startups because they allow you to have ownership, control and freedom”

SEMI-OPENNESS

“Everyone pretends to not hear”

SELF-MOTIVATED LEARNING

“I always leave with something new…either a new idea, a new perspective, a new skill set. I never leave feeling dumber”

RESEARCH Research Project

SMART CITY

Sustainable Planning and Urban Design: the model of the Smart City

Research Statement

The research project proposes the smart city as an effective model for the development of sustainable urban environments

The smart city paradigm deals with the intelligent and efficient management of city’s resources and with the develpment and improvement of city’s services, which are both able to create better urban experiences and to increase the quality of life for urban users. Furthermore, it investigates how technology and ICTs affect urban environment, enabling the urban landscape to generate novel interactions between the city and its users.

Università di Cagliari, DICAAR

Department of Civil, Enviornmental Engineering and Architecture

The Research has been funded by Regione Sardegna through the program Master&Back Program, and the European Social Funds 2007-2013.

Scientific Coordinator: Prof. Emanuela Abis

Research Assistant: Stefania Sini

Image: the urban system of the city of Cagliari, its system of relations, and the “centers of knowledge”.

The research results outline that cities, in order to became smarter, need to allocate centers of knowledge to improve consciousness and orient citizens decisions, and a pervasive infrastructure that allows the diffusion of information through the city.

The study focuses on the city of Cagliari (Sardinia, Italy), and on the analysis of the strategic assets for its local growth: tourism and mobility in the urban transportation system. In this scenario, locations and places hold a crucial role for the urban processes and the historical urban landscape. Locations and places facillitate the understanding of urban environement and allow urban users to navigate and experience the city, therefore improving urban mobility and accessibility to resources. The ICTs that allow city users to acces locations and places have the potential to generate cultural, social and economical values and to contribute in the increase of urban competitiveness and urban innovation.

RESEARCH Research Study

URBAN COMPLEXITY

Tool for defining multi - scale indicators

Pili S., Sini S., Abis E., (2012), “ Complexity in urban relations: a tool to define multi - scale indicators”, in “Proceedings of the 16th ASITA Conference “ Vicenza, Italy, June 6-9 Novembre 2012, ISBN 978-88-9031327-1, http://www.attiasita.it/ASITA2012/Pdf/056.pdf.

Authors

Stefano Pili

PhD, Research Assistant, DICAAR - Department of Civil, Environmental Engineering and Architecture, Università di Cagliari

Stefania Sini

PhD Candidate, PhD School of Civil and Environmental Engineering and Architecture, Università di Cagliari

Emanuela Abis

Associate Professor of Urban Planning and Territorial Planning, DICAAR - Department of Civil, Environmental Engineering and Architecture, Università di Cagliari

Image: the urban system of the city of Cagliari represented through the data of the Sardinian GeoPortal.

Abstract

The great availability of geographic Data Base (DB) diffused through Municipality web portal is strongly recommended by the European directive INSPIRE (Infrastructure for Spatial Information in the European Community). It promotes the development of spatial analysis based on geographic data set, allowing the definition of multi - scale indicators with high applicability. The paper shows the first results of a vaster research that involves the definition of indicators, capable of synthesizing the relations between material and immaterial components in which the urban form is founded. Furthermore, the indicators are constructed to help in the creation of the context knowledge for planning processes. The urban form is the result of different topographic, economic and demographical factors also including recent and past planning efforts (Batty, Longley, 1994). Data used in the analysis comes from the Sardinian GeoPortal (Regione Sardegna, 2008), developed through the SITR - IDT Project, permitting the access to the data infrastructure that contains all the Sardinia cartography. Geographic data and available cartography form the “DB unico” the exclusive certified dataset at the regional scale. The case study, through an exploratory analysis of the population, residential buildings and services spatial distribution, uncovers the relations between the social - economic system and the dwelling settlement in the city of Cagliari. The study suggests the creation of a portable methodology that is capable to represent multiple and diverse contexts with a good definition of the different aspects constituting complex urban system.

RESEARCH Research Study

URBAN ACCESSIBILITY

Spatial analysis of the opportunities

Sini S., (2012), “Spatial analysis of the opportunities: a parameter to define urban accessibility”,In Cultures and Techniques for Accessibility, Egaf Edizioni, Forlì, ISBN: 9788884825018.

PhD Candidate, PhD School of Civil Engineering and Architecture, Università di Cagliari

Images: spatial distribution of the opportunities in the city of Cagliari, based on their density, clustering and proximity.

Abstract

Complexity and a strong cultural identity are the main characters of the historical urban landscape of the city of Cagliari. Scientific researchers have to deal with them in order to deeply understand the system of relations and to uncover features that are useful in the formation of an high - quality urban environment. The article aims to evaluate accessibility through the historical neighbourhoods of Cagliari, following the European Union Horizon 2020 directions to foster competitive and innovative assets. These propose the establishment of an efficient European transport system able to improve the level of accessibility through all the urban users, strongly enhancing their quality of life. Accessibility is an essential indicator to evaluate urban quality, because it highlights places where a lack of access to urban facilities and amenities leads to social exclusion or, on the contrary, where a good level of access to urban resources contributes to improve urban quality. The accessibility in the context of Cagliari is described using three indicators that measure the spatial distribution of opportunities, which represent the system of urban resources. The results give a first image of how the access to resources is distributed through the historical city and suggest some reflections for further researches.

Density/Handicraft activities

Density/Commercial activities

Proximity Density

Density/Public activities

Clusters

Clusters/Handicraft activities

Clusters/Commercial activities

Clusters/Public activities

Proximity/Handicraft activities/Residential

Proximity/Commercial activities/Residential

Proximity/Public activities/Residential

RESEARCH Research Study SMART MOBILITY awareness in the urban context

Sini S., (2012), “Smart mobility awareness in the urban context”, in Campagna M., De Montis A., Isola F., Lai S., Pira C., Zoppi C. (editors), “Planning Support

Tools: Policy Analysis, Implementation and Evaluation

Proceedings of the Seventh International Conference on Informatics and Urban and Regional Planning INPUT 2012”, Franco Angeli, Milano, pp. 1350-1362, ISBN: 9788856875973.

Author Stefania Sini

PhD Candidate, PhD School of Civil Engineering and Architecture, Università di Cagliari

Images: spatial distribution of the demographical segments in the neighborhood of the city of Cagliari, based on their density, and incidence at the local (neighborhood) and at the city level.

Mobility has a great impact in the economy of the city; transport systems consequently represent not only the infrastructure thanks by all places are completely integrated in the world networks, but also an intermediate in the enhancement of prosperity (European Commission, 2011). Innovation may highly contribute to change the urban mobility in a more efficient way (European Commission, 2007) developing new urban models, capable to optimize the urban resources of the city and to generate smart environments. The smart city paradigm, through the adoption of Intelligent Transport Systems (ITS) creates integration, interoperability and interconnection between various infrastructure networks and, thanks to the advance in the Information and Communication Technology (ICT) it produces a great amount of very accurate data. These data are at the disposal of users and services managers, permitting them to dynamically manage the urban public and private transportation and to built more detailed mobility flows analysis. All that cooperates in the recognition of critical nodes and patterns of users through the city and engages the development of mid-long term strategies. Furthermore the pervasiveness of ICTs develops a context aware environment where users may act in a more informed way, proactively responding with the transport systems’ states and flows. Consequently the smart city model promotes not only the creation of interactive, interconnected and interoperable urban infrastructures, but it also involves a powerful changes into citizens’ behavior, meeting the challenge of a novel urban smart transformation. This contribution aims at first to reflect on the modes of creating processes that may affect the formation of a smart urban environment through an active contribution of the people that are involved in. Secondly, it sets down a methodology to uncover the different users’ typologies, relating these results to the improvement to more specific strategies and actions.

RESEARCH Research Study

SMART CITY

Urban model for solving conflicts between tourism and urbanism

Abis E., Sini S., (2011), “Smart city: a model solving the conflicts between tourism and urbanism”, in Vergano A., Caruana A., (editors), “Gateways. Smart Planning for Europe’s Gateway Cities. Connecting people, economies and places. Proceedings of the IX Biennial of European towns and town planners. Genoa 14-17 September 2011”, INU Edizioni, ISBN: 9788876030604.

Authors

Emanuela Abis

Associate Professor of Urban Planning and Territorial Planning, DICAAR - Department of Civil, Environmental Engineering and Architecture, Università di Cagliari

Stefania Sini

PhD Candidate, PhD School of Civil and Environmental Engineering and Architecture, Università di Cagliari

Images: maps of the city of Cagliari that visualizes popuation density and nodes of urban tourism, and the low-density, medium density, and high-density conflict areas together with the “nodes of city knowledge” with their system of relations within each area.

Abstract

Tourism had always affected urban development, especially in economical and demographical aspects. Inside the tourism industry, cruise tourism is a branch continuously growing. This positive trend is recorded from eighties, when the cruise tourism became a mass - market phenomenon for all the geographical areas that have home - ports and transit ports. Within this economical growth, a number of conflicts appear between cruise ships, self - sufficient entities included on non-lieux of the modernity and the cities that are destinations in the cruise tour around the sea. These conflicts are often common in other typologies of tourism flow creating difficulties in the governance of the city, especially in high - charm cities. All of that focus the attention on the additive of the tourism flow in the urban contest and on the related resources’ consumption, rather than on tourism integrity and participation in the local development. The European Commission (2010) outlined the guide lines to promote Europe as a global destination and defined the policy to integrate sustainability and innovation requirements. In this point of view European tourism has to be able to follow social - economical changes as well as cultural and environment changes that affect contemporary global context. In addition tourism must have the ability to be proactive in confronting itself with diverse impromptu events that, positively and negatively as well, put changes on the touristic activity course. In the literature there are available case studies that had developed, using various approaches and methodologies, novel system to manage heterogeneous phenomena acting on the cities that deal with touristic flows . For example, TourSim (Johnson e Sieber, 2009) is a planning support system that uses an agent-based modelling to simulate the interactions between tourists (agents) and destinations. In order to not limit simulation’s efficiency because of high - complexity variables, the model uses simplifications in agents’ behaviours and land - interactions for real - world representation. The model is based on available statistics data on tourism and it allows to examine changes in tourist distribution due to the increase or decrease of ports of entry (ferries, airports, railways, roads) global tourism trends, economical or geopolitical events. Another example is SPETA (García-Crespo et al., 2009) a novel application that exploit the tourist experience thanks to the fusion of context - aware pervasive system: GIS system, social networks and semantics. The problems of information

between tourist and unfamiliar city is often solved with group package tours, that, although they represent a simple and useful solution to answer to the tourist requests, they do not provide customization, based on larger possibilities. SPETA’s algorithm finds out the best recommendation for the user, at first searching on ontologies which store the knowledge of the touristic attractions and then overlaying this information with other information coming from user’s social network profile and user’s geolocation. These examples underline the aim of application developing capable to manage tourism’s dynamics and to relate them to the vaster panorama of the governance of the city. They can be considered smart planning methodologies, whose purpose is to develop novel city’s model, smart cities or, in a larger vision, global smart spaces. The paper analyze the case study of the city of Cagliari, which has been recently affected by the increase of the flow of tourism and cruise tourism, asking for new urban services that integrate and implement this flow into the local policies. Although the urban context of Cagliari is not an example of best practices in the debate around smart cities, it could be afford to consider it a dynamic environment where a number of interrelated variables create complex relations demanding for innovative system for city management. In particular the next aspects are deepened: i) the analysis of the urban system as it is drawn by the interaction between urban landscape and tourists, that underlines the crucial features and the critical situations that occur between city and tourists; ii) a possible scenario where the urban system changes in a more dynamic and interactive perspective, using pervasive devices to improve city’s knowledge for all user, especially tourists, and creates the basis for the development of a smart city.

MASTER IN ADVANCED ARCHITECTURE

Thesis

HYBRID HOUSING

IAAC - Institute for Advanced Architecture of Catalonia

Master in Advanced Architecture 2007-2008

Self - sufficient Building Student Research

Supervisor: Andrés Jaque

Student: Stefania Sini

Images: rendering, schemes, and plans of the project.

Thesis Statement

Analizing the evolution of family composition during the last years we can note that from a traditional configuration, in which family represents a strong identity with not so much variations, we are now observing a radical change in family configuration. The change consists of a shift for the fixed family configuration into a more complex one, structured in smaller, scattered and diversified units. In order to create a type of housing that reproduces these social variations, the project develops a basic housing unit, whose combination with others units creates an hybrid units responding to the new family requirements. The forming process is based on a fractal configuration. The orizontal section is designed following the L-system, an algorithm that replicates, through the use of fractals, naural shapes. The vertical section is generated by following the algorithm for developing fractal surfaces. Each basic unit is designed for an especific community of people, according to age: a) under 18; b) 18-65; c) over 65. According to the fractal system, the housing number for each unit is eight, in case all hou-

sings are indipendent apartments; or sixty-four if they are not indipendent, which means they have shared facilities as the bathroom or the kitchen. The shared space in each basic unit also comprises other commmon services and areas, depending on the community type (under 18, 18-65, over 65). The merging of the basic units happens in diverse ways: “co-housing”, if the units create a community sharing a space and having freedom in deciding how to organize it; “merging”, if the units get unified by creating a new unit for an higher number of people; “sharing unit”, if one of the units is used as an extra common space, for example an extra room for having guests, renting, storaging. Following this process the basic unit is controlled through these parameters: a) the typology of peolple; b) the basic size, that controls the space occupied and the dimention of the inner units; c) the fractal iteration, that controls the number of inner units, the typology of housing (indipendent, not indipendent). The hybrid units are based on basic units parameters, generating a customized configuration, adaptable to contemporary families.

MASTER IN ADVANCED ARCHITECTURE

Design

Studios

DIGITAL + PHYSICAL

Parametric Design and Digital Fabrication

IAAC - Institute for Advanced Architecture of Catalonia

Master in Advanced Architecture 2007-2008

Self - sufficient Building Student Research

Faculty: Marta Malé-Alemany (Parametric Design and Digita fabrication Class); Luis Fraguada (Scripting Class)

Students: Alessio Carta, Bianny Poueriet Galarza, Stefania Sini (Parametric Design and Digital fabrication Class); Arnhildur Palmadottir, Vikrant Sharma, Stefania Sini (Scripting Class)

Images: on the right, prototypes developed in the Parametric Design and Digital Fabrication Class; in the next page, the architectural design of a roof and the script that has generated it.

Designing, Prototyping, Fabricating

During the Master in Advanced Architecture, students develop the expertice and skills to develop innovative and creative urban, architectural and product designs. The set of tools they learn to use permit them to develop components, control them through a high number of parameters and produce real-time visualizations of the results. Each parameter affects a very specific feature of each component, enabling the designer to set the values in order to perform the best output. Components are customizable and adaptable, allowing the generation of an high number of prototypes with different parameters’ setting. The parametric models developed in the classes of Parametric Design and Digital Fabrication and Scripting constitute examples of adaptable geometries, whose characteristics change depending on users’ preferences or context constrains. The fabrication process involves the use of Computer Aided Design in conjunction with Computer Aided Machines. The physical prototypes are built through the usage of a laser cutter machine, a 3dprinter and a milling machine. They allow designers to produce several prototypes, testing materials, geometry and performance.

Call Main()

Sub Main()

'input curve

Dim Curve(0), surface, strsurface

Curve(0) = Rhino.GetObject("sel the Base Curve",4)

surface = Rhino.AddPlanarSrf (Curve)

strsurface = rhino.FirstObject

Call Rhino.DeleteObject(Curve(0))

'2.SELECTING NORTH POINT

Dim Northpt

Northpt = Rhino.Getpoint("North Point")

'North = Rhino.FirstObject

'declare variables

Dim udom, vdom, uparam, vparam, arrpt

Dim i, j, udiv, vdiv

'divisions on my surface not less than 1m (L X B)

udiv = 10

vdiv = 20

udom = Rhino.SurfaceDomain (strsurface,0)

vdom = Rhino.SurfaceDomain(strsurface,1)

'here i create my array

ReDim Colec(udiv,vdiv)

Dim endpt(),N

N=0

'my nested looping

For i = 0 To udiv

For j = 0 To vdiv

'calculate the point on the surface

uparam = udom(0) + i * ((udom(1)-udom(0))/udiv)

vparam = vdom(0) + j * ((vdom(1)-vdom(0))/vdiv)

'here i transfer the R2 dimension to R3 dimension

arrpt = Rhino.EvaluateSurface (strsurface Array(uparam, vparam))

'store the array

Colec(i,j) = arrpt

'here i transfer the R3 dimension to R2 dimension

Dim Uvpt: Uvpt = Rhino.SurfaceClosestPoint(strsurface arrpt)

Dim distance: distance = Rhino.Distance (Uvpt, Northpt) ate the normal!!

Dim normal: normal = Rhino.SurfaceNormal(strsurface,Uvpt)

Dim line: line = Rhino.Addline (arrpt,Rhino.VectorAdd(arrpt, normal))

'extend the curve in a random way

Dim lineBig: lineBig = Rhino.ExtendCurveLength (line,0,1,100+Rnd*(Distance*500)/10000)

ReDim Preserve endpt(N)

endpt(N) = Rhino.CurveEndPoint(lineBig)

Colec(i,j) = endpt(N)

'Call Rhino.Addpoint(endpt(N))

N = N + 1

Call Rhino.DeleteObject(Line)

Call Rhino.DeleteObject(LineBig)

Next

Next

'Adding the Surface on points

Dim arrCount(1), nCount, NwSrf

'ReDim arrCpts((udiv * vdiv)-1)

nCount = 0

arrCount(0) = udiv+1

arrCount(1) = vdiv+1

NwSrf = Rhino.AddSrfPtGrid (arrCount,endpt)

Call Rhino.SelectObject (NwSrf)

'3. NEW VARIABLES

Dim pt1, pt2, pt3, pt4

Dim N1' , IntCrv(), IntCr1(), IntPln()

Dim IntPts()

Dim Sphere(),Plane()

N1=0

ReDim IntPts(udiv*vdiv -1)

'ReDim IntPln(udiv*vdiv -1)

'ReDim IntCrv(udiv*vdiv -1)

'ReDim IntCrv1(udiv*vdiv -1)

ReDim plane(udiv*vdiv -1)

For i= 0 To udiv -1

For j = 0 To vdiv -1

pt1 = Colec(i,j)

pt2 = colec(i,j+1)

pt3 = Colec(i+1,j+1)

pt4 = colec(i+1,j)

'here we are calling and re

Dim Diagonal:Diagonal = Rhino.Addline(pt1,pt3)

Dim Midpt: Midpt = Rhino.CurveMidpoint(Diagonal)

'Dim CrvMidpt: CrvMidpt = Rhino.Addpoint(Midpt)

'here i transfer the R3 dimension to R2 dimension

Dim Uvpt2: Uvpt2 = Rhino.SurfaceClosestPoint(NwSrf, Midpt)

Dim arrSrfPt: arrSrfPt = Rhino.EvaluateSurface(NwSrf,Uvpt2

'Rhino.AddPoint(arrSrfPt)

Dim Line2: Line2

Rhino.AddLine(arrSrfPt,array(arrSrfPt(0),arrSrfPt(1),arrSrfPt(2)+2000))

ReDim Preserve endpt2(N1)

endpt2(N1) = Rhino.CurveEndPoint(line2) Colec(i,j) = endpt2(N1)

'Call Rhino.AddPoint(endpt2(N1)) Plane(N1) = Rhino.ExtrudeCurve(Diagonal,Line2)

ReDim Preserve sphere(N1)

Dim IntPln: IntPln = Rhino.IntersectBreps(NwSrf, Plane(N1))

Dim IntPln1 : IntPln1 = Rhino.FirstObject Call Rhino.DeleteObject(Plane(N1)) Call Rhino.DeleteObject(Diagonal) 'Adding Curves

Dim Crv1: Crv1 = Rhino.AddCurve(array(pt1,pt2,pt3),2)

Dim Crv2: Crv2 = Rhino.AddCurve(array(pt1,endpt2(N1),pt3),2) y(Crv1,Crv2))

Call Rhino.DeleteObject(Diagonal)

Call Rhino.DeleteObject(Line2)

Call Rhino.DeleteObject(Crv1) Call Rhino.DeleteObject(Crv2) Call Rhino.DeleteObject(IntPln1) N1=N1+1

Next

Next

Call Rhino.DeleteObject(strsurface) End Sub

MASTER DEGREE IN BUILDING ENGINEERING AND ARCHITECTURE

Thesis

REGENERATION

PROJECT OF THE EXFACTORY OF POTASSIUM SALT IN THE PARK OF MOLENTARGIUS

Università di Cagliari

Master Degree in Building Engineering and Architecture 2006-2007

Supervisor: Prof. Pasqule Mistretta

Co - supervisor: Ginevra Balletto

Student: Stefania Sini

Thesis Statement

The thesis study and design a regeneration project for a building located in the Molentargius natural reserve, Cagliari (Sardinia, Italy). The building is an ex-plant of potassium salt and a good example of industrial archeology; its new destination, as suggested by local authorities, is a Station for the Forest Rangers and the Environmental Vigilance. The project mainly maintains the original space organization: in the tower the floor-to-floor height is 3.5 m, allowing the maximum usage of daily light; in the observatory, located at the top of the tower, two transversal and wide windows are placed in the centre of the main room; at the same level two offices are located, whose lighting is enabled by a roof-window. In the core space of the building, the pillars, whose past function was to support the salt tanks, now sustain the offices level, still maintaining the original conformation: the central double - height space enable visibility all around the building. Different offices typologies are designed: the main office (18sqm) comprises an additional room, private toilet and 360° visibility all around the building; unicellular offices (15 sqm) are accessible by a private corridors; open space offices (200 sqm) consist of twelve workstations, allowing future extensions and flexibility in the modes for separating spaces. In this space the lighting is enabled by the original windows system (windows dimensions: 3,5mx4m), made of a double layer: the external one is an iron framing whose function is to protect the inside from intrusions and solar radiations, the internal one provides insulation.

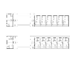
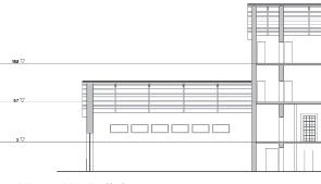
Images: transversal and longitudinal sections of the building of the ex-factory of potassium salt, renderings of the renovation project, and plan for the area in the project.

MASTER DEGREE IN BUILDING ENGINEERING AND

ARCHITECTURE

Design Studio LAGOON WAVES

Università di Cagliari

Master Degree in Building Engineering and Architecture 2006-2007

Architecture of large structures Class

Faculty: Prof. Antonio Tramontin

Tutor: Vanna Madama

Students: Emanuela Alfano, Marta Gualandi, Roberta Mattana, Giorgia Schirru, Stefania Sini, Marianna Sinibaldi, Francesca Soddu

Images: on the top, rendering of the project; on the bottom, aerial view of the area.

Project

Statement

The project design a new building for a Scientific Research Centre. The new space contains laboratories, classrooms, offices, convention rooms, exposition areas, a multimedia library and a restaurant. It is located in front of Santa Gilla Lagoon, the core element of the entire Natural Reserve that has a great environmental and cultural value.

The building shape follows the curves of the surrounding environment providing a strong integration with the natural context and creating a hybrid landscape, merging natural and artificial elements.

The spaces inside the building are divided into three levels: the underground level contains the parking area that is accessible from a ramp and is also connected with the charge and discharge area, whose entrance is completely invisible from outside.

The roof is made by a series of “ribbons”, whose frame opens at defined points, allowing panoramic views on the Santa Gilla Lagoon, and creating soft and organic lines. The roof is partly practicable and generates an high-level square from which is possible to view all the surrounding lagoon.

MASTER DEGREE IN BUILDING ENGINEERING AND ARCHITECTURE

Design Studio

CITY BOX

Università di Cagliari

Master Degree in Building Engineering and Architecture 2006-2007

Design IV Class

Faculty: Giovanni Maria Campus

Students: Emanuela Alfano, Stefania Sini, Francesca Soddu

Project Statement

The intervention is located on the borders of the historical city of Cagliari in a square on an under grounded parking. The project proposes a reconfigurable public space, allowing users to customize it. It represents a material, temporary and diffused alteration: ALTERATION = The project is a visual and functional alteration inside Castello neighbourhood, it is strong diverse intervention, opposed to the surrounding environment, for its aesthetics as well for its concept. MATERIAL = The project is material because it concretizes a concept, and it does it with its evident presence. TEMPORARY = The project creates flexible objects, continuously moving, disassembled and adaptable to different uses. The architecture is not thought to exist for the eternity, it has a beginning and an end, as in the biological cycles, it cannot conceives itself as lasting, it wants to give an answer to a present need that will not be the same of tomorrow. DIFFUSED = The project is made of different elements located in different points in the area of the intervention. Based on costruzione aurea, wih a prefixed dimension module (axa), the base and the height are defined by reconfiguring themselves into infinite composition and creating the space for activities such as: restoration, commerce, market, temporary exposition. The maximum height is 6 m and it allows to create a temporary structure, that re-establishes the original use of the square: open market. In addition, it provides the historical centre of new spaces that can be lived day and night, generating a new urban experience. Internal spaces are divided from the outside with glass panels that permit a wide surrounding view; the modules can be easily disassembled because they are made of prefabricated panels. Colors palette is defined following existing building appearance.

Images: in this page, schemes of the composition of the temporary structures and rendering of the area after their insertion; in the next page, views of the interiors of the temporary structures.

MASTER DEGREE IN BUILDING ENGINEERING AND ARCHITECTURE

Design Studio HAUSING / ATELIER

Università di Cagliari

Master Degree in Building Engineering and Architecture 2006-2007

Design III Class

Faculty: Prof. Enrico Corti

Tutors: Gian Marco Chiri, Sabrina Dessì

Students: Emanuela Alfano, Stefania Sini

Alfano E., Sini S., (2006), “Hausing/Atelier”, in Corti E. et al. (editors), “Quaderni 4 del laboratorio di architettura”, CUEC, Cagliari.

Images: front and lateral views , and longitudinal and transversal sections.

Project Statement

The intervention locates two buildings in a long and narrow lot, crossed by a canal. Each of the building is made of two blocks: a tower and a “stick”. The first building is located in front of the canal, in the tower there are ateliers: six are arranged in two level and the upper level is entirely occupied by a wide atelier. The block, placed on the other side of the canal, has instead eighteen duplex apartments. Vertical connections and the entrance to apartments and ateliers are located outside, and a system of ramps, suspended in the canal, links the two blocks. The stick of housings is opened to the outside thanks to a series of balconies, partially closed with a brise-soleil, whose function is not only to protects the inside from the sunbeam, but also to maintain the aesthetic of the building. In the second building, the tower is rotated in order that its edges are oriented to the most relevant views. In the nearby “stick”, the shutters are made with the same kind material of the façade: if they are completely closed, they disappear creating a smooth surface. Shutters orientation, close or open, creates random patterns into the façade. The building has eight levels, containing residences, simplex or duplex, and some areas reserved to ateliers. The towers appear as closet blocks, cut with long and narrow openings, and it generates loopholes, horizontally and vertically placed, enabling interiors with different city views. The sections reveal the composition richness of the interior space.

RESEARCH Blog post

INTERACTIVE TABLE

Paraimpu used to support the collaborative working

Leone S., Sini S., “Interactive Table: Paraimpu used to support the collaborative working”, in Paraimpu the BLOG, Paraimpu, 3 Luglio 2012, http://paraimpu.blogspot.it/.

Authors Sergio Leone, Stefania Sini “Architects with the soul of makers” (Paraimpu, 2012)

Interactive table - the project

The interactive table is a self-design and self-manufacturing work. It is designed and produced by the fabricator thanks to the adoption of different design tools which permit to develop customized designs to respond to multiple modes of use that may fit in the available space.

The user is involved in the design and in all the issue regarding it, he is involved in the entire production process and he has to deal with problems that are often a matter of the “experts”.

Interactive table - the process

The interactive table is a customized, self-fabricated object. It is also a platform, a process, because it represents a tool to improve interaction and to develop creative and shared ideas and projects.

The interactive table involves the use of fabrication, web services and technologies. It is a small attempt to link the physical and the digital space, it implicates the real and the cognitive dimension. It wants to develop a network of diffused interests, creating small communities that cooperate for the improvement of their environment.

The interaction table design requires the adoption of multiple existing platforms:

- FabLab - a prototype tool for digital fabrication;

- Arduino - an open - source prototyping platform;

- Twitter - a real-time information network;

- Paraimpu - a social tool to connect to the Web physical things.

The interactive table opens new possibilities for the interaction at the building scale as well as the urban scale. It develops responsive and collaborative environments thanks to the use of multiple platforms and their communities all around. All the different stages of the process use technological and technical devices and expertise, however they have a strong intention to make people collaborate through diverse forms of self-working and co-working.

We think the interactive table structures a process of learning, sharing and cooperating which represents a basis for the development of a communal, diffuse and pervasive knowledge.

INTERACTIVE TABLE

FOLLOWERS

INTERACTIVE TABLE’S STATUS

PARAMETRIC TABLE PROTOTYPE

PROTOTYPE TOOLS FOR DIGITAL FABRICATION

OPENSOURCE PROTOTYPING PLATFORM

SENSOR

REAL-TIME INFORMATION NETWORK

SOCIAL TOOL FOR CONNECTING TO THE WEB PHYSICAL AND VIRTUAL THINGS

Turn static files into dynamic content formats.

Create a flipbook
Issuu converts static files into: digital portfolios, online yearbooks, online catalogs, digital photo albums and more. Sign up and create your flipbook.