Portfolio Stefania Molinari

Page 1

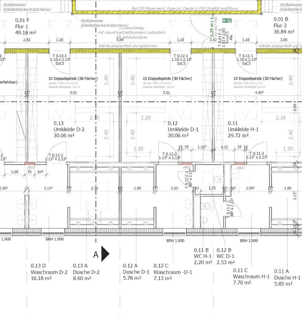
1. Typensporthalle a Berlino: palestra a 3-settori, facciata in lamelle di legno

Visualizzazione esterna Visualizzazioni interne

Prospetti interni Prospetti nord e sud
PT
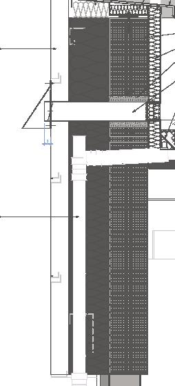
Dettaglio deflusso acque piovane Foto interno:particolare copertura Foto esterno:facciata in lamelle di legno

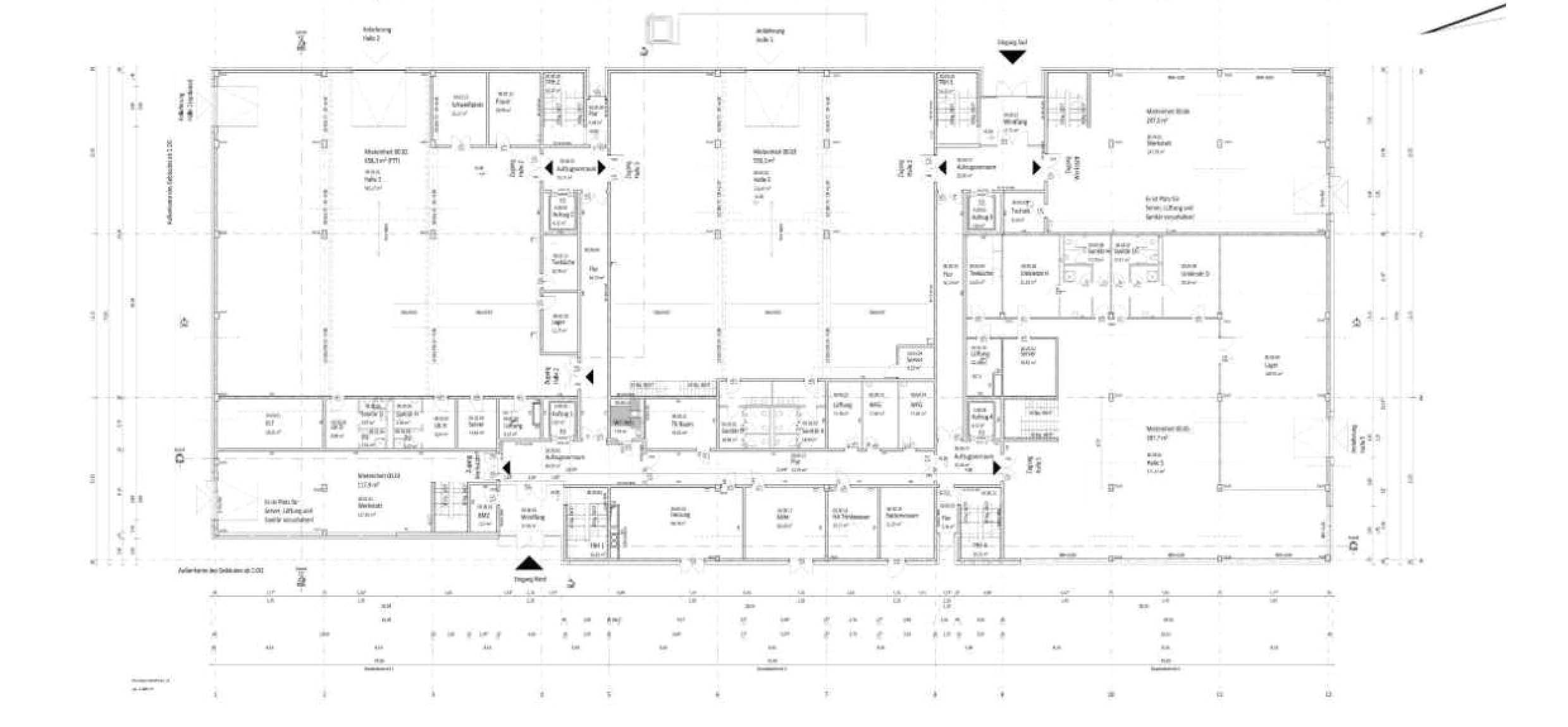
2. Palestra accademica “Humboldt Universität” a Berlino: progettazione esecutiva

04 4 1% - ( !! 3 0 :% - ( !! 3 0 1% - 2 3 0 1% 5'&!"#!+ - "" !" #" #$ " % !" &'"& ( ) * & ' " #+' * + , & + + -&"$ - % !" &'"# #" 6 3/ 5""#' 6 #+ * % !! "" ' #3& "# " ( ) * #7 & #& 58 9 0 : " !" +' ) #+ ;1% 0 < !" . ""/&"$ ( ) * & ' & #+' * + , & + + -&"$ 09 4 1% 5""#' = 5 5 Planimetria Sezione HA-2 (vetrata palestra) Pianta piano terra Prospetto Nord Prospetto est Prospetto Sud Prospetto ovest Dettaglio 01505 Dettaglio 01504 Sezione DA-2 01504

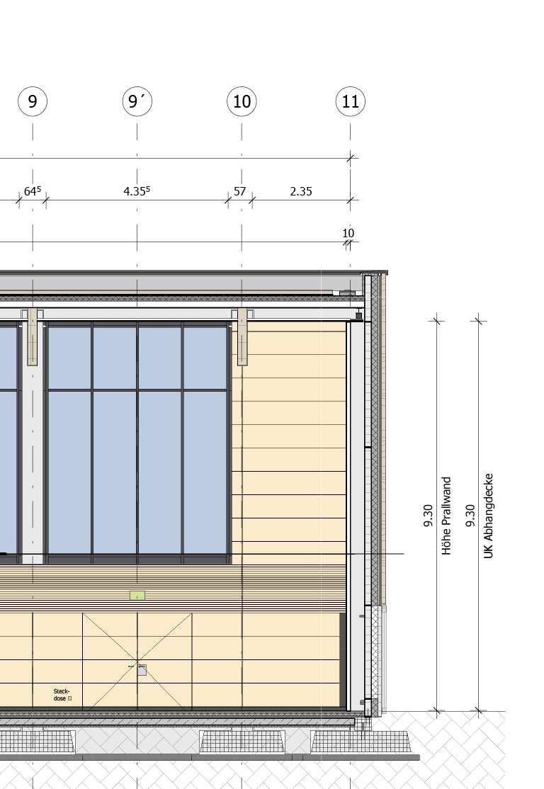
3. Industria saldatrice a Berlino: struttura in acciaio e facciata in pannelli sandwich e lamiera greacata

Piano terra Piano terra sezione uffici Foto cantiere: interno Sezione 1-1
5-5
Sezione Dettaglio B Foto cantiere: prospetto sud

4. Albert-Schweizer Schule in Schwering: campus scolastico (scuola elementare,secondaria e professionale). Concorso di idee.

Piano terra Planimetria Visualizzazione dell´entrata Visualizzazione del cortile interno Sezione 2-2 Sezione 1-1 Prospetto ovest
% ) - # # /!0 12 2#2$". 20 &! !". -5*'.* 1 ".7 1"& &$ ) $. & 2'84 !! &! !( - 1 $4"& $!5$; 1!< - 1 8 =2$, &(!$ =2$, &(!$ ? @ / - . &9 $! 1 ' /$" $! 9 9 9 9 9 9 9 9 9 9 9 9 9 9 9 9 9 9 9 9 9 9 1$ $8" 9 $; $( $# , , , , , , ?, @, , , , , , , , , , , , , , , 1$ $8" 9 , , +!! 1 B "!# 9 9 9 9 9 - ( , 25 25 "'+! "## =2$, &(!$ =2$, &(!$ - $ - $ - $: $ - $ - $ *+# &( / $(2'
Prospetto est

5. Güntzareal a Dresda: complesso residenziale e commerciale e studentato - fase esecutiva

Pianta tipo studentato Dettagli solaio terrazza Vano scala - dettagli Camera studente tipo: prospetti interni Foto cantiere

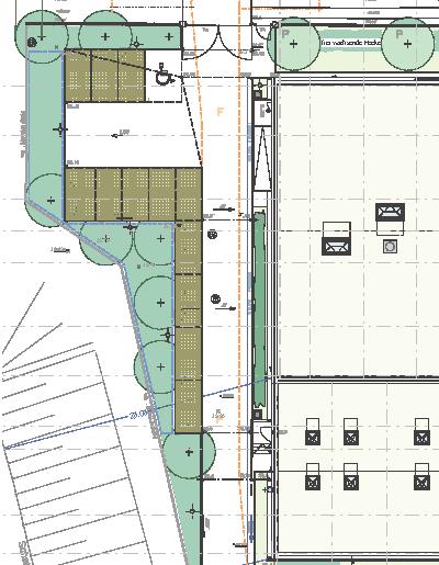
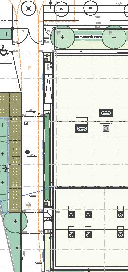
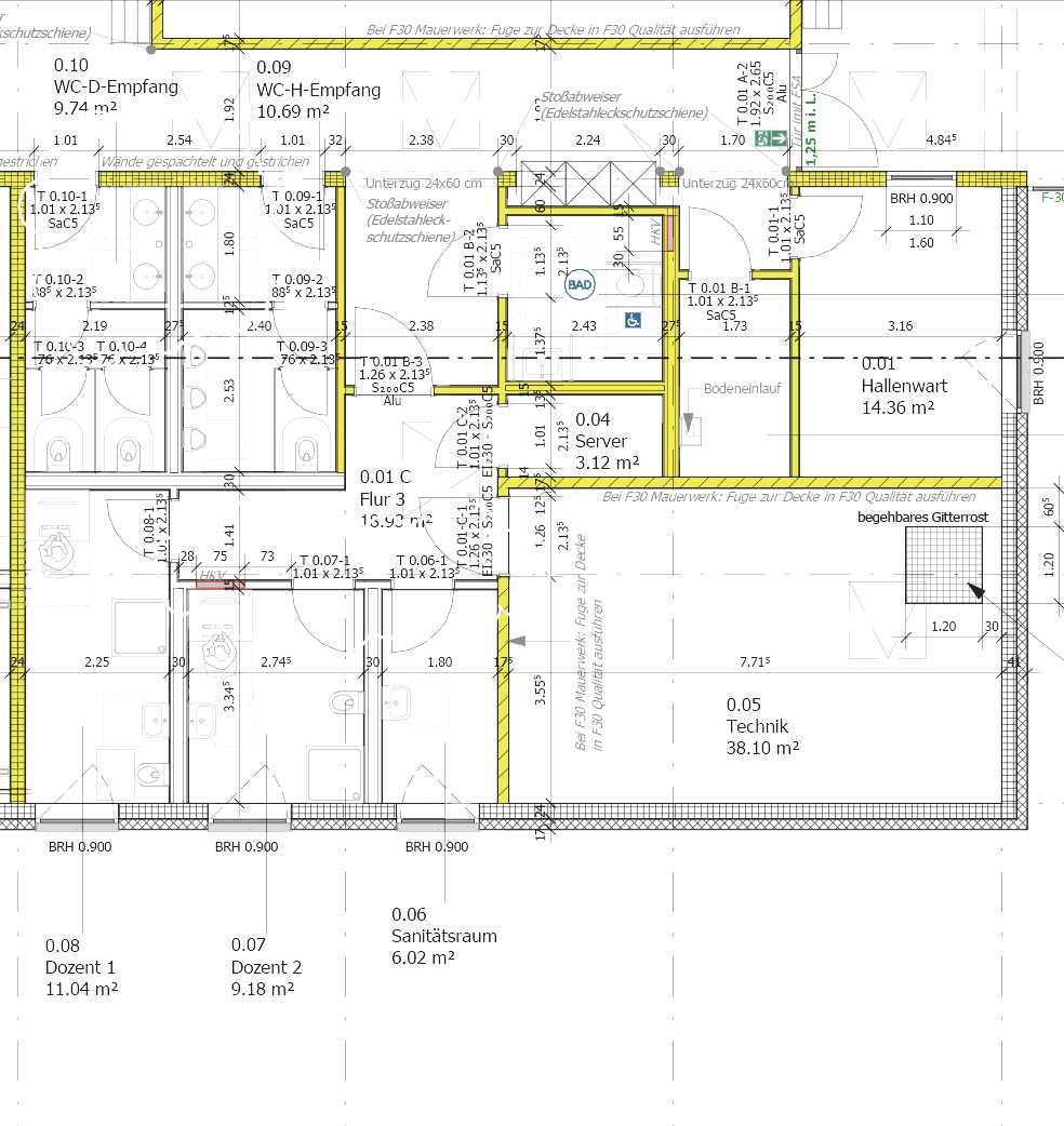
6. ZFZ: centro tecnologico a Wildau (Berlin) - Studio facciata e progettazione definitiva

7. Casa unifamiliare a Lipsia: progetto preliminare

8. Progetto “ottagono”: un nuovo villaggio ai margini della cittä cinese. Concorso di idee.
9.
Scuola di arti visivi a Vienna. Concorso di idee.
+52.64 +51.84 +59.14 Staatsbibliothek zu Berlin Neue Nationalgalerie Potsdamer Straße Sigismundstraße Matthaikirchstraße Kunstbibliothek Piazzetta Herbert-von-Karajan-straße Scharounplatz Matthäikirchplatz Populus tremuloides "Pyramidalis" Sigismundstraße Potsdamer Straße Herbert-von-Karajan-straße Matthaikirchstraße Matthäikirchplatz Neue Nationalgalerie Piazzetta Kunstbibliothek Staatsbibliothek zu Berlin Kammermusiksaal Scharounplatz Besucherzentum St.Matthäus-Kirche 2.2.4 7.18 7.13 7.12 7.14 7.3 7.2 7.1 7.10 7.9 7.8 7.19 2.1.1 2.3.1 2.3.3 5.5 6.7 5.2 2.3.2 LADEDOCK B +34.40 +35.84 +35.84 m H 6 m Populusalba "Bolleana" Populusalba "Bolleana" Populusalba "Bolleana" Populus tremuloides"Pyramidalis" Populus tremuloides"Pyramidalis" Rasen Rasen Rasen Rasen 59,5 81,38 3.1 3.10 1.4.5 2.4.2 2.4.2 2.4.2 2.4.2 +43.10 A m H m m 35,81 4.2 4.1 6.2 1.4.6 1.4.8 B A Neue 29.57 29.57 29.57 1.3 A +50.36 +52.64 35,25 35,10 1.UG 2.OG 3.OG 1.OG Raumprogramm m20 Ideenwettbewerb Nr.Nutzungsbereich 1Ausstellung 1.1 Räume niedrig (Kunst vor 1945) 1.2 Räume hoch (Kunst nach 1945) 1.3 Räume hoch (Kunst nach 1945) 1.4 Sonderräume 1.4.1 Raum für überhohe Installationen 1.4.2 „DAS KAPITAL RAUM 1970-1977“ 1.4.3 Wechselnde Sammlungspräsentation 1.4.4Sammlung Marx 1.4.5Medien- und Veranstaltungsraum 1.4.6Audioraum 1.4.7Kunstbibliothek 1.4.8Kupferstichkabinett 2Besucherservice 2.1Kassen, Garderoben 2.1.1 im Foyer: Kasse, Infobereich, Garderobe, Schließfächer, Audioguide, etc. 2.1.2 Schülergarderobe Gruppengarderobe 2.2Gastronomie 2.2.1 Café Restaurant 2.2.2 Küche 2.2.3 Lager, Müllraum, etc 2.2.4Umkleide Personal 2.3Shop 2.3.1Shop 2.3.2Lager 2.3.3 Büro/ Handlager 2.3.4Lager Publikation 2.4Bildung, Vermittlung, Besucherdienste 2.4.1Werkraum 2.4.2Medienraum 2.4.3Lager didaktisches Unterrichtsmaterial 2.4.4 Büro 2.4.5Lager mobile Medienwagen 2.4.6Aufenthalt freie Mitarbeiter 2.4.7Backoffice Audioguides 2.4.8Lager Flyer, Plakate, Informationsmaterial 3wissenschaftliche Verwaltung 3.1 Büro wiss. Mitarbeiter 3.2 Büro wiss. Mitarbeiter 3.3 Büro wiss. Mitarbeiter Archiv Marzona 3.4 Büro Sekretariat, Wiss. Mitarbeiter 3.5 Büro Volontäre 3.6 Büro Registrare 3.7 Büro Ausstellungskoordinator 3.8 Büro Veranstaltungskoordinator 3.9 Büro Publikationslektorat 3.10 Büro Pressereferent in 3.11Besprechung 3.12 Büro Depotverwalter 3.13 BüroTechnischer Leiter 3.14 Kopierraum/ Büromaterial 3.15Bibliothek Teilbestand 20.JH. 3.16Archiv 3.17 Teeküche 4Depots 4.1Depot NG (Malerei) 4.2Depot NG (Skulptur) 4.3Depot KK (Papier) 4.4Ausstellungsvorbereitg KK (Kunst auf Papier) 4.5Schleuse 5Restaurierung 5.1 Material/ Geräte 5.2Garderobe Umkleide 5.3 Büro, Besprechung 5.4Atelier (Bereich ohne Schmutzentwicklung) 5.5Atelier (Arbeiten mit Schmutzentwicklung) 6Anlieferung 6.1LKW- Schleuse 6.2Ausstellungsvorbereitung, Packraum 6.3Anlieferung 6.4Nebenraum Packraum 6.5Zwischenlager 6.6Objekttransfer 6.7Ruheraum 7 Betrieb Gebäude 7.1 Büro Wartung/ GLT 7.2Werkstatt HLS 7.3Werkstatt ELT 7.4Lager Wartung 7.5Lager ELT 7.6Lager Dokumentation 7.7 Lager Höhenzugangsgeräte 7.8 Büro Aufsichtsleiter 7.9 Wache/Schlüsselübergabe 7.10Umkleide Fremdpersonal 7.11zentraler Lagerraum 7.12Stuhllager 7.13 Putzmittelräume 7.14Lager Ausstellungshilfsmittel 7.15 Büro Standortverwaltung 7.16Lager IT-Technik 7.17Serverraum 7.18 Büro Sachbearbeiter 7.19 Müllraum Schnitt B-B Schnitt A-A Ansicht Scharounplatz Ansicht Potsdamer Straße 121203 10. Ampliamento
Neue Nationalgalerie a Berlino. Concorso di idee.
11.
Ampliamento del Bode Museum a Berlino. Corcorso di idee. 12. Ricostruzione post-sisma (Mirandola): rifacimento tetto con struttura in legno o in c.a. 12. Analisi dei danni su una strutura in muratura (provincia RN) e possibili soluzioni per ripristinarli

edificio nel verde: palazzina residenziale

13. Un

Ristrutturazione di un edificio d’epoca a Pienza.

14.
15.
Restauro del portico di San Luca(BO)
Vista frontale della Basilica di San Luca Intervento sull’azione dell’acqua - Prospetto sud e sezione CC’

Turn static files into dynamic content formats.

Create a flipbook
Issuu converts static files into: digital portfolios, online yearbooks, online catalogs, digital photo albums and more. Sign up and create your flipbook.