PORTFOLIO
STEFAN DIMITROV

![]()

Bonjour !
My name is Stefan, and have recently completed my Master's degree at the École Nationale Supérieure d'Architecture Paris-Val de Seine.
Mes coordonées
stefan.dimitrovsv@gmail.com
stefan.dimitrov@paris-valdeseine.archi.fr
+33 66 70 86 327
2022-2024
Master’s Degree in Architecture
ENSAPVS Paris, XIII
2019-2022
Bachelor's Degree in Architecture
ENSAPVS Paris, XIII
June 2019
General Baccalaureate
Lycée Janson de Sailly, Paris XVI
ARCAS, Paris XIV
Master's Internship
Juillet-Septembre 2023
CONVEYER STUDIO, Sofia
Initial Practice Internship
Juillet-Aout 2021
Atelier Mariguet-Carrère, Paris III
Craftsman/Worker Internship
JSeptembre 2020
AUTODESK AUTOCAD
AUTODESK REVIT
ADOBE INDESIGN
ADOBE ILLUSTRATOR
ADOBE PHOTOSHOP
English
(niveau C1)
French Bulgarian
(couramment)
(couramment)
German
(niveau A2)
+359 87 95 58 758 OTHER
SKETCHUP
Traveling
Personal Development
Art History
Sports
TWINMOTION
LUMION
ENSCAPE
Category B Driver's License
Final Study Project: The New City Center of Sofia
Résidence des Terrasses, Boussy- Saint-Antoine
The Artists' Hall, Ivry-sur-Seine
Rehabilitation of the Coignet House, Seine-Saint-Denis
Val-de-Fontenay Revitalization Project
INTERNSHIP PROJECTS
DRAWINGS & ANALYSIS
Sofia, Bulgaria
A radical project aimed at transforming the center of Sofia, specifically the Yellow Paving District. From an urban planning perspective, the project seeks to unify the green spaces between the Ivan Vazov Theatre and the Alexander Nevsky Cathedral into a large park. The goal is to create a unified, coherent, green, and pedestrian center highlighted by this park. The green spaces are of two types: on one hand, gardens with informal, winding paths following the terrain, featuring dense vegetation inspired by the English landscape style; on the other hand, highly geometric spaces that, through their presence, convey order and grandeur to the center. Such a space replaces the National Theatre garden, the former mausoleum, and the parking lot in front of the royal palace.






























The building is strategically positioned to frame a large green space, thus forming the southern boundary of the city center. The building consists of two volumes with square plans, each 38 meters on each side, and each featuring a central patio measuring 16 meters by 16 meters. These structures, which will serve as the two wings of the building, are spaced approximately 10 meters apart to accommodate a grand monumental staircase leading to the fourth floor. From the large green space, the view of the building consists of two massive and symmetrical stone volumes, topped by two light-looking pavilions. Between these two blocks, a grand monumental staircase emerges, seemingly leading directly to the pavilions, adding a sense of grandeur and elegance to the overall architectural composition.
The façades are rhythmically defined by a series of colossal pilasters, each spanning two levels. At the ground floor, massive pilasters are topped by thinner pilasters on the second floor, creating a visual effect of refinement.
The southwest and northeast façades alternate with glazed openings on two levels, creating an effect of measured monumentality.










Boussy Saint-Antoine
A redevelopment project around the former farm of Boussy Saint-Antoine. The urban project was initially developed in a group before focusing individually on housing units. In the Résidence des Terrasses, there is a compact L-shaped base on which six housing units rise, all connected by terraces. Nearly all the apartments are cross-ventilated either north-south or east-west. All the living rooms face the garden (to the south and west), while the bedrooms face the street (to the north and east). The ground floor is largely occupied by services and commercial spaces.

PLAN - THE RESIDENCE OF THE TERRASSES (BUILDING IN WHITE)



FACADE EST COMMERCANTE
FACADE EST COMMERCANTE
COTÉ OUEST
COTÉ ANGLE
APARTMENT DETAILS
COTÉ OUEST COTÉ ANGLE
COTÉ EST

COTÉ EST
Ivry-sur-Seine
Work initially carried out in a group at the urban planning level. The exercise aimed to create an eco-neighborhood on a site primarily occupied by warehouses. The project idea is to divide the site lengthwise with a major axis, inviting visitors into new garden areas along which activities such as artist studios are located. This axis crosses one of the hangars, rehabilitated into an exhibition hall and artist studios. A CLT structure is integrated into the preserved hangar, accommodating artist studios and their residences, as well as various activities. Parts of the hangar have also been cut out to allow more light into the studios. The project aims to recycle, rehabilitate, and maximize material savings.









Seine-Saint-Denis
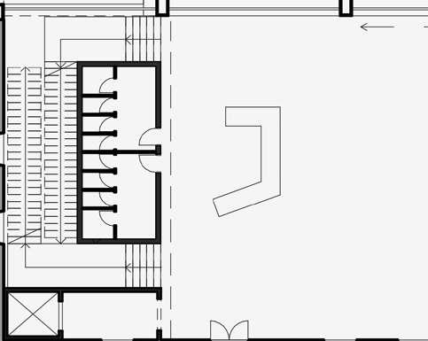
Located at 72 Charles-Michels Street in Seine-Saint-Denis, it was the first classical house to be entirely constructed of concrete. Today, its condition is deteriorating. The project aims to expand and rehabilitate the Coignet House where various activities are integrated. On a total area of 2500 square meters, the building houses offices, an exhibition hall, a restaurant, a projection room, and sports facilities.



































































GROUND FLOOR FIRST FLOOR SECOND FLOOR THIRD FLOOR














Ivry-sur-Seine
Un projet de réhabilitation des anciens immeubles de bureaux de la Société Générale, ainsi que du centre commercial situé en dessous, à Val de Fontenay. L’objectif de ce projet était d’optimiser l’existant tout en limitant les modifications majeures du bâtiment, dans une démarche à la fois écologique et économique en matériaux. Le centre commercial a été transformé en bibliothèque, tandis que les quatre bâtiments ont été reconvertis en logements, en hôtel et en espaces de coworking.
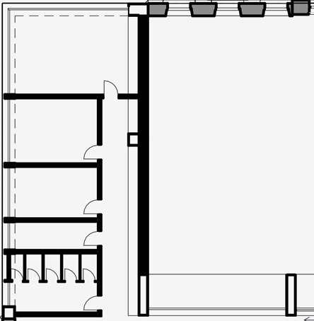
UNDERGROUND FLOOR PLAN - EXISTING
UNDERGROUND FLOOR PLAN -

Seine-Saint-Denis
During this internship at ARCAS Paris, I had the opportunity to actively participate in various architectural and urban projects. I notably conducted feasibility studies for residential projects, based on urban planning regulations (PLU), and developed site plans. I also contributed to 3D modeling and rendering, particularly for an urban block project in Fontenay-aux-Roses, ensuring a harmonious integration within the existing urban fabric. Additionally, I participated in the design process and proposals for a revitalization competition in Val-de-Marne, for which I also prepared graphic representations. At the same time, I attended design meetings with developers, urban planners, and municipal representatives, which helped me gain a deeper understanding of the collaborative and decision-making process in architecture.


72 places nécessaires logements
28 places nécessaires residence senior 4 places necessaires commerce 104 au total 104 obtenues au total dont 6 places handicapés










































1 Avenue Jean Moulin



















































































































The project for the requalification of the district in Fontenay-aux-Roses focuses on revitalizing an existing site to create a harmonious and welcoming urban environment. The 3D visualizations highlight a serene and pleasant atmosphere, illustrating how the new structures blend seamlessly into the urban landscape while providing a modern and functional living space. These renderings emphasize the project’s commitment to enhancing the quality of life, where tranquility and comfort are central to the urban transformation, all while respecting the historical character of the area.












































Seine-Saint-Denis
I completed a two-month internship at the architectural firm Conveyer in Sofia, where I was involved in various aspects of architectural practice.
The main project I worked on was a private villa in Kokalyane. I contributed to the design of the plans and, in collaboration with other interns, participated in the development of physical models. We produced models at various scales, including a 1:50 scale model representing the villa and its garden for detailed visualization, as well as a large-scale model. This experience allowed me to refine my skills in physical modeling and understand the project’s impact on its environment.







Work of Finnish architect Alvar Aalto, it is located in the commune of Bazoches-sur-Guyonne, in the department of Yvelines, France. Built between 1957 and 1960, it is one of the architect’s most beautiful and representative works. The analysis examines all aspects of the house: terrain, garden, environment, history, structure, volumetry, facades, materials, function and organization of spaces, and furniture.
Oeuvre de l’architecte de l’architecte finlandais Alvar Aalto elle est située dans la commune de Bazoches-sur-Guyonne, dans le département des Yvelines, en France. Réalisé entre 1957 et 1960 il s’agit d’un des plus beaux ouvrages et l’un des plus représentatifs de l’architecte. L’analyse se penche sur tous les aspect de la maison, terrain, jardin, environnement, histoire, structure, volumétrie, facades, matériaux, fonction et organisation et des éspaces, mobilier. La maison Louis Carré est une résidence privée située dans la commune de Bazoches-sur-Guyonne, dans le département des Yvelines, en France. Bazoches-sur-Guyonne, les Yvelines





































