Skip to main content

Undergraduate Architecture Portfolio

Page 1


p o r t f o l i o

Hello, I’m Shreya Tuladhar.

A fourth year architecture student at Kathmandu University. Architecture to me is a power to create a future we all wish for, to make a home for all earth beings. It pours meaning into a space. Through this internship, I seek to bring my creative visions and learn from the experienced.

education

| 2019- present |

| 2018-2019 |

| 2007-2017 |

experience

| 2023- present |

Bachelors of Architecture (B. Arch)

Kathmandu University | Dhulikhel

Higher Secondary School

Uniglobe SS/College | Kamaladi

Secondary School

Ideal Model H.S. School | Dhobighat

| 2022-2023 | | 2021-2022 |

Chief Editor of KU ARCHIVE

KU Architecture students’ annual magazine

Measured Drawing of Patan

Documentation for HongKong University (HKU)

Editor of KU ARCHIVE

Brick Workshop | PRARAMBHA

Residence Project at Budhanilkantha

Design, Municipal/ Working and Electrical drawings, 3D

Sponsor Personnel | PRARAMBHA

EMCEE | PRARAMBHA

Panel discussion: ‘Exploration Towards Modern and Traditional Architecture’

achievements

| 2024 |

Prarambha Model Making Competition

Winner

software

Drafting / Modelling

Presentation

3D Visualization | 2023 | | 2020 | | 2019 | | 2018 |

ARCVISUALS | 48-Hr Design Competition

Merit Based Scholarship, 7th Semester

The Last Nuclear Bomb Memorial Competition

Merit Based Scholarship, 2nd Semester

Merit Based Scholarship, 1st Semester

Asian Pacific Conference of Young Scientist (Nepal)

Asian Pacific Conference of Young Scientist (International)

Participant Scholarship

Participant Scholarship Scholarship

Winner Particpant

AutoCAD, Sketchup, Rhino, Revit (Beginner), Agisoft Metashape

Photoshop, Indesign, Microsoft Office, Google Workspace

Twinmotion (Beginner), Lumion

socioscape | 1-6 |

| 7-14 | | 17-20 | makaisar everjoy land

gallerium memorial conservation

| 21-26 | | 27-30 | | 31-33 |

tri

SOCIOSCAPE

3yr/ I | 2022

Location: UWTC, Tripureshwor, Kathmandu

Mixed Use Commercial Design

Socioscape envisions an ecological utopia where reciprocity of all that nature has given us transpires. Besides coexisting, beings learn to co-adapt through mutual effort.

The design reimagines existing urban node by integrating diverse programs like dog agility center, drive-thru foodhub and a library. In response to the site’s specific needs, I’ve introduced vertical parking to alleviate the area’s traffic congestion. A spacious plaza afront the amphitheatre creates a dynamic space to socialize not just among themselves but also with pets that the center invites.

The ground floor is dedicated to pet agility and pet shops with treasure hunt games and different checkpoints where pets get naturally trained.The first and second floor serves as a library with double mezzanine floors and a drive-thru foodhub with terraced roof utilized for farming. To create a sustainable cycle, the waste produced in the site is carried from the plaza to roof by interested cyclists.

DOCUMENTATION /OF RAMKOT

3yr/ II | 2022

Location: Ramkot, Tanahun

Team: Supriya Bhuju, Jyotika Shrestha, Puja Silwal, Shreya Tuladhar

Mountain Architecture

During our four days of stay at an old magar settlement, it was encounter to not just a rich culture but aslo a rural terrain that remains untouched by modern development, offering a window into the past.

A total of 88 houses were measured and drawn along with the study of the settlement which included its history, built environment, thematic analysis, open spaces and infrastructure. In Ramkot, primary stone-paved streets connect neighborhoods, while secondary gravel or dirt streets offer essential, though less accessible, routes. Some streets blend with house aarbhas which is a major part.

Some streets blend with house aarbhas, marked by slight elevation changes to guide movement. In Ramkot, most houses feature an aagan, a transitional space between private interiors and public streets that ensures privacy and fosters community. Many also include sheds, karesa bari, and outdoor toilets, seamlessly integrated into the settlement’s design.

Site Measurement- Jyotika Shrestha & Shreya Tuladhar . Data Entry and Freehand Tracing- Shreya Tuladhar
KITCHEN
GOTH
AARBA
PIDI

GROUND FLOOR PLAN

NORTH ELEVATION

Site Measurement- Jyotika Shrestha Freehand Drawing- Shreya Tuladhar
Freehand Drawing - Jyotika Shrestha & Shreya Tuladhar
NORTH WEST ELEVATION

Makaisar is a maize hub that features all products and delicacies made from ‘makai’, one of the major agricultural crops of Ramkot. It is built on the exact footprint of existing abandoned building that lies at the focal point of the village to attract tourists and villagers.

MASTERPLAN

EVERJOY LAND

4yr/ I | 2023

Location: Gusingal, Lalitpur

Landscape Studio

The park invites kids in their early and mid-childhood years to build, explore and and innovate by transforming waste into something remarkable. As monsoon arrives, the site gets partially flooded, which becomes an exciting feature for the children, allowing them to enjoy the rain and play.

Wander Hills Underground Pods Land and Water

To ensure children can enjoy the park during both summer and rainy days, clusters of pods have been integrated into the small mounds. The debris accumulates between the pods, offering materials that children can use to create useful structures from waste. Additionally, these pods offer shelter and provide spaces for hiding, playing and meet little creatures underneath the reflection of water and befriend them. Creativity unleashes when they figure out what to build in their secret hiding places.

TRI GALLERIUM

2yr/ I | 2021

Location: Kokobriko, Ghana

Residence Project

The design of Tri Gallerium is tailored to Ghana’s warm and dry climate by incorporating three open spaces at the junctions. It reminisces the old gallis of Newari settlement through its narrow gallery walkways surrounding open spaces, harmonizing with contemporary user requirements.

AutoCad . Sketchup . Twinmotion

The design responds to the warm and dry climate of Ghana by providing three open spaces at the junctions of three interconnected volumes. Tri Gallerium reminisces the old gallis of Newari settlement through its narrow walkway gallery around the open spaces and blends in with the modern needs of the users.

SECTION AT A-A

SUBJECT:

SUBJECT:

WORKING DRAWING - I

WORKING DRAWING - I

DRAWING TITLE : SECTIONS

SECTION AT B-B

DRAWING TITLE : SECTIONS

SECTION AT A-A SECTION AT A-A

SCALE: 1:150

SCALE: 1:150

DATE: 4TH NOV , 2022

DATE: 4TH NOV , 2022 DRAWN BY: SHREYA TULADHAR B.ARCH T.Y- I ROLL NO.: 29

BY: SHREYA TULADHAR B.ARCH T.Y- I ROLL NO.: 29

CALM AFTER THE STORM

The Last Nuclear Bomb Memorial Competition

Participants are required design a memorial at a decommissioned nuclear weapon testing site, using only visual elements to convey their ideas without descriptive text. This approach highlights the silent yet persistent danger posed by nuclear armaments.

2024
Autocad . Rhino . Photoshop

The concept emerges from the idea of one’s experience of the nuclear blast. Natural wind is channelled to the subsidence crater turning it into an abyss full of dust and sand, mimicking a toxic storm called the ‘nuclear fallout’. Peace is eventually restored as the wind calms, allowing one to re-experience the moment of terror.

What becomes of the world

After one does devour True belongings to self

Through ashes that flee

To the sky above with wind all free Settles deepan impression to grief And muteness that roams.

KUMBHESHWOR TEMPLE

4yr/ II | 2024

Location: Kumbheshwor complex, Patan Team: Sandhya Adhikari, Sarad Aryal, Shreya Tuladhar

Conservation Studio

The Kumbheshwor Temple, a significant 14th century five-storied temple is dedicated to Lord Shiva. Over two-months of studio, we documented the temple along with all other surrounding structures like hitis, patis, sattal and several small temples.

The south temple door stands as a testament to Newari craftsmanship and their architectural ingenuity. The door’s facade features four main jambs which act as structural members and five layers of wood, each carved with intricate patterns and religious motifs. A carved lintel, brackets, and a torana (decorative arch) frame the door, with only the central panel being operable.

MISCELLANEOUS

2019- Today

Other works | Competition | Hobbies

This is a comprehensive showcase of some of other projects I’ve participated in during my undergraduate years, along with an exhibition of my diverse skill set beyond architecture.

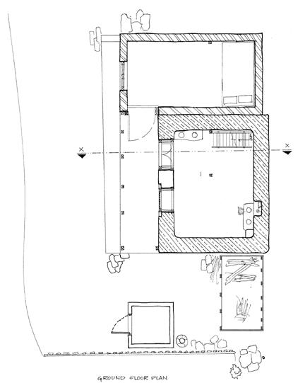
PANERU RESIDENCE

This residence is a simple design created under the supervision of Ar. Buddha Shrestha. It features angled walls to maximize southern light and follows Vaastu Shaastra principles per the client’s request.

OWNER: SIGNATURE: KHEEMA PANERU

CHECKED BY: SITE PLAN SITE PLAN

SCALE: NOT TO SCALE

DATE: 24TH JULY, 2023

OWNER: SIGNATURE: KHEEMA PANERU REMARKS:

Location : Buddhanilkantha, Kathmandu

The client’s budget constraints led to a reduction in the scope of the second floor during construction.

2. ALUMINIUM PIVOTING DOOR UNDERSTANDING THE DOOR

PIVOTING DOOR UNDERSTANDING THE DOOR

FREEHAND DETAILS

2. ALUMINIUM PIVOTING DOOR UNDERSTANDING THE DOOR

OPERATION:

OPERATION:

MATER

OPERATION SWING/ SINGLE LEAF /PANEL

OPERAT ON: SWING/ SINGLE LEAF /FLUSH

29_SHREYA_TULADHAR

MATER AL UN-PLASTICISED POLYVINYL CHLORIDE & TRANSLUCENT GLASS

MATER AL: WOOD

UNDERSTANDING THE DOOR

1. WOODEN SWING DOOR

29_SHREYA_TULADHAR

29_SHREYA_TULADHAR

3. uPVC SWING DOOR

OPERATION: SWING/ SINGLE LEAF /PANEL

Hinges are mounted on the top & bottom., which also has a floor plate & a ceiling plate. The pivot hinge system is mortised

so as to appear invisible after finishing.

CONSTRUCT ON Hinges are mounted on the top & bottom., which also has a floor plate & a ceiling plate. The pivot hinge system is mortised so as to appear invisible after finishing.

Simple installation, heat & sound insulation, saving space, stylish looks etc are its benefits., whereas not sealing as well as other traditional doors is its disadvantage.

Simple installation, heat & sound insulation, saving space, stylish looks etc are its benefits., whereas not sealing as well as other traditional doors is its disadvantage.

Simple installation, heat & sound insulation, saving space, stylish looks etc are its benefits., whereas not sealing as well as other traditional doors is its disadvantage. ALL THE MEASUREMENTS ARE IN

UNDERSTANDING THE DOOR

CURRENT USE: ROOM INTERIOR

MATER AL: WOOD

UN-PLASTICISED POLYVINYL CHLORIDE & TRANSLUCENT GLASS

Simple installation, heat & sound insulation, saving space, stylish looks etc are its benefits., whereas not sealing as well as other traditional doors is its disadvantage.

CURRENT USE: BATHROOM, IN INTERIOR FOR PRIVACY

CURRENT USE: ROOM INTERIOR

UNDERSTANDING THE DOOR OUT PLAN

29_SHREYA_TULADHAR

CONSTRUCT ON:

First, right doorway is decided considering it won’t cause damage

OPERATION: SWING/ SINGLE LEAF /FLUSH

WOODEN SWING DOOR UNDERSTANDING THE DOOR

CONSTRUCTION:

First, right doorway is decided considering it won’t cause damage while opening then measurements are marked. A swinging door is bought that fits the measurements of the existing frame. Painting with enamel is done to protect from mildew before installation. Holes are marked & drilled for hinge screws carefully. Then the door is fixed by securing it to the frame.

PICTURES

UNDERSTANDING THE DOOR

UNDERSTANDING THE DOOR

UNDERSTANDING THE DOOR

1. WOODEN SWING DOOR

OPERAT ON SWING/ SINGLE LEAF /FLUSH MA WOOD CU ROOM INTERIOR

Suitable for internal and external entrances, low maintenance, simple to install, low cost, long lasting ,wide range of colour coatings and finishes etc are its advantages.

29_SHREYA_TULADHAR

1. WOODEN SWING DOOR

SE: ROOM INTERIOR 1. WOODEN SWING DOOR

SE ROOM INTERIOR 1. WOODEN SWING DOOR

DOOR PICTURES so as to appear invisible after finishing.

PIVOT DETAIL

SWING/ SINGLE LEAF /FLUSH

SWING/ SINGLE LEAF /FLUSH

SWING/ SINGLE LEAF /FLUSH

ELEVATION (OUTSIDE)

SE ROOM INTERIOR

MATER AL: WOOD

CURRENT USE: EXTERIOR FOR LIGHT

CURRENT USE: EXTERIOR FOR LIGHT

OPERAT ON: CASEMENT MATER AL: WOOD & GLASS

OPERATION CASEMENT MATERIAL: WOOD & GLASS

CONSTRUCT ON

A fixed frame hardwood window, known commonly as a picture window, is a non-operable window that creates the appearance of a picture frame on the wall. They are commonly installed as a single window or used in combinations with more functional window types creating a spectacular window wall. These hardwood windows are always custom built to your precise

A fixed frame hardwood window, known commonly as a picture window, is a non-operable window that creates the appearance of a picture frame on the wall. They are commonly installed as a single window or used in combinations with more functional window types creating a spectacular window wall. These hardwood windows are always custom built to your precise

CONSTRUCT ON

UNDERSTANDING WINDOW

Casement windows swing open like a pair of saloon doors but they are powered by a little hand crank. Three vertical and horizontal measurements of the window frame each are taken then glued and pressed using C clamps. After 24 hours, grips are removed and two 3” nails are hammered in each corner. Similarly, wooden beads are cut according to the measurements of inner frame and secured using glue and 1”nails. Putty is filled along the bead and casement not exceeding 1/8” and glass is pressed over it and smoothen. The hinge track and operator (moving parts) are installed so a single hinge clip is the connection point

CURRENT USE: EXTERIOR/ VENTILATION

OPERATION: CASEMENT MATER AL: WOOD & GLASS CURRENT

CONSTRUCTION:

CONSTRUCT ON

Advantages- Modifiable, weather resistant, easy to clean, secure, privacy, versatile etc.

D sadvantages- difficult installation, expensive, not easy to repair etc.

wooden fixed window wooden casement window

OPERAT ON: SLIDING

3. uPVC SLIDING WINDOW

They create a unique appearance from the interior and exterior with large and flat glass surfaces. However, they have to be treated routinely to prevent insects, stains etc and are also

They create a unique appearance from the interior and exterior with large and flat glass surfaces. However, they have to be treated routinely to prevent insects, stains etc and are also

Casement windows swing open like a pair of saloon doors but they are powered by a little hand crank. Three vertical and horizontal measurements of the window frame each are taken then glued and pressed using C clamps. After 24 hours, grips are removed and two 3” nails are hammered in each corner. Similarly, wooden beads are cut according to the measurements of inner frame and secured using glue and 1”nails. Putty is filled along the bead and casement not exceeding 1/8” and glass is pressed over it and smoothen. The hinge track and operator (moving parts) are installed so a single hinge clip is the connection point

MATER AL uPVC & TRANSLUCENT GLASS

CURRENT USE: BATHROOM/ PRIVACY

UNDERSTANDING WINDOW

MATERIAL:

uPVC & TRANSLUCENT

3. uPVC SLIDING WINDOW

3. uPVC SLIDING WINDOW

GLASS

CURRENT USE:

CONSTRUCTION

CONSTRUCTION

Casement windows swing open like a pair of saloon doors but they are powered by a little hand crank. Three vertical and horizontal measurements of the window frame each are taken then glued and pressed using C clamps. After 24 hours, grips are removed and two 3” nails are hammered in each corner. Similarly, wooden beads are cut according to the measurements of inner frame and secured using glue and 1”nails. Putty is filled along the bead and casement not exceeding 1/8” and glass is pressed over it and smoothen. The hinge track and operator (moving parts) are installed so a single hinge clip is the connection point

Casement windows swing open like a pair of saloon doors but they are powered by a little hand crank. Three vertical and horizontal measurements of the window frame each are taken then glued and pressed using C clamps. After 24 hours, grips are removed and two 3” nails are hammered in corner. Similarly, wooden beads are cut according to the measurements of inner frame and secured using glue and 1”nails. Putty is filled along the bead and casement not exceeding 1/8” and glass is pressed over it and smoothen. The hinge track and operator (moving parts) are installed so a single hinge clip is the connection point .

Casement windows swing open like a pair of saloon doors but they are powered by a little hand crank. Three vertical and horizontal measurements of the window frame each are taken then glued and pressed using C clamps. After 24 hours, grips are removed and two 3” nails are hammered in each corner. Similarly, wooden beads are cut according to the measurements of inner frame and secured using glue and 1”nails. Putty is filled along the bead and casement not exceeding 1/8” and glass is pressed over it and smoothen. The hinge track and operator (moving parts) are installed so a single hinge clip is the connection point

Advantages- Modifiable, weather resistant, easy to clean, secure, privacy, versatile etc.

Disadvantages- difficult installation, expensive, not easy to repair etc.

Advantages- Modifiable, weather resistant, easy to clean, secure, privacy, versatile etc.

Advantages- Modifiable, weather resistant, easy to clean, secure, privacy, versatile etc.

Advantages- Modifiable, weather resistant, easy to clean, secure, privacy, versatile etc.

D sadvantages- difficult installation, expensive, not easy to repair etc.

Disadvantages- difficult installation, expensive, not easy to repair etc.

D sadvantages- difficult installation, expensive, not easy to repair etc.

CONSTRUCTION:

UNDERSTANDING WINDOW

IN

OUT

29_SHREYA_TULADHAR

29_SHREYA_TULADHAR

OPERATION SLIDING

OPERATION SLIDING

BATHROOM/ PRIVACY

MATERIAL:

uPVC & TRANSLUCENT GLASS

MATERIAL: uPVC & TRANSLUCENT GLASS

29_SHREYA_TULADHAR

3. uPVC SLIDING WINDOW UNDERSTANDING WINDOW

CURRENT USE BATHROOM/ PRIVACY

CURRENT USE BATHROOM/ PRIVACY

uPVC or Unplasticised Polyvinyl Chloride is recyclable, sustainable and non-toxic material that ensures you don’t leave behind any carbon footprint. It possesses supreme durability, flexibility and robustness for building seamless window frames.Any ornaments of furnishing surrounding the window is removed and then measured for hassle- free installation. The window sill is placed onto the brickwork and fitted tightly against window jamb and bolted. Screw heads are examined to avoid wrong glass

uPVC or Unplasticised Polyvinyl Chloride is recyclable, sustainable and non-toxic material that ensures you don’t leave behind any carbon footprint. It possesses supreme durability, flexibility and robustness for building seamless window frames.Any ornaments of furnishing surrounding the window is removed and then measured for hassle- free installation. The window sill is placed onto the brickwork and fitted tightly against window jamb and bolted. Screw heads are examined to avoid wrong glass positioning. A water based sealant or butyl rubber is used and caulking is done around the frames to ensure no noise, dust, mosquitoes or other harmful materials enter.

uPVC or Unplasticised Polyvinyl Chloride is recyclable, sustainable and non-toxic material that ensures you don’t leave behind any carbon footprint. It possesses supreme durability, flexibility and robustness for building seamless window frames.Any ornaments of furnishing surrounding the window is removed and then measured for hassle- free installation. The window sill is placed onto the brickwork and fitted tightly against window jamb and bolted. Screw heads are examined to avoid wrong glass positioning. A water based sealant or butyl rubber is used and caulking is done around the frames to ensure no noise, dust, mosquitoes or other harmful materials enter.

uPVC or Unplasticised Polyvinyl Chloride is recyclable, sustainable and non-toxic material that ensures you don’t leave behind any carbon footprint. It possesses supreme durability, flexibility and robustness for building seamless window frames.Any ornaments of furnishing surrounding the window is removed and then measured for hassle- free installation. The window sill is placed onto the brickwork and fitted tightly against window jamb and bolted. Screw heads are examined to avoid wrong glass positioning. A water based sealant or butyl rubber is used and caulking is done around the frames to ensure no noise, dust, mosquitoes or other harmful materials enter.

However, it is expensive, easy to break, hard to fix, there is use of chemicals in making the material etc.

However, it is expensive, easy to break, hard to fix, there is use of chemicals in making the material etc.

WINDOW PICTURES

However, it is expensive, easy to break, hard to fix, there is use of chemicals in making the material etc.

PATAN MEASURED DRAWING

(DOCUMENTATION FOR HKU- Teamwork )

The study aimed to understand the living environment, community relationships, and individual needs of the residents in the core area of Lalitpur, as well as the status of any vacant urban infill sites. An infill housing strategy will be developed, tested and compared against the current condition. For this, we measured 15 houses of Patan area.

BRICK WORKSHOP

The two-days hands on workshop intended to create a seating area for students in the backyard of Architecture Block, KU. Visualizing, planning and estimation was done prior to begining the work.

the process

subsequent courses

pointing & cleanup

laying first course wetting
mortar mixing site preparation

KU ARCHIVE '24

Kathmandu University Architecture Club Publication

Contribution as EDITOR IN CHIEF

MODEL MAKING

The tangible form of architectural visions -

supertecture model

other architectural models

redefining space | First semester

architecture school | Fourth semester

Biomimicry | First semester

ART sketches

Live art | Dhulikhel
Live sketch | Panauti
Quick sketch | Marpha
‘ Architecture is the art we live in.’

Turn static files into dynamic content formats.

Create a flipbook