




![]()





To create an iconic structure that can serve as a landmark in the OMR stretch. Adapting a holistic approach to design based on context creating an architectural impact and expressing a unique architectural identity using built forms.
Location : Shollinganallur
Site Area : 30,540 Sq.m
FSI : 3.8
Total Height : 101.9 M
Ground Coverage : 9,162 Sq.m (30%)
Builtup Area : 1,16,146 Sq.m

The cuboid form is used to solve the functional needs of the building. the cuboid form may appear rigid, its simplicity allows for a wide range of functional adaptations
To design a building that becomes a new landmark and visual focus, and with this elegant exterior the new mixed use tower achieves this goal.
The pattern was inspired from nature that allows the structure to cast its own shade itself and because of the increased surface area the heat will be dispersed effectively
To break the monotonicity of the tower wavy facades have been employed to enhace the aethetics, which also helps in improvig the energy efficiency of the tower
casts its own shadow inorder to cool itself which results in decrease in heat gain
The ridge catches the sunlight and lets in the necessary daylight into building
Exit

yard
(3054 sq.M)
dropoff 6.Services bay 7.Ofice dropoff 8.Basement entry 9.Hotel dropoff 10.Mlcp entry 11.Service road 12.Diesel Generator Room
yard
Loading /unloading Bay
area : 7974 sq.m
hyper market -1280 sq.m
no.of anchor shops : 10
no.of vanilla shops : 6





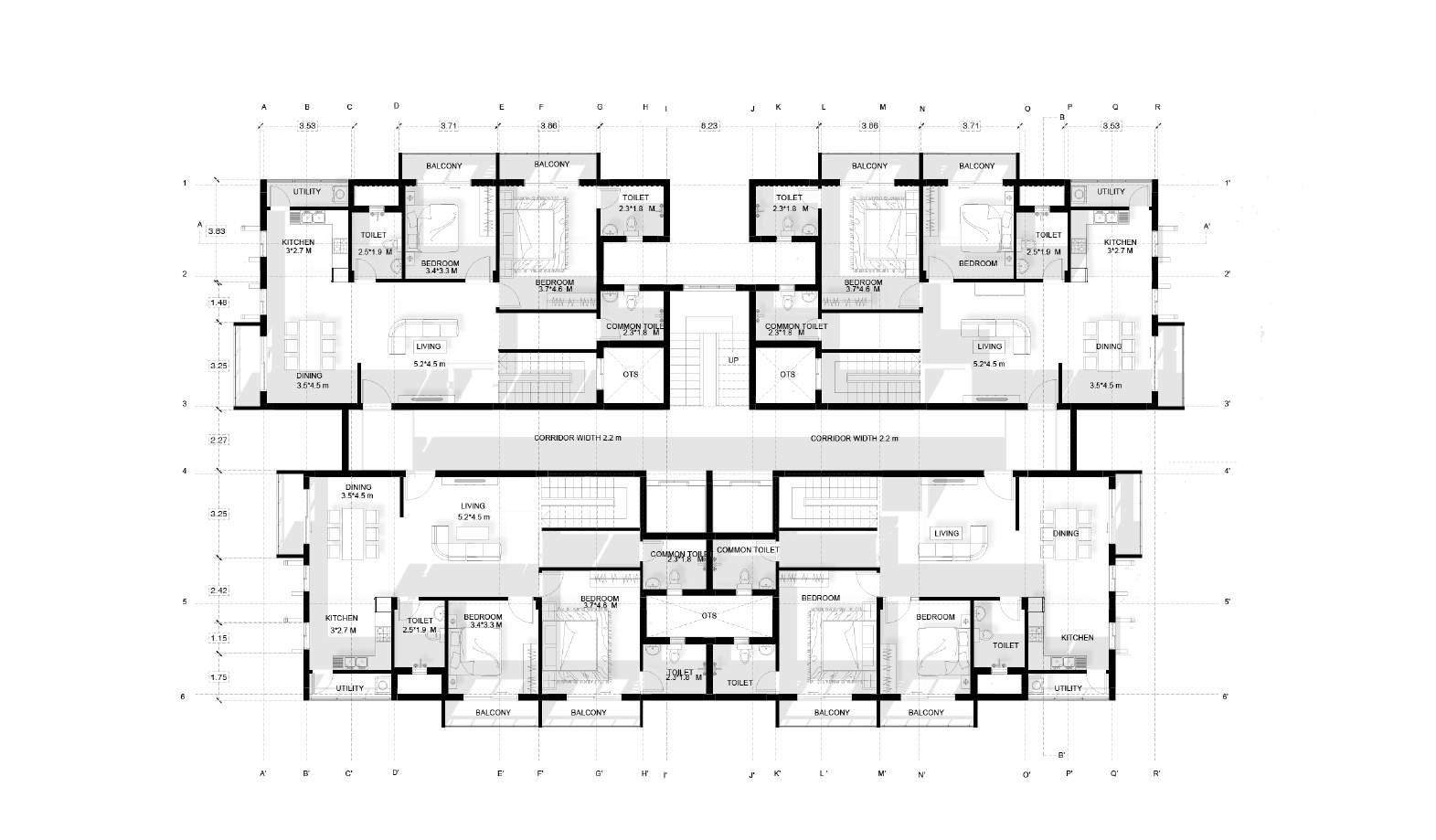
The project is about the Live Proposal / Design of Apartments + Amenities emphasizing Together Spaces set up at 5 acres of land demarcated by Natural System at Abishekapakkam, Pondicherry.
The proposed site is located about 10 KM from the Indira Gandhi Bus StopPondicherry, about 15KM from Pondicherry Airport, about 9KM from the Railway Station.
Location : Abishekapakkam, Pondicherry
Site area : 19667 sq.m
FSI : 1.8




8.AREA FOR WATER TREAMENT
9.GREEN SPACE
11`DRIVE WAY
10.PEDESTRIAN PATHWAY
12.ABUTTING ROAD TO SIT









To Design a luxurious Bayside Villa located on the coast of ECR. The Design should provide a serene and relaxing atmosphere while offering all the amenities and comfort expected from a high-end vacation destination. The main focus is on creating a beautiful and functional villa that seamlessly blends with the coastal surroundings
Location : ECR
Site area : 1650 sq.m
Ground coverage : 254 sq.m
Build Up Area : 450 sq.m









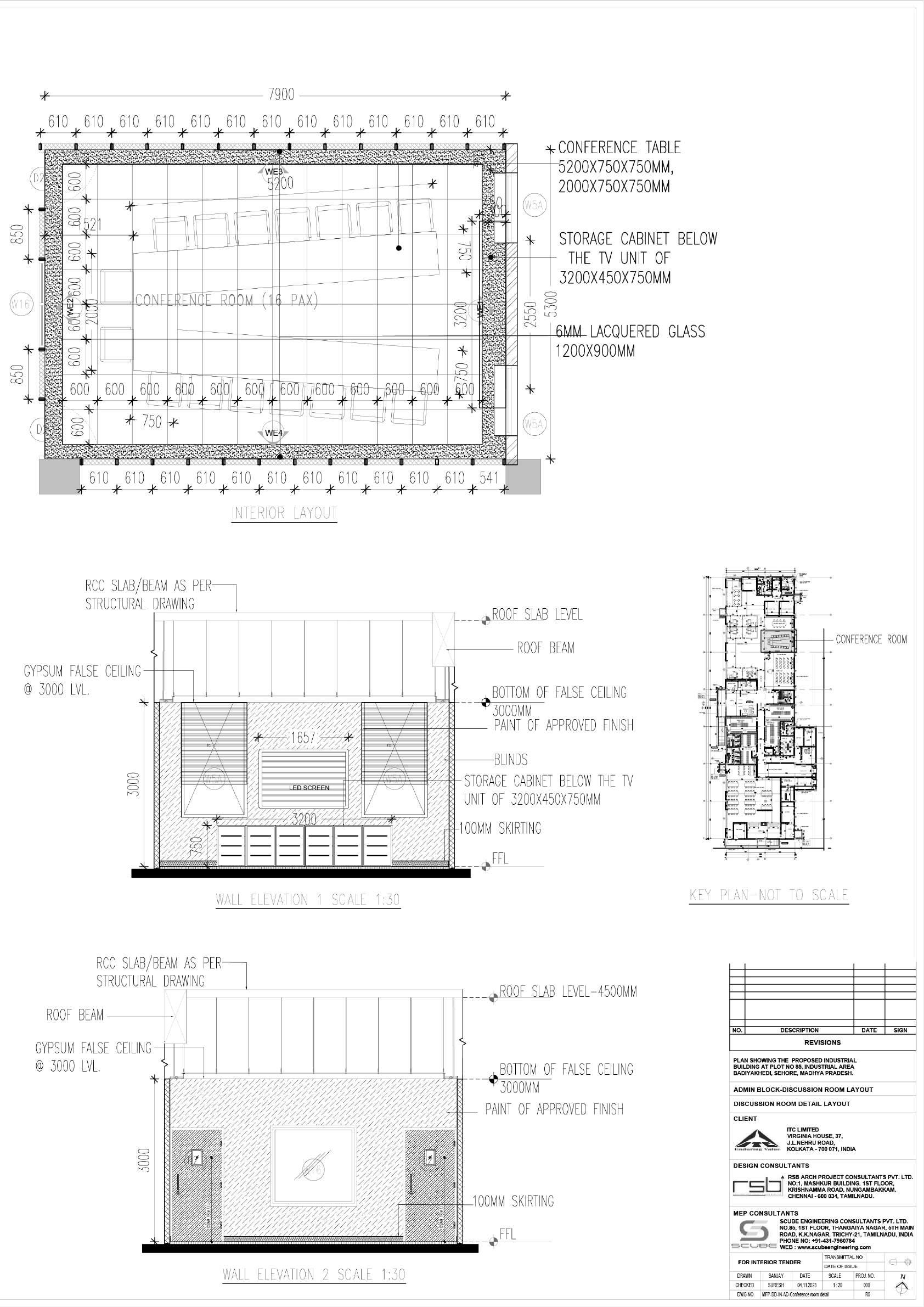
An interdisciplinary firm taking on Industrial, Commercial, Educational and Government projects. Our scope of work includes architecture, interior and landscape. We believe that every project begins with a vision, and it is our privilege to unveil and actualize that vision




















Sanjay Kumar S +91 6380061966
ssanjaysampath7@gmail.com