Portfolio // Sarvenaz ASKARI

Page 1

Sarvenaz ASKARI

Titulaire du diplîme d’architecte HMONP

00. cv

01. PROJET PERSONNEL

02. UBIK ARCHITECTES - LA ROCHELLE // FRANCE

03. EGA ERIK GIUDICE ARCHITECTURE - PARIS // FRANCE

04. STAGE - MILAN // ITALIE

05. SILENC BETWEEN - A PERFORMANCE ART UNIVERSITY

06. THE REAL BOY - PINOCCHIO CHILDRENS LIBRARY

p.6 p.8 p.14 p.18 p.24 p.30 p.40
CONTENTS

Sarvenaz Askari

06/09/1989

Ramsar, IRAN

Titulaire du diplîme d’architecte HMONP

srv.askari@gmail.com

(+33) 6 29 76 97 55

Skype : srv.askari@gmail.com

12 rue Franck Gardes

17000 La Rochelle

2022-2023

FORMATION

Formation HMONP

> Ecole Nationale SupĂ©rieure d’Architecture de Bretagne, Rennes, France

2014-2017

Master en Sciences de l’ArchitectureArchitecture durable sur plusieurs Ă©chelles de projets

> Politecnico di Milano , Milan, Italie

2008-2012

Licence en Sciences de l’Architecture

> Université de Mazandaran , Babolsar, Iran

EXPÉRIENCE

Janvier

2024 - présent

STUDIO ASK

LA ROCHELLE - FRANCE

> Architecte indépendante chez studio ASK

Novambre 2023 - présent

FBG ARCHITECTURE

LA ROCHELLE - FRANCE

>

Architecte freelance et collaboratrice

2020-2023

UBIK ARCHITECTES

LA ROCHELLE - FRANCE

> RĂ©novation d’un ensemble commercial et amĂ©nagement d’un bar et d’une bibliothĂšque - 300 sqm Ă  Esnandes, France, Suivi des chantiers / RĂ©ception Janvier 2023

> Rénovation du PÎle de Réparation et de Construction NavalePRCN à

Port Atlantique de La Rochelle, PC/AT, PCG - Chargé de projet

> Rénovation et extension de plusieurs maisons individuelles à La Rochelle, France, FAISA, ESQ, AVP, PC, PCG, DCE, Analyse des offresChargé de projet

> Construction du nouvel accueil du lycée Vieljeux à La Rochelle, France, ESQ, APD,PC/AT - Chargé de projet

EGA ERIK GIUDICE ARCHITECTURE

PARIS-FRANCE

> National floating museum à Fetsund, Norway, 7000sqm- Concours - Chargé de projet

> Define / Refine,Exposition d’architecture Ă  Malmo, Sweden - ChargĂ© de projet

> Programme de logements sociaux Ă  Micheville, France, 81 logements, France - Concours Phase APS - Assistante chef de projet

> Programme delogement sociaux Ă  Cartucherie, Toulous, France, 54 logementsConcours, PremiĂšre place - Assistant chef de projet

> Programme de logements à Îlot des Maraüchers à Nice, France - Assistante chef de projet

> Groupe scolaire du quartier Eyma Ă  BASSE-POINTE, Martinique - Concours, deuxiĂšme place - Assistant chef de projet

Dusens Architecture SAS PARIS,FRANCE

> Participation Ă  differentes phases de design architectural en France - Architecte stagiaire

Studio Merry Del Val MILAN,ITALIE

> Collaboration - RĂ©novation d’une maison indviduelle Ă  Milan, Italie

Ludovico Centis MILAN,ITALIE

> Recherches et participation Ă  plusieurs concours internationauxArchitecte stagiaire

OUTILS

Concours indépendants ITALIE

> BibliothĂšque pour enfants Pinocchio, 2017, Collodi, Italie

> Experimental Beer Garden, 2016, Bologne, Italie

Camilo Rebelo, Porto, Portugal

PORTO,PORTUGAL

> Workshop Land-Arch

Archiran Firm KISH ISLAND,IRAN

> Implication dans different projets tels que les Kish Golden Towers et le complexe résidentiel Yaran - Architecte Junior, Assistante Designer

Langues

Persan (Maternelle)

Français (Courant)

Anglais (Courant)

Italien (Notions)

Informatique

Archicad, Revit, V-ray, Rhino, Autocad 2d,3d

Photoshop, InDesign, Illustrator

Lumion, Twinmotion

Dessin, Maquette, Photographie argentique

Conception de bijoux

2018 2017 2017 2016-2017 2016 2012-2014 2019-2020

01

PROJET PERSONNEL

2023

- Présent

8

RENOVATION ET EXTENSION

D’UNE MAISON INDIVIDUELLE

Projet privé

LA ROCHELLE,FRANCE 2023-2024

9
10

Le projet de rĂ©novation Ă©tait empreint d’une vision audacieuse : l’utilisation de matĂ©riaux bruts, dĂ©pourvut de toute dĂ©coration superflue. En explorant cette approche minimaliste, nous avons cherchĂ© Ă  crĂ©er un espace Ă©purĂ© et harmonieux. L’ouverture des murs nous a permis de façonner un environnement fluide, mettant en valeur la beautĂ© intrinsĂšque des matĂ©riaux utilisĂ©s.

RENOVATION

D’UNE MAISON INDIVIDUELLE

Projet privé

POTIERS,FRANCE

En cours

12
ET EXTENSION

CONCEPTION

RAMSAR,IRAN En cours
Projet privé
D’UN HOSTEL 13

UBIK ARCHITECTES

LA ROCHELLE,FRANCE

Octobre 2020 - Juillet 2023

02
14
15
16

Faire partie intĂ©grante de l’agence UBIK m’a offert une opportunitĂ© unique de vivre toutes les Ă©tapes et phases d’un projet, du relevĂ© au suivi de chantier Cette expĂ©rience est extrĂȘmement enrichissante pour moi.

Mon expĂ©rience professionnelle s’est principalement concentrĂ©e sur des projets de rĂ©novations et d’extensions de maisons individuelles au sein de cette agence. De plus, j’ai eu la chance de participer Ă  la phase chantier d’un projet public (RĂ©novation d’un ensemble commercial et amĂ©nagement d’un bar et d’une bibliothĂšque).

17

ERIK GUIDICE ARCHITECTS

PARIS,FRANCE

Mars 2019 - Juillet 2020

18
03

(EGA), une agence franco-suĂ©doise de taille moyenne avec environs 50 salaries, mon rĂŽle consistait Ă  la conception dans le cadre de concours. Cette agence fonctionnait avec deux pĂŽles distincts pour l’entrĂ©e et l’exĂ©cution des projets.

Pendant mon parcours au sein de cette agence, j’ai eu le privilĂšge de participer activement Ă  plusieurs concours français et internationaux. Ces expĂ©riences ont constituĂ© des opportunitĂ©s enrichissantes pour dĂ©velopper mes compĂ©tences en travail d’équipe et pour explorer le processus de conception impliquĂ© dans un concours architectural. Chaque concours m’a permis de repousser mes limites crĂ©atives et de contribuer Ă  la recherche de solutions pertinentes pour des projets.

ÎLOT 3.3 CARTOUCHERIE

CONCOURS - PREMIÈRE PLACE

ERIK GIUDICE ARCHITECTS

Travail d’équipe

TOULOUSE,FRANCE

Février,mars 2020

GROUPE SCOLAIRE BASSE-POINTE

CONCOURS - DEUXIÈME PLACE

ERIK GIUDICE ARCHITECTS

Travail d’équipe

BASSE-POINT,MARTINIQUE

Novembre 2019

21

DEFINE/REFINE VÅR MYLLA

EXHIBITION

ERIK GIUDICE ARCHITECTS

Travail d’équipe

Malmö,SWEDEN

September 2020

Le but de ce projet Ă©tait de concevoir un pavillon qui corresponde aux nouveaux besoins des moments en matiĂšre de flexibilitĂ©, de mobilitĂ©, d’éphĂ©mĂšre, de pĂ©rennitĂ©....

Le pavillon est aménagé, à partir de la tradition régionale de la charpente en bois dur, pour permettre des espaces temporaires et adaptables en mouvement.

22
23
PAR LA CÔTE EN CONTEXTE RURAL

MILAN, ITALIE

Février 2017

04 STAGE 24

EX CASERMA SANI

CONCOURS

STAGE-ITALIE

Travail d’équipe

BOLOGNE, ITALIE

Février 2017

25

CASERMA SANI, une zone militaire abandonnĂ©e situĂ©e Ă  Bologne qui se transforme en une zone multifonctionnelle. Au cours de ce stage, j’ai participĂ© aux phases de conception, de dĂ©veloppement et de visualisation graphique d’un projet de design Ă  l’échelle architecturale et urbaine, dĂ©veloppĂ© dans le cadre d’un concours international de design.

26
27
28
29

SILENCE BETWEEN CASERMA MAMELI

A PERFORMANCE ART UNIVERSITY

Projet de fin d’études

POLITECNICO DI MILANO

Travail d’équipe

MILAN, ITALIE

Octobre 2017

05
30
“ THE MUSIC IS NOT IN THE NOTES, BUT IN THE SILENCE BETWEEN ”
31
WOLFGANG AMADEUS MOZART

SYSTEM OF COURTYARDS

Les cours Ă  Milan et surtout dans le quartier de Biccoca ont une caractĂ©ristique importante. Au dĂ©but, ce n’est pas tangible, mais aprĂšs avoir analysĂ© l’incohĂ©rence morphologique de la zone dans ce sens, l’importance des vides devient plus claire. Les vides commencent Ă  ĂȘtre visibles comme le sont les masses. Le systĂšme de cours tout autour de la zone est une condition urbaine bien formĂ©, ce systĂšme fonctionne mĂȘme Ă  l’intĂ©rieur du site et pourrait ĂȘtre une grande potentialitĂ© pour la conception.

32

Caserma Mameli, une ancienne caserne italienne, se transforme en universitĂ© d’art de la performance. Un grand site militaire situĂ© au nord-est de Milan et Ă  proximitĂ© de l’universitĂ© Biccoca et reliĂ© au rĂ©seau ferroviaire italien. L’objectif global est de rĂ©gĂ©nĂ©rer, reconnecter et rĂ©activer cette zone urbaine pertinente pour faire partie de la ville en tant qu’universitĂ© d’art. Comme c’était un site militaire, la fermeture a toujours fait partie de sa mĂ©moire. Les bĂątiments en forme de U avec leur structure en bois, les arbres et une partie du mur sont conservĂ©s et rĂ©novĂ©s qu’il n’y avait aucune raison d’enlever

33

PREMIÈRE LIGNE

COLLÈGES

Les espaces ouverts et les bĂątiments en forme de U contiennent l’esprit et les fonctions majeures de l’universitĂ© d’art de la performance. Les espaces ouverts sont variĂ©s et reliĂ©s par des architectures ou des couloirs ouverts. Le concept d’une universitĂ© moderne comme une universitĂ© ouverte et librement accessible contraste avec le mur et la fermeture existants.

34
35

DEUXIÈME LIGNE

MUSÉE, BIBLIOTHÈQUE, COLLÈGE

En deuxiĂšme ligne musĂ©e, bibliothĂšque et une autre partie de collage dĂ©diĂ©e aux pratiques non acadĂ©miques sont proposĂ©es. Comme les musĂ©es et les bibliothĂšques enchaĂźnent les concepts Ă  l’avenir et qu’il y a un grand besoin d’ĂȘtre flexible dans la conception, on essaie de toucher le moins possible et de crĂ©er un espace appropriĂ© pour les concepts existants de ces utilisations. L’ensemble du systĂšme de structure.

36

TROISIÈME LIGNE

THÉÂTRES,

ADMINISTRATION, GYME

37
38
Vue du théùtre
39
Vue sur cour

THE REAL BOY PINOCCHIO CHILDRENS LIBRARY

CONCOURS Travail d’équipe

COLLODI, ITALIE Décembre 2018

06
40
“How ridiculous i was as a Marionette! and how happy i am now that i have become a REAL BOY!”
CARLO COLLODI

«If you just make form, it is scupltur but it becomes architecture if the interaction between form and life is successful » Jan Gehl

« C’est de l’architecture si l’interaction entre la forme et la vie est rĂ©ussie » car la marionnette en bois devient un vrai garçon en Ă©tant courageuse, vĂ©ridique et dĂ©sintĂ©ressĂ©e l’architecture est courageuse si elle s’exprime telle qu’elle est dans une dĂ©claration forte, sans dire de mots inutiles. elle est « vĂ©ridique » si elle ne nous donne pas une identitĂ© irrĂ©elle. il est « altruiste » s’il se soucie du contexte et de son environnement tout en se souciant des utilisateurs et de ses fonctions

ANALYSE À GRANDE ÉCHELLE

Le parc de Pinocchio existant n’est pas en contact direct avec la ville de Collodi. les deux semblent plus isolĂ©s que connectĂ©s. l’usine de papier a l’élĂ©ment principal qui possĂšde toutes les caractĂ©ristiques principales de son identitĂ©, supprimer les Ă©lĂ©ments ajoutĂ©s inutiles pourraient ĂȘtre plus utile que de les sauvegarder. l’église de Collodi est l’un des autres Ă©difices significatifs du contexte environnant. cette Ă©glise a la place devant comme la plupart des Ă©glises italiennes, mais celle-ci est un peu oubliĂ©e et devient un parking pour les voitures. l’intervention relie la place de l’église au parc de Pinocchio Ă  travers la bibliothĂšque et son paysage. cela contribue Ă  rendre la ville de Collodi la plus vivante possible, en ne l’isolant pas.

42
43
44
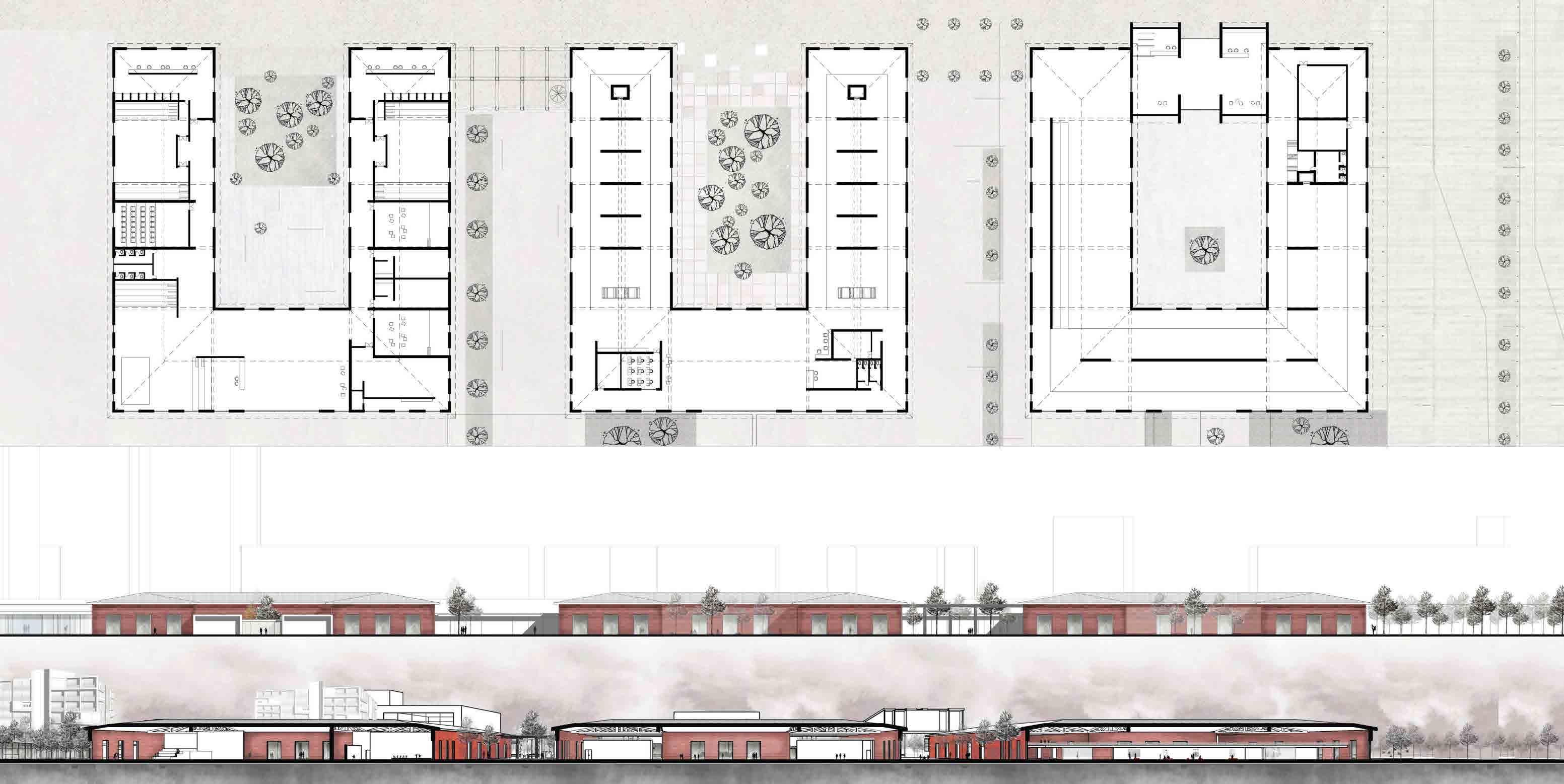
45 1 MAIN ENTRANCE 2 LOBBYAND INFO 3 OPEN SHELF HALL 4 PINOCCHIO 5 LITTLE PRINCE 7 ALICE 8 SERVICES 9 SNOWWHITE 10 CINDERELLA 11 HONSELAND GRETEL 12 JACK AND THE BEANSTALK 13 RAUNZEL 14 CORRIDOR 15 BALCONY 16 VERTICAL CIRCULATION 17 STAFF AREA AND SERVICES 18 -1 FLOOR YARD AND OPEN CAFE GROUND FLOOR PLAN
46
47

Turn static files into dynamic content formats.

Create a flipbook
Issuu converts static files into: digital portfolios, online yearbooks, online catalogs, digital photo albums and more. Sign up and create your flipbook.