Skip to main content

SRISIBI R I INTERIOR PRESENTATION (Selected works)

Page 1

FACTORY

RENOVATION FOR AVALON

PLOT NO C8 &C9, MEPZ,CHENNAI

PROPOSED INTERIOR VIEWS

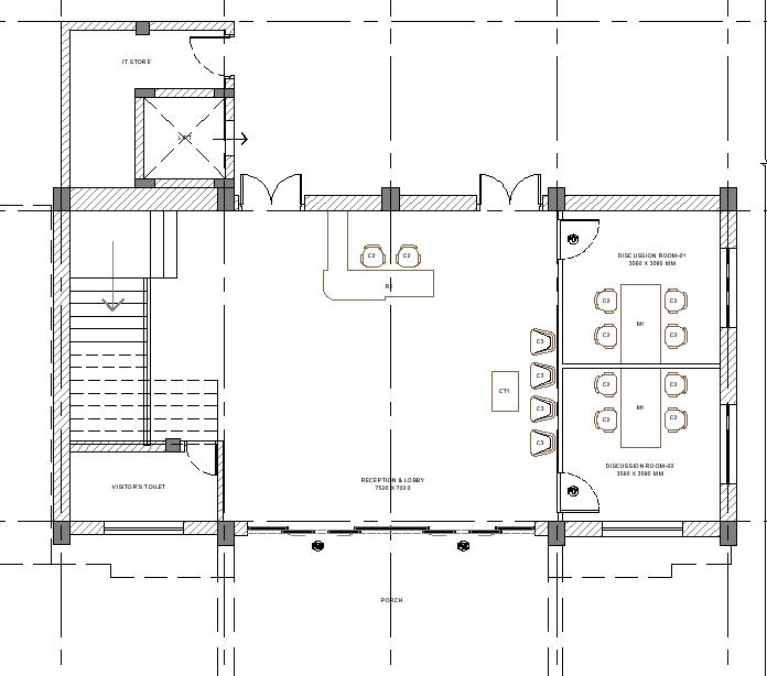
RECEPTION & WAITING LOBBY

MAIN ENTRY MAIN ENTRY TO LEVEL-2 OFFICE SPACE PRODUCTION(INSIDE)

DISCUSSION

ROOM 1

DISCUSSION ROOM 2

LIFT
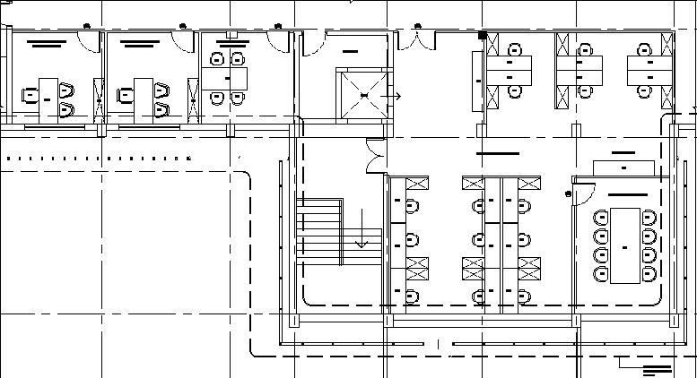
IT STORE MAIN BUILDING LEVEL-01

LEVEL-02

MANAGER CABIN 1 MANAGER CABIN 2

DISCUSSION ROOM-3

ENTRY 1

ENTRY 2

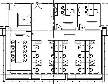
WORKSTATIONS AREA-15 NOS

TERRACE

CONFERENCE ROOM-1

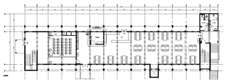
MAIN BUILDING
IT
ROOM REPRO AREA
LIFT

MAIN BUILDING

LEVEL-03

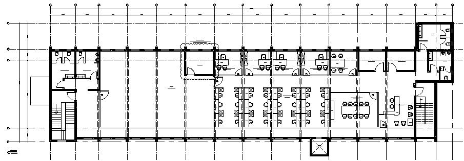
ENTRY 1 LIFT IT ROOM

CONFERENCE ROOM-2

WORKSTATIONS AREA-15 NOS

MANAGER CABIN-4 MANAGER CABIN-5
REPRO AREA

MAIN

KEY
LEVEL-01
PLAN-
BUILDING- RECEPTION VIEW

MAIN

KEY PLAN- LEVEL-01
BUILDING- DISCUSSION VIEW
KEY PLAN- LEVEL-02
MAIN BUILDING- LEVEL-01 (WORKSTATION)
KEY PLAN- LEVEL-02
MAIN BUILDING- LEVEL-01 (WORKSTATION)
KEY PLAN- LEVEL-03
MAIN BUILDING- LEVEL-03 (WORKSTATION)

LEVEL-01

TRAINING ROOM

LEVEL-02

DISCUSSION UNDER PROGRESS

VESSEL WASH

PANTRY

DINING AREA-128 SEATS

MANAGER’S CABIN-4 NOS DISCUSSION ROOM IT ROOM

R & D LABORATORY

RECEPTION ON HOLD

WORKSTATIONS-24 NO.S

CONFERENCE ROOM

HANDWASH AREA
REAR BUILDING
KEY PLAN- LEVEL-01
REAR BUILDING- TRAINING ROOM
REAR BUILDING- RECEPTION KEY PLAN- LEVEL-02

AS A PART TIME ARCHITECT!!

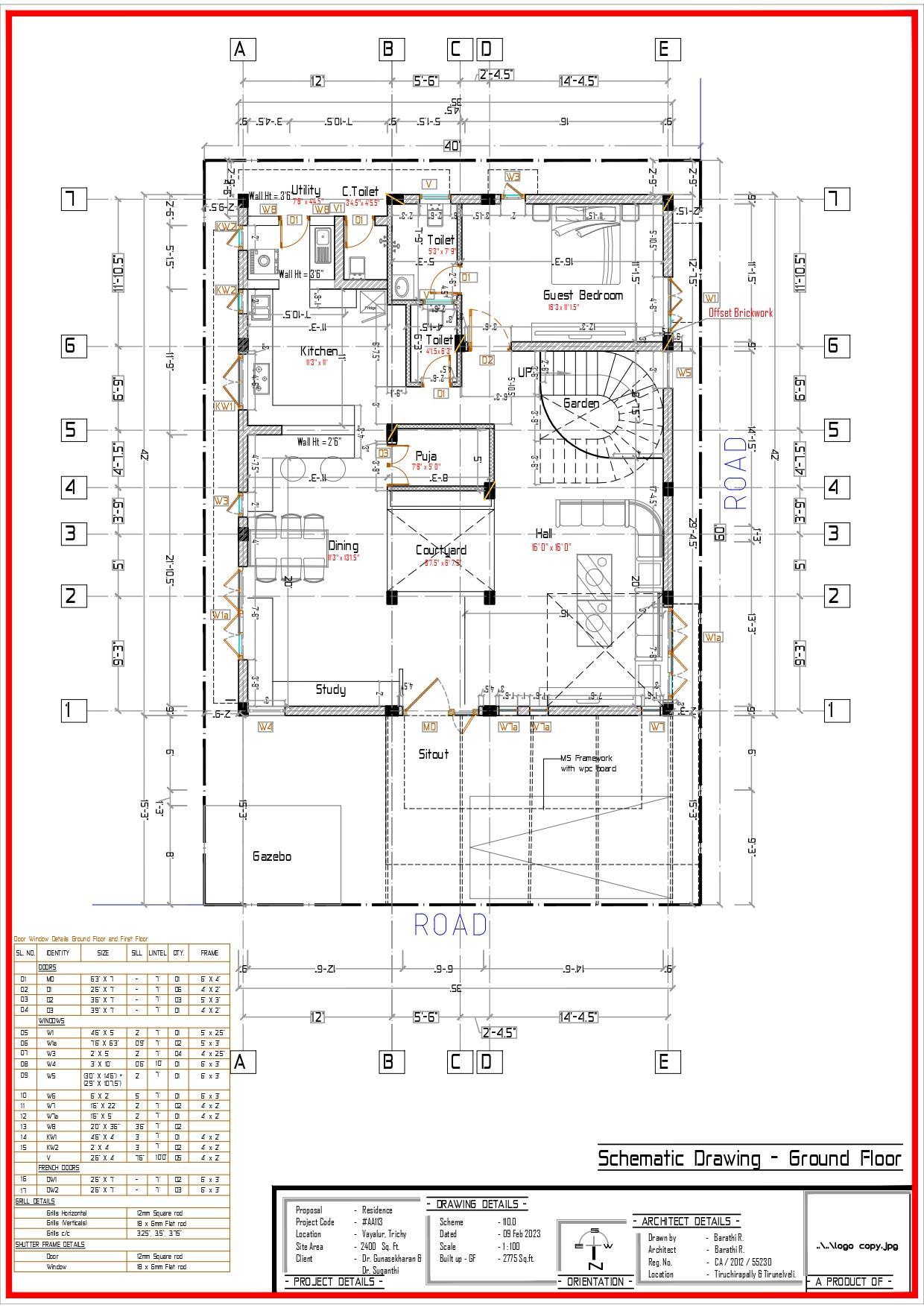
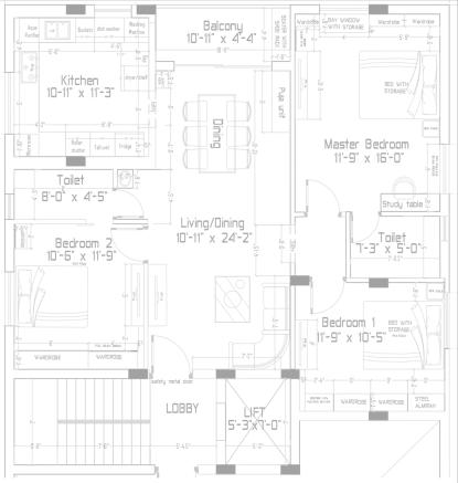
Mr. GUNA’S RESIDENCE, TRICHY, INDIA

FLOOR PLANS
NORTH ELEVATION VIEW
NORTH-WEST ELEVATION VIEW
ELEVATION VIEW
WEST

INTERIOR

PROPOSAL- LIVING KEYPLAN
PROPOSAL- LIVING SPACE & COURTYARD KEYPLAN
INTERIOR
PROPOSAL- LIVING SPACE
INTERIOR
KEYPLAN

INTERIOR

KEYPLAN
PROPOSAL- DINING & KITCHEN

Ms. ISHWARYA’S RESIDENCE, CHENNAI, INDIA

PROPOSAL- LIVING SPACE KEYPLAN
INTERIOR
KEYPLAN
INTERIOR PROPOSAL- MASTER BEDROOM
KEYPLAN
PROPOSAL- MASTER BEDROOM
INTERIOR
KEYPLAN INTERIOR PROPOSAL- BEDROOM 01
KEYPLAN INTERIOR PROPOSAL- BEDROOM 02
Mrs. KANCHANA’S RESIDENCE, TIRUNELVELI, INDIA
PROPOSAL- LIVING SPACE
INTERIOR
PROPOSAL- LIVING SPACE
INTERIOR
PROPOSAL- LIVING SPACE
INTERIOR
DINING SPACE
INTERIOR PROPOSAL-

Turn static files into dynamic content formats.

Create a flipbook
SRISIBI R I INTERIOR PRESENTATION (Selected works) by SRISIBI R - Issuu