Squire & Partners Annual 2022

Page 1


“The meeting of two personalities is like the contact of two chemical substances: if there is any reaction, both are transformed.” Carl Jung

Something we have rediscovered over the last two years is how important it is to have direct contact with people. Whilst the magic of technology kept the world going during lockdowns, there is no substitute for meeting people in real life. The human race is, generally, a social animal. We need contact and interaction for our health and wellbeing, and to stimulate ideas and conversations. Reconnecting after nearly two years of relatively solitary existence is invigorating and exciting.

Coming out of lockdown has also led us to re-evaluate the business. Periods of reflection and renewal are exciting; we are looking to the future from a different angle than before. It is important to make sure that we enjoy what we are doing, who we are doing it with and that we consider that what we do has both immediate and lasting implications for those around us and for the planet.

Despite the challenges of the past two years, we continue to deliver some exceptional projects of which we are incredibly proud:

• 100 Bishopsgate: an interior office design adding to our growing portfolio of CAT B interior design projects for office occupiers.

• Greencoat House 4A and 6-8 Greencoat Place: another moment along an almost continuous journey of repurposing and reimagining these buildings with Derwent London.

• Lancer Square: a very unique apartment and office building development at the bottom of Kensington Church Street. We were architects and interior designers, which makes it particularly special to us.

• Little Chester Street: a row of terraced houses round the corner from Chelsea Barracks, which continues our interventions in this area with sensitive contemporary buildings that draw on local scale and context.

• x+why: two further projects have been completed with this exciting and innovative co-working office provider at Huguenot Place and The Fulwood.

Two incredibly important projects – which you can see now if you are going that way – will complete this year: The Broadway and One Palace Street. They have very different scales and design approaches, recognising that we design buildings to their site and not the other way around. They will both contribute enormously to the changing face of Victoria and Westminster.

The Department Store Studios, our new development which completes The Department Store campus, opened in summer of 2021. This building represents much of our thought and analysis carried out over the past few years regarding the future of office space and tests them at our own expense. The building is reaching full occupancy, with only a couple of units left. It is incredibly valuable to be involved in a building we have designed and operated as landlord. Lessons learnt will feed back into the wider office for other schemes we are working on.

A source of frustration is that in a time when there is a housing crisis it is scandalous how the planning system is becoming increasingly politicised and unpredictable. A number of schemes that would provide much needed housing of all tenure types and employment have been delayed by a number of years for a multitude of reasons, including political posturing and point scoring. This punishes everyone. It is very important for planning to be a democratic process.

Once this process has taken place and a positive decision has been reached, projects should go ahead rather than be subjected to further call-ins and delays. It is irresponsible and leading many investors to think again about investing and developing in Britain.

We do not suppose we will change that any time soon, so we return to focussing on what we can control. On reimagining our business and making sure that we reconnect and value the incredible experience that our profession offers: meeting people from all walks of life, face-to-face.

In these meetings, design transforms under a shared ideology to create better, healthier and more exciting environments for us to inhabit.

Michael, Henry, Tim and Murray

100 Bishopsgate

Type: Workspace interior design

Location: City of London

Status: Completed 2021

An 11,000 sq ft office fit-out for a private client in the finance sector. Natural materials, biophilia and use of colour give the interiors a domestic yet professional feel, with artwork taking inspiration from local architecture.

Brent Cross Town, Plot 13

Type: Masterplan

Location: Brent Cross, London

Status: On Site

Designed for Argent Related as part of the wider regeneration of Brent Cross, Plot 13 provides 350 homes set around a landscaped courtyard, as well as retail, a neighbourhood cinema and a community centre.

Courtyard gardens Prominent corners Mansion block typology Varied articulation

The Department Store Studios

Type: Workspace

Location: Brixton, London

Status: Completed 2021

Building on the success of The Department Store, The Department Store Studios is a four-storey shared workspace development by Squire & Partners for the creative community in Brixton.

Hand-crafted brick Low carbon structure Crafted timber windows Ground floor animation and community interaction

Bar restaurant concept development

Brand concept development

Black Metal Fluted Glass Terracotta Brick Brushed metal

Awards

Squire & Partners

Thornton Education Trust, Inspiring Future Generations Awards finalist

BD Architect of the Year Awards, Office finalist

BD Architect of the Year Awards, Social Impact finalist

Chelsea Barracks

The Pineapples, Public Space finalist

Island Point

New London Awards, Housing finalist

British Homes Awards, Best Community Living commendation

Housing Design Awards winner

Brixton Windmill Education & Community Centre

New London Awards, Experiencing Culture finalist

AJ Architecture Awards, Community & Faith finalist

World Architecture Festival Awards, Civic & Community finalist

The Pineapples, Creative Reuse finalist

Structural Timber Awards finalist

Archiboo, Storytelling Award special mention “An incredibly innovative approach to participatory community engagement.”

Rolling Stock Yard
AJ Architecture Awards, Workspace finalist
x+why, People’s Mission Hall World Festival of Interiors, Workspace Interiors winner
Who Cares? for London Festival of Architecture
LUMA
World Architecture News Awards, Residential finalist British Homes Awards, Best Apartment Development commendation
Msheireb Downtown Doha Masterplan RIBA International Award for Excellence winner

Gas Station of the Future

Type: Competition

Location: London, UK

Status: Competition

Proposition in response to the GLA’s carbon zero targets for a hybrid building with facilities which convert residual waste into useful energy, whilst encouraging personal interaction.

Energy production and waste management

Wellbeing and connectivity

Greencoat House, Unit 4A

Type: Workspace refurbishment

Location: Westminster, London

Status: Completed 2021

Revitalisation of office unit 4A Greencoat House, owned by Derwent London. Having previously been refurbished by Squire & Partners in 2000, this recent collaboration between our architecture and interior design teams has reimagined Unit 4A as a ‘furnished and flexible’ space with a Cat A+ fit out, which was pre-let by Hamleys.

Items from the old Army and Navy store and warehouse 1887 at Greencoat House
Unit 4A

6-8 Greencoat Place

Type: Workspace refurbishment

Location: Westminster, London

Status: Completed 2021

Comprehensive refurbishment of a former Victorian warehouse. Let to premium workspace provider Fora, the six-storey office space sits within a larger cluster of Derwent London buildings that Squire & Partners are regenerating to create a vibrant business quarter.

The building’s history as the warehousing, store rooms and food halls of the Army and Navy Store

Greencoat House Francis House
Gordon House Greencoat Place

Proposed east elevation

Proposed section

Concept sketches
Ground floor
First floor
CGIs of Fora’s fit out

Social

Every Wednesday in Regents Park during the summer months playing against other London practices.

Summer Party

After many months of home working, the practice celebrated being back together at a summer party.

S&P Softball Team
Serpentine Pavilion Visit
The practice visited this year’s Serpentine Pavilion designed by Counterspace in Kensington Gardens.

S&P Football Team

Five-a-side football every Monday at the local Community Sports Centre.

Team Days Out Boating on Regent’s Canal.
Hidden Talents Market
The designers and makers of Squire & Partners showcased their hidden talents at our annual Christmas market.

13-14 Hanover Street

Type: Workspace

Location: London, UK

Status: On Site

Redevelopment of 13-14 Hanover Street and 6-7 Pollen Street, to create a contemporary addition to the street with an improved and rationalised facade that complements the contemporary vernacular established along Hanover Street.

Concept images of inverted architectural details
Interiors concept

Haverstock Terrace

Type: Residential

Location: London, UK

Status: Completed 2021

Urban infill residential development comprised of five apartments located between Belsize Park tube station and the retail frontages of Haverstock Hill.

Site prior to development
Proximity to Belsize Park Station
Al fresco dining

Karachi Tech City

Type: Mixed Use

Location: Karachi, Pakistan

Status: Planning

Technical park in Karachi incorporating workspace, a hotel, restaurants and amenity spaces including a swimming pool, gym, and function space.

Atrium
Perforated facade panels
Concept
Landscape design
Local patterns

Community

The Studios Residency

In January 2021, The Department Store Studios launched its annual Residency programme – a chance for two young Lambeth entrepreneurs to have free workspace and mentoring for 12 months to start and grow their creative idea. A shortlist of six candidates were interviewed by a panel, with the 2021 residency places awarded to Gabriella Lafor for Line Stream (supporting media careers for Black British talent) and innovative textile designer Coco Cripps.

Make It In Brixton: Let’s Talk Hyperlocal with Tim Gledstone

As part of Make It In Brixton’s ‘Let’s Talk’ series, Tim Gledstone was invited as a guest speaker to talk about leading the design of our new hyperlocal Brixton workspace The Department Store Studios – developed by Squire & Partners – which offers high quality flexible workspaces with a focus on well-being, sustainability and meaningful connections with the local community.

The Society for the Protection of Ancient Buildings: Brixton Windmill: from building at risk to revival Alongside Jean Kerrigan – Chair of Friends of Windmill Gardens – Tim Gledstone participated in a lecture on the renewed use of the Grade II* listed landmark and Squire & Partners’ design and development of the new Brixton Windmill Centre.

Papa’s Park

Located on Pulross Road, Papa’s Park serves more than 2000 children in the local Brixton area and has been run by volunteers since 1995. Squire & Partners designed a new community centre that could support activities and raise funds to upkeep the park and secure its use for future generations.

Reimagining Atlantic Road

As part of Make It In Brixton’s week-long ‘Space in Between’ programme of events, we invited members of the local community to a panel discussion about the future of Brixton’s Atlantic Road, which sought to initiate conversation around creating an accessible, safe and exciting public realm for all, where local businesses can thrive.

Winter Windows 2021

Now in its fifth year, our award-winning Winter Windows is a collaboration between a group of local school-aged children and Squire & Partners. For 2021 we challenged Year 6 students from Reay Primary School to create interactive shapes associated with ‘Dreamland’ – the theme of the 2021 Brixton Winter Festival – which were transformed into 3D lights by our modelshop team. The bespoke illuminations were launched in the windows of The Department Store at a switch on ceremony that marked the first day of Diwali, the festival of light.

Article 25 10x10 Auction

Squire & Partners has created artworks for Article 25’s 10x10 Drawing the City charity auction every year since its inception. Tim Gledstone created CW8 CCW13 for the 2021 event in answer to the brief’s ‘Urban Outdoors’ theme. Inspired by the power of nature and the mathematics of the Fibonacci sequence, CW8 CCW13 presents the beauty of the intertwining spirals found in the humble pinecone, representing life, growth and evolution.

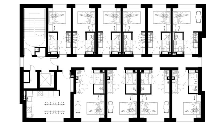
Lancer Square

Type: Residential

Location: Kensington, London

Status: Completed 2021

A new elegantly landscaped garden square is surrounded by a variety of building types which draw on the architectural character of Kensington Palace Conservation Area.

Elegant order, brickwork, motifs and garden square inspired by Kensington Palace

Back drawing room

Drawing room

Library

Dining room Service

Grand proportions and procession of spaces inspired by Kensington Palace

Masterplan

A series of motifs based on Kensington Palace Gardens were created for the different elements of the development Lancer

No. 6 Lancer Square

Type: Workspace

Location: Kensington, London

Status: Completed 2021

Bespoke Grade A office building with crafted interiors and amenities, located within the Lancer Square development.

Reception desk concept
Outside amenity spaces
Views over Kensington

Lancer Square Affordable Housing

Type: Affordable housing

Location: Kensington, London

Status: Completed 2021

Managed by Peabody Housing Association, Lancer Square’s on-site affordable housing provision takes the form of a mews-like terrace.

Kensington mews streets
Typical floor plan

Little Chester Street

Type: Residential

Location: Belgravia, London

Status: Completed 2021

Located in the heart of the Belgravia Conservation Area, this development creates four new townhouses that replace existing pastiche building stock with a design that employs traditional materials with modern detailing to complement the variety of architectural styles that give the area its unique character.

Existing building
Concept sketch
Interior concepts and materials
Ground floor plan
First floor plan
Second floor plan
Basement floor plan
Little Chester

Craft Week The Space in Between: Re-imagining Atlantic Road

London
Zak World of Facades
Mix Interiors roundtable
Open House: The Department Store
London Festival of Architecture

January Wonderhatch Property Marketing Roundtable: Tim Gledstone

March

The Society for the Protection of Ancient Buildings: Tim Gledstone discusses the Brixton Windmill RIBA Social Value & Architecture Series: Tim Gledstone on Reclaiming our Buildings

May Make It In Brixton: Let’s Talk Hyperlocal with Tim Gledstone

June

Who Cares? London Festival of Architecture 2021 Bureau ‘Hub and Spoke’ webinar: James Halliday

Built By Us: BUILD Career Mentoring

Stories @ The Loft : Tim Gledstone on Adaptive Re-use & Urban Regeneration

NLA London’s high streets and town centres recovery Think Tank: Tim Gledstone

August

Dezeen Live Talk: Murray Levinson on how game engines are transforming architecture

NLA London Design Capital: Olga Gomez presents One Hoshang, Karachi

September

Open House: The Department Store

All Together Now: Exploring Brave New Models for Co-Living and Co-Working

Paradigm Network: Maria Cheung on How to Build a Neighbourhood Workspace

Mix Interiors roundtable: Tim Gledstone on sensory design

Zak World of Facades: Murray Levinson keynote on Contemporary Craft in Context

October

London Craft Week Downstairs at The Department Store

The Space in Between: Re-imagining Atlantic Road

LEAF International Forum: Tim Gledstone speaking on designing sustainable interiors

ProdExpo Greece 2021: Margarita Boulaki on new forms of luxury and creating a sense of place

Building’s Social Value Live: Michael Squire

November

NXT BLD Conference: Murray Levinson on delivering real-time experiences

London Craft Week
All Together Now
ProdExpo Greece 2021

Muswell Hill Synagogue

Type: Community

Location: Muswell Hill, London

Status: Planning

Repair and reorganisation of an existing Synagogue to meet the current needs of the local community.

Current buildings

Precedents

Concept sketches

Proposed first floor
Proposed ground floor

Ruby Hotel

Type: Hotel

Location: Notting Hill, London

Status: On site

As part of a comprehensive review of three adjacent sites in Notting Hill Gate for Frogmore Estates, this new building will provide around 170 hotel rooms and retail at ground floor that will improve the active frontage at both the front and the rear of Notting Hill Gate.

64 St James’s Street

Type: Workspace refurbishment

Location: St James’s, London

Status: Planning

Refurbishment of existing building to provide high quality office and retail space with frontages onto St James’s Street and Blue Ball Yard. The creation of an additional storey and a roof terrace will offer attractive views over St James’s Park and The Palace of Westminster.

Location
Site’s history as The Cocoa Tree Club Mayfair extravagance and association with craft
Proposed axonometric sketch
Proposed sketch view from Blue Ball Yard
Existing St James’s Street elevation
Proposed St James’s Street elevation

Education

Winter

Windows 2021

Collaborating with Reay Primary School, 25 Year 6 students had the opportunity to work with architects and modelmakers from Squire & Partners to design the 2021 Winter Windows. Working to a brief, the students produced drawings that were transformed into a series of bespoke lights.

Building Futures mentoring

We continued our support of Blueprint for All’s Building Futures programme in 2021, mentoring students from disadvantaged and under-represented groups on their journey into architecture. Our students were given one-onone mentoring, work experience and practical guidance towards their goal to qualify as architects.

University of Westminster student visits

Part 1 Architecture students from the University of Westminster monitored The Broadway site on a regular basis over the course of their first semester with Squire & Partners and the contractor, Multiplex. Part of their Technical Studies module, the exercise introduced students to a live construction site and site team through direct consultation with the architect and contractor.

Internal education

Our in-house Education team organises a Part III group which meets weekly to support staff with their studies by providing information and seminars relevant to obtaining their final qualification as practicing architects.

Clay

College

We continued supporting Clay College – a new school for ceramics established by Lisa Hammond MBE, that offers residencies for rising national and international potters. Clay College brings essential skills back into ceramics education and seeks to create highly-skilled, self-sufficient and diverse makers that continue to safeguard the future of the craft. Clay College held their 2021 graduation Downstairs at The Department Store

Built By Us career mentoring Associate Director Deborah Bookman was a speaker at the BUILD Career Mentoring event organised by Built By Us. During the session, she provided careers advice and information for those preparing to undertake work experience, training, an apprenticeship or a new job in the built environment/construction industry.

St Mary’s Wharf, Guildford

Type: Residential

Location: Guildford, UK

Status: Planning

Redevelopment of the 1.7-acre former Debenhams department store site in Guildford, to create 215 apartments, 21,000 sq ft of retail and restaurant space and almost an acre of newly created riverside public realm.

Architectural language of local context

Metal work and colonnade precedents

1A The Mall

Type: Co-living interior design

Location: Ealing, London

Status: On Site

Highly flexible interior design for co-living concept in Ealing, which incorporates modern methods of construction and provides a variety of spaces for residents to meet, socialise and work, promoting a sense of community.

Pattern development inspired by local context

Research and Development

Franchi collaboration

Building on previous collaborations with Franchi on projects including The Department Store and St Edmund’s Terrace, we worked with the architectural ironmongers to develop a range of bespoke products at Lancer Square.

Brixton Brewery

Squire & Partners’ Modelshop has been working with Brixton Brewery to develop a range of simplified beer taps based on their existing product range.

Passive House development

Tim Gledstone has designed and developed a family Passive House in southwest London. The house generates more energy than it uses, making it more efficient than the Carbon Zero benchmark. Graphene batteries, natural lime plaster, recycled fishing net flooring, solar tiles and green roofs have been specified, alongside a Crestron smart home system and Zehnder whole house ventilation with heat recovery.

CLT structure at The Studios

A low carbon development, The Department Store Studios features a prefabricated Cross Laminated Timber (CLT) structural frame rather than steel or concrete. Made from renewable wood, it absorbs carbon dioxide and does not require the burning of fossil fuels during production. The structural frame provides in-built soundproofing, fire safety properties and airtightness.

Twinmotion

Our CGI team continue to use new methods and software to develop design ideas, with Twinmotion technology allowing us to develop proposals in real time.

Sustainable dyes

Textile designer Isabel Fletcher produced a collection of five hand appliqued wall hangings for meeting areas at The Studios. Colours, textures and compositions of each collage capture the evolving seasons, setting the mood and tempo for the room they appear in. The hangings are created using British Herdwick wool felt with hand embellishments of textile offcuts and paper cord, with fabrics coloured by natural dyes including onion skin, nettles and avocado.

One Trinity Place

Type: Residential

Location: St Petersburg, Russia

Status: Completed 2021

Part of a mixed-use masterplan, the residential building in St Petersburg embraces the river and the new public realm.

Initial sketch

London Festival of Architecture Who Cares?

Type: Installation

Location: The Department Store, Pop Brixton, Brixton Village

Status: Completed 2021

A community installation for the 2021 edition of London Festival of Architecture in collaboration with architecture and design studio AWMA, which explored and showcased what care means to communities.

Inspiration from prayer flags around the world
Workshops with AWMA
Scan the code to visit the website
Concept

A call for submissions was launched via a digital information pack including an animation, illustrations and questionnaire.

Responses and artwork received were printed on seed-infused paper and installed across three locations.

WPP London Campus 3

Type: Workspace refurbishment

Location: Southwark, London

Status: On site

A collaboration with lead architect BDG to design a new facade and public realm concept for global advertising company WPP’s London Campus 3. Formerly the Financial Times’ headquarters, the refurbishment and extension will create a highly sustainable workspace.

Facade lighting references
Courtyard references

Concept sketches

Thoughts and Opinions

Social Value

Michael Squire shared his views on social value with several publications, including EG and Building Design. He explained Squire & Partners’ commitment to community engagement and why – as a developer – a superficial approach will not fly with local communities, local authorities, and crucially tenants, who are increasingly demanding workspaces that deliver across all areas of ESG.

Dezeen x Epic Games

Murray Levinson appeared as a panellist on Dezeen x Epic Games’ Live Talk to discuss how game engines are transforming architecture. Murray spoke to Dezeen’s founder and editor-inchief Marcus Fairs about how we’re working in Twinmotion to develop our ideas and adapt our design proposals in real time.

Designerati’s Designer playlist
Henry Squire spoke to Designerati magazine about the music that has inspired him over the years.

New London Quarterly: Being Different Henry Squire, Tim Gledstone, Maria Cheung, Murray Levinson and Michael Squire featured on the cover of New London Quarterly’s 48th issue. Inside the magazine, they spoke to David Taylor about the practice’s entrepreneurial spirit and how taking risks benefits the developers we work with. They also discussed succession, how we have embedded ourselves in the Brixton community and our new workspace venture The Department Store Studios.

The future of work

Tim Gledstone spoke to publications including The Times, CoStar and Frame about post-pandemic office design and the importance of creating social spaces as employees return to the workplace.

Architecture Today: Materials Library

Director and Head of Interior Design Maria Cheung spoke to Architecture Today about the curation of our materials libraries at The Department Store, and the importance of materiality, craft and making to our design approach.

x+why, Huguenot Place

Type: Workspace interior design

Location: Spitalfields, London

Status: Completed 2021

The second x+why designed by Squire & Partners, Huguenot Place reflects and celebrates the site’s historic association with the silk industry, which dominated Spitalfields and Brick Lane throughout the eighteenth century.

Spitalfields’ historic association with the silk industry
Green textile

x+why, The Fulwood

Type: Workspace interior design

Location: Holborn, London

Status: Completed 2021

Squire & Partners’ third space designed for co-working brand x+why and their first building away from East London, in the historic area around Gray’s Inn. The brand ethos and aesthetic resonate through the design with the use of bold colours and textures.

History of the local area

Concept sketch for breakout space

First
The Fulwood,

Alice Aldous Emily Alexander Shahd Ali Laura Baker Derickson Baptiste Ross Barnes Richard BarnesFreddie Bosson Margarita Boulaki Mary Bowden Bettina Brehler Rebecca Brook Matt Brooker Maria Federica Ciocci Lili Cioti Jorge Conde Thomas Coote Nicole Cork Peter Cosgrave Georgia Crowe Fanni

Defreitas Richard Devonshire Emer Dobson Carola Drager Andrew Ekuban Sam Ellis Ruby Fieldhouse

Tim Gledstone Olga Gomez James Gray Jenny Gray Michele Greco Karol Grzeskowiak Raquel Gutierrez Herrera Viktoria Hesse Victoria Hicks David Hill Steven Hill Rhiannon Hobson Shane Hood Joshua James Nanelle Jayawardene Tracy Jeeves Barnaby Johnston Michael Jolley Leo Kadis Sofia Katsarou

Larizadeh Lucia Larragoiti Yeon Lee Noam Leshem Murray Levinson Ruby Lloyd Stephen Lloyd Alison Lucy Molina Luisa Molina Vaida Morkunaite James Munro Ben Murphie Tim Must Francesca Mutch Ellen Martin O’Leary Daniel Olney Alejandro Oostlander David O’Reilly Georgie Osborne Evangeline Osuji Aikari

Poots Bryn Reynolds Daniel Reynolds Connor Roberts Belen Rodriguez Lillianne Rockstad Frederica Taha Simsek Wonil Son George Squire Henry Squire Michael Squire Thomas Stanley Jacob Stapleton Victoria Thong Steven Thorpe Anneli Timmerman Alex Toohey Julia Topley Charissa Turner Grace Vickery Ellis Wright Anna Yeow Stavros Zachariades Elena Zamora Castejon Zipu Zhu Sabrina Ziem Kamana

Holt Luis Berenguel Garcia Arabella Bidgood Cyprian Boateng Paul Boateng Robert Bochel Fabio Bonghi

Brunet Giuseppina Bruno Marta Cavatorta Pinar Cengiz Maria Cheung Grace Chihane Efi Chrysochou Csepeli Shreyaa Dada James Daubeney Graeme Davidson William Davidson Melanie Davies Leigh-Anne

Clelia Filipe Christian Fink Phillip Forde Jamie Gallienne Jodie Gandz Natasha Gershfield Rosie Gillard

Emily Hacon Andri Hadjichristou James Halliday Cal Harris Samantha Harrison Eimear Henry Fernando

Horobin Kate Hosking Holly Hudson Chloe Hughes Saskia Ifland Laura Illidge Ewa Jakubczyk Hannah

Thomas Kendall Tanja Kersting Akmaral Khassen Edd Kilvert Liliia Kuksina Jae Kwak Omar Lado Marcie

Maclellan Alessandro Mangiavacchi Emma Maple Filippo Mecheri Torsten Merz Beth Mills Laura Mitchell

Nankivell Jennifer Nguyen Enrique Nieto Felipe Cristina Novati Aine O’Dwyer Aindrias Oh-Eineagain

Paing Apostolos Papadimitriou Mariana Parrinha Frances Peel Naomi Phillips Stefania Pindinelli Michael Romeo Beattie Adam Rothwell Hannah Sargeant Jakob Scholdstein Nicholas Shewan Chris Simmons

Sophie Steed Hannah Stubbs Albert Suen Valdone Svirskaite Ana Taho Gareth Thomas Aimee Thompson

Marcus White Zara Whittle Hannah Wilkinson Bram Winterford Oliver Wolf Cindy Wong Alex Worrall Sian

Andrea Zorbis

Squire & Partners LLP

The Department Store

248 Ferndale Road, London SW9 8FR

020 7278 5555 info@squireandpartners.com

squireandpartners.com

Turn static files into dynamic content formats.

Create a flipbook
Issuu converts static files into: digital portfolios, online yearbooks, online catalogs, digital photo albums and more. Sign up and create your flipbook.