Jack Darcy - Architectural Portfolio

Page 1

01 02 ARCHITECTURE 03 STUDENT HOUSING AV FIRE STATION BRUNSFIELD NORTHLOOP 04 ADOBE HOUSE 05 MODERN CABIN REDESIGN PERSONAL WORKS 1 7 15 11 19 21

STUDENT HOUSING

JAN. - MAY, 2023 CAPSTONE

PROJECT GOALS

- CREATE A COMFORTABLE AND CLEAN SPACE

- FOCUS ON STUDENT INVOLVEMENT

- DESIGN AN INNOVATIVE AND COMPLIMENTARY EXTERIOR

NOTE: THIS IS A 3-PERSON PROJECT DONE SOLO

1

CURTAIN WALLS

FOR LIGHTING, OPENNESS, AND COMMUNITY INVOLVEMENT

DORMITORIES

GATHERING SPACES

COURTYARD

CENTERED GATHERING SPACES

FOR A GREATER SENSE OF COMMUNITY

COURTYARD

FOR DAYLIGHTING AND INTEREST

COMFORT AND COMMUNITY
2

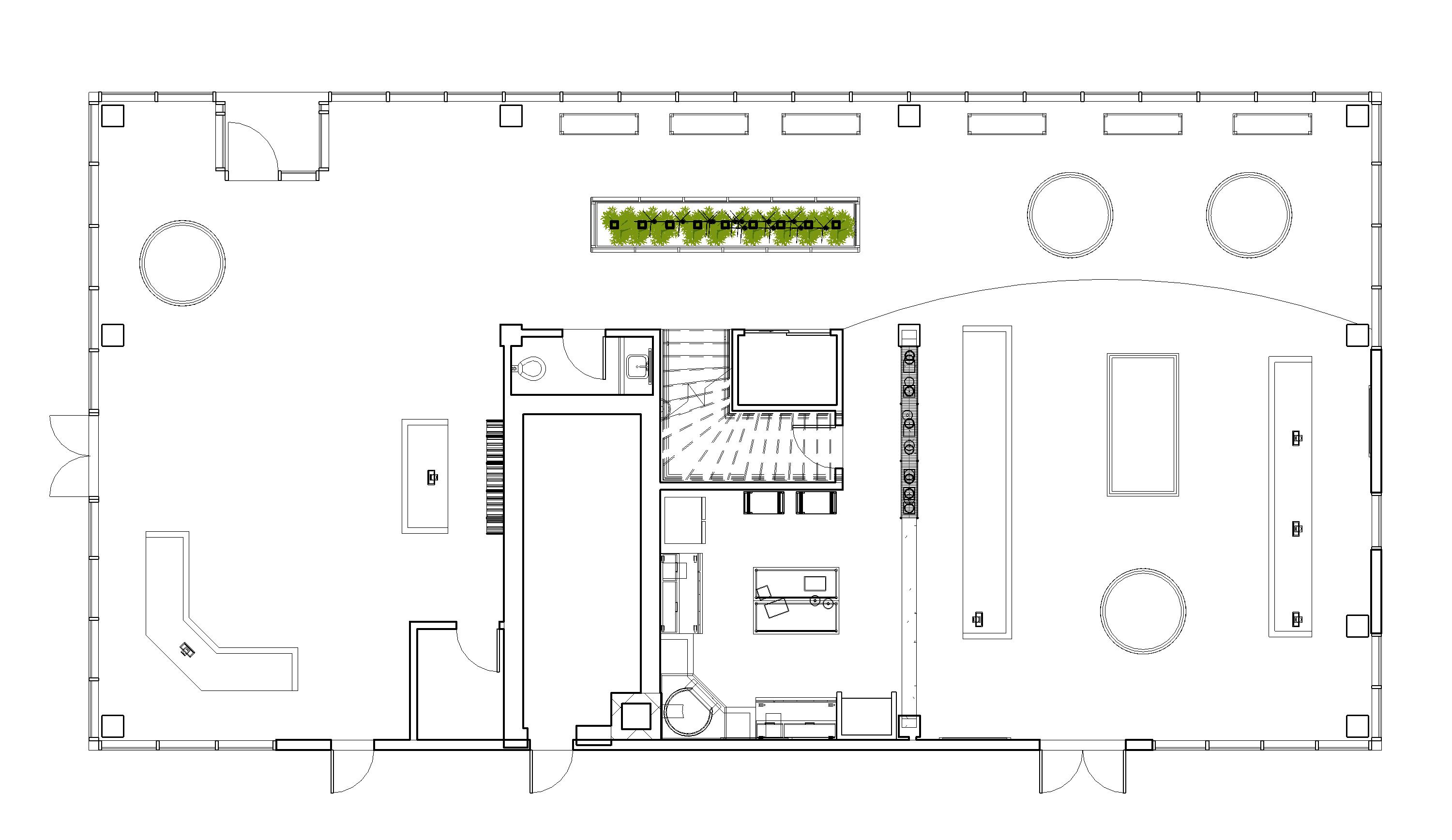
FLOOR PLANS

LEVEL 1

- FEATURESSTAFF APARTMENTS KITCHEN SHOP

MAILROOM

COURTYARD

EVENT SPACE

LEVEL 2 - 5

- FEATURESSTUDENT STORAGE

LAUNDRY

LARGE AMENITIES LOUNGES

N
3
DORMITORY SHOWCASE
3 PERSON DORM
KITCHEN LIVING ROOM
4
BATHROOM BEDROOM
EXTERIOR ELEVATIONS 2 3 1 7 6 4 5 2 1 3 5
4 5 6 7 6

APPLE VALLEY FIRE STATION N° 2

PROJECT GOALS

- IMPROVE AESTHETIC OF EXTERIOR AND INTERIOR

- CREATE A CLEAR SEPARATION OF SPACE USAGE

- IMPROVE SITE AND BUILDING CIRCULATION

NOTE: THIS IS A 2-PERSON PROJECT DONE SOLO

SEP. - DEC., 2022 CONSTRUCTION DOCUMENTS
7

AESTHETIC

EXISTING PROPOSED

INTERIOR PROGRAM

TRUCK BAY

HEAVY UTILITY

LIGHT UTILITY

LEISURE

VEHICLE CIRCULATION

FIRE ENGINE

EMPLOYEE

VISITOR

BUS

THE REDESIGN
8

FLOOR PLANS

LEVEL 1

CLEAR SEPARATION BETWEEN PRIVATE AND PUBLIC USE

LEVEL 2

EMPLOYEE USE ONLY

N
NORTH
9
SOUTH ISOMETRIC VIEW 10

ADOBE-BASED HOUSE

APRIL, 2022

BUILDING & THE ENVIRONMENT

PROJECT GOALS

- BUILD FOR THE ENVIRONMENT

- CREATE A COMFORTING AND INVITING AESTHETIC

11

SEMI-ARID WINDSWEPT VALLEY

NEVADA

ADOBE MASS

LARGE WINDOWS FOR THERMAL INSULATION AND COST EFFICIENCY

FOR DAYLIGHT, VENTILATION, AND TUSCAN AESTHETIC

WIND TOWERS

FOR VENTILATION AND STYLE

ENVIRONMENT
BUILDING FOR THE
ELY,
12
FLOOR PLANS
NORTH N
1
3
MB OFFICE FOYER FULL BATH BASEMENT BEDROOM
LIVING ROOM 13
SECTIONS SOUTH
LEVEL
LEVEL
LEVEL 2
KITCHEN

LATUS

LEVEL 3

LEVEL 2

LEVEL 1 FOUNDATION

ISOMETRIC VIEW
TOWER ROOF SOFFIT
EAST WEST WIND
CEILING
14

PROJECT GOALS

- CREATE A SPACE THAT IS PRACTICAL AND CAN BE USED BY EVERYONE

- CREATE A COMFORTING AND INVITING AESTHETIC

FEB. - MAY, 2022 CONSTRUCTION DRAWINGS
BRUNSFIELD NORTHLOOP
15

SURROUNDING AREA

SITUATED IN THE MINNEAPOLIS NORTHLOOP NORTHLOOP

SURROUNDED BY RESTAURANTS AND BARS

FUNCTION OF SPACE

GROCERY

DRUG

RESTAURANT

LIGHT FIXTURES

COMMUNITY ORIENTATION
16

FLOOR PLANS

LEVEL 1 MEZZANINE
DRUG STORE
17
GROCERY STORE RESTAURANT KITCHEN CLEANING
ISOMETRIC VIEW 18

MODERN CABIN REDESIGN

PROJECT GOALS

- REDESIGN AND TEXTURE THE EXTERIOR

- CREATE A SLEEK, CLEAN, AND COMFORTABLE AESTHETIC

- CREATE ALL KEY DETAILS

ELEVATIONS

MAY, 2022 BUILDING DETAILS
NORTH WEST
19

BLACK SLATE

WHITE CONCRETE

GYPSUM DRYWALL

PLYWOOD SHEATHING

ADHESIVE WRB

WRB

2x4

INSULATION

RIGID INSULATION

BLACK METAL FURRING CHANNEL CONCRETE

GRAVEL

SOUTH EAST

SECTION CUT DETAILS
20

PERSONAL WORKS

21
22
23
24

Turn static files into dynamic content formats.

Create a flipbook
Issuu converts static files into: digital portfolios, online yearbooks, online catalogs, digital photo albums and more. Sign up and create your flipbook.
Jack Darcy - Architectural Portfolio by Jack Darcy - Issuu