Architectural Portfolio

Page 1

PORTFOLIO

ARCHITECTURE AND LANDSCAPE DESIGN

SOUMITRA SELECTED WORKS

Contents

Curriculum Vitae

Academic Projects

1. Nature to Nurture: Exploring the role of nature in boosting people’s mental health in Bengaluru, India Master’s Thesis, 2022/23, PoliMi

2. The Museum of Life: Enlivening Necropoli of Tarquinia Design Studio, Semester 4 - 2022, PoliMi

3. Patch the Gap: Green wedge urbanism- Re-naturing Milano Design Studio, Semester 3 - 2021/22, PoliMi

4. The Welding Gate: Port Wine Museum Design Studio, Semester 2 - 2021 , PoliMi

5. Transport Planning: Vijayawada Railway Station Precinct Design Urban Design Studio, Semester 9- 2018, SPA Vijayawada

Professional Projects (Master-planning)

1. Karnavati Club Design Proposal Karan Grover and Associates, 2020

2. Villas at Vijayawada Karan Grover and Associates, 2018

Curriculum Vitae

Soumitra

19/10/1995

Via Vincenzo Capra,6 Piacenza (PC), 29121, Italy

soumitra@mail.polimi.it

+39-3756900780

Education

M.Sc in Sustainable Architecture and Landscape Design Politecnico di Milano, 2020-23

B.Arch

School of Planning and Architecture, Vijayawada, 2014-19

Software Proficiencies

Drafting: AutoCAD

3d Modelling: Revit, Sketchup

Rendering: Lumion 3D, Enscape

Post Production: Adobe Photoshop, Illustrator, Indesign, AfterEffects

GIS: QGIS

Manual Skills

Hand drafting, Model-making, Sketching, Photography

Additional Skills

Graphic design, Video editing, Web-page development (Wix, Wordpress)

Work Experience (Architecture)

Architect

Karan Grover and Associates, Vadodara, India

June 2019 - August 2020

Worked on design development and client handling of multiple projects along with architectural competitions.

Key Projects: 200 room 5-star hotel in Pune, India; Extension of National Institute of Design, Bengaluru, India; Design competition for a Luxury Club in Ahmedabad, India

Architectural Intern

Karan Grover and Associates, Vadodara, India

December 2017-May 2018

Key Projects: Design development of National Museum for Tribal Freedom Fighters (Winning Entry); Design development of Urban and Rural housing entry, Building for the Billion Design Competition (Top 25 Globally)

Work Experience (Other)

Business Developer

AWATREE GmBH, Celle, Germany

January 2022- April 2022

Worked on the development of a startup company dedicated to saving “A Million City Trees” through citizen partnership program.

Scholar QLab GmBH, Bremen, Germany

November 2021-December 2021

Worked on the development of a business model for a startup client, AWATREE GmBH, in order to save “A Million City Trees”.

Seminars and Workshops

Special Topics in Environmental Design

Sandra Lenzhoelzer, June 2022, Politecnico di Milano

Landscape Off Limits (LOL) 2021 Edition

Sara Protasoni, August 2021, Politecnico di Milano

Languages

English, Italian, Hindi

Affiliations

Council of Architecture, India Member, 2019-Present

Runner-Up, IGBC Green Building Design Competition, 2016 linkedin.com/in/soumitra88

Awards

art.i.muos rydersoumi

Nature to Nurture

Exploring the role of nature in boosting people’s mental health in Bengaluru, India

Master’s thesis, 2023

Guided by: Fabiano lemes de Oliveira

The thesis project highlights the relation between nature and people’s mental well-being in the Indian city of Bengaluru, also known as the Silicon Valley of India. The aim of the thesis was to propose interventions on multiple scales to improve the existing mental health situation of the people of Bengaluru. The proposals were put forward after an extensive research on the effect of natural surroundings on human health, as well as the ways in which nature affects humans, specifically in the context of India. The design interventions were laid out on macro, meso and micro along with an understanding on the role of stakeholders at each stage.

Research Question:

“How can nature based interventions bring about an improvement in people’s mental health issues in the city of Bengaluru? ”

Ecotone biodiversity Matrix

Forest- Lake- Forest ecosystem Farm Lake - Urban Park ecosystem Social Zone Serene Zone Horticulture Zone
Landscape Matrix Horticulture Zone
Serene Zone

The Museum of Life

Enlivening Necropoli di Tarquinia

Design Studio, Semester 4

Guided by: Matteo Umberto Poli, Valentina Noce

Tarquinia was one of the most ancient and important Etruscan cities; the ancient myths connected with Tarchuna all point to the antiquity and cultural importance of the city. The main necropolis of Tarchuna, part of which can be visited today, is the Monterozzi necropolis with some 6,000 tombs, at least 200 of which include beautiful wall paintings, and many of which were tumulus tombs with chambers carved in the rock below, for which it was awarded the UNSECO World Heritage status. The design project aims to re-enliven the necropolis with landscape interventions to justify the cultural influence of the Etruscan heritage.

Masterplan Concept Development Storyline

Patch the Gap

Green wedge urbanism: re-naturing Milano

Design Studio, Semester 3

Guided by: Fabiano lemes de Oliveira, Emmanuela Torrigiani

This studio project was aimed at urban regeneration of the city of Milan through the use of Green Wedges. The project had 2 phases: Phase 1 involved the development of a strategic Green-Blue Infrastructure Plan of a wedge from Piazza Loreto to the rural areas of Milano, based on Sustainable Development Goals. Phase 2 involved the selection of a micro level site within the wedge and proposal of a prototype using Nature-based Solutions and Ecosystem services to generate an ecological corridor, based on the strategies used in Phase 1.

Urban forest Plaza and Park

The Welding Gate

Port Wine Museum, Porto

Design Studio, Semester 2

Guided by: Camilo Rebelo, Kiana Jalali

Welding is a process where two or more elements are fused together, forming a joint. This design project is a museum that serves as a gate, uniting the city of Porto with the river Duoro, through the cultural aspect of Porto’s most celebrated wine, the Port Wine. The museum aims to connect the people to the tangible and intangible heritage of Porto and Duoro.

Conceptual Zoning

Masterplan
The Gate to the City The rooftop plaza

Transport Planning

Vijayawada Railway Station Precinct

Design Studio, B.Arch, Semester 9

Guided by: Prashanti Rao

Vijayawada is a city in the South-Central Region of India, known to have the biggest railway station in the region in terms of the number of trains passing per day. The vision of this project was to understand the character of city’s built fabric around the railway station and to develop an inclusive, user responsive transit hub which reflects the cultural identity of the city and acts as a catalyst for social and economic growth.

Master Planning

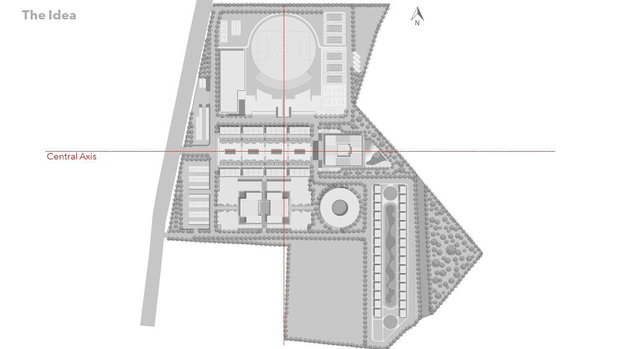
Karnavati Club Design

Professional Project- Karan Grover and Associates, Vadodara, India

The brief of this project was to design a multi-activity club in the city of Ahmedabad, India. The site was spread accross 70 acres, and involved a distribution of commercial, residential and leisure spaces. The master-planning was done with a goal to maximize the green area, and minimise hard paved areas so as to create a cool micro climate on the site as Ahmedabad has harsh weather conditions.

Masterplan

Master Planning

Villas at Vijayawada

Professional Project- Karan Grover and Associates, Vadodara, India

This is a mass housing project with the site located in Vijayawada, India. Through this project KGA aimed to achieve certain goals pertaining to sustainability and green environment. Few of them being low energy consumption, passive techniques for villa design, principles of Vaastu, vernacular approach and influence of locally available materials and a 100% walkable campus (shaded walkways and green belts across the site).

For the landscape part KGA has tried to achieve: effective circulation within the site, disabled friendly design, reinforcing landscape through Vastu, ensuring health and well being of the user group, handful of recreational areas for each age group, rainwater harvesting and reuse of treated waste water .

An academic research done to investigate the ways in which a city facilitates accessibility through its transport systems. It has a deep impact on the urban development and human well-being.

The expansion or contraction of the transport network paves a way for the resulting mass of the city. The aim of this research was to analyse the influence of transportation network of a city on its urban form and to study the primary factors governing the same. The study included correlation among the factors as well as definition of the pattern of urban development.

Thank you! Soumitra soumitra@mail.polimi.it,
+39-3756900780

Turn static files into dynamic content formats.

Create a flipbook
Issuu converts static files into: digital portfolios, online yearbooks, online catalogs, digital photo albums and more. Sign up and create your flipbook.