Thesis project: development center for autism children through " Neuro Architecture"

Page 1

Bought By Eshanya Autism village for Building live project ( submitted study copies )

D E D I C A T E D T O A U T I S M C O M M U N I T Y

6.

16. Site options & site selection Criteria

17. By-laws

18. Selected site Options

19.Site study & analysis

20.Concept

21. Form development

22.Exploded View : views sheet

23.Master Plan ( Roof Plan ) & site sections

24.Site Plan & Sections

25.Detail plan & section elevations – School Building & medical facility building

26.Detail Plan & section elevations – Admin Building

27.Landscape Layout

28. Construction Layout

29.Serviece Layout: Fire Layout

30.Serviece Layout: Electrical Layout

31.Serviece Layout: HVAC Layout

32.Serviece Layout: Waste & Gas Layout

33.Serviece Layout: Plumbing Layout

34.Serviece Layout: Surface Water Layout

T A B L E O F C O N T E N T S
Research & aim
Limitations &
of project
group & symptoms
1.
2.
inferences 3.Need
4.User
5.Research Methodology
Identified case
studies
for
Health &
7. Case study 1 ( Live case study ) – center
life and sciences
Medicine
study 3
study Analysis
study conclusion
Analysis of questionnaire
program
D E S I G N
8.Case study 2 9.Case
10.Case
11.Case
12
13.Design
14.Design Considerations 15.Data collection Questionnaire & Answer sheet of questionnaire
A N T R A A R C H I T E C T U R A L D E S I G N P O R T F O L I O

Development Centre at Kolkata west bengal for Autism children through “Neuro architecture”

IT IS NOT DISABILITY ITS DIFFERENT ABILITY

PART 2 :Design intent generated from the expected inferences of Part 01: Limitations & inferences : Studying mindset of of autistic is itself a vast topic hence this topic limits itself to study & research the behavioral aspects in environment which will help them in rehabilitation & also research of their behavioral aspects in educational environments it also attempts to understand perception of spaces through neuro architecture also in this research there will be critical study of parameters of neuro architecture & also implementation of learning in deign of project

Need of project

Centers for Disease Control & Prevention (CDC) estimates that approximately 1 in every 88 children are diagnosed with some level of autism, (one in 54 boys) a sharp jump from the previous numbers released in late 2009, and frighteningly distant rate from one in 10,000 cases seen in the 1980s Experts estimate that every 2-6 children out of every 1000 have Autism The prevalence rate of autism in India is 1 in 250 (figure may vary as many cases are not diagnosed) and currently 10 million people are suffering in India The government only recognized the disorder in 2001, till 1980s, there were reports that Autism didn't exist in India (Dr. Vinod Kumar Goyal, TOI). These alarming rates of increase call for attention by all the fields and clearly architecture has been ignoring the effect of built environment in their development.

Research in the past several years has shown that children can outgrow a diagnosis of autism spectrum disorder (ASD), once considered a lifelong condition In a new study, researchers have found that the vast majority of such children still have difficulties that require therapeutic and educational support

Conclusion :The research shows There is need of autism centers to help these children’s who doesn’t heal with diagnosis in at early year from 2 year to 5 year

Source: Albert Einstein College of Medicine https://www.sciencedaily.com/releases/2019/03/190312075923.htm

User group & symptoms :

PART 1 :Research in architectural design project Research Question (Hypothesis):

By means of intricate program the social stigma associated with autism can be obtained moreover children’s suffering from ASD Autism spectrum disorder can lead a fruitful life ,if they are provided with proper care & treatment through neuro architecture

Aim:

To rehabilitate children & develop natural learning abilities as well as adolescent with ASD ( autism spectrum disorder ) through neuro architecture & provide rehabilitation centre , education & accommodation .

Objectives:

a) To identify & understand role played by architectural elements in their intervention.

b) To understand Environmental implications for teaching strategies used for children with ASD in educational space for example: visual character, spatial sequencing & its quality ,escape areas , clutter free space ,color texture ,material & acoustics

c) To understand by using neuro architecture how we can develop natural learning abilities in children

d) To address their needs and design accommodation based on their behavioural aspects, cultural and social aspects

Brief description of the Architectural Design Project title:

Antara – Development center for austims through neuro architecture . meaning of antara is inner soul . To rehabilitate children & develop natural learning abilities as well as adolescent with ASD ( austim spectrum disorder ) through neuro architecture & provide rehabilitation center , education & accommodation . children suffering from ASD Austim spectrum disorder can lead a fruitful life ,if they are provided with proper care (at early stage of there age ) & treatment through neuro architecture . the program will include rehabilitation area ( medical facility ) , education ( school ) & accommodation , play areas the sensory garden & landscape areas .

Highlighted states have high number of daily autism patients per 100000 population

Autism spectrum disorder (ASD) is a developmental disability that can cause behavioural challenges Signs and Symptoms of ASD as follows

• Making little or inconsistent eye contact

• Tending not to look at or listen to people

• Rarely sharing enjoyment of objects or activities by pointing or showing things to others

• Failing to, or being slow to, respond to someone calling their name or to other verbal attempts to gain attention Autism is a behaviourally defined disorder characterized by impaired social interaction, delayed and disordered language and isolated areas of interest In 1986 Temple Grandin published her first book, Emergence, in which she described growing up with autism, providing for the first time an insider’s view of a different kind of life Since then, a growing number of similar personal accounts have appeared, each adding more insight into their inner world There has been significant efforts in understanding their behaviour and the remedies It also had an impact on the environment and its design which has greatly influenced the field of architecture over the last few decades Hence there is a necessity for a behavioural centered design Autism is one such disorder which is by and far the most challenging developmental disorder which has been overlooked by the architects as a condition that influences building design (The present research study accentuates the need for a fresh approach in designing educational and rehabilitative spaces for a supportive environmental intervention of autistic children

Neuro architecture can be defined as built environment designed with principles of neuroscience, which establishes spaces that encourage memory, improve cognitive abilities, avoid stress and/or stimulate brain lous khan

ARCHITECTURAL
DESIGN DETAILS & SERVICE LAYOUTS
T A B L E O F C O N T E N T S RESEARCH ? & AIM CASE STUDY INFERENCES & DESIGN PARAMETERS SITE SELECTION DESIGN PROGRAMME DATA COLLECTION: ANALYSIS STANDARDS
RESEARCH & AIM
T A G E T A G E G R O U P : S Y M P T O M S Bihar Uttar pradesh rajsthan Arunachal pradesh Meghalaya Jammu & kashmir Haryana Sikkim Nagaland Uts and delhi 54( 37-74) 54(37-54) 54(37-54) 54(37-54) 54(37-75) 54(37-75) 54(36-75) 54(36-75) 54(37-75) 54(37-75) No of autism centers 4 3 2 0 3 3 3 2 2 5 States Of india ( 54 IS DAILY RATE PER 100000 POPULATION 95% UNCERTINITY INTERVAL)
SITE ANALYSIS SITE ZONING FORM DEVELOPEMENT CONCEPT & LANDSCAPE SKETCHES BY LAWS PREETI BHATUSE _ A05 _ INDIRA COLLEGE OF ARCHITECTURE & DESIGN | ADP : ANTRA : DEVELOPMENT CENTER FOR AUTISM THROUGH NEURO ARCHITECTURE SIGN & STAMP
“Some children can 'recover' from autism, but problems remain lifelong study finds”

NAME : ADVANCE SCHOOL FOR DEVELOPING SKILLS OF SPECIAL NEEDS CHILDREN IN QATTAMEYA , CAIRO , EGYPT

NAME : CENTRE FOR LIFE SCIENCES, HEALTH AND MEDICINE

• SITE CAN WE WITHIN CITY OR OUTSKIRTS OF CITY (PREFERABLE)

The Newcastle upon Tyne lies on 54m above sea level the climate is warm and temperate in Newcastle upon Tyne . the climate is called a oceanic climate . with quite cold , rainy winters & mild , relatively rainy summers .in Newcastle average annual temperature is 8.5 degree . the rainfall is around 655 mm 25.8 inch per day

Egypt has an arid, desert climate and the weather in Cairo is always warm, or hot, and the nights cool. There are only two seasons: a very hot summer, with average temperatures reaching 95°F (35°C) between May and October, and a mild winter from November to April.

Pune has a hot semi-arid climate (bash) bordering with tropical wet and dry (aw) with average temperatures ranging between 19 to 33 °c (66 to 91 °f). pune experiences three seasons: summer, monsoon, and winter

• SITE NEED TO BE IN SEMI – ARID CLIMATE –INCLUDING AREA FOR LANDSCAPE & OUTDOOR

Keele university ,keele innovation park public parks & farming land (

Access through main road

There & 2 entrance one for students & one for admin separate entry exits for vehicles

The area is defined by low rise buildings(RESIDENTIAL ZONE) Safe & peaceful environment in surroundings

Site Area: 2,000 sq.m

Access through main road – NIBM ROAD One main entrance & one staff entry

• SITE AREA SHOULD BE MORE THAN 12000 SQ.M

• SITE SHOULD HAVE ACEESS THROUGH MAIN ROAD (EXPOSED TO MAIN ROAD )

• SEPARATE ENTRIES SHOULD BE THRERE

• BUT MINIMUM ( NO CONFUSION )

Natural environment in surroundings , golds gym ,fitness club ,catholic church , no obstructions in view (overall natural view in surroundings)

SITE SHOULD BE EASILY ACCESSIBLE FROM MAIN ROAD SHOULD BE IN PEACEFUL ENVIRONMENT BUT NOT DETACHED

SITE CAN HAVE GENTLE SLOPE

• INTROVERT PLANNING CENTRAL OPEN LANDSCAPE SPACE IS IMORTANT

• VISITORS PARKING & STAFF PARKING REQUIRED

• Building form Landmark building has two internal courtyards an inclusive building design , a wild sensory garden & stunning butterfly shaped roof to reflect the charity’s logo the stepped height gives the feeling of wings of the butterfly Form -Inside 360 -degree loop corridors discourage children from running and , by doing away with harsh , right – angled corners , reduce the anxiety of surprise encounters

• The placement of the psychiatric office plays a very important role Although it is located at the border between public and private areas, the area needs to be designed as a neutral space from a sensorial point of view

• Because the exterior space has more sensory stimuli, therapeutic sessions can be done only with patients with less severe autism

Elevation represents harmony in the articulation of masses , light colored materials used to represent calm environment to the users who approach it. Simple form yet complex implementation of the horizontally

The essence of the design’s beauty lies in its unusual geometry, abandoning the typical uniformity of squared rooms. The spaces have been designed such that they interconnect with each other, establishing a series of visual experiences, and engaging the senses as you move forward. The built mass of the structure is encompassed around a single meandering street which also acts as a central court,channeling the west and south-west breezes.

STREET LIKE PLANNING IS IMPORTANT AS WELL AS INTROVERT PLANNING & CENTRAL LANDSCAPE SPACE IS VERY IMPORTANT IN DESIGN . HERE FORM & MATERIALS OF BUILDING ALSO PLAY VERY IMPORTANT ROLE IN TERMS OF SAFETY ( NO SHARP EDGES) & NATURAL MATERIALS WHICH WILL HELP STRUCTURE TO GET COOL NATURALLY .

This intriguing composition of inside and outside uses a simple concrete frame structure as its support system, with fly ash block infill walls. The filler slabs, which use fly ash hollow blocks, both reduce concrete consumption and insulate the roofs in summer

EASILY AVAILABLE MATERIALS ARE USED UNIQUE CONSTRUCTION TECHNIQUES

Sr. S U B J E C T B O O K C A S E S T U D Y L I V E C A S E S T U D Y I N F E R E N C E S DESIGN & SITE SELECTION CRITERIA 1 L O C A T I O N M A P
2 C L I M A T E
3 S I T E & A R E A Site Area :60,000 sq.ft = 6000 sq.mt
Area :
sq.m
Site
4200
4 A C E S S T O S I T E & E N T R Y E X I T S
Access through main road
S U R R O U N D I N G C O N T E X T
No buildings in surroundings
natural surroundings )
5 T O P O G R A P H Y Flat land Flat land
slope on site
Gentle
6 S I T E P L A N & P A R K I N G F A C I L I T I E S
7 C O N C E P T
8 O R I E N T A T I O N Building orientation E-W Building orientation E-W Building orientation E-W REALATED TO CLIMATE OF THE REGION 10 B U I L D I N G M A T E R I A L NATURAL &
COMPARATIVE
ANALYSIS OF CASE STUDIES
L O C A T I O N : Q A T T A M E Y A, C A I R O ,E G Y P T
L O C A T I O N : K O N D H W A , P U N E ,M A H A R A S H T R A L O C A T I O N UK NAME : COUDWELL INTERNATIONAL CHILDREN ’S CENTRE, U K B O O K C A S E S T U D Y
The architect obtained for natural stone ,timber & glass & selected stone panel , hook & adhesive fixed stone cladding for buildings three foot pier facades
PREETI BHATUSE _ A05 _ INDIRA COLLEGE OF ARCHITECTURE & DESIGN | ADP : ANTRA : DEVELOPMENT CENTER FOR AUTISM THROUGH NEURO ARCHITECTURE SIGN & STAMP

Different materials with different colors in different zones to ease the wayfinding process and define the function of each space using sensory gift of autistic users

Use of curved wall in the lobbies with no sharp edges Makes them feel more relaxed with no stress .

the building is taking into consideration the safety of autistic child . Although they feel free in the space & they are free too.

High simulation space is next to high stimulation spaces and low stimulation to low stimulation with good transition in between .

The building is designed in curved forms. Sequencing in the project by making the children do what they love

special colors is used in each zone , zoning between hypo and hyper autistic children , and interacting with outside being safe

The zoning of the projects help breaking the building into small pieces which will be easier to be managed and recognized by autistic children.

a safe place for individuals with autism to go to when they feel overwhelmed and overloaded .

Materials are smooth & safe like vinyl flooring , carpet & cushion panels on walls with pastel colors to control their sensory stimulation .

Zones are connected by corridor that has the role to provide intimacy to the treatment zone, that allows children to find their way to their intended destination

Between different zones within premises the existing transition zones are created.

Minimization and elimination of hazardous areas or elements as sharp objects & corners .

In this project architect reduced noise in educational environment for children by separation between different zones hypo & hyper. acoustical material used .

This principle highlights the issues of routine and predictability that influences individuals with autism.in this project the organization of spaces done as users can do familiar movements through spaces

Unlike the traditional definition arranging spaces by function ,this principle arrange spaces according to their sensory quality .

Organization of spaces into compartments at different scales within the premises ,such organization , for the whole building & classrooms, limits the sensory environment of each activity

Whenever students feel overwhelmed by environment

They know they have safe space to resort to .

implementation of safe selected material like rubber floors or acoustical walls to reduce noise and promote for safe environment for the children

• In program & planning concept there should be two zones hypo & hyper

• Street like planning is important

• Introvert planning needs to be done ( considering safety of children )

The square & triangular cutouts ( skylights )forming beautiful shadow patterns

concept for wayfinding is missing in this project

Between different zones within premises the existing transition zones are created

Tapered walls are used , sharp edges are avoided ( see floor plan )

Acoustic materials are used in consulting rooms and music room also in video recording rooms .

In this building street like planning is done . So all spaces are easily accessible .

zoning is done as per function & considering public & semi - public spaces

the zoning of the project is done as per public & semi public spaces all consulting areas music rooms & recording rooms are in different part of site and reception ,waiting & play areas are in different part of the site .

Escape spaces are designed in landscape area .As this project does not include accommodation so separate built spaces are not created here

fly ash block infill walls used The filler slabs which use fly ash hollow blocks, both reduce concrete consumption and insulate the roofs in summer.

The built mass of the structure is encompassed around a single meandering street which also acts as a central court, channeling the west and south-west breezes And this is best example as autism center in Maharashtra..

• SENSORY GARDEN

• ACCOMODATION (STAFF )

• AMPHITHEATER

• GARDEN AREA ( SENSORY GARDEN)+ WATER FEATURE

• LIBRARY

• EDUCATION ( CLASSROOMS )

• LIVING FOR PARAENTS

• HOSTEL FOR STUDENTS

WAYFINDING

TRANSITIOS SAFETY ACOUSTICS

SPATIAL SEQUENCING SENSORY ZONING COMPARTMENTALIZATION ESCAPE SPACES

MATERIALS USED GENERAL CONCLUSION

11 S I T E Z O N I N G & P A R K I N G F A C I L I T I E S
12 F A C I L I T I E S (P R O G R A M) 14 A N A L Y S I S (REFLECTION ON PROJECT ) D E S I G N C O N S I D E R A T I O N S SYMBOLIC PRESENTATION ?
students.
implemented in layout and spatial organization
advance center
attain comfort for autism spectrum disorder (ASD)
Orientation of building and articulation of spatial masses adjust natural light according to the different needs of autistic users that can positively impact
This principles are set
of
project to
LIGHT
M A N E N T R A N C E PARKING 1. STUDENT ENTRANCE 2. CLASSROOMS 3. THERAPY ROOMS 4. ADMIN & DIAGNOSTIC 5. HYDROTHERAPY 6. ASSISTED LIVING 7. SENSORY GARDEN 8. PLAYFIELD 9. GARDENING CENTRE 10. CENTRAL COURTYARD 1 ENTRANCE 2.RECEPTION & ADMIN 3.WAITING AREA & SEMINAR HALL 4.CLINIC 5.CONSULTING 6.RECORDING ROOM & VIDEO LIBRARY 7.NEUROLOGIST 8.MUSIC ROOM 9.GARDEN 10.INNER COURTYARD 11. POND 12. AMPHITHEATER 13. STAFF QUARTERS 14.MEZZANINE LIBRARY 15.SPIRAL STAIRCASE FROM WAITING 16.STAIRCASE 17. TERRACE & BRIDEGES ADMIN & RECEPTION MEDICAL FACILITY EDUCATION ( CLASSROOMS ) ACCOMODATION ( STAFF) GARDEN AREA ( SENSORY GARDEN )+ WATER FEATURE ADMIN & RECEPTION MEDICAL FACILITY MUSIC ROOM SENSORY GARDEN ACCOMODATION (STAFF) AMPHITHEATER GARDEN AREA ( SENSORY GARDEN )+ WATER FEATURE LIBRARY 1. CLASSROOMS 2. THERAPY ROOMS 3. ADMIN & DIAGNOSTIC
ASSISTED LIVING 5. SENSORY GARDEN 6. PLAYFIELD 7. CENTRAL COURTYARD 8. CHILD TRAINING 9. ADULT TRAINING 10. ADULT TRAINING 11. FAMILY ROOM H Y P O H Y P E R FREE SAFE EXCITING CALM COMFORTABLE / HOMELY SIMPLE NATURAL LIGHT NO SUNGLARE CLEAR SIGHT OF ALL SPACES REDUCED VISUAL SIMULUS SIMPLE NAVGATION NO DEAD ENDS OPEN SPACES QUIET & PRIVATE SPACES CONNECTION WITH NATURE SAFE OUTDOOR SPACESE COURTYARD
4.
Skylights to provide natural light for hyposensitive users as they detest direct sunlight .glazing with shaded louvers to diffuse light
PREETI BHATUSE _ A05 _ INDIRA COLLEGE OF ARCHITECTURE & DESIGN | ADP : ANTRA : DEVELOPMENT CENTER FOR AUTISM THROUGH NEURO ARCHITECTURE SIGN & STAMP
The building is adapting to fit in the needs of the autistic users with respect to their variances .

Where are theses activities are conducted ?

What kind of planning is done for accessing spaces in center ?

How do you prefer spaces in Development center for lighting ?

In your opinion ,does acoustics / noise affect the autistic child ?

Do children prefer staying outside (in garden area ) ?

what kind of view or surroundings are visible from center

How long children prefer playing outside during their normal routine ?

GROUND LEVEL TRAMPOLINE

• Designed for wheelchair users . the slopping edge panels enclose the surface level trampoline to be accessed safely .

• Not only the trampoline great for fitness , posture & rebound therapy they are also great for developing proprioception .

CARVED BOULDER

• Carved from a glacial boulder found in the woodland place for children to curt up inside for same autistic children the desire to get snug in tight spaces is anything about claustrophobic .

• in fact it can Be desirable .even soothing .there are number of places in the garden where this desire could be achieved .the hollow log. The carved boulder seat or tree nest

DESIGN CONSIDERATIONS & ANALYSIS OF QUESTIONNAIRE REDUCED VISUAL QUIET & PRIVATE DATA COLLECTION: ANALYSIS
Specify your role in development center
Is garden area or play area in Staff member Doctor Indoor Outdoor easy way finding for spaces (clear planning & pathways ) complex way finding different building blocks inter connected with pathways / corridors complex connections Bright white light Lot of natural light no Yes Farms and roads Natural view Indoor Outdoor no yes no Yes Buildings 40 % 60 % 20 % 60 % 40 % 100 % 100 % 100 % 100 % 60 % 40 % 20 % 20 % 40 % 20 % 80 % PREETI BHATUSE _ A05 _ INDIRA COLLEGE OF ARCHITECTURE & DESIGN | ADP : ANTRA : DEVELOPMENT CENTER FOR AUTISM THROUGH NEURO ARCHITECTURE SIGN & STAMP

Staff room standards

Toilet standards

Auditorium standards

Auditorium standards

H Y P O H Y P E R D E S I G N C O N S I D E R A T I O N S H Y P O H Y P E R A C O U S T C S USUALLY HAVE TROUBLE IN CHANGING DIRECTION MOVE A LOT FOR LONG TIME NO NEED OF ACOSUTICS THEY SEARCH FOR SOUND AND CREATE SOUNDS NEED OF ACOSUTICS THEY HAVE TROUBLE WITH LOUD NOISES THEY USUALLY COVER EARS S P A T A L S E Q U E N C I N G ESCAPE SPACES COMPARTMENTALIZATION HYPO KIDS NEED ESCAPE SPACES WHEN FEEL OVERWELMED HYPER KIDS NEED ESCAPE SPACES WHEN FEEL DEPRESSED STIMULATES THEIR ACTIONS ORIENTS & ADJUST THEM TOWARDS SPACE TRANSITIONS REQUIRED FOR CONECTING HIGH & LOW STIMULUS ZONE REQUIRED FOR CONECTING HIGH & LOW STIMULUS ZONE SENSORY ZONING LOW CONSATRATION HIGH CONSATRATION HIGH LEVEL OF SAFETY REQUIRED HIGH LEVEL OF SAFETY REQUIRED SAFETY LIGHT THEY ARE ATTRACTED TO LIGHT THEY MIGHT STARE AT SUN & ARTIFICIAL LIGHT THEY LOOK DOWN MOST OF THE TIME AND FRIGHTNED BY HARSH SUNLIGHT WAYFINDING MATERIAL THEY NEED WAYFINDING IN HYPO SPACES USING NATURAL MATERIALS & TEXTURES D E S I G N S T A N D A R D S Class , Crafts room & library standards Class room data
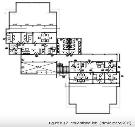
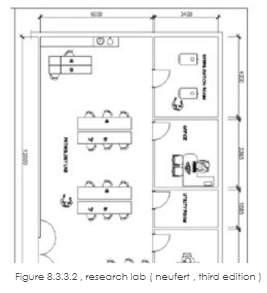
Research lab THEY NEED WAYFINDING IN HYPO SPACES USING NATURAL MATERIALS & TEXTURES PREETI BHATUSE _ A05 _ INDIRA COLLEGE OF ARCHITECTURE & DESIGN | ADP : ANTRA : DEVELOPMENT CENTER FOR AUTISM THROUGH NEURO ARCHITECTURE SIGN & STAMP

PRADESH–0 NO. NO AUTISM CENTER

HIGH SDI STATES & NUMBER OF AUTSIM CENTERS ARE LISTED BELOW-

ARUNACHAL PRADESH HAS NO AUTISM CENTERS AND IT COMES IN MIDDLE SDI STAES WITH 54 ( 54 IS DAILY RATE PER 100000 POPULATION 95% UNCERTINITY INTERVAL) SO ARUNACHAL PRADESH IS IDEAL SITE FOR DESIGNING AUTISM CENTER EXISTING SITE

• Township for autism people. Existing conceptual level project by India autism center

• ( waiting for government approval) of 55 acres township for ocupacy 600 ppl

• in dp plan - educational zone

• Access through main DH Primary road .Easy connection to other cities

• site shape is challenging

• Internal roads are existing in site

• Tropical wet –dry climate in southern side & humid subtropical in north .

WEST BENGAL –THIS STATE COMES IN MIDDLE SDI STATEOF INDIA BUT THIS CAN BE CHOSEN AS SITE BECAUSE PROPSED SITE FOR AUTISM CENTER IAC IS THERE WHCH IS 55 ACRE TOWNSHIP WHICH IS APRROVED BY GOVERNMENT OF WEST BENGAL SO I CAN USE THIS SITE FOR BUIDLING AUTISM CENTER .

• Site is near river . Good view of river

• Natural surrounding

• Site is in outskirts of city

• Good air quality

• Connected to main road so good connection with other cities

• Site area = 28000 sq.mt

• site have good views in surrounding but detached from community

• connected to bridge ( traffic noise can be problem )

• climate

• Site is near river . Good view of river

• Natural surrounding

• Site is in outskirts of city

• Good air quality

• Connected to community as there is main Saturday market of itanagr

• Connected to road from 2 sides of site.

• No view obstructions & buildings in surrounding

• Site area = 28000 sq.mt

W

• Existing trees on all four sides of site this can be benefit for buffer from highway & air circulation but can block view of structure

• climate

KOLKATTA WEST BENGAL ?

BIHAR – 4 no.
UTTAR PRADESH –2 no. RAJASTHAN –2 no.
– 3
–2
& DELHI –5
ARUNACHAL
MEGHALAYA–3 no. JAMMU & KASHMIR –3 no. HARYANA
no . NAGALAND
no. UTS
no.
S I T E C O M P A R I S O N
PRO CON DP PLAN
LOCATION
(CDC)
88 children are diagnosed with some level of autism, (one in 54 boys) a sharp jump from the previous numbers released in late 2009, and frighteningly distant rate from one in 10,000 cases seen in the 1980s The World Health Organisation data one in 160 individuals has autism globally and one in 68 are diagnosed with ASD in India In West Bengal nearly 15 lakh are affected Source: https://www.statista.com/statistics/1127172/india-autism-spectrum-disorders-dalys-bystate-and-sdi Urban zone Outskirts of city Not Semi –arid climate Good air quality Access through main road Appropriate site shape natural surroundings Good view Public / semipublic zone Easy Connection To other cities Non –congested zone Connected to community
SITE SELECTION CRITERIA S I T E S E L E C T I O N C R I T E R I A :WHY KOLKATTA ? S E L E C T E D S I T E PREETI BHATUSE _ A05 _ INDIRA COLLEGE OF ARCHITECTURE & DESIGN | ADP : ANTRA : DEVELOPMENT CENTER FOR AUTISM THROUGH NEURO ARCHITECTURE SIGN & STAMP
HY
Centers for Disease Control & Prevention
estimates approximately 1 in every
WHY ARUNACHAL PRDESH ?

• DEVELOPMENT PLAN OF KOLKATTA RAJHANT

• S.W.O.T ANALYSIS

• SELECTED SITE & SITE JUSTIFICATION

A Key location between urbanized regions with already proposed autism township project of 55 acres supported by west Bengal government

Major road passes besides the site which may have noisy impact to some area of the site

• CLIMATIC ANALYSIS

Location has the potential to set up as an example for autism living area within an urban set – up possible . This provides an opportunity to set more similar projects that stands among the society

Internal roads going through the site which can impact connectivity in planning

Challenging site shape

• SITE LOCATION

• NEAREST SERVICES & FACILITIES

• H – HOSPITALS

• P- POLICE STATIONS

• B BUS STOPS

• ABOUT PRPOSED PROJECT :IAC

• Site area :

Tropical wetKolkata has a Tropical wet-and-dry climate (Köppen climate classification Aw). The annual mean temperature is 26 8 °C (80 °F); monthly mean temperatures range from 15 °C to 30 °C (59 °F to 86 °F)

55 acres proposed site for autism township by india autism center

• About project :

The india autism center ( IAC) – It is a non profit organization under section of 8 of companies act ,2013 – is expected to come over 52 acre plot at sirakole in south 24 parganas in next five years

• Owner & investors :

It is a joint effort by ratnabai group & the state – suresh somani is joint managing director of ratnabli investment pvt ltd , said the project ,announced during the Bengal global business summit ( BGBS) earlier this year , will also have provisions for training teachers , who would be dealing with those suffering from the disorder

• Government support & approval :

West benagls finance minister amit mitra , during ( BGBS )Meet in January , had highly appreciated the initiative and promised all support to it .

• International tie-ups :

“There will be international tie ups and the institute will be absolutely different from any of the centers that we have now the township , which is expected to come up by 2023 will ensure holistic development of those suffering from autism” he added .

SITE STUDY
S I T E S E L E C T I O N & S I T E S T U D Y
Site area - 55 acres Proposed site for IAC
S W O T
• Accessibility- NH12, Shirakol, Rajarhat road Rajarhant madrasar thesh internal road
Location - DH Road, Shirakol, Rajarhat, West Bengal
B B B B B B B B B B B B B B H H H H H H H H H H H H H H P P P
8KM 10KM 1.5KM 20KM
Rainfall
Kolkata
Kolkata Average Wind Speed in Kolkata Time Spent in Various Temperature Bands and the Growing Season
Shortwave Solar Energy Daily
Precipitation
Kolkata
direction
Kolkata PROPOSED SITE PREETI BHATUSE _ A05 _ INDIRA COLLEGE OF ARCHITECTURE & DESIGN | ADP : ANTRA : DEVELOPMENT CENTER FOR AUTISM THROUGH NEURO ARCHITECTURE SIGN & STAMP
Temperature Average Monthly
in
Humidity Comfort Levels in
Average Daily Incident
Chance of
in
Wind
in

Geology. Indo-Gangetic Plain, the soil and water are predominantly alluvial in origin. Kolkata is located over the "Bengal basin", a pericratonic tertiary basin

• ROAD NETWORK & SITE SURROUNDING VIEWS

• SITE SLOPE

• SUN STUDY

Hours of Daylight and Twilight in Kolkata

• TREES IDENTIFIED ON SITE

The date palm grows about 23 metres (75 feet) tall Its stem, strongly marked with the pruned stubs of old leaf bases, terminates in a crown of graceful, shining, pinnate leaves about 5 meters (16 feet) long Floral spikes branch from the axils of leaves that emerged the previous year

The palmyra palm is a large tree up to 30m high and the trunk may have a circumference of 1.7m at the base. There may be 25-40 fresh leaves They are leathery, gray green, fan-shaped, 1-3 m wide, folded along the midrib; are divided to the center into 60-80 linearlanceolate, 0.6-1.2 m long, marginally spiny segments

SOIL
SITE ANALYSIS
Internal roads
Main road
Kolkata
Sunrise & Sunset with Twilight in
major contours – flat land considered A R E A C A L C U L A T I O N
20,000 sq.mt
5 acres
of 55
Wind direction No
• Selected Site area :
which is
out
acre plot • FAR : 2
Permissible open space 60 %
Built up area = 7500 sq.mt
Total capacity = 150 children day school ( non residential ) T O I L E T C A L C U L A T I O N • 1 W.C Per 40 boys ( non residential ) • 1 W C per 25 girls ( non residential ) • Total capacity = 150 students 75 boys 75 girls • boys = 2 w.c . • Girls =3 w.c • Urinals – 1 Per 25 person • Wash hand basin - 1 Per 25 person A R E A C A L C U L A T I O N • Educational zone • Capacity considered 150 students • Each classroom 30 students • 5sq mt area per student each classroom = 150 sq mt P A R K I N G • 40 CAR & 20 Bike parking provided for staff of 20 people + visitors parking S T A I R C A S E C A L C U L A T I O N • Fire staircase provided every 22 m S I T E S U R R O U N D I N G S PREETI BHATUSE _ A05 _ INDIRA COLLEGE OF ARCHITECTURE & DESIGN | ADP : ANTRA : DEVELOPMENT CENTER FOR AUTISM THROUGH NEURO ARCHITECTURE SIGN & STAMP
• Permissible ground coverage 40% •

• THE PROPOSED SITE FOR INDIA AUTISM CENTER IN WEST BENGAL IS OF 55 ACRES DIFFERENT PARTS OF THE SITE & ZONING IDEAS COMPARED FOR 5 ACRE DESIGN PROGRAM

S E L E C T E D S I T E O P T I O N S : S I T E S U R R O U N D I N G S & R O A D C O N N E C T I V I T Y
SELECTD SITE: OPTIONS SITE OPTION 3 BECAUSE OF INTERNAL ROAD GOING THROUGH SITE SITE OPTION 2 NO PROPER INTERNAL ROAD TILL SITE SITE OPTION 1 INTERNAL ROAD COONECTIVITY APPROPRIATE SITE SHAPE & AREA REQUIRED S E L E C T E D S I T E NOISE LIGHT DARK EXISTING TREE ROAD L E G E N D S SITE ANALYSIS PREETI BHATUSE _ A05 _ INDIRA COLLEGE OF ARCHITECTURE & DESIGN | ADP : ANTRA : DEVELOPMENT CENTER FOR AUTISM THROUGH NEURO ARCHITECTURE SIGN & STAMP

SQUARE LAYOUT OPTION

YIN YANG CONCEPT + DARK LIGHT

ZONING OPTIONS

FORM DEVELOPMENT

SENSORY GARDEN OPTION SKETHCES

FINAL FORM : COCEPT OF YIN YANG USED FOR SEGREGATION OF HYPO & HYPER CHIDLDREN & SENSORY GARDEN IS USED AS TRANSITION ZONE BETWEEN 2 EDUCATIONAL ZONES

THE YIN YANG CONCEPT IS USED IN COMBINATION WITH DIVIDING BUILDING IN TWO PARTS DARK & LIGHT

SOUTH EXPOSED SIDE IS CONSIDERED ARE LIGHT ARE A& HYPO CHILDREN CLASSROOMS PLACED ON SOUTH SIDE WHILE HYPER CHILDREN CLASSROOMS PLACED ON NORTH

CONCEPT C O N C E P T & F O R M D E V E L O P M E N T
FORM 1 FORM 2
SIDE FORM 3 –FINAL
PREETI BHATUSE _ A05 _ INDIRA COLLEGE OF ARCHITECTURE & DESIGN | ADP : ANTRA : DEVELOPMENT CENTER FOR AUTISM THROUGH NEURO ARCHITECTURE SIGN & STAMP

• 90 DEGREE LOUVERS ARE USED IN COURTYARD TO CONTROL LIGHT & TO CREATE COZY FEEL FOR HYPER CHILDREN IN PASSAGES

• FROM HYPER CHILDREN

CLASSROOM TO HYPER CHILDREN MEDICAL TREATMENT AREA THERE IS LARGE OPEN TO AIR COURTYARD SO TO AVOID DIRECT SUNLIGHT & OPENESS LOUVERS ARE PTOVIDED IN PASSAGES

LANDSCAPE SPACES (PROVIDED FOR HYPO CHILDREN )

DESIGN CONSIDERATIONS

MEDICAL FACILITY BUILDING VIEWS

• EXPOSED BRICK EXPOSED CONCRETE & CONCRETE BLOCKS AREA USED FOR ROOF SHINGLES ARE USED & TRUSS TYPE : HOWE STEEL TRUSS

• RAW NATURAL BUILDING MATERIALS HELPS AUTTISM CHILDREN TO HEAL FASTER

EXPOSED BRICK ROOF STONE SHINGLES HOWE STEEL TRUSS

SMALL MINIATURE OF ROADS FOR UNDERSTADING TRAFFIC RULES

SENSORY ROOM VIEW

• STACK VENTILATION USED AT CONSULTING ROOMS CIURTYARD FOR VENTILATION HYPER & HYPO CHILDREN MEDICAL FACILITY

• STACK VENTILATION (ALSO KNOWN AS STACK EFFECT OR CHIMNEY EFFECT) CREATES AIRFLOW USING THE NATURAL FORCE THAT EMERGES FROM CHANGES IN AIR PRESSURE, TEMPERATURE, AND DENSITY LEVELS BETWEEN CORRESPONDING INTERNAL AND EXTERNAL ENVIRONMENTS

MEDICAL FACILITY BUILDING VIEWS

WAITING –MEDICAL FACILITY

ENTRANCE ADMIN BUILDING

SEMIOPEN ART & CRAFT

ENTRANCE SCHOOL BUILDING

M A T E R I A L S U S E D DESIGN DETAILS C L I M A T I C S T R A T E G I E S
L O U V E R S S T A C K V E N T I L A T I O N
E X P L O D E D V I E W HYPO CHILDREN BLOCK
CHILDREN BLOCK ADMIN BUILDING COUTRTYARD VIEW LUNCH AREA VIEW CAFETERIA VIEW HYDROTHERAPY AREA VIEW MUSIC ROOM LIBRARARY SAND PIT CAFETERIA VIEW GAZEBO & BUNDED HILLS AMPHITHEATER COURTYARD COURTYARD
HYPER
COURTYARD ENTRANCE VIEWS ENTRANCE SCHOOL BUILDING
Hyper
-CLASSROOM
PASSAGES
PASSAGES
PASSAGES VIEW
VIEW
VIEW
PREETI BHATUSE _ A05 _ INDIRA COLLEGE OF ARCHITECTURE & DESIGN | ADP : ANTRA : DEVELOPMENT CENTER FOR AUTISM THROUGH NEURO ARCHITECTURE SIGN & STAMP
Escape spaces

DAYLIGHTINTAKE

LUXLEVEL&DAYLIGHTINTAKECALCULATIONDONE THROUGHVeLUXSOFTWARE

CALCULATIONS

StandardIlluminationLevel=250luxlightlevelissufficientinclassroomwhere studentsspendmostoftheirtimesandfocusonlearning.

AchievedIlluminationLevel=Maximum=438-500luxmorethanexpectedlevel

AchievedIlluminationLevel=Minimum=250-373luxmorethanexpectedlevel

CONCLUSION

Thisconcludesthatthedaylightingstrategyfortheprototypeclassroom designofAutismCenterprojectachievestherequiredtargetilluminance throughouttheyear,andduringallschoolday.Theonlycaseswhenthis nottrueiswhentheskyconditionisovercastandwhenitisraining.

Thismeansthattheelectriclightscanbetunedoffallthetimeexceptpartially whentheskyisovercastortotallyiftheschoolisusedatnight.

LEGENDS

DESCRIPTION

CHANDELEIR

CEILINGPOINTSPASSAGE

CEILINGPOINTSINROOM

SWITCHBOARD

DISTRIBUTIONBOARD

CONNECTIONCABLE

SUPPLYCABLE

LEDSTRIPPEDLIGHT

REFERENCELINES

WALLPOINTS

AC

LEDBULBS(SENSORYROOMS)

POLELIGHT

POLLARDS

ELECTRICALROOM

SUSTANABLEDESGNSTRATEGIES FOCUSLIGHTS

FLOODLIGHTS

Road8mwide Road8mwide 42.7 Consultingroom Classroomhypo Classroomhypo Classroom(hyper) 150sq.mt Classroom(hyper) Escapespaces hypochildren wards 90sq.mt 2.3X2.3M Consultingroom3mx3m 2.6X2.3M Duct Duct 1.2X3M Duct +0.75m toilet 3.42.6m Consultingroom3m3m +0.75m +0OMm -0.6m 20twowheelers-parentsvisitorparking rainwatercollection UP filter -0.6m +00mm +00mm +00mm +00mm sensorygarden serviceentry floorpatternsforwayfinding forteachers forteachers stage musicinstruments +0.15m +0.45m +0.6m +0.6m +0.15m +0.15m +0.15 capacity=40000l +0.75m +0.75m +0.45mm +0.0m +0.75m +0Omm +2.5 +00mm SUPPLYUNIT Electrical AHU Electrical room AHURoom windpavillion+bunedhills SUPPLYUNIT sunkengathering& festivalparade office-1 +00mm Hydrotherapyarea Fins Fins STP 0.0mm Electricalroom UP UP 7.26m 7.26m 7.26m 7.26m security +0.75m DN Escapespaces +00mm -1.2m +750mm +750mm +750mm +0.0mm +600 Courtyard +300mm +300mm +450mm +600mm Toilet Map&signages dining area 35sq.mt Toiletfemale 35sq.mt Toiletmale staffroom staffroom coupon counter Courtyard cookingarea servingcounter washingarea pantry +600 +0.45m +750mm Instrument store toilet pantry Cafeteria hyper&hypochildren hypochildren hyperchildren hyperchildren lowerlevelseating carvedboulders groundleveltrampoline semiopenluncharea sandpit (understandingtrafficrules) smallsetupofhighway mounts outdoorseating landscapefeaturewall entrytomusicgarden Kitchen semi-openluncharea Classroom(hyper Art&craftroom 150sq.mt Waste management& segregation Firetank UGTank watertankcapacity =27000 Services&servicetruckentries loadingunloadingarea 40cars&-parentsvisitorparking 150sq.mt 69 99 Treatmentroom 90sq.mt Treatmentroom wards art\Craftroom 150sq.mt musicroom Openclassroom Escapespaces Escapespaces Escapespaces Escapespaces Escapespaces EscapeSpaces 90sq.mt 35sq.mt 35sq.mt Toiletmale Toiletfemale UP 35sq.mt 35sq.mt 100sq.mt 150sq.mt 90sq.mt 150sq.mt 150sq.mt 150sq.mt 150sq.mt 120sq.mt library Toiletmale 90sq.mt Toiletfemale 90sq.mt 150sq.mt Escapespaces Escapespaces teachers room Principles cabin playarea Toiletmale Toiletfemale Ø6.5400 sensoryroom Hydrotherapyarea Classroomhypo UP vehicularentry pedestrianentry amphitheater100capacity sensorygarden manager hr office-1 office-1 office-1 7.26m office-1 secretary room AHURoom information center 9.3x16 meetingroom 10x16 seminarhall 6.2x9m recriutment center 69 Toiletmale Toiletfemale x14 conferenceroom2 9x14m conferenceroom UP ELECTRICAL ROOM 6.5M 5.0000 Buildingdetailed&sitelevelElectricalLayout CP CP CP CP CP WP WP CP CP CP CP CP CP CP SYMBOL
CP CP
..\..\..\Downloads\2373b92860eb8769d74cfaab3f059262--north-arrow-custom-tattoo.jpg

CALCULATIONS

OVERHEADWATERTANKCAPACITY

LXBXH=CAPACITYINLITERS

2.8X1.4X1.2=4700LPERTANK TOTALNUMBEROFTANKS=5

UNDERGROUNDTANKCAPACITY= 200PEOPLEPERPERSON135L 200X135L=27000L

FIRETANKCAPACITY=27000LX1.5 =40000L

FIREHYDRANTS

MODERATEHAZARD(GRG-2)WHERE THESINGLEHYDRANTISUSE,ITSHOULD BEINSTALLEDATEVERY45MAPART.

LEGENDS

SPRINKLER3000MMDIA.

FIREALARMSYSTEM

C-CDISTANCE21'=9000MM

HEATDETECTORS

C-CDISTANCE21'=9000MM

TYPEABC FIREEXTINGUISHERS

WETRISERS

FIRESTAIRCASEWALL

PIPE1DIA150MM

PIPE2DIA75MM

PIPE3DIA50MM

FIREESCAPEROAD

FIREHYDRANTS

amphitheater100capacity

Road8mwide 2.7 Consultingroom Classroomhypo Classroomhypo Classroom(hyper 150sq.mt Classroom(hyper) Escapespaces hypochildren wards 90sq.mt Consultingroom3mx3m 2.6X 5.1X 1X2.3M Duct Duct Duct +0.75m toilet 3.42.6m Consultingroom3m3m +0.75m +0OMm -0.6m 20twowheelers-parentsvisitorparking rainwatercollection UP filter -0.6m +00mm +00mm +00mm +00mm sensorygarden serviceentry floorpatternsforwayfinding forteachers forteachers stage musicinstruments +0.15 +0.45 +0.6m +0.6m +0.15 +0.15 +0.15m capacity=40000l +0.75m +0.75m +0.45mm +0.0m +0.75m +0Omm +2.5m +00mm SUPPLYUNIT Electrical AHU Electrical room AHURoom windpavillion+bunedhills SUPPLYUNIT sunkengathering& festivalparade office-1 69m +00mm Hydrotherapyarea Fins Fins STP 0.0mm Electricalroom UP UP 7.26m 7.26m 7.26m 7.26m security +0.75m DN Escapespaces +00mm -1.2m +750mm +750mm +750mm +0.0mm +600 Courtyard +300mm +300mm +450mm +600mm Toilet Map&signages dining area 35sq.mt Toiletfemale 35sq.mt Toiletmale staffroom staffroom coupon counter Courtyard cookingarea servingcounter washingarea pantry +600 +0.45 +750mm Instrument store toilet pantry Cafeteria hyperhypochildren hypochildren hyperchildren hyperchildren lowerlevelseating carvedboulders groundleveltrampoline semiopenluncharea sandpit (understandingtrafficrules) smallsetupofhighway mounts outdoorseating landscapefeaturewall entrytomusicgarden Kitchen semi-openluncharea Classroom(hyper) Art&craftroom 150sq.mt Waste management& segregation Firetank UGTank watertankcapacity =27000 Services&servicetruckentries loadingunloadingarea 40cars&-parentsvisitorparking 150sq.mt 6 m Treatmentroom 90sq.mt Treatmentroom wards art\Craftroom-1 150sq.mt musicroom Openclassroom Escapespaces Escapespaces Escapespaces Escapespaces Escapespaces EscapeSpaces 90sq.mt 35sq.mt 35sq.mt 0.8 Toiletmale Toiletfemale UP 35sq.mt 35sq.mt 100sq.mt 150sq.mt 90sq.mt 150sq.mt 150sq.mt 150sq.mt 150sq.mt 120sq.mt library Toiletmale 90sq.mt Toiletfemale 90sq.mt 150sq.mt Escapespaces Escapespaces teachers room Principles cabin playarea Toiletmale Toiletfemale Ø6.5400 sensoryroom Hydrotherapyarea Classroomhypo UP vehicularentry pedestrianentry
Road8mwide
sensorygarden manager office-1 office office-1 7.26m office-1 secretary room AHURoom information center 9.3x16m meetingroom 10x16m seminarhall 6.2x9 recriutment center 6 57m Toiletmale Toiletfemale 9x14m conferenceroom x14 conferenceroom UP ELECTRICAL ROOM
DESCRIPTION
SYMBOL
FireLayout
Road8mwide Road8mwide 42.7m Classroomhypo Classroom(hyper) 150sq.mt Classroom(hyper) +0.75m +0.75m +0OMm -0.6m 20twowheelers-parentsvisitorparking rainwatercollection filter +00mm +00mm +00mm +00mm serviceentry stage musicinstruments +0.15 +0.6m +0.6m +0.15m +0.15m +0.15 capacity=40000l +0.75m +0.75m +0.45mm +0.0m +0.75m +0Omm +2.5 +00mm windpavillion+bunedhills SUPPLYUNIT sunkengathering& festivalparade +00mm Hydrotherapyarea STP 0.0mm Electricalroom UP UP 7.26m 7.26m security +0.75m Escapespaces +00mm -1.2m +0.0mm Toilet Map&signages dining area staffroom staffroom coupon counter cookingarea servingcounter washingarea +750mm Instrument store lowerlevelseating carvedboulders groundleveltrampoline semiopenluncharea sandpit mounts outdoorseating landscapefeaturewall entrytomusicgarden Kitchen Waste management& segregation Firetank UGTank watertankcapacity =27000 Services&servicetruckentries loadingunloadingarea 40cars&-parentsvisitorparking 150sq.mt 150sq.mt musicroom Escapespaces Escapespaces EscapeSpaces 90sq.mt 150sq.mt 150sq.mt Escapespaces Escapespaces playarea UP vehicularentry pedestrianentry amphitheater100capacity office-1 office-1 7.26m office-1 secretary room information center 6.2x9m recriutment center 69m 57 Toiletmale Toiletfemale 9x14m conferenceroom UP ELECTRICAL ROOM HVAClayout SYMBOL DESCRIPTION DIFFUSER3-WAY FAN SUPPLYAIRDUCT450X600MM SUPPLYAIRDIRECTION LEGENDS SUPPLYAIRDUCT300X600MM RETURNAIRDUCT450X600MM RETURNAIRDUCT300X600MM HVACDEATILS 1 FAN RETURNAIRDUCT DETAILOFCONNECTIONBETWEENSUPPLYAIRDUCTANDDIFFUSER(PLAN) DIFFUSER3-WAY600X600MM CHAMFEROF45DEGREEANGLE SCALE-1:120 450 300 3-WAYDIFFUSER600X600MM SECTIONTHROUGHCEILING RIGIDDUCT RETURNAIRVENT SUSPENDEDCEILING 600 600 1 FAN350X350MM 350 350 FLEXIBLEDUCT 1 1 AHUROOM

ROOFSURFACEAREAS

EDUCATIONALBUILDINGE1=900SQ.MT

EDUCATIONALBUILDINGE2=900SQ.MT

MEDICALFACILITYBUILDINGM1=500SQ.MT

MEDICALFACILITYBUILDINGM2=500SQ.MT

ADMINBUILDINGA1=1583SQ.MT

TOTAL=4384SQ.MT(ROOFSURFACEAREA)

1.656MTX4384SQUAREMT =7259.9LTANKCAPACITY(ROOFWATER)

windpavillion+bunedhills

GROUNDWATERCOLLECTION

RAINWATERTANKCAPACITY= RAINFALLINMMXPAVEDSURFACEAREAMSQUARE

1.656MTX10,138SQUAREMT =16,788.528LRAINWATERTANKCAPACITY(SURFACE WATER)

smallsetupofhighway

(understandingtrafficrules)

TOTALRAINWATERTANKCAPACITY= RAINWATERTANKCAPACITY SURFACEWATER+ROOFWATER)

LEGENDS

PIPELINE(ROOFWATER COLLECTION)

SurfacewaterLayout(StormwaterManagement)&rainwaterharvesting GUTTER PIPELINE(SITESURFACE WATERCOLLECTION) RAINWATERPIPE(RP) D.I RAINWATERCOLLECTION DRAININLET CATCHBASIN RAINWATERFILTER AREADRAIN A.D A.D A.D A.D A.D A.D A.D A.D A.D A.D A.D A.D A.D A.D CB CB CB CB CB CB CB A.D A.D A.D CB CB CB CB A.D CB A.D A.D A.D CB CB TO STORAGE
REUSE RAINWATERCOLLECTION CALCULATION RAINWATERTANKCAPACITY= ANNUALRAINFALLINMMXROOFSURFACEAREASQ.MT Road8mwide Road8mwide 2.7 Consultingroom Classroomhypo Classroomhypo Classroom(hyper) 150sq.mt Classroom(hyper Escapespaces hypochildren wards 90sq.mt Consultingroom3mx3m 2.6X2.3M 5.1X5M 1X2.3M Duct Duct Duct +0.75m toilet 3.42.6m Consultingroom3m3m +0.75m +0OMm -0.6m 20twowheelers-parentsvisitorparking rainwatercollection UP filter -0.6m +00mm +00mm +00mm +00mm sensorygarden serviceentry floorpatternsforwayfinding forteachers forteachers stage musicinstruments +0.15m +0.45 +0.6m +0.6m +0.15 +0.15 +0.15m capacity=40000l +0.75m +0.75m +0.45mm +0.0m +0.75m +0Omm +2.5m +00mm SUPPLYUNIT Electrical AHU Electrical room AHURoom
FOR
SUPPLYUNIT sunkengathering& festivalparade office-1 6 m +00mm Hydrotherapyarea Fins Fins STP 0.0mm Electricalroom UP UP 7.26m 7.26m 7.26m 7.26m security +0.75m DN Escapespaces +00mm -1.2m +750mm +750mm +750mm +0.0mm +600 Courtyard +300mm +300mm +450mm +600mm Toilet Map&signages dining area 35sq.mt Toiletfemale 35sq.mt Toiletmale staffroom staffroom coupon counter Courtyard cookingarea servingcounter washingarea pantry +600 +0.45m +750mm Instrument store toilet pantry Cafeteria hyper&hypochildren hypochildren hyperchildren hyperchildren lowerlevelseating carvedboulders groundleveltrampoline semiopenluncharea sandpit
mounts outdoorseating landscapefeaturewall entrytomusicgarden Kitchen semi-openluncharea Classroom(hyper Art&craftroom 150sq.mt Waste management& segregation Firetank UGTank watertankcapacity =27000 Services&servicetruckentries loadingunloadingarea 40cars&-parentsvisitorparking 150sq.mt Treatmentroom 90sq.mt Treatmentroom wards art\Craftroom-1 150sq.mt musicroom Openclassroom Escapespaces Escapespaces Escapespaces Escapespaces Escapespaces EscapeSpaces 90sq.mt 35sq.mt 35sq.mt Toiletmale Toiletfemale UP 35sq.mt 35sq.mt 100sq.mt 150sq.mt 90sq.mt 150sq.mt 150sq.mt 150sq.mt 150sq.mt 120sq.mt library Toiletmale 90sq.mt Toiletfemale 90sq.mt 150sq.mt Escapespaces Escapespaces teachers room Principles cabin playarea Toiletmale Toiletfemale Ø6.5400 sensoryroom Hydrotherapyarea Classroomhypo UP vehicularentry pedestrianentry amphitheater100capacity sensorygarden manager hr office-1 office-1 office-1 7.26m office secretary room AHURoom information center 9.3x16m meetingroom 10x16 seminarhall 6.2x9 recriutment center 5 Toiletmale Toiletfemale 9x14 conferenceroom2 x14 conferenceroom UP ELECTRICAL ROOM ROOFSURFACEWATERCOLLECTION
=(16,788.5+7259.9) =24,047L
Road8mwide 2.7 Consultingroom Classroomhypo Classroomhypo Classroom(hyper) 150sq.mt Classroom(hyper Escapespaces hypochildren wards 90sq.mt 2.3M Consultingroom3mx3m 2.6X 5.1X5M 1X2.3M Duct Duct Duct +0.75m toilet 3.42.6m Consultingroom3m3m +0.75m +0OMm -0.6m 20twowheelers-parentsvisitorparking rainwatercollection UP filter -0.6m +00mm +00mm +00mm +00mm sensorygarden serviceentry floorpatternsforwayfinding forteachers forteachers stage musicinstruments +0.15m +0.45 +0.6m +0.6m +0.15 +0.15 +0.15m capacity=40000l +0.75m +0.75m +0.45mm +0.0m +0.75m +0Omm +2.5m +00mm SUPPLYUNIT Electrical AHU Electrical room AHURoom windpavillion+bunedhills SUPPLYUNIT sunkengathering& festivalparade office-1 6 m +00mm Hydrotherapyarea Fins Fins STP 0.0mm Electricalroom UP UP 7.26m 7.26m 7.26m 7.26m security +0.75m DN Escapespaces +00mm -1.2m +750mm +750mm +750mm +0.0mm +600 Courtyard +300mm +300mm +450mm +600mm Toilet Map&signages dining area 35sq.mt Toiletfemale 35sq.mt Toiletmale staffroom staffroom coupon counter Courtyard cookingarea servingcounter washingarea pantry +600 +0.45m +750mm Instrument store toilet pantry Cafeteria hyperhypochildren hypochildren hyperchildren hyperchildren lowerlevelseating carvedboulders groundleveltrampoline semiopenluncharea sandpit (understandingtrafficrules) smallsetupofhighway mounts outdoorseating landscapefeaturewall entrytomusicgarden Kitchen semi-openluncharea Classroom(hyper Art&craftroom 150sq.mt Waste management& segregation Firetank UGTank watertankcapacity =27000 Services&servicetruckentries loadingunloadingarea 40cars&-parentsvisitorparking 150sq.mt Treatmentroom 90sq.mt Treatmentroom wards art\Craftroom-1 150sq.mt musicroom Openclassroom Escapespaces Escapespaces Escapespaces Escapespaces Escapespaces EscapeSpaces 90sq.mt 35sq.mt 35sq.mt Toiletmale Toiletfemale UP 35sq.mt 35sq.mt 100sq.mt 150sq.mt 90sq.mt 150sq.mt 150sq.mt 150sq.mt 150sq.mt 120sq.mt library Toiletmale 90sq.mt Toiletfemale 90sq.mt 150sq.mt Escapespaces Escapespaces teachers room Principles cabin playarea Toiletmale Toiletfemale Ø6.5400 sensoryroom Hydrotherapyarea Classroomhypo UP vehicularentry pedestrianentry
sensorygarden manager hr office-1 office-1 office-1 7.26m office secretary room AHURoom information center 9.3x16m meetingroom 10x16 seminarhall 6.2x9 recriutment center 5 Toiletmale Toiletfemale 9x14 conferenceroom2 x14 conferenceroom UP ELECTRICAL ROOM Plumbinglayout-SOIL,WasteWater&DomesticWatersupply NAHANITRAP SOILWATERPIPE(SP) WASTEWATERPIPE(WP) DOWNTAKEFROMO.H.T(DP) HOTWATERPIPE(HDP) NT DRINKINGWATERPIPE(DWP) RAINWATERPIPE(RP) I.C.2 I.C.8 I.C.8 I.C.8 I.C.8 I.C.8 I.C.8 I.C.8 I.C.8 I.C.8 I.C.8 I.C.8 I.C.8 I.C.8 I.C.8 I.C.8 I.C.8 I.C.8 I.C.8 I.C.8 I.C.8 I.C.8 I.C.2 I.C.2 I.C.2 I.C.2 I.C.2 I.C.2 I.C.2 I.C.2 I.C.2 I.C.2 I.C.2 I.C.2 I.C.2 I.C.8 I.C.2 I.C.8 I.C.2 I.C.8 I.C.2 I.C.8 OVERHEADWATERTANK INSPECTIONCHAMBER(WASTE) INSPECTIONCHAMBER(SOIL) UNDERGROUNDWATERTANK FIRETANK 1.4209 OVERHEADWATERTANKCAPACITY LXBXH=CAPACITYINLITERS 2.8X1.4X1.2=4700LPERTANK TOTALNUMBEROFTANKS=5 UNDERGROUNDTANKCAPACITY= 200PEOPLEPERPERSON135L 200X135L=27000L FIRETANKCAPACITY=27000LX1.5 =40000L CALCULATIONS
Road8mwide
amphitheater100capacity
LEGENDS

amphitheater100capacity

Road8mwide 2.7 Consultingroom Classroomhypo Classroomhypo Classroom(hyper) 150sq.mt Classroom(hyper Escapespaces hypochildren wards 90sq.mt Consultingroom3mx3m 2.6X 5.1X5M 1X2.3M Duct Duct Duct +0.75m toilet 3.42.6m Consultingroom3m3m +0.75m +0OMm -0.6m 20twowheelers-parentsvisitorparking rainwatercollection UP filter -0.6m +00mm +00mm +00mm +00mm sensorygarden serviceentry floorpatternsforwayfinding forteachers forteachers stage musicinstruments +0.15m +0.45 +0.6m +0.6m +0.15 +0.15 +0.15m capacity=40000l +0.75m +0.75m +0.45mm +0.0m +0.75m +0Omm +2.5m +00mm SUPPLYUNIT Electrical AHU Electrical room AHURoom windpavillion+bunedhills SUPPLYUNIT sunkengathering& festivalparade office-1 6 m +00mm Hydrotherapyarea Fins Fins STP 0.0mm Electricalroom UP UP 7.26m 7.26m 7.26m 7.26m security +0.75m DN Escapespaces +00mm -1.2m +750mm +750mm +750mm +0.0mm +600 Courtyard +300mm +300mm +450mm +600mm Toilet Map&signages dining area 35sq.mt Toiletfemale 35sq.mt Toiletmale staffroom staffroom coupon counter Courtyard cookingarea servingcounter washingarea pantry +600 +0.45m +750mm Instrument store toilet pantry Cafeteria hyperhypochildren hypochildren hyperchildren hyperchildren lowerlevelseating carvedboulders groundleveltrampoline semiopenluncharea sandpit (understandingtrafficrules) smallsetupofhighway mounts outdoorseating landscapefeaturewall entrytomusicgarden Kitchen semi-openluncharea Classroom(hyper Art&craftroom 150sq.mt Firetank UGTank watertankcapacity =27000 Services&servicetruckentries loadingunloadingarea 40cars&-parentsvisitorparking 150sq.mt Treatmentroom 90sq.mt Treatmentroom wards art\Craftroom-1 150sq.mt musicroom Openclassroom Escapespaces Escapespaces Escapespaces Escapespaces Escapespaces EscapeSpaces 90sq.mt 35sq.mt 35sq.mt Toiletmale Toiletfemale UP 35sq.mt 35sq.mt 100sq.mt 150sq.mt 90sq.mt 150sq.mt 150sq.mt 150sq.mt 150sq.mt 120sq.mt library Toiletmale 90sq.mt Toiletfemale 90sq.mt 150sq.mt Escapespaces Escapespaces teachers room Principles cabin playarea Toiletmale Toiletfemale Ø6.5400 sensoryroom Hydrotherapyarea Classroomhypo UP vehicularentry pedestrianentry
Road8mwide
sensorygarden manager hr office-1 office-1 office-1 7.26m office secretary AHURoom information center 9.3x16m meetingroom 10x16 seminarhall 6.2x9 recriutment center 5 Toiletmale Toiletfemale 9x14 conferenceroom2 x14 conferenceroom UP ELECTRICAL ROOM Wastetreatmentlayout&Gassupplylayout WASTECOLLECTIONTRUCKMOMENT WASTETREATMENTAREA GASLINE LEGENDS

Turn static files into dynamic content formats.

Create a flipbook
Issuu converts static files into: digital portfolios, online yearbooks, online catalogs, digital photo albums and more. Sign up and create your flipbook.