Skip to main content

PORTFOLIO

Page 1

Mein Name ist Soulaimane Tahri und ich bin 23 Jahre alt, ich bin in Béni Mellal (Marokko) geboren.

07/02/2000 in FES GEBURTSDATUM UND ORT

Ich habe im Jahr 2018 mein Abitur in der Fachrichtung: Gebäude und öffentliche Arbeiten mit dem schwerpunkt: Rohbauarbeiten abgeschlossen und im Jahr 2020 habe ich mein Hochschuldiplom der Technologie in der Fachrichtung: Bauingenieurwesen absolviert.

STAATSANGEHÖRGKEIT

Marokkanisch

STUDIENGANG

2018 : Abitur in Rohbauarbeiten

2020 : Hochschuldiplom der Technologie in Bauingenieurwesen

Ich hatte schon immer ein großes Interesse an der Architecture und Bauen im Allgemeinen.Meinen Kenntnissen und fähigkeiten Sind 3D und 2D zeichnen, Planung den Projekten, Bauleitung durchführen der messungen.

01 Inhalt 02 03 Projektabschluss
Baustelle
04 Bilder in der Arbeit
Praktikum auf der
Praktikum bei Architekturbüro

Projektname BAU EINER VILLA IN BAND

2020 240 m²

In diesem Projekt "Bau einer Villa in band". In Zusammenarbeit mit einem Ingenieur. Ich habe meherere aufgaben durchgefürt :

Planung der Baustelle. Anlagen der Baustelle. Detailliertes Metermaß und Vormaß. Gutes Lesen der Plane. anwendung der Regeln für Stahlbetonbelastungsnorm.

Ort Datum Projekt
01 FES
Fläche

In dieses Projekt war es meine erste Erfahrung an der Baustelle, hier konnte ich die Realität die Dinge sehen, die ich in der Schule lernte, es war meiner besten E rfahrungen und ich habe viele Dinge profitiert, die mir bei meinem Studiengang geholfen haben. Es war Wunderbare Arbeit mit Ingenieuren und Architekten, die eine große Erfahrung haben.

BAU EINES KELLERS/ ERDGESCHOSS+3
Datum Projekt Fläche FES 2019 238 m² 02
Projektname
Ort

DAS FUNDAMENT

während dieses Praktikums, das ich in der baustelle gemacht habe, ich hatte das glück, weil ich alle wichtigsten Bauphasen des Rohbaus bis zum zweiten Werk besucht habe. also war der Nutzen großartig.

ROHBAU

MAUERWERK

ABDICHTUNG

In diesem Projekt habe ich mehrere Qualitäten erworben : die Vewaltung von Baustellen und personal, Material, und ich habe die verschiedenen Bauphasen vom Fundament bis zur Terasse unterstützt.

03

Projektname BAU EINES KELLERS/ ERDGESCHOSS+6 Etagen

Ort

Datum Projekt Fläche

FES 2021 420 m²

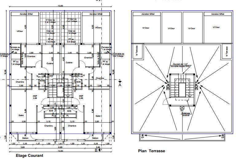
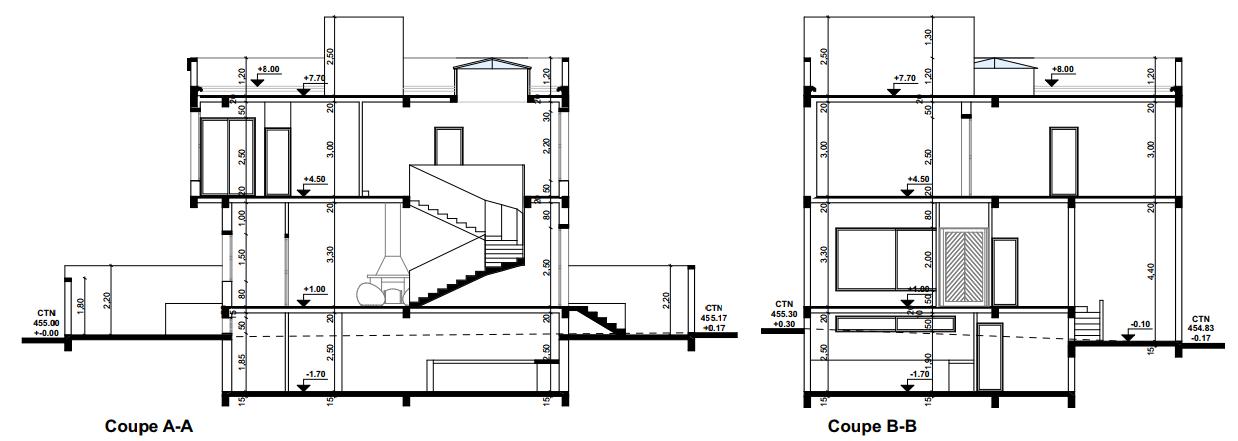
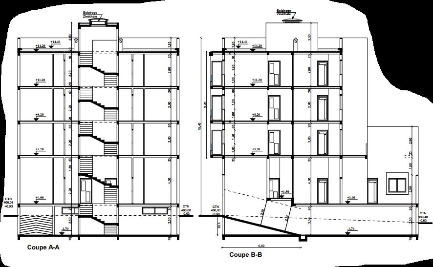
In diesem Praktikum bei Architekturbüro. Ich habe mehrere aufgaben durchgeführt :

-Erstellung der 2D Ausführungspläne.

-Pläne zeichnen mit AutoCAD und ArchiCAD.

-3D-Modelierung auf REVIT UND ARCHICAD.

Bilder in der Arbeit

04

Turn static files into dynamic content formats.

Create a flipbook
PORTFOLIO by Soulaimane Tahri - Issuu