Professional Portfolio by Sophie Stavrakis

Page 1


Portfolio Portfolio Portfolio Portfolio Portfolio Portfolio Portfolio Portfolio

StarthmoreSecondaryCollege HighSchoolDiploma

EXPERIENCE

RMIT | PublicArtCommission‘ConnecttheDots’ LeadArtist ElenbergFraser StudentWorkExperience

I am a recent graduate with a Bachelor of Architecture from RMIT, driven by enthusiasm and ambition to pursue my passion in the architectural field. Throughout my studies, a deepening love for visual design and a curiosity about the interplay between architecture and country have fueled my experimentation as a designer. I have developed a versatile tool set that enables me to produce dynamic, contextually sensitive, and innovative designs. My ambition to continue to grow as a designer has driven me to seek out opportunities for professional development and foster meaningful engagement with emerging advancements within the field.

1:500@A5 MidwayMonolith APath,ABuilding AnEvent.

Salt and the Butterflies

The Golden-Rayed Blue Butterfly is endemic to Victoria, only being found in small parts of Victoria. Despite being on the smaller scale of butterfly species, this species of butterfly display golden bands with purpley-blue on its wings.

This butterfly is one that only feeds on one specific kind of plant, the creeping boobialla [Myoporum Parvifolium].

FirstDayofEvent 12.09.24

On the 12th of September, City Road introduces their 4-year-long event, the rehabilitation of the Golden-Reyed Blye Butterfly species.

FirstSummerofEvent 12.12.24

On the 12th of December, 1 City Road introduces these butterflies into their flight season, the Creeping Boobila has begun to flower. There may be movement in the garden beds soon.

Site: 01 City Road, South bank

Typology: Material Research, Urban Design

This project looked into means of utilising the material makeup of a design to facilitate self-sustaining architecture. The project revolves around a four-year event focused on the rectification of the Golden-Rayed Blue Butterfly species, which is currently listed as endangered among Australian species. Endemic to Victoria, this golden-speckled-winged butterfly is born, lives, eats, and dies on a single specific plant, the Creeping Boobialla, a star-shaped flower that only grows around ephemeral lake river systems in Victoria. The lower banks of the Yarra River form a ‘salt-wedge’ estuary. The connecting point between all these elements—clay, the Yarra, Creeping Boobialla, the Golden-Rayed Blue Butterfly—is salt. Salt blocks that inform the progression of this endangered specie’s rectification event are 3D-printed to inform the gesture of gardening. As the perimeter of the Creeping Boobialla’s garden beds, these water-erosive salt blocks feed the flowering plant and eventually deplete, allowing people to create new garden beds in place of the previous ones. In effect, the garden beds, the people, and the plants all inform the project’s program while bringing life back to these endangered butterflies.

Breaching a Walk Path

Site: Fitzroy Pools

Typology: Public Realm

SitePlan,1:600@A3,SectionalCuts

ElevationA,1:200@A3

GroundLevelFloorPlan,1:50@A3

FirstLevelFloorPlan,1:50@A3

ElevationD,1:200@A3

My final project for ‘Soup’ was an introspective exploration of comfort within the public realm and the different interactions that take place. It examined the transformative combination of a side path turned library, juxtaposing movement with peace and quiet. This collision reflected the human dynamics of Fitzroy Pools—a ‘human soup’ where individuals assert their own authority over the public realm. This project saw an expression of drawings as well as questioning the importance of public infrastructure as an architect.

ElevationB,1:200@A3

ElevationC,1:200@A3

For the Wombats, By the Wombats

Site: Granny’s Flat Reserve

Typology: Responding to Country

Hammer and Tong was my first introduction to understanding Country and wielding it as a tool for design. Being in touch with the land in which a building will exist on - and will eventually fall on - offered valuable perspective on the balance design must strike between serving people and the land. My final project was an amalgamation of my experience with wombats and their behaviour. After camping on-site for a night, I drew insights from wombats and their burrows to inform the design process. As a redesign of a scout hall, the project incorporated elements of wombat-burrowing techniques, such as their tendency to burrow along riverbeds, which requires adaptations to flooding by burrowing deeper. This concept was reflected in the roof design.

Refining my Grasshopper skills, experimented with mapping the site in an alternative context—focusing on the Country of the site itself, shaped by the presence of trees and burrows. In effect, expanding my understanding and approach to architectural design.

NORTHELEVATION SCALE:1:100
NEWFLOORPLAN SCALE:1:100@A2
EASTELEVATION

The Language of Digestible Architecture

Site: Collingwood Yards

Typology: Inclusive Design,

Get To The Point was a studio of experimentation and alternative ways of designing. It has become, for me, a way of bridging the gap between niche and common understandings of interactive architecture. My final project was composed of common words antonyms homonyms onomatopoeia phrases, and jokes that dictated the design of interactive objects. The goal was to create architecture that is digestible to those who encounter it, making it architecture for people of all walks of life Through this process, I found a connection to materialityand color . The experimentation with coding architecture and its intention provided clarity and directionto the driving forces of the object’s program.

Technology 02 / Technology 03

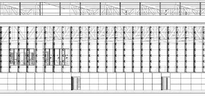
The progression of both Tech 02 and 03 involved the use of increasingly advanced technical drafting software such as Revit and Auto CAD, which enabled the translation of my creative designs into applicable architectural plans, sections, elevations, and details. Additionally, have familiarized myself with the Building Code of Australia, the NCC, and Australian Standards Furthermore, I have gained in-depth knowledge of the architectural understanding of structural, mechanical, and electrical building service requirements.

RMIT Cancer Research Centre

The introduction of the RMIT Cancer Research Centre hypothesized what a cancer-focused branch of RMIT might require. Standing at 10 stories, this project showcased a collaboration of my combined design and technical understanding, cultivated during my Bachelor’s degree. Using programs related to the site’s most accessible features, color became a tool to emphasize both internal and external architectural programming. Internal zones use color to distinguish private and public spaces, with this fluctuation also demonstrated through a color gradient. While a purple facade corresponds to Health Science School of RMIT. Responding directly to the site’s sun exposure, the building’s design provides study spaces, classrooms, and inpatient treatment facilities. The facade of the building mimics DNA sequencing, a process that detects genetic abnormalities in cancer cells. The facade consists of a mix of polycarbonate panels and specifically locally sourced terracotta tiles as a response to the country.

Turn static files into dynamic content formats.

Create a flipbook
Issuu converts static files into: digital portfolios, online yearbooks, online catalogs, digital photo albums and more. Sign up and create your flipbook.