Final Project Working Drawings

Page 1

ELEVATIONB-B

ELEVATIONC-C

ELEVATIOND-D

ELEVATIONE-E

ELEVATIONF-F

ELEVATIONG-G

COVER/TITLE

A1.01 28/04/23
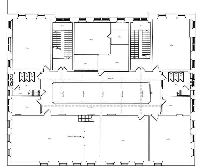
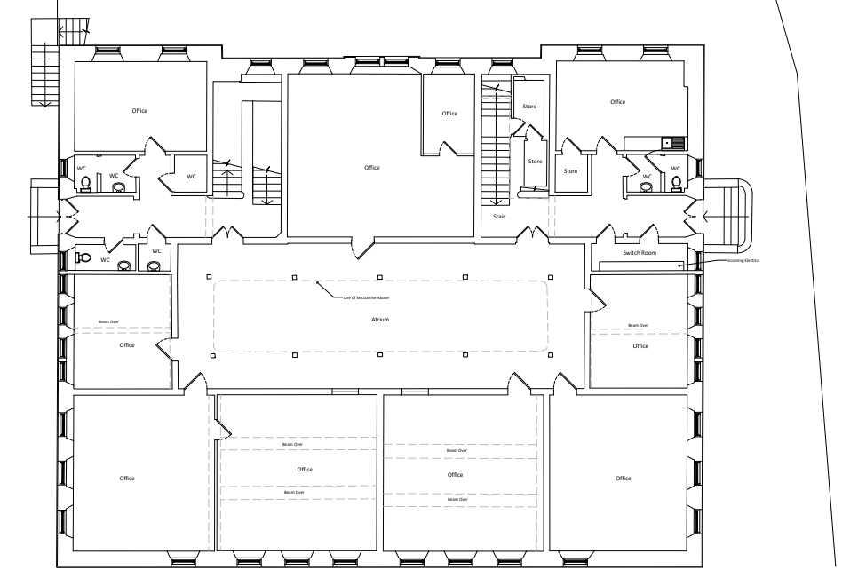
A2.01 28/04/23 PLAN
A3.01 28/04/23 facade building 1 KEY STORE KITCHEN CANTEEN ENTRANCE UTILITIES 1 2 3 4 5 6
A4.01 28/04/23 needs PLAN 2 Plan
A5.01 28/04/23 bedroom-samefor 3
A6.01 28/04/23 3.66 m 5.06 m 3.89 m 3.79 m 3.79 m 3.89 m 7.36 m 34.52 m 2.64 6.49m m A FLOORPLAN
A7.01 28/04/23 34.52 m 7.21 m B FLOORPLAN
A8.01 28/04/23 7.11 m 34.52 m 29.31 m 4.30 m 6.43 m FLOORPLAN C
A9.01 28/04/23 7.21 m 34.52 m PLAN/DIMENSION 1
A10.01 28/04/23 S W N E AA B A10 B C A11 C A11 DD A12 E A13 E A13 F A14 F A14 G A15 G A15 1
A11.01 28/04/23 ELEVATION
SectionCutA-A
A12.01 28/04/23 A10
ELEVATION
SectionCutB-B
A13.01 28/04/23 ELEVATION A11
SectionCutC-C
A14.01 28/04/23 A12
ELEVATION
SectionCutD-D
A15.01 28/04/23 A13 SectionCutE-E ELEVATION
A16.01 28/04/23 A14
ELEVATION
SectionCutF-F
A17.01 28/04/23 ELEVATION A15
SectionCutG-G
A18.01 28/04/23 1 ISOMETRIC
A19.01 28/04/23 50.82m,~28.43m,13.40m ELEVATION A
A20.01 28/04/23 B ELEVATION
A21.01 28/04/23 2.40 m 4.44 m 4.19 m ELEVVATION C
A22.01 28/04/23
D ELEVATION
5.99 m
A23.01 28/04/23 1 2 Insulation building Concrete
DIMENSIONS/
A24.01 28/04/23 1 2 INTERIOR EXTERIOR glass DIMENSIONS/ DETAIL
A25.01 28/04/23 1.50 m 2 1 DIMENSIONS/ white Cross-hatched covers
A26.01 28/04/23 bed Window A01 A DIMENSIONS/ DETAIL
A27.01 28/04/23 1 2 4 3
SECTION/DETAIL
A28.01 28/04/23 1 2 3
A29.01 28/04/23 1 Cafédetailmid-section 2 ELEVATION
A30.01 28/04/23
1 ceiling foundation flooring staircase tread
A31.01 28/04/23 2 3 carved DETAIL
A32.01 28/04/23 1 2 3 4

Turn static files into dynamic content formats.

Create a flipbook
Issuu converts static files into: digital portfolios, online yearbooks, online catalogs, digital photo albums and more. Sign up and create your flipbook.
Final Project Working Drawings by sophia lam - Issuu