Interior Design Portfolio

Page 1

Sophia
Interior Design Portfolio
Sophia Ullman Undergrad

introduction

Contact

sophiaullman@gmail.com or sophia@509.design

Designer’s Statement

I am a graduate of Washington State University with a Bachelor’s in Interior Design and a minor in Business Administration. I am passionate about design and excited to enter into my career as a designer. From a young age helping to design my moms hair salons I discovered a love for design and the ability to express myself creatively in a way that would better the lives of people. I believe interior design is so special in that it looks at life from the human perspective. These designs alter scale, space, colors and textured to change a persons experience of their environment which is so unique to this area of design. I believe the possibilities of design are endless and constantly developing as people and technology grow and change as well. Interior design takes place on a more personal level allowing us as designers to help better peoples lives and design truly beautiful and beneficial spaces. AftergraduationIhopetocontinueworkingintheSpokanearea,continuingto expand my knowledge of interior design. In my free time, I enjoy photography and expanding my fine arts skills which I hope to implement into my design work.

contents 1 5 11 15 The Hamilton Studio Alliance Consulting Development Company Amity Apartments Photography 17 Technical Drawings and Diagrams

The Hamilton Studio

1427 West Dean Street

Spokane, WA

In my sophomore year I worked on an adaptive reuse design of this old school gym was developed through adaptative reuse design in which we utilized a Mixed use design concept with the first floor functioning as an art studio, gallery, and a generational suite. Utilizing the artists’ own work into the overall design of the space. Introducing the artists sense of whimsy and organic design, While the second floor functions as a the main residential space for the artist and their family. This design had some complications due to its nature of adaptive reuse but also in the reuse of the stage arch and catwalk because they were protected by the historic society of Spokane. With the generational suite attached on the first floor for the aging parents as well as the public gallery universal design was introduced into the overall design to allow for aging in place as well as allowing for all vistors in the gallery.

1

1st FLOOR FURNISHED PLAN

overall design

1st FLOOR FURNISHED PLAN

1st FLOOR FURNISHED PLAN

1st FLOOR FURNISHED PLAN

2

hand drawn renderings

Gallery View Rendering Gallery Entrance Rendering Living Area of Second Floor Residence Rendering
3

furniture & fabric design

Organic Geometric Desk

This desk was designed with the building geometry and the artists organic type designs to function in harmony. With a stacked plywood base with altering widths at an ADA level height. Then a standing desk height made of fiberglass. These offset surfaces allow for multiuse functions and a degree of privacy for the receptionist.

Geometric/Organic Fabric

To create this pattern I designed a series of concept renders and representative models based in the Hamilton studio design. The pattern represents aspects of the building itself as well as the artist, and therefore how the two come together as one in the overall design. The rectilinear geometric rectangle form is representative of the building with its strict geometric forms. While the wavy organic form is representative of the artist’s natural fantastical design style.

Front Elevation View

Design Motif
Plan View Design Model
Fabric Sample
4

The Amity Apartments

Catalyst Building

Spokane, WA

Amity Apartments is an environment in which students and professionals can come together as a community and create relationships from which could lead to a future career contacts in the community. Amity is considered a mutual understanding and a harmonious, peaceful relationship the kind that I am hoping will be fostered in this environment. This design will encompass multiple kinds of co-living and public space engaging both residents and the public. This will be a tiered cohousing environment between public, residential and private space. The first floor will house community engagement spaces including an open/farmers market space to allow for community to sell food and goods. It will also include a café and bar which will act as a casual co-living environment engaging, both the public and residents. On the next floor is the community spaces, living space, kitchen and dining room that belong to the co-living proper space to engage the residential community. The rest of the floors are divided into apartment suites for private space of varying size dependent on the requirement of each individuals need.

5

overall

Residential Units Co-Living Space Public/Utility Space Commercial
design 6 1st Floor Floor Plan 2nd Floor Floor Plan 3rd - 5th Floor Floor Plan

commercial space

BAR &CAFE LOUNGE SEATING BACK OF HOUSE
7
Render Seating Area Render
Bar and Cafe
KITCHEN BATHROOM TERRACE STUDY SPACE LIVING DINING community space 8 Kitchen and Living Area Render Dinning Area Render

loft studio suite

500 sq ft

Targeted at students and young professionals in the market area as residents for the community. The palette of materials and furnishings is meant display a sense of comfort and diversity for a private space. Embracing a lofted design to better utilize the space. With a dropped ceiling at the entrance of the apartment utilizes compression and expansion to evoke a better sense of space.

BEDROOM

BATH

KITCHEN

LIVING

9
Entry Render
Kitchen Render

two bedroom suite

850 sq ft

Targeted at students and young professionals in the market area as residents for the community. The palette of materials and furnishings is meant display a sense of comfort and diversity for a private space. Utilizing natural light as a tool throughout the design being carried through in transoms and sidelight windows above doors and the tall walls off the apartment.

ENTRY

LIVING/KITCHEN

BEDROOM BEDROOM

BATH
10
Bar and Cafe Render Bedroom Render

Alliance, Consulting Development Company

SingaporeIn my junior year I worked on a collaborative commercial project. In which my roll involved the overall floor plan design, material and furnishing selections. The concept behind this design is to encapsulate both the culture and environment of Singapore as well as the company culture and their mission in regard to their clients. The design will bring in the old and new of Singapore through use of brightly colored, and patterned textiles, wall coverings and furnishings, paired with sleek metals, glass partitions and biophilia as well as local artworks.

11

overall design

2nd Floor Furnished Floor Plan 3rd Floor Furnished Floor Plan
12
renderings 13 Lobby Render Seating Area Render Office Area Render Kitchenett Render

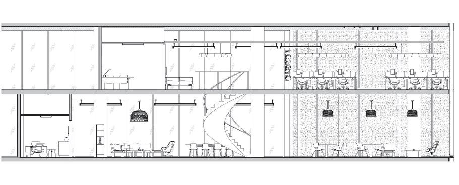
multilevel sections

Section B
Section A
A B
14

1st FLOOR PLAN

EGRESS AND SECURITY DIAGRAM

Secured Door for Staff and Residents

Technical Drawings & Diagrams

2nd FLOOR PLAN

EGRESS AND SECURITY DIAGRAM

Secured Door for Staff and Residents

3rd- 5th FLOOR PLAN

EGRESS AND SECURITY DIAGRAM

Secured Door for Staff and Resi

15

circulation diagrams

Section: A

Pie Cut Axon
Cut Axon
Diagram
Section: B Vertical Circulation

lighting diagrams

2nd Floor Reflected Ceiling Plan 3rd Floor Reflected Ceiling Plan

contextual diagrams

Sun and Wind path: Summer Patterns

Sun Path Diagram: West Elevation

Sun and Wind path: Winter Patterns

16

Photography

I discovered a love for photography during the course of a photography class I took my freshman year of college. Exploring new an interesting places and new perspectives of the world and how I looked at seemingly everyday things. I soon found myself going on long drives or walks to find remote or forgotten places wanting to show the beauty in them. I found a particular interest in some of the abandoned properties I had seen in the area. I also had the unique experience of traveling to Kenya and discovering a love for a nature and wild life photography.

17
18

Turn static files into dynamic content formats.

Create a flipbook
Issuu converts static files into: digital portfolios, online yearbooks, online catalogs, digital photo albums and more. Sign up and create your flipbook.