PORTFOLIO 2018-2025

Page 1


DESIGN

EMERGING URBANISM

YEAR 1,SEM 2 (MASTERS)

ST. MARYS, NSW

Pg 4-13

05. 06. 01. 02.

TOWARDS A RESILIENT URBAN FUTURE

YEAR 2,SEM 3 (MASTERS)

RYDLAMERE,NSW

Pg14-21

CHAWL REDEVLOPMENT

YEAR 4,SEM 7 (UNDERGRAD)

DADAR, MUMBAI

Pg 38-45

PROFESSIONAL WORK

Pg 46-47

TRANSFORMING ST. PETERS

YEAR 1,SEM 1 (MASTERS)

ST. PETERS, NSW

Pg 22-29

07. 04. 03.

URBAN DESIGN

YEAR 4,SEM 8 (UNDERGRAD) DADAR, MUMBAI

Pg 30-37

OTHER WORK

Pg 48-49

EMERGING URBANISM (St. Marys Precinct)

YEAR 1, SEMESTER 2 (group project)

Mentor: Brendan Wells, Dina Ridenour , Tanya Vincent

Site: St. Marys,NSW

Group Members: Abhishek Hegde, Saskia Vernon,Sonya Gupta

St Marys holds strategic importance due to its proximity to the upcoming Western Sydney Aerotropolis, a major economic hub expected to drive significant growth and development in the region. The new metro station and increasing urbanization are set to enhance connectivity and accessibility, making St Marys a critical node in the broader urban network.

The design proposal revitalizes the creek with a central spine, enhancing site connectivity and coherence. A complementary framework supports diverse land uses and sustainability. Key outcomes include preserving and adaptively reusing industrial structures, creating a mixed-use environment with residential, commercial, and recreational programs, and improving accessibility with a hierarchical road network and wider pedestrian walkways. Streetscape improvements address the urban heat island effect, and the master plan includes public plazas, parks, and revitalized creek areas for recreation and social engagement.

SOFTWARES USED: Autocad, Rhinocerous,QGIS,Photoshop,Illustrator

IMG 01: PHYSICAL MODEL

MOVEMENT ANALYSIS

FIG 01:
FIG 02:
FIG 03:
FIG 04: NEW LINK NETWORK & PERMEABILITY
REJUVENATE LITTLE CREEK METRO CONNECTION

CONSTRAINTS

EXISITNG JOBS & INDUSTRY

CAR DOMINANCE

GENTRIFICATION

NORTH-SOUTH CONNECTION

ACTIVE STREET FRONTAGES

PUBLIC DOMAIN

HERITAGE ADAPTATION

CONNECTING WITH COUNTRY

URBAN ACCUPUNCTURE

FIG 01:
FIG 02:
FIG 01:
FIG 03:
FIG 05:
FIG 02:
FIG 04:
FIG 06:
FIG 03:
FIG 04:
URBAN HEAT ISLAND EFFECT

BICYCLE & PEDESTRIAN ACCESSIBILITY

LONGTIDUNAL SECTION

BUILDING RULES

FIG 01:
FIG 02.
FIG 03.
FIG 04.

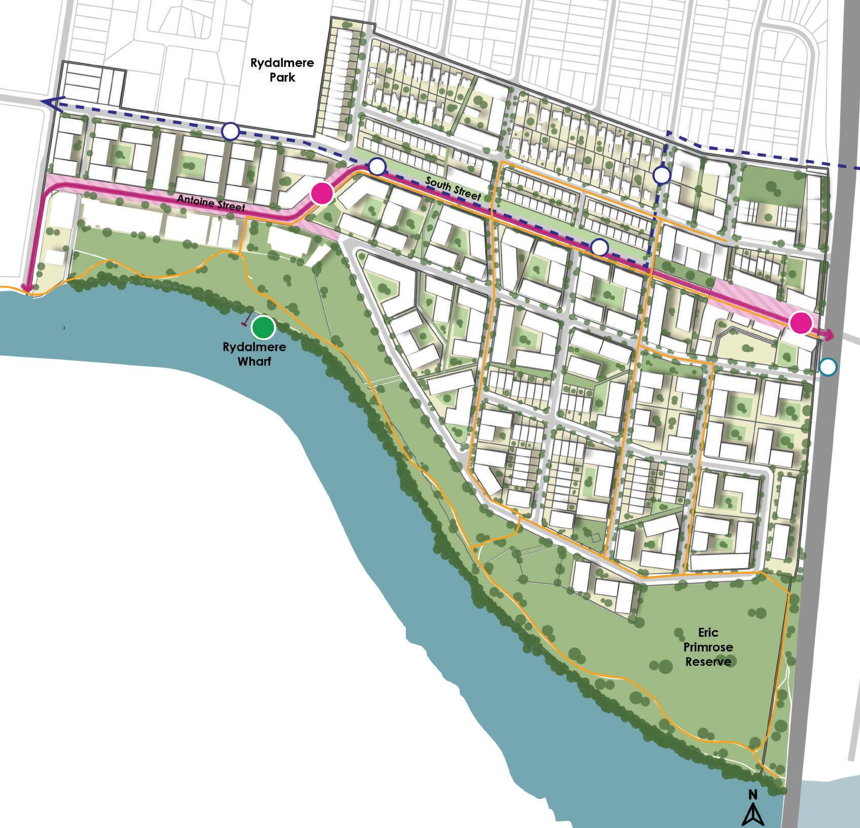
TOWARDS A RESILIENT URBAN FUTURE (Rydalmere,NSW)

YEAR 2, SEMESTER 3 (group project)

Mentor: Dina Ridenour , Tanya Vincent, Brendan Wells,Alice Valliard

Site: Rydalmere,NSW

Group Members: Amy Tseng, Irene Sarah, Abhishek Hegde, Sonya Gupta

Rydalmere, located along the culturally significant Parramatta River, is set for a transformative urban future as part of Sydney’s Central River City. The project envisions an incremental transformation that honors the river’s deep cultural heritage while addressing the pressures of urban growth and environmental sustainability. The master plan focuses on creating a vibrant, resilient neighborhood by embedding the river’s ecological and cultural significance into the design, establishing two new local centers (in the east and the west), enhancing connectivity through light rail integration, and fostering diverse housing typologies. Grounded in urban analysis and ecological restoration, the project aims to balance increased density with sustainable practices, ensuring Rydalmere becomes a thriving community that values Country and supports a healthier river system.

SOFTWARES USED: Autocad, Rhinocerous,QGIS,Photoshop,Illustrator

VIEW (highlighting the two local centres)

ISOMETRIC

4-6 STOREY MIXED-USE BUILDINGS

ROW HOUSES

MIXED-USE BUILDINGS

ADAPTIVE RE-USE

FIG.01
FIG.02
FIG.03
FIG.04
LOCAL CENTRE -1

03. TRANSFORMING ST. PETERS PRECINCT

YEAR 1, SEMESTER 1 (group project)

Mentor: Srishti Sharma, Dr. Ian Woodcock

Site: St. Peters,NSW

Group Members: Disha Chugh, Saskia Vernon,Sonya Gupta

St. Peters Station is one of the mjaor station precincts in the Inner West suburb of Sydney. The vision was to create a vibrant and a connected public realm by uplifting and boosting the identity of the precinct.

The design proposal aims to reinforce the historic identity of St. Peters by revitalising and stregthening through the lenses of walkability, culture and ecology. Additionally, it will inculcate pedestrain priority and public domain across the station, while also improving the accessibility and foster inclusivity and community engagement.

SOFTWARES USED: Autocad, Rhinocerous,QGIS,Photoshop,Illustrator

EVOLUTION OF TERRACE HOUSES

Arrival of the concept of terrace house in the first half of the 19th CE

Demolition of the terrace houses in the early 20th CE to give rise to modern houses.

Using lots of 2 row houses to give way to a unit in the 21st CE

Introduction of new modular houses in the 21st CE.

FIG.01
FIG.02
FIG.04
FIG.05
FIG.03

STRENGTHS WEAKNESSES

Sydney Park offers a variety of paths and green spaces that promote activity.

The majortiy of the visitors access via public transport,reducing car dependency,parking requirements and encouraging walking as a means of exploring the precicnt.

The kiln towers act as a landmark for the precicnt, and Sydney park.

Finer grain mixed use buildings in the North of the precinct improve accessibility of services.

A higher preference for vehicles on Kings Street, with interrupted major pedestrian walkways from St Peters station to Sydney Park.

Connections to the station feel narrow and hard to navigate

The only bike lane in the precinct on Sydney Park Road ends abruptly , lacking an effective cycling network overall.

OPPORTUNITIES THREATS

Improving station entrance,accessibility, and navigation.

Increasing pedestrian priority and active transport on Kings Street, by reducing car dependency.

Improving even incorporation of bike lanes and cycle networks.

Opening up Sydney Park entrance, reducing barriers and improving accessibility.

SWOT ANALYSIS (WALKABILITY)

(COMMUNITY)

STRENGTHS

Sydney Park acts as a primary open space, encorporating bio and water sensitive urban design, and using vegetation to promote nature and biodiversity,whilst acting as an engaging site for visitors.

Lower building heights throughout much of the precinct provides adequate sunlight for plant life.

OPPORTUNITIES

Promotion of urban greening throughout the precinct,allowing for beautification and reduced urban heat island effect.

Green linkages between existing park spaces to improve biodiversity and visible pedestrian linkages between parklands, improving pedestrian accessibility to a broader range of spaces.

High vehicle traffic and noise from major roads impacting the air and acousting quality of the space.

KEY

BUS STOPS

ST. PETERS STATION

GREEN SPACE KILN TOWERS

WEAKNESSES

Uneven distribution of greenspace, and lack of connectivtiy between green spaces.

Lots of underutilised green spaces lining the train station that could be better intergrated.

Little integration of finer green spaces throughout the precinct.

THREATS

Developments could impede possible connections between open green spaces.

High noise levels from Kings Street and Sydney Park ROad may prevent potential animals from inhabiting the precinct.

RESIDENTIAL FINER GRAIN MIX USE UNDER UTILIZED SITES BARRIERS

KINGS STREET GRAFFITI STREET

INTERVENTION 1: INTENSIFICATION

Situated opposite Sydney Park and adjacent to the St. Peters node, the location faces low population density, impacting the central node’s vitality and overall station area functionality. The absence of nearby cultural or retail establishments exacerbates the issue, highlighting the need to integrate commercial, retail, and cultural spaces to enhance the area’s appeal and functionality amid anticipated population growth in the future.

The proposal entails a mixed-use project featuring an amalgamation of commercial, retail, cultural, and residential structures to foster community engagement and inclusivity. Additionally, the design incorporates a public square affording views of significant heritage brick kilns, along with several open green spaces suitable for a range of recreational activities. The green buffer serves as a threshold between the site and the railway track.

BEFORE DESIGN PROPOSAL

Most of the land of the site is underutilized/unused.

ZOOMED IN VIEW

The open ground floor commercial cum retail space can also act as an ephemeral place which can change according to the different activities/needs of the people. The stepped profile of both the residential and commercial spaces break away from the highrise buildings around and have terrace gardens for people to socialise in. The profile also helps in achieving optimum sunlight while giving vistas of the Sydney Park.

AFTER DESIGN PROPOSAL

The stilts on the ground floor of the commercial building activates the space and brings in people into the design proposal facilitating a vibrant space.

MONTAGE 1
FIG.01
FIG.02
FIG.03
FIG.04

The present open space next to the station lacks character and also conceals the station. The area around does not have adequate street infrastructure and lighting, thus posing a safety concern for individuals.

The introduced public plaza will serve as a focal point for community and social engagements fostering a sense of unity and cohesion within the urban fabric of St. Peters. The plaza will additionally, enhance the character and identity of the station by drawing in people from different economic, social groups and across all age groups.

BEFORE DESIGN PROPOSAL

Most of the land of the site is underutilized/unused

The plaza will enable people to participate in a plethora of activities thus promoting a more involved and informed citizenry. The plaza will also have graffiti and other forms of creative expressions to improve the cultural heritage and identity of the place.

AFTER DESIGN PROPOSAL
FIG.01
FIG.02

Existing Structure

the

Pushing the building inside to create a wider footpath
Pushing the building inside to create a plaza
Reducing the building height to G+3 from one side to prevent shadow on the road
Extending
other side to cut the sun & introduction of terrace gardens
FIG.A
FIG.B
FIG.C
FIG.D
FIG.E
MONTAGE 1 FIG.03 MONTAGE

04. URBAN DESIGN

YEAR 4, SEMESTER 8, (Group project)

Mentor: Ar. Supriyo Bhattacharya, Ar. Tapan Deshpande

Site: Dadar,Mumbai

Programme: Housing,Hostel,Commercial & Cultural

Group Members: Saie,Vama,Tirth,Jeffin,Kareena,Sonya

Wadala, a suburb in Mumbai is a growing Central business district with the existing truck terminal and surrounding area being converted into a commercial and residential district by the developers. The analysis and research done showed a stark difference between the different income groups that resided in the area. Based on the SWOT analysis and the issues noted, the aim of the proposal was to create a module based on the principles of a walking city to bring in the sense of togetherness while blurring out the existing invisible boundary by creating a holistic neighbourhood with introduction to new community spaces, residential typologies and public amenities which did not exist earlier. The project is looked through three important lenses (community, sustainability, social divide) for the proposal to present mixed land uses that promote sustainability, resilience, and self-sustenance.

SOFTWARES USED: Autocad,Rhinocerous,Vray,Photoshop,Illustrator

SECTION AA’

SECTION BB’

SECTION CC’

SECTION DD’

06. CHAWL REDEVLOPMENT

YEAR 4, SEMESTER-7, (Individual project)

Site: Dadar,Mumbai

Programme: Housing,Hostel,Commercial & Cultural

During the period of industrialization in the 1850s, Mumbai became the center of setting up of mills and factories and as a result brought about an influx of people from all over the country. As a result, the city saw a huge number of migrants. Bombay was already a congested city and there were almost no provisions to accommodate the migrant workers and their families. As a result, the british constructed affordable housing which came to be known as chawls for the workers and their families. The chawls exist till this date and because of their spatial morphology act as places of social interaction at various levels.

Over the years, the influx of female migrants has increased as compared to the number of male migrants coming to the city. However, due to lack of hygienic situations coupled with various forms of oppression/discrimination it has become difficult for women to dwell in the city.

The intent of the project is to create an inclusive, safe place for women while infusing the warmth/social realm of the people living in chawls settlements a safe space to foster community engagement and inclusivity while drawing parallels between gender and city.

A chawl unit is usually of an area of 180 sq.m. There are approx. 5 people in a unit who even amidst the lack of space, live in harmony.

Re-use of torn/old clothes as partitions for a sense of privacy between the members of the family. They are also used to cover the windows which open up to the corridor.

The curtains act as partitions to provide privacy to the people in the chawl unit. The curtain is usually drawn in the night when they go to sleep.

The partitions have evolved over the years from a piece of cloth to something as solid asa timber partition.The wooden partitions help with the acoustics in addition and give more privacy in such a compact space. The mezzanine floor also acts as a dynamic & a multifunctional space which is not only used to store but also is used as a place to sleep.

FIG.1
FIG.3
FIG.5
FIG.4
FIG.6
FIG.2

MORNING

EVENING

AFTERNOON

A single unit of a chawl constantly changes its function and utilization based on the time of the day thereby making it extremely flexible. For example: the living room acts as a place of gathering and socializing in the morning. Some of the space is then used for sleeping in the afternoon and later it further gets divided into smaller areas (by partitions) for privacy in the evening.

TIME-BASED MAPPING OF ACTIVITES PERFORMED BY WOMEN & MEN IN A CHAWL

SINGLEWOMANMIGRATION

FIG.1
FIG.2
FIG.3

EXISTING TYPICAL FLOOR PLAN

Existing typical floor plan of a chawl with small units shared amongst 4-5 people in a family.Toilets and bathing/washing areas are shared amongst the members of the entire floor which becomes extremely inconvenient and leads to lack of hygiene and privacy.

DORM ITERATION 1

DORM ITERATION 2

PROPOSED TYPICAL FLOOR PLAN

Proposal of a new typical floor plan by combining two housing units of the existing layout leading to a comparitvely spacious housing unit with a toilet attached for every unit.The left-out population is accomodated to the new floors added to the exisitng building.

HOSTEL ITERATION 1

HOSTEL ITERATION 2

Iterations for the hostels and the dorm rooms for women infused within the chawls to incorporate communal inclusivity and safety.

HOSTEL ITERATION 3

NEW HOUSING UNIT
FIG.1
FIG.2
FIG.2.1.1
FIG.2.1.2
FIG.2.2.1
FIG.2.2.2
FIG.2.2.3

07. PROFESSIONAL WORK

ABM ARCHITECTS,MUMBAI (MARCH’21 -JUNE’21)

8.1 LEXUS SHOWROOM,VILE PARLE,MUMBAI

In collaboration with Neetika Sarawagi (Senior Architect)

1. Design Development

2. Plans and elevations

3.Paramteric facade

4. 3-d Visualization

5. Post digital rendering

6.Marketing presentations

8.2 RUSTOMJEE SEASONS ELEMENTS APARTMENT

In collaboration with Neetika Sarawagi (Senior Architect)

1. Modified Plans and Elevations

2. Rendered Views

LEXUS SHOWROOM

08.

OTHER WORKS

(Individually done)

Includes:

A.ILLUSTRATION FOR ILLUSION IN ARCHITECTURE (COMPETITION-2021)

creating an illustration by drawing parallels between the past,present and future of architecture in the built environment.

B.CODING AND SCRIPTING

SEMESTER 6, YEAR 3

Creating different geometries using C sharp, Rhino grasshopper and related pluggins

C. GEOGRAPHIC INFORMATIONG SYSTEM

SEMESTER 9, YEAR 5

Mapping complexities of different cities using softwares like QGIS,Blender and Photoshop

D.GRAPHIC DESIGN

SEMESTER 6, YEAR 3

Interactive exhibition installation design based on the tangible activities happening inside a house.

E.MISCELLANEOUS WORK

‘Life in a chawl’ illustration

Freedom from ordinary architecture status illustration for archigram

SOFTWARES USED:

Autocad,Rhinocerous,Vray,Photoshop,Grasshopper,Blender,GIS, Illustrator

Contact: +61-466026187

Email: sonyag2902@gmail.com

Turn static files into dynamic content formats.

Create a flipbook
Issuu converts static files into: digital portfolios, online yearbooks, online catalogs, digital photo albums and more. Sign up and create your flipbook.
PORTFOLIO 2018-2025 by Sonya Gupta - Issuu