My first document

Page 1

DRAGOO ID4: 2023
JOSIE

CONCEPT

Stable Minds seeks to provide a secure establishment for nourishment, creativity, and reflection. The goal is to provide a space that all community members can build relationships with one another as well as a connection to animals. This construction connects to three definitions of the word stable by providing an element of each term: a horse stable, the stability of a person's mind, and the establishment of a relationship. The space is set to allow the users to leave feeling secure and replenished as they explore the perspective of other humans and animals navigating the journey through life.

LOGO DESIGN

The logo of Stable Minds comes from the structure and core of the building because, without this, the building would not stand. The "T" within the building's name is a replica of the truss system located on the third floor. Within the plan, this system is kept visible in order to connect the occupants to the deeper meaning of the wellness center.

MISSION

To create a multi-functional and inclusive space that enhances physical, mental and emotional well being, establishes strong human connections, bridges cultural gaps, and connects students to the natural environment in order to promote success socially and academically.

GOALS

Incorporate original elements of the barn to it's emphasize history

VISION

The building provides an environment for restoration, rejuvenation, and recreation through a range of private and social spaces, a contrast of still and active areas, and the connection to biophilia. For example, the healthy foods cafe, pet therapy spaces, and areas for individual growth and reflection.

Provide a space for restoration and escape

Develop spaces that support individual and group work

Enhance emotional, mental, and physical wellbeing

Establish an environment for connection and fostering relationships to support individual and group work

"The Horse Barn" was built, and designed by Daniels Jennings. This building was originally known as "The Farm Barn" as it was used to hold horses and cattle. It is the oldest wooden structure on campus located on UW Madison's campus on 520 Elm Drive.

1899

"The Horse Barn" became a multipurpose barn allowing the beef cattle to be stored on the first floor, horses on the second floor, and hay on the third floor. The building was refashioned by Jennings into a Neo-Tudor building with medieval inspiration costing $12,000. The redesign was intended for the horses to be able to work the nearby fields.

Madison
low traffic
In close proximity to green spaces and lakes Surrounded by agricultural and dairy buildings 540 Elm Dr Madison, WI 53706 Horse Barn
THE SITE Located on the west end of the University of Wisconsin -
campus, a less populated and
area
1868

CASE STUDY: JOHN LEWIS

The goal of this school design is to ensure students are physically, mentally, and emotionally well. The warm space enhances the joy of the children and staff. The space feels "light" as the large class windows allow for natural light to enter through the library and classrooms. This school also encourages collaboration as it uses garage doors to separate the classrooms for easy access. The redesign of this school was based with the idea to keep mental health in mind as it has many mental health resources as well as a wellness team

Amenities: Amphitheater

Pool & Gymnasium

Ball field & Playgrounds

Mental Health Resources:

Provides therapeutic intervention for students with stress and trauma Leads small-group sessions to support students and their relationships Provides substance abuse interventions

Provides strategies for concentration methods

Links students to resources to help families with necessities

Place: Elementary School

Location: Washington DC

Completion Date: August 2021

Certification: WELL building Standard

Goal: To Improve Mental Health Through Design

Square Footage: 90,000

Key Takeaways:

Design can improve mental health

Collaboration and engagement with peers is important

Access to mental health resources is needed for students

BUBBLE DIAGRAM

RESOURCE ROOM

PRIVATE OFFICES

AWAY SPACES

JANITOR CLOSET

MULTI-USE FITNESS STUDIO

EVENT & TRAINING ROOMS

SMALL GROUP COUNSELING & PET THERAPY

OUTDOOR PAVILION

PUBLIC & UNISEX ADA RESTROOM

WELLNESS CAFE SOCIAL LOUNGE AREA

PRESENTATION SPACES

GN RESTROOM

PET THERAPY INTAKE ROOM

WELLNESS RETAIL SPACE

RECEPTION

COMMUNITY SHARE ZONES

CREATIVE STUDIO

ADJACENCY DIAGRAM

Event & Training Rooms Reception Private & Shares Offices Resource Room Small Group Counseling & Pet Therapy Creative Studio Yoga Studio Social Lounge Area Away Spaces Presentation Spaces Wellness Cafe Wellness Retail Space Pet Therapy Intake Room Community Share Zones Outdoor Pavilion Public & Unisex ADA Restroom GN Restroom Janitor Closet Elevator & Staircase KEY PRIMARY ADJACENCY SECONDARY ADJACENCY UNDESIRED ADJACENCY NO ADJACENCY P R I V A C Y D A Y L I G H T P L U M B I N G P U B L I C A C C E S S S Q U A R E F O O T A G E YES NO Y N Y Y Y N N N N N N N N N N N N N N N N H HIGH MEDIUM LOW M L N N N Y N N Y Y Y Y N N Y Y N Y Y N Y L H M H M M L H L L L L M L L H H H L H L M M M M H L H H H H M H H H H L H 700 850 200 300 350 350 350 200 400 300 1000 400 150 400 150 TBD TBD TBD TBD TO BE DETERMINED TBD

BLOCK PLANS

WELLNESS CAFE K TCHEN OUTDOOR PAVIL ON EGRESS STA RS WELLNESS CAFE SEAT NG RECEPTION & LOBBY RETA L SPACE PRIVATE OFF CES GN BATHROOM ELEVATOR STORAGE EGRESS STA RS FRONT ENTRANCE SIDE ENTRANCE
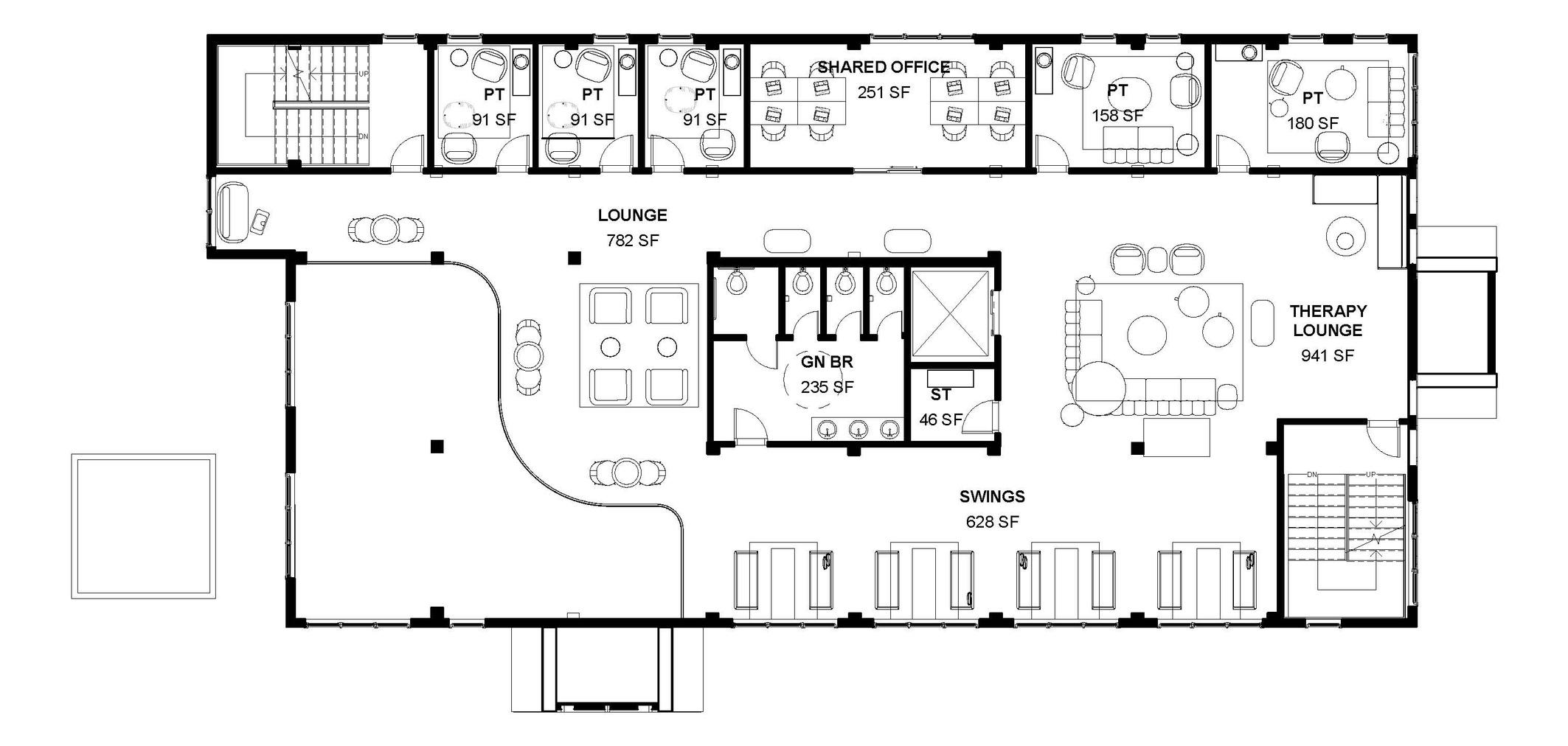
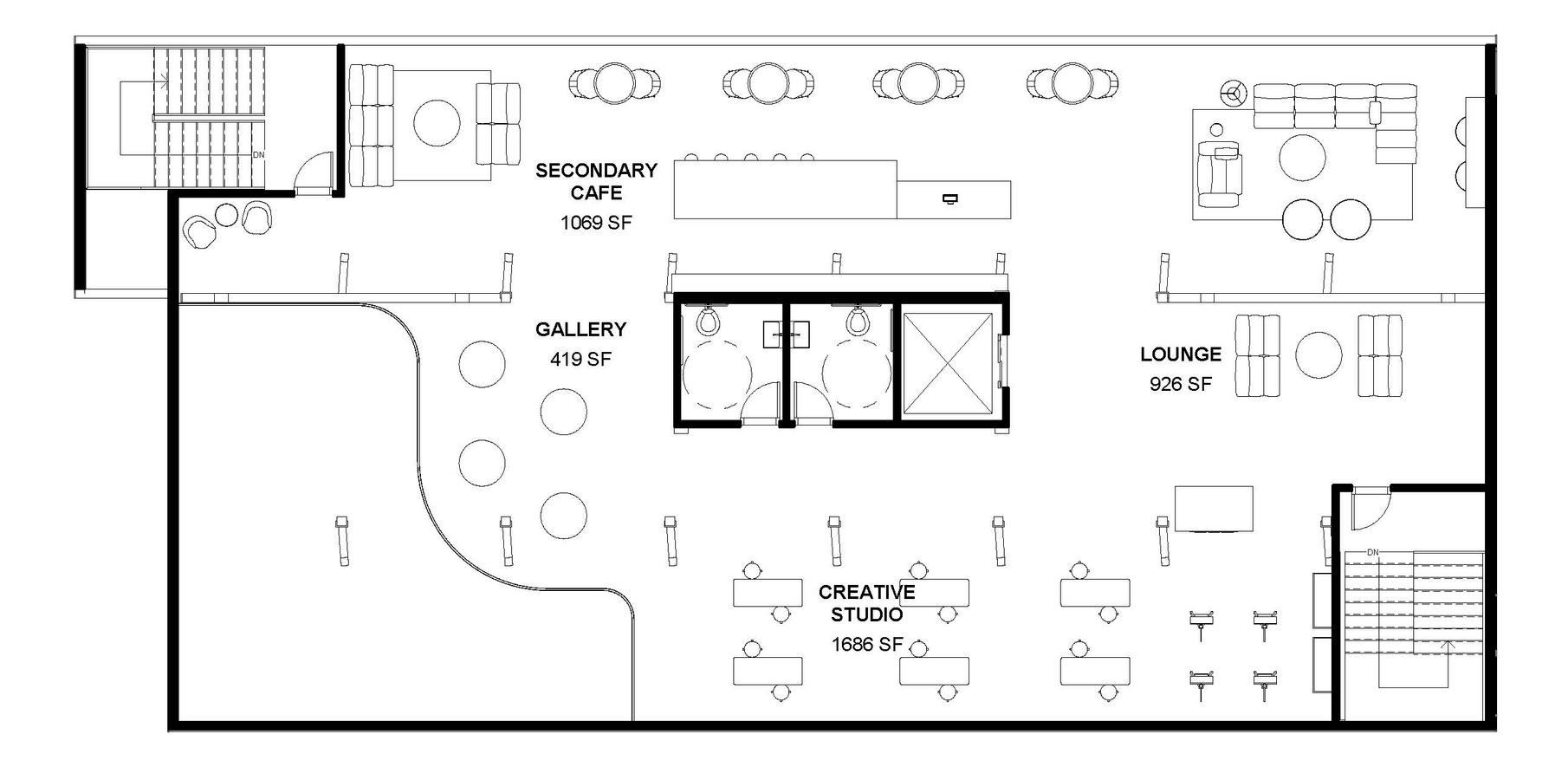
FLOOR 1 BASEMENT EGRESS STA RS ADA BATHROOM ELEVATOR STORAGE EGRESS STA RS MULT -USE WORKOUT STUDIO PET NTAKE & TRA N NG RECEPTION OFF CE LOUNGE DROP N PET THERAPY EGRESS STA RS GN BATHROOM ELEVATOR STORAGE EGRESS STAIRS S DE ENTRANCE FLOOR 2 LOUNGE SW NGS LOUNGE THERAPY ROOMS THERAPY ROOMS SHARED OFF CE FLOOR 3 EGRESS STA RS CREAT VE STUD O LOUNGE PRESENTATION GALLERY CAFE EGRESS STA RS ADA BATHROOM ELEVATOR STORAGE

FF&E PLAN BASEMENT

FF&E PLAN FLOOR 1

FF&E PLAN FLOOR 2

TO BELOW
OPEN

FF&E PLAN FLOOR 3

OPEN TO BELOW

RCP FLOOR 1

RCP FLOOR 2

HANDING BALL STRING L GHT
BASEMENT FLOOR 1 FLOOR 2 FLOOR 3
BUILDING SECTION 1
OUTDOOR PAVILION

BUILDING SECTION 2

BASEMENT

FLOOR 1
FLOOR 2 FLOOR 3 OUTDOOR PAVILION

CAFE ELEVATIONS

MAINCAFEBACKCOUNTER

MAINCAFEBAR

CUSTOM ELEVATIONS

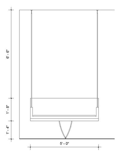
BUILTINSWING

SECONDARYCAFEBAR

DETAIL DRAWINGS

STABLEGROUPLOUNGE

Stable Material: Dark Oak Wood & Black Metal Framing

CUSTOMCAFEBOOTH

Material: Dark Walnut Wood

WELCOME TO STABLE MINDS

RECEPTION LOUNGE

CAFE

DROP-IN PET THERAPY

PET THERAPY SPACES

CREATIVE STUDIO

THIRD FLOOR LOUNGE

Turn static files into dynamic content formats.

Create a flipbook
Issuu converts static files into: digital portfolios, online yearbooks, online catalogs, digital photo albums and more. Sign up and create your flipbook.