Skip to main content

University of Arkansas Journalism School!

Page 1

CHARLES M. PORTIS

SCHOOL OF JOURNALISM & STRATEGIC MEDIA

Spring 2024

Hannah Anderson, Itzel Garcia, Zoe Stratman, Emily Sanchez, Sofia Hickey, Olivia Everett

SPACE PROPOSALS

Patio & Entryway

Logo

Stairwell Hallway & Plaque Wall

Media Wall & Media Room

Charles Portis Wall

Thesis Room Classroom

Hannah Anderson, Itzel Garcia, Zoe Stratman, Emily Sanchez, Sofia Hickey, Olivia Everett

Media Knowledge of Public

PORTIS School

UARK Campus

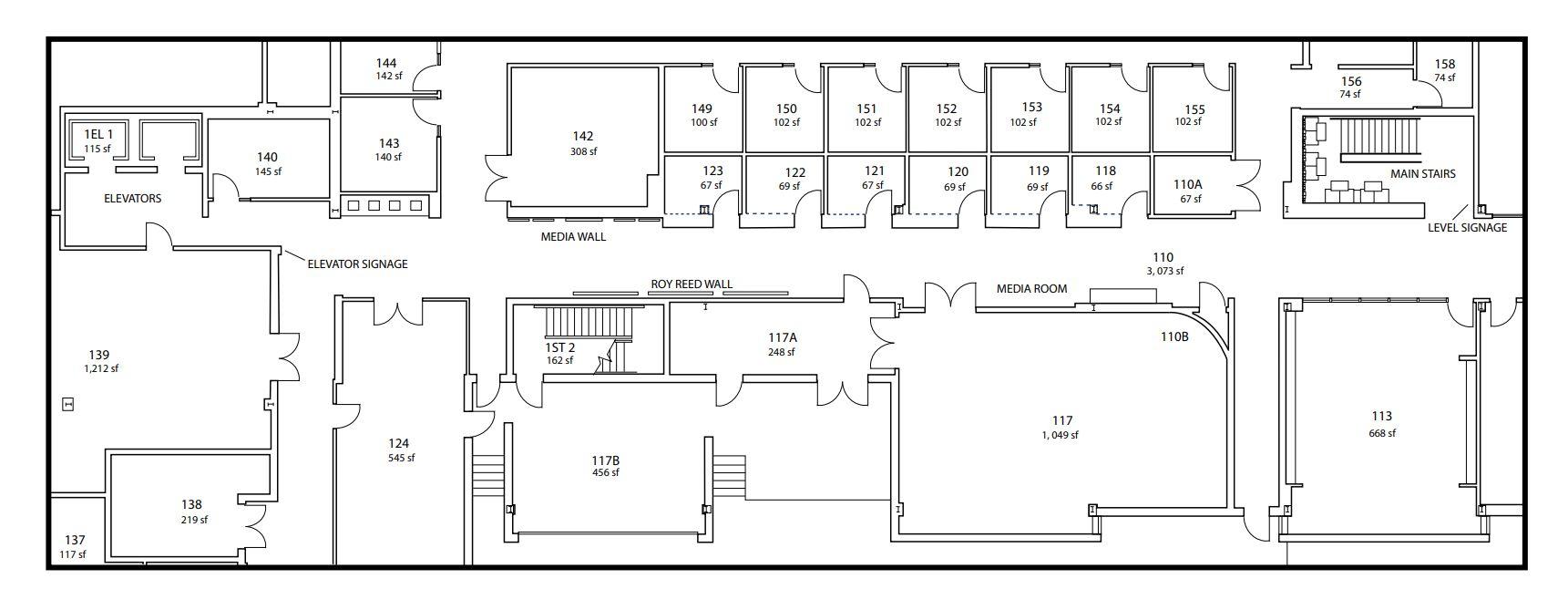
Floor Spaces within Portis School

Students & Professors

CONNECTION

OUTDOOR PATIO

AXONOMETRIC

BUNNY LOUNGE CHAIR STEELCASE BISTRO TABLE STEELCASE SENSU SHADE STEELCASE DOUBLE SENSU SHADE STEELCASE

AXONOMETRIC

BUNNY LOUNGE CHAIR STEELCASE BISTRO TABLE STEELCASE SENSU SHADE STEELCASE DOUBLE SENSU SHADE STEELCASE

FLOOR PLAN

1/8" = 1'-0"
FLOOR PLAN LINE WEIGHTS 1/8" = 1'-0"
FLOOR PLAN RENDERED
1
1

RCP

1/8" = 1'-0" 1 RCP LINE WEIGHTS 1/8" = 1'-0" 1 RCP RENDERED

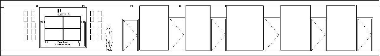
ENTRY ELEVATION

1/2" = 1'-0" 1 ENTRY ELEVATION LINE WEIGHT 1/2" = 1'-0" 2 ENTRY ELEVATION RENDERED
IMAGE EXAMPLE
Black Metal Lettering Letters are Backlit

THE LOGO

Stairwell

University ofArkansas

Journalism School

Inspo + Thoughts

Colorful acoustic paneling as an accent wall for the main stairs Built-in Seating with colored cushions for the under-stair nook

Outcome - Perspective

Stairs Perspective

Outcome - Perspective

Under Stair-Nook Perspective

Outcome Details

36.25" W x 47.5" H

Paneling; 3 sets

Colors:

Dark Wash, Acid Wash , Tangerine & Sunflower

Tom Dixon- FlashTable Rectangle (Painted Navy) MayerAcuco Fabric Birch Wood (Or stain to match pre-existing built-ins)

Outcome - Section

Side-Step Paneling Spec

Hallway

University ofArkansas Journalism School

Inspo + Thoughts

MAIN (2nd) LEVEL- Yellow Wayfinding w/ Blue Accents

1ST LEVEL- Orange w/ Blue Accents

MEDIA WALL: Inset display screens w/ panels & signage around it

Charles Portis Wall: Custom Printed Scrim Displays

Outcome - Perspective

Hallway Perspective

Outcome for Media Wall

Media Wall Elevation Hallway Section

Outcome for Media Room

Media Room Elevation Hallway Perspective Birch Wood BlueAcoustic Felt Paneling Cork Board

Enlarged Floor Plan

MediaWall MediaRoom CharlesPortisWall Charles Portis Wall University ofArkansas Journalism School

Final Design- Charles Portis

Final Design- Arkansas Ink

Breakdown of Posters

Poster 1

Acompilationofquotationsand phrasesextractedfromhisliterary worksandarticles,sheddinglighton hisdistinctivewritingstyleand persona.

Poster 2

Charles'upbringinginArkansas shapeshisvaluesandsurroundings.

Hetransitionstolifeasajournalistin NewYork,notablywiththeHerald Tribune.Later,heshiftsfocusto writingnovels,oneofwhichis adaptedintoamovie.

Poster 3

ReporterscoveringtheLittleRock crisisof1957emphasizedthecritical roleofafreemediainraising awarenessamongcitizensaboutthe gravityofthesituationandin energizingthenascentCivilRights Movement.

Poster 4

Rememberingtheindividualswho shapedjournalisminArkansas, particularlythoseinductedintothe HallofFame,honorstheirsignificant contributionsandpreservestheir legacyforfuturegenerations.

The Outcome

Hallway Perspective

Wall Elevation

HALO WhiteMatte

FlatbackCylinder Lampholder

Light Fixture

8’0”

5’0”

Poster Details

1’x6’white chrome Satin metal track

refinedshadesof white,withthe texturalreliefof linenyarn.

Thesis Room

University of Arkansas Journalism School

Inspo + Thoughts

Keep + Add Color to back panels

Keep built-ins and add color to help create a sense of dimension and cultivate a more welcoming environment

Outcome + Perspective

In this Perspective the original table has not been re-stained

In this Perspective the original table has been re-stained into a darker shade in order for it to help cultivate a room that looks newer and more welcoming.

Perspective A Perspective B
Axonometric Built in Colors

Outcome + Elevations

North Elevation East Elevation

Scale: 1/4”= 1’0”

Scale: 1/4”= 1’0”

South Elevation

Scale: 1/4”= 1’0”

West Elevation

Scale: 1/4”= 1’0”

Rendered
Floor Plan Line Weights
Scale: 1/4”= 1’0” Scale: 1/4”= 1’0”

of

Chantilly Lace 2121-70 + + + Polo Blue 2062-10 Blue Daisy 2062-40 + + Blue Jean 2062-50 Blue Hydrangea 2062-60
Charcoal Fabric
;Ember
From:
Colors + Materials + Furniture Blue Danube 2062-30 Copa by Viccarbe Everything Steelcase: Wood Color of built ins Existing Conditions
Color & Material that we are keeping Benjamin Moore: Stain Color For the wood table Benjamin Moore: Rocket Fabric Thataway Sofa Paste Lounge Chair
Grace Pouf Tait
Everywhere Texture
Rally Bar
Logitech Dell 86 4K Interactive Touch Monitor - C8621QT

Classroom

University of Arkansas Journalism School

Inspiration & Process Work

Classroom 1

Axonometric

Leave existing laminate floors

Leave existing white paint, whiteboards, & TV projector

Steelcase Node Chair - Yellow Benjamin Moore Sundance Benjamin Moore Sweet Orange

scale 3/8" = 1'-0"

Elevation

Portis School Slogan wall sticker
Line Weights - scale 1/4" = 1'-0" Rendered - scale 1/4" = 1'-0"
Plan
Classroom 2

Axonometric

Leave

Leave

Steelcase Node Chair - Orange existing laminate floors existing white paint, whiteboards, & TV projector Benjamin Moore Sweet Orange Benjamin Moore Carnival

scale 3/8" = 1'-0"

Elevation

SPJ Code of Ethics wall sticker

Line Weights - scale 1/4" = 1'-0" Rendered - scale 1/4" = 1'-0"
Plan
Classroom 3

Axonometric

Leave existing laminate floors

Leave existing white paint, whiteboards, & TV projector

Steelcase Node Chair - Blue Benjamin Moore Stream Benjamin Moore Manitou Blue

scale 3/8" = 1'-0"

Elevation

PRSA Code of Ethics wall sticker
Line Weights - scale 3/16" = 1'-0" Rendered - scale 3/16" = 1'-0"
Plan

Turn static files into dynamic content formats.

Create a flipbook