Mémoire de Master 2 - ENSACF

Page 1


Ce mémoire s’intéresse au travail réalisé dans le domaine des structures préfabriquées en bois dans la construction de logements dans en cœur d’îlot. Deux projets qui interviennent dans des contextes similaires et qui ont été réalisés par deux agences parisiennes. L’intérêt de comparer ces réalisations est de comprendre comment deux situations amènent à choisir des structures préfabriquées en bois dans les logements.

Ce mémoire nous renseigne aussi sur l’avantage de ce domaine sur le chantier. De la commande à la réception, toutes les phases d’élaboration du projet jusqu’à l’appropriation habitante seront décrites pour comprendre les enjeux, les atouts, la valeur d’utiliser la préfabrication en architecture.

LA PRÉFABRICATION EN BOIS

EN CŒUR D’ÎLOT POUR LE

MOTS CLÉS : LOGEMENT COLLECTIF, LOGEMENT SOCIAL, PRÉFABRICATION EN BOIS, CŒUR D’ÎLOT, CHANTIER, QUALITÉ D’USAGE.

Mémoire encadré par Bénédicte CHALJUB, Amélie FLAMAND et Rémi LAPORTE dans le cadre du domaine d’études Eco-conception des territoires et espaces habités.

ANNÉE UNIVERSITAIRE 2023-2024

École Nationale Supérieure

d’Architecture de Clermont-Fd 85 Rue du Docteur Bousquet 63000 CLERMONT-FERRAND

LOGEMENT : DE LA MISE EN

ŒUVRE À LA QUALITÉ

D’USAGE

Deux cas d’habitat collectif à Paris (12), (19)

Sofiia DMYTRIIEVA

ÉCOLE NATIONALE SUPÉRIEURE D’ARCHITECTURE DE CLERMONT-FERRAND DOMAINE D’ÉTUDES ECO CONCEPTION DES TERRITOIRES ET ESPACES HABITÉS 2023-2024

ÉCOLE NATIONALE SUPÉRIEURE D’ARCHITECTURE DE CLERMONT-FERRAND

Mémoire de Master 2 Domaine d’Étude ETEH

L’ARCHITECTURE ET L’ÉCONOMIE DES RESSOURCES

LA PRÉFABRICATION EN BOIS EN CŒUR D’ÎLOT POUR LE LOGEMENT : DE LA MISE EN ŒUVRE À LA QUALITÉ D’USAGE

DEUX CAS D’HABITAT COLLECTIF À PARIS (12), (19)

DMYTRIIEVA Sofiia

Directeur d’études

CHALJUB Bénédicte

Membres du jury

CHALJUB Bénédicte

SANCHEZ William

MARTIN Clément

Date de soutenance : Lundi 29 Janvier 2024

REMERCIEMENT

Tout d’abord, je tiens à remercier ma famille, qui m’ont soutenu lors de la rédaction de ce mémoire de recherche, malgré le fait qu’ils en Ukraine où la guerre continue. Et un merci tout particulier à ma famille française « creusoise », grâce à qui j’ai du soutien inoubliable en France.

Aux professeurs de mon maître ; CHALJUBE Bénédicte, FLAMAND Amélie, LAPORTE Rémy. Merci pour votre attention, pour avoir compris mon statut et m’avoir expliqué ce que je ne comprends pas et que je ne connais pas. Pour vos conseils avisés et la pertinence de vos commentaires tout au long de la durée des recherches.

J’exprime ma sincère gratitude à tous ceux qui ont contribué à l’élaboration de ce mémoire. Les architectes que je pourrais rencontrer en France. Les habitants et manager de l’immeuble d’habitat à Paris. Administration de l’école à l’ENSACF. Mes professeurs de français qui m’ont aidé à corriger les fautes d’orthographe. Enfin, merci pour le soutien de mes amis français et mes camarades de l’atelier Master 2 ETEH.

SOMMAIRE

FIGURE 1
Production personnelle (2023)
Façade Est.
Un immeuble social de Jaurès Petit à Paris (XIX)
L’agence « Archi5 »

Remerciements

Sommaire

Avant-propos

INTRODUCTION

- Méthodologie ;

- Une démarche qui s’enracine ;

- D’où vient le bois ? Pourquoi cette question est-elle si importante ?

- Îles parisiennes ;

- Présentation des cas d’études ;

Partie I – LES STRUCTURES PRÉFABRIQUÉES EN BOIS, COMME MOYENS DE FAISABILITÉ DU CHANTIER

1.1 « Une stratégie d’intervention vertueuse » ;

1.2 Les techniques actuelles ;

1.3 L’influence du transport sur le modèle industriel CLT ;

PARTIE II – ORGANISATION DE L’ESPACE : QUALITÉ D’USAGE DANS L’HABITAT COLLECTIF ET SOCIAL

2.1 Le jardin devant soi ;

2.2 Qualité et acceptabilité ;

2.3 L’optimisation de la circulation. Les appartements traversants ;

2.4 Le détail, reflet de l’ensemble. L’esthétique de la façade du bois ;

FIGURE 2
Production personnelle (2023)
Façade Sud.
Un habitat collectif de Saint-Mandé à Paris (XII) L’agence « Mars architectes »

AVANT-PROPOS

Ce mémoire fait partie de la validation de mon deuxième diplôme, puisqu’en 2021, j’ai été diplômée de la Faculté d’Architecture du PSACEA dans la ville de Dnipro, en Ukraine. L’intérêt de comparer ces réalisations est de comprendre comment deux situations amènent à choisir des structures préfabriquées en bois dans les logements. Cette étude devrait permettre de comprendre les phases d’élaboration du projet jusqu’à l’appropriation habitante. Deux projets qui interviennent dans des contextes similaires et qui ont été réalisés par deux agences parisiennes.

L’idée de ce travail de recherche est née des observations et de l’intérêt suscités par le fait que ce sujet est considéré comme peu connu en Ukraine. Avant le début de la guerre, j’ai eu la chance de me familiariser avec la pratique de l’architecture au sein d’une agence ukrainienne de la ville du Dnipro. Je suis parvenu à la conclusion que ce mode constructif n’est pas largement utilisé, puisque des matériaux comme le bois sont négligés au profit du béton, sans tenir compte du potentiel de l’architecture en bois. Lorsque j’ai commencé mes recherches, j’avais certaines attentes : je pensais pouvoir réfuter les stéréotypes associés au bois. J’espérais découvrir des innovations liées aux problématiques de mise en œuvre et usage de bâtiment en bois dans une ville densément peuplée comme Paris. Quels sont les démarches architecturales des architectes français en bâtiments préfabriqués en bois, dans un cœur d’îlot, pour l’habitat collectif et social ? Ainsi, l’objectif principal de cette recherche est de mettre en évidence les avantages et les contraintes de l’utilisation de la préfabrication en bois dans la construction, à travers l’analyse de deux projets. D’autre part, cette étude est directement liée à l’intérêt important en France pour les matériaux à base de bois dans les structures préfabriquées.

J’espère que les résultats que je pourrai obtenir à la fin de mon mémoire m’encourageront à poursuivre l’analyse et mettre en pratique de futurs projets identiques pour la reconstruction de mon pays, l’Ukraine.

INTRODUCTION

Les problèmes environnementaux et démographiques du XXIe siècle, les doutes sur l’approche architecturale et le désir de bâtiments conçus de manière plus intelligente encouragent l’architecte à adopter une approche plus compétente dans le choix des systèmes de construction et des matériaux. Le fait que les espaces urbains deviennent de plus en plus denses, c’est un fait. Dans le chantier urbain et contraint d’aujourd’hui, il n’est pas facile de lancer des projets sans penser à leur mise en œuvre sur site et sans garantir la qualité tout en réduisant l’impact carbone. Compte tenu des ambitions sociales et des contraintes d’espace (disponibilité, poids), les architectes se tournent aujourd’hui de plus en plus vers des structures préfabriquées en bois, tant pour la structure que pour la façade en prenant en compte davantage, par exemple : le bois est un matériau biosourcé ; la construction en filière sèche et du fait que les chantiers sont courts et moins gênants et moins bruyants. De plus, le bois n’est pas un matériau lourd et dans ce cas, il aura un avantage, par exemple, sur un matériau comme le béton.

L’idée même que la construction puisse être réalisée le plus efficacement possible, compte tenu de la difficulté d’accès au chantier, attire beaucoup d’attention. En regardant les deux projets situés à Paris, je suis attentif non seulement à la qualité du bâtiment, mais aussi à la manière dont il a été mis en œuvre sur les chantiers. Sans doute que derrière tout cela se cachent des technologues entiers. Face à une situation difficile en cœur d’îlot, quelles limites ou au contraire potentiels peut-on identifier dans la construction en bois ?

L’objectif de cette étude est de présenter les possibilités et les qualités du bois dans la construction de demain. Les matériaux, à leur tour, servent d’intermédiaire important entre le concept de l’architecte et sa mise en œuvre dans le projet. Et si nous abordons le sujet de l’architecture d’usine, par exemple, dans la période d’après-guerre, les maisons préfabriquées étaient largement utilisées, mais le matériau principal était le béton. Effectivement, le bois a très souvent été négligé

du

un

»

au profit du béton. Cela a aidé à répondre essentiellement à une nécessité urgente, celle de répondre à la demande croissante de logements dans des délais très courts, mais n’avait aucun lien avec l’environnement. Il est crucial de comprendre l’origine des matériaux pour réduire l’empreinte carbone et privilégier des matériaux biosourcés. Parallèlement, une attention particulière doit être portée aux détails constructifs, incluant les assemblages, les rythmes, les proportions, les essences de bois, dans le but d’instaurer un mode constructif incarné dans une esthétique. Le monde en évolution rapide de la construction en bois offre de grandes opportunités d’innovation. Avant les années 2000 en France, il est possible de constater que dans le domaine de la construction en bois, elle était marginale. Son utilisation était principalement orientée vers des pratiques vernaculaires ou de la maison individuelle. Durant cette époque, ils étaient performants, mais nécessitaient des coûts très élevés. Bien que la valeur ajoutée financière du bois soit contrebalancée par la rationalisation structurelle et la modularité offertes, cette approche soutient la variabilité des bâtiments, permettant d’apporter des modifications au cours de la durée de vie du bâtiment. L’innovation technique n’est pas seulement le choix du matériau, c’est la conception et la réalisation à partir de modèles BIM, la fabrication sur mesure en usine, en atelier, l’optimisation des éléments de structure (poids, dimensions...), les moyens de levage adaptés aux contraintes du chantier. La construction préfabriquée en bois nécessite d’attirer des entreprises flexibles, créatives et innovantes, capables de s’adapter aux ambitions et aux contraintes du projet. Cela comprend également le respect des délais, un travail de précision et une formation de haute qualité des compagnons charpentiers sont importants. Sinon, comme mes recherches l’ont montré, nous risquons de rencontrer des défauts qui, ce qui semblerait, n’auraient pas dû exister. Ce choix devient important pour créer une architecture durable et modulaire qui offre une perspective unique sur la mise en œuvre et la valorisation des matériaux.

FIGURE 4
Iconographie réalisation
chantier
immeuble social de Jaurès Petit par l’agence « Archi5
Les éléments préfabriqués en bois : Charpente bois lamellé-collé ; Panneau de bois massif (CLT collé ou CLT cloué)

Pour répondre à toutes les questions qui se posent pendante cette étude de l’opération : un immeuble social de Jaurès Petit l’agence « Archi5 » et d’un autre projet un habitat collectif de Saint-Mandé l’agence « Mars architectes », plusieurs outils ont été utilisés dans la méthodologie.

Tout d’abord, je voudrais dire que c’est ma première expérience de réalisation d’entretiens avec des résidents locaux en tant qu’étranger en France. L’accès aux maisons s’est avéré assez difficile, car les hautes clôtures, les portails et les codes étaient très intimidants au début du voyage. En Ukraine, pendant mes études, je n’ai pas adhéré à de telles méthodes. Je crois que cette expérience a été très efficace pour moi.

Cette étude a donc été nourrie par :

• Des entretiens avec des habitants réalisés lors de plusieurs séjours à Paris. Au cours de cette phase de recherche, les discussions avec les architectes n’avaient pas encore été initiées. En raison de la crise sanitaire et du Covid qui a grandement changé la vie de chacun, les photographies de l’intérieur sont prises par les habitants eux-mêmes et envoyées par mail.

• Lors de ma visite à Saint-Mandé, j’ai été accueillie par la femme qui s’est présentée comme «une manager l’immobilier 14 logements Saint-Mandé». Elle s’appelle madame Séné. Au début du dialogue, elle s’est montrée très catégorique sur le fait que j’aimerais me promener seule sur le territoire et prendre des photos, mais après que j’ai expliqué que j’étais étudiante, elle a accepté de me faire une mini-visite.

• Entretien avec Anna Pezzoni, architecte d’Archi5. J’ai pu rencontrer et échanger avec l’architecte Anna Pezzoni, qui n’a pas hésité à consacrer généreusement son temps pour enrichir les recherches de ce mémoire. Cet échange d’informations a favorisé une meilleure compréhension des approches conceptuelles, des avantages et des défis associés à la construction de bâtiments préfabriqués en bois. De plus, Anne Pezzoni a défini très précisément les étapes du projet et a fourni du matériel qui n’est pas disponible dans d’autres sources.

En même temps, mon expérience avec un autre bureau a été différente. Malheureusement, je n’ai pas pu établir un dialogue avec l’agence « Mars architectes », malgré de nombreux courriers et appels téléphoniques.

• Malgré la barrière de la langue, j’ai essayé de lire beaucoup de littérature en français, car le sujet de préfabriquées en bois est peu connue dans les sources ukrainiennes. En utilisant la bibliothèque de l’école ; Google ; Podcasts ; et aussi écouter des interviews sur YouTube. Tout cela m’a aidé à approfondir mes recherches.

FIGURE

le cadre de l’Observatoire francilien de la construction bois 2021, du Prix Régional de la Construction Bois et des signataires du PACTE Bois Biosourcés.

UNE DÉMARCHE QUI S’ENRACINE

Alors que la demande de nouveaux bâtiments continue de croître, il est important de reconnaître que toute construction, qu’il s’agisse de nouveaux bâtiments ou de rénovations, peut avoir un impact sur l’environnement. En prenant des mesures pour réduire ces impacts, les architectes peuvent contribuer à créer un avenir durable. Avec le recul, nous pouvons dire que l’introduction active du bois dans l’architecture préfabriquée a commencé à la fin du XXe et au début du XXIe siècle. Les structures préfabriquées en bois s’éloignent progressivement des aspects vernaculaires et ruraux, s’adaptent à l’environnement urbain et créent de nouvelles vision sensible et respectueuse du milieu naturel.

Selon une analyse de l’Institut parisien de la Région, on peut conclure qu’il s’agit d’un mode constructif qui s’enracine dans une région Île-de-France en plein développement. La carte cartoviz 2023 1 géolocalise les structures dans le tissu urbain. Les constructions de grande envergure d’une superficie de plus de 5 000 m² (sont mises en valeur par des cercles plus grands). Par contre, à Paris, une réglementation exige, que tous les nouveaux édifices publics contiennent « au moins 50 % de matériaux naturels, et les Jeux olympiques de Paris en 2024 se sont engagés à construire 30 % de l’ensemble des bâtiments et 80 % des bâtiments de 8 étages max en bois » 2 .

La réglementation RE2020 3 a pour but de à parvenir à la neutralité carbone d’ici 2050 notamment dans le domaine de la construction. Elle a été progressivement mise en place depuis janvier 2022, et elle est censée renforcer cette évolution pour le bois.

1 Cartoviz - cette cartographie interactive a vu le jour dans le cadre de l’Observatoire francilien de la construction bois. Elle recense plus de 1 300 projets, en cours ou livrés, réalisés en construction en bois et biosourcés.

https://fibois-idf.fr/cartographie-des-projets-bois-et-biosources

2 https://franceboisforet. fr/2021/03/23/bois-et-jeuxolympiques-et-paralympiques-de-2024/

Instauré en 2018, le projet France Bois 2024 (FB 2024), cofinancé par France Bois Forêt et le Codifab, en partenariat avec le Comité stratégique de filière bois-FBIE et Fibois France, a pour objectif de favoriser l’utilisation des solutions de construction et d’aménagement en bois, en particulier français, dans les réalisations des Jeux olympiques et paralympiques (JOP) de 2024.

3 RE2020 Réglementation environnementale pour la France

Etablissement recevant des travailleurs

Etablissement recevant du public Bâtiment d’habitation

Etablissement recevant du public 46,7%

Bâtiment d’habitation 46,7%

Ensemble habitation et ERP 3,9%

Etablissement recevant des travailleurs 2,5%

Ensemble habitation et ERT

BÂTIMENT(S) EN ÎLE-DE-FRANCE

5 : Cartoviz, réalisée par L’Institut Paris Région en partenariat avec Fibois Île-de-France. Cette carte, millésime 2023, valorise les projets et acteurs recensés dans

Malgré le fait que : « La forêt française représente le troisième stock de bois européen derrière l’Allemagne et la Suède. Elle couvre désormais 31% avec 17 millions d’hectares » 4, de nombreux projets utilisent du bois importé.

D’OÙ

VIENT LE

BOIS ? POURQUOI CETTE QUESTION EST-ELLE SI IMPORTANTE ?

Au XXe siècle, une déforestation intensive a eu un impact majeur et a provoqué la perte de la main-d’œuvre qualifiée. Avec « la naissance des Grands Ensembles et des Zones à Urbaniser en Priorité (ZUP) » 4 , le béton devient le matériau de base. L’utilisation du bois dans la construction a été abandonnée en France, à l’exception des régions montagneuses où la technique de la construction en bois empilé n’avait jamais été délaissée. Mais au XXIe siècle, la situation a progressivement changé. Premièrement le rapport annuel de « l’Institut Technologique Forêt Cellulose Bois construction Ameublement » (FCBA) 5, la forêt française représente « plus de 31 % (16,8 millions d’hectares de forêt) du territoire métropolitain et continue de s’accroître par expansion naturelle à un rythme moyen de 80 000 hectares par an. Deuxièmement grâce aux certifications forestières durables telles que PEFC et FSC » 5 .

Une proportion importante des structures en bois utilisées sont fabriquées à partir de bois importés, principalement des pays d’Europe du Nord 5. Par exemple, dans le projet de Jaurès Petit du bureau Archi5, la quasi-totalité de la structure en bois (Poteau poutre ; Panneau de bois massif (CLT collé ou CLT cloué) ; Charpente bois lamellé-collé ; Bardeau bois ; bâtiment a été ramenée d’Europe, sauf les panneaux de l’ossature bois qui sont d’origine française 6 .

Cependant, bon nombre des avantages environnementaux associés au stockage du carbone sont menacés, car la valeur environnementale est réduite lorsque le bois est transporté sur de longues distances. Par conséquent, pour promouvoir véritablement la construction durable en bois, il est nécessaire de développer les filières nationales et régionales, favorisant ainsi l’utilisation du bois local dans la construction.

4 Décret n° 58-1464 relatif aux zones à urbaniser en priorité 31 décembre 1958. Le décret sur les ZUP, signé du président du Conseil Charles de Gaulle et contresigné par le ministre de la Construction Pierre Sudreau, inaugure une phase nouvelle dans la construction des grands ensembles destinés à sortir la France d’une crise du logement. https://francearchives. gouv.fr/commemo/recueil-2008/39542

6 L’Institut technologique FCBA (Forêt Cellulose Bois-construction Ameublement) est un centre technique industriel français, chargé des secteurs de la forêt, de la cellulose, du bois-construction et de l’ameublement

https://fr.wikipedia.org/wiki/ Institut_technologique_ FCBA

https://franceboisforet. fr/wp-content/uploads/2020/09/final_Brochure_le_bois_dans-la-construction.pdf

PEFC - the Programme for the Endorsement of Forest Certification;

FSC - Le Forest Stewardship Council

6 https://www.panoramabois. fr/projets/6866

FIGURE 6 : Production personnelle (2023) En vert, la définition géographique Europe du Nord-Ouest.

ÎLES PARISIENNES

Depuis le début de l’ère industrielle jusqu’à nos jours, la population s’est progressivement concentrée dans les villes, entraînant ainsi un processus d’urbanisation. Cette évolution dynamique a transformé la population des villes, autrefois minoritaire, en une majorité. « Environ 51 millions de personnes, soit près de 80 % de la population européenne selon les données de l’INSEE de 2020 » 7 vivent en ville. Les gens sont attirés par les services, l’accès facile aux espaces publics que les villes offrent à leurs habitants. La croissance de développements résidentiels déjà très denses dans les centres-villes s’accélère progressivement. Cela a pour conséquence la question de la pénurie de logements et de l’importance d’assurer la qualité tout en réduisant les émissions de carbone. « Pour une société qui veut réinventer son modèle du vivre en commun et qui cherche la résilience sociale, une grande partie de l’avenir se joue dans le logement social, qui représente plus de 5,3 millions de logements en France, soit 16% du total des habitations » 7 .

7 Informations tirées des : “ Centres d’observation de la société”

https://www.observationsociete.fr/territoires/ lieu-de-vie_terri/la-part-dela-population-vivant-en-villeplafonne/

7 :

La densité humaine à Paris atteint 380 personnes à l’hectare en moyenne, contre 135 à l’échelle de la métropole et 15 dans le reste de l’IDF.

Étude Atelier parisien d’urbanisme (l’agence « Apur ») https://www.apur.org/sites/default/files/16_plu_diagnostic_territorial_19e_arr.pdf

Dans le cas de la capitale, Paris est déjà fortement urbanisé, il y a peu de place pour créer de nouveaux espaces, notamment pour le logement. Dans la plupart des cas, le noyau du quartier, à peine visible en dehors du trafic urbain, constitue une solution possible pour créer ce que l’on appelle « des logements dans la cour ». « L’îlot est une donnée implicite, héritée de la ville traditionnelle » 8. Il y a souvent un « espace » au cœur de l’ îlot, c’est un terrain soit plus mesuré à travers lequel s’effectue la densification. Le lieu d’échange est directement connecté à l’extérieur sur la rue, plutôt qu’au cœur de l’îlot. D’une richesse souvent insoupçonnée, le cœur de l’îlot est le lieu privilégié des appropriations résidentielles.

Finalement, cette recherche m’a permis de m’y intéresser, en abordant plus précisément deux l’exemple :

8 PANERAI Philippe, CASTEX Jean, DEPAULE Jean-Charles « Formes urbaines : de l’îlot à la barre » Edition : 5th or later Edition. Published by Parenthèses, 1997
FIGURE

9 https://www.mars-architectes.com/project/saint-mande

Gecina est une société foncière qui détient, gère et développe un patrimoine immobilier. La foncière oriente son activité autour du premier patrimoine de bureaux de France et d’Europe et d’un patrimoine d’actifs résidentiels et de résidences pour étudiants, qui représentent plus de 9 000 logements.

https://fr.wikipedia.org/wiki/ Gecina

Un immeuble social de Jaurès Petit ; L’agence « Archi5 »

Le projet de logements sociaux dans un cœur d’îlot se déploie entre 74 logements collectifs et des maisons de ville en structure bois. Ce projet n’est pas le premier pratique du bureau Archi5. À travers le prisme de l’expérience de logements en bois, ils ont réussi à créer des logements sociaux.

Un habitat collectif de Saint-Mandé ; L’agence « Mars architectes »

Le projet de 14 logements collectifs dans un cœur d’îlot s’inscrit dans le cadre d’ une étude. « En 2012, GECINA a chargé l’agence de réaliser une étude sur l’ensemble du patrimoine parisien et d’identifier les opportunités, les zones constructibles permises par la dérogation COS, la loi ALUR et la loi Duflot et au plan local d’urbanisation de Paris » 9 .

1 - Un immeuble social de Jaurès Petit à Paris (XIX)

2 - Un habitat collectif de Saint-Mandé à Paris (XII)

Saint-Mandé
Jaurès Petit
FIGURE 8 :
Production personnelle (2023) Iconographie les agences « Archi5 » et « Mars architectes »

PRÉSENTATION DES CAS D’ÉTUDES

JAURÈS PETIT

Maîtres d’oeuvres : Archi5 associés à Encore Heureux

Maîtres d’ouvrages : Paris Habitat OPH

Entreprises : GTM & Arbonis

Paysagiste : Atelier Roberta

Programme : Archi5 - Construction de 74 logements sociaux (structure bois) et d’un espace commercial ; Encore Heureux - de 75 logements en accession (rehabilitation d’un ancien parking)

Surface : logements sociaux 4 874 m2 SHAB; local commercial 78 m2

Réalisation : 2021

Coût de l’ouvrage : Travaux : 30 509 479 € HT

Bâtiment Archi5 en structure bois : 11 900 000 € HT + Démolition : 1,650 M€ + Restructuration RDC : 2,5 M€ HT

Bâtiment Encore Heureux parking réhabilité : 14 459 579 € HT dont travaux VRD : 1 980 000 € HT

Économiste : ATEEC

BET structure : EVP

BET fluide, électricité : B52

BET VRD : Ateve

Acousticien : Cap Horn solutions

BET HQE : Albert & Co

Performance énergétique : NF Habitat HQE - Effinergie + Localisation : 188 Av. Jean Jaurès, 75019 Paris, France

Le début de la construction de Jaurès Petit à Paris (XIX) L’agence «Archi5»
FIGURE 9
Production personnelle (2023) Façade Nord.
Un immeuble social de Jaurès Petit à Paris (XIX) L’agence « Archi5 »

PRÉSENTATION DES CAS D’ÉTUDES

SAINT-MANDÉ

Maîtres d’oeuvres : Mars architectes

Maîtres d’ouvrages : GECINA

Entreprises : Bouygues bâtiment Ile-de-France

Entreprise bois : Brézillon – Bouygues Construction

Paysagiste : Lignes Paysage

Programme : 14 logements

Surface SHON : 716 m²

Réalisation : 2020

Investissement : 2 370 000 € HT

Économiste : Vpeas

BET structure : Scyna 4

BET bois : Sylva Conseil

BET fluides : Axpacaal

BET électricité : Teamor

BET acoustique : Alternative

Performance énergétique : HQE NF Habitat niveau Excellent / Effinergie / Biosourcé niveau 3 / Biodiver-city / Plan climat de la ville de Paris

Localisation : 25 Av. de Saint-Mandé 75012 Paris, France

Le début de la construction de Saint-Mandé à Paris (XIX) L’agence «Mars architectes»
FIGURE 12
Production personnelle (2023) Façade Sud-Est.
Un habitat collectif de Saint-Mandé à Paris (XII) L’agence « Mars architectes »

LES STRUCTURES PRÉFABRIQUÉES EN BOIS, COMME MOYENS DE FAISABILITÉ DU CHANTIER

Dans une première partie, nous essayons de comprendre les spécificités de la mise en œuvre de la construction en bois dans les quartiers dits « denses » de Paris à travers deux projets des logements : de Jaurès Petit et de Saint-Mandé. Aujourd’hui, les architectes et urbanistes doivent véritablement considérer la spécificité des situations urbaines afin de concevoir des solutions adaptées aux programmes de logements ou d’équipements. Nous allons aborder en détail le contexte de formation des deux opérations. Les projets montrent comment les chantiers avec des structures préfabriquées en bois permettent d’atteindre les mêmes avantages de qualité que la construction courante dans les contextes urbains. Nous découvrirons également si les architectes ont de l’expérience dans la mise en œuvre d’un projet avec des structures préfabriquées en bois. Enfin, nous dévoilerons les avantages de la conception CLT et découvrirons en quoi consiste cette méthode de conception. Comment le transport affecte-t-il le modèle industriel et comment les panneaux arrivent-ils sur le chantier ?

« UNE STRATÉGIE D’INTERVENTION

VERTUEUSE »

Pour comprendre pourquoi les architectes ont utilisé une approche particulière, il est d’abord important d’étudier le tissu urbain, car elle dicte et éclaire les relations entre complexes entre sol et bâti, entre voiries et formes, entre contraintes et pratique. L’îlot ne se présente pas une forme qui est simple, c’est plutôt la structure qui établir le tissu urbain, où l’on observe une relation dialectique entre la rue et la parcelle. En utilisant l’exemple de deux opérations que nous pouvons voir dans l’axonométrie de la phase de construction dans un cœur d’îlot (Cf. FIGURE 15, 16), nous voyons que les noyaux des îlots ont des composants internes différents, c’est-à-dire que soit nous travaillons dans une partie vide de l’îlot, soit nous détruisons à moitié ou complètement l’ancienne structure et la reconstruisons. Grâce à la création de complexes résidentiels, les architectes ont réussi à redonner vie à un micro-quartier dans des conditions difficiles.

Evidemment chaque projet de construction comporte un ensemble complexe d’opportunités, de défis et de risques. Néanmoins, la mise en œuvre de ces projets a montré qu’il n’est plus possible de se limiter à proposer des solutions standardisées et que de nouvelles solutions sont nécessaires. Les structures préfabriquées offrent une nouvelle alternative aux méthodes de construction traditionnelles. En étudiant les processus de développement de l’habitat à Jaurès Petit et à Saint-Mandé, j’ai pu constater que les ambitions de ces projets créaient une « stratégie d’intervention vertueuse » basée sur des structures préfabriquées en bois. L’industrialisation du XXe siècle a permis de repenser de nombreuses approches de l’architecture et, dans une certaine mesure, d’alléger les tâches liées à la construction qui semblaient très difficiles à mettre en œuvre il y a à peine 15 ans. Les architectes ont choisi le bois non seulement en raison de ses avantages environnementaux, mais aussi parce que c’était un matériau qui pouvait permettre à l’architecture de s’intégrer « harmonieusement » au cœur de l’îlot.

Le bois et son procédé de production à sec ont grandement réduit les nuisances sur le chantier car les éléments sont fabriqués de manière préalable en atelier avant d’être acheminés sur le chantier pour être assemblés. Le placement progressif du chantier en site occupé est devenu un facteur avantageux et a permis de bénéficier de structures préfabriquées en bois, notamment dans un quartier parisien en pleine mutation qui est dense et inaccessible. Plus précisément, nous pouvons faire un certain nombre d’observations générales concernant le terrain sur lequel se situent les études de cas. Les caractéristiques des îlots parisiens sont bien décrites dans l’ouvrage de Philippe Panerai , Jean Castex , Jean-Charles Depaule : « L’îlot, dans son ensemble, est divisé en une bordure et un intérieur, qui est dotée d ‘une complexité interne. La bordure, dense, est liée directement à la rue comprise comme le lieu des échanges et comme l’espace de présentation régie par des codes. « De l’espace » au cœur de l’îlot est au contraire une zone éloignée de la rue coupée d’elle, qui a les caractères d’un lieu non vu (non nécessairement vu voir caché) il est malléable, transformable, marqué par des codes lâches qui s’opposent aux codes reconnus sur la face publique » 10 .

Les structures préfabriquées, en particulier en bois, sont bien établies dans le secteur de la construction résidentielle au cours de la dernière décennie et gagnent régulièrement en popularité, tant au niveau local qu’international.

FIGURE 17 :
La bordure
L’intérieur
10 PANERAI Philippe, CASTEX Jean, DEPAULE Jean-Charles « Formes urbaines de l’îlot à

SAINT-MANDÉ

FIGURE 18 :

Production personnelle (2023)

Localisation du projet - 25 Av. de Saint-Mandé, 75012 Paris, France. Réalisation 2020. (« Vue » FIGURE 20, page 46)

Production l’agence « Mars architectes » Coupe longitudinale un habitat collectif de Saint-Mandé à Paris (XII) Av de Saint-Mandé

Le projet est implanté en cœur d’îlot, entouré d’un immobilier construit dans les années 1970 et de l’architecture haussmannienne. Au « cœur » de l’îlot de Saint-Mandé, le terrain est plus mesuré, on observe une augmentation de la densité, ce qui rend l’espace intérieur très dense. Le site, séparé de la rue par un immeuble de 11 étages, présentait un certain nombre de restrictions. Il y avait des contraintes d’accès, toute installation de levage classique et tout passage aérien. Aux contraintes d’accès, s’ajoutaient celles de poids, car la nouvelle structure devait entourer l’aire de stationnement existante. Il était également important que le hall du bâtiment existant demeure en service pour ses résidents au long de la période de construction. L’accès au cœur du quartier se faisait par les rues principales, parallèles à l’avenue par l’une des façades du bâtiment. De l’extérieur de la bordure, du côté de l’avenue de Saint-Mandé (Cf. FIGURE 20, 21), on remarque une répartition uniforme des façades le long. Lors du chantier, la structure de la rue ne s’effondre pas et ne présente aucun risque parce que le montage des panneaux a lieu au plein centre de l’îlot.

FIGURE 20, 21

Production personnelle (2023)

1 - La vue 188 Avenue Jean Jaurès, 75019 Paris, France.

2 - L’entrée au cœur d’îlot se fait par l’une des façades du bâtiment de l’avenue de Saint-Mandé.

FIGURE 19 :

Accès au site

« En fond de site, la dalle du parking est percée pour accéder au chantier et récupérer les éléments de construction, directement prêts à être assemblés »

Cœur d’ilot

Parking « Chacun des éléments devant passer par le parking a done une largeur qui ne peut excéder 2.3m »

Entrée pour les résidents

FIGURE 23 : Production personnelle : capture d’écran (2023)

Photos un habitat collectif de Saint-Mandé - vue de dessus. Image et montage Guillaume Foresti, Lybellule, Antoine Plouzen ; l’agence « Mars architectes » https://www.pavillon-arsenal.com/fr/arsenal-tv/documentaires/parisarchitectures/11888-73-logements-saint-mande-paris-12.html

Avenue

Éléments préfabriqués en bois

« La stratégie développée a été d’imaginer un projet en bois, entièrement démontable »

À partir d’axonométrie, nous pouvons analyser que la stratégie développée est de présenter un projet en bois, entièrement démontable. Ainsi, chacun des éléments a été transporté à travers les portes du bâtiment existant, qui doivent traverser le parking sur une largeur maximale de 3,5 mètres.

FIGURE 22 : Production l’agence « Mars architectes » Axonométrie de l’accessibilité du chantier un habitat collectif de Saint-Mandé à Paris (XII)

Rue Petit

FIGURE 24

Production personnelle (2023)

Localisation du projet - 188 Av. Jean Jaurès, 75019 Paris, France. Réalisation : 2021. (« Vue » FIGURE 28, page 51) Rue Petit

Rue Petit

JAURÈS PETIT

Dans le projet Jaurès, il y avait moins de contraintes sur le chantier. Delphine Poinsard (chargée de programmes immobiliers) décrit dans une interview : « À l’origine, le site était une copropriété sur une parcelle d’environ 8 000 m2, construite en 1968, qui s’étendait de l’avenue Jean Jaurès à la rue Petit. Elle comprenait trois éléments : deux immeubles d’habitation de 154 logements, chacun bâti en limite de voie, et un garage Renault en cœur d’îlot avec deux niveaux de soussol et six niveaux de superstructure » 11 . Lors de la construction du bâtiment en deux blocs, il a été décidé de conserver une partie de la structure en béton du parking existant et de démolir complètement le reste.

Pendant l’entretien avec Anne Pezzoni architecte associée l’agence « Archi5 », elle a expliqué que : « La réduction des volumes de démolition et l’utilisation de structures en bois, de façades en bois et de plafonds en bois lamellé-croisé (CLT) ont contribué à une économie de 1 520 tonnes d’équivalent CO2 par rapport à une structure entièrement en bois au lieu du béton ». Dans ce travail, je me concentre sur un projet utilisant des structures préfabriquées en bois.

Projet PETIT EMERIGE Zone d’intervention

11 https://france.vinci-construction.com/fr/jaures-petit-delphine-poinsard/

Rue Petit

25 :

Projet JAURES PARIS HABITAT

Production les agences « Archi5 » et « Encore Heureux » Coupe longitudinale sur le projet de Jean Jaurès Petit.

Rue Petit

FIGURE

DÉGAGER LES VUES

Les logements sociaux sont construits à partir d’un bâtiment principal à structure en bois, tandis que les logements destinés à l’accession à la propriété sont construits dans une autre partie de l’îlot, en conservant et en adaptant la structure en béton d’un parking préexistant. Les nouveaux logements sont orientés d’est en ouest. L’emplacement des bâtiments perpendiculairement aux bâtiments principaux offre une visibilité maximale. Une attention est portée à faciliter l’accès aux services d’urgence par les voies d’accès. Lors d’une conversation avec l’architecte Anna Pezzoni, elle a attiré l’attention sur le fait que : « Aucun vis-à-vis n’est créé dans ce projet. En plus de la qualité des nouveaux logements, le projet vise à améliorer les bâtiments existants environnants, qui sont construits en 1968. L’intention était de recréer l’harmonie et l’équilibre entre les nouveaux et les anciens habitants du site ». En effet, après analyse le quartier, lorsqu’un tel bâtiment a été conçu, il n’y avait pas beaucoup de bâtiments modernes.

Les fondations des bâtiments en bois sont en béton car elles ne reposent pas directement sur le sol. Ceci ne permet pas à la partie sol de subir des déformations et des déplacements ; assure la stabilité ; isoler le bâtiment du sol et de l’humidité, et éliminer les ponts thermiques entre le sol et les murs.

FIGURE 29 : Iconographie l’agence « Archi5 » (03 février 2020)
La phase de construction de Jaurès Petit à Paris (XIX)
FIGURE 27, 28
Production personnelle (2023)
1 - L’entrée au cœur d’îlot se fait par l’une des façades du bâtiment de l’avenue Jean Jaurès.
2 - La vue 188 Avenue Jean Jaurès, 75019 Paris, France.
Rue Petit
FIGURE 26 :
Production personnelle (2023)
Axonométrie un immeuble social de Jaurès Petit à Paris (XIX)
Le schéma du parcours.

LES TECHNIQUES ACTUELLES

Il existe plusieurs écoles d’ingénieurs dans le secteur de la construction en bois, ainsi que de nombreux centres techniques, dont FCBA. Le secteur est réglementé par des normes européennes, qui à leur tour réglementent les produits, les calculs, les processus et les contrôles.

Tout d’abord, la construction préfabriquée est un mode de construction qui consiste à fabriquer des éléments de structure en usine puis à les assembler sur place. Chaque composant des modules préfabriqués en bois est fabriqué aux dimensions exactes et assemblé sur place. Cela s’avère être la solution la plus efficace, car elle est durable et respectueuse de l’environnement. Le niveau de préfabrication est lié à la taille et à la complexité des éléments préfabriqués, ainsi qu’à la configuration du produit fini.

« Une maison standard en bois construite en région parisienne, avec un mur standard d’ossature bois, normé RT2012, RE2020, RT Existant, aura de fait une performance 20 % supérieure en termes d’isolation en comparaison avec la même construction en parpaings. » 12

Il existe un écosystème complet comprenant la maîtrise d’œuvre, les bureaux de contrôle, l’assistance à maîtrise d’ouvrage, les experts, etc. Les faiblesses des années 1980 comme les bonnes pratiques et la mise en œuvre sont en train d’être comblées. Cependant, on peut dire que cette méthode de construction présente certaines subtilités. Par exemple, réduire la taille des éléments préfabriqués en bois entraîne une augmentation des coûts de main d’œuvre sur place, et viceversa. De même, un système constructif utilisant uniquement du bois s’avère en pratique impossible pour des bâtiments dépassant une hauteur modérée. Il est conseillé d’intégrer des matériaux supplémentaires dans la conception à des points stratégiques pour satisfaire aux restrictions structurelles, réglementaires ou de protection incendie imposées, par exemple, par les Eurocodes 13 ou la législation spécifique à un pays.

12 https://www.scor.com/ sites/default/files/201811-focus_filiere_bois_construction.pdf

« FILIÈRE BOIS CONSTRUCTION. Une branche en pleine croissance ». SCOR FOCUS #24 - NOVEMBRE 2018

RT2012 - la réglementation thermique en France. RE2020 - la réglementation environnementale des bâtiments neufs en France.

RT Existant - la réglementation thermique pour les bâtiments existants en France.

13 LES EUROCODES sont les normes européennes de dimensionnement et de justification des structures de bâtiment et de génie civil.

FIGURE 30 :
Iconographie réalisation du chantier par l’agence « Archi5 »
Les éléments préfabriqués en bois :
Poteau poutre; Panneau de bois massif (CLT collé ou CLT cloué); Charpente bois lamellé-collé; Bardeau bois; Menuiserie mixte.

L’immeuble social de Jaurès Petit et l’habitat collectif de Saint-Mandé dans un cœur d’îlot, utilisent des structures réalisées à partir de panneaux en bois lamellé-croisé (CLT) ou de panneaux massifs en bois lamellé-croisé. Un chantier utilisant la filière sèche était particulièrement approprié pour cette zone. Cette approche, combinée aux méthodes de transformation du bois, diminue notablement le coût et l’empreinte carbone de la construction en accélérant la production de matériaux, en optimisant la logistique et en réduisant le temps nécessaire pendant la construction.

Les panneaux CLT 14 représentent un développement innovant dans le domaine de la construction, qui a permis a faire reculer les limites du boiss tout en améliorant ses avantages inhérents. Les panneaux ont des propriétés similaires à celles des structures en béton armé, mais en même temps, ils sont nettement plus respectueux de l’environnement et sans danger pour l’homme.

Les architectes ont adopté le développement durable, l’utilisation du bois a naturellement augmenté, contribuant ainsi à renforcer le secteur de la construction, capable de réaliser une grande variété de projets.

FIGURE 31 :
Iconographie l’agence « Mars architectes » Un habitat collectif dans un cœur d’îlot de Saint-Mandé à Paris (XII).
Le panneau Cross Laminated Timber (CLT)
FIGURE 32 :
Iconographie l’agence « Archi5 »
Un immeuble social de Jaurès Petit à Paris (XIX)
Le panneau Cross Laminated Timber (CLT)
14 CLT Cross Laminated Timber ou Panneau massif lamellé croisé.
BLONDEAU-PATISSIER Renaud, « Construire en CLT caractéristiques, comportements et mise en œuvre du bois massif lamellé-croisé ». Paris]: éd. le Moniteur, DL 2015, cop. 2015

En 2012, l’agence « Mars architectes » a été missionnée par GECINA pour réaliser une étude sur l’ensemble de son patrimoine parisien et révéler les constructibilités rendues possibles par la libération du COS, la loi Allure et la loi Duflot. Ce projet de 14 logements collectifs s’inscrit dans le cadre de cette étude. Livré en septembre 2020, il est situé à Paris dans le 12ème arrondissement, Avenue de Saint Mandé, en cœur d’ilot au sein d’une résidence construite dans les années 70 16 .

16 Le site l’agence « ARCHI5 »

https://archi5.fr/en/portfolio/ jaures-paris/

L’agence parisienne «Archi5», qui a remporté le concours d’architecture initié par Paris Habitat, comprenant deux opérations. L’ancienne concession Renault a été transformée en 149 logements crée par l’agence « Encore Heureux »; 75 logements en accession et 74 logements sociaux crée par l’agence « ARCHI5 » en accession ont pris place sur l’ancien site dédié aux voitures. L’un consiste en une construction neuve, située en pleine terre sur la moitié du garage démolie, tandis que l’autre implique une réhabilitation, avec un espace jardin aménagé sur une dalle, sur la portion du garage conservée.

En s’appuyant sur leur expérience 16 dans la conception de logements en bois, en mai 2016 l’agence « ARCHI5 » a commencé à travailler sur le projet de Jean-Jaurès.

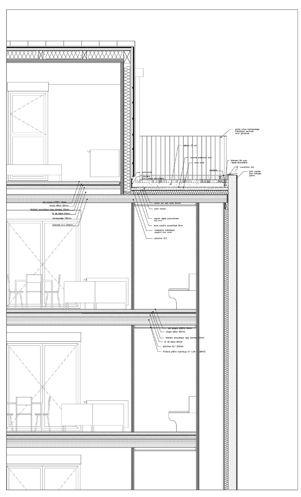
Nous voyons du béton coulé au niveau du sol dans la cour et sur les panneaux porteurs en CLT aux étages. Grâce à cette chape avec le plâtre et la laine de bois en sous-face permet d’atteindre une épaisseur de sol de 40 cm, répondant ainsi aux normes acoustiques NRA 15 .

15 NRA La réglementation acoustique des bâtiments neufs

16 https://www.cmpbois.com/ docs/mars-architectes-logements-bois-paris-saint-mande.pdf

Le projet de Saint-Mandé a été livré en septembre 2020

Le projet de Jaurès Petit a été livré en septembre 2021

https://www.pavillon-arsenal.com/fr/arsenal-tv/documentaires/paris-architectures/11888-73-logements-saint-mande-paris-12.html

FIGURE 34 :
Iconographie l’agence « ARCHI5 » (03 février 2020)
La phase de construction de Jaurès Petit à Paris (XIX)
FIGURE 35 :
Production personnelle capture d’écran (2023) Image et montage Guillaume Foresti, Lybellule, Antoine Plouzen l’agence « Mars architectes »
La phase de construction de 14 logements collectifs de Saint-Mandé à Paris (XII)
FIGURE 33 : Iconographie l’agence « Archi5 » Les projets de logements en bois réalisé depuis 2007 en France

LA MÉTHODE CHARGEMENT À PLAT

La méthode chargement à plat - sur l’image un panneau de plancher est déjà positionné horizontalement, tandis qu’un panneau de mur sera relevé immédiatement depuis le camion sans nécessité de le déposer provisoirement. « Cette méthode permet de simplifier le déchargement et de maximiser le chargement en volume des panneaux (environ 50 m²) » 17 .

17 BLONDEAU-PATISSIER Renaud, « Construire en CLT caractéristiques, comportements et mise en œuvre du bois massif lamellé-croisé ». Paris]: éd. le Moniteur, DL 2015, cop. 2015

36, 37 :

LA MÉTHODE CHARGEMENT VERTICAL

La méthode chargement vertical - ce moyen de transport est avantageux dans les situations où l’accès est difficile pour les chargements trop larges. « La capacité de chargement du camion est réduite (30 à 40 m3) à cause des chevalets de transport » 17. Le déchargement est plus complexe (pour les panneaux de plancher, le déchargement nécessite de poser initialement le panneau à plat avant de le soulever à l’aide d’une grue).

Iconographie Google + Production personnelle (2023)

Comment le CLT est transporté. La méthode chargement à plat et vertical.

L’INFLUENCE DU TRANSPORT SUR LE MODÈLE

INDUSTRIEL CLT

La question du transport du modèle industriel CLT est importante, puisque les dimensions des panneaux en dépendent. « Le gabarit maximal généralement retenu est de 13,5 m x 2,5 m. » 17 Des dimensions plus grandes peuvent être envisagées, mais sur demande. « Elle permet de charger le volume maximal de panneaux (environ 50 m²) et facilite le déchargement : un panneau de plancher est déjà en position horizontale et un panneau de mur sera redressé directement depuis le camion sans avoir à le déposer temporairement. Ce type de chargement peut transporter des panneaux de 16x3m sur une remorque classique» 17 . Tous les éléments sont transportés, puis déchargés sur l’avenue et livrés par un véhicule spécial directement sur le chantier, qui ne dispose pas d’un accès gratuit particulier.

Par exemple, dans le projet de Saint-Mandé dans un cœur îlot, toutes les opérations ont été réalisées à travers un parking reliant la rue au centre de l’îlot, par un sous-sol très petit.

Un véhicule spécial livre les éléments préfabriqués sur le chantier

FIGURE 38, 39 :

Production personnelle capture d’écran (2023)

Image et montage Guillaume Foresti, Lybellule, Antoine Plouzen ; l’agence « Mars architectes »

1 - Transport d’éléments de structure prêts à être assemblés de 14 logements collectifs de Saint-Mandé à Paris (XII)

2 - Plan masse le projet de Saint-Mandé. (L’entrée du parking est indiquée par une flèche)

FIGURE

ORGANISATION DE L’ESPACE : QUALITÉ D’USAGE

DANS L’HABITAT COLLECTIF ET SOCIAL À PARIS

Dans la deuxième partie, nous cherchons à comprendre si l’utilisation de structures préfabriquées en bois au cœur d’îlots aboutit à la création d’espaces de qualité ? Nous tenterons de décrire en détail l’aménagement de ces espaces, en mettant en avant les techniques, les défis et les limites associés à ce matériau. Verra-t-on innover dans la conception des logements collectifs et sociaux ?

LE JARDIN DEVANT SOI

À mesure que la ville s’accroît, les «conditions naturelles» y sont de moins en moins respectées. Par «conditions naturelles», on entend la présence, dans une proportion suffisante, de certains éléments du verdure. Au cours des derniers siècles, cette mesure a été perdue, contribuant de manière significative au malaise actuel qui pèse sur le monde. Une croissance incontrôlée a privé les villes de ces éléments essentiels, entraînant des conséquences aussi bien psychologiques que physiologiques. L’individu qui perd le contact avec la nature en ressent les effets, subissant des altérations tant au niveau de sa santé que de sa sensibilité de la vie urbaine. Les projets que j’analyse sont situés dans la capitale française. Paris est une ville plutôt grise et très minérale. Il n’a pas vraiment beaucoup de jardin. Il existe donc une volonté de créer des espaces verts sur cette île. Concernant la question climatique, Paris est une ville où de nombreuses personnes souffrent de la chaleur en été. Le jardin est à son tour l’occasion d’atténuer cet écart de température. Néanmoins un projet paysager n’est pas seulement un aménagement paysager, c’est un cadre de vie dans lequel, outre l’esthétique et le confort, il est extrêmement important de garantir la polyvalence, l’accessibilité et bien sûr, le respect de l’environnement des matériaux et des solutions utilisés et la sécurité. Les habitants de la ville expriment le besoin non seulement de mètres carrés dans des endroits spécifiques avec une bonne accessibilité aux transports vers le centre et le métro, mais aussi de logements offrant une qualité de vie élevée et surtout une part suffisante d’espaces verts. Le concept de l’intégralité du complexe résidentiel est l’un des éléments fondamentaux de la perception. Dans de nombreux cas, l’acheteur cesse de percevoir le logement acheté comme un espace limité uniquement par les quatre murs de l’appartement.

Dans les projets, nous constatons que les architectes prêtent attention à cette approche. Mais comme nous le verrons plus loin, la verdure ne peut pas avoir un effet positif sur le bâtiment dans tous les cas.

FIGURE 40 :
Production personnelle (2023)
Façade Sud-Est.
Un habitat collectif dans un cœur d’îlot de Saint-Mandé à Paris (XII)

Un projet d’aménagement paysager offre l’opportunité de retrouver le bonheur d’une vie saine et connectée à la nature, même au cœur d’un environnement urbain densément peuplé. Cela inclut les espaces publics ergonomiques tels que les couloirs et les zones de stockage des vélos, des poussettes etc. Vous pouvez prêter attention à la FIGURES 42, 44, de plus en plus de citoyens utilisent le vélo. Lorsque la conception inclut la possibilité de ranger les vélos, c’est une chose positive. Aujourd’hui, cela est particulièrement pertinent, car auparavant, ces souhaits étaient peu pris en compte. Outre un environnement piétonnier agréable, comprenant des aires de jeux conçues avec des matériaux respectueux de l’environnement pour les enfants de différents âges, des dendrophages avec différents scénarios de floraison des plantes et de nombreux espaces verts constituent un avantage. Surtout que la pandémie n’a fait qu’intensifier ce besoin.

FIGURE 42, 43
Production personnelle (2023)
Les zones de stockage des vélos.
1 - Un habitat collectif dans un cœur d’îlot de Saint-Mandé à Paris (XII)
2 - Un immeuble social de Jaurès Petit à Paris (XIX)
FIGURE 41 : Production personnelle (2023) Façade Nord.
L’idée des architectes est que le jardin pousse le plus spontanément possible. Un immeuble social de Jaurès Petit à Paris (XIX)

JAURÈS PETIT

Dans le projet de Jaurès Petit situé dans le XIXe arrondissement au nord-est de Paris, le lieu s’insère dans un environnement urbain dense et hétérogène. Le grand Parc de la Villette seul crée une large ouverture dans ce tissu urbain. Le centre de l’îlot, où se trouvait avant un garage Renault, n’est accessible que par les porches des deux immeubles résidentiels qui l’entourent. L’ambiance ce terrain contraste fortement avec celle de l’avenue Jaurès, animée par le bruit des moteurs de voiture.

L’agence « Atelier Roberta » 18 a travaillé sur le projet paysager. Malgré les contraintes initiales évidentes, l’objectif principal un projet paysager est d’effacer toute frontière afin de souligner la nouvelle perméabilité entre la rue Jaurès et la rue Petit. Dans le plan masse (Cf. FIGURE 45) 19 nous pouvons voir que cet îlot est divisé en deux sections, chacune étant affectée à un projet d’habitation distinct.

18 Le site l’agence « Atelier Roberta »

https://atelierroberta.com/ projets/jaures-petit

19 Le site l’agence « ARCHI5 » https://archi5.fr/en/portfolio/ jaures-paris/

FIGURE
FIGURE 44 : Production l’agence « Atelier Roberta » Coupe longitudinale sur le projet Jaurès.

La continuité et l’ambiance créées depuis la rue jusqu’à l’entrée résidentielle sont des dispositifs évolutifs qui assurent l’intimité des résidents et favorisent l’utilisation des espaces partagés.

Sur toute la parcelle des chemins piétonniers longent les bâtiments et fonctionnent également comme des voies d’échelle. « Dense et continu pour le cheminement, le jardin se répartit au voisinage des espaces plantés. Ce mode de gestion, élaboré à partir du jardin de la Vallée, puis théorisé et élargi à tous les espaces et toutes les échelles, s’est exporte dans les villes en France, mais aussi à l’étranger. Il met en évidence une innovation dans la gestion des espaces verts, jadis exploites comme des espaces stériles » 20 . L’idée des architectes est que le jardin pousse le plus spontanément possible. La pluie est collectée pour l’arrosage des végétaux.

Avenue

Jean Jaurès

FIGURE 47 : Production personnelle (2023)
Vues les chemins piétonniers un immeuble social de Jaurès Petit à Paris (XIX)
FIGURE 46 : Iconographie l’agence « Archi5 »
Vues les chemins piétonniers un immeuble social de Jaurès Petit à Paris (XIX)
FIGURE 48 : Production personnelle (2023) Axonométrie de l’accessibilité un immeuble social de Jaurès Petit à Paris (XIX)
Rue Petit

SAINT-MANDÉ

Le projet de Saint-Mandé prend place parmi l’architecture typiquement haussmannienne dans le XIIe arrondissement de Paris. ll se situe au-dessus d’un parking existant. Depuis la très animée avenue de Saint-Mandé, un passage mène à une cour verdoyante. Au bout du chemin, se dresse un bâtiment en bois. Pour compenser la disparité d’échelle marquée par rapport aux bâtiments environnants, le projet établit une identité distinctive grâce à une interaction entre l’architecture et la végétation. Cet espace végétalisé participe au développement de la biodiversité en ville.

Dans une interview, Sylvain Reti, Raphaël Renard, Julien Broussard ont déclaré que l’une des tâches principales du projet paysager était l’organisation de l’entrée, créant une transition en douceur entre le monde urbain et le monde intime de la maison. « Le moment du retour à la maison est une étape intermédiaire essentielle qui contribue de manière significative à la qualité et à l’expérience positive du logement » 21

21 https://www.pavillon-arsenal.com/fr/arsenal-tv/ documentaires/parisarchitectures/11888-73-logements-saint-mande-paris-12. html

FIGURE 49 : Production les agences « Mars architectes » Plan RDC. Le schéma du parcours de 14 logements collectifs de Saint-Mandé.
MARS_ Saint Mandé
FIGURE 50
Production les agences « Mars architectes » Coupe. Il y a un parking sous le bâtiment. Le projet de 14 logements collectifs de Saint-Mandé est situé au-dessus d’un parking existant.
FIGURE 51 Production personnelle (2023) « Le soleil, la verdure, l’espace » Le chemin vers l’entrée de 14 logements collectifs de Saint-Mandé.

Après avoir discuté avec madame Séné «une manager l’immobilier 14 logements Saint-Mandé», j’ai pu connaître quelques détails précis sur le bâtiment. Car elle a assisté à la naissance de cet édifice en bois, jusqu’à sa construction, avant sa mise en service.

Madame Séné : « C’est moi qui m’occupe de cet immeuble et j’ai vu tous les travaux de construction, donc je connais bien ce bâtiment. La partie de ce côté (elle indique le chemin qui mène au bâtiment en bois), que l’on appelle la partie boisée, est le jardin. On accède dans cet immeuble par un petit chemin. La façade de cette partie est en bois. Il y a quatorze logements qui se répartissent en rez-de-chaussée plus trois... en fait c’est plus deux, parce que trois c’est le duplex ».

Ma première réflexion : quand j’ai vu ce bâtiment, il m’a semblé qu’il était très petit alors que les bâtiments environnants semblent si grands... car ce que je perçois sur la photo n’est pas exactement comme dans « la vraie vie » ... La forêt au milieu de Paris, pour être honnête, m’a impressionnée. Dans la mesure où l’environnement est complètement gris.

Ensuite nous allons dans une autre partie d’îlot.

Madame Séné : « L’autre face, comme nous le verrons plus tard, est entièrement décorée en blanc et représente un espace zen. La façade est en bois lamellé. Il n’y a pas autant de végétation. Cela fait partie des points de rencontre pour les résidents, mais permet également d’accéder aux appartements individuels via un escalier ouvert en acier et des arcades environnantes. Le sol de cette partie est d’origine. Il y a un parking en dessous. Nous ne mettons pas de fleurs dans cette partie, parce qu’il y a des problèmes d’infiltration d’eau. Dans ce projet la toiture est végétalisée. Mais lorsqu’il fait une chaleur intense en été (40 degrés), la température dans les appartements du dernier étage augmente au maximum ». Ensuite nous sommes montés au premier étage par un escalier en métal blanc. J’ai remarqué une terrasse et j’ai demandé quel était cet endroit ? (Cf. FIGURES 54)

FIGURE 53 : Production personnelle (2023)
Le chemin vers l’entrée de 14 logements collectifs de Saint-Mandé.
FIGURE 52 : Iconographie l’agence « Mars architectes »
Le chemin vers l’entrée de 14 logements collectifs de Saint-Mandé.

Madame Séné : « Nous montons les escaliers en métal blanc. Il n’y a pas d’ascenseur dans ce bâtiment. Mais par contre les escaliers en métal : ça fait des bruits. Il y a un appartement dans lequel les fenêtres sont situées sur le toit-terrasse. En général, selon le projet, il s’agit d’une terrasse, mais son accès est actuellement fermé. C’est un endroit même inaccessible pour les locataires en raison de problèmes de bois. Il y a des ouvertures de fenêtres sur le toit de cette terrasse en raison du manque de lumière du jour, puisqu’il n’y a qu’une seule fenêtre sur la façade. Un autre problème sur l’îlot est le niveau sonore. Vous entendez tout le bruit et tous ceux qui viennent. Tous les locaux qui sont situés au rez-de-chaussée sont réalisées selon la norme PMR » 22

FIGURE 55, 56
Production personnelle (2023) 1 - L’entrée dans la cour blanche de 14 logements collectifs de Saint-Mandé.
- La cour blanche de 14 logements collectifs de Saint-Mandé.
FIGURE 54 : Production personnelle (2023) Toit-terrasse avec ouvertures de 14 logements collectifs de Saint-Mandé

QUALITÉ ET ACCEPTABILITÉ

Dans ce projet, la lumière et l’ombre jouent un rôle dans la création d’une ambiance forestière. On remarque que le bâtiment n’est pas au soleil, mais à l’ombre, compte-tenu de la densité des quartiers parisiens et de la végétation dense environnante, la lumière du soleil disparaît. N’est-ce pas un inconvénient pour une île qui a déjà peu accès au soleil ? Sur la photo FIGURES 59, on voit qu’une énorme quantité de verdure bloque la fenêtre donnant sur la cour. Cela semble étrange, puisque nous nous efforçons de verdir les cours des villes, améliorant ainsi l’environnement. Mais dans le même temps, les habitants perdent le bénéfice direct de la lumière naturelle extérieure dans leur quotidien. Pour les projets, il est sans doute important de choisir les bonnes plantes qui n’affectent pas l’habitat ou la structure du bâtiment. Bien que des arbres recouvrent les fenêtres d’un côté, il n’y a aucun aménagement paysager significatif de l’autre côté. Nous sommes donc confrontés à un « vis-à-vis ». Dans la cour blanche (Cf. FIGURES 60), il n’y a pas de volets aux fenêtres. En passant, en regardant par la fenêtre, j’ai vu tout ce qui se passait à l’intérieur de la maison. Le « vis-à-vis » détruit l’intimité des espaces intérieurs.

Madame Séné : « Le bâtiment n’a que 3 ans et ça vieillit très...très mal. À l’extérieur c’est très joli mais si vous regardez attentivement les problèmes internes, vous risquez de rencontrer quelque chose de grave ». Dans les FIGURES 57, 58 nous voyons qu’il existe des problèmes l’infiltration d’eau dans les bâtiments. J’ai remarqué la destruction du bois et lui ai demandé ce qu’elle en pensait ?

Madame Séné : « Oui, ici à cause des pluies du bois a commencé à s’effondrer. Au lieu de faire quelque chose comme ça ... (elle a montré un fragment sur une maison voisine) ... Dans ce cas, tout se passe dans l’autre sens. C’est -à-dire ça coule vers le petit tuyau. Il se dirige vers les appartements. Alors quand il pleut, ça rentre dans les appartements. Une erreur de construction ».

FIGURE
FIGURE 57, 58 : Production personnelle (2023) 1,

Vraiment, comment cela a-t-il pu arriver ? Malheureusement, je n’ai pas eu l’occasion de connaître directement la réponse des architectes Mars. Après tout, si tout avait été calculé correctement, cette erreur apparemment stupide n’aurait pas dû se produire. L’infiltration d’eau dans les constructions constitue une préoccupation majeure susceptible d’engendrer des dégâts significatifs à l’intégrité de la structure et de compromettre la santé des habitants. De plus, en discutant avec un employé de l’immeuble, elle a déclaré qu’en hiver, les locaux sont froids et que les résidents ne peuvent rien y faire.

Au fil des années, l’exposition au soleil et à l’humidité donnera au bois une patine grise naturelle. Il est essentiel de choisir du bois de qualité 4 spécialement conçu pour la construction et provenant de forêts durables afin de garantir que le bois résistera à l’épreuve du temps. Ce changement de couleur ne modifie pas les propriétés mécaniques du bois, mais malgré cela, dans la plupart des cas, cela lui donne un aspect authentique. Il est intéressant de noter que les architectes d’ARCHI5 ont bien réfléchi, car je n’appellerais pas cela un accident. La couleur de la façade en bois ne contraste pas avec les poutres sur lesquelles ce phénomène est visible. Avec le temps, les poutres semblent se transformer en une couleur similaire, qui apparaît harmonieusement.

Un autre problème qui s’est posé dans les deux exemples est celui du bruit et de diverses nuisances sonores. Nous pensons que l’îlot est protégé par le bâtiment du bruit de la route, mais à l’intérieur nous sommes confrontés au même problème surtout si nous avons des voisins bruyants. Il est à noter que les effets de propagation du son doivent être pris en compte lors de la conception des espaces paysagers et de l’architecture. Au centre de l’îlot, les sons résonnent très fort, ce qui provoque de gros désagréments.

FIGURE 61
Production personnelle (2023)
Façade Est.
Formation d’une patine grise naturelle sur le bois de la façade de Jaurès Petit à Paris (XIX)

FIGURE 62, 63, 64 : Production l’agence « Archi5 » de 14 logements collectifs de Saint-Mandé.

1 - Plan R+1. Le schéma qui montre les logements traversants.

2 - R+1. Vue 1 - Façade ouest. L’espace balcon. L’entrée côté jardin.

3 - R+2. Vue 2 - Façade Est. L’entrée côté cour blanche.

FIGURE 65 :

Production l’agence « Archi5 » de 14 logements collectifs de Saint-Mandé.

Plan R+1. Le schéma qui montre fluidité de l’espace.

L’OPTIMISATION DE LA CIRCULATION

LES APPARTEMENTS TRAVERSANTS

SAINT-MANDÉ

Au rez-de-chaussée, on retrouve cinq appartements d’une à deux pièces, accessibles par les deux cours intérieures ou par le passage du nouveau bâtiment. Le premier étage comprend quatre appartements, avec la possibilité d’une utilisation flexible grâce à des portes coulissantes entre les espaces nuit et séjour. Les deuxième et troisième étage abritent quatre maisonnettes. À l’exception de trois appartements au rez-dechaussée, toutes les unités s’étendent d’est en ouest. Dans la cour intérieure verte, sont orientés les chambres et les salons. À l’est situé, les cuisines et les salles de bains font face à la cour intérieure blanche. « Côté cour blanche, l’entrée et les pièces d’eau profitent toutes d’un éclairage naturel. La simplicité cette organisation permet de concentrer de manière optimum les fluides dans l’épaisseur d’une bande centrale technique qui intègre aussi la structure et les rangements. Tout comme le salon et la chambre toutes les pièces sont reliées entre elles par des panneaux coulissants. La stratégie des coursives permet la mise en place de logements systématiquement traversants, qualité intrinsèque permettant une dilatation de l’espace, l’affranchissement des couloirs et la ventilation naturelle » 23 .

Dans une interview, Sylvain Reti, Raphaël Renard, Julien

Broussard ont déclaré que que « ...La qualité du logement elle vient de la séquence d’entrée mais elle vient aussi de son plan évidemment. C’est toujours bien de faire des appartements traversants. On pense qu’il y a une qualité évidente pour faire des appartements traversants : pour la ventilation ; pour le soleil ; toutes les pièces sont éclairées ; une optimisation de circulation. Enfin, ces plans présentent de nombreux avantages » 24 En effet, après analyse des schémas, on peut constater que le logement est hyper efficace. L’organisation peut être systématique et peut être se reproduisent. Tout est assez rationnel car il y a un côté technique (salle de bain, cuisine) et quotidien (chambre, salon). Nous nous déplaçons rationnellement dans l’espace sans perdre de temps à traverser les couloirs.

23 Le site l’agence « Mars architectes» https://www.mars-architectes.com/project/saint-mande 24 https://www.pavillon-arsenal.com/fr/arsenal-tv/ documentaires/parisarchitectures/11888-73-logements-saint-mande-paris-12. html

JARDIN
COUR BLANCHE
Vue 1
Vue 2

JAURÈS PETIT

Les deux opérations ne semblent pas substantiellement similaires, car leur volume est différent. Le bâtiment Jaurès présente une charpente apparente qui soutient les balcons. Le cadrage des perspectives et ajustement de l’éclairage contribue à la jouissance d’un habitat sain, permettant l’accès à la nature malgré la densité urbaine environnante. Les volets coulissants augmentent l’intimité en cachant les vues latérales. Au rez-de-chaussée, se trouvent trois appartements d’une pièce, cinq appartements de 2 pièces, deux appartements de 3 pièces, accessibles par deux entrées intérieures. Seul l’appartement de trois pièces dispose d’un logement traversant. À travers cette analyse, on voit que l’ organisation des logements est assez classique. Tous les appartements ne disposent pas d’immeubles traversants avec jardin, balcon ou terrasse. Le logement est orienté d’est en ouest. C’est un schéma conventionnel qui ne présente pas une grande diversité, bien que chaque appartement bénéficie de situations et d’orientations appréciables. On trouve une entrée avec rangement, le séjour qui est distributif, des chambres de petite à moyenne taille, regroupées dans la partie privée (espace nuit), des séjours ouverts sur la cuisine, sauf indication contraire sur plan, et des salles de bain sans ouvertures, sans lumière naturelle ni ventilation. Presque tous les appartements disposent d’un couloir et, malgré le fait qu’ils représentent un espace aveugle, sans vue ni lumière, son optimisation évite le gaspillage d’espace. En plus des escaliers, il y a un ascenseur. Le couloir sur la FIGURE 67, 68 sont assez ergonomiques, l’accès aux personnes handicapées ne posera pas de problème.

FIGURE 69, 70, 71 :
Production personnelle (2023)
1 - Entrée d’un immeuble social de Jaurès Petit.
2 - Couloir menant à l’appartement d’un immeuble social de Jaurès Petit.
FIGURE 66, 67, 68
Production d’un résident vivant de 74 logements sociaux de Jaurès Petit (2023) Vue de l’appartement.

Jaurès Petit

les appartements de pièces

les appartements de 2 pièces

les appartements de 3 pièces couloir

les logements traversants

L’entrée et sortie

L’entrée principale du bâtiment

72 : Production personnelle (2023) basé sur le plan R+1 l’agence « Archi5 » Plan R+1. Le schéma qui montre fluidité de 74 logements sociaux de Jaurès Petit.

: QUALITÉ

06/04/2023

FIGURE

Ce que j’ai particulièrement remarqué, c’est que ce projet utilise du sable. Les informations sur cette technologie se sont avérées difficiles à trouver. En communiquant avec mon ami ingénieur ukrainien et quelques ressources françaises que j’ai réussi à trouver, j’ai essayé de comprendre cette technologie. La technologie de chape « sèche » implique l’utilisation de sable pour insonoriser le bâtiment. Pour ce faire, les plafonds inter-étages sont recouverts de sable. Par exemple, si l’on regarde une dalle en béton armé, elle est constituée de sable, mais il existe des liants qui modifient les propriétés d’insonorisation. Et si vous prenez du sable sous sa forme pure, alors entre les grains se trouvent des espaces d’air à travers lesquels le son (mouvement ondulatoire de l’air) perd son intensité. Physiquement, il s’agit d’une analogie complète avec les brise-lames constitués de grosses pierres au bord de la mer, à travers lesquels la vague perd de l’énergie - ainsi les particules du matériau amortissent l’énergie du « bruit » dû à la structure granulaire.« En revanche, le poids du sable est à ne pas négliger dans le dimensionnement de la structure : il est de 1700 kg au m3 (environ 9 tonnes au total) » 25 . Cette mesure amortit le son créé directement par la dalle de plancher, à la manière d’une membrane. En termes simples, les matériaux en vrac absorbent bien les ondes sonores, confèrent au plafond une inertie et amortissent les vibrations.

25 https://www.pierreetterre.org/

https://www.pierreetterre.org/wp-content/ uploads/2016/02/see_ isolation-phonique-plancher.pdf

FIGURE 73, 74
Production l’agence « Archi5 » Coupe de 74 logements sociaux de Jaurès Petit. 06/04/2023
40 FIGURE 75 : Production l’agence « Archi5 » de 74 logements sociaux de Jaurès Petit. Vue du séjour.

LE DÉTAIL, REFLET DE L’ENSEMBLE.

L’ESTHÉTIQUE DE LA FAÇADE DU BOIS

Les écritures de façade font partie de la qualité de l’habitat. Cependant, il est crucial de se poser la question : Comment pouvons-nous parvenir à la fois à l’esthétique et à la fonctionnalité ? Cette question apparemment simple devient complexe lorsque nous nous tournons vers le concept apparemment subjectif de beauté et cherchons à établir l’esthétique comme une valeur objective pour ceux qui sont impliqués dans la construction.

La plupart des architectes ont tendance à éviter les bâtiments qui attirent l’attention avec des formes volontairement choquantes et des façades très colorées. Par exemple, des architectes réputés pour leur sens artistique et esthétique, tels que Herzog et de Meuron 26, accordent une préférence aux matériaux naturels, à la sobriété et à l’ascétisme dans leurs conceptions architecturales. Il est beaucoup plus sensé d’envisager les bâtiments comme des points d’observation, des lieux destinés à la contemplation de la beauté plutôt que de résister aux éléments. Les fenêtres revêtent une importance particulière, car plus elles s’apparentent à des cadres de paysages intérieurs, plus elles sont considérées comme réussies. En effet, la conception architecturale doit intégrer de manière harmonieuse la vue, comme en témoignent les choix de ces architectes et la valeur attribuée aux fenêtres en tant que cadres de paysages. L’architecture est souvent réduite à sa dimension esthétique, réduisant la fonctionnalité au statut d’une qualité rationnelle, dénuée de toute considération subjective, esthétique ou psychologique.

L’architecte ne doit pas perdre l’esthétique de la façade, mais il ne peut pas non plus disperser les fenêtres au hasard le long de la façade pour des raisons esthétiques sans accepter le fait que la lumière du soleil est un aspect très important pour les résidents des appartements.

26 Herzog & de Meuron est une agence d’architecture suisse basée à Bâle, créée en 1978 par Jacques Herzog et Pierre de Meuron.
https://www.herzogdemeuron.com/
FIGURE 76 : Production personnelle (2023)
Façade Est. Un immeuble social de Jaurès Petit à Paris (XIX)

JAURÈS PETIT

Dans le projet de Jaurès Petit, l’aspect du bois crée une tout autre atmosphère par rapport à la façade austère du projet Saint-Mandé. Les écritures de façade fait partie de la qualité des logements. L’affichage visible des charpentes en bois sur la façade dans les espaces publics démontre le caractère constructif du projet. « Cette volonté de mettre en avant le matériau bois se retrouve également au cœur des logements dans lesquels nous avons fait le choix de laisser le CLT visible dans les pièces sèches, comme un manifeste » 27. En termes de perception la façade est assez belle, elle présente une certaine de cohérence en bois en intérieur et extérieur. Le bâtiment est orienté est-ouest, perpendiculaire aux bâtiments d’extrémité, ce qui permet un maximum de vues dégagées. Des volets coulissants sont utilisés pour renforcer l’intimité des habitants et limiter les vues latérales.

Les façades massives, combinant les composants de la structure principale à ossature bois, sont livrées et installées d’un seul bloc par chaque étage. Il est cohérent que les balcons soient planifiés comme une extension de la structure, constituant ainsi des ponts thermiques significatifs. La stratégie consiste à isoler uniquement les parois verticales, où les isolations intérieures et extérieures sont équivalentes dans ce cas.

Les balcons, malgré ces défauts, sont intéressants car dans le projet ils sont orientés plein sud. Ils ne sont pas étroits et complètent donc l’espace des pièces existantes. Ils génèrent des zones d’ombre dans les logements pendant l’été lorsque le soleil est haut dans le ciel, tout en ne bloquant pas la lumière solaire en hiver lorsque le soleil est bas, permettant ainsi de bénéficier de gains solaires. De plus, l’utilisation des balcons offre aux résidents un espace interstitiel qui est une extension de l’espace intérieur qui le précède. Il offre à l’habitant un contact avec le monde extérieur, le paysage et l’environnement extérieur, la possibilité de ressentir les rayons du soleil, l’air et les conditions météorologiques.

FIGURE 78, 79, 80 : Iconographie l’agence « Archi5 » ;
Photo à l’extrême droite production personnelle (2023)
Photo de balcon dans un immeuble social de Jaurès Petit à Paris (XIX)
FIGURE 77 : Iconographie l’agence « Archi5 » Façade Est. Un immeuble social de Jaurès Petit à Paris (XIX)

SAINT-MANDÉ

Selon les explications des architectes, l’idée de créer un bâtiment avec des piliers de support s’inspire des temples japonais. « A travers ce rythme, mais aussi à travers l’expression de la trame des balcons, le choix de laisser les assemblages visibles, le jeu des volets coulissants, émerge une écriture architecturale à la fois simple, forte, et originale, totalement en osmose avec le jardin. Cette symbiose entre l’architecture et son paysage donne au lieu à une ambiance d’une profondeur particulière, une intimité sereine qui réussit à faire oublier les constructions qui l’entourent et ce malgré la proximité et la grande différence d’échelle » 28. A noter que la composition végétale a un effet positif sur les façades du bâtiment. Les façades finalement construites en bois avec des poteaux porteurs qui devraient pouvoir s’ouvrir vers l’extérieur, mais on constate que l’effet est inverse. Et si l’on y réfléchit, ces formes peuvent être reproduites à partir de béton. Alors qu’est-ce qui est unique dans ces formes ? De plus, comme il y a si peu de lumière au centre de l’îlot, vaut-il la peine d’essayer de créer une façade fermée ?

28

https://www.mars-architectes.com/project/saint-mande

https://www.darchitectures. com/logements-saint-mandeparis-12-a5223.html

FIGURE 82, 83 Iconographie l’agence « Mars architectes » de 14 logements collectifs de Saint-Mandé.
1 - Façade Ouest.
2 - Façade Est. La cour blanche.
FIGURE 81 : Production l’agence « Mars architectes » Façade Sud-Est de 14 logements collectifs de Saint-Mandé.

Façade Bois

1. Toiture: CLT + pare vapeur + isolant + étanchéité + bavette;

2. Zinc à joint debout

3. Volet Bois Coulissant en Bois en dougla; 4. Menuiserie bois;

5. Garde-corps treillis soudé sur cadre;

6. Plancher parquet + chape 5cm + assour + CLT;

7. Platelage bois douglas

8. Plancher CLT raione + étanchéité + bavette

9. Poteau/poutre bois en lamellé collé douglas

10. Mur Doublage intérieur plâtre + laine de bois, MOB, panneau bois fixe en douglas

« Côté jardin, séjour et chambre possèdent chacun un accès au balcon. De plus ils communiquent directement entre eux par un double système de panneaux coulissants, organisant les déplacements entre les deux pièces de manière fluide »

29 . Les architectes affirment que les balcons protègent contre les intempéries les volets et les menuiseries en bois, en les gardant encastrés.

Madame Séné : « Le problème de l’infiltration d’eau est catastrophique. Les bois gonflés ça dépend de l’humidité. Car par exemple, lorsqu’il pleut beaucoup, les volets sont difficiles à ouvrir en hiver. L’architecte a décidé de rendre la hauteur très basse, et on constate qu’à certains endroits le bois frotte ». Revenant au dialogue avec Mme Sène, cette décision des architectes concernant la façade s’est avérée peu fonctionnelle lorsqu’elle est utilisée fréquemment.

L’autre façade, située à l’ouest, n’a aucun attrait esthétique. Mme Sène, précise qu’il n’y a pas de volets sur cette façade et qu’il n’est pas possible d’en installer. Dans la plupart des endroits, les panneaux forment des trous obliques, qui n’ajoutent aucune esthétique. Pour plus de précision, vous pouvez voir des témoignages photographiques des volets et panneaux des logements étudiés.

FIGURE 84, 85 : Production l’agence « Mars architectes » Façade Ouest et coupe de 14 logements collectifs de Saint-Mandé.

29 Le site l’agence « Mars architectes»

https://www.mars-architectes.com/project/saint-mande

https://www.darchitectures. com/logements-saint-mandeparis-12-a5223.html

FIGURE 88 : Production personnelle (2024)

CONCLUSION

En conclusion, sur un chantier, les structures préfabriquées en bois constituent une technologie assez efficace. En prenant l’exemple de deux opérations, on peut affirmer que le choix des structures préfabriquées en bois est motivé non seulement par leurs bénéfices environnementaux, mais également par le fait qu’il s’agit d’un matériau capable de s’intégrer harmonieusement au cœur de quartier parisien. Cette étude a démontré que la préfabrication en bois est structurellement viable. La construction en bois ouvre des opportunités d’innovation technique sur les chantiers, allant au-delà de la sélection des matériaux pour inclure des aspects tels que la conception basée sur le BIM, la préfabrication et les méthodes de levage personnalisées. Mais on ne peut pas dire que l’architecture préfabriquée en bois crée des qualités architecturales, puisque dans cette étude j’ai décrit les inconvénients spécifiques du bois que l’on peut rencontrer. Dans le contexte actuel de contraintes de construction urbaine, lancer des projets sans considérer leur mise en œuvre sur site pose un défi. Car la valeur environnementale diminue lorsque le bois est transporté sur de longues distances. Pour réellement encourager la construction durable en bois, les secteurs nationaux et régionaux doivent être développés, favorisant ainsi l’utilisation du bois local dans la construction. Une attention particulière doit être portée aux détails de conception tels que les fronces, les rythmes, les proportions et les essences de bois pour créer une utilisation de qualité et une esthétique cohérente. Parce que l’habitat se développe rapidement, notamment à Paris, reflet d’une société de consommation rapide et mondialisée qui homogénéise notre environnement au nom de la rentabilité ou plus pragmatiquement, de la rentabilité des projets. Deux cas d’habitat collectif sont localisés dans la ville de Paris, connus pour son caractère plutôt gris et minéral, dépourvus d’espaces verts étendus. Au fur et à mesure du développement de la ville, les « conditions naturelles », c’est-à-dire la présence suffisante d’éléments tels que la verdure, fut de moins en moins respectée dans les premiers développements de l’architecture préfabriquée.

FIGURE 89 : Production personnelle (2024)
Vue de l’Arc de Triomphe et de la Tour Eiffel à Paris. La ville de Paris, connus pour son caractère plutôt gris et minéral.

30 % des bâtiments à structure bois ou mixte ;

50 % des surfaces de logements bas à structure tout bois ;

80 à 90 % des bâtiments avec une enveloppe bois ;

Volume de bois structurel mis en œuvre : une estimation des opérations au stade PC de 22 000 m3

Du point de vue climatique, cette ville est présente un défi en raison des épisodes de chaleur estivale qui affectent de nombreuses personnes. Les projets montrant clairement une volonté de créer des espaces verts dans un cœur de l’îlot, qui est palpable. Dans cette optique, la création de jardins offre une opportunité d’atténuer ces écarts de température et de contribuer à la résolution des problèmes liés au climat. Les Citadins perdent contact avec la nature et en ressentent les conséquences, subissant des changements tant dans leur santé que dans leur sensibilité à la vie urbaine. Il est très important que les architectes pensent non seulement à l’architecture, mais aussi à l’environnement, qui affecte directement les habitants. À ma grande déception, j’ai découvert de nombreux défauts dans 14 logements de Saint-Mandé. Oui, l’architecte a créé un lieu très attractif, dans lequel on retrouve une silhouette assez stricte du bâtiment. Mais d’un autre côté, l’architecte a fait du travail efficace en organisant l’espace. Les deux projets analysés présentent une diversité significative en ce qui concerne les types de logements proposés. L’extérieur du projet Jaurès Petit crée une toute autre atmosphère par rapport à la façade austère du projet Saint-Mandé. Le projet a fait très bonne impression, d’autant plus qu’il s’agit d’un projet de logement social. Considérant qu’il ne s’agit pas du premier bâtiment en bois de l’agence, l’architecte a réussi à l’intégrer au bâtiment sans détruire le contexte interne de l’îlot. Lors d’une conversation avec un habitant de cette maison, j’ai appris que les gens sont satisfaits de la qualité du logement.

Les prochains Jeux Olympiques de 2024 30 à Paris seront l’occasion pour le secteur de la construction de bois de montrer au public ses capacités, ses compétences, ses responsabilités environnementales. Ils représentent également une formidable opportunité de s’implanter à l’international et d’augmenter la part du bois dans la construction et l’aménagement en France. Mais quelles conséquences peut-on attendre des futurs projets ? Nous ne pouvons qu’espérer que les projets seront de haute qualité et conformes à toutes les normes.

30 https://www.lecommercedubois.org/actualites/943/jo-2024-le-villageolympique-en-images https://franceboisforet. fr/2021/03/23/bois-et-jeuxolympiques-et-paralympiques-de-2024/l

FIGURE 91 :
Doc. Doug And Wolf, CoBe, KOZ, Atelier Georges, Lambert-Lénack, SOA Architectes, Dream, Barrault-Pressacco (23 mars 2021) Le Village des athlètes à Paris.
Chiffres bois :
FIGURE 90 : Iconographie Emmanuel Dunand / AFP. Pour les Jeux olympiques de Paris 2024, de nombreuses constructions seront en bois, comme ici à Saint-Ouen.

BIBLIOGRAPHIE ICONOGRAPHIE

BIBLIOGRAPHIE

ARTICLES :

BERTHIER Stéphane « Le développement expérimental en situation de projet. Études des modes constructifs en bois dans l’architecture de Lipsky+Rollet », Les Cahiers de la recherche architecturale urbaine et paysagère, 1 | 2018.

BERTHIER Stéphane « Le renouveau de l’architecture de bois en France, 1965-1985 : une expérimentation industrielle ». Le bois, 34 | 2017 .

BRAUSCH Géraldine (dir.)*. CIAM / LE CORBUSIER. LA CHARTE D’ATHÈNES. (1933 / 1941 / 1957). 2016 * Ce texte est inspiré de l’atelier de lecture critique d’ouvrages classiques de le pensée urbaine, co-organisé par la Maison des Sciences de l’Homme de l’ULg et l’asbl urb Agora en octobre et novembre 2015. Y participaient : Tatiana FALALEEW, Antonin LOUIS, Mathieu LEROY, Adrien LOUIS, Jonathan COLLIN, Ludovic DEMARCHE, Marc GERARD, Roger NZABAHIMANA, Dominique ROODTHOOFT, Géraldine BRAUSCH (animatrice).

DEHAN Philippe « La qualité architecturale. Acteurs et enjeux. La qualité architecturale entre art et usages », 5 | 2009.

EFFOSSE Sabine « Le logement dans l’immédiat après-guerre une priorité secondaire, 19451949 In L’invention du logement aidé en France L’immobilier au temps des Trente Glorieuses » Chapitre II. [En ligne]. Vincennes : Institut de la gestion publique et du développement économique, 2003 (généré le 23 novembre 2021).

FRED EDMOND Boafo, JIN-HEE Kim, JUN-TAE Kim « Performance of Modular Prefabricated Architecture: Case Study-Based Review and Future Pathways » .

GUERIN Grégoire « La préfabrication comme outil de narration pas d’architecture sans structure », 2019

OUVRAGES

:

BOUCHET-BLACOU Géraldine, « Préfabrication de l’habitat. Une histoire technique et culturelle. L’Harmattan – Ville & Entreprises », Décembre 11, 2020.

BLONDEAU-PATISSIER Renaud « Construire en CLT : caractéristiques, comportements et mise en œuvre du bois massif lamellé-croisé » [Paris] : éd. Le Moniteur, DL 2015, cop. 2015.

GRAF Franz, DELEMONTEY Yvan, « Histoire et sauvegarde de l’architecture industrialisée et préfabriquée au XXe siècle », Juillet 2020.

GUERIN Serge « La société résiliente. Plongée dans la France du logement social et de l’innovation », France 2021.

PANERAI Philippe, CASTEX Jean, DEPAULE Jean-Charles « Formes urbaines : de l’îlot à la barre » Edition : 5th or later Edition. Published by Parenthèses, 1997.

TIMBERLAKE James, KIERA Stephen « Loblolly House: Elements of a New Architecture », May 21, 2008.

JOHNSON Philipe, CHRISTENSEN Peter « Home Delivery: Fabricating the Modern Dwelling, at The Museum of Modern Art, New York ». Illustrated, July 20 – October 20, New York 2008.

SALLÉ-HOYET Nadia « Matériaux et architecture durable : fabrication et transformations, propriétés physiques et architecturales, approche environnementale » 3e édition. Malakoff : Dunod, DL 2020

TIMBERLAKE James, SMITH Ryan E. « Prefab Architecture: A Guide to Modular Design and Construction » 1st Edition; John Wiley & Sons: New York, NY, USA, 2011

MÉMOIRE

:

ARGUELLE Alexandre. Mémoire : « La construction hybride en bois : mixités de matériaux dans les bâtiments de moyenne et grande hauteur en bois » École nationale supérieure d’architecture de Nantes, 2018.

BLASER Yannick. Mémoire : « Aujourd’hui, des logements économiques en bois » Ecole d’Architecture de Grenoble, 2011.

DELEMONTEY Yvan « Le béton assemblé, préfabriquer la France de l’après-guerre (1940-1955) » Thèse de doctorat en architecture, Université Paris 8 (Ecole doctorale Ville et Environnement) / Université de Genève (Institut d’architecture -IAUG), 19 nov. 2009 .

LEYDIER Clémence. Mémoire : « Les qualités de la construction bois dans l’habitat de grande hauteur : comparaison d’un immeuble bois et d’un immeuble béton à Strasbourg » Ecole nationale supérieure d’architecture Clermont-Ferrand 2021.

FRANCESCHI Marine, LIPSKY Florence, WEILL Jean-Marc. Mémoire : « Préfabrication, développement durable et réversibilité ; le recours à la préfabrication permet-il de concevoir une architecture durable et réversible ? », Ecole Nationale Supérieure d’architecture de Marne-LaVallée, Champs-sur-Marne, 2015.

RAPPORT

:

RIVATON Robin, MICHEL Bernard « L’industrialisation de la construction », Paris, Rapport 2021.

AGENCES D’ARCHITECTURE :

https://archi5.fr/portfolio/jaures-paris/ http://encoreheureux.org/?lang=en https://www.mars-architectes.com/project/saint-mande https://www.apur.org/fr https://www.herzogdemeuron.com/projects/149-rue-des-suisses-apartment-building/

PODCASTE :

OU EST LE BEAU ? Le podcast sur le beau au service du vivant - Episode #170 - Anna Chavepayre, un appel sensationnel pour une architecture vivante (Collectif Encore)

VIDÉO :

https://www.pavillon-arsenal.com/fr/arsenal-tv/documentaires/paris-architectures/11888-73logements-saint-mande-paris-12.html

https://www.youtube.com/live/gE9ajAkmpH8?si=J3jdulLoh1-aQdfH

ARTICLES WEB

:

https://www.ecologie.gouv.fr/innovation-dans-batiment https://cahiers-ramau.edinum.org/407 https://journals.openedition.org/craup/294 https://journals.openedition.org/lha/829?lang=es https://issuu.com/nujudalhussain/docs/arc301_precedent_final_nujud_ https://cahiers-ramau.edinum.org/407 https://www.ecologie.gouv.fr/sites/default/files/Rapport%20construction%20hors-site_VF_ Janvier%202021.pdf

https://www.leboisinternational.com/premiere-transformation/inventaire-forestier-la-surfaceaugmente-mais-la-croissance-des-arbres-ralentit-685077.php https://www.ecologie.gouv.fr/strategie-nationale-bas-carbone-snbc https://franceboisforet.fr/2021/03/23/bois-et-jeux-olympiques-et-paralympiques-de-2024/ https://francearchives.gouv.fr/commemo/recueil-2008/39542

https://fr.wikipedia.org/wiki/Institut_technologique_FCBA https://www.leboisinternational.com/premiere-transformation/inventaire-forestier-la-surfaceaugmente-mais-la-croissance-des-arbres-ralentit-685077.php

https://www.construction21.org/france/articles/h/la-construction-bois-description-destechniques-et-du-cadre-reglementaire.html

https://www.ecologie.gouv.fr/reglementation-environnementale-re2020https://www.construction21.org/france/articles/h/la-construction-bois-description-destechniques-et-du-cadre-reglementaire.html https://www.woodworks.org/learn/mass-timber-clt/ https://www.tellementbois.com/bois-prefabrication-une-synergie-naturelle/ https://www.observationsociete.fr/territoires/lieu-de-vie_terri/la-part-de-la-population-vivant-enville-plafonne/

https://france.vinci-construction.com/fr/jaures-petit-delphine-poinsard/ https://metropolitiques.eu/De-l-humanisation-a-la-destruction-du-beton-La-politique-de-la-villedes-annees.html

https://50ans.apur.org/data/b4s3_home/fiche/56/01_plan_programme_est_paris_ ap_1234_32539.pdf

https://france.vinci-construction.com/fr/jaures-petit-delphine-poinsard/ https://www.fibois01.org/download/1/file/documentation/fiches-fibois-01-siel-te.pdf

https://www.archdaily.com/977573/jaures-petit-housings-archi5?ad_source=search&ad_ medium=projects_tab https://www.archdaily.com/960833/paris-xii-apartments-mars-architectes?ad_medium=gallery https://www.groupe-emerige.com/actualites/85-rue-petit-transformation-dun-ancien-garage-enlogements-au-coeur-de-paris-19eme/ https://www.francebois2024.com/ https://www.fibois-idf.fr/ https://www.panoramabois.fr/projets/6866 https://www.parishabitat.fr/a-la-une/inauguration-de-la-residence-jean-jaures/ https://www.apur.org/sites/default/files/16_plu_diagnostic_territorial_19e_arr.pdf https://www.apur.org/sites/default/files/09_plu_diagnostic_territorial_12e_arr. pdf?token=XJ0mH8hu https://archi5.fr/en/2020/02/03/jaures-petit-chantier3/ https://www.jean-jaures.org/publication/pour-une-politique-du-logement-inclusive-et-ecologiquedans-les-territoires/ https://parissecret.com/mars-architectes-ont-concu-une-magnifique-residence-boisee-et-zenjaponaise-avec-jardin-en-plein-paris/ https://www.archdaily.com/977573/jaures-petit-housings-archi5 https://www.archdaily.com/960833/paris-xii-apartments-mars-architectes https://france.vinci-construction.com/fr/jaures-petit-delphine-poinsard/ https://www.darchitectures.com/74-logements-sociaux-jaures-petit-paris-19-a5853.html https://www.lecommercedubois.org/actualites/943/jo-2024-le-village-olympique-en-images https://www.arc.ulaval.ca/files/arc/HerzogdeMeuron_Dominus.pdf https://fr.wikipedia.org/wiki/Sable https://www.beswic.be/fr/themes/agents-physiques/bruit/materiaux-acoustiques https://www.pierreetterre.org/wp-content/uploads/2016/02/see_isolation-phonique-plancher.pdf https://www.pierreetterre.org/

FIGURE 1

Production personnelle (2023) Façade Est.

Un immeuble social de Jaurès Petit à Paris (XIX) L’agence « Archi5 »

FIGURE 2

Production personnelle (2023) Façade Sud.

Un habitat collectif de Saint-Mandé à Paris (XII) L’agence « Mars architectes »

FIGURE 3

Production personnelle (2023) Construction d’un bâtiment préfabriqué en ossature légère en bois.

FIGURE 4

Iconographie réalisation du chantier un immeuble social de Jaurès Petit par l’agence « Archi5 »

Les éléments préfabriqués en bois

Charpente bois lamellé-collé ; Panneau de bois massif (CLT collé ou CLT cloué)

FIGURE 5

Cartoviz, réalisée par L’Institut Paris Région en partenariat avec Fibois Île-de-France.

Cette carte, millésime 2023, valorise les projets et acteurs recensés dans le cadre de l’Observatoire francilien de la construction bois 2021, du Prix Régional de la Construction Bois et des signataires du PACTE Bois Biosourcés.

FIGURE 6

Production personnelle (2023) En vert, la définition géographique Europe du Nord-Ouest.

FIGURE 7

La densité humaine à Paris atteint 380 personnes à l’hectare en moyenne, contre 135 à l’échelle de la métropole et 15 dans le reste de l’IDF. Étude Atelier parisien d’urbanisme (l’agence « Apur ») https://www.apur.org/sites/default/files/16_ plu_diagnostic_territorial_19e_arr.pdf

FIGURE 8

Production personnelle (2023) Iconographie les agences « Archi5 » et « Mars architectes »

1 - Un immeuble social de Jaurès Petit à Paris (XIX)

2 - Un habitat collectif de Saint-Mandé à Paris (XII)

FIGURE 9 :

Production personnelle (2023)

Façade Nord.

Un immeuble social de Jaurès Petit à Paris (XIX)

L’agence « Archi5 »

FIGURE 10, 11

Production personnelle (2023)

Ressource - Explore Google Earth.

Vues aériennes un immeuble social de Jaurès Petit à Paris (XIX)

FIGURE 12 :

Production personnelle (2023)

Façade Sud-Est.

Un habitat collectif de Saint-Mandé à Paris (XII)

L’agence « Mars architectes »

FIGURE 13, 14 :

Production personnelle (2023)

Ressource - Explore Google Earth. Vues aériennes un habitat collectif de SaintMandé à Paris (XII)

FIGURE 15, 16

1 - Production l’agence « Archi5 ». Axonométrie de la phase de construction dans un cœur d’îlot.

2 - Production l’agence « Mars architectes ». Axonométrie de la phase de construction dans un cœur d’îlot.

FIGURE 17 :

Production personnelle (2023) + 3D vue projet l’agence « Mars architectes »

Axonométrie de la phase de construction dans un cœur d’îlot.

FIGURE 18 :

Production personnelle (2023)

Localisation du projet - 25 Av. de Saint-Mandé, 75012 Paris, France. Réalisation : 2020. (« Vue » FIGURE 20, page 46)

FIGURE 19 :

Production l’agence « Mars architectes » Coupe longitudinale un habitat collectif de Saint-Mandé à Paris (XII)

FIGURE 20, 21 :

Production personnelle (2023)

1 - La vue 188 Avenue Jean Jaurès, 75019 Paris, France.

2 - L’entrée au cœur d’îlot se fait par l’une des façades du bâtiment de l’avenue de SaintMandé.

FIGURE 22 :

Production l’agence « Mars architectes » Axonométrie de l’accessibilité du chantier un habitat collectif de Saint-Mandé à Paris (XII)

FIGURE 23 :

Production personnelle : capture d’écran (2023)

Photos un habitat collectif de Saint-Mandévue de dessus.

Image et montage Guillaume Foresti, Lybellule, Antoine Plouzen ; l’agence « Mars architectes » https://www.pavillon-arsenal.com/fr/arsenaltv/documentaires/paris-architectures/1188873-logements-saint-mande-paris-12.html

FIGURE 24 :

Production personnelle (2023)

Localisation du projet - 188 Av. Jean Jaurès, 75019 Paris, France. Réalisation : 2021. (« Vue » FIGURE 28, page 51)

FIGURE 25

Production les agences « Archi5 » et « Encore Heureux »

Coupe longitudinale sur le projet de Jean Jaurès Petit.

FIGURE 26 :

Production personnelle (2023) Axonométrie un immeuble social de Jaurès Petit à Paris (XIX) Le schéma du parcours.

FIGURE 27, 28

Production personnelle (2023) 1 - L’entrée au cœur d’îlot se fait par l’une des façades du bâtiment de l’avenue Jean Jaurès. 2 - La vue 188 Avenue Jean Jaurès, 75019 Paris, France.

FIGURE 29 :

Iconographie l’agence « Archi5 » (03 février 2020)

La phase de construction de Jaurès Petit à Paris (XIX)

FIGURE 30 :

Iconographie réalisation du chantier par l’agence « Archi5 »

Les éléments préfabriqués en bois

Poteau poutre; Panneau de bois massif (CLT collé ou CLT cloué); Charpente bois lamellé-collé; Bardeau bois; Menuiserie mixte.

FIGURE 31 :

Iconographie l’agence « Mars architectes »

Un habitat collectif dans un cœur d’îlot de Saint-Mandé à Paris (XII).

Le panneau Cross Laminated Timber (CLT)

FIGURE 32 :

Iconographie l’agence « Archi5 »

Un immeuble social de Jaurès Petit à Paris (XIX)

Le panneau Cross Laminated Timber (CLT)

FIGURE 33 :

Iconographie l’agence « Archi5 »

Les projets de logements en bois réalisé depuis 2007 en France

FIGURE 34 :

Iconographie l’agence « ARCHI5 » (03 février 2020)

La phase de construction de Jaurès Petit à Paris (XIX)

FIGURE 35 :

Production personnelle capture d’écran (2023)

Image et montage Guillaume Foresti, Lybellule, Antoine Plouzen ; l’agence « Mars architectes »

La phase de construction de 14 logements collectifs de Saint-Mandé à Paris (XII) https://www.pavillon-arsenal.com/fr/arsenaltv/documentaires/paris-architectures/1188873-logements-saint-mande-paris-12.html

FIGURE 36, 37 :

Iconographie Google + Production personnelle (2023)

Comment le CLT est transporté. La méthode chargement à plat et vertical.

FIGURE 38, 39

Production personnelle capture d’écran (2023)

Image et montage Guillaume Foresti, Lybellule, Antoine Plouzen ; l’agence « Mars architectes » 1 - Transport d’éléments de structure prêts à être assemblés de 14 logements collectifs de Saint-Mandé à Paris (XII)

2 - Plan masse le projet de Saint-Mandé. (L’entrée du parking est indiquée par une flèche)

FIGURE 40 :

Production personnelle (2023)

Façade Sud-Est.

Un habitat collectif dans un cœur d’îlot de Saint-Mandé à Paris (XII)

FIGURE 41 :

Production personnelle (2023) Façade Nord. L’idée des architectes est que le jardin pousse le plus spontanément possible. Un immeuble social de Jaurès Petit à Paris (XIX)

FIGURE 42, 43

Production personnelle (2023)

Les zones de stockage des vélos.

1 - Un habitat collectif dans un cœur d’îlot de Saint-Mandé à Paris (XII)

2 - Un immeuble social de Jaurès Petit à Paris (XIX)

FIGURE 44 :

Production l’agence « Atelier Roberta » Coupe longitudinale sur le projet Jaurès.

FIGURE 45 :

Production les agences « Archi5 » et « Encore Heureux » Plan masse. Le schéma du parcours sur le projet Jaurès Petit.

FIGURE 46

Iconographie l’agence « Archi5 » Vues les chemins piétonniers un immeuble social de Jaurès Petit à Paris (XIX)

FIGURE 47 :

Production personnelle (2023) Vues les chemins piétonniers un immeuble social de Jaurès Petit à Paris (XIX)

FIGURE 48 :

Production personnelle (2023) Axonométrie de l’accessibilité un immeuble social de Jaurès Petit à Paris (XIX)

FIGURE 49 :

Production les agences « Mars architectes » Plan RDC. Le schéma du parcours de 14 logements collectifs de Saint-Mandé.

FIGURE 50 :

Production les agences « Mars architectes » Coupe. Il y a un parking sous le bâtiment. Le projet de 14 logements collectifs de SaintMandé est situé au-dessus d’un parking existant.

FIGURE 51

Production personnelle (2023) « Le soleil, la verdure, l’espace » Le chemin vers l’entrée de 14 logements collectifs de Saint-Mandé.

FIGURE 52 :

Iconographie l’agence « Mars architectes » Le chemin vers l’entrée de 14 logements collectifs de Saint-Mandé.

FIGURE 53 :

Production personnelle (2023)

Le chemin vers l’entrée de 14 logements collectifs de Saint-Mandé.

FIGURE 54 :

Production personnelle (2023)

Toit-terrasse avec ouvertures de 14 logements collectifs de Saint-Mandé

FIGURE 55, 56 :

Production personnelle (2023)

1 - L’entrée dans la cour blanche de 14 logements collectifs de Saint-Mandé.

2 - La cour blanche de 14 logements collectifs de Saint-Mandé.

FIGURE 57, 58

Production personnelle (2023)

1, 2 - Infiltration d’eau du bois de 14 logements collectifs de Saint-Mandé. (Au moment de la photo le bâtiment n’a que 3 ans)

FIGURE 59, 60 :

Production personnelle (2023)

1 - Végétation bloque la lumière naturelle de 14 logements collectifs de Saint-Mandé.

2 - Le « vis-à-vis » détruit l’intimité des espaces intérieurs de 14 logements collectifs de SaintMandé.

FIGURE 61 :

Production personnelle (2023)

Façade Est.

Formation d’une patine grise naturelle sur le bois de la façade de Jaurès Petit à Paris (XIX)

FIGURE 62, 63, 64

Production l’agence « Archi5 » de 14 logements collectifs de Saint-Mandé.

1 - Plan R+1. Le schéma qui montre les logements traversants.

2 - R+1. Vue 1 - Façade ouest. L’espace balcon. L’entrée côté jardin.

3 - R+2. Vue 2 - Façade Est. L’entrée côté cour blanche.

FIGURE 65 :

Production l’agence « Archi5 » de 14 logements collectifs de Saint-Mandé.

Plan R+1.

Le schéma qui montre fluidité de l’espace.

FIGURE 66, 67, 68 :

Production d’un résident vivant de 74 logements sociaux de Jaurès Petit (2023) Vue de l’appartement.

FIGURE 69, 70, 71 :

Production personnelle (2023)

1 - Entrée d’un immeuble social de Jaurès Petit.

2 - Couloir menant à l’appartement d’un immeuble social de Jaurès Petit.

FIGURE 72 :

Production personnelle (2023) basé sur le plan R+1 l’agence « Archi5 » Plan R+1. Le schéma qui montre fluidité de 74 logements sociaux de Jaurès Petit.

FIGURE 73, 74 :

Production l’agence « Archi5 » Coupe de 74 logements sociaux de Jaurès Petit.

FIGURE 75 :

Production l’agence « Archi5 » de 74 logements sociaux de Jaurès Petit. Vue du séjour.

FIGURE 76 :

Production personnelle (2023)

Façade Est.

Un immeuble social de Jaurès Petit à Paris (XIX)

FIGURE 77 :

Iconographie l’agence « Archi5 » Façade Est.

Un immeuble social de Jaurès Petit à Paris (XIX)

FIGURE 78, 79, 80

Iconographie l’agence « Archi5 » ;

Photo à l’extrême droite production personnelle (2023)

Photo de balcon dans un immeuble social de Jaurès Petit à Paris (XIX)

FIGURE 81

Production l’agence « Mars architectes » Façade Sud-Est de 14 logements collectifs de Saint-Mandé.

FIGURE 82, 83

Iconographie l’agence « Mars architectes » de 14 logements collectifs de Saint-Mandé.

1 - Façade Ouest.

2 - Façade Est. La cour blanche.

FIGURE 84, 85

Production l’agence « Mars architectes » Façade Ouest et coupe de 14 logements collectifs de Saint-Mandé.

FIGURE 86, 87 :

Production personnelle (2023) de 14 logements collectifs de Saint-Mandé

1 - Fragment de détail de la façade Ouest.

2 - Fragment de détail de la façade Est. La cour blanche.

FIGURE 88 :

Production personnelle (2024)

FIGURE 89 :

Production personnelle (2024)

Vue de l’Arc de Triomphe et de la Tour Eiffel à Paris.

La ville de Paris, connus pour son caractère plutôt gris et minéral.

FIGURE 90 :

Iconographie Emmanuel Dunand / AFP. Pour les Jeux olympiques de Paris 2024, de nombreuses constructions seront en bois, comme ici à Saint-Ouen.

FIGURE 91 :

Doc. : Doug And Wolf, CoBe, KOZ, Atelier Georges, Lambert-Lénack, SOA Architectes, Dream, Barrault-Pressacco (23 mars 2021)

Le Village des athlètes à Paris. Chiffres bois

30 % des bâtiments à structure bois ou mixte ;

50 % des surfaces de logements bas à structure tout bois ;

80 à 90 % des bâtiments avec une enveloppe bois ;

Volume de bois structurel mis en œuvre : une estimation des opérations au stade PC de 22 000 m3.

Turn static files into dynamic content formats.

Create a flipbook
Issuu converts static files into: digital portfolios, online yearbooks, online catalogs, digital photo albums and more. Sign up and create your flipbook.