
SOFIA YU ARCHITECTURE PORTFOLIO





![]()






USC Spring 2025
Instructor: Brian DeLuna
Partner: Josh Hunsucker
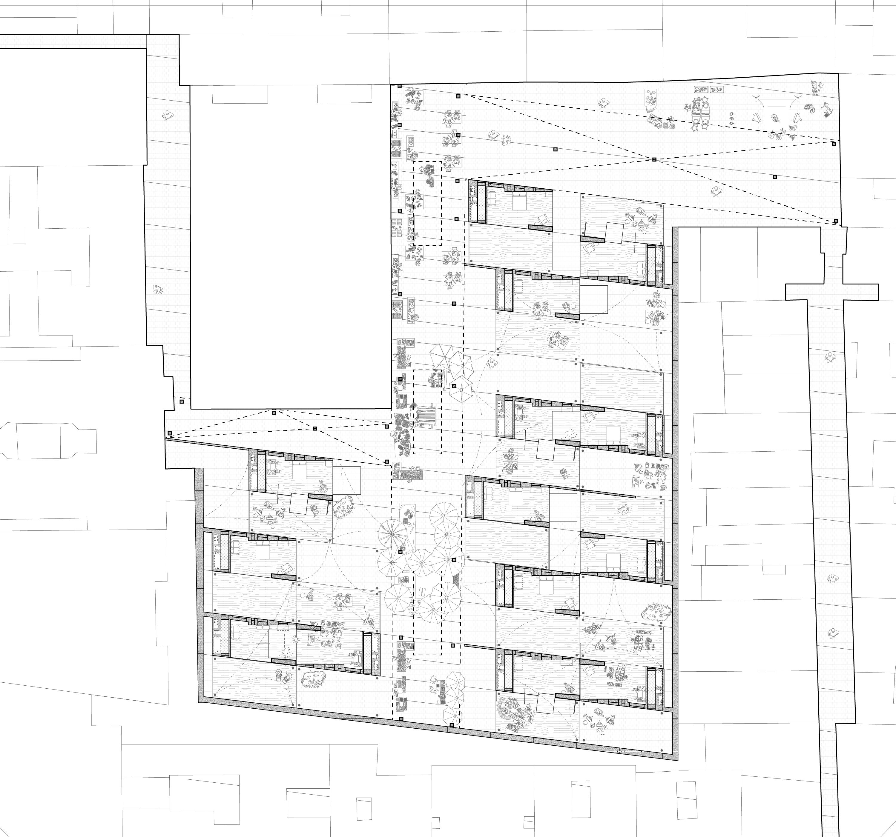
K-8 School
The Altadena Fires devastated not only homes but also vital public infrastructure, including places of learning. In the aftermath, rebuilding a school becomes a symbol of collective recovery and future resilience. Design must address fire resistance through materiality, site planning, and landscape strategies while creating an eniornment that restores a sense of stability and belonging. Memory and progress are not opposing forces here as both can coexist in architecture that is grounded, protective and forward thinking.







Study model exploring generate spatial subsequent interior
exploring how intersecting forms relationships and define interior and exterior spaces.
Design testing exploring how structural systems—trusses and CLT—can drive form, span strategies, and spatial organization throughout the design process.
Site analysis documenting the spatial impact of wildfires on the Altadena neighborhood, informing an understanding of existing and altered site conditions.














USC w/ La Salle Barcelona Fall 2025
Instructor: Christof Jantzen & Roger Paez
Rethinking Barcelona
Cámping Urbá reimagines the Cerda block using subtraction as a design strategy to reframe collective life. By removing interior volumes and selective perimeter fragments, the site is opened to form a continuous public passage. What remains is not treated as residual, but as generative: an existing structure is retained and reconfigured as housing for temporary inhabitants. Individual pods are reduced to their essentials that invite spontaneous occupation and redefine belonging through participation rather than permanence, operating as an urban campsite.




























































































































USC Spring 2024
Instructor: Kevin Sherrod
Artist Residence
As the boundaries between nature and architecture blur, does the built environment evolve into a living organism, or does it dissolve into the landscape entirely, losing its original identity as nature reclaims it? Blendscape explores a camoflauging space through modular architecture, pushing the boundaries between natural landscapes and human-made structures while highlighting the beauty of creating art within nature.



The module concept was originally inspired by a cheetah print, reflecting its integration with the mountainous location. To maintain the fluidity of the module, it was essential to emphasize seamless movement throughout the plan. This led to an exploration of various joinery methods for the module and an analysis of how each component functions structurally.



















The drawing on the right provides a close-up of a module, highlighting its relationship with environmental elements. The strategically placed holes allow sunlight to filter through, casting dynamic shadows and creating areas of natural light. The bio-based material of the module encourages plant growth, fostering a sustainable, living facade. Additionally, the holes facilitate passive ventilation, promoting airflow and reducing reliance on mechanical systems, contributing to the overall environmental efficiency of the design.






USC Fall 2024
Instructor: Charles Lagreco
Multifamily Housing
Shifted Views reflects an interest in how architecture shapes both the user experience and how the building’s exterior communicates privacy or openness to those nearby. The moving louvers create an ever-changing facade, serving as shading and privacy screens that shift throughout the day. The unit layouts emphasize a gradient from public to private spaces, with balconies acting as flexible thresholds between them.










Multiple iterations of massing and unit placement focused on balancing privacy and accessibility. Early design stages also considered facade elevations with movable louvers and analyzed how adjustable walls influence the transition between private and public spaces.









Role: Designer I
May - August 2025
Higher Education Sector
Selected professional work from AC Martin, highlighting graphic and visualization contributions to LACCD Heldman project during the proposal phase. The proposal was successfully awarded, and the work shown reflects my role in producing diagrams, renderings, and presentation materials, while architectural design authorship was led by the firm.





Proposal diagrams produced in response to the RFP and used across presentation boards to communicate core concepts.















