Sofia Saren 2023-24 Portfolio

Page 1

Architecture Portfolio WIT | School of Architecture & Design
selected works
sofia saren
2023-24
selected works 01 rhythmic duet 02 the canopy
2023-2024 lions park scouts hut the ribbon 03 04

01 rhythmic duet

Spring 2024 | Professor Oluwatosin Odugbemi

duet

EXTERIOR PERSPECTIVE

A Performative Dance Center

Boston, MA

The implementation of a dance center, characterized by a vernacular design, into the rather urban setting of the Fenway area of Boston. A showcase of the duality and partnership held between both structural and natural elements. A focus interactions and experience.

SECTIONA SECTIONC ELEVATION 05102050 05102050 05102050 SECTIONA SECTIONB05102050 05102050 SECTION A SECTION B
C B A FIRST FLOOR PLAN
SECTIONB SECTIONC 05102050 05102050 SECTIONA ELEVATION 50 50 05102050 05102050 SECTION C ELEVATION
RHYTHMIC DANCE SOFIA SECOND FLOOR PLAN
02 the canopy
Fall 2023 | Professor Jennifer Lee-Michaliszyn

A Wooden Boat School

Brooklin, Maine

As an expansion of the existing site, this building acts as a canopy, looking to support the prospective boat builders and local Maine community. It highlights the blend of nature and wood construction through its submersion below grade and the incorporation of a courtyard that embraces the native trees. INTERIOR

canopy
PERSPECTIVE
MASSING MODEL MASSING MODEL
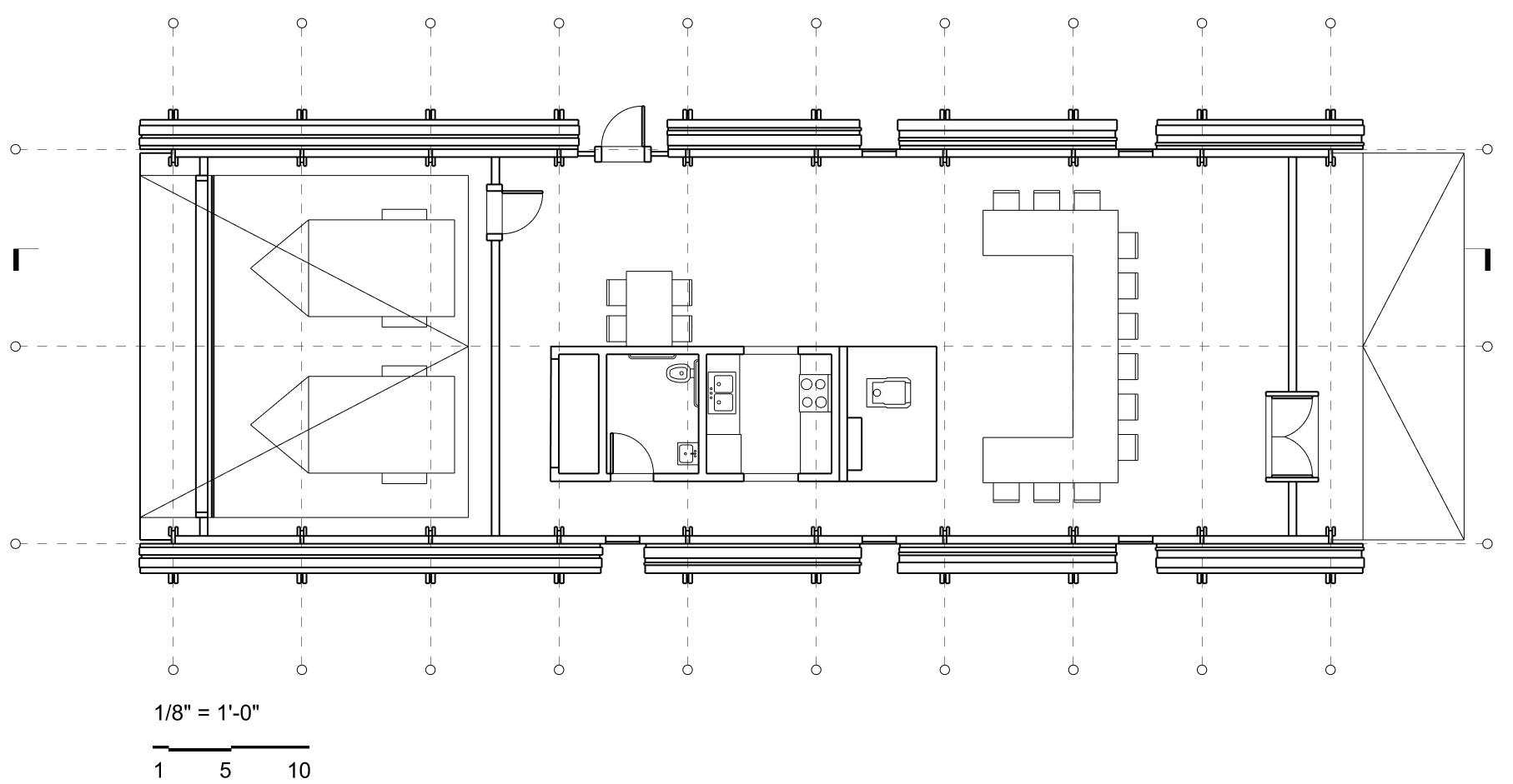
B A GROUND FLOOR PLAN KEY 1. BOAT SHED & WOOD STORAGE 2. WOODSHOP 3. BATHROOM 4. KITCHEN & DINING 5. LIBRARY 6. CLASSROOM B 1 2 3 4 5 6
SECTION A
B A 4 5 6 FIRST FLOOR PLAN KEY 1. BOAT SHED & WOOD STORAGE 2. CLASSROOM A 3. BATHROOM 4. GIFT SHOP 5. PLANNING ROOM 6. SEWING ROOM 1 2 3
PHYSICAL MODEL 1/16” SCALE PHYSICAL MODEL 1/16” SCALE
B
SECTION

COURTYARD PERSPECTIVE

SEWING ROOM PERSPECTIVE

ROOF

WOODEN TRUSSES 10’ O.C

CEILING

CURTAIN WALL

5’x9’ GLASS SHEETS

GRID SYSTEM

10” X 10” X 12’ COLUMNS 10’ O.C

FRONT DECK ENTRANCE

NON-LOAD BEARING WALL

GLASS WINDOWS PLACED ABOVE TO ALLOW SUNLIGHT INTO SPACE BELOW GRADE

STRUCTURE DIAGRAM STRUCTURAL DIAGRAM

HALLWAY PERSPECTIVE

OPEN-AIR STARIWELL PERSPECTIVE

2023

03 lions parkscout

Fall | Professor Jennifer Lee-Michaliszyn Partner - Mia Pappas

scout hut

Precedent Study

Greensboro, Alabama

Auburn University and Rural Studio have been working on the restoration and redesign of Lions Park since 2006. The remodel includes new landscaping, public restrooms, playing fields, a skate park and playground. To honor the local boy scouts that had cleared out undergrowth and upkept trails during construction, the Scouts Hut was designed to provide an identifiable headquarter. The hut incorporates a multipurpose space, kitchen, restroom, and storage space. The structure was constructed with a series of wooden frames and harvested small timbers that were used for exterior cladding and structural ballast.

| Professor Jennifer Lee-Michaliszyn
MODEL PHOTO
Fall 2023
SECTION B SECTION B PLAN SECTION A A B SECTION B

CIRCULATION DIAGRAM

CIRCULATION DIAGRAM

TENSION COMPRESSION DIAGRAM

STRUCTURAL DIAGRAM

04 the ribbon

Fall 2023 | Professor Jennifer Lee-Michaliszyn

A Community Center for the Horace Mann School for the Deaf and Hard of Hearing

This community center acts as an addition to the existing site through the placement of its programs and its adjacency to the important activities and buildings surrounding its perimeter. Ramps and walkways then ribbon through these modules of programs with a central circulation system that accomodate to signed conversations and visual visibility.

SITE
PHOTO
Jamaica Plain, Boston, MA
UP UP
STONY BROOK SITE PLAN Building Footprint & Perspectives
B C SITE PLAYGROUND BASKETBALL
COMMUNITY
SITE ANALYSIS - SKETCHES
COURT
GARDEN
032 192 64 SCALE: 1/64”-1’-0” A D SITE OUTDOOR SEATING MBTA STATION
0 5 10 20 1/16” = 1’0 0 5 10 20 1/16” = 1’0 FLOOR PLAN 1 1. LOBBY 2. PUBLIC BATHROOMS 3. MULTIPURPOSE ROOM 4. COURTYARD 5. UTILITY ROOMS 6. STORAGE 7. CLASSROOM A 8. CLASSROOM B 9. WORKSPACE 10. EXERCISE STUDIO KEY 1 2 3 4 5 6 7 8 9 10 5 A B
SECTION A
0 5 10 20 1/8” = 1’0
0 5 10 20 1/16” = 1’0 1. CAFE 2. MULTIPURPOSE ROOM 3. COURTYARD 4. MEDIA LAB 5. DIRECTOR’S OFFICE 6. MEETING ROOM 7. BREAK ROOM 8. STAFF BATHROOM 9. ART GALLERY 1 2 3 4 5 6 7 8 9 KEY FLOOR PLAN 2 1
SECTION B
0 5 10 20 1/8” = 1’0
THANK YOU sofia saren 617-529-6187 sarens@wit.edu

Turn static files into dynamic content formats.

Create a flipbook
Issuu converts static files into: digital portfolios, online yearbooks, online catalogs, digital photo albums and more. Sign up and create your flipbook.