Portfolio - Sofia Saren

Page 1

sofia saren

Architecture Portfolio WIT | School of Architecture & Design 2022-24 selected works

01

the canopy

lions park scouts hut

02

selected works

03

04

2022-2024
the ribbon mondriaan bookstore

the canopy

01
Fall 2023 | Professor Jennifer Lee-Michaliszyn

A Wooden Boat School

Brooklin, Maine

As an expansion of the existing site, this building acts as a canopy, looking to support the prospective boat builders and local Maine community. It highlights the blend of nature and wood construction through its submersion below grade and the incorporation of a courtyard that embraces the native trees.

canopy
INTERIOR PERSPECTIVE MASSING MODEL MASSING MODEL
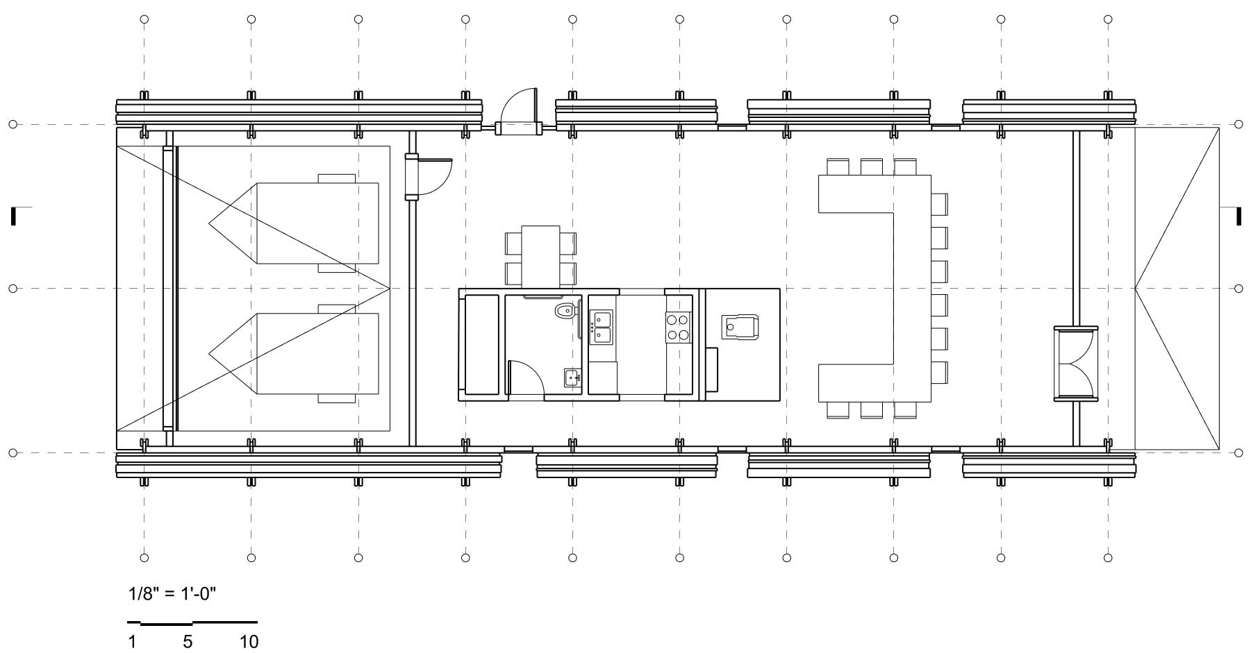
B A GROUND FLOOR PLAN
KEY 1. BOAT SHED & WOOD STORAGE 2. WOODSHOP 3. BATHROOM 4. KITCHEN & DINING 5. LIBRARY
1 2 3 4 5 6
6. CLASSROOM B

SECTION A

B A 4 5 6 FIRST FLOOR PLAN
KEY 1. BOAT SHED & WOOD STORAGE 2. CLASSROOM A 3. BATHROOM 4. GIFT SHOP 5. PLANNING ROOM
1 2 3
6. SEWING ROOM PHYSICAL MODEL 1/16” SCALE PHYSICAL MODEL 1/16” SCALE

SECTION B

COURTYARD
PERSPECTIVE
SEWING ROOM PERSPECTIVE

WOODEN TRUSSES

10’ O.C

CEILING

GRID SYSTEM

10” X 10” X 12’ COLUMNS

10’ O.C

CURTAIN WALL

5’x9’ GLASS SHEETS

FRONT DECK ENTRANCE

NON-LOAD BEARING WALL

GLASS WINDOWS PLACED ABOVE TO ALLOW SUNLIGHT INTO SPACE BELOW GRADE

ROOF
STRUCTURE DIAGRAM STRUCTURAL
DIAGRAM
HALLWAY PERSPECTIVE OPEN-AIR STARIWELL PERSPECTIVE

lions parkscout

02
Fall 2023 | Professor Jennifer Lee-Michaliszyn Partner - Mia Pappas

scout hut

Precedent Study

Greensboro, Alabama

Auburn University and Rural Studio have been working on the restoration and redesign of Lions Park since 2006. The remodel includes new landscaping, public restrooms, playing fields, a skate park and playground. To honor the local boy scouts that had cleared out undergrowth and upkept trails during construction, the Scouts Hut was designed to provide an identifiable headquarter. The hut incorporates a multipurpose space, kitchen, restroom, and storage space. The structure was constructed with a series of wooden frames and harvested small timbers that were used for exterior cladding and structural ballast.

Fall 2023 | Professor Jennifer Lee-Michaliszyn

MODEL PHOTO
B PLAN
A B
SECTION B SECTION
SECTION A
SECTION B

CIRCULATION DIAGRAM

CIRCULATION DIAGRAM

TENSION COMPRESSION DIAGRAM

STRUCTURAL DIAGRAM

the ribbon

03
Fall 2023 | Professor Jennifer Lee-Michaliszyn

A Community Center for the Horace Mann School for the Deaf and Hard of Hearing

Jamaica Plain, Boston, MA

This community center acts as an addition to the existing site through the placement of its programs and its adjacency to the important activities and buildings surrounding its perimeter. Ramps and walkways then ribbon through these modules of programs with a central circulation system that accomodate to signed conversations and visual visibility.

SITE PHOTO
UP UP
STONY BROOK SITE PLAN Building Footprint & Perspectives
B C SITE PLAYGROUND
COURT COMMUNITY GARDEN
ANALYSIS - SKETCHES
BASKETBALL
SITE

OUTDOOR SEATING MBTA STATION

032 192 64
A D SITE
SCALE: 1/64”-1’-0”

1. LOBBY

2. PUBLIC BATHROOMS

3. MULTIPURPOSE ROOM

4. COURTYARD

5. UTILITY ROOMS

6. STORAGE

7. CLASSROOM A

8. CLASSROOM B

9. WORKSPACE

10. EXERCISE STUDIO

FLOOR PLAN 1

0 5 10 20 1/16” = 1’0 0 5 10 20 1/16” = 1’0
1 2 3 4 5 6 7 8 9 10 5 A B
KEY
SECTION A
0 5 10 20 1/8” = 1’0

1. CAFE

2. MULTIPURPOSE ROOM

3. COURTYARD

4. MEDIA LAB

5. DIRECTOR’S OFFICE

6. MEETING ROOM

7. BREAK ROOM

8. STAFF BATHROOM

9. ART GALLERY

0 5 10 20 1/16” = 1’0
1 2 3 4 5 6 7 8 9 KEY FLOOR PLAN 2 1
SECTION B
0 5 10 20 1/8” = 1’0

mondrian bookstore

Spring 2023 | Professor Jessica Yuan

04

bookstore

An Antiquarian Bookshop

Proposed Urban Environment

With a consideration for vertical and open space, this urban bookstore incorporates double height ceilings along either face of the building. To compliment, a square column grid is implemented and, in certain areas, are doubled to accentuate a grander space. This parallel relationship creates a partition to separate public and private spaces. A mondriaan design influences the exterior facade to also imply particular levels of privacy.

FRONT FACADE
PHYSICAL MODEL

SECTION A

SECTIONS

SECTION

SECTION B

SECTION

SECTION B
A
SOFIA SAREN | 2023 SAREN
B BROAD BOOKS BOOKS

PLANS

B A 20 10 5 0
FLOOR ONE B A MECHANICAL FLOOR ONE
FRONT
COLLAGE
FACADE
RARE BOOK/ MAP STORAGE DELIVERY/STORAGE ROOM 20 10 5 0 B A
B A B
FLOOR TWO
MAPS & BOOKS DELIVERY & STORAGE
FLOOR TWO
BACK FACADE
COLLAGE
GARDEN FACADE (BACK)
20 10 5 0 B A
THREE B A
THREE ADMIN OWNER’S OFFICE BROKERAGE
FLOOR
FLOOR
THANK YOU sofia saren 617-529-6187 sarens@wit.edu

Turn static files into dynamic content formats.

Create a flipbook
Issuu converts static files into: digital portfolios, online yearbooks, online catalogs, digital photo albums and more. Sign up and create your flipbook.