Skip to main content

Architectural Portfolio

Page 1

ARCHITECTURAL PORTFOLIO

2020 - 2024
SNEHA KOTHARI
SELECTED WORKS

SNEHA KOTHARI

snehakothari02@gmail.com 8010092157

Tirupati Appt., Wani (Dist.-Yavatmal), Maharashtra

An enthusiastic and creative architecture student, seeking new opportunities and experiences in unfolding spaces spaces through design.

i believe great designs are result of collaborative work of combined with passionate , innovative and sensative values that transform a place into a unique solution that responds to human needs. I am passionate, self-driven , hardworking and willing to go beyond to design spaces that best fits to our upcoming lifestyle.

i’m looking forward to experience the work environment and gain practical knowledge to excel in a fruitful manner.

SELECTED WORKS

EDUCATION CERTIFICATIONS/ PARTICIPATIONS

Dr.D.Y.Patil college of Architecture,Akurdi,Pune

B.Arch

I 2020-2025 I

Swarnleela International School, Wani

HSC ( 94.4%)

I 2018-2020 I

Swarnleela International School, Wani

SSC ( 94.8%)

I 2010-2018 I

Certificate for successful completion of AutoCAD, Adobe Photoshop and SketchUP course by Asketch Edtecth Foundation

Got SPECIAL REGOGNITION in Transparence 16.0.-Case Study Competition by ACEDGE Ethos

MINIMUM SCHOOL LADAKH ’ Competition - By Switch Competition

NASA 65th - Leaded CPK TROPHY 2022.

SOFTWARES SKILLS

ACADEMIC PROJECTS

SEM II

Kindergarten School, Garo hills, Meghalaya

SEM III

Artist Bunglow, Leh

SEM IV

Hill Side Resort,Lonavala

SEM V

Art & Architecture school,

SEM VI

Motel & Food Court design,

SEM VII

Inclusive Housing, Baner,Pune

SEM VIII

Commercial Centre, Talegoan

LANGUAGES

HINDI

ENGLISH

MARWADI

AutoCAD

Revit

SketchUp

Adobe Photoshop

Enscape

Lumion

V-Ray

Adobe Indesign

Leadership

Creative thinking

WORKSHOPS

NASA Winter School program 2022 -’FINANCE AND ARCHITECTURE’

ACEDGE Ethos - ‘PRESENTATIONS THAT IMPRESSES’ ( With Full Scholarship)

‘FACADE DESIGN‘ by Kaarwan India

Dance

Reading books

Travelling

INTERESTS

2020 - 2024
Communication skiils Presentation
Management
Time
INCLUSIVE HOUSING, BANER
01. 02. SELECTED WORKS CONTENT
COMMERCIAL HUB, TALEGOAN

MOTEL AND FOOD COURT DESIGN

WORKING DRAWINGS

MISCELLANEOUS 03. 04. 05. 2020 - 2024

01. NEXUS

THE COMMERCIAL HUB

Site Location : TALEGOAN DABHADE

Site Area: 12,488 sq.mt.

The commercial hub is a pivotal aspect of urban infrastructure, acting as a central point for economic activities within a city or region. It serves as a nexus for trade, commerce, and finance, facilitating the exchange of goods, services, and capital. Typically characterized by bustling markets, financial institutions, and business districts, commercial hubs play a vital role in driving economic growth and development. They often attract businesses, entrepreneurs, and consumers, fostering innovation, competition, and investment. Additionally, commercial hubs contribute to the vibrancy and dynamism of urban life, shaping the identity and vitality of a cityscape

Talegaon dabhade is a town located in the pune metropolitan region of maharashtra, india. Positioned strategically between mumbai and pune, talegaon dabhade has witnessed significant growth in recent years, owing to its proximity to major industrial hubs and easy accessibility

Step 1: Understanding the Site and Context

Begin by studying the site and its surroundings, including the urban fabric, existing buildings, and circulation patterns. Identify opportunities and constraints to inform the design process.

Step

2: Establishing a Unifying Concept

The unifying concept for this L-shaped building is “Vertical Integration.” This concept emphasizes the seamless integration of diverse functions vertically within the building, creating a cohesive experience for users while maintaining visual and functional connections between different levels.

Step 3: Form

Development

Explore the form of the building, considering the L-shaped footprint and the need to accommodate various functions. Optimize the layout to maximize natural light, views, and circulation efficiency. Consider creating a central atrium or void space to visually connect different levels and promote vertical integration.

Step 4: Zoning and Program Distribution

Divide the building into zones based on the programmatic requirements outlined in the brief.

2020 - 2024
MASTER PLAN AREA STATEMENT

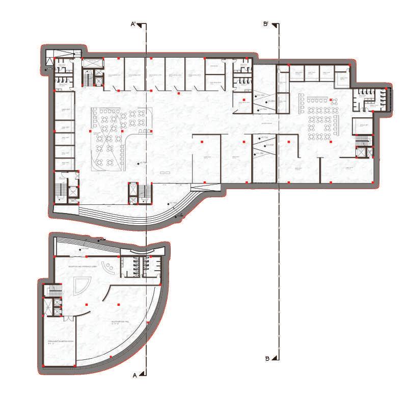
FLOOR PLANS

2020 - 2024
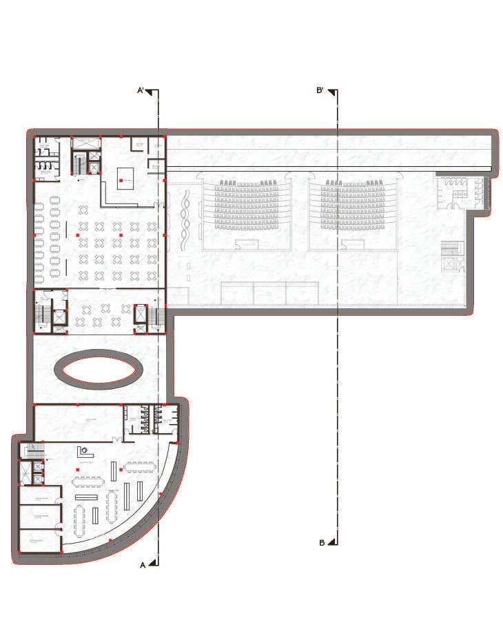
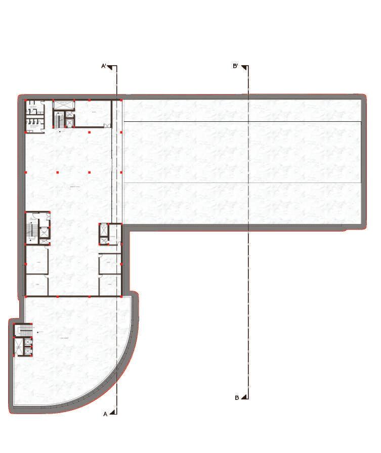
GROUND FLOOR FIRST FLOOR SECOND FLOOR THIRD FLOOR SECOND FLOOR PLAN FIRST FLOOR PLAN THIRD FLOOR PLAN
GROUND FLOOR PLAN

FLOOR PLANS & VIEWS

FACADE TREATMENT

“The design of the aluminum facade incorporates a seamless fusion of modern architecture and greenery through the strategic integration of planter beds within its framing. The sleek lines and metallic finish of the facade serve as a contemporary backdrop, accentuating the vibrant hues and organic shapes of the lush vegetation housed within the planters. This innovative approach not only adds aesthetic appeal but also promotes sustainability by introducing greenery into urban environments. As sunlight dances across the reflective surface of the aluminum, it enlivens the surrounding space, creating a dynamic interplay between light, shadow, and foliage. The integration of planters into the facade not only softens the architectural lines but also blurs the boundaries between indoor and outdoor spaces, fostering a harmonious relationship with nature.”

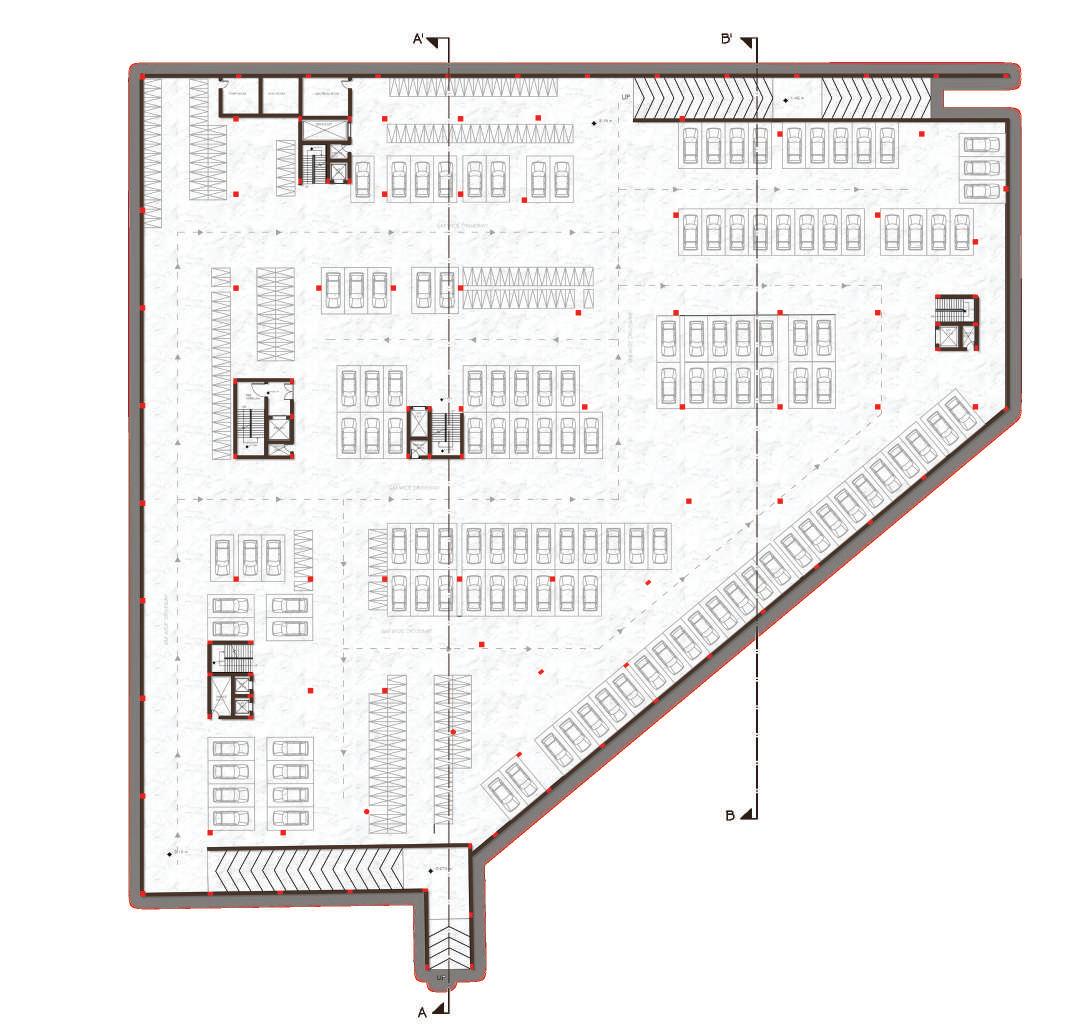
BASEMENT
FOURTH FLOOR PLAN
PLAN
BASEMENT
FOURTH FLOOR
SELECTED WORK
SECTIONS, ELEVATION & VIEWS ISOMETRIC VIEW
SECTION A-A’ SECTION B-B’ FRONT ELEVATION

02. VISTA TOWN

INCLUSIVE HOUSING

Site Location : BANER, PUNE

Site Area: 20,090 sq.mt.

Housing isn’t just roofs anymore—it’s about feeling connected. This project is about creating neighbourhoods where you don’t just live, you belong. We’re exploring new ways of designing homes, from big apartment buildings to how cities are changing.After the pandemic, our cities are different. People are moving back, and what we want from our homes has changed. We all want more space and privacy now. We are taking on the challenge of making homes that fit how we live today, including everyone’s needs.This is more than just housing; it’s about creating spaces that bring us together whilegiving us our own place. Let’s create the future of housing, one that’s built on community,privacy, and making everyone feel at home.

The project is all about designing an inclusive mig and hig type of residential housing in baner, pune. The site is at baner at a prime location with a beautiful view of pashan hills as well as baner hills at its southern side, which can slow down the minds of these people always rushing for their jobs.

Site is located near pashan hills, beside 24k sereno baner , pune (18°33’04.5”N 73°46’45.9”E). Site is surrounded by various housing societies and lush green beautfl baner hills on one side.The surrounding area is well-developed and has good access to amenities. This makes it a desirable location for development.

2020 - 2024
MASTER PLAN

SITE SECTION & ELEVATION

2020 - 2024
SECTION AA’ FRONT ELEVATION
2-BHK (92 sq.mt. ) AREA STATEMENT TYPE 2-BHK NO.OF FLOORS S+14 NO.OF UNITS ON EACH FLOOR 04 UNIT AREA 92 sq.mt. REFUGE AREA CIRCULATION AREA 92 sq.mt. TOTAL UNIT AREA 4,968 sq.mt. TOTAL AREA OHT CAPACITY CALCULATION 184 sq.mt. 6,440 sq.mt. AREA STATEMENT TYPE 2-BHK NO.OF FLOORS S+14 NO.OF UNITS ON EACH FLOOR 04 UNIT AREA 92 sq.mt. REFUGE AREA CIRCULATION AREA 92 sq.mt. TOTAL UNIT AREA 4,968 sq.mt. TOTAL AREA AREA STATEMENT TYPE 3-BHK STANDARD NO.OF FLOORS S+14 NO.OF UNITS ON EACH FLOOR 04 UNIT AREA 110 sq.mt. REFUGE AREA CIRCULATION AREA 98 sq.mt. TOTAL UNIT AREA 5,940 sq.mt. TOTAL AREA OHT CAPACITY CALCULATION WATER REQUIRED PER PERSON PER DAY 135 ltrs. AVG.NO OF PERSON PER UNIT 05 TOTAL NO.OF PERSON IN 2BHK TOWER 270 CAPACITY OF OHT 36,450 ltrs. (36.45 cu.mt.) DIMENSION OF OHT 4m X 4m X 2.3m =36.8 cu.mt. OHT CAPACITY CALCULATION WATER REQUIRED PER PERSON PER DAY AVG.NO OF PERSON PER UNIT TOTAL NO.OF PERSON IN 2BHK TOWER CAPACITY OF OHT DIMENSION OF OHT 184 sq.mt. 220 sq.mt. 6,440 sq.mt. 7,532 sq.mt. REFUGE AREA CIRCULATION AREA 92 sq.mt. AREA STATEMENT 3-BHK STANDARD S+14 04 110 sq.mt. REFUGE AREA CIRCULATION AREA 98 sq.mt. TOTAL UNIT AREA 5,940 sq.mt. TOTAL AREA 4m X 4m X 2.3m OHT CAPACITY CALCULATION WATER REQUIRED PER PERSON PER DAY 135 ltrs. AVG.NO OF PERSON PER UNIT 05 TOTAL NO.OF PERSON IN 2BHK TOWER 270 CAPACITY OF OHT 36,450 ltrs. (36.45 cu.mt.) DIMENSION OF OHT 4m X 4m X 2.3m =36.8 cu.mt. REFUGE AREA CALCULATION (maximum of 4% of the habitable floor area it serves) AREA SERVED BY 7TH FLOOR AREA SERVED BY 12TH FLOOR 1,748 sq.mt. 1,012 sq.mt. 2,760 sq.mt. 4% OF 2,760 sq.mt. 110 sq.mt. AREA PROVIDED 184 sq.mt. REFUGE AREA CALCULATION (maximum of 4% of the habitable floor area it serves) AREA SERVED BY 7TH FLOOR AREA SERVED BY 12TH FLOOR 2,090 sq.mt. 1,210 sq.mt. 3,300 sq.mt. 4% OF 3,300 sq.mt. 132 sq.mt. AREA PROVIDED 220 sq.mt. 184 sq.mt. 220 sq.mt. 7,532 sq.mt. AREA STATEMENT LIVING + DINING 4.2m X 4m AREA STATEMENT LIVING + DINING 4m X 5m UNIT AREA 92 sq.mt. REFUGE AREA CIRCULATION AREA 92 sq.mt. TOTAL UNIT AREA 4,968 sq.mt. TOTAL AREA OHT CAPACITY CALCULATION WATER REQUIRED PER PERSON PER DAY 135 ltrs. AVG.NO OF PERSON PER UNIT 05 TOTAL NO.OF PERSON IN 2BHK TOWER 270 CAPACITY OF OHT 36,450 ltrs. (36.45 cu.mt.) DIMENSION OF OHT 4m X 4m X 2.3m =36.8 cu.mt. REFUGE AREA CALCULATION (maximum of 4% of the habitable floor area it serves) AREA SERVED BY 7TH FLOOR AREA SERVED BY 12TH FLOOR 1,748 sq.mt. 1,012 sq.mt. 2,760 sq.mt. 4% OF 2,760 sq.mt. 110 sq.mt. AREA PROVIDED 184 sq.mt. 184 sq.mt. 6,440 sq.mt. AREA STATEMENT LIVING + DINING 4.2m X 4m KITCHEN 2.9m X 4.4m COMMON TOILET 1.8m X 2.5m MASTER BEDROOM 4.45m X 3.7m BEDROOM 4m X 4.2m
2-BHK TOWER
SECTION DD’ TYPICAL FLOOR PLAN 7th & 12th FLOOR PLAN SECTION CC’
SELECTED WORK
ELEVATION AT ‘Y’
PLANS 3BHK STANDARD (110 sq.mt. ) REFUGE AREA CIRCULATION AREA 98 sq.mt. TOTAL UNIT AREA 5,940 sq.mt. TOTAL AREA OHT CAPACITY CALCULATION WATER REQUIRED PER PERSON PER DAY 135 ltrs. AVG.NO OF PERSON PER UNIT 05 TOTAL NO.OF PERSON IN 2BHK TOWER 270 CAPACITY OF OHT 36,450 ltrs. (36.45 cu.mt.) DIMENSION OF OHT 4m X 4m X 2.3m =36.8 cu.mt. REFUGE AREA CALCULATION (maximum of 4% of the habitable floor area it serves) AREA SERVED BY 7TH FLOOR AREA SERVED BY 12TH FLOOR 2,090 sq.mt. 1,210 sq.mt. 3,300 sq.mt. 4% OF 3,300 sq.mt. 132 sq.mt. AREA PROVIDED 220 sq.mt. 220 sq.mt. 7,532 sq.mt. AREA STATEMENT LIVING + DINING 4m X 5m KITCHEN 3.5m X 3m COMMON TOILET 2m X 2.2m MASTER BEDROOM 4m X 4.5m BEDROOM 4m X 4m 3.8m X 4m BEDROOM AREA STATEMENT TYPE 3-BHK STANDARD NO.OF FLOORS S+14 NO.OF UNITS ON EACH FLOOR 04 UNIT AREA 110 sq.mt. REFUGE AREA CIRCULATION AREA 98 sq.mt. TOTAL UNIT AREA 5,940 sq.mt. TOTAL AREA OHT CAPACITY CALCULATION 220 sq.mt. 7,532 sq.mt. AREA STATEMENT 2-BHK S+14 EACH FLOOR 04 92 sq.mt. 92 sq.mt. 4,968 sq.mt. TYPE NO.OF FLOORS NO.OF UNITS ON EACH FLOOR UNIT AREA REFUGE AREA CIRCULATION AREA TOTAL UNIT AREA TOTAL AREA CAPACITY CALCULATION PER PERSON PER DAY 135 ltrs. PERSON PER UNIT 05 PERSON IN 2BHK TOWER 270 36,450 ltrs. (36.45 cu.mt.) 4m X 4m X 2.3m =36.8 cu.mt. OHT CAPACITY CALCULATION WATER REQUIRED PER PERSON PER DAY 135 ltrs. AVG.NO OF PERSON PER UNIT 05 TOTAL NO.OF PERSON IN 2BHK TOWER 270 CAPACITY OF OHT 36,450 ltrs. (36.45 cu.mt.) DIMENSION OF OHT 4m X 4m X 2.3m =36.8 cu.mt. 184 sq.mt. 6,440 sq.mt. AREA STATEMENT TYPE NO.OF FLOORS NO.OF UNITS ON EACH FLOOR UNIT AREA REFUGE AREA CIRCULATION AREA 92 sq.mt. TOTAL UNIT AREA TOTAL AREA CIRCULATION AREA 98 sq.mt. TOTAL AREA OHT CAPACITY CALCULATION WATER REQUIRED PER PERSON PER DAY AVG.NO OF PERSON PER UNIT TOTAL NO.OF PERSON IN 2BHK TOWER CAPACITY OF OHT DIMENSION OF OHT (36.45 cu.mt.) 4m X 4m X 2.3m =36.8 cu.mt. REFUGE AREA CALCULATION (maximum of 4% of the habitable floor area it serves) AREA SERVED BY 7TH FLOOR AREA SERVED BY 12TH FLOOR 1,748 sq.mt. 1,012 sq.mt. 2,760 sq.mt. 4% OF 2,760 sq.mt. 110 sq.mt. AREA PROVIDED 184 sq.mt. REFUGE AREA CALCULATION (maximum of 4% of the habitable floor area it serves) AREA SERVED BY 7TH FLOOR AREA SERVED BY 12TH FLOOR 2,090 sq.mt. 1,210 sq.mt. 3,300 sq.mt. 4% OF 3,300 sq.mt. 132 sq.mt. AREA PROVIDED 220 sq.mt. 184 sq.mt. 220 sq.mt. 6,440 sq.mt. 7,532 sq.mt. AREA STATEMENT LIVING + DINING 4.2m X 4m KITCHEN 2.9m X 4.4m AREA STATEMENT LIVING + DINING 4m X 5m KITCHEN 3.5m X 3m UNIT 3-BHK TOWER (STANDARD) TOWER SECTION EE’ SECTION FF’ ELEVATION AT ‘X’ TYPICAL FLOOR PLAN 7th & 12th FLOOR PLAN
3-BHK SPACIOUS (127 sq.mt. ) 3-BHK (SPACIOUS) TOWER SECTION GG’ ELEVATION AT ‘W’ TYPICAL FLOOR PLAN 7th & 12th FLOOR PLAN TYPE 3-BHK SPACIOUS NO.OF FLOORS S+14 NO.OF UNITS ON EACH FLOOR 04 UNIT AREA 127 sq.mt. REFUGE AREA CIRCULATION AREA 104 sq.mt. TOTAL UNIT AREA 6,858 sq.mt. TOTAL AREA OHT CAPACITY CALCULATION WATER REQUIRED PER PERSON PER DAY 135 ltrs. AVG.NO OF PERSON PER UNIT 05 TOTAL NO.OF PERSON IN 2BHK TOWER 270 CAPACITY OF OHT 36,450 ltrs. (36.45 cu.mt.) DIMENSION OF OHT 4m X 4m X 2.3m =36.8 cu.mt. REFUGE AREA CALCULATION (maximum of 4% of the habitable floor area it serves) AREA SERVED BY 7TH FLOOR AREA SERVED BY 12TH FLOOR 2,356 sq.mt. 1,397 sq.mt. 3,753 sq.mt. 4% OF 3,753 sq.mt. 150sq.mt. AREA PROVIDED 254 sq.mt. 254 sq.mt. 8,568 sq.mt. AREA STATEMENT LIVING + DINING 4m X 6m KITCHEN 3m X 4m COMMON TOILET 2m X 2.5m MASTER BEDROOM 5m X 4.15 m BEDROOM 4.15m X 4m 4m X 4.15m BEDROOM AREA STATEMENT TYPE 3-BHK SPACIOUS NO.OF FLOORS S+14 NO.OF UNITS ON EACH FLOOR 04 UNIT AREA 127 sq.mt. REFUGE AREA CIRCULATION AREA 104 sq.mt. TOTAL UNIT AREA 6,858 sq.mt. TOTAL AREA AREA STATEMENT TYPE 4-BHK NO.OF FLOORS S+10 NO.OF UNITS ON EACH FLOOR 04 UNIT AREA 170 sq.mt. REFUGE AREA CIRCULATION AREA 75 sq.mt. TOTAL UNIT AREA 6,630 sq.mt. TOTAL AREA OHT CAPACITY CALCULATION WATER REQUIRED PER PERSON PER DAY 135 ltrs. AVG.NO OF PERSON PER UNIT 05 TOTAL NO.OF PERSON IN 2BHK TOWER 270 CAPACITY OF OHT 36,450 ltrs. (36.45 cu.mt.) DIMENSION OF OHT 4m X 4m X 2.3m =36.8 cu.mt. OHT CAPACITY CALCULATION WATER REQUIRED PER PERSON PER DAY 135 ltrs. AVG.NO OF PERSON PER UNIT 05 TOTAL NO.OF PERSON IN 2BHK TOWER 195 CAPACITY OF OHT 26,325 ltrs. (26.325 cu.mt.) DIMENSION OF OHT 4m X 4m X 1.7m =27.2 cu.mt. REFUGE AREA CALCULATION (maximum of 4% of the habitable floor area it serves) AREA SERVED BY 7TH FLOOR AREA SERVED BY 12TH FLOOR 2,356 sq.mt. 1,397 sq.mt. 3,753 sq.mt. 4% OF 3,753 sq.mt. 150sq.mt. AREA PROVIDED 254 sq.mt. REFUGE AREA CALCULATION (maximum of 4% of the habitable floor area it serves) AREA SERVED BY 7TH FLOOR 2,550 sq.mt. 4% OF 2,550 sq.mt. 102 sq.mt. AREA PROVIDED 170 sq.mt. 254 sq.mt. 340 sq.mt. 8,568 sq.mt. 7,720 sq.mt. AREA STATEMENT LIVING + DINING 4m X 6m KITCHEN 3m X 4m AREA STATEMENT LIVING 5m X 4m KITCHEN 4.5m X 4m DINING 4.75m X 4.2m AREA STATEMENT TYPE 3-BHK SPACIOUS NO.OF FLOORS S+14 NO.OF UNITS ON EACH FLOOR 04 UNIT AREA 127 sq.mt. REFUGE AREA CIRCULATION AREA 104 sq.mt. TOTAL UNIT AREA 6,858 sq.mt. TOTAL AREA AREA STATEMENT TYPE 4-BHK NO.OF FLOORS S+10 NO.OF UNITS ON EACH FLOOR 04 UNIT AREA 170 sq.mt. REFUGE AREA CIRCULATION AREA 75 sq.mt. TOTAL UNIT AREA 6,630 sq.mt. TOTAL AREA OHT CAPACITY CALCULATION WATER REQUIRED PER PERSON PER DAY 135 ltrs. AVG.NO OF PERSON PER UNIT 05 TOTAL NO.OF PERSON IN 2BHK TOWER 270 CAPACITY OF OHT 36,450 ltrs. (36.45 cu.mt.) DIMENSION OF OHT 4m X 4m X 2.3m =36.8 cu.mt. OHT CAPACITY CALCULATION WATER REQUIRED PER PERSON PER DAY 135 ltrs. AVG.NO OF PERSON PER UNIT 05 TOTAL NO.OF PERSON IN 2BHK TOWER 195 CAPACITY OF OHT 26,325 ltrs. (26.325 cu.mt.) DIMENSION OF OHT 4m X 4m X 1.7m =27.2 cu.mt. REFUGE AREA CALCULATION (maximum of 4% of the habitable floor area it serves) AREA SERVED BY 7TH FLOOR AREA SERVED BY 12TH FLOOR 2,356 sq.mt. 1,397 sq.mt. 3,753 sq.mt. 4% OF 3,753 sq.mt. 150sq.mt. AREA PROVIDED 254 sq.mt. REFUGE AREA CALCULATION (maximum of 4% of the habitable floor area it serves) AREA SERVED BY 7TH FLOOR 2,550 sq.mt. 4% OF 2,550 sq.mt. 102 sq.mt. AREA PROVIDED 170 sq.mt. 254 sq.mt. 340 sq.mt. 8,568 sq.mt. 7,720 sq.mt. AREA STATEMENT LIVING + DINING 4m X 6m AREA STATEMENT LIVING 5m X 4m KITCHEN 4.5m X 4m DINING 4.75m X 4.2m AREA STATEMENT TYPE 3-BHK SPACIOUS NO.OF FLOORS S+14 NO.OF UNITS ON EACH FLOOR 04 UNIT AREA 127 sq.mt. REFUGE AREA CIRCULATION AREA 104 sq.mt. TOTAL UNIT AREA 6,858 sq.mt. TOTAL AREA OHT CAPACITY CALCULATION 254 sq.mt. 8,568 sq.mt.
2020 - 2024 PLANS UNIT 4-BHK (170 sq.mt. ) 4-BHK TOWER SECTION HH’ ELEVATION AT ‘U’ TYPICAL FLOOR PLAN 7th FLOOR PLAN AREA STATEMENT TYPE 3-BHK SPACIOUS NO.OF FLOORS S+14 NO.OF UNITS ON EACH FLOOR 04 UNIT AREA 127 sq.mt. REFUGE AREA CIRCULATION AREA 104 sq.mt. TOTAL UNIT AREA 6,858 sq.mt. TOTAL AREA AREA STATEMENT TYPE 4-BHK NO.OF FLOORS S+10 NO.OF UNITS ON EACH FLOOR 04 UNIT AREA 170 sq.mt. REFUGE AREA CIRCULATION AREA 75 sq.mt. TOTAL UNIT AREA 6,630 sq.mt. TOTAL AREA OHT CAPACITY CALCULATION WATER REQUIRED PER PERSON PER DAY 135 ltrs. AVG.NO OF PERSON PER UNIT 05 TOTAL NO.OF PERSON IN 2BHK TOWER 270 CAPACITY OF OHT 36,450 ltrs. (36.45 cu.mt.) DIMENSION OF OHT 4m X 4m X 2.3m =36.8 cu.mt. OHT CAPACITY CALCULATION WATER REQUIRED PER PERSON PER DAY 135 ltrs. AVG.NO OF PERSON PER UNIT 05 TOTAL NO.OF PERSON IN 2BHK TOWER 195 CAPACITY OF OHT 26,325 ltrs. (26.325 cu.mt.) DIMENSION OF OHT 4m X 4m X 1.7m =27.2 cu.mt. REFUGE AREA CALCULATION (maximum of 4% of the habitable floor area it serves) AREA SERVED BY 7TH FLOOR AREA SERVED BY 12TH FLOOR 2,356 sq.mt. 1,397 sq.mt. 3,753 sq.mt. 4% OF 3,753 sq.mt. 150sq.mt. AREA PROVIDED 254 sq.mt. REFUGE AREA CALCULATION (maximum of 4% of the habitable floor area it serves) AREA SERVED BY 7TH FLOOR 2,550 sq.mt. 4% OF 2,550 sq.mt. 102 sq.mt. AREA PROVIDED 170 sq.mt. 254 sq.mt. 340 sq.mt. 8,568 sq.mt. 7,720 sq.mt. AREA STATEMENT LIVING + DINING 4m X 6m KITCHEN 3m X 4m AREA STATEMENT LIVING 5m X 4m KITCHEN 4.5m X 4m DINING 4.75m X 4.2m AREA STATEMENT TYPE 3-BHK SPACIOUS NO.OF FLOORS S+14 NO.OF UNITS ON EACH FLOOR 04 UNIT AREA 127 sq.mt. REFUGE AREA CIRCULATION AREA 104 sq.mt. TOTAL UNIT AREA 6,858 sq.mt. TOTAL AREA AREA STATEMENT TYPE 4-BHK NO.OF FLOORS S+10 NO.OF UNITS ON EACH FLOOR 04 UNIT AREA 170 sq.mt. REFUGE AREA CIRCULATION AREA 75 sq.mt. TOTAL UNIT AREA 6,630 sq.mt. TOTAL AREA OHT CAPACITY CALCULATION WATER REQUIRED PER PERSON PER DAY 135 ltrs. AVG.NO OF PERSON PER UNIT 05 TOTAL NO.OF PERSON IN 2BHK TOWER 270 CAPACITY OF OHT 36,450 ltrs. (36.45 cu.mt.) DIMENSION OF OHT 4m X 4m X 2.3m =36.8 cu.mt. OHT CAPACITY CALCULATION WATER REQUIRED PER PERSON PER DAY 135 ltrs. AVG.NO OF PERSON PER UNIT 05 TOTAL NO.OF PERSON IN 2BHK TOWER 195 CAPACITY OF OHT 26,325 ltrs. (26.325 cu.mt.) DIMENSION OF OHT 4m X 4m X 1.7m =27.2 cu.mt. REFUGE AREA CALCULATION (maximum of 4% of the habitable floor area it serves) AREA SERVED BY 7TH FLOOR AREA SERVED BY 12TH FLOOR 2,356 sq.mt. 1,397 sq.mt. 3,753 sq.mt. 4% OF 3,753 sq.mt. 150sq.mt. AREA PROVIDED 254 sq.mt. REFUGE AREA CALCULATION (maximum of 4% of the habitable floor area it serves) AREA SERVED BY 7TH FLOOR 2,550 sq.mt. 4% OF 2,550 sq.mt. 102 sq.mt. AREA PROVIDED 170 sq.mt. 254 sq.mt. 340 sq.mt. 8,568 sq.mt. 7,720 sq.mt. AREA STATEMENT LIVING + DINING 4m X 6m KITCHEN 3m X 4m COMMON TOILET 2m X 2.5m AREA STATEMENT LIVING 5m X 4m KITCHEN 4.5m X 4m COMMON TOILET 2m X 2.5m MASTER BEDROOM 4m X 5m DINING 4.75m X 4.2m AREA STATEMENT TYPE 4-BHK NO.OF FLOORS S+10 NO.OF UNITS ON EACH FLOOR 04 UNIT AREA 170 sq.mt. REFUGE AREA CIRCULATION AREA 75 sq.mt. TOTAL UNIT AREA 6,630 sq.mt. TOTAL AREA OHT CAPACITY CALCULATION 340 sq.mt. 7,720 sq.mt. NO.OF FLOORS S+10 NO.OF UNITS ON EACH FLOOR 04 UNIT AREA 170 sq.mt. REFUGE AREA CIRCULATION AREA 75 sq.mt. TOTAL UNIT AREA 6,630 sq.mt. TOTAL AREA OHT CAPACITY CALCULATION WATER REQUIRED PER PERSON PER DAY 135 ltrs. AVG.NO OF PERSON PER UNIT 05 TOTAL NO.OF PERSON IN 2BHK TOWER 195 CAPACITY OF OHT 26,325 ltrs. (26.325 cu.mt.) DIMENSION OF OHT 4m X 4m X 1.7m =27.2 cu.mt. REFUGE AREA CALCULATION (maximum of 4% of the habitable floor area it serves) AREA SERVED BY 7TH FLOOR 2,550 sq.mt. 4% OF 2,550 sq.mt. 102 sq.mt. AREA PROVIDED 170 sq.mt. 340 sq.mt. 7,720 sq.mt. AREA STATEMENT LIVING 5m X 4m KITCHEN 4.5m X 4m COMMON TOILET 2m X 2.5m MASTER BEDROOM 4m X 5m BEDROOM 3.8m X 4.35m 4.2m X 3.8m BEDROOM BEDROOM 4.5m X 3.8m DINING 4.75m X 4.2m
CLUBHOUSE
GROUND FLOOR PLAN SECTION QQ’ SECTION PP’ ELEVATION AT ‘M’
SELECTED WORK
ELEVATION AT ‘N’
FIRST FLOOR PLAN
VIEWS
CENTRAL GARDEN CLUBHOUSE RECREATIONAL SPACES ENTRANCE

03. SANGAM

MOTEL AND FOOD COURT DESIGN

Site Location : SAMRUDDHI MAHAMARG, SAWANGI INTERCHANGE

Site Area: 10,419 Sq.mt.

Nestled along the bustling highways, this modern motel design blends seamlessly into its dynamic surroundings, offering weary travelers a haven of comfort and convenience. Its sleek architecture features clean lines and contemporary accents, echoing the rhythm of passing vehicles. Bright, welcoming lights guide guests to spacious rooms equipped with all the essentials for a rejuvenating stay. With easy access to major roads, this stylish retreat becomes a beacon of rest for road-weary adventurers, promising a restful reprieve on their journey.

SELECTED WORK

The site is located near the junction of mumbai-kolkata highway and samruddhi maha marg (at the sawangi interchange).

Location coordintes: 19°57’59” N , 75°22’16.9”E, Tuljapur, Maharashtra

The site is located in front of nuziveedu seeds near the sawangi interchange of samruddhi mahamarg. The sun path is from east to west via south and prevailings wind is from south-west to north-east. Mumbai kolkata highway infront of site forms the main noise source. Site is surrounded by a service road of 9m width to its east and by agricultural land on its other three sides.Nizuveedu seeds industry lies on the east side of the site

As the site is located on highway there will be a lot of traffic noise hence public spaces should be on the front side of the road and private spaces should be as far as possible from the acess roads.Buffer zones are required to be made in order to reduce the noise level coming .Also on the opposite site there is a factory which will also create noise

Direction of prevailing wind in india is mostly from south-west to north-east. Wind direction on site is unidirectional straightly from left side of the site to its right. Building opening placed along this direction experiences more clearer ventilation.Larger openings can be provided along ventilated path.

Two spaces that are separated by distance can be liked or related to each other by a third. Intermediate space the visual and spatial relationship between two spaces depends on the nature of the third space with which they share a common bond.

The intermediate space differ in form and orientation from the two spaces to express its linking fuction.

Common space is often referred to as a “Connector” or “Linking element and serves as a transition zone between different areas of the building

1.MAIN ENTRANCE

2.FOUR-WHEELER PARKING

3.BUS PARKING

4.TWO-WHEELER PARKING

5.DROP-OFF

6.COMMON ENTRANCE

7.MOTEL

8.FOOD COURT

9.CHILDREN’S PLAY AREA

10.SOUVENIR SHOPS

11.PUMP ROOM

12.MAIN EXIT

13.SERVICE ENTRY

14.SERVICE EXIT

PLAN
SITE
SELECTED WORK
ELEVATION AT ‘P’ FOOD COURT PLAN
SECTION D-D’

GROUND FLOOR PLAN FIRST FLOOR PLAN

SECOND FLOOR PLAN

MOTEL MOTEL
SECTION A-A’
AT ‘X’
AT ‘Y’
SECTION B-B’ ELEVATION
ELEVATION

ARCHITECTURE BLOCKCAMPUS DESIGN

WORKING DRAWING

04. SELECTED WORK
“I work from the inside out” - Frank.O.Gehry

C43,C45,C47,C48,C49

C39,C40,C41,C42

C34,C36

C33,C35

C31,C32,C37,C38

C56,C57,C58,C59

C26,C27,C28,C29,C30

C54,C55

C22,C24,C25

C23

C50,C51,C52,C53

C15,C17

C13,C14,C16,C18,C19,C20,C21

C1,C3,C4,C5,C6,C7

CENTRE-LINE PLAN

C44,C46 C8,C13,C22,C26,C31

C15,C16,C17,C18, C19,C20,C21,C22, C23,C24,C25,C26, C27,C28,C29,C30, C31,C32,C33,C34, C35,C36,C37,C38, C39,C40,C41,C42, C43,C44,C45,C46, C47,C48,C49. C50,C51,C52,C53, C54,C55,C56,C57, C58,C59.

NO. DATE CHECKED 01. 31/01/2023 02. 06/02/2023 13/03/2023 03. 15/03/2023 04. 03/04/2023 05.

SELECTED WORKS PANTRY (3000 X 6000) VICE-PRINCIPAL OFFICE (4000 X 6000) PRINCIPAL OFFICE (5000 X 6000) RECEPTION + WAITING (11000 X 6000) ADMIN OFFICE (10500 X 6000) MEN'S TOILET (7000 X 3000) WOMEN'S TOILET (5000 X 3000) STUDIO 3 (7000 X 8000) FACULTY ROOM (12500 X 11000) CONFERENCE ROOM (7230 X 8000) DIRECTOR'S OFFICE (7230 X 5000) COURTYARD (21000 X 10500) PASSAGE 3000MM WIDE STUDIO 2 (10500 X 11000) +0.0MM GROUND LEVEL +600MM PLINTH LEVEL +0.0 MM GROUND LEVEL +600MM PLINTH LEVEL UP UP DOWN +50 MM +2550 STUDIO 3 (11000 X 11000) 0 0 1 2 3 5 6 8 9 10 12 13 14 15 16 11 A B C D E F G H I J K L M N O P Q 1 2 3 4 5 6 7 8 9 10 12 13 14 15 16 11 A B C D E F G H I J K L M N O P Q C1 C2 C3 C4 C5 C6 C7 C8 C9 C10 C11 C12 C13 C14 C15 C16 C17 C18 C19 C20 C21 C22 C23 C24 C25 C50 C51 C52 C53 C54 C56 C57 C58 C59 C55 C29 C30 C38 C37 C36 C35 C34 C33 C32 C31 C26 C27 C28 C39 C40 C41 C42 C49 C48 C47 C46 C45 C44 C43 300 X 450 300 X 450 450 X 300 300 X 450 300 X 450 300 X 450 300 X 450 300 X 450 300 X 450 300 X 450 300 X 450 450 X 300 450 X 300 450 X 300 450 X 300 450 X 300 450 X 300 450 X 300 450 X 300 450 X 300 300 X 450 300 X 450 300 X 450 300 X 450 300 X 450 300 X 450 300 X 450 300 X 450 300 X 450 300 X 450 300 X 450 300 X 450 300 X 450 300 X 450 300 X 450 300 X 450 300 X 450 300 X 450 300 X 450 300 X 450 300 X 450 300 X 450 300 X 450 300 X 450 300 X 450 300 X 450 300 X 450 300 X 450 300 X 450 300 X 300 300 X 300 300 X 300 300 X 300 300 X 300 300 X 300 300 X 300 300 X 300 300 X 300 300 X 300
C2
C23 C27 C28,C32 C1,C9,C14,C39,C43 C50,C54,C56 C2,C15,C33,C44 C51,C57 C3,C10,C16,C34,C40,C45 C17,C35,C46 C52,C58 C4,C11,C18,C36,C41,C47 C53,C55,C59 C5,C19,C24,C29,C37,C48 C6,C20 C7,C12,C21,C25,C30,C38,C42,C49 UP ORIGIN POINT (0,0) 5150 5085 75 2000 70 2930 2375 4625 730 5650 620 5070 2230 3000 4160 3230 47000 5150 75 3000 3010 75 3000 230 145 5155 75 5155 2855 145 75 5505 5505 75 39230 X Y
5150 10235 10310 12380 15310 17685 23040 22310 28690 29310 34380 36610 39610 43770 47000 12310 5225 5150 8225 11235 11310 14685 14310 14540 19915 19840 25070 27925 28145 28070 33650 39155 39230 4 7 61432.13 61220.85 182 25000 3000 140 KEY PLAN (1:1000) DR.D.Y.PATIL COLLEGE OF ARCHITECTURE,AKURDI PROJECT : PROPOSED CAMPUS DESIGN AT TATHAWADE,PUNE OWNER:DYPCOA TITLE CENTRE-LINE PLAN SCALE 1:100 DESIGNED/ DRAWN BY: SNEHA KOTHARI AR.AKALPITA JOSHI AR.ANKITA LODHA A.Y. 2022-2023 SEMESTER. VI APPROVED BY: SIGN NORTH WORKING DRAWING-II (R.C.C. FRAMED STRUCTURE G+1) GENERAL NOTES: 03 1. ALL DIMENSIONS ARE IN MM, UNLESS OTHERWISE SPECIFIED. 2. WRITTEN DIMENSIONS TO BE FOLLOWED. 3. ALL DIMENSIONS ARE FROM UNFINISHED TO UNFINISHED SURFACE. 4. DO NOT SCALE THE DRAWING. 5. THIS DRAWING IS THE PROPERTY OF AND SHOULD NOT BE COPIED OR REPRODUCED WITHOUT WRITTEN PERMISSION
THE ARCHITECT. 6. ANY DISCREPANCY
BE
THE ARCHITECT. COLUMN SCHEDULE: KEY PLAN
C8,C9,C10,C11,C12
FROM
TO
CONSULTED WITH
SCALE: 1:100 CLASS T.Y.B.ARCH(C) ROLL NO.: 205 NO. COLUMN NO. COLUMN SIZE 01. 02. C1,C2,C3,C4,C5,
300 MM X 450 MM 300 MM X 300 MM
REVISIONS
15
C6,C7,C8,C9,C10, C11,C12,C13,C14,
DATE 26/04/2023

GROUND FLOOR PLAN

06 25000 KEY PLAN (1:1000) DR.D.Y.PATIL COLLEGE OF ARCHITECTURE,AKURDI PROJECT PROPOSED CAMPUS DESIGN AT TATHAWADE,PUNE OWNER:DYPCOA TITLE GROUND FLOOR PLAN SCALE 1:75 DESIGNED/ DRAWN BY: SNEHA KOTHARI AR.AKALPITA JOSHI AR.ANKITA LODHA A.Y. 2022-2023 SEMESTER. VI APPROVED BY: SIGN NORTH WORKING DRAWING-II (R.C.C. FRAMED STRUCTURE G+1) GENERAL NOTES: 1. ALL DIMENSIONS ARE IN MM UNLESS OTHERWISE SPECIFIED. 2. WRITTEN DIMENSIONS TO BE FOLLOWED. 3. ALL DIMENSIONS ARE FROM UNFINISHED TO UNFINISHED SURFACE. 4. DO NOT SCALE THE DRAWING. 5. THIS DRAWING IS THE PROPERTY OF AND SHOULD NOT BE COPIED OR REPRODUCED WITHOUT WRITTEN PERMISSION FROM THE ARCHITECT. 6. ANY DISCREPANCY TO BE CONSULTED WITH THE ARCHITECT. REVISIONS NO. DATE CHECKED SCHEDULE: KEY PLAN
SCALE: 1:75 CLASS T.Y.B.ARCH(C) ROLL NO.: 205 DOOR SCHEDULE SR.NO. DOORS LENGTH X HEIGHT TYPE QUANTITY 01. D1 3000MM X 2500MM 02. D2 1200MM 2500MM 03. D3 1000MM 2500MM 04. D4 900MM X 2500MM 05. D5 750MM X 2500MM DOUBLE-SLIDING GLASS DOOR 01 06 03 03 07 DOUBLE-PANE WOODEN SWING DOOR SINGLE-PANE WOODEN SWING DOOR SINGLE-PANE WOODEN SWING DOOR SINGLE-PANE SWING FLUSH DOOR WINDOW SCHEDULE SR.NO. WINDOW LENGTH SILL HEIGHT TYPE QUANTITY 01. W1 1000MM 900MM 1500MM ALUMINIUM FRAMED TWO 09 -PANE SLIDING WINDOW 02. W2 1200MM 900MM 1500MM ALUMINIUM FRAMED TWO 09 -PANE SLIDING WINDOW 03. W3 1500MM 900MM 1500MM ALUMINIUM FRAMED THREE 02. -PANE SLIDING WINDOW 05. V1 600MM 2100MM 600MM LOUVERED WINDOW 07 06. D6 3000MM 2500MM COLLAPSIBLE DOOR 01 04. W4 1000MM 2400MM 2400MM ALUMINIUM FRAMED FIXED 02 WINDOW DATE 26/04/2023 PANTRY (3000 X 6000) VICE-PRINCIPAL OFFICE (4000 X 6000) PRINCIPAL OFFICE (5000 X 6000) RECEPTION + WAITING (11000 X 6000) ADMIN OFFICE (10500 X 6000) MEN'S TOILET (7000 X 3000) WOMEN'S TOILET (5000 X 3000) STUDIO 1 (7000 X 8000) FACULTY ROOM (12500 X 11000) CONFERENCE ROOM (7230 X 8000) DIRECTOR'S OFFICE (7230 X 5000) COURTYARD (21000 X 10500) PASSAGE 3000MM WIDE STUDIO 2 (10500 X 11000) LVL+0.0MM +0.0 MM GROUND LEVEL +600MM PLINTH LEVEL UP DOWN +2550 STUDIO 3 (11000 X 11000) UP LVL+150.0MM LVL+300.0MM LVL+450.0MM LVL+600.0MM W1 W1 W2 W1 W3 W1 W1 W1 W4 W3 V1 V1 V1 V1 V1 V1 V1 D2 D2 D2 D2 D2 D2 D3 D3 D3 D4 D4 D4 D5 D5 D5 D5 D5 D5 D5 8330 5560 1930 4500 1930 550 830 70 220 6000 10500 3000 7000 1200 300 5730 2560 1700 100 1600 1600 1600 1600 900 900 900 900 95135 3320 160 140 160 140 160 140 160900 900 1160 1500 1500 1500 140 140160 300 260 1500 300 570 1118 8918 1730 22070 4780 5000 3000 2030 5160 5000 2000 1870 200 710 2000 1000 3000 7160 6780 30 300 1700 4860 300 70 70 7000 8000 880 3400 880 6860 6330 220 220 220 9530 10530 300 5275 70 5055 220 450 2700 2045 450 10500 11000 220 70 5055 5055 220 4980 450 3500 11000 2780 1260 450 1460 2650 11000 5275 450 3775 11000 300 5055 450 5055 220 70 690 10540 220 4950 300 7110 3900 155 450 1100 1700 480 12500 11000 W2 W2 W1 W1 W1 W2 W2 W2 W2 W2 W2 220 220 1015 1750 70 220 3040 6500 7090 70 70 220 6280 80 220 7090 22070 1425 2180 1555 220 7230 8000 300 3480 220 7090 70 70 675 2605 220 7230 3000 830 3930 7690 2930 70 220 450 900 450 2560 220 1800 300 6000 3000 647 2100 106070 1800 70 4000 6000 70 815 995 120 1160 1150 120 2560 450 2550 220 620 3310 6000 5000 420 6920 6230 3250 2750 5000 1500 3000 6230 11000 6460 16170 3000 1000 450 2560 220 7230 20150 7230 11230 34920 24920 1600 7035.43 115° 115 155° 155 5230 3000 1000 1000 1000 7460 5150 LVL+600.0MM LVL+550MM LVL+400.0MM LVL+250.0MM LVL+100.0MM 18000 10500 7500 5000 220 500 500 500 8150 9460 8460 6650 6700 6700 7000 5230 4930 7000 6700 6700 4930 5230 10 11 13 15 18 20 22 23 25 +570MM D1 W4 C1 C2 C3 C4 C5 C6 C7 C8 C9 C10 C11 C12 C13 C14 C15 C16 C17 C18 C19 C20 C21 C22 C23 C24 C25 C50 C51 C52 C53 C54 C56 C57 C58 C59 C55 C29 C30 C38 C37 C36 C35 C34 C33 C32 C31 C26 C27 C28 C39 C40 C41 C42 C49 C48 C47 C46 C45 C44 C43 300 X 450 300 X 450 450 X 300 300 X 450 300 X 450 300 X 450 300 X 450 300 X 450 300 X 450 300 X 450 300 X 450 450 X 300 450 X 300 450 X 300 450 X 300 450 X 300 450 X 300 450 X 300 450 X 300 450 X 300 300 X 450 300 X 450 300 X 450 300 X 450 300 X 450 300 X 450 300 X 450 300 X 450 300 X 450 300 X 450 300 X 450 300 X 450 300 X 450 300 X 450 300 X 450 300 X 450 300 X 450 300 X 450 300 X 450 300 X 450 300 X 450 300 X 450 300 X 450 300 X 450 300 X 450 300 X 450 300 X 450 300 X 450 300 X 450 300 X 300 300 X 300 300 X 300 300 X 300 300 X 300 300 X 300 300 X 300 300 X 300 300 X 300 300 X 300 450 D6 A A' B B' 600 230 600 600 230 3500 10500 8850 7000 34920 34380 31380 01. 31/01/2023 02. 06/02/2023 13/03/2023 03. 15/03/2023 04. 03/04/2023 05. 15 2020 - 2024

C43,C45,C47,C48,C49

C39,C40,C41,C42

C34,C36

C33,C35

C31,C32,C37,C38

C56,C57,C58,C59

C26,C27,C28,C29,C30

C54,C55

C22,C24,C25

C23

C50,C51,C52,C53

C15,C17

C13,C14,C16,C18,C19,C20,C21

C1,C3,C4,C5,C6,C7

C44,C46 C8,C13,C22,C26,C31

C6,C7,C8,C9,C10, C11,C12,C13,C14, C15,C16,C17,C18, C19,C20,C21,C22, C23,C24,C25,C26, C27,C28,C29,C30, C31,C32,C33,C34, C35,C36,C37,C38, C39,C40,C41,C42, C43,C44,C45,C46, C47,C48,C49. C50,C51,C52,C53, C54,C55,C56,C57, C58,C59.

C1 C2 C3 C4 C5 C6 C7 C8 C9 C10 C11 C12 C13 C14 C15 C16 C17 C18 C19 C20 C21 C22 C23 C24 C25 C50 C51 C52 C53 C54 C56 C57 C58 C59 C55 C29 C30 C38 C37 C36 C35 C34 C33 C32 C31 C26 C27 C28 C39 C40 C41 C42 C49 C48 C47 C46 C45 C44 C43 300 X 450 300 X 450 450 X 300 300 X 450 300 X 450 300 X 450 300 X 450 300 X 450 300 X 450 300 X 450 300 X 450 450 X 300 450 X 300 450 X 300 450 X 300 450 X 300 450 X 300 450 X 300 450 X 300 450 X 300 300 X 450 300 X 450 300 X 450 300 X 450 300 X 450 300 X 450 300 X 450 300 X 450 300 X 450 300 X 450 300 X 450 300 X 450 300 X 450 300 X 450 300 X 450 300 X 450 300 X 450 300 X 450 300 X 450 300 X 450 300 X 450 300 X 450 300 X 450 300 X 450 300 X 450 300 X 450 300 X 450 300 X 450 300 X 450 300 X 300 300 X 300 300 X 300 300 X 300 300 X 300 300 X 300 300 X 300 300 X 300 300 X 300 300 X 300 0 0 1 2 3 5 6 8 9 10 12 13 14 15 16 11 A B C D E F G H I J K L M N O P Q 1 2 3 4 5 6 7 8 9 10 12 13 14 15 16 11 A B C D E F G H I J K L M N O P Q
C2
C23 C27 C28,C32 C1,C9,C14,C39,C43 C50,C54,C56 C2,C15,C33,C44 C51,C57 C3,C10,C16,C34,C40,C45 C17,C35,C46 C52,C58 C4,C11,C18,C36,C41,C47 C53,C55,C59 C5,C19,C24,C29,C37,C48 C6,C20 C7,C12,C21,C25,C30,C38,C42,C49 ORIGIN POINT (0,0) 5150 5085 75 2000 70 2930 2375 4625 730 5650 620 5070 2230 3000 4160 3230 47000 5150 75 3000 3010 75 3000 230 145 5155 75 5155 2855 145 75 5505 5505 75 39230 X Y
5150 10235 10310 12380 15310 17685 23040 22310 28690 29310 34380 36610 39610 43770 47000 12310 5225 5150 8225 11235 11310 14685 14310 14540 19915 19840 25070 27925 28145 28070 33650 39155 39230 4 7 61432.13 61220.85 18225 00 000 1400 KEY PLAN (1:1000) DR.D.Y.PATIL COLLEGE OF ARCHITECTURE,AKURDI PROJECT PROPOSED CAMPUS DESIGN AT TATHAWADE,PUNE OWNER:DYPCOA TITLE FOOTING PLAN SCALE 1:100 DESIGNED/ DRAWN BY: SNEHA KOTHARI A.Y. 2022-2023 SEMESTER. VI APPROVED BY: SIGN NORTH WORKING DRAWING-II (R.C.C. FRAMED STRUCTURE G+1) GENERAL NOTES: 1. ALL DIMENSIONS ARE IN MM UNLESS OTHERWISE SPECIFIED. 2. WRITTEN DIMENSIONS TO BE FOLLOWED. 3. ALL DIMENSIONS ARE FROM UNFINISHED TO UNFINISHED SURFACE. 4. DO NOT SCALE THE DRAWING. 5. THIS DRAWING IS THE PROPERTY OF AND SHOULD NOT BE COPIED OR REPRODUCED WITHOUT WRITTEN PERMISSION FROM THE ARCHITECT. 6. ANY DISCREPANCY TO BE CONSULTED WITH THE ARCHITECT. 7. TYPE OF FOOTING USED IS BOX
KEY PLAN
C8,C9,C10,C11,C12
FOOTING.
SCALE: 1:100 CLASS T.Y.B.ARCH(C) ROLL NO.: 205 04 AR.AKALPITA JOSHI AR.ANKITA LODHA FOOTING
NO. COLUMN NO. COLUMN SIZE 01. 02.
300 MM X 450 MM 300 MM X 300 MM FOOTING SIZE FOOTING DEPTH 1200 MM X 1350 MM 1500 MM X 1500 MM 600MM 600MM REQUIRED STRATA 40MM COVER GROUND LEVEL PLINTH BEAM PLINTH BEAM LEVEL FOOTING DETAIL FOOTING SECTION (1:50) DATE
REVISIONS NO.
15 SELECTED WORK
FOOTING PLAN
SCHEDULE:
C1,C2,C3,C4,C5,
26/04/2023
DATE 01. 31/01/2023 02. 06/02/2023 13/03/2023 03. 15/03/2023 04. 03/04/2023 05. CHECKED

PLINTH BEAM LAYOUT

PB27,PB28,PB29,PB30,PB31,PB32, PB32,PB33,PB34,PB35,PB38,PB39, PB42,PB43,PB44,PB45,PB46

5000 30000 99000 KEY PLAN (1:1000) DR.D.Y.PATIL COLLEGE OF ARCHITECTURE,AKURDI PROJECT PROPOSED CAMPUS DESIGN AT TATHAWADE,PUNE OWNER:DYPCOA TITLE PLINTH BEAM LAYOUT SCALE 1:100 DESIGNED/ DRAWN BY: SNEHA KOTHARI AR.AKALPITA JOSHI AR.ANKITA LODHA A.Y. 2022-2023 SEMESTER. VI APPROVED BY: SIGN NORTH WORKING DRAWING-II (R.C.C. FRAMED STRUCTURE G+1) GENERAL NOTES: 1. ALL DIMENSIONS ARE IN MM UNLESS OTHERWISE SPECIFIED. 2. WRITTEN DIMENSIONS TO BE FOLLOWED. 3. ALL DIMENSIONS ARE FROM UNFINISHED TO UNFINISHED SURFACE. 4. DO NOT SCALE THE DRAWING. 5. THIS DRAWING IS THE PROPERTY OF AND SHOULD NOT BE COPIED OR REPRODUCED WITHOUT WRITTEN PERMISSION FROM THE ARCHITECT. 6. ANY DISCREPANCY TO BE CONSULTED WITH THE ARCHITECT. KEY PLAN
SCALE: 1:100 CLASS T.Y.B.ARCH(C) ROLL NO.: 205 05 PLINTH BEAM SCHEDULE: NO. PLINTH BEAM NO. PLINTH BEAM SIZE 01. 02. PLINTH BEAM DETAIL PLINTH BEAM SECTION (1:25) C1 C2 C3 C4 C5 C6 C7 C8 C9 C10 C11 C12 C13 C14 C15 C16 C17 C18 C19 C20 C21 C22 C23 C24 C25 C50 C51 C52 C53 C54 C56 C57 C58 C59 C55 C29 C30 C38 C37 C36 C35 C34 C33 C32 C31 C26 C27 C28 C39 C40 C41 C42 C49 C48 C47 C46 C45 C44 C43 300 X 450 300 450 450 300 300 450 300 X 450 300 X 450 300 X 450 300 450 300 X 450 300 X 450 300 X 450 450 X 300 450 300 450 300 450 300 450 X 300 450 300 450 X 300 450 300 450 300 300 X 450 300 X 450 300 X 450 300 450 300 X 450 300 X 450 300 450 300 450 300 450 300 X 450 300 450 300 450 300 X 450 300 X 450 300 450 300 450 300 X 450 300 450 300 450 300 450 300 450 300 X 450 300 X 450 300 X 450 300 X 450 300 X 450 300 X 450 300 X 450 300 X 450 300 X 300 300 X 300 300 X 300 300 X 300 300 300 300 X 300 300 X 300 300 300 300 300 300 300 GB1 GB2 GB3 GB4 GB5 GB6 GB7 GB8 GB9 GB10 GB11 GB12 GB13 GB20 GB21 GB23 GB24 GB28 GB27 GB22 GB19 GB18 GB17 GB16 GB15 GB14 PB1 PB2 PB3 PB4 PB5 PB6 PB7 PB8 PB9 PB10 PB11 PB12 PB13 PB14 PB15 PB16 PB20 PB21 PB22 PB23 PB24 PB25 PB17 PB18 PB19 PB26 PB27 PB31 PB32 PB28 PB34 PB35 PB36 PB37 PB38 PB39 PB40 PB41 PB43 PB44 PB45 PB46
230MM X 600MM PB1,PB2,PB3,PB4,PB5,PB6,PB7, PB8,PB9,PB13,PB14,PB15,PB16, PB20,PB21,PB23,PB24,PB25,PB26,
230MM X 450MM 03.
300MM X 450MM DATE 26/04/2023 REVISIONS NO. DATE 01. 31/01/2023 02. 06/02/2023 13/03/2023 03. 15/03/2023 04. 03/04/2023 05. CHECKED 15 1 2 3 4 5 6 7 8 9 10 12 13 14 15 16 11 A B C D E F G H I J K L M N O P Q PLINTH LEVEL 300THK RUBBLE SOLING GROUND LEVEL MURUM FILLING PCC AS PER DESIGN THICKNESS OF BRICK WALL B11 GROUND BEAM PLINTH BEAM B18 100THK P.C.C 2020 - 2024
GB1,GB2,GB3,GB4,GB5,GB6,GB7, GB8,GB9,GB10,GB11,GB12,GB13, GB14,GB15,GB16,GB17,GB18,GB19, GB20,GB21,GB22,GB23,GB24,GB25, GB26,GB27,GB28
PB10,PB11,PB12,PB17,PB18,PB19, PB36,PB37,PB40,PB41
18225 25000 99 1400 KEY PLAN (1:1000) DR.D.Y.PATIL COLLEGE OF ARCHITECTURE,AKURDI PROJECT PROPOSED CAMPUS DESIGN AT TATHAWADE,PUNE OWNER:DYPCOA TITLE SECTIONS DESIGNED/ DRAWN BY: SNEHA KOTHARI AR.AKALPITA JOSHI AR.ANKITA LODHA A.Y. 2022-2023 SEMESTER. VI APPROVED BY: SIGN NORTH WORKING DRAWING-II (R.C.C. FRAMED STRUCTURE G+1) GENERAL NOTES: 1. ALL DIMENSIONS ARE IN MM, UNLESS OTHERWISE SPECIFIED. 2. WRITTEN DIMENSIONS TO BE FOLLOWED. 3. ALL DIMENSIONS ARE FROM UNFINISHED TO UNFINISHED SURFACE. 4. DO NOT SCALE THE DRAWING. 5. THIS DRAWING IS THE PROPERTY OF AND SHOULD NOT BE COPIED OR REPRODUCED WITHOUT WRITTEN PERMISSION FROM THE ARCHITECT. 6. ANY DISCREPANCY TO BE CONSULTED WITH THE ARCHITECT. KEY PLAN
CLASS T.Y.B.ARCH(C) ROLL NO.: 205 09 KEY PLAN (1:600) KEY PLAN (1:600) D2 D2 D2 D2 D2 D2 +0.00MM GROUND LVL +600MM PLINTH LVL +1500MM SILL LVL +2550MM MID-LANDING LVL +3000MM SILL LVL +3100MM LINTEL LVL +4500MM SLAB LVL +5400MM RAILING AND LINTEL LVL +6450MM MID-LANDING LVL +6900MM SILL LVL +7000MM LINTEL LVL +8400MM SLAB LVL +9300MM LINTEL LVL AND PARAPET WALL LVL +11050MM SLAB LVL +11650MM PARAPET WALL LVL STAIRCASE ROOM DIRECTOR,S OFFICE LAB 2 3000MM PASSAGE TERRACE 3000MM PASSAGE 3000MM PASSAGE 3000MM PASSAGE 3750 3900 600 1500 450 450 2400 450150 450 450 2400 150 1150 450 600 11650 3750 2500 900 1800 4450 25MM THK CEMENT SCREED 15MM THK TILE 300 100 10 MM SKIRTING TILE 75 MM THICK FILLET 25MM THK CEMENT SCREED 15MM THK TILE 300 100 10 MM SKIRTING TILE W4 W4 150MM THICK P.C.C. SLAB COURTYARD GLASS AND STAINLESS STEEL COMPOSITE RAILING OF 900MM HEIGHT GLASS AND STAINLESS STEEL COMPOSITE RAILING OF 900MM HEIGHT 230MM THICK BRICK WALL 230MM THICK BRICK WALL 75 MM THICK FILLET 75 MM THICK FILLET 75 MM THICK FILLET 75 MM THICK FILLET 75 MM THICK FILLET MURUM FILLING GRAVEL FILLING 150 250 TREAD 250MM SECTION
1 4 6 13 14 16 D2 D2 +0.00MM GROUND LVL +600MM PLINTH LVL +1500MM SILL LVL +2550MM MID-LANDING LVL +2700MM SILL LVL +3000MM LINTEL LVL +3100MM LINTEL LVL +3300MM LINTEL LVL +4500MM SLAB LVL +5400MM SILL LVL +6450MM MID-LANDING LVL +6600MM SILL LVL +6900MM LINTEL LVL +7000MM LINTEL LVL +7200MM LINTEL LVL +8400MM MID-LANDING LVL +9300MM PARAPET WALL LVL +11050MM SLAB LVL +11650MM PARAPET WALL LVL 3000MM PASSAGE 3000MM PASSAGE MEN'S TOILET MEN'S TOILET WOMEN'S TOILET WOMEN'S TOILET STUDIO 4 STUDIO TERRACE TERRACE 600 2100 600 75 675 450 2100 600 75 675 450 900 9300 3765 3780 W2 W2 V1 V1 D5 D5 D5 D5 25MM THK CEMENT SCREED 15MM THK TILE 300 100 X 10 MM SKIRTING TILE 25MM THK CEMENT SCREED 15MM THK TILE 300 X 100 X 10 MM SKIRTING TILE 150MM THICK P.C.C. SLAB 230MM THICK BRICK WALL GLASS AND STAINLESS STEEL COMPOSITE RAILING OF 900MM HEIGHT 230MM THICK BRICK WALL SUNK OF 200MM DEPTH SUNK OF 200MM DEPTH PVC TOILET PARTITIONS 40MM THICK (FLOOR SLAB TO CEILING) PVC TOILET PARTITIONS 40MM THICK (FLOOR SLAB TO CEILING) 2515 MURUM FILLING GRAVEL FILLING 150MM THICK P.C.C. SLAB 75 MM THICK FILLET 75 MM THICK FILLET 75 MM THICK FILLET 75 MM THICK FILLET SECTION
C F K M Q SCALE 1:75 REVISIONS NO. DATE CHECKED DATE 26/04/2023 01. 02. 13/03/2023 03. 15/03/2023 03/04/2023 SCALE: 1:75 15 SELECTED WORKS
SECTIONS
A-A'
B-B'
18225 250 99 KEY PLAN (1:1000) DR.D.Y.PATIL COLLEGE OF ARCHITECTURE,AKURDI PROJECT PROPOSED CAMPUS DESIGN AT TATHAWADE,PUNE OWNER:DYPCOA TITLE STAIRCASE DETAILS SCALE 1:50 DESIGNED/ DRAWN BY: SNEHA KOTHARI AR.AKALPITA JOSHI AR.ANKITA LODHA DATE 26/04/2023 A.Y. 2022-2023 SEMESTER. VI APPROVED BY: SIGN NORTH WORKING DRAWING-II (R.C.C. FRAMED STRUCTURE G+1) GENERAL NOTES: 1. ALL DIMENSIONS ARE IN MM, UNLESS OTHERWISE SPECIFIED. 2. WRITTEN DIMENSIONS TO BE FOLLOWED. 3. ALL DIMENSIONS ARE FROM UNFINISHED TO UNFINISHED SURFACE. 4. DO NOT SCALE THE DRAWING. 5. THIS DRAWING IS THE PROPERTY OF AND SHOULD NOT BE COPIED OR REPRODUCED WITHOUT WRITTEN PERMISSION FROM THE ARCHITECT. 6. ANY DISCREPANCY TO BE CONSULTED WITH THE ARCHITECT. REVISIONS NO. DATE CHECKED KEY PLAN
DETAILS SCALE: 1:50 CLASS T.Y.B.ARCH(C) ROLL NO.: 205 12 +2550 UP W4 5160 5000 2000 1870 200 710 2000 1000 3000 7160 220 1 2 3 4 5 6 7 8 9 10 11 12 13 14 15 16 17 18 19 20 21 22 23 24 25 26 W4 D2 D2 STAIRCASE ROOM 3000MM PASSAGE TERRACE 3000MM PASSAGE 3750 3900 600 1500 450 450 2400 450150 450 450 2400 150 1150 450 600 11650 3750 2500 1800 4450 W4 W4 75 MM THICK FILLET 75 MM THICK FILLET 75 MM THICK FILLET 150 250 TREAD = 250MM RISER = 150MM 1 4 +0.00MM GROUND LVL +600MM PLINTH LVL +2550MM MID-LANDING LVL +3000MM SILL LVL +5400MM SILL AND LINTEL LVL +6450MM MID-LANDING LVL +6900MM SILL LVL +9300MM LINTEL LVL AND PARAPET WALL LVL +11050MM SLAB LVL +11650MM PARAPET WALL LVL X X' SECTION X-X' (1:50) TREAD = 250MM RISER = 150MM 15MM NOSING PROJECTION 15MM THICK GRANITE TREAD 15MM THICK GRANITE RISER 130M THICK R.C.C. WAIST SLAB 25MM THICK CEMENT SCREED 12MM THICK PLASTER GROUND FLOOR STAIRCASE PLAN (1:50) +6450 5160 5000 2000 1870 200 710 2000 1000 3000 7160 220 UP 27 40 28 29 30 31 32 33 34 35 36 37 38 39 41 42 43 44 45 46 47 48 49 50 51 52 +4500 W4 W4 FIRST FLOOR STAIRCASE PLAN (1:50) DOWN +6450 +8400 +4500 D7 27 40 28 29 30 31 32 33 34 35 36 37 38 39 41 42 43 44 45 46 47 48 49 50 51 52 TERRACE FLOOR STAIRCASE PLAN (1:50) 50MM DIA. S.S. RAILING RAILING HEIGHT 900MM 18MM DIA. SCREWS 15MM THICK BASE PLATE 30MM DIA. S.S. RAILING X X' X X' A B DETAIL AT 'A' (1:10) DETAIL AT 'B' (1:10) 15 01. 02. 15/03/2023 03/04/2023 2020 - 2024
STAIRCASE

MISCELLANEOUS

05. SELECTED WORKS
“There are 360 degrees, so why stick to one?”

PHOTOSHOP PRESENTATION Scanned

HAND-MODELLING

Scanned by TapScanner

CPK
TROPHY
MINIMUM SCHOOL LADAKH COMPETITION
SELECTED WORK
by

BUILT-TECH 2K24 ( STATE-LEVEL ACADEMIC EVENT ORGANISED BY D.Y.P.C.O.A.)

BOOK UNDER PUBLICATION

2020 - 2024
HAND-DONE SHEETS

snehakothari02@gmail.com 8010092157

THANK YOU !

Turn static files into dynamic content formats.

Create a flipbook
Architectural Portfolio by SnehaK02 - Issuu