ARCHITECTURAL PORTFOLIO

Page 1

SMRITI BHANTI

ARCHITECTURE PORTFOLIO

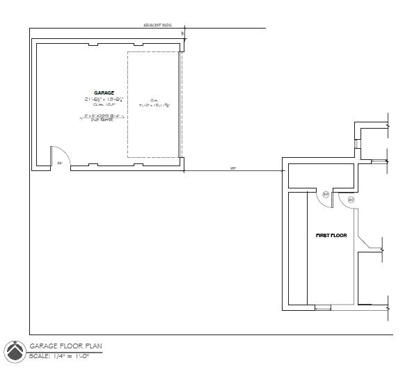
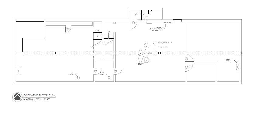
FAMILY HOME FOR FIVE

AREA – 6815 sqft

BUDGET - $2,726,000

MATERIALS - Painted Wood Siding, Asphalt Shingles, SingleGlazed Glass, Concrete Foundation.

MY CONTRIBUTIONS – Drafting, Working drawings, Detailing, Estimating.

SOFTWARES USED – AutoCAD, Revit, Microsoft office

RESIDENCE
RESIDENCE

FABRICATION

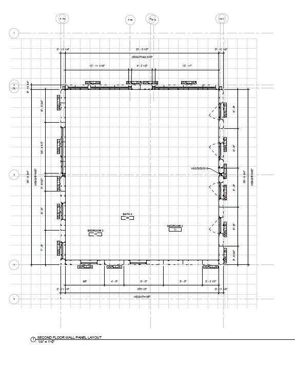
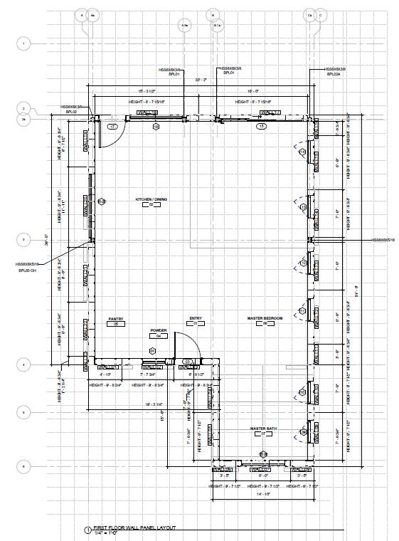
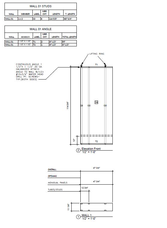
RESIDENCE FOR THREE

AREA – 2,360 sqft

BUDGET - $72,324

MATERIALS - Galvanized Metal, DAP® Draft stop® 812

Foam, Wood Plate and Sub Floor, Simpson HeavyDuty Connector Screws

MY CONTRIBUTIONS – Shop drawings, 3D model, quantities, cut sheets, QA/QC, project study.

SOFTWARES USED – AutoCAD, Revit, Microsoft office, Blue beam Revu.

ROOF DRAWINGS

WALL PANEL ELEVATION

FABRICATION
FABRICATION

RESIDENTIAL

AREA – 4209 sqft

MY CONTRIBUTIONS – Shop drawings, 3D model, quantities, cut sheets, QA/QC, project study, Material study

SHOP DRAWINGS

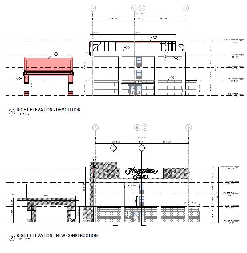
HOTEL

AREA – 43,200 sqft

BUDGET - $2,400,000

MATERIALS - EIFS (Exterior Insulation and Finish System), Galvanized Metal, Masonry, Metal Roofing, Wood and Gypsum, Concrete

MY CONTRIBUTIONS – Demolition and Renovation

Details, New Construction Details, Detailed Drawings and Specifications.

SOFTWARES USED – AutoCAD, Revit, Microsoft office, Photoshop, Blue beam Revu.

COMMERICAL
COMMERICAL

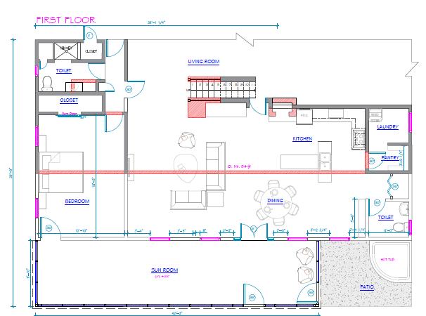
RESIDENCIAL EXPANSION AND REFURBISHMENT

AREA – 2426 sqft

BUDGET - $363,900

MY CONTRIBUTIONS – Demolition plans, 3D visualization model, all Architectural drawings.

SOFTWARES USED – AutoCAD, Sketchup, Photoshop, Blue beam Revu.

RENOVATION
RENOVATION
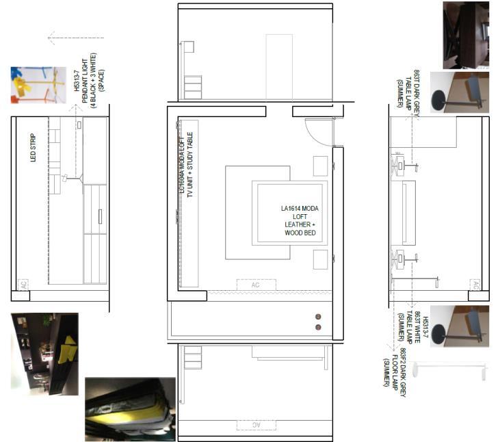
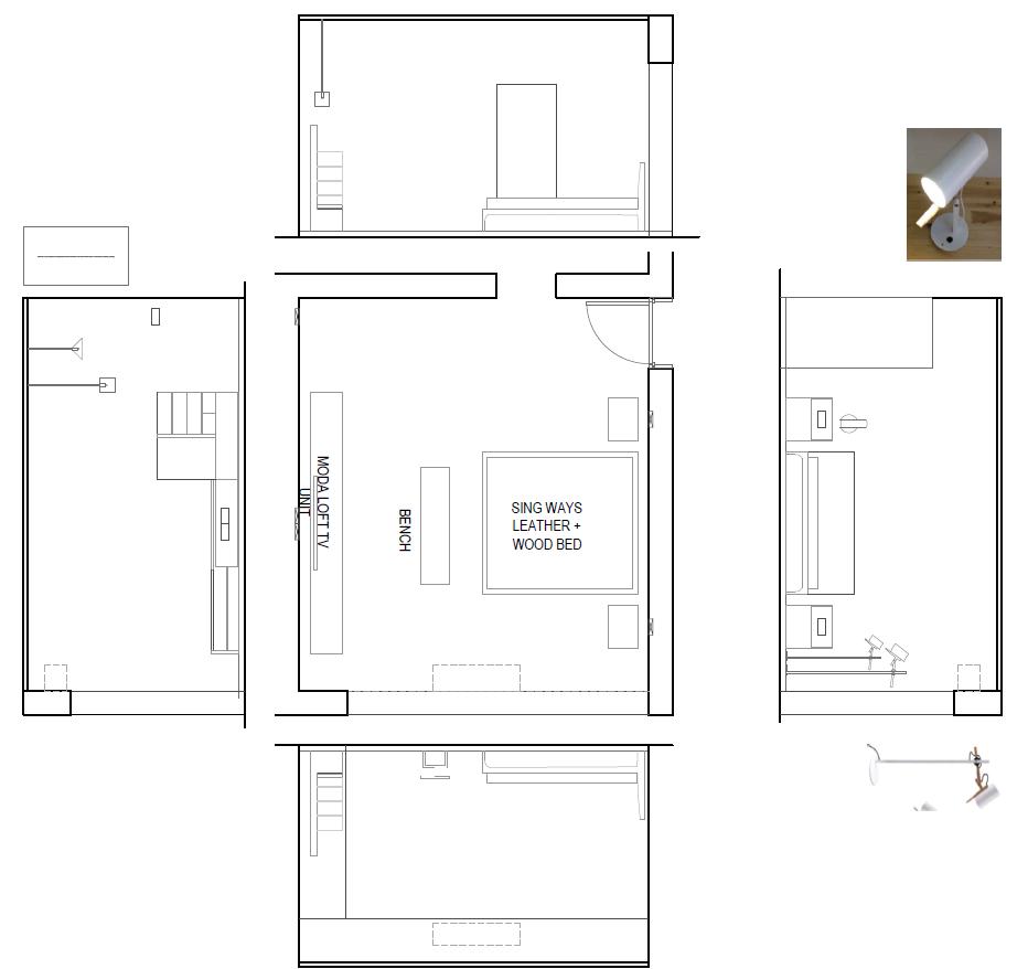
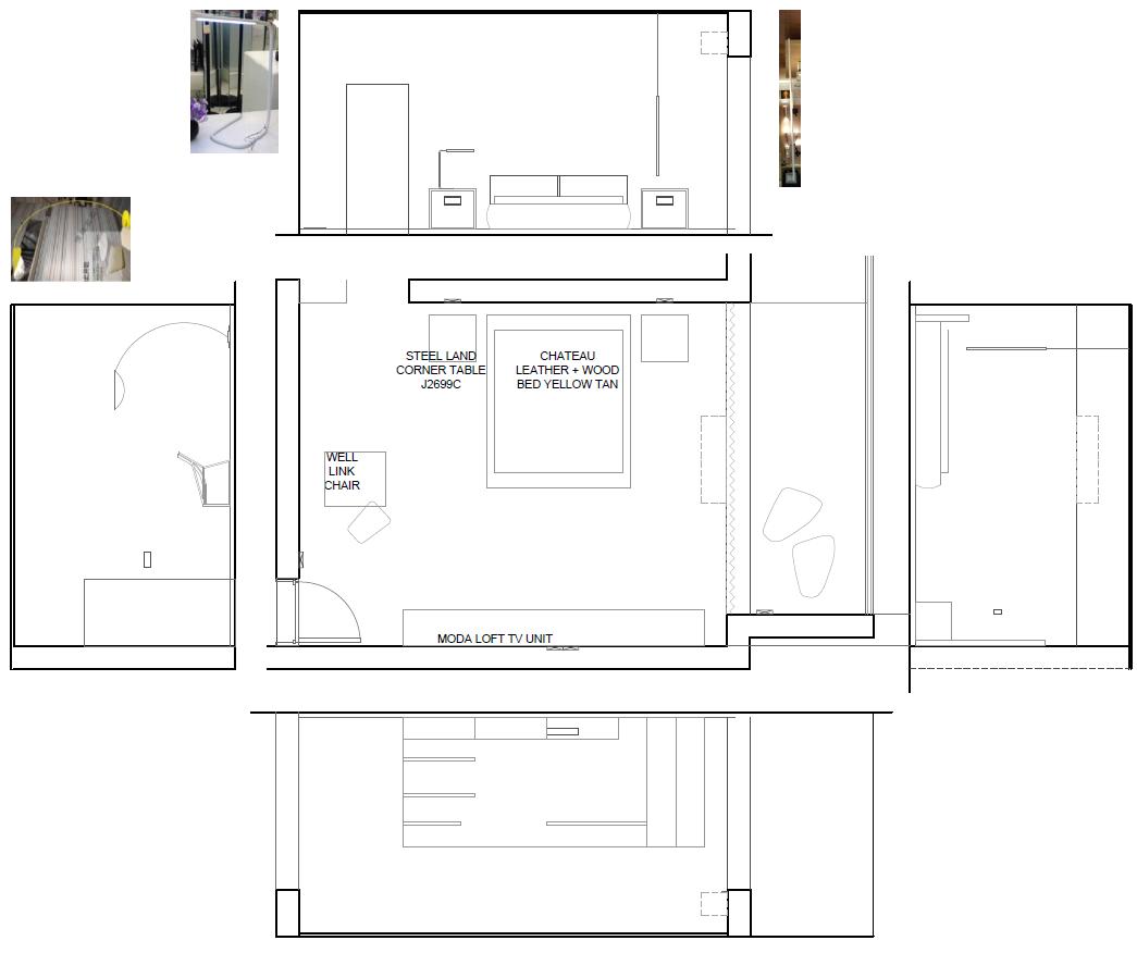
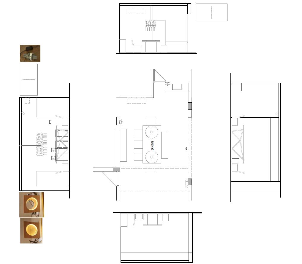
INTERIORS
INTERIORS

RENDERS

THANKYOU SMRITI BHANTI smritibhanti95@gmail.com +1 647 564 7348 ARCHITECTURE “BOUNDLESS SCOPE OF VISUALITY”

Turn static files into dynamic content formats.

Create a flipbook