
C O N T E N T S
2021 | ASHRAYA HOMES
2023 | TATA MOTORS-SIPRADI TRADING
2023 | COMMERICAL BUILDING
2022 | BIRTAMODE HOUSING
2022 | BRIGHTLAND SCHOOL
2018 | ART CENTER-THESIS
2022 | CHANGAN AND FOTON SHOWROOM

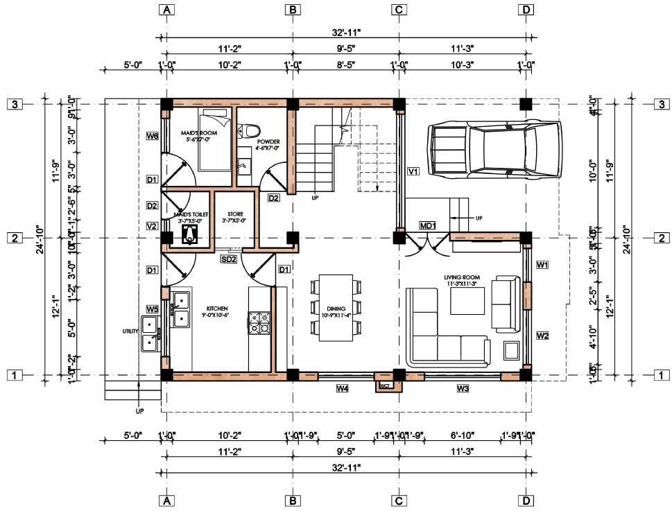
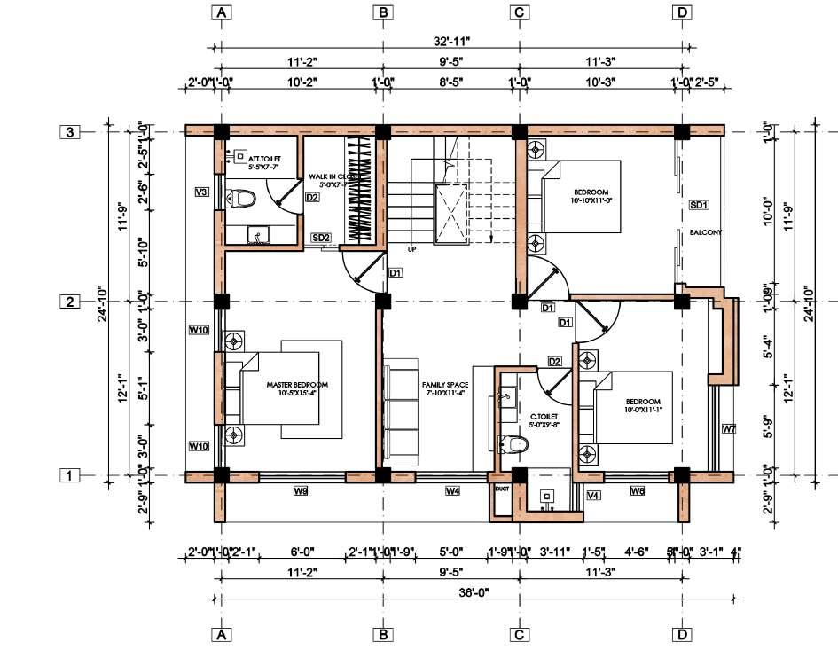
01. ASHRAYA HOMES
Location: Tokha, Kathmandu, Nepal
Year: 2021
Type :Professional work- Housing design-Under construction
Kathmandu, Nepal’s capital has developed into an urban jungle in todays date which in hindsight has degraded the inhabitant’s quality of life. This was taken into consideation during the designing phase of ashraya homes. In order to prevent it from becoming another concrete hub the concept of roof garden was introduced. Large terraces with semi open spaces which can be used as sit-outs or private green spaces were included in the design. The green terraces also adds to the aesthetics by visually changing the face of row houses which can be monotonous at times. Each plot is of approximately 1400 square feet with a total built up of 2500 square fee. The 2.5 storey house includes the amneties of living, dining kithcen and 4 bedrooms along with a single car park. All the houses have access to 20’ wide road. There are 52 units in total which are divided into four sub types(a, b, c and cm) based on the difference in their planning.


























INCLINED SLAB DETAIL
















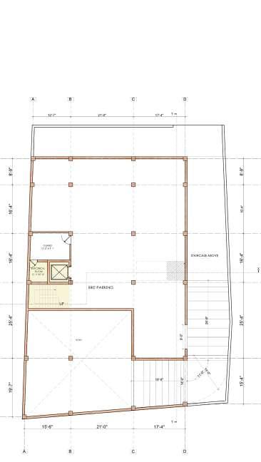
02. TATA MOTORS-SIPRADI TRADING
Location:Budhanilkantha, Nepal Year: 2023
Type : Professional work-Car workshop Design-Under Construction
Sipradi trading pvt. Ltd. is the sole distributor of tata motors ltd for Nepal, It sells full range of commercial and passenger vehicles manufactured by tata along with providing spare parts and service.
The brief of this project was to design a workshop for passenger vehicle with incorporation of 12 repair bays, 4 washing basys and single inspection bay. The design aslo needed to incorporated an administration block with a spacious visitors lounge overlooking the repair bays.
The main concept of the workshop was developed on the sites set back and car circulation. The site is 29219.71sq ft with a setback of 3m on all sides. It was used for the purpose of vehicular movement. Washing block was placed separately from the main repair block for functional purpose. In addition the brand colors ( blue and white) along with tata motors emblem was showcased in the design at specific location so that passersby could easily identify them.
Zoning into public zone and vehicle zone
back used as vehicle circulation and placement of main block along the long horizontal axis of the site
blocks extruded and locating branding walls








3MM THICK ACP BOARD

3 MM THICK ACP BOARD

0.5MM THICK H-SPAN SHEET



03. COMMERCIAL BUILDING
Location: Baluwatar, Nepal
Year: 2023
Type : Professional Work - Commercial Building
The commercial building is located in Baluwatar Nepal. The building is designed in a site area of 6434.90 SQ.M. It is five storey tall and has a double basement with parking for both bikes and cars. The placement of circulation was of main concern while designing the building . The placement of stairs, lift, rest rooms and electrical rooms were done such that maximum space would be occupied by the rentable space. Therefore only 15% (approximately) had been utilized for circulation.
The building is situated at the main business center of Kathmandu. Therefore in order to give the building a dynamic look and make stand out from rest of the buildings in the area, angles were used. Inspite of going completely modern, bricks were played to create a pattern. The use of bricks also symbolizes a traditional touch to the building.

1.
STACKING OF CUBES USE OF REGULAR FORM STRAIGHT LINES
2. BREAKING OF MASS CREATING A SENSE OF MOTION AND DIRECTION

3.
ANGLED PATTERNS TO CREATE DISTINCT SHAPES ENCHANCE THE APPEARANCE BRING ATTENTIONA DND STAND OUT

4. USE OF BRICK TIMELESS MATERIAL BREAK THE MONOTONY HELPS ANGLES STAND OUT













04. BIRTAMODE HOUSING
Location: Birtamode, Nepal
Year: 2022
Type : Professional Work-Housing design
Birtamode is located in Japa district which is one of the fastest growing city of Nepal. The housing is dispersed over an area of 59837.91 SQ.FT with a total of 24plots. The plots are catergorised into residential and commercial blocks. The residential blocks are sub divided into 4 groups according to their spatial layout. The master plan is developed such that the commercial blocks faces the main road which is 13m wide and residental blocks are situated on the inner side. Each plot is connected by a 6 m wide road. The planning of all the individual houses are based on vast shastra, which is a traditional system that aims to integrate architecture with nature, and ancient beliefs utilising geometric patterns, symmetry, and directional alignments. Moreover Birtamode is warm and temperate, this has been taken into consideration during the design of all plots. Housing blocks are stacked closely next to one another such that each one provides shade for the other.
individual volumes placed adjacent to each other that creates shadow on one side




LOUVERS





The balconies have louvers installed to block direct sunlight. In addition to providing shade, it acts as a buffer to keep the air at a comfortable temperature.
GREEN SPACE
The green space is another element used to maintain a cooler temperature of the residences. It functions as a stack, allowing hot, cool air to enter and heated air to rise.
CLAY TILES
The overangs serve as a shade technique, and the clay tiles utilized are a representation of the traditional Terai architecture.
STUCCO PLASTER
The walls have been painted white which is a technique to deflect heat and has been used since centuries. White colour reflects the heat that falls on the wall, in other words it white colour absorbs less amount of heat, therefore it is beneficial to use white in hot climatic places.







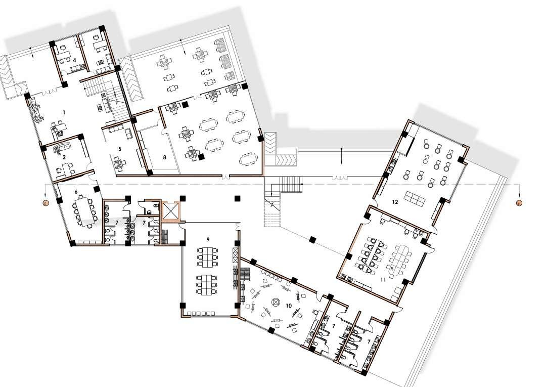
06. ART CENTER
Location: Hattiban, Kathmandu, Nepal
Year: 2018
Type :Academic-Undergraduate Thesis
Art center is a functional space designed to encourage practice and provide facilities such as exhibition space, workshops, educational facilities, private artist studios along with technical equipments. It was designed to create a learning environment, promote interaction between the public and artists, and expose artists by presenting their works.
The project is built around the idea of geometric abstraction, which draws inspiration from abstract paintings. This results in facades that appear different from various perspectives. It is organized into three distinct blocks to generate dispersed private and public zones, so that they both do not amalgamate and disturb the required seclusion.
CONCEPT DEVELOPMENT

1. An abstract geometric painting.

3. Dividing the planes diagonally to provide seclusion

2. Taking different planes from the painting

4. Arranging the planes such for functional planning






The site was divided into public, semi public and private zones in order to preserve privacy in the center
It was further divided into individual zones based on their function and site conditions.

ADMINISTRATION / LEARNING CENTER


1. MULTIPURPOSE HALL
2. PERMANENT EXHIBITION HALL
3. TEMPORARY EXHIBITION HALL
4. STORE
5. RECEPTION
6. LOCKER ROOM
7. CURATORS ROOM
8. TOILET
9. CONTROL ROOM
GROUND FLOOR PLAN
EXHIBITION BLOCK



FIRST FLOOR PLANEXHIBITION BLOCK

1. RECEPTION
2. MANAGER
3. ACCOUNTS
4. INFORMATION DESK
5. PANTRY
6. MEETING ROOM
7. TOILET
8. KITCHEN
9. HOBBY CLASS
10. PAINTING STUDIO
11. POTTERY STUDIO
12. SCULPTURE STUDIO
13. CAFE
GROUND FLOOR PLANADMIN/ TRAINING BLOCK


1. DIRECTOR
2. SECRETARY
3. CEO
4. ADMINISTRATION
5. CONFERENCE HALL
6. TOILET
7. PAINTING STUDIO
8. LIBRARY
FIRST FLOOR PLANADMIN/ TRAINING BLOCK



