IM9 – Jurbarko miesto lopšelio darželio konversija į bendruomenės centrą

Page 45

VILNIAUS GEDIMINO TECHNIKOS UNIVERSITETAS

ARCHITEKTŪROS FAKULTETAS

JURBARKO MIESTO LOPŠELIO DARŽELIO KONVERSIJA Į BENDRUOMINĖS CENTRĄ

Darbų vadovas: prof. Sigitas Kuncevičius

Atliko: Faustas Anilionis, Oskar Sevruk Vilnius, 2023

TURINYS ĮVADAS....................................................................................................................................4 VIETOS ANALIZĖ 5 • Teritorijos padėtis........................................................................................................5 • Teritorijos istorinės-urbanistinės raidos vertinimas.....................................................6 • Gamtinių sąlygų vertinimas.........................................................................................8 • Susisiekimo sistemos vertinimas 10 • Susisiekimas su projektuojama teritorija.....................................................................11 • Jurbarko traukos objektai 12 • Esamos sklypų struktūros vertinimas.........................................................................13 • Dominuojančio morfotipo nustatymas 14 • Esamų statynių vertinimas..........................................................................................15 • Urbanistinių erdvių sistemos vertinimas 17 • Urbanistinės viešujų erdvių vertinimas.......................................................................18 • Kompozicinių ypatumų vertinimas 19 • Socialinė-ekonominė situacija.....................................................................................20 • Išvadinis brežynis 22 ANALOGAI...............................................................................................................................21 • The felix nussbaum museaum, vokietija, d. Libeskind.................................................22 • Ozeaneum, vokietija, behnisch architekten 23 • Caixaforum, madrid, herzog & de meuron..................................................................24 • Royal ontario museum, kanada, d. Libeskind 25 • Moritzburg museum extention, vokietija, nieto sobejano arquitectos 26 • Coal drops yard, didžioji britanija, heatherwick studio...............................................27 • Coop himmelb(l)au's falkestrasse rooftop, austrija, franz sam. 28 • Stadtmuseum rapperswil-jona extension and renovation, switzerland, mlzd............29 • Bendruominės centras, prancūzija, amelia tavella 30 • World maritime university, šveicarija, kim utzon architects.......................................31 • St. Sebastian kindergarten renovation, vokietija, bolles + wilson 32 • Museum of architecture, poland, arch_it...................................................................33 • Exchange old post office, kanada, rdh architects 34 • Išvadinė analogų lentelė.............................................................................................35 • Išvados 36 ARCHITEKTŪRINĖ DALIS .......................................................................................................37 Esama situacija....................................................................................................................38 Projekto idėja .....................................................................................................................39 Tūrinė – erdvinė kompozicija ................................................................. 39
Sklypo ir teritorijos sutvarkymas ...............................................................................40 Išorės ir vidaus apdailos sprendimai..........................................................................40 Struktūrinės ir inžinerinės sistemos .................................. 41 LIETAUS SURINKIMO SISTEMA IR JOS PERNAUDOJIMAS.......................................................41 PRIEŠGAISRINĖ SAUGA IR EVAKUACIJA..................................................................................42 Pastato pritikymas neigaliesiems ..............................................................................42 Vidinė struktūra ir funkciniai sprendimai...................................................................43 Apibenrinimas 44 PARTNERIŲ PRODUKCIJA ..................................................................................................45 PRIEDAI: Sklypo planas 52 Pirmo aukšto planas............................................................................................................53 Antro aukšto planas.............................................................................................................54 Stogo planas ..........................................................55 Pjūvis...................................................................................................................................56 Pjuvis...................................................................................................................................57 Šiaurinis Fasadas.................................................................................................................58 Pietinis Fasadas 59 Rytinis Fasadas....................................................................................................................60 Vakarinis Fasadas................................................................................................................61

ĮVADAS

Projektuojamoje teritorijoje stovi šiuo metu nenaudojamas, 1972 metų statybos lopšelio-darželio pastatas. Pamatę šio pastato vietą mieste nusprendėme, kad atnaujintas ir papildytas pastatas galėtų komplimentuoti miestą, gal net tapti jo identitetu. Teritorija yra labai palankioje vietoje miesto plėtros klausimu, nuo šios teritorijos žvilgsnis aprėpia Jurbarko senamiestį bei Nemuną, todėl galima sukurti stiprų ryšį tarp projektuojamo bendruomenės centro ir paties miesto centro. Taip pat teritorija yra svarbi dėl tolesnės miesto plėtros, nes miestas pamažu plečiasi į rytus. Mūsų nuomone, šiuo metu miestų planavymuose vis labiau atsižvelgiama į gyventojų norus, mažinamas eismo intensyvumas, statomi pastatai, formuojantys jaukias erdves, projektuojama daugiau rekreacinių zonų, tad šiame projekte siekiama įsigilinti į projektavimo darbus ir keliamus reikalavimus, atrasti inovatyvių sprendimų tam, kad atgyvintų ir paverstų Jurbarką dar išmanesniu, suteikti jam naujų spalvų.

S
I

ARCHITEKTŪRA

PROJEKTO IDĖJA

Pagrindinė projekto idėja – Kadangi buvo pastebėta, jog Jurbarkas neturi traukos objekto, buvo nuspręsta jį sukurti ir suteikti jam bendruomenės centro funkciją, tad jis galės ne tik dominuoti savo išraiška aplinkoje, bet ir apjungti miesto gyventojus, kad jie galėtų visi jaukiai ir smagiai leisti laiką.

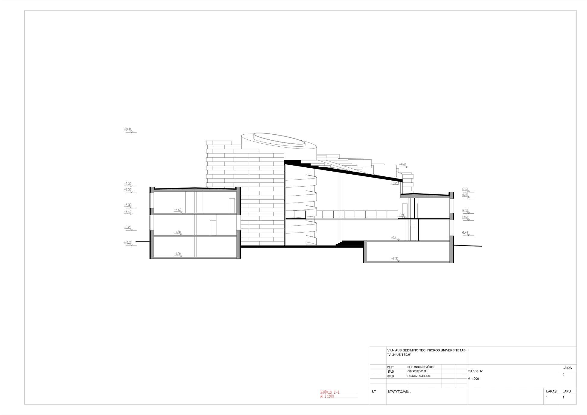
TŪRINĖ – ERDVINĖ KOMPOZICIJA

Bendruomenes suburiančios veiklos dažniausiai jautriai siejasi su kultūra ar menu, tad siekiant suteikti Jurbarko miestui naują traukos tašką, pastato tūrio išraiškai yra naudojama dailės menui būdingą simbolį - dažu palete. Paletės skylėse, kur randasi spalvos, mūsų pastate atsiranda stoglangiai arba vazonai su augalais, o pagrindinė skylė konvertuojama į sodą, kuris nusileidžia per visus pastato aukštus. Kuriamas 10 laipsnių nuolydis ir ant stogo atsiranda terasa su vaizdu Į miesto senamiesti ir Nemuno upę, tokiu būdu yra kuriamas vizualus ryšys su miestu. Sklypo ir teritorijos sutvarkymas.

SKLYPO IR TERITORIJOS SUTVARKYMAS

Parko idėja buvo atsižvelgiamą kaip į multifunkcinį dalyką, kur atsirastų daržas, kad bendruomenės nariai galėtų sodinti augalus ir jais naudotis kartu, žaidimų zona kur atsiras šachmatų staliukai, lauko teniso stalai, vaikų žaidimo aikštelė, muzikos aikštelė bei kiti mažosios architektūros elementai. Taip pat parkas veiks kaip ir parodų erdvė, vasaros metu bendruomenės nariai galės eksponuotis savo darbus. Parke numatytas ir amfiteatras, kur galės vykti renginiai po atviru dangumi. O tiems kas norės ramiai pasibūti parke, numatyta rekreacinė zona, kurioje žmonės galės pasigrožėti gamta arba užsiimti joga.

FASADO IDĖJA

Mes norėjome sukurti pastatui kontekstą, kad jis būtų išskirtinis tik Lietuvos kraštui. Iš istorijos galima ištraukti, jog pinimas Lietuvoje vienas iš pirmų atsirado žemaitijos teritorijoje. Lietuvių pinimas pasižymi meistriškumu ir puikia kokybe. Gaminiai neperkrauti raštais, naudojamos nedažytos natūralios spalvos vytelės ir pluoštas. Galima teigti, jog pinimas irgi yra savotiškas menas, kuris gali apibudinti mūsų kraštą, todėl nusprendėme atkartoti pinimo techniką ir ant mūsų fasado. Pats fasadas susidės iš dvejų sluoksnių: pirmas sluoksnis tai bus korteno (surudyjusio metalo) plokščių kurie susijungia 120 laipsniu kampų ir gauna pinimo efekta. Jos jungsis su metaliniais laikiklias prie antro fasado sluoksnio langų rėmų. Toks būdas įleidžia daug natūralios šviesos į pastatą bei jį šildo. O pats koretnas yra atmosferos sąlygoms itin atspari medžiaga. Subtilios rudos spalvos patina padengtas metalo paviršius gerokai skiriasi nuo dažytų ar kitų paviršių ir praktiškumu (nereikalauja valymo, perdažymo ir pan.), ir atsparumu korozijai. Dėl plienui legiruoti naudotų elementų, patina yra tanki ir beveik nelaidi deguoniui. Jei šis plienas dažnai sušlampa, o paskui išdžiūsta, jo naudojimo laikas tik pailgėja. Buvusio darželio sienos nudažomos su pilku dekoratyviniu tinku, kuris imituoja betoną, o ateityje nesipurvina.

STRUKTŪRINĖS IR INŽINERINĖS SISTEMOS

Vėdinimas. Pasyvų patalpų vėdinimą užtikrina Trombe sienos konstrukcija. Jos veikimo principas paremtas saulės energijos sugeneravimu, užlaikymu ir išspinduliavimu. Vasaros laikotarpiu dėl saulės spinduliuotės erdvė tarp plytų sienos ir stiklo įkaista. Sušilęs oras kyla į viršų ir yra pašalinamas per pastato viršuje esančias sklendis. Taip sukuriama natūrali oro trauka, kurios pagalba vėsesnis oras iš šiaurinės pastato pusės įtraukiamas į patalpas. Pastatas yra vėdinamas, o siena aušinama konvekcinio šilumos mainų būdu.

Šildymas. Siekiant sumažinti pastato suvartojamos energijos kiekį, komfortišką patalpų tempetatūrą palaiko Trombe siena, kuri be papildomų įrenginių skleidžia šilumą. Esant šildymo poreikiui, pastato vidaus temperatūrą palaiko masyvi betono siena, išspinduliuodama sukauptą energiją, gautą iš saulės. Kadangi viršuje esančios sklendys uždarytos šiluma nukreipiama tiesiai į patalpas. Avėsęs oras leidžiasi žemyn ir vėl patekęs tarp stiklo ir plytų sienos įkaista, taip ciklas veikia ratu ir patalpos yra šildomos.

Tačiau Trombe sienos konstrukcija veikia kaip pagalbinis šilumos generavimo šaltinis. Esant netinkamoms oro sąlygoms, kada Trombe siena negali maksimaliai atlikti savo funkcijos, patalpos yra šildomos geoterminiu šildymu.

Pastato ir elementų konstrukcija. Pagrindinėj pastato laikančiajai konstrukcijai liks esamo darželio gelžbetoninis karkasas . Stogo ir Trombe sienos apkrovą atlaiko vidinėje pastato struktūroje esančios betoninių kolonų ir sijų konstrukcijos.

Automatinės vėdinimo angų sistemos. Siekiant pastate užtikrinti natūralų oro cirkuliavimą, numatomos automatinės angų atidarymo sistemos pietinės pastato dalies viršuje, stoglangiuose ir šiaurinėje pastato dalyje, kurios atsidaro arba užsidaro reaguoja į pastato temperatūrą.

LIETAUS SURINKIMO SISTEMA IR JOS PERNAUDOJIMAS

Lietus yra surenkamas nuo terasos ir buvusio darželio stogų latakų ir lietvamzdžių pagalba nukreipiant jį į centrinę susirinkimo vietą. Visos šiukšlės kurios ten papuola yra filtruojamos su tinkliniu sietu ir pirmojo nuleidimo nukreipikli, kad pagerinti vandens kokybę. Išfiltruotas lietaus vanduo yra laikomas saugioje talpykloje, kuri atsiras po darželio rūsiu abejuose korpusuose. Dėka filtravimo sistemų, bus pašalinamos priemaišos, bakterijos ir kvapus. O galiausiai bus naudojama siurblių sistema ir paskirstymo tinklas, kad surinktą lietaus vandenį pristatytų į tualeto patalpas, bei augalų laistymui

PRIEŠGAISRINĖ SAUGA IR EVAKUACIJA

Sveikatingumo centro pastatas suprojektuotas pagal statybos techninio reglamento STR 2.01.01(2):1999 „Esminiai statinio reikalavimai. Gaisrinė sauga“. Objekte numatomos dvi evakuacinės laiptinės. Atstumai tarp evakuacinių išėjimų neviršija 60 metrų. Evakuacijai skirtos laiptinės turi –neuždūminamos. Taip pat yra suprojektuoti atskiras evokuacinis išėjimas iš kino salės tiesiai į lauką. Prie revolverinio tambūro taip pat atsiranda ir paprasto durys.

PASTATO PRITAIKYMAS ŽMONĖMS SU SPEC POREIKIAS.

Pastate yra Įrengtos rampos, kad būtų užtikrintas neįgaliųjų vežimėlių prieinamumas. Durų angos yra daromos plačios, kad jomis galėtų judėti neįgaliųjų vežimėliai ir vaikštynės. Yra įrengiamos automatinės durys ir durys su svirtinėm rankenom, kad būtų lengviau įeiti. Visame pastate yra laisvi ir platūs keliai, kuriais būtų galima lengvai manevruoti žmogui su spec poreikiais. Prie laiptų ir rampų yra įrengti turėklai. Šalia įėjimų į pastatą yra pritaikytos žmonėms su spec. poreikiais automobilių stovėjimo vietos Kiekviename aukšte yra pritaikyti tualetai, kuriuose yra platesnės durys ir pakankamai vietos manevravimui. Įrenktos žemesnės kriauklės ir stalviršiai, kad juos būtų galima pritaikyti neįgaliųjų vežimėliuose sėdintiems asmenims. Prieinami tualetai yra lengvai atpažįstami pagal aiškius ženklus. Įgyvendinta regimąją ir garsinę avarinę signalizaciją ir užtikrinti evakuacijos išėjimai Įrengtos pagalbines klausymosi sistemos posėdžių salėse ar auditorijose. Yra numatytos prieinamos technologijos, ekrano skaitytuvai arba teksto keitimo į kalbą programinė įranga Taip pat visose patalpose vietoj aklinų sienų yra vitrinos su matiniais stiklais, kad žmonės galetų matyt, kad patalpoje kažkas yra. Taip pat pastate ir lauke yra sudėta taktilinė vedamoji danga.

VIDINĖ STRUKTŪRA IR FUNKCINIAI SPRENDIMAI

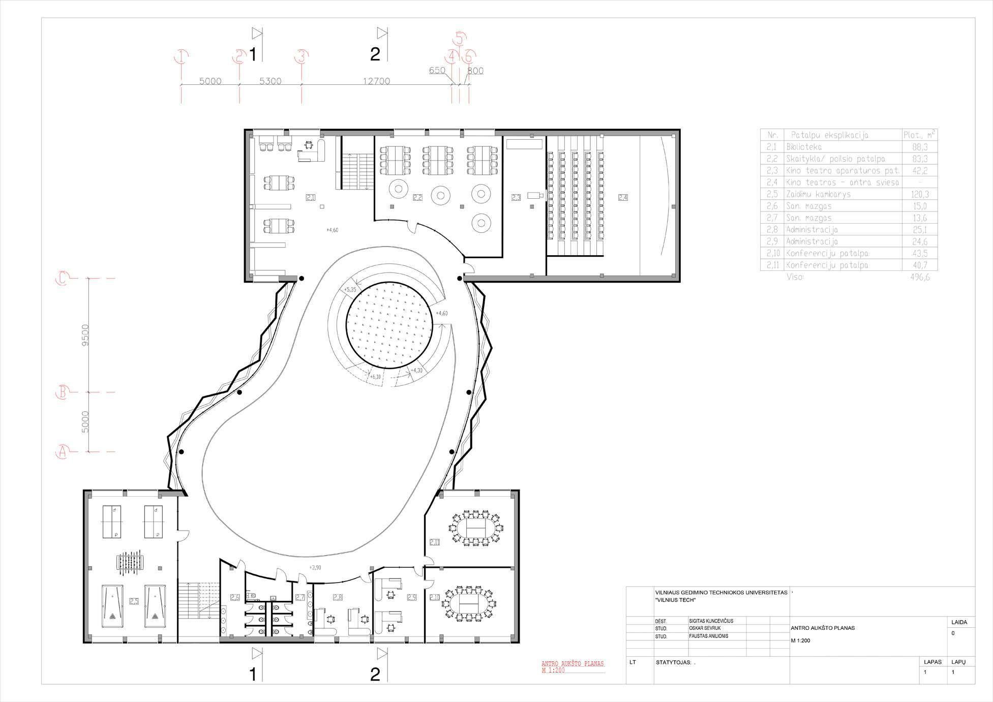
Projekto architektūrinis objektas – bendruomenės centras Jurbarke, kuriame numatomos edukacinės, poilsio ir pramogų paslaugos, kuriomis siekiama suartinti skirtingų amžiaus grupių gyventojus ir suteikti jiems galimybę sukurti ryšį tarpusavyje. Kadangi naujai projektuojamame pastate numatoma keleta skirtingų funkcijų, jas skirstėme pagal natūralios šviesos poreikį patalpoje. Patalpos paskirstomos per du aukštus, kur pirmame aukšte dominuoja bendruomenei skirta užklasinė veikla, o antrame aukšte administracija ir patalpos, kuriose žmonės galės pailsėti nuo triukšmo.

Norint atspindėti pastato charakterį interjere, buvo stengtasi erdvę viduje apvalinti, taip sukuriant išskirtinį interjerą. Viena pagrindinių interjero detalių yra apstiklintas vidinis sodas aplink kurį sukasi rampa, vedanti į antrą aukšta bei leidžianti lankytojams patekti ant stogo. Kita išraiškinga interjero dalis yra tiltai, kurie jungia atskirus buvusio darželio korpusus. Vestibiulyje taip pat atkreipiamas didelis dėmesys į saulės šviesos patekimą į vidų. Saulės šviesa patenka per pinto fasado tarpus bei stoglangius.

APIBENDRINIMAS

Bendruominės centras Jurbarke suprojektuotas remiantis ten gevenančių žmonių poreikiais, o su naujų technologijų pagalba pastatas sunaudoja mažiau energijos išteklių. Atsižvelgus į projektuojamos vietovės klimatą, pritaikyti pasyvaus dizaino sprendimai. Suformuotos trombe sienos neužlaiko šilumos ir padeda vėdinti patalpas. Korteno plokštės daro didelę įtaką viso pastato architektūrinei raiškai ir tampa pagrindine pastato kompozicine ašimi, bei formuoja išraiškingą pastato ir vidinių erdvių charakterį.

IŠVADOS

• Klimato kaita ir aplinkos tarša yra didelė šių dienų problema, tačiau statybos sektorius gali prisidėti prie gamtos tausojimo.

• Natūralių medžiagų ir jų fizikinių savybių pritaikymas architektūroje gali prisidėti prie pastato suvartojamos energijos mažinimo.

• Trombe sienos veikimo principas yra sugerti šilumą ir pagal poreikį ją išspinduliuoti. Šis procesas padeda šildyti ir vėdinti patalpas.

• Pasaulinėje architektūroje galima rasti pavyzdžių, kuriuose pasyvaus dizaino sprendimai ne tik prisideda prie energijos išteklių mažinimo, bet ir sukuria išskirtinę architektūrinę išraišką.

• Objekto planinė struktūra yra aiški, skirtingos funkcijos planuojamos atskiruose pastato aukštuose.

• Projekto statybai ir apdailai naudojamos tvarios medžiagos, kurių fizikinės savybės padeda užtikrinti komfortišką patalpų mikroklimatą.

• Projektas paverčia esama ir nenauduojima teritorija į miesto dominantę, kur atsiras vietos kiekvienam Jurbarko miesto bendruomenės nariui ir jo hobiui išsireikšti.

• Pastatas yra pritaikytas visiems, o tai reiškia ir žmonės su spec poreikiais. Yra sukurti pandusai, stiklinės matinės pertvaros ir daug kitų dalykų.

• Pastatas turi savyje daugybę įvairių veiklų, kurios leis gyventojams atrasti naujų hobių.

• Aplink pastatą kuriama aplinka turi ryši su šalia esamu jaunimo skveru ir ateityje jos gali susijungti ir tarnauti miesto labui.

• Kuriamas parkas leidžia žmogui pabėgti nuo savo gyvenimo rutinos ir praleisti laiką su šeima gamtoje.

• Yra didėlė parodų erdvė tiek lauke, tiek ir vidui, todėl pastate ir parke numatyta vieta ekspozicijai, kur galima bus ateit ir pasidžiaugti už Jurbarko gyventojų meninę išraišką.

• Objektas turės aktų salę ir amfitearą, tad renginius galima bus vesti nepriklausomai nuo meteorologinių aplinkybių.

• Pastatas nenaikina, o atvirksčiai - prideda daugiau floros ir faunos, medžiagos kurios yra nauduojamos projekte yra ekologiškos, o techniniai dalykai padėda dar labiau taupyti elektros ir vandens.

• Objektas gavosi patrauklus ir įdomus savo sprendimu.

PARTNERIŲ PRODUKCIJA

Naudojamos priešgaisrinės, stebėjimo kameros ir kitos apsaugos sistemos, kurios užtikrina saugumą ne tik pastate, bet ir projektuojamame parke. Yra naudojamos TVGP-M01-0802-BUL-G vaizdo stebejimo kameros kurios naudoja naujausia H.265+ vaizdo suspaudimo technologija, kad masinio vaizdo stebėjimo rinkoje būtų užtikrintas moderniausias didelės raiškos vaizdas. Šių IP kamerų vaizdo raiška nuo 2 megapikselių iki 4K, todėl jos yra lanksčios ir atitinkantis bet kokius poreikius. Aprūpintos pažangiomis technologijomis ir signalų apdorojimo galimybėmis, jos veiksmingai fiksuoja vaizdą sudėtingomis sąlygomis. Šios kameros neapsiriboja tik standartiniu judesio aptikimu, bet turi ir patobulintas pavojaus signalo funkcijas, įskaitant kryžminės linijos aptikimo, įsilaužimo aptikimo ir veidų aptikimo funkcijas. Naudodama išmaniąją asmens / transporto priemonės funkciją, kamera gali ignoruoti nereikšmingus judesio ar VCA įvykius, todėl automatiškai bus sunaudojama mažiau duomenų saugyklos ir greičiau atkuriami svarbūs vaizdo įvykiai.

Pastate taip pat yra naudojamos gaisro aptikimo ir signalizavimo sistemos:

Seno daržėlio PASTATO SIENŲ ŠILTINIMAS NAUDOJANT TINKUOJAMĄ

SISTEMĄ SU MW PLOKŠTĖMIS kurias teikia BAUMIT gamintojas. Baumit ProSystem yra pagrindinė ir dažniausiai naudojama išorinė tinkuojama termoizoliacinė sistema mineralinės vatos pagrindu.

Sistemą sudaro:

• mineralinės vatos termoizoliacinės plokštės, priklijuotos prie sienos klijavimo mišiniu ir papildomai sutvirtintos

kaiščiais (arba gamintojui leidus ne);

• armuotasis sluoksnis, susidedantis iš stiklo pluošto armavimo tinklelio ir armavimo mišinio;

• gruntavimo mišinys;

• atsparus atmosferos poveikiams, plono sluoksnio dekoratyvinis tinkas, kuris papildomai gali būti dažomas.

Baumit ProSystem sistema, kai naudojama MW, gali būti naudojama beveik ant visų tipų pagrindų. Ji tinka senų ir naujos statybos pastatų, vienos arba kelių šeimų gyvenamųjų namų, visuomeninių, komercinės paskirties, pramoninių objektų šiltinimui.

Betono mozaikos gaminiai yra naudojami musu parke su juos ECO 8 gaminiu, kuris yra dedamas aplink medzius arba zolė, o tarpai yra užsėti veja

AUTOMATINIŲ DŪMŲ UŽUOLAIDŲ FOGO PROSMOKE CE

Automatinės dūmų užuolaidos montuojamos, kad sudarytų dūmų rezervuarus ir nukreiptų dūmų ar dujų plitimą į suprojektuotą dūmų šalinimo sritį, bei neleistų dūmams plisti į kitas pastato zonas. Dūmų užuolaida jungiama prie gaisro aptikimo ir signalizavimo sistemos, kuriai suveikus, užuolaida nusileidžia automatiškai.

Užuolaidą išvynioja ir suvynioja variklis. Fogo siūlomos automatinės dūmų užuolaidos atitinka visus saugumo ir atsparumo reikalavimus.

TECHNINIAI DUOMENYS:

• Atsparumas ugniai – DH30 ÷ DH60;

• Maksimalus modulių kiekis yra 10 vnt.;

• Mažiausias modulio ilgis 0,8 m;

• Užuolaidos išsivyniojimo aukštis 0,5 m ÷ 6,5 m;

• Variklio įtampa 24V, DC;

• Užuolaidos apačioje esantis svoris – pagamintas iš cinkuoto plieno;

• Gali būti tiekiamos su šoninėmis kreipiančiosiomis.

Isorinėm sienom naudojamai WICSLIDE 150 PS.

Didėjanti urbanizacija kelia didžiulius iššūkius ateities miestams. Pagal 2050 m. miestuose gyvens daugiau kaip 70 % pasaulio gyventojų. Tai neišvengiamai didėja žemės kainos ir triukšmo tarša. Dėl šios plėtros plėtros rezultatas - miestų planavimo vertikalizacijos procesas, kai derinami gyvenamųjų ir biurų pastatų, restoranų ir laisvalaikio įstaigų. Didėjantis Aukštybinių pastatų aukštis reikalauja inovatyvių sprendimų, kad būtų užtikrintas naujas lygis. komforto šviesiose ir ramiose gyvenamosiose erdvėse. Didelių matmenų WICSLIDE 150 PS ofsetinė stumdomoji sistema pabrėžia vidinės erdvės apimtį ir atveria ją į terasą. Didelių matmenų įstiklinimas, pasižymintis puikiomis garso izoliacija

užtikrina geriausią įmanomą gyvenimo kokybę patalpose. Langams yra naudojamos WICTEC 50 Stick system.

Darželio stogui yra naudojami MIDA gaminiai, kurie išsiskiria geru šiltinimu ir laiko atsparumu.

Darom įmonės gaminiai yra panaudojami:

• Parko šviestuvams

• Kuriant žaidimo aikšteles buvo atkreiptas dėmesys į jų sukurtas aikšteles

• Taip pat yra nauduojami šios įmonės mažosios architektūros elementai, kaip dviračių stovai, fontanai, vazonai ne tik parke, bet ir ant pastato stogo terasos.

• Šiukšlių konteineriai.

• Automatiniai betoniniai lauko WC

Prie žaidimo aikštelės yra padaryta ir muzikos aikštėlė, kur buvo naudojami PERCUSSION PLAY gaminiai. Su jais musu projektuojamas parkas gali pritraukti skirtingo amžiaus žmonių, kurie galės groti šioje aikštėje.

SU šios įmonės pagalba buvo suprojektuotas amfiteatras, kino teatras ir aktų salė. Yra naudojama jų garso sistema, Kėlimo mechanizmai amfiteatre, bei akustikos gaminiai kino salėje, aktų salėje bei konfirencijos kambariuose.

Automobilių stovėjimo aikštelėje yra naudojama Schneider electric gaminys EVlink Pro AC, kuris teikia patikimą ir išmanią įkrovimo stotelę, užtikrinančia didesnį efektyvumą ir tvarumą Trečiosios kartos "EVlink AC" įkroviklis užtikrina itin patikimą, lankstų ir tvarų išmanųjį įkrovimą su sustiprinta sauga, kad būtų maksimaliai padidinta veikimo trukmė, užtikrinant vairuotojams ir montuotojams sklandžią naudotojo patirtį pusiau viešose automobilių stovėjimo aikštelėse komerciniuose ir pramoniniuose pastatuose, įmonių elektromobilių parkuose ir daugiabučių kompleksuose. Lengva ir saugu įrengti, eksploatuoti, stebėti ir prižiūrėti dėl skaitmeninių galimybių ir sustiprintos saugos.

Vienam pagrindinių pastato elementų – suprojektuotiems plokštiems stoglangiams pasirinktas Velux stoglangių montavimas.

Turn static files into dynamic content formats.

Create a flipbook
Issuu converts static files into: digital portfolios, online yearbooks, online catalogs, digital photo albums and more. Sign up and create your flipbook.