Portfolio

Page 1

SAM MANFIELD PORTFOLIO

AGEING IN PLACE

168 KELVIN GROVE ROAD

WITH AN INCREASING PRESSURE ON HOSPITALS, NURSING HOMES AND HEALTHCARE DUE TO AN AGEING POPULATION. THIS DESIGN ATTEMPTED TO ALLOW PEOPLE LIVE AT HOME INDEPENDENTLY FOR AS LONG AS POSSIBLE. THE PROPOSED RESIDENTIAL HOUSE IS BUILT AROUND A CENTRAL COURTYARD/ GARDEN. THE MAIN LIVING, DINING, BEDROOM, AND LAUNDRY AREAS, ARE ALL LOCATED WITHIN THE FRONT SECTION OF THE HOUSE. ALL OF THESE LOCATIONS ARE ON THE SAME LEVEL. WHILST THE SPARE BEDROOM, STUDY AND SECOND TOILET ARE LOCATED AT THE BACK OF THE PROPERTY AND ELEVATED FROM THE FRONT WITH A U SHAPED STAIR. ALLOWING CARERS/FAMILY MEMBERS A PLACE TO STAY AND UTILISE, WHILST THE OCCUPANTS CAN REMAIN IN THE FRONT SECTION OF THE HOUSE AND NOT NEED TO USE THESE STAIRS. THE HOUSE WAS ALSO DESIGNED WITH CLERESTORY WINDOWS THROUGHOUT THE MAIN SECTIONS OF THE HOUSE TO MAXIMISE NATURAL LIGHT, AND VENTILATION TO REDUCE THE NEED FOR ENERGY

UP UP

MOWBRAY PARK

THE MUSEUM OF MOVING IMAGE

PINNACLE IS AN ENSAMBLE OF THREE SPACES LAYERED ONE ON TOP OF ANOTHER. EACH OF THESE SPACES SHOWCASES BRISBANE CITY THROUGH ART. WITH LEVEL ONE FRAMING VIEWS OF THE STOREY BRIDGE, LEVEL TWO DISPLAYS LOCAL ARTISTS WORK IN AN EXHIBITION STYLE SPACE, AND LEVEL THREE HAS AN UNDERGROUND MOVIE THEATRE ALLOWING LOCAL DIRECTORS TO DISPLAY THERE CINEMATOGRAPHY. ALL WHILST ENHANCING MOWBRAY PARK.

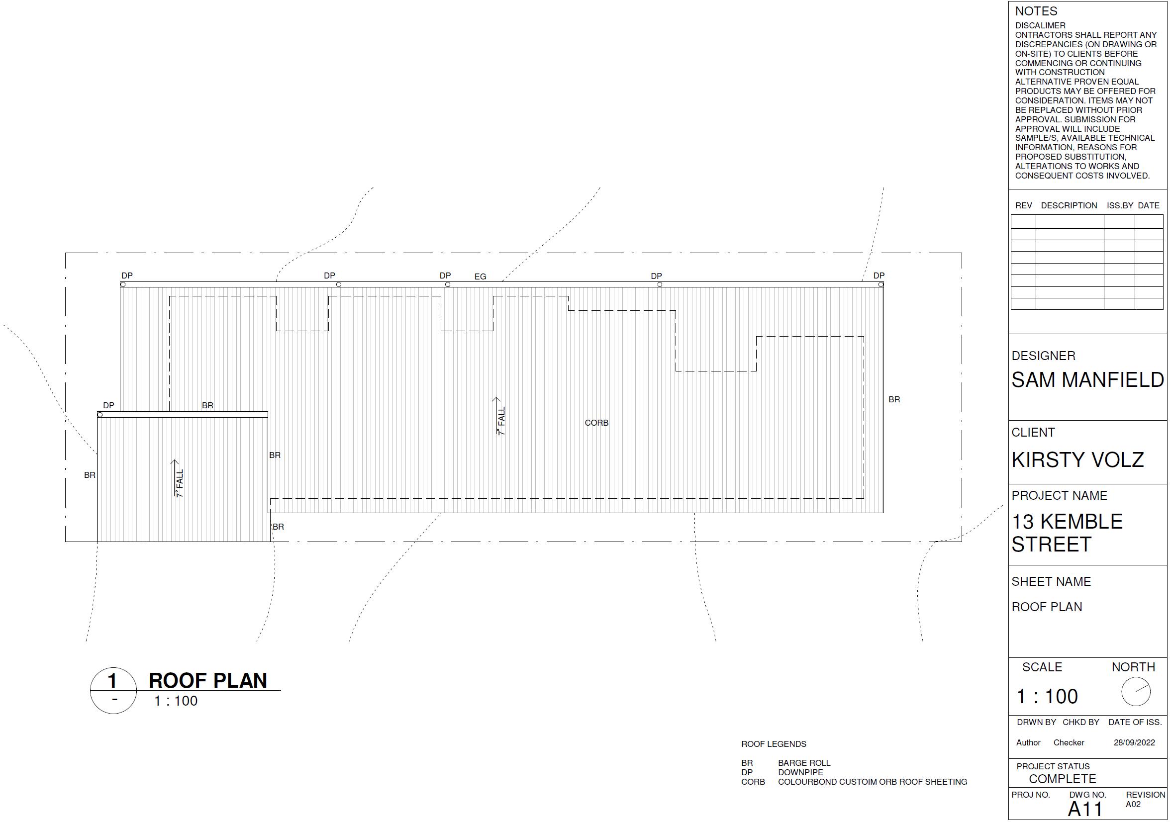
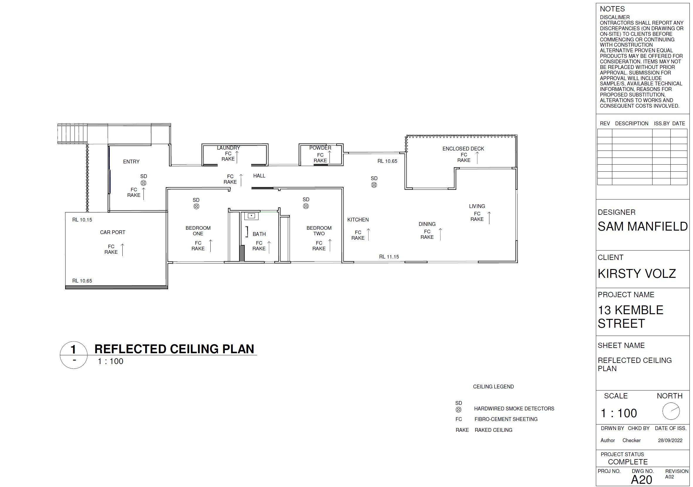
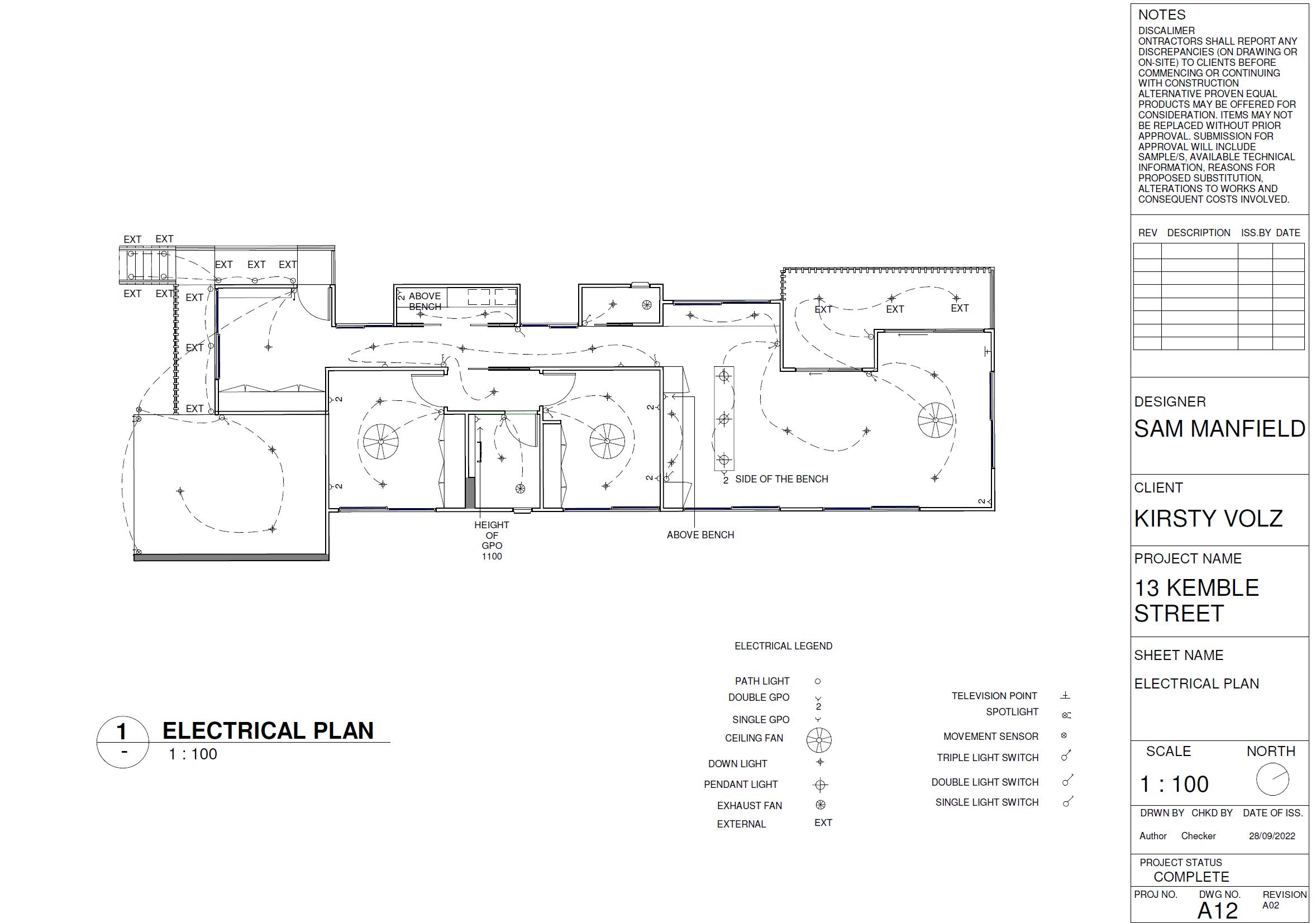
13

KEMBLE STREET, CLAYFIELD

THIS RESIDENTIAL PROJECT FOCUSED ON DEVELOPING A NEW BUILD WITHIN CLAYFIELD, BRISBANE. THE LOCAL ARCHITECTURE OF CLAYFIELD NEEDED TO BE CONSIDERED AND MIMICED TO TRY AND REMAIN TRUE TO THE AESTHETIC OF PLACE. WHILST DESIGNING THE HOUSE, GUIDELINES FOR FLOOD RESILIENCE, LIVABLE HOUSING, THE NATIONAL CONSTRUCTION CODE AND THE QUEENSLAND DEVELOPMENT CODE ALL NEEDED TO BE INCLUDED WITHIN THE FINAL BUILD

Turn static files into dynamic content formats.

Create a flipbook
Issuu converts static files into: digital portfolios, online yearbooks, online catalogs, digital photo albums and more. Sign up and create your flipbook.