My first document

Page 1

architect Oleksandr Vinokurov PORTFOLIO

Building project, Kyiv, Ukraine.

GSPublisherVersion

Building project, Lviv,Ukraine.

GSPublisherVersion План ГАП Вінокуров О В Виконав Вінокуров О В План першого поверху К-сть Зм Підп Арк №Док Дата Індивідуальний Львівська сільської Індивідуальний адресою Львівська Тростянецької сільської 1 1 2 2 3 3 4 4 5 5 А А Б Б в в г г 440 6 000 440 440 2 000 140 3 060 440 440 3 000 270 5 130 440 9 820 1 500 1 950 1 500 1 220 1 500 1 330 9 280 540 280 3 295 5 425 4 280 5 260 280 18 820 1 768 9 132 950 400 950 1 000 950 400 950 800 3 740 6 880 6 680 280 3 740 6 320 6 670 290 17 300 5 600 2 200 3 150 350 2 900 950 400 950 800 280 3 740 6 320 6 670 290 940 3 260 5 134 1 500 3 046 3 000 1 940 940 3 260 5 080 2 660 6 880 280 3 295 5 425 4 280 5 260 280 1 768 2 000 772 1 250 250 2 610 1 300 1 790 700 140 280 800 1 120 380 495 805 500 140 120 800 3 380 440 1 490 4 100 2 200 100 140 2 200 380 330 350 1 120 140 1 640 950 400 950 360 440 440 3 000 270 680 800 3 650 440 440 1 328 2 000 802 140 1 500 140 1 570 140 2 840 950 400 950 290 270 440 950 410 940 360 440 440 4 140 380 1 250 5 050 800 1 430 270 3 100 440 440 1 450 140 1 410 270 1 500 140 3 490 270 710 1 500 790 270 890 1 500 1 220 1 500 890 440 440 1 209 800 3 092 800 99 440 440 3 000 270 1 750 1 023 2 357 270 224 1 500 1 276 270 1 500 3 000 1 500 440 440 450 3 360 390 4 200 440 140 2 590 800 100 270 18 820 17 300 17 300 1 2 3 4 5 6 7 8 9 13 12 10 11 № 1 2 3 4 5 6 7 8 9 10 11 12 13

Building project, Lviv,Ukraine.

GSPublisherVersion

Building project , Uzgorod ,Ukraine.

GSPublisherVersion 0.65.100.100 Індивідуальний однородинний житловий будинокна вул ------- с Оноківці Ужгородськогорайону Закарпатська область ЕП Індивідуальний однородинний житловий будинокна вул с Оноківці , урочищеДоманинська реформа Ужгородськогорайону , Закарпатська область ЕП - 2 2022 АР План першогоповерхуМ 1:100 05 ГАП ВінокуровО В Виконав ВінокуровО В Кваліфікаційний сертифікат Серія АА №004497 Стад я Аркуш Аркушів К-сть Зм Підп Арк №Док Дата План першогоповерхуМ 1 100; 1 1 2 2 3 3 4 4 5 5 В В В/1 В/1 Б Б А/1 А/1 А А Г Г 270 130 1 450 220 220 240 270 120 390 120 140 120 140 120 140 445 140 380 140 120 140 120 140 120 140 120 270 120 200 120 140 120 1 370 100 100 880 140 580 60 140 200 872 200 110 110 880 2 915 1 635 3 850 2 750 1 200 1 650 4 550 3 850 3 950 1 640 1 700 750 1 600 3 350 5 800 750 1 690 1 650 12 350 1 640 160 7 390 410 200 150 9 300 540 7 540 350 410 840 400 350 350 210 4 590 4 910 330 25 140 6 300 900 5 150 1 650 12 350 1 650 1 700 750 1 600 3 350 5 800 750 1 700 1 650 12 350 1 650 150 7 810 16 650 540 440 520 17 180 400 350 350 800 4 910 330 25 140 620 7 030 220 5 280 170 680 220 580 220 590 540 2 915 235 1 400 3 850 2 550 212 1 188 620 6 855 175 220 130 220 040 170 1 880 170 2 130 540 4 250 990 150 220 1 580 220 4 350 340 620 7 030 160 3 340 400 1 450 220 140 000 3 440 220 140 000 3 450 540 450 210 210 130 220 039 3 771 1 280 50 2 250 540 1 650 2 900 100 2 860 2 990 2 100 200 1 200 1 1 2 2 3 3 4 4 300 1 630 170 1 790 400 1 350 220 1 580 220 4 390 300 Каналізація Витяжка Каналізація для дощової води захована утеплювачі Каналізація для дощової води Витяжка Каналізація Каналізація Каналізація дощової води Експлікація приміщень першого поверху № 1 2 3 4 5 6 7 8 Назва Тераса Вітальня Кухня Коридор Кладова Спальня Спальня Тамбур Площа 6,45 57 15 23 58 23 65 6,81 20 56 20 56 3,36 Примітки 7 8 9 10 11 12 13 14 15 Спальня Тамбур Санвузол Гардеробна Санвузол Душова Вбиральня Пральня Вбиральня 20 56 3 36 38 43 16 60 16 96 3 89 3 81 2 97 2 87 247 65 м²

Building project, Tiachyv,Ukraine.

GSPublisherVersion ЕП - 6/2021 АР План на відмітці +0 000 Експлікація першого поверху № 1 2 3 4 5 6 Назва Тамбур Коридор Гараж Санвузол Котельня Гостьова Площа 8 38 21 42 37 53 4 00 4,00 8 28 Примітки А А 1 1 Б Б В В Г Г Д Д 2 2 3 3 4 4 5 450 2 500 1 970 2 500 880 130 300 3 930 9 070 150 4 360 2 256 6 254 280 13 430 6 830 600 11 270 18 700 280 1 900 4 210 6 530 5 270 510 18 700 1 030 2 000 1 980 1 540 6 880 130 300 6 120 6 880 280 4 360 2 190 6 320 280 13 430 130 1 770 5 440 2 400 8 830 130 130 300 1 470 11 300 5 070 300 130 150 1 900 4 210 6 530 5 270 380 18 700 130 300 3 930 440 4 000 140 4 050 440 440 6 000 270 2 000 140 2 000 140 3 500 270 3 500 440 440 3 180 140 1 090 140 1 730 270 6 000 440 440 10 420 440 5 070 300 130 440 6 280 270 1 720 140 4 140 440 440 3 810 4 460 140 2 000 140 2 000 440 440 6 000 270 6 750 1 030 270 3 500 440 1 900 440 4 100 270 2 490 3 560 140 1 720 140 3 500 440 440 1 810 140 2 210 6 260 440 5 500 1 2 3 4 5 6 7 8 9 10 11 12 13 14 15 7 7

Project of the restaurant ,Ukraine.

GSPublisherVersion План першогоповерхукафе М 1 100 1 1 2 2 4 4 А А Б Б Г Г Д Д В В 1 1 4 690 1 200 1 430 800 870 1 200 760 250 700 10 000 125 950 500 6 750 2 500 125 10 950 2 205 6 200 1 330 2 000 250 2 000 4 100 1 200 250 1 200 2 220 17 585 5 370 1 480 7 850 8 380 5 120 125 22 955 2 250 5 630 3 070 250 1 200 6 750 250 2 500 125 950 500 6 750 2 500 125 10 950 250 2 860 120 2 900 120 1 200 120 2 180 250 250 7 600 250 8 130 250 4 870 250 1 355 250 7 600 250 8 130 250 2 000 120 2 750 250 250 3 250 120 1 500 250 150 250 700 250 7 000 250 3 052 1 138 250 7 000 250 150 250 700 500 250 6 500 250 900 2 1 8 3 4 5 6 7 3 3 800 5 250 2 300 2 355 3 026 2 355 914 1 200 250 1 200 250 1 200 500 800 500 7 850 800 7 030 800 5 120 1 425 7 850 8 380 5 120 125 22 900 2 861 021 1 200 2 549 Експлікація приміщень першого поверху № Назва Зала Вбиральня Склад Площа 56 91 9 44 4 15 Примітки

Building project , Lviv, Ukraine.

GSPublisherVersion

Building project, Lviv, Ukraine.

GSPublisherVersion

Project restaurant in the mountains , Ukraine.

GSPublisherVersion
GSPublisherVersion
Варшава дільниця Урсинув: вул. Лельки/ Рентгена/Пустулечки. Ділянка номер. 69,70,81/1,88/32;
Project of a residential building with underground parking , Poland.

Project of a residential building with underground parking , Poland.

GSPublisherVersion

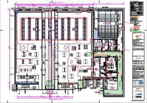
Nike Factory Store - project in Nizhny Novgorod - Russia

Republic shopping center 747m2. The project was implemented in November 2016.

GSPublisherVersion

Project "Nike Factory Store" shopping center RedKit. Moscow, Russia

742m2 The project was implemented in December 2016.

GSPublisherVersion

The project of the "Nike Factory Store" at the Savelovsky shopping center. Moscow, Russia.

984m2 The project was implemented in August 2017.

GSPublisherVersion

"Nike Factory Store" project in Warsaw, Fasion Haos Shopping Center - Piaseczno

417m2. The project was implemented in March 2017.

GSPublisherVersion

"Nike Factory Store" project in Budapest, BuyWay Shopping Center, Hungary

530m2 The project was implemented in May 2017.

GSPublisherVersion

Project of aesthetic medicine clinic - Miracki Clinic Warsaw

121.6m2 The project was implemented in September 2017.

GSPublisherVersion
GSPublisherVersion
Design of a reception desk for an aesthetic medicine clinic - Miracki Clinic Warsaw

Планрозміщеннямеблів-3М1:50

Design project pizzeria , Kiev ,Ukraine .

Планобмірів

GSPublisherVersion GSPublisherVersion 0.96.100.100 1 50 АРКУШ План обмірів АРКУШІВ
526 073 125 116 602 603 922 394 2 010 549 510 400 562 340 247 350 1 055 060 200 563 140 709 206 706 408 740 89 96 22 89 1 800 стелі 3 012 стяжкою вікна- 3 00 вікна- 00 вітража- 000 250 595 Каналізація Шафа ПК Радіатор горизонтальний Радіатор горизонтальний Радіатор горизонтальний Електро та слаботочний щиток отвір Зовнішній блок для кондиціонера 2 1 3 4 Тамбур Приміщення Санвузол Тамбур НАЗВА ПЛОЩА № 1 2 3 4 ЗАГ ПЛОЩА 87 м2 м м 4 22 м ЕКСПЛІКАЦІЯ ПРИМІЩЕНЬ GSPublisherVersion 0.96.100.100 60 Arquine HOME 65 192 99 3891 212 96 42 160 103 12 45 92 90 109 206 60 48 360 10 152 309 39 312 300 119 12 283.8 7 30 100 Дзеркало Ліжко180x200 Тумба Вбудованапічка тамікрохвильова піч Індукційнаварильна поверхня Холодильник окремостоячий Диван Робочийстіл Обіденнийстіл розкладний Тумба Тумба 26092 160 70 TV60" Тумбапід телевізор 101 2 150 131.8 Шафи Сума:75,65m² Експлікаціяприміщень ПРИМ.ФУНКЦІЯПОВЕРХНЯ Прихожа Спальня Кухня Вітальня Кабінет Балкон Балкон Туалет H=3,00m Сагвузол H=3,00mстяжка 8,88 12,99 11,12 16,51 13,22 2,94 01 02 03 04 05 06 07 3,4 08 1,32 09 5,27
Планрозміщеннямеблів3 1:50 файл:27.02.21аркуш.:друк:2021-03-27 інтер`єрбудинку поверх11 Житловийбудинок ПаркТауер ПРОЕКТІНТЕР`ЄРІВ АРХІТЕКТУРА SklipArchitectureDesignStudio+380686842436 аркуш: шкала: дата формат: ревізія: проектант: архітектор/дизайнер ОлександрВінокуров Кваліфікаційнийсертифікат підпис: стадія: адресаінвестиції: інвестиція: інвестор: Sklip Architecture Design Studio www.sklip-interior.com Вбудованашафа 1 50 АРКУШ План розташуваннямеблів АРКУШІВ Планрозташуваннямеблів Хол СТ 1 400 300 100 900 80 1 100 1 400 75 600 430 1 870 920 800 835 835 700 245 835 2 330 100 1 050 790 490 700 550 730 970 970 1 197 600 100 5 340 600 600 810 5 630 605 200 250 1 400 220 386 294 300 300 80 1 300 300 300 100 840 750 401 300 300 1 010 200 600 220 600 350 600 350 600 350 600 350 600 350 450 600 600 600 350 600 350 600 350 600 370 600 320 600 700 750 600 200 1 580 390 26 47 82 74 м 24 54 11 14 1 91 91 1 600 Піч для піци Тепловазавіса завіса Електро та слаботочний щиток Декоративна Кухонна мийка Шафа Прихованийвхід Розділочний Індуктивна плита Стіл тісторозкаточн ої Кухонна мийка Стіл для офісціантів Декоративна зеркало Декоративна перегородка Рукомийник Рукомийник Барна стійка Вітрина GoodFood RT58 Полички Перегородка Шафа Вішалка одягу Радіатор горизонтальний Радіатор горизонтальний Радіатор горизонтальний 1 2 8 7 3 4 5 9 6 Пивний ресторан Роздягальня Місце для офіціантів Піцерія Робоча зона Бару Робоча зона Піцерії Санвузол Санвузол Холодильна камера НАЗВА ПЛОЩА № 1 2 3 4 ЗАГ ПЛОЩА КВАРТИРИ - 103 98 м2 2454 м2 574 м2 126 м2 4782 м2 ЕКСПЛІКАЦІЯ ПРИМІЩЕНЬ 5 6 7 8 9 1153 м2 714 м2 191 м2 191 м2 213 м2
60 Arquine Arquine HOME 65 192 99 3891 212 96 42 160 103 12 45 152 92 9079100 109 206 60 48 360 10 152 309 39 312 300 119 12 283.8 30 100 Дзеркало Ліжко180x200 Тумба Вбудованапічка тамікрохвильова піч Індукційнаварильна поверхня Холодильник окремостоячий Диван Робочийстіл Обіденнийстіл розкладний Тумба Тумба 26092 160 70 TV60" Тумбапід телевізор 1290 2 160 101 2 150 131.8 Шафи Сума:75,65m² Експлікаціяприміщень ПРИМ.ФУНКЦІЯПОВЕРХНЯСТЕЛЯПІДЛОГА Прихожа H=3,00mстяжка Спальня H=3,00mстяжка Кухня H=3,00mстяжка Вітальня H=3,00mстяжка Кабінет H=3,00mстяжка Балкон - бетон Балкон - бетон Туалет H=3,00mбетон Сагвузол H=3,00mстяжка 8,88 12,99 11,12 16,51 13,22 2,94 01 02 03 04 05 06 07 3,4 08 1,32 09 5,27 Планрозміщеннямеблів-3М1:50 3 Планрозміщеннямеблів 1:50 інтер`єрбудинку поверх11 Житловийбудинок ПаркТауер ПРОЕКТІНТЕР`ЄРІВ АРХІТЕКТУРА SklipArchitectureDesignStudio+380686842436 аркуш: шкала: дата формат: ревізія: архітектор/дизайнер ОлександрВінокуров Кваліфікаційнийсертифікат підпис: стадія: адресаінвестиції: інвестиція: інвестор: Architecture Design Studio www.sklip-interior.com Вбудованашафа 1 : 50 АРКУШ 3D План обмірів АРКУШІВ 3DПланобмірів

Design project of reception , Kiev ,Ukraine .

Примітки 1 Передпочаткомробітвсірозміритагабаритиперевіритинаобєкті

2 Замовленнямеблівіндивідуальноговиготовлення відбуваєтьсяпісляконтрольногозаміру проектувідфірмивиробника 3 Кількістьоздоблювальнихматеріаліввказана

GSPublisherVersion 60 HOME 65 192 99 3891 212 96 42 160 103 12 45 152 92 1099079100 206 60 48 360 10 152 309 39 31 300 119 12 283.8 7 30 100 Дзеркало Ліжко180x200 Тумба Вбудованапічка тамікрохвильова піч Індукційнаварильна поверхня Холодильник окремостоячий Диван Робочийстіл Обіденнийстіл розкладний Тумба Тумба 6092 16070 TV60" Тумбапід телевізор 1290 2 160 101 2 150 131.8 Шафи Сума:75,65m² Експлікаціяприміщень ПРИМ.ФУНКЦІЯПОВЕРХНЯСТЕЛЯПІДЛОГА Прихожа H=3,00m Спальня H=3,00m Кухня H=3,00mстяжка Вітальня H=3,00m Кабінет H=3,00mстяжка Балкон -бетон Балкон -бетон Туалет H=3,00mбетон Сагвузол H=3,00mстяжка 8,88 12,99 11,12 16,51 13,22 2,94 01 02 03 04 05 06 07 3,4 08 1,32 5,27 Планрозміщеннямеблів 1:50 аркуш.:друк: інтер`єрбудинку поверх Житловийбудинок ПаркТауер ПРОЕКТІНТЕР`ЄРІВ АРХІТЕКТУРА аркуш: шкала: дата формат: ревізія: архітектор/дизайнер ОлександрВінокуров Кваліфікаційнийсертифікат адресаінвестиції: інвестиція: інвестор: www.sklip-interior.com Вбудованашафа 1 30 АРКУШ ПЛАНРОЗТАШУВАННЯМЕБЛІВ 2 АРКУШ 16 800 760 600 300 800 900 1 700 400 760 1 200 600 700 500 570 800 800 1390 1 870 500 1 100 720 Кавомашинка тахолодильник Відкриті Кавовийстолик Шафа Кондиціонер Рецепція Шафа Радіатор Ролштори М-№ Аркуш№11 М-№2 Аркуш№11 М-№ Аркуш№11 М-№ Аркуш№11 М-№ Аркуш№12 Примітки Всірозміривказані Перед робітвсірозміри відміткиперевірити обєкті Призаливцібетонноїстяжкивраховуватирізнітовщинипідлоговихпокриттів Розміривказані врахуваннямтинькуваннястін 1 30 АРКУШ ПЛАНСТЕЛЬЗПРИВЯЗКОЮСВІТИЛЬНИКІВ 5 АРКУШІВ 16 Примітки Всірозміривказані мм Мінімальнийопускстелізалежитьвіднерівностейперекриття Перед робітвсівідмітки габаритиперевірити обєкті Кількістьоздоблювальнихматеріаліввказана подана безврахуваннязапасу 19 95 м 600 4 300 800 810 80 1 720 80 810 850 1 800 850 850 960 960 960 970 1 000 500 3 350 1 850 80 1995м УМОВНІПОЗНАЧЕННЯ 2 НішадляLED підсвітки 1 Підвіснастеля Sadolinбіламатова -сть 3 4 5 Подвійнийнаклданий світильник 10шт LEDстрічкадляніш 16 мп Нішадлясвітильників SadolinON0118 44м 22 м 22 м Вуз №1 Вузол№ Вузол№ Вузол№ LEDпідсвітка Стеля Штукатурка нішадля 60 HOME 65 192 99 3891 212 96 42 160 103 12 45 152 92 1099079100 206 60 48 360 10 152 309 39 31 300 119 12 283.8 7 30 100 Дзеркало Ліжко180x200 Тумба Вбудованапічка тамікрохвильова піч Індукційнаварильна поверхня Холодильник окремостоячий Диван Робочийстіл Обіденнийстіл розкладний Тумба Тумба 6092 16070 TV60" Тумбапід телевізор 1290 2 160 101 2 150 131.8 Шафи Сума:75,65m² Експлікаціяприміщень ПРИМ.ФУНКЦІЯПОВЕРХНЯСТЕЛЯПІДЛОГА Прихожа H=3,00m Спальня H=3,00m Кухня H=3,00m Вітальня H=3,00m Кабінет H=3,00mстяжка Балкон -бетон Балкон -бетон Туалет H=3,00mбетон Сагвузол H=3,00mстяжка 8,88 12,99 11,12 16,51 13,22 2,94 01 02 03 04 05 06 07 3,4 08 1,32 5,27 Планрозміщеннямеблів-3М1:50 Планрозміщеннямеблів 1:50 інтер`єрбудинку поверх Житловийбудинок ПаркТауер ПРОЕКТІНТЕР`ЄРІВ АРХІТЕКТУРА аркуш: шкала: дата формат: ревізія: архітектор/дизайнер ОлександрВінокуров Кваліфікаційнийсертифікат стадія: адресаінвестиції: інвестор: www.sklip-interior.com Вбудованашафа 1 25 АРКУШ РОЗГОРТКИСТІНРЕЦЕПЦІЇ№1-3 9 АРКУШ 16 13 90 вивідживлення220v кавомашина вода сейф вода вода вода вода вода 1 000 870 600 1 650 1 700 50 1 100 600 600 3 400 1 700 5 700 2 300 1 200 3 500 КМ-№ Аркуш№11
м таподана безврахуваннязапасу Призамовленнісліддодатизапас 4 Меблевуфурнітуру матеріали конструктив тавнутрішнє наповнення погоджуватипризамовленні фірмою-виробником 5Передзамовленнямнеобхідноїкількостіматеріалудляпофарбування стін обовязковоробитивикраси 6Червонимкольоромпозначенорозташуванняелектрики Площам Назва 2129 ФарбаSadolin ON0180 Загальнакількість приміщенні 4235 УМОВНІПОЗНАЧЕННЯ розетка В ихід Вхід приміщення вимикачдвоклавішний 300 200 длякондиціонера підвіснастеля холодильник посуд продукти 1 25 АРКУШ КРЕСЛЕННЯМЕБЛІВ№19-25 12 АРКУШІВ 16 760 800 1 560 20 350 20 350 20 760 1 100 600 1 700 800 300 550 100 1 500 1 100 424 390 790 80 25 275 100 240 500 1 100 210 1 790 1 870 1 790 180 210 390 210 80 100 1 636 Кресленнямеблів№7 Кресленнямеблів№8 1 2 3 4 5 1 4 5 1 1-1 2 -2 мрамор мрамор МДФ LED підсвітка LED підсвіткацоколя МДФ посуд посуд

The project of an office building with underground parking on Khinka Street,

Warsaw , Poland .

GSPublisherVersion

The project of an office building with underground parking on Khinka Street, Warsaw , Poland .

GSPublisherVersion

General plan for the shopping center in Sikhiv , Lviv , Ukraine .

GSPublisherVersion

The project of a shopping center in Sikh (stage of the working project) , Lviv . Ukraine.

GSPublisherVersion
GSPublisherVersion
The project of the medical center and the fire station in the village of Radovel , Zytomer ,Ukraine.

The project of the general plan of the sports complex: a large stadium, mini-football fields, playgrounds, and training grounds. Radovel , Ukraine.

GSPublisherVersion

Project of the master plan for the shopping center in Ivano-Frankivsk ,Ukraine.

GSPublisherVersion

Office center project at 249 Bohdana Khmelnytskogo St. in Lviv , Ukraine.

GSPublisherVersion
GSPublisherVersion
Reconstruction project of a non-residential building for an office building in Lviv , Ukraine.

Project of a residential building in the village of Birka , Ukraine.

GSPublisherVersion

Office

building project for the TME company in Lodz

Interior design and project management.

GSPublisherVersion

Turn static files into dynamic content formats.

Create a flipbook
Issuu converts static files into: digital portfolios, online yearbooks, online catalogs, digital photo albums and more. Sign up and create your flipbook.
My first document by Aleksander Winokurow - Issuu