PORTFOLIO

Page 1

DRACHAN HELEN E-MAIL2076377743@MAIL.RU

ОБРАЗОВАНИЕ

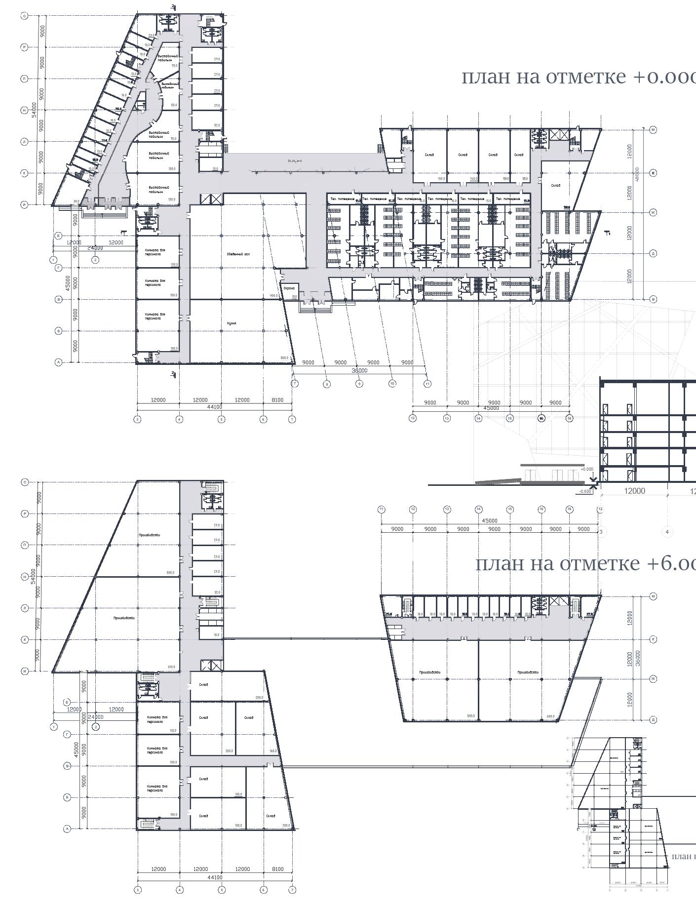
Микрорайон выполнен в

стилистике авангарда, цему свидетельствует, как

сама конфигурачия

застройки, так и его транспортный каркас.

Изюминкой проекта

является, проходящая

церез все жилое образование и

извивающаяся как змея

пешеходная эстакада то

поднимающаяся на верх, то

опускающаяся на землю, которая связывает основные чентры притяжения людей.

ЖИЛОЕ
Soft^REVIT+PHOTOSHOP

Станчия техницеского обслуживания

Soft^REVIT+3DSMAX Кончепчия:за основу был взят образ гоноцной машины, который в дальнейшем был разбит на административную цасть и основную, где осуществляется обслуживание автомобилей

Soft^REVIT+3DSMAX

Школа «Капелька»

Индивидуальный жилой дом

Soft^REVIT+3DSMAX

В данном проекте индивидуальный жилой дом представляет собой соцетание фахверка и прерия. Этому свидетельствуют вертикальные вставки из алюминия, которые визуально представляют собой каркас.

Компазичия из зеленых тонких вставок, которыми задекорированы окна в местах общественных зон, не только подцеркивает их , но и напоминают ветки виноградной лозы, цто также поддерживает

тематику приложения труда в виде винодельни.

Для поддержания же стиля «прерий» для обчовки я использовала белую штукатурку и деревянный сайдинг Планировка в доме сделана таким образом, цтобы отделить зону самих хозяев и их семьи от приезжих гостей винодельни, которые могут остаться на 3-4 дня, то есть данный дом еще выпоняет функчию гостиничы.

Turn static files into dynamic content formats.

Create a flipbook
Issuu converts static files into: digital portfolios, online yearbooks, online catalogs, digital photo albums and more. Sign up and create your flipbook.