Sample Portfolio

Page 1

CONTACT INFO: ng.simontm@gmail.com +44 (0) 7414615711 London, UK S imon n g PART 2 ARCH i TECTURAL ASS i STA n T SA m PLE P o RTF o L io

PR o F i LE

I am passionate about integrating technology, sustainability, and materiality in design. I believe that these three elements are essential for creating transformative and engaging architecture that contributes positively to communities. I strive to create aesthetically stunning and functionally efficient buildings that have a positive impact on the environment. I hope my values will continue to guide my progress towards better communities and further my future architectural career.

A n T w ERP F ASH ion D i STR i CT i L o T m A n SART R ES i DE n CE K11 A RT m ALL n ingbo H o USE o F HU ng AR i A n m US i C 16 712 1516 1314 P ERS on AL P R o FESS ion AL

i L o T m A n SART R ES i DE n CE

This project locates in Nanterre, Paris. The site suffers disturbance from close proximity to railway tracks and highway junctions. The aim of this project is to create a new innovative residential building that will connect different neighbourhoods, promote ecological and energy transitions, and respond to economic, ecological, societal, and urban needs.

Type: Personal Competition

Duration: 2 Months

Drawings: Rhino/ AutoCAD/ Illustrator

3D Model: Rhino

Illustrations: Rhino/ Illustrator

Renders: Rhino/ V-Ray/ Photoshop

This competition was done as personal project with two teammates (Benjamin Berwick/ Jacky Tang), at our off time from work experience.

S Ng: 3D Rhino Model/ Illustrations/ 2D

B Berwick: Rendering/ 2D Drawings

J Tang: Interior/ Terraces/ 2D Plans

1 SIMON T. M. NG
2 SIMON T. M. NG
View of the Terraces Reshaping an elegant, socailable arechitecture by proposing green ladder into the building, in harmony with nature. A Typical, Persistent Building Block More Livable Block for Future Condition A Peceful Resident for the Locals to Inhabit A New Housing Typology The Terraces - a Vertical Landscape for the city Template with maximum volumn
A Living Facade Landscape Continuity
Height at North side to protect from the disturbance from train/ traffic, building slopes towards the south to let in the sun

The project proposes the green building incorporating the use of vegetation , planted with many urban suitable species, serving as a natural reserve and a filter against pollution. It will be a gathering hub, a promenade, and a catalyst for urban regeneration, accessible to adjacent neighbourhoods. This project also attracts a mix of occupiers and purpose, creating a new sense of community and social interaction.

3 SIMON T. M. NG
Axonomatric - General Axonomatric - Ground Floor and Below

AbdenbiGuemiahBoulevard RueJeanRoques

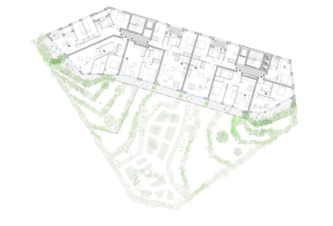
B B A A 4 SIMON T. M. NG Plan - Fourth Floor Plan - Gound Floor
Boulevard Marcellin Berthelot Complex
JulesMansart
RailwayLine Site Plan Basement Lower Gound Floor 2 Lower Ground Floor 1 Ground Floor 1st Floor 2nd Floor 3rd Floor 4th Floor 5th Floor 6th Floor 7th Floor 8th Floor Section BB
BlaisePascalBoulevard University Terraces
5 SIMON T. M. NG
Elevation - West Elevation - South Section BB - Podium (Apartments and Car Park) with Shared Garden Above Section AA
6 SIMON T. M. NG
Terrace Type 1 Terrace Type 2 Standard Two Bedroom Apartment
Standard (Four
Iterative Design Maquette
Standard Apartment with Balcony
Bedroom)Duplex Apartment
Render - Interior

A n T w ERP F ASH ion

D i STR i CT

This DESIGN THESIS proposes the repurposing of the former industrial dock, in the southern district of Antwerp renowned for trendy art scenes. It presents a valuable opportunity to create a social gathering platform by repurposing the underutilised south dock.

This project aim for this project is to allow for opportunities to revitalise the fashion industry of Antwerp by providing a specific platform for emerging local designers and educate for future generations

Type: University Project

Duration: 4 Months

Drawings: Rhino/ AutoCAD/ Illustrator

3D Model: Rhino/ Grasshopper

Illustrations: Rhino/ Illustrator

Renders: Rhino/ V-Ray/ Photoshop

7 SIMON T. M. NG
C B B C D D E E A A 8 SIMON T. M. NG Retail Section BB Fashion Museum Section CC Covered Open Area Section DD Fashion School Section EE Fashion District Urban Plan Fashion District Urban Section AA Fashion School Retail/ Workshops Covered Open Space Museum
F F 9 SIMON T. M. NG Fashion School Plan - Ground Floor First Floor Second Floor Roof Floor Fashion School Section FF
Glulam Timber 1200 x 600mm with Pre-Drilled Holes for Steel Rod Stainless Steel Joint (30mm Thick) Stainless Steel Rod

This fashion district uses Grid Shell structure made primarily of Glu-lam timber , providing a dynamic canopy that references the fluidity of the Antwerp fashion industry. The proposed Fashion District is a promising initiative that has the potential to reactivate the southern district of Antwerp and restore the city’s reputation as a leading fashion capital.

10 SIMON T. M. NG
Floor Slabs Grid Shell Structure ETFE Panels Fabric Grid Shell X Axis Grid Shell Y Axis Ring Bracing Column C Column B Column A Mock-up An Iteration of the Structure
G H G H 11 SIMON T. M. NG
Museum Plan - Roof Museum Plan - First Floor
Retail & Fashion
Section HH
Retail & Fashion Museum Section GG
Museum
Retail (Left) & Fashion Museum (Right) Plan - Ground Floor
12 SIMON T. M. NG
Ariel View - Fashion Museum Street View - Retail / Workshop Interior View - Fashion Museum Column + Staircase Ariel View - Fashion Museum Gallery

H U ng AR i A n m US i C

The House of Hungarian Music was designed during my time working at the Sou Fujimoto Architects in Japan. The House of Hungarian Music situated in Budapest, Hungary, is an innovative and exciting new museum that celebrates the country’s rich musical heritage

The museum provides a fascinating insight into Hungary’s musical heritage and celebrates the country’s ongoing contribution to the world of music.

I’ve been involved in the general drafting of documents and in charge of the acoustic panels and skylight specially, as well as the ground floor panelling for vegetation and stone pattern.

Office: Sou Fujimoto Architects

Type: Museum

Drawings: Rhino/ Grasshopper

Illustrations: Rhino/ Illustrator

Renders: Rhino/ V-Ray/ Photoshop

13 SIMON T. M. NG
Photo - Ariel View of The House of Hungarian Music
Section H o USE
Photo - Acoustic Panels and Sky Light Punctures
o F
14 SIMON T. M. NG
Photo - Lecture Hall Photo - Atrium / Entrance Photo - Garden + Sitting Ground Floor Plan Green - Vegetation / Grass Yellow - Stone Flooring Roof Plan - Acoustic Panels and Sky Light Punctures Acoustic Panels designed with star like pattern Puncture holes for skylight and tree growth

A RT m ALL n ingbo

The ‘K11 Art Mall’ was designed during my time working at the Laboratory for Explorative Architecture & Design Ltd. (LEAD) in Hong Kong.

LEAD had been involved in the Facade Design for the K11 Shopping Mall . LEAD aimed to create a dynamic and immersive space that seamlessly integrated art and commerce. Facade materials include colourful roof tiles, green facades, stone cladding, and curtainwall systems

I had been involved in the general facade design of this project, as well as prototyping material samples . With the need to communicate with local contractors, I was designated to attend weekly meetings, translate and report in regards to relavent informations.

Office: LEAD

Type: Building Facade

Drawings: Rhino/ Grasshopper

Illustrations: Rhino/ Illustrator

Renders: Rhino/ V-Ray/ Photoshop

15 SIMON T. M. NG North Elevation Plan - Ground Floor
Type 1A Type 3 Type 2 Type 1B Plot 1 Plot 2 Plot 3
K 11
Plot 4
16 SIMON T. M. NG T y P i CAL F ACADE m o DULE T y PES
1) Aluminium Frame with Concrete Backing 3) Sub-Frame Mount on Concrete Backing 2) Window Installation 5) 2mm Aluminium Plate + 45 mm Circular Steel Pipe 4) Sub-Frame installation on Mount
T y P CAL F ACADE m o DULE b U i LDUP
6) Shingles Installation on Circular Pipe
set out
3mm Metal Shingles Slide Connector Connector A Tubular Backing Structure Connector B Shingle Installation - Single Intended Shingle Installation -
10mm Gap Tagging System marked on backing tubes to
the individual tile lcocation Intended
Facade
Type 1A) Metal Shingles Claddings Type 1B) Metal Shingles Colour Variation
Facade Model Physical Model
Type 2) Green Wall Type 3) Half ‘Leaf’ for Balcony
1:1 Mockup

Turn static files into dynamic content formats.

Create a flipbook
Issuu converts static files into: digital portfolios, online yearbooks, online catalogs, digital photo albums and more. Sign up and create your flipbook.