SSimmons
simmons portfolio




this doube facade detail (image by FXFOWLE Architects) is adopted into the facade design of the school to create a “breathing” building, filtering the air quality for the users
three-story untempered space providinig a thermal buffer
pin-supported facade with vertical glass fins
horizontal louvers with operable damper to control outside air intake and exhaust
openings for air intake and release
ivy grwoing on tension cables to provide natural solar control by blocking harsh summer gains and shedding foliage in winter to allow for solar gains in winter
Rule of 4 Breath Breakdown: the ethos that informed the design decisions of the building facade and structure, as well as, the layout of the floor plans and movement throughout the school
Inhale: Gets energy flowing & activated
1st Pause: Engaging that energy flow
Exhale: Letting the engagement flow, soak in, release out
2nd Pause: Resting / Reseting for next inhale
ground floor / lobby, playground, garden & park
forsyth st.






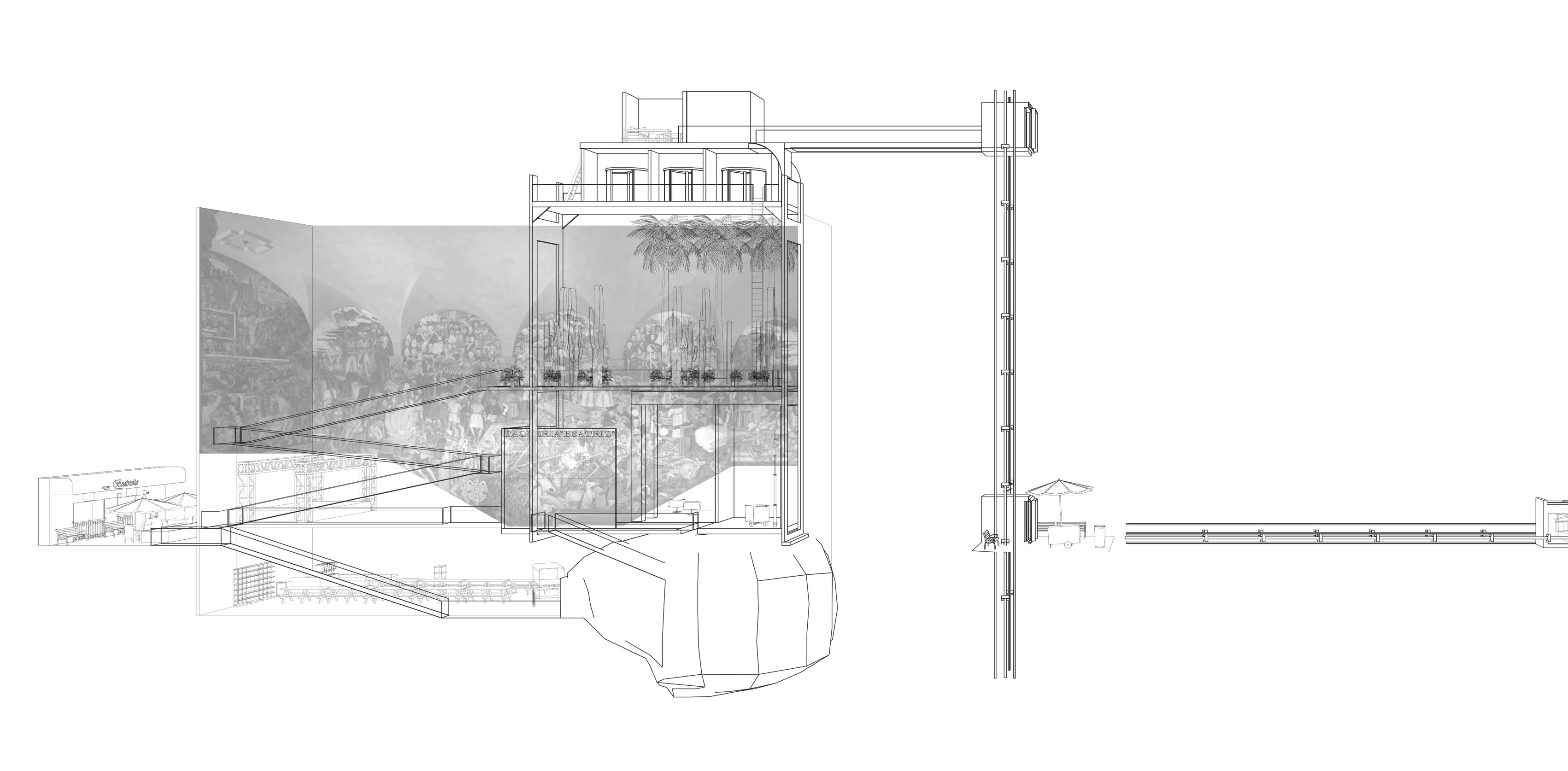
As one exits the rear end of the Taco Mix taqueria storefront, they enter an imaginative spatial environment that serves as a portal, a bridge, between New York’s Little Mexico and CDMX. The layout of this imaginative space emerges from an interest in the origin story of the taco and thus becomes a gigantic tortilla time-traveling museum machine that tells the narrative of Taco Mix and the owner Jorge, as well as, the history of the taco itself which leads out to the oldest taqueria in CDMX.

Jorge opens ‘Taco Mix’ taqueria storefront
Jorge is selling tacos out of a cart to save money to open a store
Jorge arrives in New York, someone opens their tenament apartment to him where he sleeps under the kitchen table
Jorge first migrates to California
Jorge traveles through the desert and crosses the border into the states
After the Mexican Revolution against Spain in 1920 the people aimed to rebuild a shattered nation and wanted to tell the “peoples story”through art and food. There was a celebration of street style food and culture and the taco was part of that.
The oldest taqueria in CDMX officially opens a storefront (now known as Beatricita)
The oldest taqueria in CDMX opens as a family business selling tacos out of a hallway in a cart
The taco origin is traced back to the silver mine where workers would eat meat wrapped in tortilla coined as the hand grenade
The protagonist is transported to CDMX, appearing at the current entrance of Beatricita


Third Year B.S. Interior Architecture
Project Type : Hospitality, Branding
Location & Size(Area) : Los Angeles, California, 10,000 sq.ft.
Critics : Kelly Hensler
Software Programs Used: Revit & Illustrator
concept
“Hotel Cocoa” is the development of a micro-hotel at a proposed site in downtown Los Angeles, California. The aim is to establish a distinctive building interior that emphasizes smaller unit sizes with unique common spaces and amenities that communicate the story of the hotel’s brand. Hotel Cooca is a micro-hotel that redefines what it means to explore while traveling. Through music, art, stories and cuisine; Hotel Cocoa elevates and celebrates Black culture. This hotel entices those willing to pursue the unfamiliar and dive deeper within themselves. The amenitites enable individuals to discover something new, explore a way of life, decompress and relax. The inviting ambience brings people together while upliftinf culture and enhancing community. The rooms have a standard design, furniture choice and feel. They adopt an “apartment style” to provide a home-style feeling. Whether you are an artist, historian, activist, creative, book enthusiast, food blogger, music lover or anything in between, a visit to hotel cocoa will inspire you to look outside of yourself and discover something new.







b r w n s u g r


r e s t a u r a n t : B r wn S ugr C uis i n e
This uniquely contemporary space serves cuisine inspired by Soul food. Guests can celebrate life, love and friendship in a casually elegant environment.

Brwn Sugr Cuisine is the restaurant of Hotel Cocoa.








From my exploration on the concept of opacity that was theorized by Edourad Glissant, I designed and built a projector prototype using a cardboard box, magnifying glasses and foam board. When a phone is placed on the foam board stand inside the projector box, a faint image is cast through the magnifying glasses onto a surface. Glissant argues for opacity in his essay Poetics of Relation, that there is a right to not be known, a right to keep parts of our stories, identities, selves opaque. To decrease legibility and the ability for all to know our experiences and truths, I explore these themes through how I project the film. There’s meant to be an intentional experience of obscuring the clarity of the fil, as the blending of oral archives, song, and music come together in one piece. Telling the fragmented narratives of colonialism, apartheid, oppression, liberation, self-understanding, and healing through the lens of the soft black girl.
furniture fabrication
First Year M.Arch
Project Type : 1:1 Scale Furniture Fabrication
Location : West Harlem, New York, United States
Critics : Alessandro Orsini
Software Programs Used: Rhino & Illustrator
concept
This compartmentalized drafting table with pull out bench seating and storage is custom designed for youth and adolescence between the ages of five and eleven. The design was created to be utilized in child-size art therpay pods. Within these individual pods, one has the freedom to be creative and express themselves artistically on their own, aiming to evoke an atmosphere of healing and growth.















The “Wrapped in Culture” art piece was showcased in the “Up and Coming” art show at the University of Wisconsin-Madison. This figure drawing focuses on a human model under a single light source, encapsulating the beauty of culture. She holds a raised closed fist pose that symbolizes Black pride, resistance to oppression, and a commitment to fighting injustice, while wearing a traditional Jamaican headwrap.
“Handle with Care” is a meaningful piece that empowers and reconstructs the view of the Black woman by conveying the duality of Black women being both strong and resilient individuals, as well as, gentle and precious souls. Strength and resilience is symbolized through the use of wood as the canvas, while the collaged paper butterflies represent softness.


This “Self Portrait” figure drawing focuses on myself as the subject, aiming to capture the feeling of being torn as one juggles overwhelming emotions. A journal entry of thoughts follow the folds on the garment covering my body.


