SILVY ARCHITECTE HMONP

Page 1


BOOK

INFORMATIONS

Date de naissance: 26 mai 1999

Nationalité: Francais

Architecte DESA - HMONP

VOYAGES

Espagne, Maroc, Royaume-Uni, Italie, Costa Rica, Singapour, Monaco, Pays-Bas, Belgique, Etats-Unis, Suède, Danemark, Suisse

CONTACT AUTRES

Chemin de Bomorto 20166 Porticcio

47 Rue du Montparnasse 75014 Paris

Email: Max23silvy@icloud.com

Tel.: 06 85 79 08 50

Septembre 2022 Juillet 2024 à Mars 2023 Depuis Mars 2023

Diplôme de l’École Spéciale d’Architecture de Paris “Félicitations Unanimes du Jury“

Réhabilitation d’une base AéroNavale en Salles de Concert

Licence d’Architecture ESA - Paris

Baccalauréat Scientifique

Spécialité Informatique et Science du Numérique

Revit

Archicad

Twinmotion

InDesign

Photoshop

AutoCAD

Word

Illustrator

Concepts

Enscape

Permis B

Permis A (Moto)

Permis Mer-Côtier

ACTUALITÉ

Concours: Archi’ Jeunes

Valode & Pistre 2023 (10 premiers selectionnés)

Formation HMONP: ESA Paris (BIM Intensif)

VALERO & GADAN (Paris / 1 an - Mars à aujourd’hui)

Concours d’un poste de police, Chantier, OPR, esquisse+; Concours d’une école et de bureaux, DCE complet: 125 Logements résidence seniors; travail en BIM collaboratif... Révit, Photoshop, Illustrator, Twinmotion, InDesign

VALODE & PISTRE (Paris / 7 mois - Septembre à Février) Concours Gare du Nord à Paris; Création immeuble de bureaux à Paris; Tour de 100 logements Pastor, à Monaco... Révit, Enscape, Twinmotion, Dessin 2D/3D, Modification de plans, perspectives 3D, graphisme, vidéos animation...

Stage en agence d’architecture:

SILVY Architecture (Ajaccio / 2 mois - Juillet à Août)

ArchiCad, Dessin, Esquisse de maisons, plans PRO, réhabilitation...

Stage en agence d’architecture:

SILVY Architecture (Ajaccio / 2 mois - Juillet à Août) Permis de construire en APS/APD, Suivi de chantiers, Esquisse de villas, Réhabilitations

Stage en agence d’architecture:

KROOK & TJÄDER - UULAS (Suède / 1 mois - Janvier)

Maquette Laser, Esquisse de villas, Suivis de chantier, Projet BIM, Autocad, Révit

Stage en agence d’architecture:

SILVY Architecture (Ajaccio / 2 mois - Juillet à Août) Relevé, Permis de construire d’après relevé de plan, Dépôt de permis

Francais

Anglais

Corse

Architecture Voyages

Arts

Guitare

Musique

Moto Aventure

01

HALLE SOLIDAIRE

studio Antonio LAZO

Mathildenhöhe est un quartier du centre de Darmstadt, en Allemagne. Une collection de maisons, de fontaines et de sculptures confère à Darmstadt le titre de patrimoine mondial, mais la situation actuelle a retardé l’événement. Investissements écologiques : Une campagne de financement pour sauver les arbres existants. Les arbres endommagés sont remplacés par de nouveaux. Les sols dégradés de la ville entraînent tout un effort de réorganisation de l’usine et des travaux de longue haleine. C’est un véritable effort paysager mais aussi éco-responsable. De plus, compte tenu de l’état du sol, la ville n’autorisera plus aucune fête folklorique ni aucun événement de plus grande envergure qui pourrait aggraver la situation.

Maxime Silvy
Maxime Silvy ATELIER A.LAZO SEMESTRE 5

02

ECOLE PRIMAIRE

studio Tae-Hoon YOON

Mathildenhöhe est un quartier du centre de Darmstadt, en Allemagne. Une collection de mai sons, de fontaines et de sculptures confère à Darmstadt le titre de patrimoine mondial, mais la situation actuelle a retardé l’événement. Investissements écologiques : Une campagne de financement pour sauver les arbres existants. Les arbres endommagés sont remplacés par de nouveaux. Les sols dégradés de la ville entraînent tout un effort de réorganisation de l’usine et des travaux de longue haleine. C’est un véritable effort paysager mais aussi éco-responsable.

De plus, compte tenu de l’état du sol, la ville n’autorisera plus aucune fête folklorique ni aucun événement de plus grande envergure qui pourrait aggraver la situation.

PERSPECTIVES - 3D

COUR DE RÉCRÉATION

AXONOMETRIES

PERSPECTIVE SUD-EST

PERSPECTIVE NORD-OUEST

CROQUIS
ATELIER S6
Maxime Alexandre
Lydia Abrous Ilan Dagé

MATHILDENHOEHE MATHILDENHOEHE

Echelle: 1/20

COUPE
1/100
COUPE AA

PERSPECTIVES - 3D

MATHILDENHOEHE

PERSPECTIVES - 3D

PERSPECTIVE

PERSPECTIVES - 3D

MATHILDENHOEHE

PERSPECTIVE GÉNÉRALE

MATHILDENHOEHE

PERSPECTIVES - 3D

MATHILDENHOEHE

MATHILDENHOEHE

ATELIER S6
Maxime Silvy
Alexandre Perrino
Lydia Abrous Ilan Dagé

RESTAURANT / ADMIN.

studio Antonio LAZO

Le quartier du Bas-Pays centralise l’activité industrielle de Romainville, avec un passé en continuité avec le projet actuel de Biocitech, axé sur l’industrie pharmaceutique. Notre questionnement autour de la ville productive à Romainville serait de créer une sorte d’écosystème avec différents acteurs autour de la production dans la ville. Si l’on pouvait créer cette nouvelle dynamique urbaine, on pourrait alors la modéliser et l’adapter au cas par cas à d’autres villes industrielles, pour en faire une solution générique. Dans nos différentes recherches, nous avons constaté qu’avant son histoire industrielle, Romainville était une ville agricole et paysagère, bénéficiant d’une certaine notoriété (en partie due au jardin abrité par le château). Ainsi, nous nous sommes demandé comment introduire une architecture (et des espaces) de connaissances et d’apprentissages liés à l’horticulture dans un tissu urbain existant ?

LES DES COTEAUX: RESTAURANT ADMIN

École Spéciale d’Architecture

Maxime SILVY

Bibliothèque Logements

SCHÉMA PROGRAMMATION RDC

PROGRAMMATION

École Spéciale d’Architecture

Maxime SILVY

SCHÉMA DES FLUX RDC

École Spéciale d’Architecture

Maxime SILVY

DÉTAILS

PRINCIPE DE GRILLAGE

Relevé d’étancheité

Étancheité

Maxime
Brises-soleils
Plots béton
Dalle béton
Faux-plafond acous.
Structure
Bardage Bois
Dalle béton

PERSPECTIVE

PERSPECTIVES

PERSPECTIVES

PERSPECTIVES

École Spéciale d’Architecture
Maxime SILVY
École Spéciale d’Architecture
Maxime SILVY
École Spéciale d’Architecture
Maxime SILVY
École Spéciale d’Architecture
Maxime SILVY

CONCERTS 04

“LE CHANT ARCHITECTURAL“

studio Thomas Corbasson

DIPLOME MASTER

Ma réflexion architecturale portera sur la manière de transformer ce site, c’est-à-dire sélectionner les infrastructures à préserver, développer largement le pôle culturel, en utilisant la musique comme base générique de développement du projet. La musique et l’architecture sont intimement liées, notamment par leurs processus créatifs et la manière dont elles interagissent les unes avec les autres ; ce sont aussi des expériences immersives. Rythme, musicalité, écho, composition, temporalité… autant de termes qui pourraient être utilisés dans les deux domaines. La musique est un moyen de rassembler, elle apaise, populaire, crée des événements et fait vivre la ville qui en a besoin. Cela crée également un lien entre plusieurs générations de personnes. C’est une langue universelle. En effet, notamment en Corse, la culture musicale est assez présente, avec des polyphonies chantées en langue corse. L’idée est donc de créer un projet où la musique est au centre du processus créatif, la musique comme concept architectural à part entière. C’est aussi une expérience sonore, mais surtout connectée à nos autres sens. Autrement dit, il s’agirait de créer une expérience synesthésique ou phénoménologique au cœur du projet. Comment la musique peut-elle s’intégrer et interagir dans la conception et la réflexion du projet architectural ?

ESPACES VERTS

ROUTE CRÉE + PARKING

COUPE DE SITE 1/500

AXONOMÉTRIE ECLATÉE

ETUDES SUR LA RÉPÉTITION

LIVING STRUCTURE

DOUBLE ROOF

GLASS FACADE

SALLE JIMI HENDRIX

COUPE SUR LES SALLES

7 MOIS

VALODE & PISTRE

EXPÉRIENCES PROFESSIONNELLES

SOGELYM DIXENCE

VALODE & PISTRE ARCHITECTES

VALODE & PISTRE 06

TOUR A MONACO

Dans le cœur dynamique et prestigieux de Monaco, notre agence a eu l’opportunité unique de se lancer dans un projet architectural qui promet de redéfinir la vie de luxe dans la principauté. Présenté par un distingué développeur basé à Monaco, ce projet implique la conceptualisation et la création d’une tour résidentielle qui témoigne d’un design innovant et d’opulence.

Située dans le contexte animé du centre animé de Monaco, la tour est conçue pour allier harmonieusement élégance et fonctionnalité, répondant aux goûts et aux besoins sophistiqués de ses résidents. Le projet comprend un mélange d’appartements haut de gamme et de villas adjacentes, offrant une variété d’espaces de vie aussi luxueux que confortables. Chaque résidence de la tour est méticuleusement conçue pour offrir des équipements ultramodernes, de vastes espaces de vie et une vue imprenable sur la mer Méditerranée et le paysage pittoresque de Monaco.

ARCHI’JEUNES Concours d’idée Valode & Pistre

L’HÔTEL DU PARIS EXPRESS PARIS EXPRESS HOTEL

PERSPECTIVE DE LA SUITE

POSTE DE POLICE & PÔLE URBAIN

Ce projet ambitieux vise à concevoir un commissariat intégré dans un pôle urbain, alliant fonctionnalité de sécurité et intégration communautaire. Au cœur de ce défi se trouve la volonté de créer des espaces de travail efficaces pour les services de police tout en assurant une séparation claire des espaces publics pour maintenir la confidentialité et la sécurité nécessaires. Inspiré de principes architecturaux innovants, comme l’utilisation d’un escalier de style Chambord pour séparer stratégiquement les flux de circulation, ce projet se démarque par sa capacité à répondre aux besoins complexes d’un établissement de police moderne tout en favorisant l’interaction et la cohésion au sein du tissu urbain.

Le projet porte sur la conception innovante d’un commissariat intégré dans un pôle urbain dynamique. Ce défi architectural unique visait à harmoniser les fonctions de sécurité avec l’aspect communautaire du site, assurant une séparation fonctionnelle des différents services. Le projet reflète une approche réfléchie visant à répondre aux besoins complexes d’une infrastructure policière moderne au sein d’un tissu urbain vivant. Cette initiative a constitué une étape clé, démontrant la capacité à transformer des concepts architecturaux en solutions pratiques et intégrées, soulignant l’importance de l’innovation et de la créativité dans le développement urbain.

AÉRIENNE DE LA FACADE PRINCIPALE

Diagram

CENTRE D’ASSISTANCE SCOLAIRE & HANDICAPÉ

Le projet de l’Institut du Val Mandé représentait une opportunité importante pour concevoir des services destinés aux enfants et adultes handicapés, nécessitant une approche réfléchie et sensible. Ce défi architectural visait à combiner de manière transparente les fonctions de sécurité et l’intégration communautaire. Inspiré de principes architecturaux innovants, dont la séparation stratégique des différents services par un escalier de type Chambord, ce projet se démarque par sa capacité à répondre aux besoins complexes d’un établissement de police moderne tout en favorisant l’interaction et la cohésion au sein du tissu urbain.

Le site du concours à Saint-Mandé présentait des défis notables, notamment en matière d’accessibilité et de proximité avec les structures environnantes. Avec un budget de 5,4 millions d’euros, soit environ 3 600 euros par mètre carré, la gestion financière était un aspect critique du projet. Malgré les efforts, le budget initial a été dépassé de 18 %, soulignant le caractère intensif de la réalisation des rendus, perspectives et façades, qui a nécessité des heures supplémentaires et du travail le week-end.

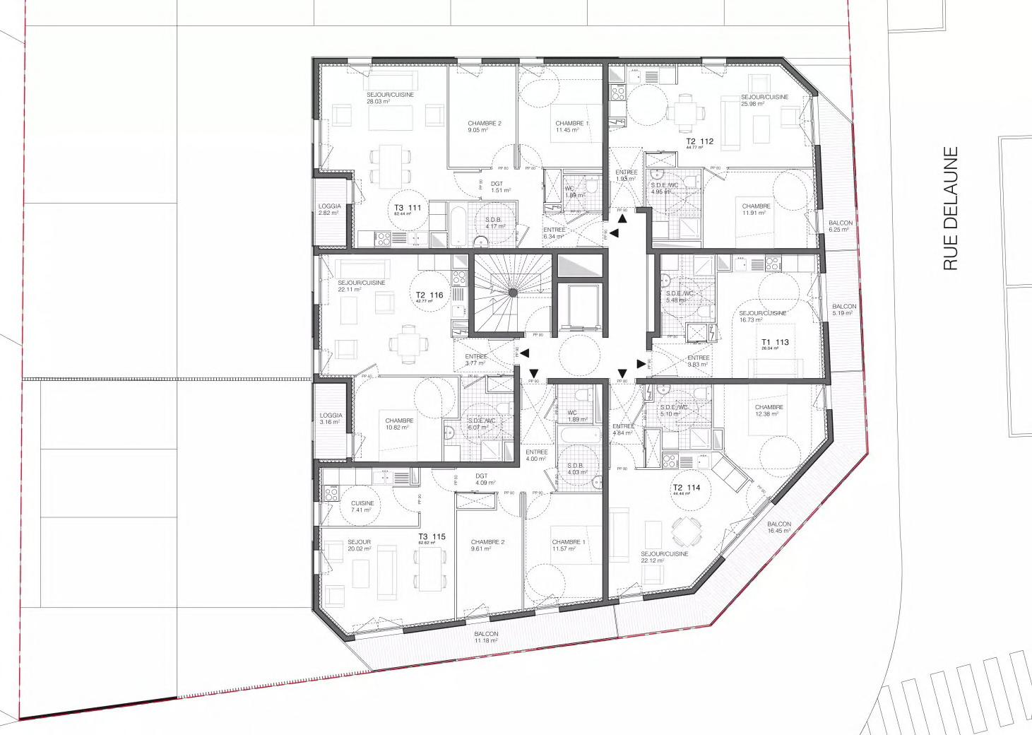
LOGEMENTS

Situé dans le cadre pittoresque de Villabé, près de Paris, ce projet résidentiel se distingue par sa situation exceptionnelle sur une sorte de presqu’île, immergée dans un environnement naturel et fleuri. Embrassé par les méandres de la rivière, ce lotissement offre à ses résidents une qualité de vie remarquable, alliant tranquillité et beauté naturelle.

Ce projet vise à créer un espace de vie harmonieux qui respecte et valorise son contexte unique. Les résidences sont conçues pour maximiser les vues sur le fleuve et les paysages verdoyants environnants, permettant aux habitants de profiter pleinement de la sérénité et de l’esthétique du site. L’architecture, bien que moderne et fonctionnelle, cherche à s’intégrer délicatement au paysage, avec des matériaux et des palettes de couleurs inspirées de l’environnement naturel.

PLAN MASSE

Passerelleexistanterénovée

Passerelleexistantenonrénovée

Passerelleexistantenettoyéeaccèsinterditparposedegrilleanti-intrusion

GROUND-FLOOR

LOGEMENTS

Situé à Villejuif, à deux pas du cœur animé de Paris, ce projet résidentiel atypique captive l’imaginaire par son volume singulier de forme carrée. Conçu pour s’harmoniser avec son environnement urbain tout en offrant une déclaration architecturale unique, ce développement présente une approche innovante de la vie en ville.

Le projet à Villejuif est conçu en pensant à l’habitant urbain moderne, offrant un mélange d’attrait esthétique et d’espaces de vie fonctionnels. La forme carrée du bâtiment n’est pas seulement un élément visuel ; il maximise l’utilisation de l’espace, offrant de vastes espaces de vie et permettant une sensation de cohésion communautaire au sein du développement. Le design met l’accent sur des lignes épurées et une esthétique minimaliste, reflétant un style de vie contemporain.

FACADE

ARCHITECTE DESA - HMONP

MAXIME SILVY

Turn static files into dynamic content formats.

Create a flipbook
Issuu converts static files into: digital portfolios, online yearbooks, online catalogs, digital photo albums and more. Sign up and create your flipbook.
SILVY ARCHITECTE HMONP by Maxime Silvy - Issuu