Design Portfolio_Sihui/Iris Chen

Page 1

DESIGN & OPTIMIZATION

DESIGN & PRACTICES

SHANGWEI CENTER 08 Renovation Project in a Full-Time Internship [Hakka Row House of an Urban Village] RESILIENT HUB Solar Decathlon 2021 Entry - Third Prize [Advanced Techniques and Green Occupation] PASSAGE OF ROOMS Work-Live Midtown Midrise Middoor [Conditioning of Environments and Functions] NEW LEAKY LIVING Design Thesis on Naturally-Ventilated Housing [Space Planning around Adaptive Thermal Comfort] PORTFOLIO CHEN, SIHUI IRIS 2012-2023 DESIGN & INNOVATION OTHER PROJECTS Other Practical or Academic Works 01 02 03 09 URBAN MODELLING BALCONY EFFECT MICRO-CLIMATES 04 05 06 District Planning on Comfort and Energy Use [Green Corridor Intervention Proposal] Optimizing Facades for Two Climates [Design Iterations of the Facade Element] Enhancing Mircro Outdoor Comforts [Integrated Environmental Analytic Approach]
Application for the Full-Time Position T: +1 (617) 6859890 E: irischensihui@gmail.com BUILDING SCIENCE 07 Works of 2022 Summer Internship at Payette [Performance of Healthcare and School]

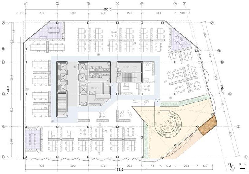
RESILIENT HUB

3rd Place in Solar Decathlon 2021

Instructor: Holly Samuelson

5-Member Teamwork

Individual Contribution: Research, Concepts, Programs, Structure, Interiors, Part of Daylight, Wind and LCA Analysis

Site: Seaport, Boston

Ground Floor Area: 23549 ft2

13F Office + 3F Retail/Public + 3F Parking

Street view from the south
01

CONTEXT STUDIES

The Seaport Area in Boston has a proposed master plan of an innovation district which will be mainly commercial and residential buildings. The neighborhood equipped with well-developed infrastructure and good walkability scores demonstrates the economic benefits for office building construction in the area. Meanwhile, it is directly exposed to flooding hazards. Future climate changes will make this issue even more important in local long-term development.

near term 1% annual flood extent

commercial transportation residential

commercial building area commercial land area

DISTRICT HIGHLIGHTS

The project connects the major neighbours - the Financial District in the North West, the Boston Convention Centre in the South, with prominent locations like the Seaport World Centre in close proximity.

red line green line

proposed location of microHUBs in master plan

DESIGN & INNOVATION
ENERGY EMISSIONS FLOODING HAZARDS WALK SCORE CONNECTIVITY COMMERCIAL AREAS COMMUNITY INFRASTRUCTURE SOUTH BOSTON SEAPORT AREA FINANCIAL DISTRICT FORT POINT CHANNEL SEAPORT WORLD TRADE CENTER CONVENTION AND EXHIBITION CENTRE

DESIGN CONCEPT - THE DUALITY OF BUILDING PERFORMANCES

The design concept of the new office paradigm is to combine both advanced building systems in technical aspects with a more natural or green spatial design for occupants’ experience. Both of them will work on emphasizing the adaptability of the building in its long-term operations.

GREEN EXPERIENCE

ADVANCED SYSTEMS

The building performce is designed based on a long-term plan, which means both the present and the future climate conditions need to be considered. It ensures the resilience to climate change, flooding, and future urban development.

CLIMATE RESILIENCE SPATIAL ADAPTABILITY PRESENT ANNUAL TEMPERATURE 2050 ANNUAL TEMPERATURE DESIGN PREMISE - CLIMATE ANALYSIS 0OC - 28OC HIGHER THAN 30OC
PERFORMANCE DRIVEN DESIGN ENERGY EFFICIENCY

TYPICAL FLOOR PLAN LAYOUT

BUILDING CORE CIRCULATION

SOLAR CHIMNEY CHIMNEY ABOVE ATRIUM ATRIUM PLANTERS MEETING ROOMS

N 0 5 10 25

DAYLIGHT AUTONOMY (%) FOR ATRIUM AND CORE

SECTIONAL ZONING

RAIN GARDEN

OFFICE FLOORS

RETAIL FLOORS PARKING FLOORS

SOLAR PANELS

SOLAR CHIMNEY

ATRIUMS ENTRANCE PLAZA

ELEVATED HIGHWAY+WALKWAY

DESIGN & INNOVATION
SUMMER ST. BOSTON WARF RD.

THE PUBLIC 'GREEN' LAYER - LANDSCAPE AND PUBLIC EXPERIENCE

PLAZA SPACE

The open area shared with the neighbouring building was developed allowing for maximum flexibility for access at all levels

CONNECTIVITY

The lower levels are fragmented for human scale and views. The balcony area allows maximised visual and pedestrian connectivity

PAVING allows water to percolate through the ground, feeding to the grey water system.

- LANDSCAPE AND RESILIENCY

NO FLOODING

NO FLOODING

EMBANKMENT

FLOODING STARTS

Basement floors: accessible for parking.

DURING THE FLOOD

AFTER THE FLOOD

Floodwater enters the basement. Barrier + velve: closed; bottom basement as a container Barrier: open; flood water: pumped out of the basement

DURING THE FLOOD

MOVABLE BARRIER RAMP

THE OFFICE 'GREEN' LAYER - INTERIOR ADAPTABILITY

The furniture-scale prototype design reinvents the conventional glass partition walls. While the wheels at the bottom of its structure allow for flexible spatial division, the open-type partitions will not block the natural light since the upper part of division is realized through porous greenery grown in the movable planters.

[FLEXIBLE INTERIOR DIVIDER] PARTITION + PLANTER + STORAGE

ALUMINUM FRAME + WOOD PANEL [BENEFITS]

POROSITY FOR DAYLIGHTING FLEXIBILITY ON WHEELS MORE

OPTIONAL

DESIGN & INNOVATION
OPEN TYPE
TYPE OPEN OFFICE MEETING ROOM
ENCLOSED
[STRUCTURE]
ENCLOSED ROOMS COLLECTIVE OFFICE SPACE INDIVIDUALIZED OFFICE SPACE
CONFIGURATION TYPICAL CONFIGURATION
CONFIGURATION
PANDEMIC

SYSTEMATIC DESIGN - ADAPTABLE ETFE FACADE SYSTEM

Advantages of ETFE Facades:

• ETFE can transmit up to 95% of light, more than standard glazing.

• ETFE cushions of 2 or 3 layers have higher insulating properties than typical glass.

• ETFE is 99 % lighter than glass.

• ETFE has a lower embodied energy.

• ETFE is cheaper to produce and install: it typically costs 40-50% less than glass structures.

• It is easier to maintain: because it is “slippery”, dust, debris and snow slide right off.

ADAPTABILITY TO TEMPERATURE DIFFERENCE

CHANGING PRESSURE FOR TRANSMITTING DIFFERENT AMOUNT OF SOLAR HEAT

1. ETFE WITH WINDOWS

SENSORS LINKED TO CENTRAL COMPUTER PRESSURE REGULATOR ALLOWS FOR MORE HEAT

COOLING HOURS HEATING HOURS

SW
0% STRAIN 57% STRAIN
ETFE CUSHIONS WITH TUNABLE SHGC GOLD COATED PDMS FILM BETEEN TWO OUTER ETFE LAYERS
VALVE OPEN: SYSTEM STAY INFLATED VALVE CLOSED COATED PFMS FILM ETFE LAYER WIRE MESH VALVE OPEN: SYSTEM MAINTAINS PRESSURE DIFFERENCE VALVE OPEN PUMP PRESSURE REGULATOR RESILIENCY TO CLIMATE CHANGE 2025 (PRESENT WEATHER DATA) 2080 (2080 WEATHER
DISTRICT DEVELOPMENT HEATING AND COOLING LOADS ARTIFICIAL LIGHTING LOADS
ETFE LAYER EXISTING ETFE FACADE ASSEMBLY
DATA)
*GREEN: ANALYZED ZONE PUMP PRESSURE REGULATOR
2. ETFE WITHOUT WINDOWS 3. GLASS CURTAIN WALL SE NE NW 1 2 1 3 4
4. GLASS CURTAIN WITH SHADING

SYSTEMATIC DESIGN

- HYBRID CLT AND STEEL STRUCTURAL SYSTEM

Advantages of Hybrid Structures

• Construction

The light CLT panels can reduce the size of concrete foundation volumes. This will bring down the embodied carbon and energy. It can also increase the speed of construction and reduce costs.

• Reusability

Steel frames and CLT panels both can be designed for deconstruction. With modular connections and standard structural grids, it can reach a maximized degree of reuse and recycling of the construction materials.

SYSTEM TYPE

FULL CLT: LOAD-BEARING WALL SYSTEM

FULL CLT: COLUMNBEAM SYSTEM

HYBRID: STEEL FRAME + CLT SLABS

HYBRID: STEEL FRAME + CONCRETE

DESIGN & INNOVATION
CLT FLOOR SLABS + STEEL FRAME CONCRETE CORE + STEEL FRAME SIMULATION MODELING
SIMULATION RESULTS (ATHENA)

SYSTEMATIC DESIGN - VENTILATION SYSTEM WITH SOLAR CHIMNEY

SOLAR CHIMNEY ZONING

4 ZONES SERVING DIFFERENT FLOORS

COOLING AND HEATING MODES WITH THE ATRIUM AND SOLAR CHIMNEY

RESILIENCY TO CLIMATE CHANGE: COMFORTABLE HOUR ANALYSIS

SPATIAL ZONING FOR SOLAR CHIMNEY TO AVOID BACKFLOW

OFFICE SPACE

SOLAR CHIMNEY

-- 2080 CLIMATE COMFOR HOURS +3%, HOT HOURS +8%

DESIGN STRATEGIES FOR INTERIOR COOLING/HEATING

AIR HANDLING UNITS

AIR CIRCULATION AND FUNCTION LAYOUT

CHILLDED BEAMS

ATRIUM

EXHAUST FAN

ATRIUM

CORE

OFFICE WORKSPACE (NV SUPPORTED SPACE)

NORTH-FACED FACADE (HIGHER WWR)

MINOR AIRFLOW

CHILLED BEAMS

DIRECT WIND (NW)

DIRECT WIND (WEST)

COOLING SLABS

SOLAR CHIMNEY

SOUTH-FACED ETFE FACADE

SYSTEMATIC DESIGN - ON-SITE ENERGY GENERATION SYSTEMS

PV CELLS ON THE SLOPE ROOF

TO FIND THE OPTIMAL ANGLE WITH RADIATION DOME ANALYSIS

GROUND HEAT SOURCE PUMP FOR INTEGRATED VENTILATION SYSTEM

NATURAL VENTILATION

TO CALCULATE PV DISTANCE

AT NOON OF

NATURAL VENTILATION WITH RADIANT CEILNGS

MECHANICAL VENTILATION

MECHANICAL VENTILATION WITH HEAT REVOVERY

MOVING TOWARDS NET ZERO

The design aims to provide both resiliency to climate changes of building systems and adaptability of occupants' uses. And the interactions between the two aspects are still under development. On the next stage, 'Occupant Experience', ' Comfort and Environmental Quality' supported by detailed designs of spaces and systems will be refined.

DESIGN & INNOVATION
[A] [C] [B] [D]
A. ALTITUDE WINTER SOLSTICE: 24O ; B. 33; C. 2M; D. 4M
249
2363
2637
GSHP GSHP GSHP GSHP 32.55O
1042 HOURS HOURS
HOURS
HOURS

NEW LEAKY LIVING

Housing for Double Delights

Individual Deisgn Thesis

2022 Fall Semester

Site: Sandy Springs, GA

Instructor: Elizabeth Wittaker; Holly Samuelson

Ground Floor Area: 1436 m2

Perspective at the street level 02

SITE: SANDY SPRINGS CITY CENTER, GA

- Winter wind mainly from the Northwest is the prevailing wind considering wind speed through a year. It is also the undesired one for natural ventilation.

- Considering buoyancy-driven ventilation, natural wind though a year is also unnessary and sometimes can compete with the stack air flow.

THERMAL COMFORT Sun Chart > 75°F Shade Needed < 68 °F Sun Needed Cold Comfortable Hot Adaptive Thermal Comfort Time (% in a year) Unconditioned Zone Test Conditioned Zone Test Comfort 44.8% Hot 21.4% Cold 33.8% Comfort 80.4% Hot 13.4% Cold 6.2% ANNUAL WIND Winter NW Wind JAN - DEC Calm Strong DEC JAN Annual Wind Speed <3 >20 (mph) 68 - 75°F Comfort
BY LOCAL CLIMATES SOLAR CHIMNEY GREEN FACADE [Buoyancy-Driven Ventilation] [Wind Protection] [Summer Shading]
City Center Proposed Site
City Center Area
INFORMED DEISGN CONCEPTS
GREEN AND WALKABLE CITY VISIONS
Existing

POST-PANDEMIC DESIGN TRENDS - CONNECTIONS TO THE OUTDOORS

Most popular special function room, % of respondents, data from AIA Home Design Trends Survey Q2 2021

% of respondents on popularity of exterior features ‘increasing’ minus % reporting ‘decreasing’, Q1 2022 compared to Q1 2021

‘Outdoor living spaces and home office as the most popular special function rooms’

PROTOTYPE PROPOSAL - THE NEW LEAKY LIVING

‘Emphasis on outdoors remains popular, with outdoor living spaces and blended indoor/outdoor spaces topping the list’

Designed to be highly-insulated and air-tight, with minimal energy losses

NEW VISIONS FOR DOUBLE DEIGHTS

Environmental Delights

+ Fresh Air with Controls

+ Day Light with Controls

+ Noise Insulation & Control

+ Biophlia Features & Access

Social Delights

+ Work-Life Productivity

+ Domestic Privacy

+ Spatial Flexibility

+ Community Connectivity

Divided into control zones, to maximize natural ventilation and personal comtrols

PASSIVE HOUSE 'LEAKY' HOUSE
DESIGN & INNOVATION MODULAR PALETTE 2’6’’ Grid CLT Wall Plumbing Furniture Sink Kitchenette Bathroom Bedroom Quietroom Workout / Yoga - Type AConditioning of Humidity, Temperature - Type BConditioning of Daylighting, Temperature - Type CConditioning of Acoustic, Temperature Velocity m/s 0 0.8
The Finely-Conditioned Rooms The Leakily-Conditioned Field Furniture with Radiant Heating/Cooling
CONVENTIONAL TO THE FLOATING Dynamic Space Visual/Circulation Paths Ventilation Potentials Enhance Optimize Conventional Unit Layout Re-Zoned Unit Layout
REINVENTING THE NON-NIGOTIABLES RE-ZONING THE APARTMENT
FROM THE

UNIT DESIGN VARIATIONS ADAPTED TO MICRO-CLIMATES

Unit layouts based on the flexible re-zoning of leaky fields and finely-conditioned rooms have been decided by the primary elements of micro-climates -- wind and sunlight.

Two of the final four unit types respond to the local demands for blocking winter wind, while two others are the ones without direct confrontation of the harmful winds and more concerned with welcoming daylight.

Respectively, they are also unit types with more divided leaky field spaces and the ones with one bigger living space.

FOUR FINALIZED UNIT LAYOUTS

DIVIDED UNIT TYPE - WIND BLOCKING EFFECT

OPEN UNIT TYPE - WIND PATHWAY EFFECT

North Facing West Facing ATRIUM-FACING CONTROL LAYERS North Facing West Facing Inner - PVC Curtain (acoustic, thermal) Outer - Choices of Wooden Layers (privacy, daylight, thermal)
N 1
*Tested with Winter Prevailing Wind from NW

SECTIONAL SCHEME PROMOTING NATURAL VENTILATION

Buoyancy-driven ventilation is fully promoted by the communal atrium space topped with a solar chimney.

The solar chimney with oprimized angle and orientation to receive solar radiation is also designed in a consistant geometry with the roof form following the local traditional hip roof language.

The ventilation of units on the top floor is supported separately by their own rooftop vents. It also offers a new work-live type of loft apartments over there.

Roof Form: Solar Chimney + Hip Roof

Stack Ventilation: Lower Floors - Solar Chimney; Top Floor - Roof Vent

Mezzanine Solar Chimney Vent Solar Chimney Glass

+ Solar Chimney (optimized angles)

+ Communal Space (circulation+events)

+ Biophilic Features (planters+balconies)

DESIGN & INNOVATION
2 1 2
ATRIUM

FACADE STUDIES - ITERATIONS

[1. Overhag Depth]

0, 1.75, 3, 4.25, 5.5ft

[2. Vertical Fin Depth]

0, 1.25, 2.5, 3.75, 5ft

[3.Vertical Fin Orientation]

0, -30, 30 degrees

Overhang Shading

[Outputs for 12 Orientations] Comfort Hour % + SDA + ASE (Summer and Annual)

RESULT EXAMPLE: NO SHADING TO 3-FT-DEEP OVERHANG

Adaptive Thermal Comfort Through A Year Black: Uncomfortable Hours White: Comfortable Hours

FACADE DESIGN FOCUSES

- Single-Zone Balcony (of different depths with wood shutters)

- Solid Vertical Fins with Optimized Angels (block winter winds + harmful solar radiation)

Winter Prevailing Wind

Adaptive Thermal Comfort Through A Year Black: Uncomfortable Hours White: Comfortable Hours

- Min Horizontal Shading (1.25ft)

- Overlapped Vertical Shading (1.25ft) (for wind protection)

SOUTH FACING

- Deep Horizontal Balcony (5ft)

- Short Vertical Shading (1.25ft) (higher efficiency of horizontal shading from simulation results)

- Double-Zone Balcony (protected corridor of different depths + exposed balcony)

- Leaky Vertical Fin with Optimized Angels (climber + trellis struc) (for winter sunlight + beneficial solar radiation)

Tested Unit 3ft-Overhang + Side Walls Vertical Fin Shading Simulation Contexts Vertical Fin Angles
Ave. Illuminance S W N 68.5% 63.9% 68.2% 48.7% 51.3% 50.7% Daylight (SDA) 1500 300 74.4% 67.5% 69.1% 55.9% 50.7% 51.3%
Ave. Illuminance Daylight (SDA) 1500 300
S E W N NORTH FACING
FACING EAST FACING
WEST

FACADE STUDIES - FINAL DESIGN

FIN DESIGN VALUES FROM THE LAST ITERATION

OCCUPIABLE FACADE OPTIMIZED FOR ALL ORIENTATIONS

- S to EShading from overhang to fin; Porosity from low to high

- NShading being minimized; Multiple layers of control

- WVertical fin with analyzed angels; Green climbers giving seasonal adaptations

DESIGN & INNOVATION OrientationFinAngle Comfort Annual Shading Impacts Comfort Jun-Aug Shading Impacts SDA Shading Impacts ASE Shading Impacts Mean Illuminance Shading Impacts -30 70.5% 0.82% 83.6% 3.04% 55.3% -0.66% 10.5% -2.63% 690 -20 30 0 69.7% 80.5% 55.9% 13.2% 710 30 69.0% -0.69% 77.2% -3.35% 55.3% -0.66% 13.8% 0.66% 672 -38 -30 67.8% 2.12% 72.1% 8.70% 52.0% -4.61% 16.5% -1.31% 650 -4 60 0 65.7% 63.4% 56.6% 17.8% 654 30 65.3% -0.41% 60.7% -2.67% 55.3% -1.32% 17.1% -0.65% 663 9 -30 65.8% -1.55% 61.0% -6.62% 52.0% -0.66% 7.9% 3.28% 550 -26 120 0 67.3% 67.6% 52.6% 4.6% 576 30 69.1% 1.74% 75.5% 7.88% 52.6% 0.00% 4.0% -0.66% 559 -17 -30 69.6% -1.04% 78.7% -4.49% 52.6% 0.00% 3.3% 0.66% 538 -14 150 0 70.6% 83.2% 52.6% 2.6% 552 30 71.2% 0.62% 85.8% 2.58% 52.6% 0.00% 2.6% 0.00% 536 -15 -30 68.3% 0.31% 73.3% 1.86% 48.7% -1.32% 5.9% 0.00% 464 -26 210 0 68.0% 71.4% 50.0% 5.9% 490 30 67.3% -0.78% 67.8% -3.58% 49.3% -0.66% 5.9% 0.00% 490 -1 -30 68.5% 1.23% 73.3% 6.84% 50.0% -0.66% 2.0% -1.32% 502 -27 240 0 67.2% 66.5% 50.7% 3.3% 528 30 66.3% -0.98% 62.3% -4.17% 50.7% 0.00% 6.6% 3.29% 494 -35 -30 67.3% -0.59% 67.3% -3.85% 49.3% -2.63% 11.8% -2.63% 568 0 300 0 67.9% 71.2% 52.0% 14.5% 568 30 69.5% 1.61% 78.9% 7.70% 52.0% 0.00% 13.2% -1.31% 590 22 -30 71.1% -0.86% 85.8% -4.03% 52.0% -2.64% 11.2% -2.64% 623 -49 330 0 72.0% 89.9% 54.6% 13.8% 671 30 72.6% 0.59% 92.3% 2.40% 55.3% 0.65% 10.5% -3.29% 667 -4 Selected
W S E N

URBAN LEAKY FIELD FOR DOUBLE DELIGHTS

- SOCIAL

DELIGHTS

The central axis idea in the master plan is kept. Connectivity between different types and scales of public space has been enhanced.

Multiple accesses to open space of smaller scales between building blocks are deisgned.

Ground-floor parking space is reserved with a similar area number as the original master paln, regarding economic feasibility of the project. It is divided into smaller zones in the peripheral area of the site.

PRIVATE PARKING

- ENVIRONMENTAL DELIGHTS

SUMMER THERMAL COMFORT

Summer outdoor thermal comfort has been greatly improved with urban leaky field design.

Comfort Hour: 36% Area > 40%: 24%

ANNUAL THERMAL COMFORT

Comfort Hour: 45% Area > 40%: 57%

(red lines: boundary for areas > 40%)

Annual thermal comfort hours are also increased.

Area calculations of new massing provide economic feasibility.

Building efficiency

Comfort Hour: 62%

Comfort Hour: 68%

(Darker colors stand for higher comfort %)

81% - 84%

Wall-to-floor 49%-54%

30 50
65
>75%
PUBLIC GREEN
The City Master Plan The New Proposal Massing in the Master Plan The New Massing Design

ADAPTED TO MICRO-CLAMATES WINTER WIND ANALYSIS

In the urban scale, facades and corners that will directly face winter wind has been identified via Eddy3D for making local design decisions.

TYPICAL FLOOR PLAN (PARTIAL ZOOM-IN )

Both unit types and facade designs on the wind-facing sides serve to block the wind. The southern facades have bigger open living room and more porous facade designs for daylight.

Open space of various scales and uses are designed.

DESIGN & INNOVATION N
VIEW FROM A UNIT Wind Corner Wind Facade

PASSAGE OF ROOMS 03

Work-live Midrise Housing Design

2021 Spring Option Studio at GSD

Instructor: Chris Lee

2-Member Teamwork

Site: Hackney Wick, London

Ground Floor Area:

Lot1 11409 sqm2; Lot2 9889 sqm2

Gross Indoor Area:

Lot1 7550 sqm2; Lot2 5605 sqm2

Perspective Standing in a Balcony

DESIGNING THE ‘PASSAGE’ WITH MIDDOOR PRECEDENT ANALYSIS

The gradation from deep fins in Aldo Rossi’s Gallaratese, sets up a common grid to accommodate space and creates a continuous experience of walking through a series of discrete spatial fragments. The idea of a passage of rooms is brought into our design for both public and private zones.

In Lacaton Vassal’s tour bois le pretre, the new mid-door facade improves performances of the apartments. Designing and conditioning this extended depth of room becomes part of the central target of our project. The interior gradation will serve environmental controls and work-live symbiotic relationships in the project.

THE DOMESTIC ‘PASSAGE’

Through the rethinking of the relationship between live & work, we interpret the events of everyday life in a series of fragments. Each programmatic zone has its own requirements for privacy, sunlight and ventilation.

By composing the zones as a continuous domestic passage, different gradations offer both environmental and functional buffer for each other without formal partition.

TYPICAL 2-B APARTMENT

DESIGN & INNOVATION
[PRECEDENT ANALYSIS]
Aldo Rossi, Gallaratese Crossing the Spans Aldo Rossi, Gallaratese Crossing the Spans Aldo Rossi, Gallaratese Crossing the Spans
[PRECEDENT ANALYSIS]
[WORK] [LIVE] [PASSAGE EXPERIENCE] [MID-DOOR SPACE] [URBAN] [DOMESTIC]
Aldo Rossi, Gallaratese Crossing the Spans

DOMESTIC PASSAGE - BEDROOM SPANS CONDITIONING FOR SPATIAL USES AND INDOOR COMFORT

Cross ventilation is promoted through the mid-door and the chimney void. The seasonal depth of facades varies, determined by the outermost enclosed layers.

These controlling layers provide conditioning for both flexible domestics uses and indoor comfort regarding daylight, temperatures, and ventilation.

SEASONAL SCENARIOS

In summer and winter, the simulation results present legible zoning transitions. The depth of mid-door provides heat mitigation. Hence, occupants will open up the middoor space for cooling and maximized cross ventilation in the summer. During the coldest days, all the control layers will be shut down.

Openning Full Connection
[SUMMER] Double
Double Closure Winter Garden chimney viod
[WINTER]
24.3 23.9 23.6 27.5 28.2 25.6 23.8 25.3 Unit: °C 19.9 19.7 18.3 17.4 15.5 18.6 20.4 19.8
Bedroom Span Section

In mid seasons, the temperature difference in the living passages are subtle, and the overall indoor temperature is moderate, which will promote different user potentials of facade controls

SIMULATION SETTINGS AND TESTS

The environmental simulation of Mean Radiant Temperatures and Daylighting are done by Climate Studio (Energy+). The mid-door space is set up without mechanical air-conditioning. And the construction materials

Individual Controls Tea Time Loggia
Individual Controls Widened Bedroom
[SPRING]
[FALL]
20.6 20.4 19.6 20.9 19.3 21.1 20.8 21.0 22.8 22.5 22.8 23.0 23.0 22.7 22.2 23.0 Daylight 19 3 credits 61.7 % sDA 0.0 % ASE 1170 avg lux Daylight 19 3 credits 61.7 % sDA 0.0 % ASE 1170 avg luxblinds open No
Objects Material Rvis Tvis Wooden Interior Wall Clading 17.4% 0.0% Wooden Interior Wall Clading 17.4% 0.0% Sungate 400 (2) on Starphire - Starphire (Argon) 13.5% 80.4% Wooden Floor Planks 10.9% 0.0% Wood Pine (whiter) 42.4% 0.0% Sungate 400 (2) on Starphire - Starphire (Argon) 13.5% 80.4%
dynamic shading has been modeled because:
Illuminance

URBAN MODELLING 04

Green Corridor District Planning Report Entry to BS2023 Conference

Class Work of MIT 4.433

3-member Teamwork, 2022 Spring Site: Sandy Springs, Atlanta

Design Tests on sDA

Combined Strategies: Stepping + Courtyard

BETWEENNESS ANALYSIS Major Population to Amenity Very Low Very High

Baseline / Existing

Proxy points for PPL numbers in a bigger area (1500m*1500m)

Highlighted areas with improved connectivity

New Proposal

PROPOSAL: 'GREEN CORRIDOR' with New Amenities 80% 10% 0% 30% 50% 60% 100% 70% 40%
A B C F D G E A B C F D G E CONNECTIVITY FOR LIVABILITY MASSING DAYLIGHT 0 100 50 Spatial Daylight Autonomy (sDA) Spatial Daylight Autonomy (sDA) 0 100 50
TYPE
COURTYARD TYPE STEPPING
Street View of the Green Corridor

OUTDOOR DESIGN STRATEGIES FOR IMPROVING THERMAL COMFORT

- Admitting the limited benefits of shading devices based on ClimateStudio simulation results

- Seeking the design potentials with blue and green surfaces of which environmental effect cannot be accurately simulated (water features and plants)

With Shading

URBAN FARMING STRATEGIES

- Food demand analysis and simulation in UMI

- Creating local food cycle from generation to distribution (restaurants and local markets)

- Designs with greenhouses of different types, on ground as outdoor publc feature, on rooftops or on underground floors of buildings.

- Designing with building massing to create more outdoor shaded spaces for the public RESTAURANTS

Food Distribution

Food Distribution

farmer’s market

DESIGN & OPTIMIZATION restaurants
outdoor comfort53% 0% area above comfort hour threshold
Highest
Total Site Consumers 9,533 Total Food Consumption (t/year) 692 Total Food Expenditure (k$/year) 2,886 Highest outdoor comfort Area above comfort hour% Annual Outdoor Comfort BASELINE 45% 0% Highest outdoor comfort Area above comfort hour% TREES + SHADING 53% 0% 0 0.6 1
FARMER'S MARKET TOTAL SITE CONSUMERS 9,533 TOTAL FOOD CONSUMPTION 692 t/yr TOTAL FOOD EXPENDITURE 2,886 k$/yr WATER USE Total Site Consumers 9,533 Total Food Consumption (t/year) 692 Total PROFIT (VS.BASELINE) -2,359 k$/yr Total Site Consumers 9,533 Total Food Consumption (t/year) 692 Total Food Expenditure (k$/year) 2,886 CARBON SAVINGS (VS. BASELINE) -550 tCO2eq/yr

OPERATIONAL ENERGY OPTIMIZATION

RETROFITTING WITH EXISTING BUILDNGS Existing Baseline Retrofit Iterations 1. Lighting System Higher LPD with LED 2. HVAC System Higher COP + Heat Recovery 3. Infiltration Lower ACH EXISTING TYPES Restaurant Commercial Mixed Use Office Mall Residential Comparisons for Retrofitting Total Energy (Normalized) 9% 21% 3% NEW BUILDING WITH ALL UPGRADES Total Energy (Normalized) 18% 9% 3% Operational Energy (kwh/m2) 31931 4201400 New Building with Existing Templates New Buildings with All Upgrades

EMBODIED CARBON OPTIMIZATION

TOTAL EMBODIED EMISSIONS

Considering the same structure for old and new buildings, old buildings with RCC structure contribute the most.

COST & CARBON COMPARISONS

NORMALISED EMBODIED EMISSIONS

For normalized values, smaller buildings with RCC structure contribute the most

Reduced energy loads of both existing and new

access across all buildings Higher walkability with green corridors Reduced carbon for energy supply

DESIGN & OPTIMIZATION 38% Reduced energy Loads in existing buildings
Loads in new buildings 1200
green space
37% Reduced energy
m2 added accessible
Resiliency 30% Reduced Carbon for Energy Supply 21% Reduced Cost for Energy Supply
COST ($) heat pump electricity export PV grid natural gas grid electricity 5321622 3005415 4402882 4292635 CARBON (kgCO2eq) Baseline PV Unrestricted PV Designed 15328187 5621161 11904105 10691133
Daylight
Embodied Emission (kgCO2e) 11690 6911490 Embodied Emission (kgCO2e) 150 245 grid electricity natural gas

BALCONY EFFECT 05

Optimization Design Research

Class Work of SCI6466 Optimizing Facades

3-member Teamwork, 2022 Fall

Comparative Studies in Chicago & Shenzhen

CHICAGO

Location: Illinois, United States

Psychrometric Chart (Annual Condition)

SHENZHEN

Location: Guangdong, South of China

Psychrometric Chart (Annual Condition)

Final Designs

Climate: Zone 5A - Cold/Humid

Average Annual Temperature: 10.2 °C | 50.3 °F

Rainfall: around 1075 mm | 42.3 inch per year

Annual Dry Bulb Temperature (0 - 30 celsius degrees)

Climate: mild, and generally warm and temperate;

Average Annual Temperature: 22.4 °C | 72.3 °F

Rainfall: around 1790 mm | 70.5 inch per year

Relative Humidity (0 - 100%)

Comfort or not (red: comfort; blue: not)

UTCI (0 - 40)

BALCONY TYPES & EFFECT

[Open Balcony]

- Overhang Effect

- Airflow Pattern Transformation

- Acoustic Shielding Effect

OPTIMIZATION PROCESS

1. DEFINING DESIGN PARAMETERS:

- Balcony Depth 1m, 2m, 3m

- Inner galzing ratio 0.2, 0.4, 0.6, 0.8

- Outer glazing ratio 0.7, 0.8, 0.9

- Orientations 0, 90, 180, 270

2. RUNNING COLIBRI

- Interior Zones Setup + Parametric Sliders

- Parametic Balcony + Parametric Shading

- Daylighting Simulation + Energy Simulation

3. LISTING ALL THE OPTIONS

P2_Inner WWR

P1_Depth

[Glazed Balcony]

- Greenhouse Effect

- Facade Tightness

- Acoustic Insulation

2 Conditioned Interior Zones (living room; bedroom)

1 Unconditioned Balcony Zone

P3_Outer WWR

4. SELECTIG ONE ORIENTATION

Differentiating designs for the 4 room orientations Outputs for Evaluation:

- EUI (+ PeakCool, PeakHeat)

- UDI (+ DA)

5. SETTING UP MIN UDI THRESHOLD

Useful Daylight Illuminance (UDI)

- hourly time values between 100 lux - 2000 lux

- Outside the range: not useful - % of the floor area meeting UDI: at least 50% of the time.

6. SELECTING THE LOWER EUI'S

- The optimized results list

- Making final decisions

a. Results with similar EUIs

b. Choosing the min UDIs

DESIGN & OPTIMIZATION
>>

CHICAGO - THE OPTIMIZED DESIGNS

COMMON FINDINGS

1. Open balcony type can only have comparable EUI with the closed type with a small inner glazing ratio -- Enclosed balcony is preferred

2. Smaller outer glazing ratio (horizontal change): It will decrease EUI, peakheat and peakcool; no great impact on UDI till 0.7. Under 0.7 (tested 0.6 and 0.5), it begins to greatly reduce UDI. -- The number 0.7 is the optimized.

3. Smaller inner glazing ratio(vertical change): It will decrease EUI, peak heat and peak cool, but great impact on UDI -- The medium 0.6 is the optimized

SOUTH

Increase balcony depth: low EUI, low UDI

3m: low EUI, high peak heat, low UDI; 1m: high EUI, WEST

Increase balcony depth: low EUI, low UDI

3m: unqualified UDI (<50%); 1m: higher EUI, high peak

-- 2m balcony: the optimized

EAST

(BLACK) + CASES WITHOUT BALCONY (GREY)

OPTIMIZED RESULTS

Increase balcony depth: low EUI, low UDI

3m: unqualified UDI (<50%); 1m: higher EUI

-- 2m balcony: the optimized

SHENZHEN - THE OPTIMIZED DESIGNS

DIFFERENTIATED RESULTS

OPTIMIZED RESULTS WITH SHADING (RED)

Shading Design

COMMONS

1. Easier to achieve higher UDI compared to Chicago

2. Open balcony type has smaller peak heat and peak -- Open balcony type is preferred

3. Reduce balcony depth: high EUI, low UDI But under 0.7 (tested 0.6 and 0.5), it begins to greatly -- The depth should be 3m when feasible -- Or extra shading can be the complementary for

3. Smaller outer openness ratio: decrease EUI, no big -- The number 0.5 or 0.6 can be the optimized.

4. Smaller inner glazing ratio(vertical change): It will decrease EUI, peak heat and peak cool, but -- The medium 0.4 or 0.6 can be the optimized

Orientation Depth InnerWWR OuteWWR PeakCool PeakHeat EUI UDI N 0 0 6 560 7 334 9 24 6 62 9 N 1 0 6 0 7 562 8 325 6 23 0 58 6 E 0 0 6 1382 5 334 4 26 5 58 5 E 2 0.6 0.7 910.4 385.6 23.7 56.1 S 0 0.6 613.2 334.4 24.0 54.6 S 2 0 6 0 7 591 9 385 6 21 8 56 2 W 0 0 6 1610 2 334 9 27 1 58 6 W 2 0 6 0 7 1179 3 385 6 24 0 55 9 Round Depth InnerWWR OuteWWR PeakCool PeakHeat EUI UDI 0 0.4 504.5 269.4 22.9 57.4 0 0.6 560.7 334.9 24.6 62.9 0 0 0 8 615 6 399 5 26 4 69 6 1st 1 0 6 0 7 562 8 325 6 23 0 58 6 2nd The optimized design is kept as the same Round Depth InnerWWR OuteWWR PeakCool PeakHeat EUI UDI 0 0.4 986.0 269.0 24.2 54.3 0 0.6 1382.5 334.4 26.5 58.5 0 0 0.8 1779.7 398.5 28.9 62.6 1st 2 0 6 0 7 910 4 385 6 23 7 56 1 2nd The optimized design is kept as the same Round Depth InnerWWR OuteWWR PeakCool PeakHeat EUI UDI 0 0.4 507.8 269.0 22.6 53.1 0 0.6 613.2 334.4 24.0 54.6 0 0 0 8 748 9 398 5 25 5 54 9 1st 2 0 6 0 7 591 9 385 6 21 8 56 2 2nd The optimized design is kept as the same Round Depth InnerWWR OuteWWR PeakCool PeakHeat EUI UDI 0 0.4 1191.4 269.4 24.7 55.2 0 0.6 1610.2 334.9 27.1 58.6 0 0 0.8 2022.2 399.5 29.5 62.4 1st 2 0 6 0 7 1179 3 385 6 24 0 55 9 2nd The optimized design is kept as the same
Design Orientation Depth InnerWWR OuteWWR PeakCool PeakHeat EUI UDI Hor/Ver Depth Dist N 0 0.6 626.0 66.6 26.9 67.5 N 3 0.6 0.7 482.7 43.0 25.0 75.5 N 2 0 6 0 7 464 5 43 7 24 9 66 5 Hor 0 2 0 75 E 0 0 6 1696 4 66 8 34 1 61 4 E 3 0 4 0 7 808 3 42 2 26 7 62 2
Shading
EAST SOUTH DEPTH: 2M INNER: 0.4 OUTER: 0.5 DEPTH: 2M INNER: 0.4 OUTER: 0.6 E 2 0 4 0 5 599 0 40 1 26 0 61 9 Hor 0 2 S 0 0 6 565 9 66 8 28 6 61 7 S 3 0 6 0 7 480 6 42 2 25 1 77 5 S 2 0 4 0 6 458 2 40 5 25 0 62 4 Ver 0 3 W 0 0 6 2055 5 66 6 36 1 65 9 W 3 0 4 0 8 1295 4 44 8 28 0 61 2 W 2 0 4 0 5 765 8 39 6 26 6 59 2 Hor 0 3 Shading Design Round Depth InnerWWR OuteWWR PeakCool PeakHeat EUI UDI Hor/Ver Depth 0 0 4 557 4 59 0 26 1 64 7 0 0.6 626.0 66.6 26.9 67.5 0 0 0.8 694.8 97.7 27.8 70.8 1st 3 0.6 0.7 482.7 43.0 25.0 75.5 2nd The optimized design is kept as the same. 3rd 2 0 6 0 7 464 5 43 7 24 9 66 5 Hor 0 2 Round Depth InnerWWR OuteWWR PeakCool PeakHeat EUI UDI Hor/Ver Depth D 0 0 4 1211 6 53 5 30 7 64 6 0 0 6 1696 4 66 8 34 1 61 4 0 0 0 8 2173 5 97 8 37 3 61 0 1st 3 0 4 0 7 808 3 42 2 26 7 62 2 2nd 3 0 4 0 5 780 3 40 4 26 1 59 4 3rd 2 0 4 0 5 599 0 40 1 26 0 61 9 Hor 0 2 Round Depth InnerWWR OuteWWR PeakCool PeakHeat EUI UDI Hor/Ver Depth 0 0 4 510 9 52 9 27 3 62 5 0 0 6 565 9 66 8 28 6 61 7 0 0 0 8 627 7 97 8 29 8 62 9 1st 3 0 4 0 7 460 3 42 2 24 9 63 1 2 0 4 0 7 463 8 41 7 25 3 69 3 2nd 3 0 4 0 6 452 6 41 6 24 7 60 7 2 0 4 0 6 460 5 40 9 25 3 67 9 3rd 2 0 4 0 6 460 8 40 8 24 9 65 1 Hor 0 2 458.2 40.5 25.0 62.4 Ver 0.3 Round Depth InnerWWR OuteWWR PeakCool PeakHeat EUI UDI Hor/Ver Depth 0 0.4 1496.6 52.3 32.3 65.6 0 0 6 2055 5 66 6 36 1 65 9 0 0 0 8 2609 1 97 7 39 6 67 2 1st 3 0 4 0 7 1295 4 44 8 28 0 61 2 2nd 3 0 4 0 5 961 4 43 7 27 0 55 0 3rd 2 0 4 0 5 765 8 39 6 26 6 59 2 Hor 0 3 E 2 0 4 0 5 599 0 40 1 26 0 61 9 Hor 0 2 S 0 0 6 565 9 66 8 28 6 61 7 S 3 0 6 0 7 480 6 42 2 25 1 77 5 S 2 0 4 0 6 458 2 40 5 25 0 62 4 Ver 0 3 W 0 0 6 2055 5 66 6 36 1 65 9 W 3 0 4 0 8 1295 4 44 8 28 0 61 2 W 2 0 4 0 5 765 8 39 6 26 6 59 2 Hor 0 3 Shading Design Round Depth InnerWWR OuteWWR PeakCool PeakHeat EUI UDI Hor/Ver Depth 0 0 4 557 4 59 0 26 1 64 7 0 0.6 626.0 66.6 26.9 67.5 0 0 0.8 694.8 97.7 27.8 70.8 1st 3 0.6 0.7 482.7 43.0 25.0 75.5 2nd The optimized design is kept as the same. 3rd 2 0 6 0 7 464 5 43 7 24 9 66 5 Hor 0 2 Round Depth InnerWWR OuteWWR PeakCool PeakHeat EUI UDI Hor/Ver Depth D 0 0 4 1211 6 53 5 30 7 64 6 0 0 6 1696 4 66 8 34 1 61 4 0 0 0 8 2173 5 97 8 37 3 61 0 1st 3 0 4 0 7 808 3 42 2 26 7 62 2 2nd 3 0 4 0 5 780 3 40 4 26 1 59 4 3rd 2 0 4 0 5 599 0 40 1 26 0 61 9 Hor 0 2 Round Depth InnerWWR OuteWWR PeakCool PeakHeat EUI UDI Hor/Ver Depth 0 0 4 510 9 52 9 27 3 62 5 0 0 6 565 9 66 8 28 6 61 7 0 0 0 8 627 7 97 8 29 8 62 9 1st 3 0 4 0 7 460 3 42 2 24 9 63 1 2 0 4 0 7 463 8 41 7 25 3 69 3 2nd 3 0 4 0 6 452 6 41 6 24 7 60 7 2 0 4 0 6 460 5 40 9 25 3 67 9 3rd 2 0 4 0 6 460 8 40 8 24 9 65 1 Hor 0 2 458.2 40.5 25.0 62.4 Ver 0.3 Round Depth InnerWWR OuteWWR PeakCool PeakHeat EUI UDI Hor/Ver Depth 0 0.4 1496.6 52.3 32.3 65.6 0 0.6 2055.5 66.6 36.1 65.9 0 0 0 8 2609 1 97 7 39 6 67 2 1st 3 0 4 0 7 1295 4 44 8 28 0 61 2 2nd 3 0 4 0 5 961 4 43 7 27 0 55 0 3rd 2 0 4 0 5 765 8 39 6 26 6 59 2 Hor 0 3 0 5 599 0 40 1 26 0 61 9 Hor 0 2 0 5 565 9 66 8 28 6 61 7 0 7 480 6 42 2 25 1 77 5 0 6 458 2 40 5 25 0 62 4 Ver 0 3 0 5 2055 5 66 6 36 1 65 9 0 8 1295 4 44 8 28 0 61 2 0 5 765 8 39 6 26 6 59 2 Hor 0 3 0 5 Shading Design OuteWWR PeakCool PeakHeat EUI UDI Hor/Ver Depth Dist 557 4 59 0 26 1 64 7 626 0 66 6 26 9 67 5 694 8 97 7 27 8 70 8 0 7 482 7 43 0 25 0 75 5 n is kept as the same 0 7 464 5 43 7 24 9 66 5 Hor 0 2 0 75 OuteWWR PeakCool PeakHeat EUI UDI Hor/Ver Depth Dist 1211 6 53 5 30 7 64 6 1696.4 66.8 34.1 61.4 2173.5 97.8 37.3 61.0 0.7 808.3 42.2 26.7 62.2 0 5 780 3 40 4 26 1 59 4 0 5 599 0 40 1 26 0 61 9 Hor 0 2 0 5 OuteWWR PeakCool PeakHeat EUI UDI Hor/Ver Depth Dist 510 9 52 9 27 3 62 5 565 9 66 8 28 6 61 7 627 7 97 8 29 8 62 9 0 7 460 3 42 2 24 9 63 1 0 7 463 8 41 7 25 3 69 3 0 6 452 6 41 6 24 7 60 7 0 6 460 5 40 9 25 3 67 9 0 6 460 8 40 8 24 9 65 1 Hor 0 2 0 25 458 2 40 5 25 0 62 4 Ver 0 3 0 5 OuteWWR PeakCool PeakHeat EUI UDI Hor/Ver Depth Dist 1496 6 52 3 32 3 65 6 2055 5 66 6 36 1 65 9 2609 1 97 7 39 6 67 2 0 7 1295 4 44 8 28 0 61 2 0.5 961.4 43.7 27.0 55.0 0.5 765.8 39.6 26.6 59.2 Hor 0.3 0.5 0 5 599 0 40 1 26 0 61 9 Hor 0 2 0 5 0 7 480 6 42 2 25 1 77 5 0 6 458 2 40 5 25 0 62 4 Ver 0 3 0 5 0 8 1295 4 44 8 28 0 61 2 0 5 765 8 39 6 26 6 59 2 Hor 0 3 0 5 Shading Design OuteWWR PeakCool PeakHeat EUI UDI Hor/Ver Depth Dist 557.4 59.0 26.1 64.7 626 0 66 6 26 9 67 5 694 8 97 8 70 8 0 7 n is kept as the same Hor 0 2 0 75 OuteWWR PeakCool PeakHeat EUI UDI Hor/Ver Depth Dist 1211 6 53 5 30 7 64 6 1696 4 1 4 2173 5 0 7 808 3 42 2 26 7 62 2 0 5 780 3 40 4 26 1 59 4 0 5 599 0 Hor 0 2 0 5 OuteWWR PeakCool PeakHeat EUI UDI Hor/Ver Depth Dist 510 9 565 9 66 8 28 6 61 7 627 7 97 8 29 8 62 9 0 7 460 3 42 2 24 9 63 1 0.7 463.8 41.7 25.3 69.3 0.6 452.6 41.6 24.7 60.7 0.6 460.5 40.9 25.3 67.9 0.6 460.8 40.8 24.9 65.1 Hor 0.2 0.25 458 2 40 5 25 0 62 4 Ver 0 3 0 5 OuteWWR PeakCool PeakHeat EUI UDI Hor/Ver Depth Dist 1496 6 52 3 32 3 65 6 2055 5 66 6 36 1 65 9 2609 1 97 7 39 6 67 2 0 7 1295 4 44 8 28 0 61 2 0 5 961 4 43 7 27 0 55 0 0 5 765 8 39 6 26 6 59 2 Hor 0 3 0 5 N 0 0 6 560 7 334 9 24 6 62 9 N 1 0.6 0.7 562.8 325.6 23.0 58.6 E 0 0 6 1382 5 334 4 26 5 58 5 E 2 0 6 0 7 910 4 385 6 23 7 56 1 S 0 0.6 613.2 334.4 24.0 54.6 S 2 0 6 0 7 591 9 385 6 21 8 56 2 W 0 0 6 1610 2 334 9 27 1 58 6 W 2 0.6 0.7 1179.3 385.6 24.0 55.9 Round Depth InnerWWR OuteWWR PeakCool PeakHeat EUI UDI 0 0 4 504 5 269 4 22 9 57 4 0 0 6 560 7 334 9 24 6 62 9 0 0 0 8 615 6 399 5 26 4 69 6 1st 1 0 6 0 7 562 8 325 6 23 0 58 6 2nd The optimized design is kept as the same Round Depth InnerWWR OuteWWR PeakCool PeakHeat EUI UDI 0 0 4 986 0 269 0 24 2 54 3 0 0 6 1382 5 334 4 26 5 58 5 0 0 0 8 1779 7 398 5 28 9 62 6 1st 2 0.6 0.7 910.4 385.6 23.7 56.1 2nd The optimized design is kept as the same Round Depth InnerWWR OuteWWR PeakCool PeakHeat EUI UDI 0 0 4 507 8 269 0 22 6 53 1 0 0 6 613 2 334 4 24 0 54 6 0 0 0.8 748.9 398.5 25.5 54.9 1st 2 0 6 0 7 591 9 385 6 21 8 56 2 2nd The optimized design is kept as the same Round Depth InnerWWR OuteWWR PeakCool PeakHeat EUI UDI 0 0 4 1191 4 269 4 24 7 55 2 0 0 6 1610 2 334 9 27 1 58 6 0 0 0 8 2022 2 399 5 29 5 62 4 1st 2 0 6 0 7 1179 3 385 6 24 0 55 9 2nd The optimized design is kept as the same Shading Design Orientation Depth InnerWWR OuteWWR PeakCool PeakHeat EUI UDI Hor/Ver Depth N 0 0 6 626 0 66 6 26 9 67 5 N 3 0 6 0 7 482 7 43 0 25 0 75 5 N 2 0 6 0 7 464 5 43 7 24 9 66 5 Hor 0 2 E 0 0.6 1696.4 66.8 34.1 61.4 E 3 0 4 0 7 808 3 42 2 26 7 62 2 560.7 334.9 24.6 62.9 0 7 562 8 325 6 23 0 58 6 1382 5 334 4 26 5 58 5 0.7 910.4 385.6 23.7 56.1 613 2 334 4 24 0 54 6 0 7 591 9 385 6 21 8 56 2 1610.2 334.9 27.1 58.6 0 7 1179 3 385 6 24 0 55 9 OuteWWR PeakCool PeakHeat EUI UDI 504 5 269 4 22 9 57 4 560 7 334 9 24 6 62 9 615 6 399 5 26 4 69 6 0 7 562 8 325 6 23 0 58 6 n is kept as the same OuteWWR PeakCool PeakHeat EUI UDI 986 0 269 0 24 2 54 3 1382 5 334 4 26 5 58 5 1779.7 398.5 28.9 62.6 0 7 910 4 385 6 23 7 56 1 n is kept as the same OuteWWR PeakCool PeakHeat EUI UDI 507 8 269 0 22 6 53 1 613.2 334.4 24.0 54.6 748 9 398 5 25 5 54 9 0 7 591 9 385 6 21 8 56 2 n is kept as the same OuteWWR PeakCool PeakHeat EUI UDI 1191.4 269.4 24.7 55.2 1610 2 334 9 27 1 58 6 2022 2 399 5 29 5 62 4 0 7 1179 3 385 6 24 0 55 9 n is kept as the same Shading Design OuteWWR PeakCool PeakHeat EUI UDI Hor/Ver Depth Dist 626 0 66 6 26 9 67 5 0 7 482 7 43 0 25 0 75 5 0 7 464 5 43 7 24 9 66 5 Hor 0 2 0 75 1696 4 66 8 34 1 61 4 0 7 808 3 42 2 26 7 62 2
Orientation Depth InnerWWR OuteWWR PeakCool PeakHeat EUI UDI N 0 0 6 560 7 334 9 24 6 62 9 N 1 0.6 0.7 562.8 325.6 23.0 58.6 E 0 0 6 1382 5 334 4 26 5 58 5 E 2 0 6 0 7 910 4 385 6 23 7 56 1 S 0 0.6 613.2 334.4 24.0 54.6 S 2 0 6 0 7 591 9 385 6 21 8 56 2 W 0 0 6 1610 2 334 9 27 1 58 6 W 2 0.6 0.7 1179.3 385.6 24.0 55.9 Round Depth InnerWWR OuteWWR PeakCool PeakHeat EUI UDI 0 0.4 504.5 269.4 22.9 57.4 0 0 6 560 7 334 9 24 6 62 9 0 0 0 8 615 6 399 5 26 4 69 6 1st 1 0 6 0 7 562 8 325 6 23 0 58 6 2nd The optimized design is kept as the same Round Depth InnerWWR OuteWWR PeakCool PeakHeat EUI UDI 0 0 4 986 0 269 0 24 2 54 3 0 0 6 1382 5 334 4 26 5 58 5 0 0 0 8 1779 7 398 5 28 9 62 6 1st 2 0 6 0 7 910 4 385 6 23 7 56 1 2nd The optimized design is kept as the same Round Depth InnerWWR OuteWWR PeakCool PeakHeat EUI UDI 0 0 4 507 8 269 0 22 6 53 1 0 0 6 613 2 334 4 24 0 54 6 0 0 0.8 748.9 398.5 25.5 54.9 1st 2 0 6 0 7 591 9 385 6 21 8 56 2 2nd The optimized design is kept as the same Round Depth InnerWWR OuteWWR PeakCool PeakHeat EUI UDI 0 0 4 1191 4 269 4 24 7 55 2 0 0.6 1610.2 334.9 27.1 58.6 0 0 0 8 2022 2 399 5 29 5 62 4 1st 2 0 6 0 7 1179 3 385 6 24 0 55 9 2nd The optimized design is kept as the same
Orientation Depth InnerWWR OuteWWR PeakCool PeakHeat EUI UDI Hor/Ver Depth Dist N 0 0 6 626 0 66 6 26 9 67 5 N 3 0 6 0 7 482 7 43 0 25 0 75 5 N 2 0 6 0 7 464 5 43 7 24 9 66 5 Hor 0 2 0 75 E 0 0 6 1696 4 66 8 34 1 61 4 E 3 0 4 0 7 808 3 42 2 26 7 62 2 E 2 0 4 0 5 599 0 40 1 26 0 61 9 Hor 0 2 0 5 S 0 0.6 565.9 66.8 28.6 61.7 S 3 0 6 0 7 480 6 42 2 25 1 77 5 S 2 0 4 0 6 458 2 40 5 25 0 62 4 Ver 0 3 0 5 W 0 0.6 2055.5 66.6 36.1 65.9 W 3 0 4 0 8 1295 4 44 8 28 0 61 2 W 2 0 4 0 5 765 8 39 6 26 6 59 2 Hor 0 3 0 5 Shading Design Round Depth InnerWWR OuteWWR PeakCool PeakHeat EUI UDI Hor/Ver Depth Dist 0 0 4 557 4 59 0 26 1 64 7 Orientation Depth InnerWWR OuteWWR PeakCool PeakHeat EUI UDI N 0 0 6 560 7 334 9 24 6 62 9 N 1 0.6 0.7 562.8 325.6 23.0 58.6 E 0 0 6 1382 5 334 4 26 5 58 5 E 2 0 6 0 7 910 4 385 6 23 7 56 1 S 0 0.6 613.2 334.4 24.0 54.6 S 2 0 6 0 7 591 9 385 6 21 8 56 2 W 0 0 6 1610 2 334 9 27 1 58 6 W 2 0.6 0.7 1179.3 385.6 24.0 55.9 Round Depth InnerWWR OuteWWR PeakCool PeakHeat EUI UDI 0 0.4 504.5 269.4 22.9 57.4 0 0 6 560 7 334 9 24 6 62 9 0 0 0 8 615 6 399 5 26 4 69 6 1st 1 0 6 0 7 562 8 325 6 23 0 58 6 2nd The optimized design is kept as the same Round Depth InnerWWR OuteWWR PeakCool PeakHeat EUI UDI 0 0 4 986 0 269 0 24 2 54 3 0 0 6 1382 5 334 4 26 5 58 5 0 0 0 8 1779 7 398 5 28 9 62 6 1st 2 0 6 0 7 910 4 385 6 23 7 56 1 2nd The optimized design is kept as the same Round Depth InnerWWR OuteWWR PeakCool PeakHeat EUI UDI 0 0 4 507 8 269 0 22 6 53 1 0 0 6 613 2 334 4 24 0 54 6 0 0 0.8 748.9 398.5 25.5 54.9 1st 2 0 6 0 7 591 9 385 6 21 8 56 2 2nd The optimized design is kept as the same Round Depth InnerWWR OuteWWR PeakCool PeakHeat EUI UDI 0 0 4 1191 4 269 4 24 7 55 2 0 0.6 1610.2 334.9 27.1 58.6 0 0 0 8 2022 2 399 5 29 5 62 4 1st 2 0 6 0 7 1179 3 385 6 24 0 55 9 2nd The optimized design is kept as the same
Orientation Depth InnerWWR OuteWWR PeakCool PeakHeat EUI UDI Hor/Ver Depth Dist N 0 0 6 626 0 66 6 26 9 67 5 N 3 0 6 0 7 482 7 43 0 25 0 75 5 N 2 0 6 0 7 464 5 43 7 24 9 66 5 Hor 0 2 0 75 E 0 0 6 1696 4 66 8 34 1 61 4 E 3 0 4 0 7 808 3 42 2 26 7 62 2 E 2 0 4 0 5 599 0 40 1 26 0 61 9 Hor 0 2 0 5 S 0 0.6 565.9 66.8 28.6 61.7 S 3 0 6 0 7 480 6 42 2 25 1 77 5 S 2 0 4 0 6 458 2 40 5 25 0 62 4 Ver 0 3 0 5 W 0 0.6 2055.5 66.6 36.1 65.9 W 3 0 4 0 8 1295 4 44 8 28 0 61 2 W 2 0 4 0 5 765 8 39 6 26 6 59 2 Hor 0 3 0 5
Shading Design
Round Depth InnerWWR OuteWWR PeakCool PeakHeat EUI UDI Hor/Ver Depth Dist 0 0 4 557 4 59 0 26 1 64 7 Orientation Depth InnerWWR OuteWWR PeakCool PeakHeat EUI UDI N 0 0 6 560 7 334 9 24 6 62 9 N 1 0.6 0.7 562.8 325.6 23.0 58.6 E 0 0 6 1382 5 334 4 26 5 58 5 E 2 0 6 0 7 910 4 385 6 23 7 56 1 S 0 0.6 613.2 334.4 24.0 54.6 S 2 0 6 0 7 591 9 385 6 21 8 56 2 W 0 0 6 1610 2 334 9 27 1 58 6 W 2 0.6 0.7 1179.3 385.6 24.0 55.9 Round Depth InnerWWR OuteWWR PeakCool PeakHeat EUI UDI 0 0.4 504.5 269.4 22.9 57.4 0 0 6 560 7 334 9 24 6 62 9 0 0 0 8 615 6 399 5 26 4 69 6 1st 1 0 6 0 7 562 8 325 6 23 0 58 6 2nd The optimized design is kept as the same Round Depth InnerWWR OuteWWR PeakCool PeakHeat EUI UDI 0 0 4 986 0 269 0 24 2 54 3 0 0 6 1382 5 334 4 26 5 58 5 0 0 0 8 1779 7 398 5 28 9 62 6 1st 2 0 6 0 7 910 4 385 6 23 7 56 1 2nd The optimized design is kept as the same Round Depth InnerWWR OuteWWR PeakCool PeakHeat EUI UDI 0 0 4 507 8 269 0 22 6 53 1 0 0 6 613 2 334 4 24 0 54 6 0 0 0.8 748.9 398.5 25.5 54.9 1st 2 0 6 0 7 591 9 385 6 21 8 56 2 2nd The optimized design is kept as the same Round Depth InnerWWR OuteWWR PeakCool PeakHeat EUI UDI 0 0 4 1191 4 269 4 24 7 55 2 0 0.6 1610.2 334.9 27.1 58.6 0 0 0 8 2022 2 399 5 29 5 62 4 1st 2 0 6 0 7 1179 3 385 6 24 0 55 9 2nd The optimized design is kept as the same
Shading Design
Orientation Depth InnerWWR OuteWWR PeakCool PeakHeat EUI UDI Hor/Ver Depth Dist N 0 0 6 626 0 66 6 26 9 67 5 N 3 0 6 0 7 482 7 43 0 25 0 75 5 N 2 0 6 0 7 464 5 43 7 24 9 66 5 Hor 0 2 0 75 E 0 0 6 1696 4 66 8 34 1 61 4 E 3 0 4 0 7 808 3 42 2 26 7 62 2 E 2 0 4 0 5 599 0 40 1 26 0 61 9 Hor 0 2 0 5 S 0 0.6 565.9 66.8 28.6 61.7 S 3 0 6 0 7 480 6 42 2 25 1 77 5 S 2 0 4 0 6 458 2 40 5 25 0 62 4 Ver 0 3 0 5 W 0 0.6 2055.5 66.6 36.1 65.9 W 3 0 4 0 8 1295 4 44 8 28 0 61 2 W 2 0 4 0 5 765 8 39 6 26 6 59 2 Hor 0 3 0 5 Shading Design Round Depth InnerWWR OuteWWR PeakCool PeakHeat EUI UDI Hor/Ver Depth Dist 0 0 4 557 4 59 0 26 1 64 7
T he Overall Facade Effect
Shading Design
DIFFERENTIATED RESULTS

EUI, low peak heat, high UDI peak cool

DEPTH: 2M

INNER: 0.7

OUTER: 0.6

NORTH

Deep balcony: high EUI, low UDI -- 1m balcony: the optimized

DEPTH: 1M

INNER: 0.7

OUTER: 0.6

Chicago in general peak cool in general

greatly reduce UDI. 2m big impact on UDI till 0.5.

great impact on UDI

ITERATIVE PROCESS

2ND ROUND - TESTING SMALLER OUTER OPENNESS RATIOS THAN 0.7

WEST & EAST:

Decreasing the outer openness ratio to 0.5 begins to greatly decrease UDI and also reduce EUI. -- 0.5 is the optimized number

SOUTH:

Dropping the openness ratio from 0.7 to 0.5 will generate small decrease on both EUI and UDI. For views or ventilation, it can be kept as 0.7 or 0.6.

NORTH:

Dropping the openness ratio from 0.7 to 0.5 will generate small decrease on both EUI and UDI. So considering views, ventilation and the original relatively low UDI(55+% with 0.7 openness ratio), it can be kept as 0.7.

2.5 ROUND - TESTING OUTER SOLID PART STARTING FROM THE TOP

Results show that this design approach wil hugely decrease UDI -- The original design method should be kept.

3RD ROUND - TESTING AN EXTRA SHADING LAYER

Testing both horizontal and vertical shading types considering the feasible depth in reality

DESIGN & OPTIMIZATION
2M 0.4 0.6 0 5 0 5 0 5 Dist 0 75 Dist 0 5 Dist 0 25 0.5 Dist 0 5 0 5 0 5 0 5 Dist 0 75 Dist 0 5 Dist 0 25 0.5 Dist 0 5 h Dist 2 0 75
NORTH WEST DEPTH:
INNER:
OUTER:
DEPTH:
INNER: 0.6 OUTER: 0.7
2M
0.4
0.5
1M
E 2 0 4 0 5 599 0 40 1 26 0 61 9 Hor 0 2 0 5 S 0 0 6 565 9 66 8 28 6 61 7 S 3 0 6 0 7 480 6 42 2 25 1 77 5 S 2 0 4 0 6 458 2 40 5 25 0 62 4 Ver 0 3 0 5 W 0 0 6 2055 5 66 6 36 1 65 9 W 3 0.4 0.8 1295.4 44.8 28.0 61.2 W 2 0.4 0.5 765.8 39.6 26.6 59.2 Hor 0.3 0.5 Shading Design Round Depth InnerWWR OuteWWR PeakCool PeakHeat EUI UDI Hor/Ver Depth Dist 0 0 4 557 4 59 0 26 1 64 7 0 0 6 626 0 66 6 26 9 67 5 0 0 0 8 694 8 97 7 27 8 70 8 1st 3 0 6 0 7 482 7 43 0 25 0 75 5 2nd The optimized design is kept as the same 3rd 2 0 6 0 7 464 5 43 7 24 9 66 5 Hor 0 2 0 75 Round Depth InnerWWR OuteWWR PeakCool PeakHeat EUI UDI Hor/Ver Depth Dist 0 0 4 1211 6 53 5 30 7 64 6 0 0 6 1696 4 66 8 34 1 61 4 0 0 0 8 2173 5 97 8 37 3 61 0 1st 3 0 4 0 7 808 3 42 2 26 7 62 2 2nd 3 0 4 0 5 780 3 40 4 26 1 59 4 3rd 2 0 4 0 5 599 0 40 1 26 0 61 9 Hor 0 2 0 5 Round Depth InnerWWR OuteWWR PeakCool PeakHeat EUI UDI Hor/Ver Depth Dist 0 0 4 510 9 52 9 27 3 62 5 0 0 6 565 9 66 8 28 6 61 7 0 0 0 8 627 7 97 8 29 8 62 9 1st 3 0.4 0.7 460.3 42.2 24.9 63.1 2 0.4 0.7 463.8 41.7 25.3 69.3 2nd 3 0.4 0.6 452.6 41.6 24.7 60.7 2 0 4 0 6 460 5 40 9 25 3 67 9 3rd 2 0 4 0 6 460 8 40 8 24 9 65 1 Hor 0 2 0 25 458 2 40 5 25 0 62 4 Ver 0 3 0 5 Round Depth InnerWWR OuteWWR PeakCool PeakHeat EUI UDI Hor/Ver Depth Dist 0 0 4 1496 6 52 3 32 3 65 6 0 0 6 2055 5 66 6 36 1 65 9 0 0 0 8 2609 1 97 7 39 6 67 2 1st 3 0 4 0 7 1295 4 44 8 28 0 61 2 2nd 3 0 4 0 5 961 4 43 7 27 0 55 0 3rd 2 0 4 0 5 765 8 39 6 26 6 59 2 Hor 0 3 0 5 S 3 0.6 0.7 480.6 42.2 25.1 77.5 S 2 0.4 0.6 458.2 40.5 25.0 62.4 Ver 0.3 0.5 W 0 0 6 2055 5 66 6 36 1 65 9 W 3 0 4 0 8 1295 4 44 8 28 0 61 2 W 2 0 4 0 5 765 8 39 6 26 6 59 2 Hor 0 3 0 5 Shading Design Round Depth InnerWWR OuteWWR PeakCool PeakHeat EUI UDI Hor/Ver Depth Dist 0 4 557 4 59 0 26 1 64 7 0 6 626 0 66 6 26 9 67 5 0 0 0 8 694 8 97 7 27 8 70 8 1st 3 0 6 0 7 482 7 43 0 25 0 75 5 2nd The optimized design is kept as the same 3rd 2 0 6 0 7 464 5 43 7 24 9 66 5 Hor 0 2 0 75 Round Depth InnerWWR OuteWWR PeakCool PeakHeat EUI UDI Hor/Ver Depth Dist 0 0 4 1211 6 53 5 30 7 64 6 0 0 6 1696 4 66 8 34 1 61 4 0 0 0 8 2173 5 97 8 37 3 61 0 1st 3 0 4 0 7 808 3 42 2 26 7 62 2 2nd 3 0 4 0 5 780 3 40 4 26 1 59 4 3rd 2 0.4 0.5 599.0 40.1 26.0 61.9 Hor 0.2 0.5 Round Depth InnerWWR OuteWWR PeakCool PeakHeat EUI UDI Hor/Ver Depth Dist 0 0 4 510 9 52 9 27 3 62 5 0 0 6 565 9 66 8 28 6 61 7 0 0 0 8 627 7 97 8 29 8 62 9 1st 3 0 4 0 7 460 3 42 2 24 9 63 1 2 0 4 0 7 463 8 41 7 25 3 69 3 2nd 3 0 4 0 6 452 6 41 6 24 7 60 7 2 0 4 0 6 460 5 40 9 25 3 67 9 3rd 2 0 4 0 6 460 8 40 8 24 9 65 1 Hor 0 2 0 25 458 2 40 5 25 0 62 4 Ver 0 3 0 5 Round Depth InnerWWR OuteWWR PeakCool PeakHeat EUI UDI Hor/Ver Depth Dist 0 4 1496 0 6 2055 36 9 0 0 0 8 2609 1 97 7 39 6 67 2 1st 3 0 4 0 7 1295 4 44 8 28 0 61 2 2nd 3 0 4 0 5 961 4 43 7 27 0 55 0 3rd 2 0 4 0 5 765 8 39 6 26 6 59 2 Hor 0 3 0 5 0 5 599 0 40 1 26 0 61 9 Hor 0 2 0 5 565 9 66 8 28 6 61 7 0 7 480 6 42 2 25 1 77 5 0 6 458 2 40 5 25 0 62 4 Ver 0 3 0 5 2055 5 66 6 36 1 65 9 0 8 1295 4 44 8 28 0 61 2 0 5 765 8 39 6 26 6 59 2 Hor 0 3 0 5 Shading Design WWR PeakCool PeakHeat EUI UDI Hor/Ver Depth Dist 557 4 59 0 26 1 64 7 626 0 66 6 26 9 67 5 694 8 97 7 27 8 70 8 0 7 482 7 43 0 25 0 75 5 as the same 0 7 464 5 43 7 24 9 66 5 Hor 0 2 0 75 WWR PeakCool PeakHeat EUI UDI Hor/Ver Depth Dist 1211 6 53 5 30 7 64 6 1696.4 66.8 34.1 61.4 2173.5 97.8 37.3 61.0 0.7 808.3 42.2 26.7 62.2 0 5 780 3 40 4 26 1 59 4 0 5 599 0 40 1 26 0 61 9 Hor 0 2 0 5 WWR PeakCool PeakHeat EUI UDI Hor/Ver Depth Dist 510 9 52 9 27 3 62 5 565 9 66 8 28 6 61 7 627 7 97 8 29 8 62 9 0 7 460 3 42 2 24 9 63 1 0 7 463 8 41 7 25 3 69 3 0 6 452 6 41 6 24 7 60 7 0 6 460 5 40 9 25 3 67 9 0 6 460 8 40 8 24 9 65 1 Hor 0 2 0 25 458 2 40 5 25 0 62 4 Ver 0 3 0 5 WWR PeakCool PeakHeat EUI UDI Hor/Ver Depth Dist 1496 6 52 3 32 3 65 6 2055 5 66 6 36 1 65 9 2609 1 97 7 39 6 67 2 0 7 1295 4 44 8 28 0 61 2 0.5 961.4 43.7 27.0 55.0 0.5 765.8 39.6 26.6 59.2 Hor 0.3 0.5 0.5 599.0 40.1 26.0 61.9 Hor 0.2 0.5 565.9 66.8 28.6 61.7 0.7 480.6 42.2 25.1 77.5 0.6 458.2 40.5 25.0 62.4 Ver 0.3 0.5 2055 5 66 6 36 1 65 9 0 8 1295 4 44 8 28 0 61 2 0 5 765 8 39 6 26 6 59 2 Hor 0 3 0 5 Shading Design WWR PeakCool PeakHeat EUI UDI Hor/Ver Depth Dist 557 4 59 0 26 1 64 7 626 0 66 6 26 9 67 5 694 8 97 7 27 8 70 8 0 7 482 7 43 0 25 0 75 5 as the same 0 7 464 5 43 7 24 9 66 5 Hor 0 2 0 75 WWR PeakCool PeakHeat EUI UDI Hor/Ver Depth Dist 1211 6 53 5 30 7 64 6 1696 4 66 8 34 1 61 4 2173 5 97 8 37 3 61 0 0 7 808 3 42 2 26 7 62 2 0 5 780 3 40 4 26 1 59 4 0 5 599 0 40 1 26 0 61 9 Hor 0 2 0 5 WWR PeakCool PeakHeat EUI UDI Hor/Ver Depth Dist 510.9 52.9 27.3 62.5 565 9 66 8 28 6 61 7 627 7 97 8 29 8 62 9 0 7 460 3 42 2 24 9 63 1 0 7 463 8 41 7 25 3 69 3 0 6 452 6 41 6 24 7 60 7 0 6 460 5 40 9 25 3 67 9 0 6 460 8 40 8 24 9 65 1 Hor 0 2 0 25 458 2 40 5 25 0 62 4 Ver 0 3 0 5 WWR PeakCool PeakHeat EUI UDI Hor/Ver Depth Dist 1496 6 52 3 32 3 65 6 2055 5 66 6 36 1 65 9 2609 1 97 7 39 6 67 2 0 7 1295 4 44 8 28 0 61 2 0 5 961 4 43 7 27 0 55 0 0 5 765 8 39 6 26 6 59 2 Hor 0 3 0 5

Outdoor Comfort Research and Design

Class Work of SCI 6382

Individual Work, 2022 Fall Sites: Chinatown, Boston

CLIMATIC CONSIDERATIONS Challenges and Potentials

From the temperature data of Boston, it seems that the mild summer of the city provides outdoor comfort most of the time. However, the UTCI chart in Ladybug begins to reveal the leigible thermal stress in its hottest days.

Breeze most often comes from the west and helps to cool down bodies in summer days. But the dense builing blocks in urban areas bring down the effectiveness of evaporative cooling. Concrete constructs have created heat island effect and make the micro-climates of urban communities worse than the data collected from the airport.

BOSTON

URBAN HEAT ISLAND EFFECT

July 29-30, 2019

Data: Partland State SUPR LAB

NOAA Climate.gov

Afternoon(3pm) UHI Temperature (F)

87 91 95+

BOSTON - HEAT-RELATED MORTALITY

Projected annual heat-related deaths per 100,000 population based on 33 global climate models and two greenhouse gas scenarios

CLIMATE IDENTITY

Sun Path

a. Annual (Ladybug)

b. Jun 21 (Climate Studio)

c. Dec 21 (Climate Studio)

Wind Rose

d. Annual (Climate Studio)

e. Jun-Aug 1pm-7pm (CS)

f. Dec-Mar 1pm-7pm(CS)

MICRO-CLIMATES 06
A C B
d a e b f c

CHINATOWN SITE A

- COMMUNAL BACK YARD

Visual Characters

- Planters and Trees on the two sides

- Vent outlets and AC facilities on one side of back walls

Speculated Problems

- Waste heat and stink from the outlets

- Lack of sunlight and ventilation

Surrounded by mid-rise commercial buildings, the site does not have enough radiation for most of the year. However, the summmer simulation also exposes the potential heat stress problem in the open space. With the heat generated by the mechanical outlets, the conditions in the hottest and coldest days will be more extreme.

Summer

Mechanical Systems

1. Waste Heat: Hot Air Convection

Dense Urban Layout

2. Limtied Cross Ventilation

3. Shaded Surfaces: Radiant Cooling

South-Facing Building Wall

4. Radiant Heating Road

5. Forced Convection

Winter

Dense Urban Layout

1. Shaded Surfaces with Low Solar Angles: Radiant Cooling

DESIGN SUGGESTIONS

Current analysis results have proved the extreme thermal performances of the site.

The first suggestion is to replace current fence around piping and outlets with higher green walls.

Vines in summer will function as buffer from the heat.

And roof canopy with reflective angled panels can help to reflect sunlight in winter and block strong radiation in summer.

DESIGN & OPTIMIZATION
1 5 2 4 1 3
ANALYSIS SUMMARY 300-450 550-700 1000-1200 450-650 450-600 moderate - strong strong - very strong Annual Radiation (Kwh/m2) Heat Stress Cold Stress slight - moderate slight strong - very strong slight - strong mdoerate - strong slight - strong WIND COMFORT
Winter
Summer
RADIATION AND THERMAL STRESS
SYNTHESIS

CHINATOWN SITE B - POCKET SQUARE

Visual Characters

- Completely public in a concrete jungle with public furniture

- Small pot trees are sparsly planted

Speculated Problems

- Potential exposure to both heat stress and cold stress due to the openess

- Noise pollution and air pollution generated by the traffic

The simulation of solar angles shows that the space open to the south is exposed adequae sunlight most of the daytime. With the UTCI graphs of the hottest days and the 4 division time of the year, it seems that the site does not have identifiable thermal stress issues. However, when we add back the concerns of materiality of the built environment, the real-life situation can be different.

ANALYSIS SUMMARY

SYNTHESIS

Connected Urban Outdoors

1. Forced Convection/ Cross Ventilation Road Pavement:

2. Low Albeto: Increased Urban Heat Island Small Tree Canopy

3. Limited Effect in Reducing Solar Radiation/ Evaporative Cooling/ West-Facing Building Wall

4.Exposed Surface to Sunlight: Radiant Heating

DESIGN SUGGESTIONS

The site is exposed to solar radiation in the most of its daytime. Although there is no identifiable thermal issues from UTCI simulation, the radiant heating from the unshaded wall and ground surfaces may lead to summer heat stress. Also, cross ventilation is effective in the site.

To control the wind velocity as breeze and also to reduce summer solar radiation, deciduous trees with high trunks can be planted on the site. And shading devices on the neighbor building wall can help to reduce radiant heating.

RADIATION AND THERMAL
1 4 2 1 3 500-600 450-550 600-700 550-600 700-800 750-850 Annual Radiation (Kwh/m2) Heat Stress Cold Stress slight - moderate slight slight - strong slight - moderate slight slight - moderate
WIND COMFORT
STRESS
Short Trees in FRP Pots Renovated Paint of Light Colors Stone Veneer Asphalt Road Paving

Visual Characters

- Intensely used by the local community

- A monument in the center; Tall deciduous trees on the parameter - Various types of fixed or flexible urban furtniture

Speculated Problems

- Harmful shading from the monument in the winter season

Tree canopies are effective in reducing solar radiation in the public space. The more open area has stronger exposure to solar radiation. The current simulation of sunlight shows that the space open to both south and west won’t have any urban shadow. More analysis on the afternoon time with sunrays coming from the west may help.

ANALYSIS SUMMARY

SYNTHESIS

Summer

Tree Canopy

1. Reduced Solar Radiation

2. Evaporative Cooling/ Isothermal Evaporation

3. Breeze through Trees: Forced Convection Monument

4. Thermal Mass: Store and release at Nights

5. Reduced Solar Radiation Road Pavement:

6. Low Albeto: Increased Urban Heat Island

Winter

Tree Canopy

1. Exposed Ground to Sun Monument

2. Shaded Ground: Radiant Cooling and Reduced Solar Radiation Road Pavement:

3. Low Albeto: Increased Urban Heat Island

WIND COMFORT

DESIGN SUGGESTIONS

Greenery and the monument protect the site from summer heat stress. Deciduous trees also expose the ground to sunlight in winter. But the monument shadow leads to cold stress. These issues should be discussed from the beginning of the urban planning. The potential remedy is to install outdoor radiant heating system under the park ground surface.

RADIATION AND THERMAL STRESS

DESIGN & OPTIMIZATION 1 5 4 6 2 1 3 1 2 3 1
CHINATOWN SITE C - PUBLIC PARK
750-800 500-600 300-450 750-850 slight - strong Annual Radiation (Kwh/m2) Heat Stress Cold Stress slight slight slight Summer Winter

BUILDING SCIENCE 07

Works from Summer Internship 2022

Building Science Team at Payette, Boston

Team Director: Andrea Love

FINDING SUMMARY

- The existing shading can reduce peak loads by 19% and cooling demands by 21%.

- The existing vertical shading is more effective than the existing horizontal. When the vertical has bigger projection on the façade, it decreases cooling demands more. When the vertical is facing S or N, it works best only in reducing peak loads.

- Glass retrofits can archive greater reductions in both peak loads and cooling demands

- To save energy use, a combined strategy with glass retrofits and new shading can be applied.

1. EMORY UNIVERSITY(RETROFITTING), GA - SHADING DESIGN ANALYSIS 0. NO SHADING 1. EXISTING SHADING 2. SOLID SHADING 3. EXISTING FIN FACING N/S 4. LOUVRE (1ft; 0.5ft) 5. SOLID FIN (4.4ft, 2ft) 6. GLASS SHGC 0.2
Peak Load Intensity Cooling Demand Intensity 126.8 Btu/(hr*sqft) 88.4 Btu/(hr*sqft) - 19% - 21%
- 19% - 19% - 33% - 37% - 22% - 27% - 21% - 25% - 62% - 62% - 55% - 55%
7. HORIZONTAL 2.5f t+ SHGC 0.2 Design Cases 155.6 Btu/(hr*sqft) 111.6 Btu/(hr*sqft)

1. SHGC 0.35

EUI Sum: 195

Cooling: 76

Heating: 48 (kwh/m2)

Summer Thermal Comfort PMV Ave: 2.26

1. 50% FRIT (SHGC 0.175)

EUI Sum: 183

Cooling: 53

Heating: 58

Summer Thermal Comfort PMV Ave: 1.95

3. EC GLASS (200w/m2 solar setpoint)

EUI Sum: 171

Cooling 45

Heating: 55

Summer PMV Ave: 1.59

PMV 0 3

- WINTER DOWNDRAFT DISCOMFORT (PPD) RADIANT DISCOMFORT (PPD)

Case 1: U-Value 0.35

Case 2: U-Value: 0.25

Temp(°F): out-14; in-72

Relative Humidity: 20%

Met 1.2; Clo: 0,85; Wind 10fpm; Wall R-22.4

DESIGN & CONSTRUCTION SUN WIND
2. DREXEL UNIVERSITY (NEW CONSTRUCTION), PA - GLAZING AND COMFORT ANALYSIS

- When the northern part of the massing has larger façades facing northwest, it will gain more solar benefits and have lower peak solar radiation.

- When it has shorter exterior walls facing northwest, the peak solar radiation can be smaller.

48.8% 46.8% 41.7% 41.2% 41.3% 32.0% 27.6% 23.5% 33.4% 28.9% 35.3% 36.6% 31.3% 29.6% 30.2% 26.0% 41.4% 37.1% 5.9% 12.8% N NW N NW
MASSING DESIGN OPTIONS N NW S SE NW NW OUTDOOR THERMAL COMFORT FACADE PEAK SOLAR LOAD DESIGN SUGGESTIONS Ave. Peak Radiation - 162 Ave. Including GF - 149 Ave. Peak Radiation - 158 Ave. Including GF - 130 Ave. Peak Radiation - 149 Ave. Including GF - 141 PEAK SOLAR RADIATION (Btu/ft ) HVAC SYSTEM SIZE, COST, AND QUALITY 0 66 110 176 220+ 0 110 220 (Btu/ft2) Annual Comfort Spring Comfort Summer Comfort Fall Comfort 25% 40% 50% more comfort
3. BRANDEIS UNIVERSITY (PHASE II), MA -
NW SE OPTION 1 OPTION 2 OPTION 3 PHASE II SITE PHASE I

SPATIAL CATEGORIZATION

DESIGN & CONSTRUCTION
4. RAGON INSTITUTE (CD STAGE), MA - MODEL AND REPORT FOR LEED DAYLIGHT
Daylight Autonomy Sunlight Exposure (300 lux) (1000 lux direct) FLOOR 3

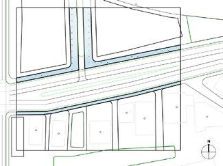
SHANGWEI CENTER 08

Renovation of a Hakka Row House and the Yard Practice in IDU Architecture, Shenzhen, 2016 Team: the Only Architect besides the Director Role in Team: survey, conceptual design, the whole architectural and landscape drawing sets, co-ordination with contractors

Program: Exhibition Space for UABB2017, Night School

Site: Shangwei Village, Shenzhen

In use for the exhibition in Dec, 2017

THE DESIGN SCHEME: DIALOGUE BETWEEN OLD AND NEW

CONSTRUCTION

START IN Oct.

IN PROCESS FOR 60 DAYS

EXHIBITION FROM 21ST, Dec

Based on the existing architectural heritage, the renovation follows the design principle of "light intervention". The design emphasizes 'heritage and contrast' ; from façades and partition walls to chimneys and hearth, the elements carried with historic memories and typological characters are preserved and maintained. In order to create new space uses for holding exhibitions and cultural activities, the new elements with new materiality emphasize functionality while they complete the confrontation and inclusion with the old.

DESIGN & CONSTRUCTION
OUTDOOR YARD
PROCESS NEW OLD
INDOOR CORRIDOR

SWEEP construction workshop in Kunming, Yunnan (2014)

CAMPUS DESIGN constuction finished in 2020, SUSTC, Shenzhen (BE HK Ltd) (2016-2017)

CAMPUS PLANNING 3rd prize, Sun Yat-Sen University, Shenzhen (BE HK Ltd.) (2017)

CAMPUS PLANNING 3rd prize, Sun Yat-Sen University, Shenzhen (BE HK Ltd.) (2017)

总体规划 总平面图 P P P P CLIENT Yuhang Planning Bureau 杭州市规划局余杭规划分局 PROJECT TYPE 项目名称 良渚文化艺术走廊城市设计,浙江,中国
OTHER PROJECTS 09

HOMELESS SHELTER Interior Modular Design with an NGO, Hong Kong (UEDL at HKU) (2018)

URBAN PLANNING EXHIBITION DESIGN final 3, of Shenzhen Planning Museum (UEDL at HKU) (2018)

ENERGY AND WATER EFFICIENCY/REDUCTION IN IHG HOTELS Consultation Proposal (AISA) (2021)

DESIGN & CONSTRUCTION GF Plan 1:800 Overall Image
MIX-USE COMMUNITY DESIGN Project's Schematic Design, Kaifeng (Aedas HK Ltd.) (2019)

Turn static files into dynamic content formats.

Create a flipbook
Issuu converts static files into: digital portfolios, online yearbooks, online catalogs, digital photo albums and more. Sign up and create your flipbook.