Architecture Portfolio

Page 1


“Harmony in the Highlands: Sustainable Remote Homes in Northern Pakistan”

Type :

Residence

Location :

Shishkhat Pakistan

Project Year : 2022

Description :

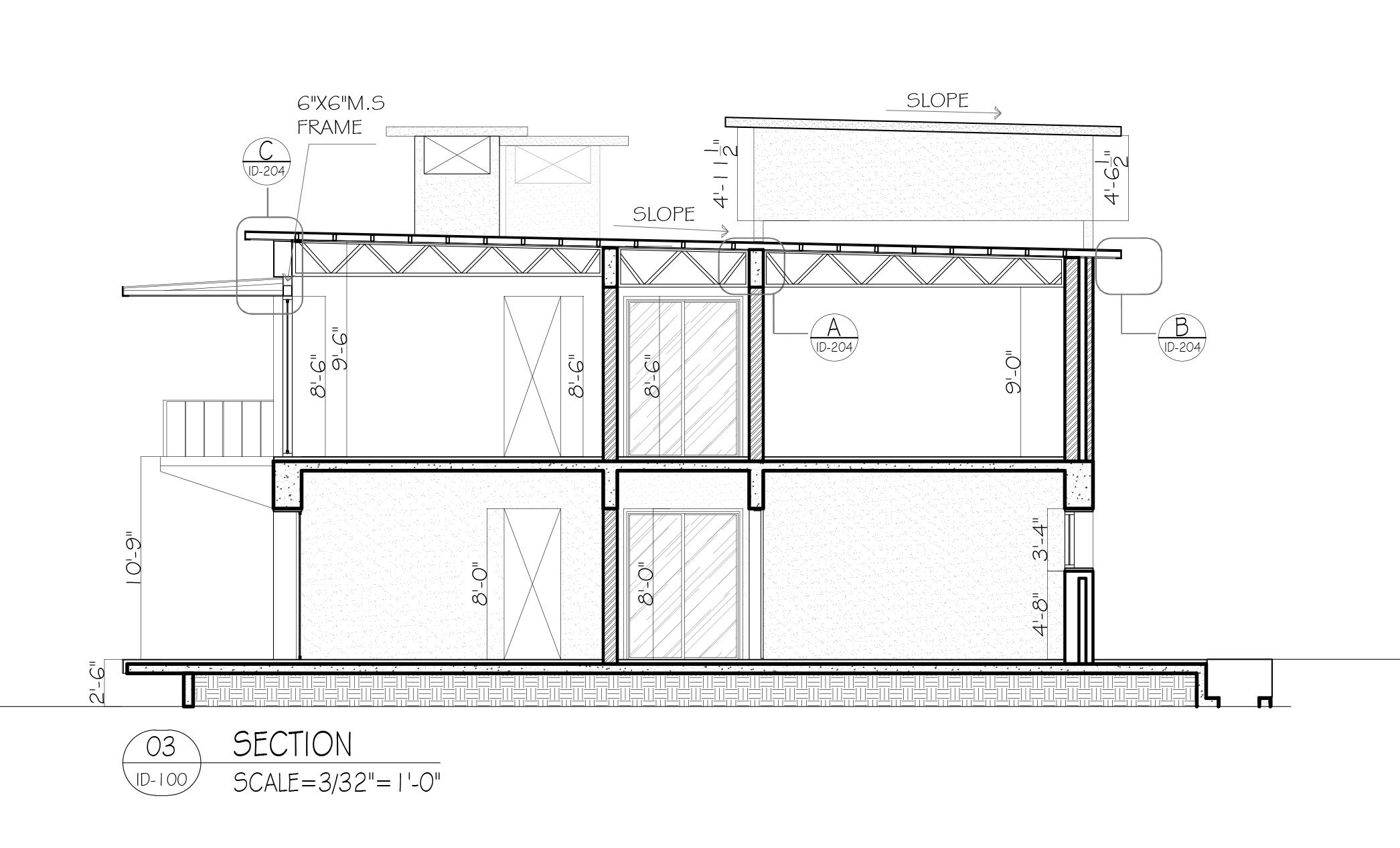
The project is a small, three-bedroom vacation house located in the remote northern area of Pakistan. It strikes a balance between traditional stone and woodwork and modern, functional design. The design maintains a minimal footprint and construction impact to support sustainability and respect the delicate nature of the site. Additionally, it addresses the extreme weather conditions of the area by incorporating solar-oriented design strategies to minimize energy use for heating.

The ground floor consists of a small lounge with a kitchenette and two bedrooms. The staircase for upstairs access is located outdoors.

The first floor consists of two small bedrooms with attached bathrooms. The design allows these bedrooms to function as separate units, accommodating guests or other purposes as needed.

The overall master plan lays out the proposed modular structures along an organic path that follows the narrow site. The site’s contours gradually descend towards the end of the property. The modularity and strategic glazing placement of the structures provide flexibility in their orientation, allowing for optimal alignment with the views and sun exposure.

“Tropical Minimalism: Beachside Resort Project in Karachi”

Type :

Resort

Location : Karachi, Pakistan

Project Year : 2023

Description :

The project is a small, minimal beachside resort in Karachi. The overall design approach focuses on dematerializing the architecture to an extent that the emphasis is on cleansing the mind and highlighting the beach views. All rooms are oriented towards the beach, and the lighting and overall atmosphere create an exclusive and cozy feel.

“Breath

of Fresh Air: A Sustainable Approach to Medical Care”

Type :

Hospital

Location : Karachi, Pakistan

Project Year : 2020

Description :

The project is a charity medical diagnosis center in the heart of Karachi. With a very limited construction budget, one of the primary design drivers was the incorporation of natural ventilation principles. To achieve comfortable indoor temperatures in Karachi’s hot, arid climate, the design features extensive use of screens, indoor and outdoor trees, and specific massing placement strategies. These elements work together to create naturally comfortable spaces..

Type :

Office Building

Location : Lahore, Pakistan

Project Year : 2022

“Elevated Views: Sustainable Urban Design for Lahore’s High-Rise Office Building”

Description :

The project is an office high-rise building located in a busy area of Lahore. The site is advantageously positioned, offering excellent views of Lahore and visibility from multiple points across the city. The building’s massing is specifically staggered and cut through at various points to maximize these views and ensure an aesthetically pleasing appearance from all perspectives. Sustainability was a key consideration in the design, leading to the implementation of a glazing system designed to repel heat and allow natural air to keep the glass surface cool.

Type : Residences

Location : Karachi, Pakistan

Project Year : 2020-continued

“Reimagining Urban Homes: Natural Cooling and Open Design in Karachi”

Description :

The project is a self-initiated design research endeavor exploring typical plot sizes in Karachi. It aims to envision what a typical house could look like if natural cooling principles are applied. Additionally, the designs promote a sense of openness with strong visual connections between floors to enhance livability. The project seeks to create homes that are not only naturally cool but also foster a better living environment.

Ground Floor
First Floor
Second Floor
Roof
First Floor Second Floor
First
“Backyard

Office:

Sustainable

Design with Repurposable Materials”

Type : Residence

Location :

Shishkhat Pakistan

Project Year : 2022

Description :

The project brief involved designing an office space in the backyard of an existing building, with a strong emphasis on reducing both carbon and financial budgets. This was accomplished through the strategic use of metal and assembly measures, ensuring that most building components have an extremely low carbon footprint or can be repurposed at the end of their lifecycle. The building’s structure is designed to be easily disassembled and repurposed, aligning with sustainability goals.

Drawings and Details

Turn static files into dynamic content formats.

Create a flipbook
Issuu converts static files into: digital portfolios, online yearbooks, online catalogs, digital photo albums and more. Sign up and create your flipbook.
Architecture Portfolio by sid ahmed - Issuu