Portfolio2024

Page 1

PORTFOLIO

SELECTED WORKS

2021-2024

PORTFOLIO VER.2024

ABOUT

sean sichong shan

0451838317

17 Royal Avenue Glenhuntly 3163

Educations.

Masters of Architecture

The University of Melbourne, Melbourne, (2021 - 2023)

Bachelor of Architecture

Monash University, Melbourne (2017 - 2019)

Secondary Education

Kardinia International College, Geelong (2014 - 2016)

Experience.

Auro Azuki Design & Construct Gold4Life Real Estate

Position: Project Coordinator & Architectural Designer

Location: Melbourne, Australia (2021 Aug. - Present)

Responsibilities:

• Concept design & 3d model (Facade & interior & landscape)

• Assist in TP drawings & construction documentations

• Material selection, specifications & construction cost estimating

• Marketing research & media advertisement (English & Chinese)

• Leading design meeting with clients & liaise with relevant subcontractors

• Incorporation of AI software in design (Midjourney & Chatgpt)

• Assist in construction managment & onsite quality control

Jishun Architectural Design Office (JSA)

Position: Fulltime Architectural Intern

Location: Shanghai, China (2019 Dec. - 2020 Feb.)

Responsibilities:

• Preliminary design & 3D modelling

• Documentation & presentation for city planning competition entry

• Production of construction drawing & plans

Achievements.

• Entry shortlisted for International architecture competition (Milan Navigli Canal Challenge in 2022)

• Awarded New Columbo Travel Grant to undertake Study Trip in China in collaboration with Turenscape Academy

• Selected for Venice Studio January, 2022 in collaboration with Sauerbruch Hutton (Berlin)

• Selected for Venice Studio July 2022 in collaboration with Bolles & Wilson (Berlin)

Software.

3D Sketchup / 3D Modelling

Autodesk Revit / Documentations

Rhinoceros / 3D Modelling

Grasshopper / Parametrics

2D

Hand drawing

Autodesk Autocad / Documentations

IMAGE & RENDERING

Enscape / Rendering & Simulations

Unreal Engine / Rendering & Simulations

Adobe Photoshop / Post-processing

Adobe Illustrator / Drawing Edit

Adobe Indesign / Publication Layouts

Agisoft Metashape

Cloudcompare

ANALYSIS & OTHERS

Climate Consultant QGIS

FirstRate5

Midjourney / Concepts & Rendering

Languages.

English / Native Chinese / Native Japanese / Beginner

References.

Acedemic & Professional avaliable upon request

P. 2 PORTFOLIO CV

CONTENTS selected works

Professional Works (PG 4-7)

Mausoleum of Rebirth (PG 8-11)

Design Thesis

Sanctum of Monolith (PG 12-17)

Studio Bodrum

Micro-Homes (PG 18-21)

Village Morphology

Miscellaneous (PG 22-29)

Collection of drawings, models & renders

P. 3 VER.2024 Contents

ENGAWA HOUSE

Professional Work (2024)

The Engawa house offers a modern interpretation of the traditional architectural element known as the "engawa," featuring a narrow veranda or corridor along the building's edge. The design prioritizes the seamless integration of interior and exterior spaces, guiding attention towards carefully curated scenery with each step and turn, creates a harmonious living environment where inhabitants can fully appreciate the surrounding landscape.

P. 4 PORTFOLIO Professional Work

In pursuit of a minimalist aesthetic, the Engawa House employs a combination of timber and precast concrete materials. Large double glazed windows not only provide access to the outdoor views but also create a sanctuary-like atmosphere within. This fusion of materials evokes a sense of Zen tranquility amidst the suburban setting.

The curated architectural cuts within the building volume serve practical functions, regulating temperature and airflow while providing natural ventilation and allowing sunlight to filter into the interior spaces, emphasizing the experiential connection with nature.

VER.2024 P. 5 ENGAWA HOUSE
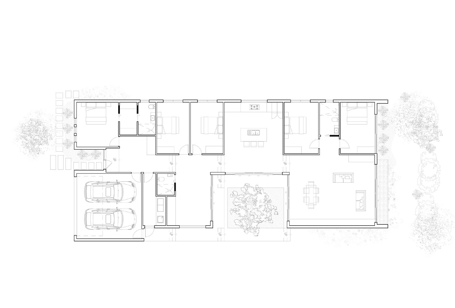
First Floor Plan (Above) Site & Ground Floor Plan (Below)

GARDEN HOUSE

Professional Work (2023)

Drawing inspiration from traditional Asian lifestyles, Garden house introduce a subtle yet captivating visual hierarchy where each step unveils varied perspectives, enriching visual experience and focal points. The courtyard, a versatile hub, maximizes sunlight utilization, anchored by a commanding tree at its center. Encircling this core are key functional spaces, arranged to encourage seamless movement and vibrant activity within the courtyard's dynamic stage.

P. 6 PORTFOLIO Professional Work

The incorporation of large panels of doubleglazed glass serves dual purposes: minimizes heat transfer while seamlessly blurring the boundaries between the interior and exterior spaces, fostering a strong connection with nature for the occupants.

To maintain a harmonious ambiance, the design employs a minimalist color palette, where warm timber accents juxtapose against the starkness of concrete and plaster backgrounds. This deliberate contrast creates a sanctuary-like atmosphere within an urban context, enhancing the overall living experience.

P. 7 VER.2024 GARDEN HOUSE
Site & Floorplan (Above) Long Section (Below)

MAUSOLEUM OF REBIRTH

Design Thesis (2022)

The importance of funeral architecture lies in its ability to console and reorganize society disturbed by death. The stigma of cemeteries as merely places for the dead cause it to be reduced into occasional spaces of reminescence.

“Mausoleum of Rebirth” encourage the creation of collective memory by offering sensory spaces for catharsis and personal belonging through the journey of aquamation & the act of horticulture, utilising the wastewater & ash remains from aquamation within the cultivation of plants.

Facilitating perceiving through cognition, The Architecture utilises repetition, variation, and intermission to create cognitive contours. From the realm of reality to the imaginary, the project explores the metaphysical quality of death as transitions, as well as the sensory experience for the living. Empowering people affected by grief through active participation, as well as providing emotional respite.

This thesis is based upon two questions:

- How does architecture transcend the physical to encompass symbolism, beliefs, and culture, to create more empathetic spaces for emotional healing and personal belonging?

- How can architecture facilitate nondenominational dignified death transition as well as addressing contemporary problem such as sustainability & spatial constraint?

P. 8 PORTFOLIO Design Thesis
VER.2024 P. 9 MAUSOLEUM OF REBIRTH
P. 10 PORTFOLIO Design Thesis
VER.2024 P. 11 MAUSOLEUM OF REBIRTH

SANCTUM OF MOLOLITH

Bodrum Studio (2021)

They are the “left-behind” elderly population in Bodrum...

They have resulted from migration trends, where much of the younger Turkish population have moved from country to city...

They have little family and emotional support to help deal with ageing and a rapidly changing Bodrum context...

They desperately cling on to their memories of the past and their traditional ways-of-life...

With order and intense atmosphere in stone, concrete and the overlay of natural vegetation, the project “Sanctum of Monolith” offers unique spaces for the elderly population in Bodrum to express and record their negative obsessions through the act of letter writing. ‘Rituals of Material Memory’ are explored within the architecture, culminating in the formal cremation of the letters.

The architecture seeks to facilitate the creation of unexpected and stimulating spaces where negative feelings and obsessions can “blossom” into hope & consolation......a place where physical & emotional growth overtakes constant decay.

P. 12 PORTFOLIO Studio Bodrum
VER.2024 P. 13 SANCTUM OF MONOLITH
P. 14 PORTFOLIO Studio Bodrum
VER.2024 P. 15 SANCTUM OF MONOLITH

PROCESS OF CATHARSIS

The process of “Letter Writing” as an act of catharsis were explored, by providing spaces where people can feel safe to express their innermost negative obsessions. The architecture becomes a crematorium of negative obsession, culminating in the formal cremation of the letters as a way of forgetting and letting go.

P. 16 PORTFOLIO Studio Bodrum
VER.2024 P. 17 SANCTUM OF MONOLITH

MICROHOMES

Village Morphology (2020)

Village Morphology proposes a co-housing and mixed use development for vacant site in Brunswick, a highly dense urban area in Melbourne. Introducing new kinds of housing types that address contemporary issues such as equality, affordability, sustainability and accessibility, leading to an overall improved urban environment yet remain unalienating to its surrouding context.

The design is a series of affordable co-housing projects that explores and reflects the complexity of the contemporary city and its people, as well as rethinking and providing alternate models of living within the highly dense urban area.

P. 18 PORTFOLIO Village Morphology

Psychogeographic mapping of personalised experiences within the Lower Brunswick road intersection. Analysising both quantitative and qualitative information, subjective and objective experiences such as sound, movement, smell etc. to understand the juxtaposition of interactions within the site.

VER.2024 MICRO-HOMES

RETIREMENT HOME FOR FOUR

Disability access is a major part of retirement home design. All rooms are surrounded by a gentle 1/10 spiral ramp, creating a sequence of horizontal displacement of experiences as people traverese between vertical rooms. The home rethinks the function of the ramp as not only a method of movement but a place of socialisation.

P. 20 PORTFOLIO Village Morphology

SANCTUARY HOME FOR ONE

The house for one use gridded plan and levels to create a fusion of different spatial qualities. Bluring the boundary between rooms by using levels instead of walls creates relativity between each room, enriching experiences in this highly dense living space.

VER.2024 P. 21 MICRO-HOMES

MISCELLANEOUS

A collection of drawings, models & renders (2019-2023)

P. 22 PORTFOLIO
ARTIFACTS OF MELBOURNE UNIVERSITY - Fineliner on Paper (2022) CHAPEL IN MELBOURNE CEMETERY - Colour Pencil on Paper (2022)
VER.2024 P. 23 Miscellaneous
ETERNAL WALLS - Capriccio, Folly, City (2021)
P. 24 PORTFOLIO Miscellaneous
RIPARIAN HABITAT _BIOSWELL AT NIGHT - Unreal Engine (2023)
VER.2024 P. 25 Miscellaneous
RIPARIAN HABITAT _ THE MORNING LIGHT - Unreal Engine (2023)
P. 26 PORTFOLIO Miscellaneous Birrarung Marr Edges - LiDAR Scanning (2023)
VER.2024 P. 27 Miscellaneous PROTRUSION - Cardboard (2019)
FISH CITY - Aluminium + Plaster (2019) CHAPEL OF SHADOWS - 3D Print (2021)
P. 28 PORTFOLIO Documentations
Revit Documentation of Casa Atrio Calton House (2019)
VER.2024 P. 29 Documentations
Revit Documentation of Casa Atrio Calton House (2019)

THANK YOU

Turn static files into dynamic content formats.

Create a flipbook
Issuu converts static files into: digital portfolios, online yearbooks, online catalogs, digital photo albums and more. Sign up and create your flipbook.