Professional Portfolio 2024

Page 1

PORTFOLIO

sl2453@cornell.edu

Shuqi Liu 2024

ACADEMIC WORKS

01 STAPLE OF ITHACA

620 S Aurora St, Ithaca, NY, USA Workforce Development Spring 2023 Group Project by Darien

The Staple of Ithaca represents an adaptive reuse initiative, repurposing the existing buildings of 13 and a portion residents. Three primary objectives guided the project’s approach. Firstly, it aims to educate by establishing a space decarbonization goals. Secondly, it seeks to enhance public awareness of the construction profession, addressing project aims to enhance circulation by addressing the significant elevation change of South Hill, facilitating easier

The project perceives itself as not only a fixture within its own premises but also as an integral component of its that functions as a public corridor amidst the workforce development facilities, it enables visual exposure to workforce brick-bordered areas, highlighting their significance, while rendering a welcoming environment Notably, the project

Darien Strickler & Shuqi Liu

Duration: 1 semester

portion of 14 from the former Morse Chain Factory into a workforce development center for Tompkins County space where both the current workforce and new trainees can acquire essential skills, aligning with Ithaca’s 2030 addressing the demand for skilled individuals in the area to support increased residential construction. Lastly, the easier access to the town center.

its surroundings, connecting various elements on personal, architectural, and site levels. By incorporating a mass workforce development activities for the public. These distinct masses are then visually emphasized through project prioritizes the preservation of existing structures and materials already onsite.

The workforce visual three ing

STAPLE OF ITHACA
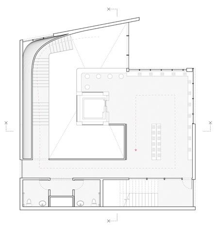
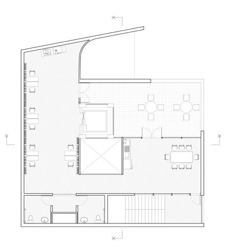
Itahca College Downtown Ithaca Exis�ng Building Workshop New Interven�on Public Circula�on + Educa�on Staple Auditorium + Cafeteria + Hanging Classroom Diagrams

“Staples” serve as communal spaces bridging the public sector, featuring reused corrugated cladding, with the workforce training area within the existing structure. They also act as vertical connectors, facilitating physical and visual communication between the floors. The existing structure is insulated to meet current standards. Integrating three distinct parts into a coherent system allows for independent operation, streamlining maintenance and reducenergy consumption.

Southwest elevation
Longitudinal section
First floor plan Second floor plan
Workforce training
Exterior view
exterior wall section
model
Cafe
Structure
Auditorium

02 WALLS OF PLAY

4800 Wayne Ave, Philadelphia, PA, USA Recreation Fall 2023 Group Project by Megan Mueller

The Walls of Play Project seeks to convert a sloped park area in Germantown, Philadelphia, into a recreational hub. and a historic Victorian building housing a boxing ring, along with a spacious undeveloped green space. Additionally, playgrounds in the schools to diverse play areas, planting zones, and family rooms on this site which locate within munity gardens, play facilities, public gathering spaces, and native species gardens.

The proposed design aims to seamlessly integrate visitors with the green infrastructure as they engage in various but repurposed to align with the new vision, while indoor facilities, outdoor courts, and different play elements

Mueller & Shuqi Liu

Duration: 1 semester

hub. Its objective is to enhance current amenities such as indoor and outdoor basketball courts, tennis courts, Additionally, it aims to enrich extracurricular offerings in nearby elementary schools, transitioning from basic blacktop within ten-minute walk. Furthermore, it endeavors to foster community engagement through initiatives like com-

various activities like playing, exercising, gathering, or simply navigating the site. Existing structures will be preserved will be incorporated within the system using a series of CMU walls.

02

WALLS OF PLAY

The experiences. initiatives areas,

Existing site condition Designed
Green play Green learning Green network

design begins by envisioning a network of flow that facilitate both recreational enjoyment and educational experiences. This network integrates green areas for entertainment with spaces for public learning about green initiatives. CMU blocks are utilized to construct a series of walls that bridge the indoor and outdoor recreational areas, simultaneously managing visibility levels from the community side downhill to the children’s zone uphill.

Designed site axon

The wall system is constructed on a grid aligned with the dimensions of CMU blocks, supplemented by a secondary space create a solid wall, providing a canvas for the renowned mural art of Philadelphia to be showcased on-site. while controlling visibility levels from the public areas to ensure the privacy and safety of the children’s play areas.

Site plan Longitudinal
Transverse

secondary grid based on the dimensions of existing structures. Within this framework, blocks enclosing the interior on-site. Meanwhile, other blocks are strategically rotated to form a semi-transparent barrier, promoting openness areas.

Longitudinal section
section
Transverse

03 BRAIDING

3873 Bailer Rd, Syracuse, NY, USA

Corn initiates our project. From the past to the future, we feel that the interaction between man and agriculture the elders, as both contribute to the preservation of Onondaga’s cultural intelligence

Hence, we organize the programs into three branches: residence for elders, display and storage for corn, and cultural interweave all groups of the community with each other and with corn, while blurring the boundaries between strategies, we decided to embed the agricultural branch into the land to enhance the relationship with Mother ing points, views are carefully selected and framed for occupants to engage with nature.

USA

Senior Center Fall 2022 Group Project by Rachel Wei & Shuqi Liu

Duration: 1 semester

agriculture generates the Onondaga culture. We saw the analogy between a storage space for corn seeds and a home for

cultural space for intergenerational activities. Adopting corn braiding as the spatial technique, we are hoping to interior and exterior, man-made and landscape. Inspired by the creation story and the traditional settlement Earth; and residences are designed to have more visibility over the landscape. Moreover, at the significant turn-

03
The center. Onondaga generations Historical settlement
BRAIDING
Concepts

analogy between corn and the community’s elders becomes our key concept to design this Onondaga senior center. Just as how the variety of corn seeds are being stored and cared for, elders are the living libraries of the Onondaga tradition, culture and knowledge that link to the previous generations and can be passed to the future generations by means of culture continuity and intergenerational activities.

Concepts
rib typology Workshop
Structural
Back side Assembly

Second

4 7 9 10 11 12 1 Reception / Welcoming Desk 2 Sta O ces 3 Living Room 4 Workshop 5 Library / Language Nest 6 Seed Bank 7 Community Kitchen 8 Assembly 9 Tiny Homes 10 Medical Rooms 11 Storage 12 Emergency Stays First Floor Plan 1/16’’ = 1’ - 0’’ A’ A B B’ C’ C 7 8 9 10 11 1 Reception / Welcoming Desk 2 Sta O ces 3 Living Room 4 Workshop 5 Library / Language Nest 6 Seed Bank 7 Community Kitchen 8 Assembly 9 Tiny Homes 10 Medical Rooms 11 Storage 12 Emergency Stays Second Floor Plan 1/16’’ = 1’ - 0’’
corridor
floor plan
Main
First
floor plan

Agricultural modules

Strawberry

Apple picker + Storage

04 AGRICULTURAL COMMUNITY

Based on the research on the development of industrial agriculture, the current agri-tech are optimized towards nology can’t apply to the complex mixed farming which aiming for a higher land productivity.(PRODUCTION

DRIVEN)
Harvester Sorting module (Human labor involved) Storage module (3 types of crops) picker
+ Storage

Re-imagine Agricultural System Spring 2022

Individual Project Duration: 1 semester

a less-labor agricultural system in order to save input on labor forces.(PROFIT DRIVEN) However, current techDRIVEN) This project is seeking a balanced system among economic profits, sustainability and field productivity.

towards

04 AGRICULTURAL COMMUNITY

RESEARCH

POLLUTION

POOR SOIL NUTRITION

LOSS OF BIODIVERSITY

FOOD SECURITY

DATA PRIVACY

LESS LABOR

WATER SAVING

FARMING OPTIMIZATION

This new system diversity, while tion with AI.

Auto-harvesting machine

Industrial site

Agricultural community

Industrial agriculture development Autonomous farm

system will shift the labor concentration to deal with complex mixed farming operation to increase crop density and while replacing the systematic operations such as field observations, monitoring, data collection, machine navigaIt will supplement the system with residence and amenity to reinforce the community.

Residence and supplemental amenity to serve the people working in the farm

Processed agricultural waste as construction material to continuously build the community

site

community master plan

Residential site

Non-perfect sphere

Observational platform

05 NOT A ZOO - RACCOON RUNWAY

Mundy Wildflower Garden, Ithaca, NY, USA

Animal Rehabilitation Center

This project is to design an animal rehabilitation center located in Ithaca, NY

Fall 2021 Group Project

It started by analyzing and extracting the abstract characteristics of octopus, and constructing a non-perfect sphere final step was to apply the strategies in a building scale to rehabilitate a local animal of New York state, which is

The project was not a zoo, but a runway for both human and raccoons which allows the circulation of both groups natural environment and provide a relatively comfortable space for raccoons. The project includes outdoor activity cafe for visitors.

Project by Jun Hu & Shuqi Liu Duration: 1 semester sphere. Then the essence of the sphere was applied to a pavilion size to create an observational platform. The is raccoon.

groups penetrate through each other in a playful way. Located in the garden, the center intends to blend into the activity zone, indoor dens and medical rooms for raccoon, the offices for staff as well as the education center and

Animal rehabilitation center
05
NOT A ZOO - RACCOON RUNWAY
Swimming & Washing Food Climbing & Jumping Needs for Subdivision
2nd Floor
Section A-A’
0 1 5 10 ft
Section B-B’ Section C-C’
0 1 5 10ft
Section D-D’

INTERLOCKING

Downtown Champaign, Illinois, USA Community Center Fall 2020 Duration: 1 semester

I envisioned this project as a microcosm of the interlocking relationship between Urbana and Champaign, as well as the urban and natural landscape.

06
Annual Sunlight Exposure (ASE) Spatial Daylight Autonomy (sDA)

REMONTA

Ronda Sant Pau 69, Barcelona, Spain Student Residence Spring 2020 Duration: 4 weeks

Inspired by the cathedrals in Barcelona, this project intends to offer various spacial atmosphere and level of privacy within a dense dorm facility. For residents, the places you stay signalize whether you would love to socialize or meditate

07

THE JOURNEY

Carrer

de la Llacuna 44, Barcelona, Spain Community Library Fall 2019 Duration: 4 weeks

With the two separate platforms wrapped and connected by a continuous ramp equipped books and seats, I envision that the library behaves as a journey of books that connects everyone in the community.

08
Reception/Magazine Session Audio Session + Service Reading Area + Service Children Session Senior Activity Session Group Discussion Room Professional Books N S 0m 4m 1st floor 2nd floor 3rd floor

SPIRAL

Carrer de Mila I Fontanals 4, Barcelona, Spain Small Publishing House Fall 2019 Duration: 4 weeks

Inspired by the idea of “knowledge” and the neoclassical neighborhood the project is located, I adopt the “spiral” pattern used in Greek temple as the basic plan strategy, guiding visitors through the public and private areas.

09
0 1 5m
Second floor
Third floor
Fourth floor First floor
Panel
Flooring Wood Mullion
Panel Glass
Gallery Office
Concrete
Wood
Triple
Bookstore
N S
Design
Workshop Roof Terrace Exhibition Hall

PROFESSIONAL WORKS

3 AFTER 50 YEARS A NEW SPECTACLE 10 RETHINKING CRABTREE VALLEY MALL 4 [Curated By] Abhishek Ambekar Kelly Clark Shuqi Liu Lizandro Marcial-Armas Summer Scholars 2022 HANBURY 5 CONTENTS 2022 Summer Scholar Program Project Preface History Timeline Demographics + Proximity Climate Projections Greenway System Flooding Traffic Flooding Stormwater Irrigation + Mitigation Resilient Landscape Design Approach Precedents The Vision Preliminary Research The Challenges Possible Solutions A New Spectacle pg. 12 pg. 25 pg. 41 pg. 51 pg. 00 RE THINKING PARKING DECKS Re-purposing Creekside Parking Deck Part of this effort would be to slowly remove the parking deck structure, to be able to be reclaimed by the ecology along Crabtree Creek. Vision 83 RE THINKING PARKING DECKS

3425

Glenwood Ave, Raleigh, NC, USA

Adaptive Reuse Research HANBURY SUMMER SCHOLAR

CVM History + Flooding Event Timeline

MALL
1957 1967 1971 1972 Mid 1970s 1984-85 1989 1992 1993 1994 1995 2007 2008 2010 2013 2016 2020 2018 1996 2006 2019 2022 The site owned by Kidd Brewer was zoned for a shopping center The property and plans were traded to Plaza Associates, a group aiming to form newest shopping complex in the south A convenience center near the shopping center opened The courtyard (a mall within mall area) installed above G.C. Murphy Facing more competition (vs. Cary Towne Center) Sears closed The shopping mall opened in Aug 1972 The mall remodeled including adding specialty stores and food court at the court, and removing the fiberglass fountain The courtyard renamed into thWe pavilion and promoted The convenience center promoted Major expansion started Anchors: Belk, Sears, Miller & Rhoads, Thalhimer’s Private police force (unarmed, able to arrest) Murphy, Miller & Rhoads, Piccadilly closed Thalhimer’s became Hecht’s A 40*110ft section of parking deck collapsed 3 months after rebuilt Sears became small shops connected to the new Hecht’s Former Hecht’s became Lord & Taylor Hurricane Fran flooded the first floor, a few stores closed for 2 months Lord & Taylor closed Hecht’s became Macy’s Lord & Taylor lower level became more stores + H&M Lower level parking & small part of main building flooded March: Lower level parking & small part of main building flooded July 16: Creek rose 8ft, road surrounding the mall closed, parking lot flooded Sears closed 2 anchors remaining: Bulk and Macy’s A new proposal (not start): Sears became a 30 story tower including retails, offices and hotels Crabtree special police became unarmed private security through Professional Security Consultants Ready to be sold Mall main entrance rebuilt New parking deck east of Belk completed Lord & Taylor upper level became Belk Men’s Store 3 restaurant added to the deck The Second Renovation June: Tropical Storm Alberto flooded lower level parking & bottom level anchor store Main Construction Security Force CRABTREE VALLEY MALL HISTORY FLOODING HISTORY 15’ 20’ 22’ - GLENWOOD AVE. FLOODS 18’ WATER ENTERS MALL 14’ LOWER PARKING AREAS FLOOD FLOOD DATA UNRELIABLE FOR YEARS 1973-96 HURRICANE DANNY 1997 HURRICANE FLOYD 1999 HURRICANE DENNIS 2005 TS KYLE 2002 TS DENNIS 2000 UNNAMED UNNAMED HURRICANE FRAN 1996 TS ALBERTO 2006 TS HANNA 2008 TS ANDREA 2013 UNNAMED HURRICANE MATTHEW 2016 UNNAMED HURRICANE MICHAEL 2018 TS ETA 2020 25.28’ 27.69’ 27.28’ 16.79’ 21.5’ 18.45’ 15.52’ 23.77’ 18.47’ 19.51’ 20.76’ 22.70’ 22.32’ 16.23’ CRABTREE VALLEY DEVELOPED 1972 SHELLEY LAKE & LAKE LYNN BUILT FOR FLOOD CONTROL 1975, 1976 LAKE CRABTREE BUILT 1989 GREENWAY PATH BUILT 1999 BOTTOM OF CREEK GREENWAY PATH FIELD MARKERS REPRESENT FLOODS WITH CRESTS ABOVE 20’ FLOOD RESILIENSY PROGRAMS Site History
RE THINKING PARKING DECKS Vision Re-purposing Glenwood Parking Deck 91 The Glenwood Parking Deck area would be primary reclaimed by the pedestrian, to enhances the main approach into Crabtree valley mall. Part of phase would to start minimizing the amount of parking on the top level of the deck and repurpose it for pedestrian plaza, green roofs and permeable surfaces. Re-purposing Glenwood Parking Deck ideation

OTHER WORKS

MODEL

11
Structural model by Melanie Chu, Rachel Wei & Shuqi Liu

DRAWING

12

JEWELRY

13

Turn static files into dynamic content formats.

Create a flipbook
Issuu converts static files into: digital portfolios, online yearbooks, online catalogs, digital photo albums and more. Sign up and create your flipbook.