Portfolio

Page 1


INTERIOR ARCHITECTURE PORTFOLIO

2020-2023 works

Graduate of Interior Architecture

Presented by: Shun Lai Thiri

P R O F I L E

I am happy to showcase my portfolio, consisting of several works I have done over the years I have worked my full capability and best on different assignments/opportunities given to me for their individual purpose and has explored other remarkable precedents I am always completely invested in the design process which gradually gets developed into a space, and the significance of interior architecture impacting the ways individuals move and interact within a space

More importantly, I am passionate about creating distinct spaces which has the ability to create a special atmosphere

Foundation Studies for university

Bachelor of Design in Interior Architecture

| 2 0 2 2

Working closely with a small team of peers for wayfinding purposes across the whole space

Collaborating with other peers and supervisors to come up for the design of wayfinders and signage

Making sure that information is accurate and consistent throughout the event space

Rhino

Auto CAD

Revit

Archicad

Adobe Illustrator

Adobe photoshop

V-ray

Twin motion

Rhino render Adobe indesign

| 2 0 2 3

Groundshift (name of our exhibition box) - initiating conceptual idea and theme for part of the exhibition show with peers from different fields including Architecture and Landscape Architecture

Proposing details of display design and the idea of using architectural models

Taking part in the display process from beginning to end of the show

i c i p a n t

J u l y | 2 0 1 5

Design Studio Spatial Agency

01. BOMO Residence (2023)

Bathhouse design

02. Sento (2023)

03. Bar Newtown (2022)

Communication and Construction : Bar + Restaurant renovation design

04.

Case Study House in Sydney

Stahl House in Sydney

05. Glaze Exhibition Design

06. Encapsulated

Marketplace for Design Studio Major project (2023) (2022) (2023)

| BOMO Residence

BOMO residence is a residential building designed for a site given to us in Nowra, Australia. Nowra and our designated site is one that has a rich history and strong ties to the culture and the region. The residential building is aimed to be located around the lightning tree, which holds a large significance to the residents of the area. The projects allows the people to keep close to not only the lightning tree but also to connect with one another on a single shared wooden decking. The spatial journey introduces the visitors on site to view the tree first while slowly entering into the residential space, which embrace large hydraulic windows, specially integrated for the wide perpsective view of the place and social interactions.

Sento is a project inspired by the idea of traditional public Japanese bathhouses. The gender specific space will be used as a mean for users to socialize as well as bathe in a communal setting. The bathhouse is a monochromatic space which puts visitors into a futuristic setting. Across the space, the lighting conditions remain consistent, with the exception of the brightly lit pool, which will be the centre piece of the space.

Reflectivity plays an important role in this experience for people in the space, and it is a physical manifestion of the self-reflection that will take place in the space.

KAGAMI “ The changing rooms ”
02 | Sento
a. Rain Shower
b. Recessed Linear Light
c. Hanging Glass Pendant Ceiling Light
d. Berkeley Dimmable LED Downlight
e. 1200mm x 1200mm Grey Stone Look Porcelain Tile
Shower Space
Section of the spatial transition across ‘Sento’

a. Ceiling Deck

b. Top Disc

c. Door Wing

d. Glass Door Panel

e. Steel Frame

f. 6mm Axolotl Glass Panel

g. Curved Glass

h. Top Rail

i. Door Lock g.

The Entrance into Sento, a bathhouse where reflectivity intertwines body and mind

The project is aimed to develop documentation set for an exisiting site which is located in 89-91 King Street, Newtown, 2042. A set of drawings are proposed to showcase the site with new purpose which will include a bar with commercial seating area and food preparation area. In addition, the place is meant to be accessible for everyone, with the capacity of 50 people indoor and 25 people in the exterior.

In the further process, we were also required to document the joinery details of the kitchen space and banquette design which are the main elements of the place. Moreover, lightning design and materials were also carefully chosen to create the final look of the space, specifically the interiors.

03 | Bar Newtown
Render of the interior seating and Banquette

04 | Stahl House in Sydney

The assignment was solely about the famous Stahl House, Case study 22, which was built in 1959 for Buck Stahl and family in Los Angeles and it was designed by famous architect, Pierre Koenig. For this university assignment, we were given 5 different sites across Sydney, Australia.

Our task was to keep all the interior elements of the Stahl house’s kitchen and living space while fitting it into one of the local sites in Sydney. We also had to follow LEP and DCP control according to Australian guidelines. Changes were done to the site, with few things getting demolished and different materials and furniture being replaced as the house is aimed to be rebuilt in a different environment and setting.

In addition, kitchen and living space of the residential house were given a new touch of feeling, with some furnitures getting replaced while keeping the original idea and focus found in the Stahl house.

One of the key messages to convey from this exhibition design is the break down of established rules about domestic ceramics and the introduction of new style of art which is influenced by postmodern art. There are many ceramics collection displayed in the Powerhouse Museum collection. That includes ceramics from the west coast of the United States to post-modern ceramics made in Australia. As a culturally diverse country, Australia has been involved with histories of various cultures. Carriage works is a vast space as the designated site as it is a cultural precinct with the remaining physical components from the past.

The purpose of the exhibition set in Carriage works is to explore the playfulness of postmodern ceramics in the space and how this characteristic is influential for contemporary art. It is also to convey how postmodern art has broken rules about specific style and introduced new art forms.

Exploded axonometric of the whole exhibition

Entry to GLAZE

06 | Encapsulated

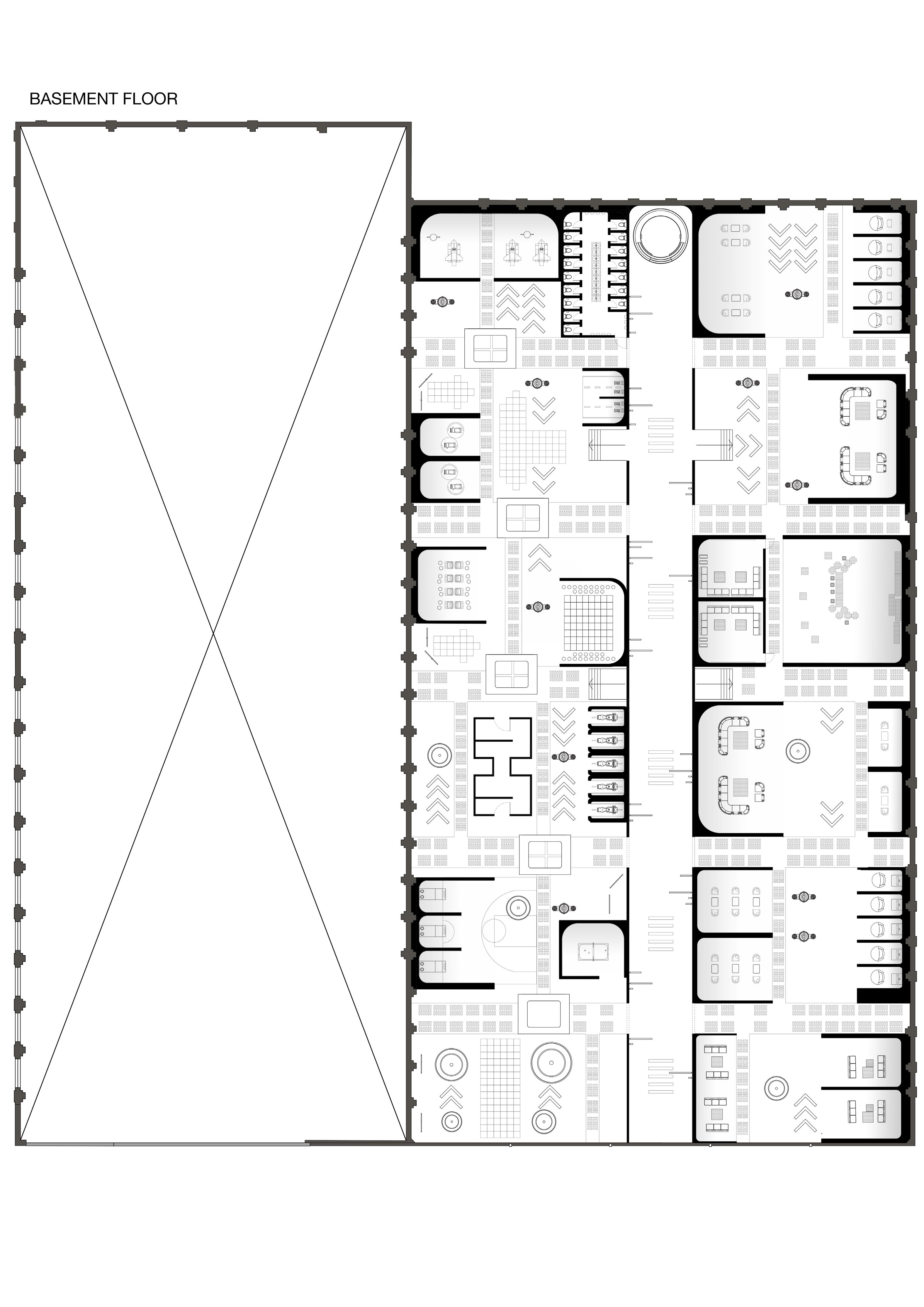
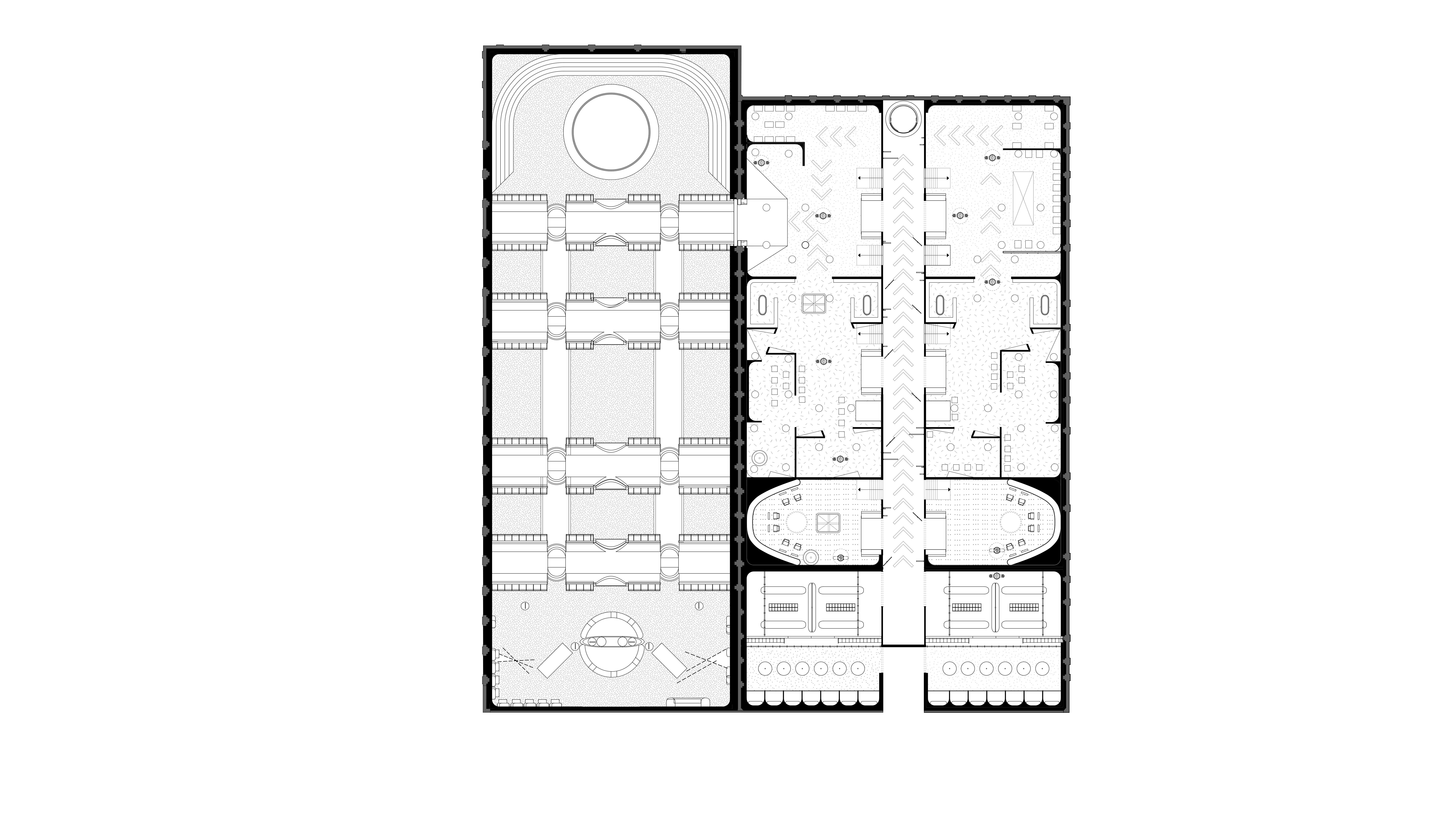
Encapsulated is designed to give a marketplace experience which is different from a typical marketplace around the city. For this marketplace, we are designing the space to transform people’s perspective on a marketplace and how the future of marketplace could be grown. In general, it is a vast space where various programs will take place on three levels. Our marketplace is solely focused on the marketplace of arcade games and diverse types of games. The space will have several types of games whether it be physical or virtual experience for the users in the space. Our design involves with numerous pathways which are leading out and into different spaces. Encapsulated is aimed to be an open place and accessible to everyone. In addition, the space itself challenges the navigation of the users. There are no restrictions in the building, and it is more of a free navigational space. The stairs on each level are a medium to lose themselves and will take people from one space to another, creating experience for the audience to explore their own directions and way out.

Physical model of the Pods on First floor

Fragment of basement floor - a space for seating area, arcade and technological games

Entry/Point of transition into the world of Encapsulated ( Users are allowed to change into costumes to fully integrate themselves into a new world )

Thank you.

Turn static files into dynamic content formats.

Create a flipbook
Issuu converts static files into: digital portfolios, online yearbooks, online catalogs, digital photo albums and more. Sign up and create your flipbook.