Architectural Portfolio_Shubhangi

Page 1

Portfolio Architectural

Shubhangi Asnani

KKWES SCHOOL

Designing physical spaces including the surrounding amenities, transportation, and infrastructure where students learn and grow in. Creating healthy and vibrant school for the children in Nashik.

MASTERPLAN

Carefully curated, bright & breezy classrooms playing with hexagonal forms for kindergarten students and addition of collaborative common spaces at different levels for idea sharing and social interactions.

P L A N S

SCHOOL

S E C T I O N

V I E W S

ARCHITECTURE

V I E W S

INTERIOR

SPORTS COMPLEX

Designing physical spaces including the surrounding amenities, transportation, and infrastructure where students learn and grow in. Creating healthy and vibrant school for the children in Nashik.

SPORTS COMPLEX
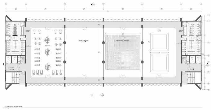
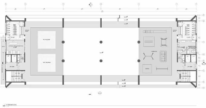
P L A N S

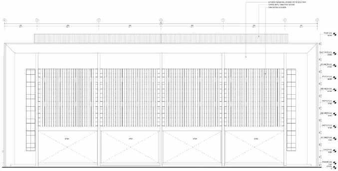
E C T I O N

SPORTS COMPLEX
S

V I E W S

SPORTS COMPLEX

PAWNA LAKE VILLAS

Lake view plots designed for leisure filled vacations away from the town.

P L A N S

SKYFARM

A1-acre plot for an hydroponic farm and house.

POD
MODULAR
DECK POD

THE PROCESS

FINAL PRODUCT

A beautiful abode for parents of twins where they grow with love as a family in the hustling city of Mumbai

2BHK PENTHOUSE

LIVING ROOM

V I E W S

V I E W S

LIVING & DINING

MASTER BEDROOM

V I E W S

V I E W S

KIDS BEDROOM

V I E W S

TOILETS & TERRACE

NIKHIL VORA RESIDENCE

A sweet little living for a family of 5, wanting a luxurios life in Matunga, overlooking king’s circle from their North windows.

V I E W S

MUSEUM OF SOLUTION

A unique experiential children's museum

Purpose

Values

Approach

SITE PLAN MASTERPLAN

S E C T I O N

P L A N S

FIRST FLOOR PLAN

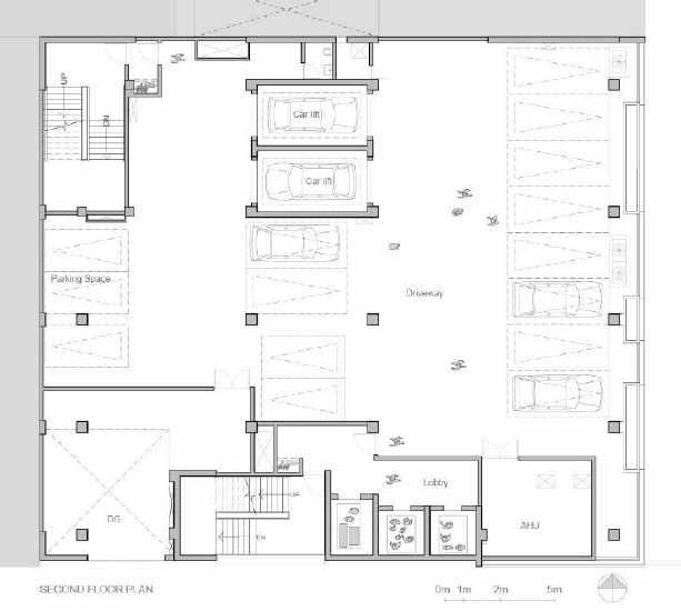
SECOND FLOOR PLAN

SIXTH FLOOR PLAN

P L A N S

TERRACE FLOOR PLAN

V I E W S

STAIRCASE MURAL

B U I L T

V I S I O N

NR HOUSE

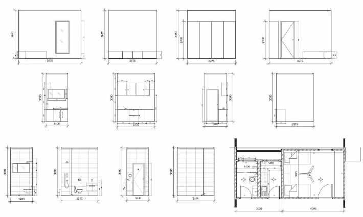
TOILET FLOORING

THANK YOU Since 2019 shubhangiasnani@gmail.com +91-7710926209

Turn static files into dynamic content formats.

Create a flipbook
Issuu converts static files into: digital portfolios, online yearbooks, online catalogs, digital photo albums and more. Sign up and create your flipbook.