Skip to main content

Portfolio_UG Works

Page 1

Manav Bharti has been made keeping in mind the prevailing wind direction and the movement of sun around the site.

The campus is well ventilated and the building gets direct/diffused light in every corner.

Exposed brickwork and the placement of building make the building reduce temperature inside classrooms. Big arched entrance, round windows as well as square windows shows the different geometrical features used as design elements. This building is one of its kind in the whole city.

School MBIIS, Patna
Site Plan Ground Floor Plan First Floor Plan Second Floor Plan Fourth Floor Plan Third Floor Plan

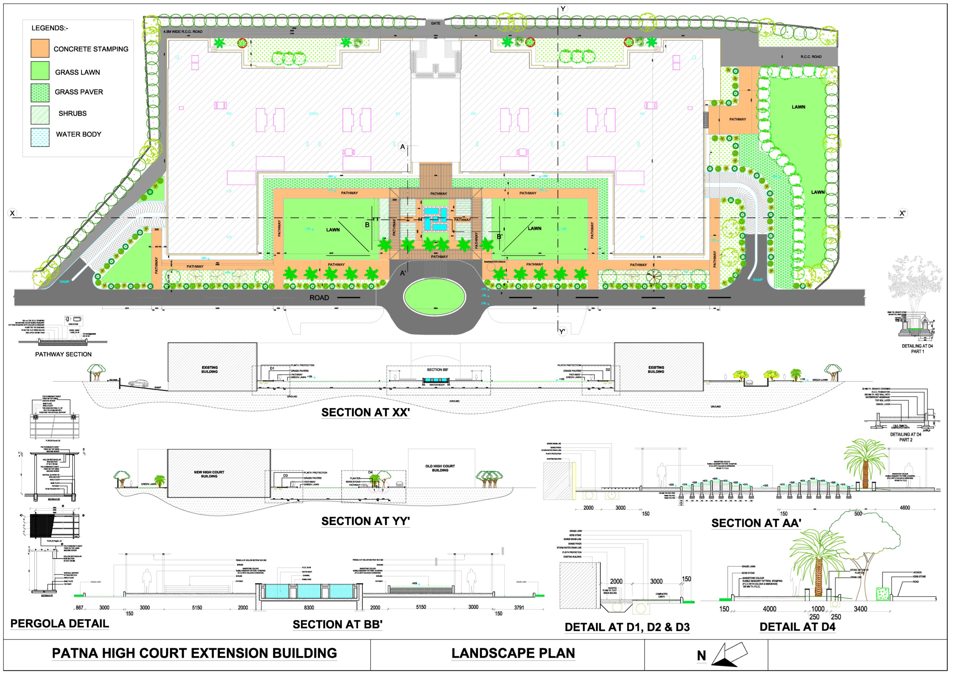
High Court Landscape Plan

The development of landscape in extended Patna High Court Building. Along with pathways, water body, lawns and underground drainage network. Maximised green space with peripheral path of 3m width.

Waterbody along the centreline and paved plaza along with light foliage tree gives identity to the space in front and allows for visual connection between the old and new buildings

3D Isometric Views
Project

High Court Landscape Plan

Project

Mounds were created for planting palm trees along with flowering seasonal and perennial plants. Pergola with corrugated sheet on top was provided along pathway for protection from weather. RCC stamp floor with patterns was provided for pathway.

Small flowering plants along the road was planned to increase the visual appeal of the landscape.

Landscape of Patna High court (Extended Building)

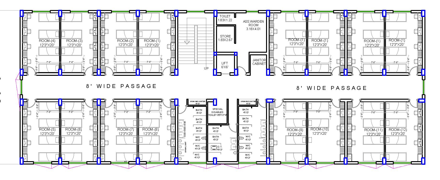
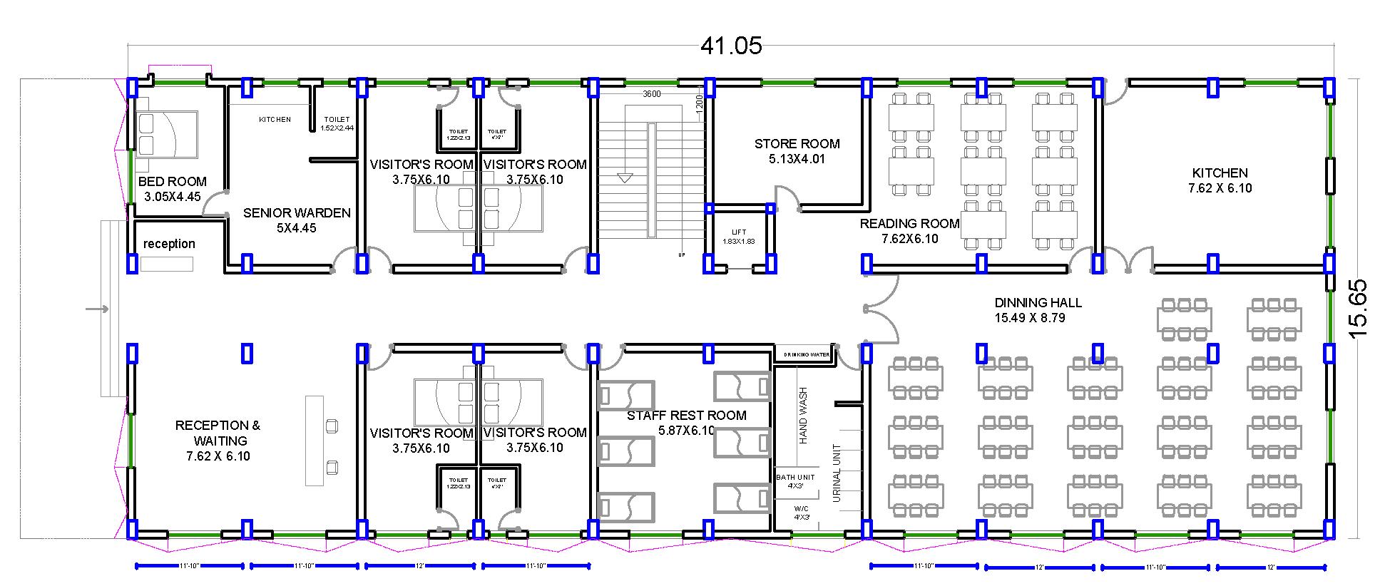
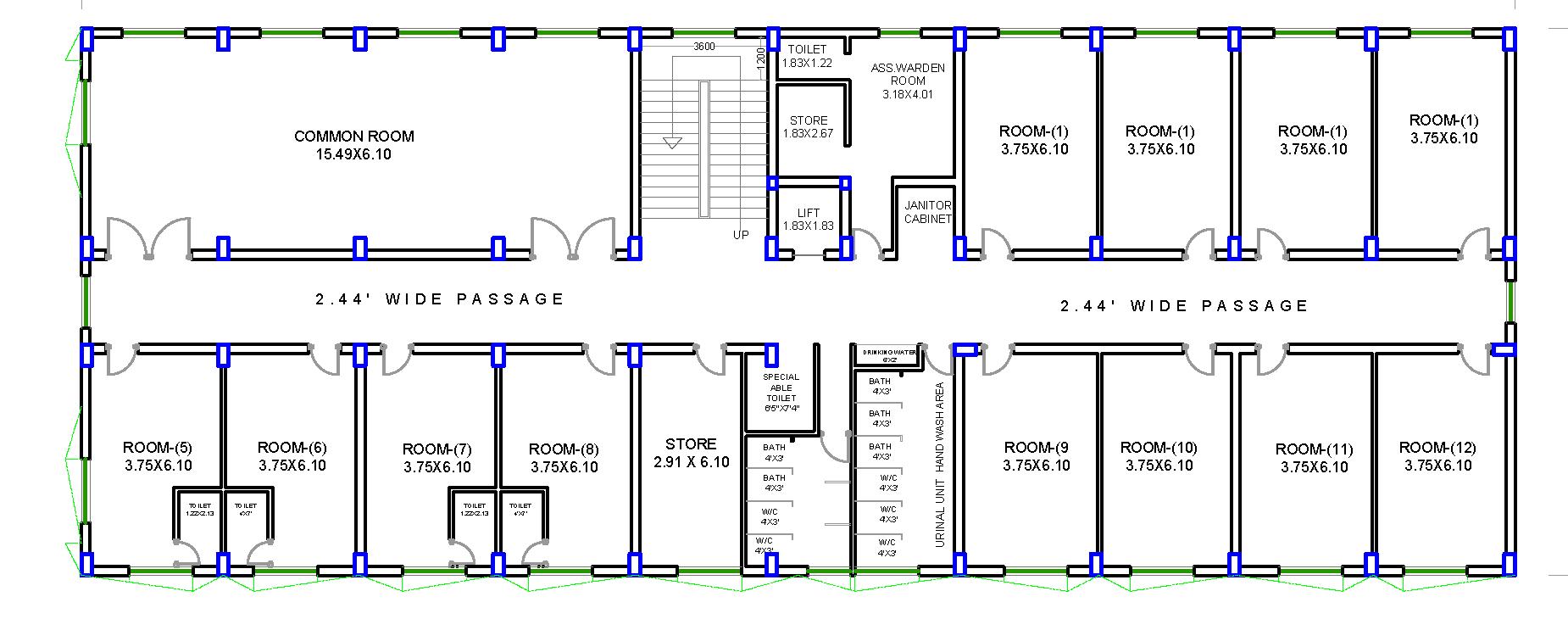
Hostel Baldwin School

Project Location

Dhawalpura, Patna (Bihar)

Client

Baldwin School, Patna

Project

A new hostel was proposed for the school. Ground floor to be planned as mess, reception and other administrative works. Each floor has 16 rooms with 4 beds in each room.

Total area of the hostel = 642.5 sq. m.

Design

Exposed brick work up to 1st floor and from 2nd to 4th floor brick cladding is used for window boxes. Zig-zag pattern around windows has been used and it is cladded with brick cladding. It will act as protection from the direct sunlight and rain and also used as a design element.

Ground Floor Plan

First Floor Plan

2nd to 4th Floor Plan

Bus Terminal & Transport Office

Project Location

Phulwarishrif, Patna (Bihar)

Client Transport Department, Patna

Project

Design and development of bus depot along with supporting offices and infrastructure.

Design

BSRTC Office, DTO office and depot office has been paced on the first floor. Site is near to the airport so the floor is limited to G+1 only.

Area Allotment

Conceptual Layout Plan

Elevation 1 Elevation 3 Elevation 2
Sl. No. Particulars Area (Acre) 1. Bus Depot, Bus Parking (No. of Buses-100), Depot Office, Depot Workshop 5.00 2. Bihar State Road Transport Corporation Office and Regional Office 1.50 3. District Transport Office 1.00 4. Driving test centre 4.00 5. Central workshop 6.70 6. Staff quarters 1.50 7. Central store 1.50 8. Land allotment for GAIL 1.50 Total land area 22.70

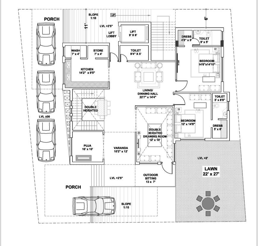
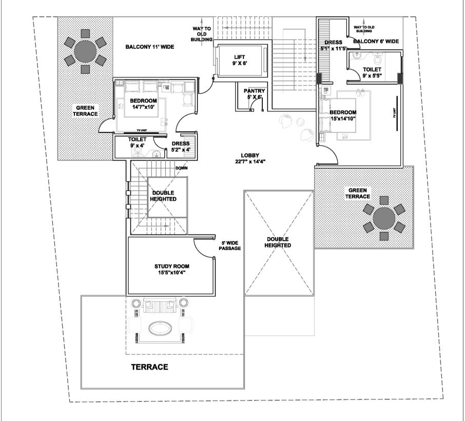
Proposed Residence

Project Location

Chandigarh

Project

Design and development of bus depot along with supporting offices and infrastructure.

Design

Two floor residence with courtyard, master bedroom with private terrace. Duplex house with five bedrooms and an office.

Views

Club House at Palm Heights

Project Location

Palm Heights (Mohali)

Client

Palm Heights

Project

Design and development of club house

Design

Two floor building having play area and gym on first floor and admin activity on ground floor having office, a conference room and allied activity area. This drawing has electrical, toilet and door details

Legend

Skin & LASER Clinic Interior

Project Location

Kankarbagh, Patna (Bihar)

Client

Dr. R. R. Madhukar

Project

Skin and LASER Clinic interior with pharmacy, O.T., O.P.D.

Design

This clinic being only 8’ in width having mezzanine floor. Mainly triangle is used as a design element which is placed randomly inside square box. Square box acts as frame as well as structural support system in design. Rafters are used along stairs which provide support and acts as hand rail for climbing the stairs. On faced HPL cladding of wooden texture along with metallic triangles pasted on it is used in plank size (8” X 4’) which covers the extended section in doctor’s chamber.

1. Entrance, reception and waiting area

2. Pharmacy

3. Waiting area for OPD

4. Doctor’s chamber (OPD)

5. Procedure Room

Reception & Pharmacy

Pharmacy & P.R.

1 2 3 5 4
Triangle as design element HPL Facade
Stairs & OPD
Hanging lights in corners

City Library (UG Thesis)

Project Location

Ranchi

Expressionism

Expressionist architecture was designed to evoke inner fillings and extreme emotions. Architects often used distorted unusual forms and incorporated innovative building techniques using materials like brick, steel and glass.

Design

Design aimed to come up with the design solution of a modern city library with integration of community interacting space and fun zones which will enhance the physical integration with books.

Form

Learning beyond restrictions and boundaries. Design based on 3D composition of books by stacking and rotating at different angles. The concave surface will act as shade from glare.

The main objective of the design has been to create different open spaces at different level of building and overhung terraces can provide mutual shading to each other.

Form Evolution Site Plan

In landscape geometrical shape as triangle is used for green patches and water body along with pathway which resembles the shape of terrace.

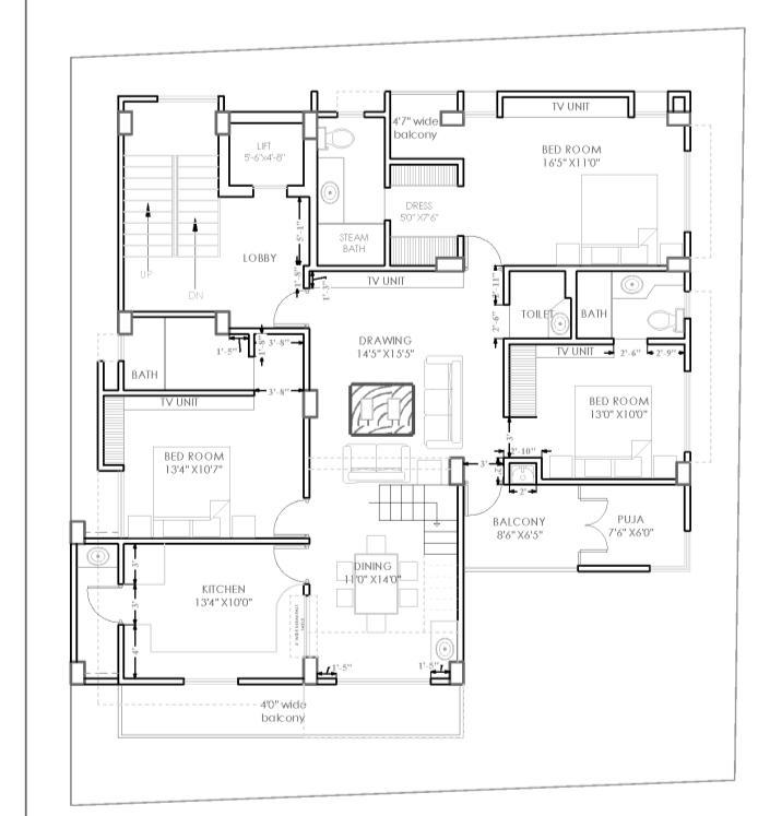
Residence & Other Works

Residence at Motihari Residence at Patna Residence at Bihta Toilet
interior
Patna
Airport

Photographs & Drawings

Turn static files into dynamic content formats.

Create a flipbook