UG Portfolio Shreyas

Page 1

CURRICULUM VITAE

INTRO

Name

Shreyas c Mahit

Date of birth 17/04/2001

From Tiptur

EDUCATION

2019-2024

Wadiyar centre for architecture, Mysuru

2017-2019

Mahesh PU College, Mangalore

2007-2017

Kalpataru Central school, Tiptur

Lives in Mysuru

CONTACT

+91 6363725302

shreyascmahit2001@gmail.com

+91 6363725302

Hello there!! I’m a Tumkur based Kannadiga with a Bachelor’s degree in Architecture, seeking architecture job opportunities where I can apply my creative skills, innovative mindset, and comprehensive architectural knowledge. Eager to contribute fresh perspectives and imaginative solutions, I am ready to take on new challenges and make a significant impact in the field of architecture.

SOFTWARE SKILLS

Autocad Sketchup Lumion Enscape

Illustrator Photoshop Indesign

SKILLS

Communication Team work

Decision making

Problem solving

Project management

OTHER SKILLS

Sketching

Laser cutting

Hand Drafting

Measure drawing

Physical model making

Architecture Photography Working with Wood and Bamboo

Internship: Languages: 2023-2024

WORK EXPERIENCE

SMARTWORKS, Bangalore Kannada, English, Hindi

Worked on:

Client proposals

Detail drawings

3D visualisation

INTERNSHIP

SMARTWORKS I SEM 10

THESIS

REDESIGNING MYSORE I SEM 9 BUS TERMINAL

URBAN DESIGN

COMMUNITY CENTERIC I SEM 8 ARCHITECTURE

INDUSTRY

WEAVING CENTER I SEM 7

INSTITUTION DESIGN

CULINARY INSTITUTE I SEM 6

WORKING DRAWINGS I SEM 6

CONTENT

Internship SMARTWORKS

Sem 10 , 2024 Bangalore

With good positions come great responsibilities. As an intern at SMARTWORKS, I had the privilege of engaging with various teams across the company. This semester was pivotal in bridging the gap between theoretical knowledge from college and its real-life application. I gained insights into the feasibility and limitations of ideas, the stages of a project, 3D visualization, AutoCAD applications, and even the intricacies of working with the sales team and managing projects. This experience was immensely enriching and has significantly contributed to my growth as an architecture student.

About SMARTWORKS:

Smartworks is India’s largest managed workspace platform with a growing footprint of over 8 million sq. ft. across 40+ locations in 14 cities. The company caters to more than 600 organizations including Forbes 2000 /Fortune 500 companies, global MNCs and established unicorns.

Smartworks is re-imagining workspaces and redefining the office experience for millions of office goers. With the seamless integration of physical and digital platforms, we enable enterprises and their employees to access various products and services to achieve optimum productivity.

Smartworks has scaled Pan-India footprint to 7 million sq. ft to become India’s largest and leading managed office space platform and also the world’s largest and 2nd largest managed office space.

1 2 0 0 M W D M W 1 2 M W P A 0 0 M M W D P A S S G E 1 0 MM W DE PASSAGE 1050 1650 1650 1050 1650 1650 1130 1650 1650 2850 2325 2325 2325 3000 4080 3330 3330 1805 2775 1200 3655 MD CABIN MD CABIN MD CABIN COLLAB AREA COLLAB AREA COLLAB AREA RECEPTION PAX ODC WORKSTATIONS (1200X600MM) 36 02 MANAGER CABINS 03 03 4 PAX MEETING ROOM 01 04 6 PAX ODC 01 05 06 07 DESCRIPTION NOS. SR. TOTAL PERMANENT HEAD COUNT 01 ACHIEVED USER PATTERN 45 RECEPTION 01 WALL MOUNTED SERVER 01 Client proposed layout

Section through 10Pax meeting room

Reception table working drawing

15970 ELEV ST-2 2550 15970 50 137 268 66 143 241 225 19 90 154 212 264 237 252 219 192 172 157 149 146 150 160 175 77 243 15 73 98 100 93 57 12 116 258 74 147 95 124 126 132 226 285 298 INTERSECTION OF THE CIRCLE TO THE BOTTOM OF GYPSUM CEILING 85 26 96 67 198 184 73 298 296 222 126 94 57 103 75 41 46 17 99 159 76 14 225 139 254 158 53 160 274 62 95 225 62 207 183 239 224 135 95 24 300 300 GYPSUM CEILING @ 2550 50MM HIGH SKIRTING WALL FINISHED WITH APPROVED PAINT 2550 GYPSUM CEILING @ 2550 50MM HIGH SKIRTING WALL FINISHED WITH APPROVED PAINT 15970 1. All dimensions are in mm and are to be read not measured. NOTES SHEET NUMBER CLIENT DRAWING NAME REV. NO. DESCRIPTION DATE PASSAGE WALL DIMENSION GEAR INC SCALE: PASSAGE WALL DIMENSION 1:200 PLAN 02 SCALE: PASSAGE WALL DIMENSION 1:60 ELEVATION 1 03 SCALE: 1:750 KEY PLAN 01 NOTE: · GRID SIZE IS 300X300MM · GRIDS TO BE STARTED FROM THE LEFT OF THE WALL. · THE LINES ARE ONLY FOR MARKING PURPOSE ONLY. NO LINES TO BE SEEN AFTER PAINTING. GRID STARTS FROM THIS SIDE FINALISED BY CLIENT ASAIN PAINT SALT WHITE L 163 ASAIN PAINT PURE SKY N 9694 ASAIN PAINT CORAL BLUSH N 9993 ASAIN PAINT RAVEN SONG 8253 PAINT FINISHES: Wall painting markings 550 200 750 300 350 1295 180 180 1700 750 550 300 75 75 1050 550 750 1800 50 1800 1800 A ELEV E3 ELEV E1 ELEV E2 250 350 500 950 350 500 950 250 100 1000 100 1000 250 300 ELEV S1 ELEV S2 +750MM LVL +1050MM LVL +1100MM LVL PLY CARCASS WITH LAMINATE FINISH GREENLAM 297 SUD BLUE GALAXY 100 950 PLY CARCASS FINISHED WITH LAMINATE FINISH GREENLAM 266 SUD ASH GREY 25MM TK PLY TABLE TOP FINISHED LAMINATE FINISH GREENLAM 266 SUD ASH GREY POWER & DATA PROVISIONING PLY STORAGE FINISHED WITH WHITE LAMINATE FINISH GREENLAM 266 SUD ASH GREY 50MM HIGH SKIRTING FINISHED WITH LAMINATE INSIDE SURFACE FINISHED WITH LAMINATE 275 PLY CARCASS FINISHED WITH LAMINATE FINISH GREENLAM 266 SUD ASH GREY PLY CARCASS FINISHED WITH LAMINATE FINISH GREENLAM 266 SUD ASH GREY 50 25 25 25 12MM TK. PLY WITH LAMINATE FINISH GREENLAM 297 SUD BLUE GALAXY 500 19MM THK PLY FINISHED WITH LAMINATE [GREENLAM 266 SUD ASH GREY] 20MM. TK. FINGER GROOVE 50 20 4MM TK. MDF FINISHED WITH LAMINATE 4MM X 4MM 'V' GROOVE SCALE: 1:15 PLAN P1 01 SCALE: 1:15 ELEVATION E1 02 SCALE: 1:15 ELEVATION E2 03 SCALE: 1:15 ELEVATION E3 04 SCALE: 1:15 SECTION S1 05 SCALE: 1:5 SECTION S2 06 SCALE: 1:5 DETAIL A 07 REFERENCE IMAGE SCALE: 1:5 TYPICAL 'V' GROOVE 08 TRUE CLNG LVL +3000 FALSE CLNG LVL +2400 FALSE CLNG LVL +2540 FALSE CLNG LVL +2500 ANCHOR FASTENER PROPRIETARY SUSPENSION 20X20MM PROPRIETARY PRE-COATED ALUMINIUM SHADOW LINE WALL ANGLE REFER TO CEILING ANCHOR FASTENER PROPRIETARY SUSPENSION GYPSUM FALSE CEILING FINISHED WITH PAINT GYPSUM FALSE CEILING FINISHED WITH PAINT GYPSUM FALSE CEILING FINISHED WITH PAINT SCALE: 01 SECTION 1:10 SECTION THROUGH 10PAX MEETING ROOM 75 75 APPROVED LED LIGHT FIXTURE PERIMETER CHANNEL - 20 X 27 X 30 X .55 150X75MM GYPSUM COVE FINISHED WITH PAINT ANCHOR FASTENER PROPRIETARY GYPSUM FALSE CEILING FINISHED WITH PAINT GYPSUM FALSE CEILING FINISHED WITH PAINT SCALE: 02 SECTION 1:10 PT-01 PT-01 PT-01 200 40 40 TRUE CLNG LVL +3000 FALSE CLNG LVL +2400 FALSE CLNG LVL +2500 SCALE: 05 SECTION 1:10 100 75 25 100 100 PT-01 ANCHOR FASTENER PROPRIETARY SUSPENSION FINISHED WITH PAINT PT-01 FINISHED WITH PAINT PT-01 25X75MM @100MM SPACING METAL BAFFLE CEILING AS PER SHOP DRAWING PROPRIETARY SUSPENSION 20X20MM PROPRIETARY PRE-COATED ALUMINIUM SHADOW LINE WALL ANGLE - REFER TO CEILING SPECIFICATION. CLADDED WITH PT-01 SCALE: 06 SECTION 1:10 SECTION THROUGH EXECUTIVE CABIN TRUE CLNG LVL +3000 FALSE CLNG LVL +2400 FALSE CLNG LVL +2300 100 SCALE: 07 SECTION 1:10 SECTION THROUGH PANTRY 250 200 GYPSUM FALSE CEILING FINISHED WITH PAINT FASTENER PROPRIETARY SUSPENSION PT-01 GYPSUM DROP FALSE CEILING FINISHED WITH PAINT PT-01 STRUCTURAL BEAM 250MM WIDE PELMET FOR CURTAINS PELMET MADE OF 12MM THK. PLY FINISHED WITH APPROVED LAMINATE LM-01 STRUCTURAL GLAZING GYPSUM VERTICAL FINISHED WITH PAINT PT-01 50 50 PT-01 150X50MM GYPSUM COVE FINISHED WITH PAINT PT-01 150X50MM GYPSUM COVE FINISHED WITH PAINT GYPSUM FALSE CEILING FINISHED WITH PAINT PT-01 GYPSUM FALSE CEILING FINISHED WITH PAINT PT-01 150 50 50 150 ANCHOR FASTENER PROPRIETARY SUSPENSION 6MM GROOVE FALSE CEILING PT-01 PT-01 FINISHED WITH PAINT PT-01 950 (WIDTH TO MATCH CASSETTE UNIT) INDICATIVE CASSETTE UNIT TRUE CLNG LVL +3000 FALSE CLNG LVL +2400 FALSE CLNG LVL +2500 150X50MM GYPSUM COVE FINISHED WITH PAINT PT-01 ANCHOR FASTENER PROPRIETARY SUSPENSION INDICATIVE CASSETTE UNIT GYPSUM FALSE CEILING FINISHED WITH PAINT PT-01 50 50 LED WALL WASHER LIGHT FIXTURE PLY VERTICAL SUPPORT 600X600MM TRAP DOOR MADE OF GYPSUM BOARD WITH PLY BACKING & 4MM MDF BEADING ALL AROUND COLOUR MATCHING TO CEILING FINISH 50 50 2 LAYER GYPSUM FALSE CEILING WITH 6MM GROOVE FINISHED WITH PAINT PT-01 150X50MM GYPSUM COVE FINISHED WITH PAINT PT-01 6MM GROOVE HEAD FINISHED WITH VENEER 04 05 SCALE: 07 SECTION 1:10 SECTION THROUGH PERIPHERY VENEER CEILING 250 GYPSUM FALSE CEILING FINISHED WITH PAINT ANCHOR FASTENER PROPRIETARY PT-01 VENEER DROP CEILING MADE OF OF 12MM THK. PLY FINISHED WITH APPROVED VENEER, MELAMINE POLISHED WD-01 4MM GROOVE STRUCTURAL BEAM 200MM HIGH PORTAL MADE OF 12MM THK. PLY FINISHED WITH APPROVED VENEER WD-01 250MM WIDE PELMET FOR CURTAINS PELMET MADE OF 12MM THK. PLY FINISHED WITH VENEER WD-01 STRUCTURAL GLAZING CUT OUT & PROVISION FOR LIGHT FIXTURE TRUE CLNG LVL +3000 FALSE CLNG LVL +2400 FALSE CLNG LVL +2500 200 PROPRIETARY 'C' SECTION, COLOUR MATCHING TO CEILING PAINT FINISH

Thesis

Redesigning Mysore bus terminal Sem 09 , 2023

Studio guides:

Prof Nelson Pais

Prof Madhuri Rao

Asst Prof Kiran Kumar

Asst Prof Shreyas Baindur

Asst Prof Salila P Vanka

Adj Prof Anirudh Muralidhar

This thesis envisions the creation of a bus terminal that redefines urban mobility in Mysore by enhancing its infrastructure, doubling bus bay capacity, improving bus circulation to minimize congestion during peak hours and integrating a skywalk to elevate green spaces, ensuring sustainable development while addressing the needs of increased bus operations.

Site Location - Mysore

Site Area - 40000m²

VISION:

This thesis envisions the creation of a bus terminal that redefines urban mobility, enhancing both the functionality and the quality of life for passengers and the surrounding community.Designing a bus terminal that not only addresses the congestion and inefficiencies of the current system but also transforms the daily commute into a delightful experience.

AIM:

To evaluate and analyze the existing design and operational practices of bus terminal in Mysore in order to identify strengths, weaknesses, and areas for improvement and to propose innovative design strategies and solutions that enhance the functionality, efficiency, and user experience (different age groups) in bus terminal.

OBJECTIVE:

To identify strengths, weaknesses, and areas for improvement, to assess the functionality, efficiency, and user experience.

To identify the specific challenges and needs of different age groups and analyze how current design and operational practices address or hinder those needs.

To design a terminal with facilities for increased number of proposed buses and passengers (both inter-district & state).

To establish a transport system which will have smooth circulation and reduce traffic congestion ocuring in and around the bus terminal.

Location:

Mysore is a district and a metropolitan city in the southern Indian state of Karnataka. It is the third-most populous and third-largest city in the state and is one of the cleanest cities in India.

The current estimate population of Mysore city in 2023 is 1,229,000 , while Mysore metro population is estimated at 1,365,000. Has an average altitude of 770 metres. It is spread across an area of 286.05 km2. Mysore is 145kms away from business capital of the state Bangalore and 250kms away from port city of the Mangalore. The expressway between My- sore and Bangalore has reduced the travel time by road to 90 minutes .

The site is located in the main transport region of the city in Mandi mohalla.

Land use: WEAKNESS OPPORTUNITIES THREATS

Planning district 1

STRENGTHS

• Proximity to

• No changing

• Land use of

• Vegetation.

• Near to govt

• No change of

• Proximity to

• Place for car

• No extra maintenance

• Congestion

• Difficulty for

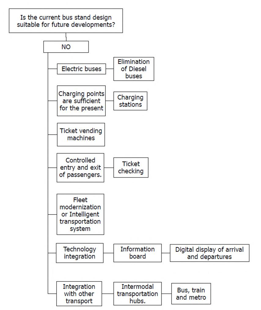
Existing Problems:

Traffic congestion

Parking

Limited police staff

Cloak room

Mainteneance

Waiting rooms

Charging points

Pick and drop points

Surveillance

Accesibility(Signages)

prepaid auto/taxi

cabin for TC

No
No
No
driver restroom

Planning district 6a to the present bus stand. Closeness to railway station. changing of bus routes. Existing city bus stops. the site is traffic and transportation. govt girls high school. Noise level is high. of location. to the hospital, city bus stand, railway station. car parking. maintenance contract required. on the road. Peak hours traffic. for people crossing the road.

bus route Existing bus view B A D E C A. KSRTC bus stand B. Prepaid Auto stand C. Taxi stand D. Trin trin stand E. Private bus stop Site surroundings Number of buses
hour: 7-8 : 55 8-9 : 126 9-10 : 124 10-11 : 145 11-12 : 154 12-13 : 143 13-14 : 126 14-15 : 124 15-16 : 171 16-17 : 130 17-18 : 113 18-19 : 101 19-20 : 76 20-21 : 66 21-22 : 38 22-23 : 36 Existing bus stand plan
KSRTC
every

Massing:

Research questions: Intent

Bus circulation:

Intent sketches:

Concept:

Intent:

Extension of public space into the site Zoning Bus circulation space Public space Public space Built Waiting area Waiting area Reliance Commercial space Vehicle parking Built Built Dividing the the site in 2 parts by a road that acts as a central spine Lifting the park up such that it connects both parts of the site Breaking the number of bus bays by moving it vertically helps in reduction of congestion and allows horizontal movement of passengers Green space

Plan @+6000mm

Section 1
PUBLIC PLAZA Bus stand is seen as a destination for the general public not involved in bus stand activities PUBLIC SEATING Informal seating spaces Section
PUBLIC PLAZA Ground floor below Reliance is public where events happen
Sky walk as a super roof
Platforms acting as waiting area
GREEN ROOF
WAITING SPACES
Section 2 Renders
GREEN AREA IN PARKING
Reduce
noise and pollution level

Urban Design

Community Centric Architecture

Sem 08 , 2023

Studio guides:

Prof Prashant Pole

Prof Nelson Pais

Adj Prof Anand Chalawadi

Asst Prof Shreyas Baindur

Asst Prof Ryan Thomas

This Urban design semester focused on 8 sites around the Fort of Madikeri where a group of 5 picked up one site among 8 sites. Every group had a vision that connected all the sites in the Urban level. The sites were selected based on the program and interventions to be made which reflected the group’s Vision.

INDIVIDUAL SITE :

Site 1 was chose as it had Kodava Samaj building with restaurants and a marriage hall at different levels with a police station and another restaurant building connecting the main road. This site is an treshold for the Fort entrance on the other side of the road and Omkareshwara temple on the other lower part of the site.

Site Location - Madikeri

Site Area - 18500m²

Pedestrian road (All sites) Vehicular road (Secondary Vehicular road (Primary) Vehicular road (Secondary Vehicular road (Primary) Bus stop in Site 1 1 6 2 3 4 5 8 1.
2.
3.
4.
5.
6. Fort
Existing Site 1 section Plan of Site 1
Omkareshwara temple
Neel kitchen
Police station
Kodava samaj complex
Janata Bazaar
complex
of Site 1
Group
View
Map of madikeri
2 1 7 4 3
1.
2.
3.
4.
7.
8.
Master plan of Madikeri Group street interventions Primary road Secondary road Group site selection
Sites: Kodava samaj site Town hall site Bus stand site (supporting site) Post office site Cosmopolitan club site Playground site
1 3 4 5 5 2 1 3 4 2 Site Plan Road
AD VIII URBAN DESIGN I SITE 1 I PLANS I SHEET 01 PLAN @ - 10000 SHREYAS C MAHIT 4CM19AT066 BATCH 2019 WCFA, MYSURU SCALE 1:250 0M 5M 10M 20M 1 -PARKING 2- ENTRANCE FOYER 3- WEDDING HALL 4- BRIDE/GROOM ROOM 5- STORAGE 2 5 4 4 3 ENTRY -11.85M -12M -12M -20M -11.7M -11.1M 1 2 3 4 1 -LIBRARY 2- GALLERY SPACE 3- WEDDING HALL 4- PARKING 5- NEEL KICTHEN RESTAURANT -7.7M -7.7M -5.85M -6M VEHICULAR AND -20M -14M -12M -12M PLAN @ - 5500 PLAN @ - 1500 1 2 3 4 5 6 7 -20M -14M -12M 1 -NEEL KITCHEN CAFE 2- GALLERY SPACE 3- KODAVA SAMAJA ADMIN AREA 4- BANQUET HALL 5- KITCHEN 6- PARKING 7- WEDDING HALL 8- NEEL KICTHEN RESTAURANT -12M -6M -12M -12M -12M -4M -4M -4M -11.7M -3M 5 8 10000 5000 5000 5000 5000 UP DOWN DOWN -4M NOTE: ROAD AT +0M IS THE REFERENCE LEVEL AD VIII URBAN DESIGN I SITE 1 I PLANS I SHEET 02 SHREYAS C MAHIT 4CM19AT066 BATCH 2019 WCFA, MYSURU 20M -14M -12M -12M -6M -6M -12M -3M -4M +0.15M 0M +0.3M -4M 0M -4M 1 2 5 1 -POLICE STATION 2- ACCOMODATION 3- BUS STOP 4- PUBLIC TOILET 5- NEEL KITCHEN RESTAURANT 1 -POLICE STATION 2- ACCOMODATION 3- NEEL KITCHEN RESTAURANT 3 4 0M +0.15M +0.15M +0.15M 0M 0M 0M -6M -14M -12M -12M -6M -6M -12M 0M +0.3M +3500M -4M 0M -4M 2 0M +0.15M +0.15M +0.15M 0M 0M 0M -6M 1 0M 3 10000 10000 10000 10000 PLAN @ + 1500MM PLAN @ + 5000MM UP UP UP UP UP DOWN DOWN NOTE: ROAD AT +0M IS THE REFERENCE LEVEL Plan at differeent levels with reference being the main road
VIII
1 - ACCOMODATION 3 - BANQUET HALL 3 - GALLERY SPACE 4 - LIBRARY 5- NEEL KITCHEN BUILDING 6 - PARKING -6000MM 0MM 3500MM 7000MM -12000MM -20000MM -20000MM 0MM 3500MM 7200MM 8400MM -4000MM -12000MM 3500MM 7000MM -4000MM 0MM 1 2 1- PARKING 2- WEDDING HALL 1- ACCOMODATION 2- BANQUET HALL 3- WEDDING HALL 1- KODAVA SAMAJ OFFICE AREA 2- FOOT BRIDGE 1 1 1 2 +7200MM 0MM 3500MM 7200MM 8400MM -4000MM -12000MM 1 2
FORT COMPLEX
KODAVA SAMAJ OFFICE AREA
FOOT BRIDGE 4- ROAD @ -20M 5- OMKARESHWARA TEMPLE 6- TEMPLE KALYANI 3 4 1 ROAD ROAD ROAD ROAD ROAD AD VIII URBAN DESIGN
SECTIONS 1 - ACCOMODATION 3 - BANQUET HALL 3 - GALLERY SPACE 4 - LIBRARY 5- NEEL KITCHEN BUILDING 6 - PARKING -6000MM 0MM 3500MM 7000MM -12000MM -20000MM -20000MM 0MM 3500MM 7200MM 8400MM -4000MM -12000MM 3500MM 7000MM -4000MM 0MM 1 2 1- PARKING 2- WEDDING HALL 1- ACCOMODATION 2- BANQUET HALL 3- WEDDING HALL 1- KODAVA SAMAJ OFFICE AREA 2- FOOT BRIDGE 1 2 1- POLICE STATION 2- GALLERY SPACE 3- PARKING 1 +7200MM 0MM 3500MM 7200MM 8400MM -4000MM -12000MM 1 2 1- FORT COMPLEX 2- KODAVA SAMAJ OFFICE AREA 3- FOOT BRIDGE 4- ROAD @ -20M 5- OMKARESHWARA TEMPLE 6- TEMPLE KALYANI 3 4 1 ROAD ROAD ROAD ROAD ROAD ROAD VIII URBAN DESIGN I SECTIONS 1 - ACCOMODATION 3 - BANQUET HALL 3 - GALLERY SPACE 4 - LIBRARY 5- NEEL KITCHEN BUILDING 6 - PARKING -6000MM 0MM 3500MM 7000MM -12000MM -20000MM -20000MM 0MM 3500MM 7200MM 8400MM -4000MM -12000MM 3500MM 7000MM -6000MM -4000MM 0MM 1 2 WEDDING HALL 1- ACCOMODATION 2- BANQUET HALL 3- WEDDING HALL SAMAJ OFFICE AREA BRIDGE 1 2 1- POLICE STATION 2- GALLERY SPACE 3- PARKING 6 1 1 2 3 +7200MM 0MM 3500MM 7200MM 8400MM -12000MM 1 2 COMPLEX SAMAJ OFFICE AREA BRIDGE -20M OMKARESHWARA TEMPLE KALYANI 3 4 ROAD ROAD ROAD ROAD ROAD AD VIII URBAN DESIGN I SECTIONS 1 ACCOMODATION 3 - BANQUET HALL 3 - GALLERY SPACE 4 - LIBRARY 5- NEEL KITCHEN BUILDING 6 - PARKING -6000MM 0MM 3500MM 7000MM -12000MM -20000MM -20000MM 0MM 3500MM 7200MM 8400MM -4000MM -12000MM 3500MM 7000MM -6000MM -4000MM 0MM 1 2 1- PARKING 2- WEDDING HALL 2 1- ACCOMODATION 2- BANQUET HALL 3- WEDDING HALL 1- KODAVA SAMAJ OFFICE AREA 2- FOOT BRIDGE 1 2 1- POLICE STATION 2- GALLERY SPACE 3- PARKING 6 1 1 2 3 4 +7200MM 0MM 3500MM 7200MM 8400MM -4000MM -12000MM 1 2 1- FORT COMPLEX 2- KODAVA SAMAJ OFFICE AREA 3- FOOT BRIDGE 4- ROAD @ -20M 5- OMKARESHWARA TEMPLE 6- TEMPLE KALYANI 3 4 1 ROAD ROAD ROAD ROAD ROAD ROAD ROAD
1 - ACCOMODATION 3 - BANQUET HALL 3 - GALLERY SPACE 4 - LIBRARY 5- NEEL KITCHEN BUILDING 6 - PARKING -6000MM 0MM 3500MM 7000MM -12000MM -20000MM -20000MM 0MM 3500MM 7200MM 8400MM -4000MM -12000MM 3500MM 7000MM -6000MM -4000MM 0MM 1 2 PARKING WEDDING HALL 2 1- ACCOMODATION 2- BANQUET HALL 3- WEDDING HALL KODAVA SAMAJ OFFICE AREA FOOT BRIDGE 1 2 1 1- POLICE STATION 2- GALLERY SPACE 3- PARKING 6 1 1 2 3 4 +7200MM 0MM 3500MM 7200MM 8400MM -4000MM -12000MM 1 2 FORT COMPLEX KODAVA SAMAJ OFFICE AREA FOOT BRIDGE ROAD @ -20M OMKARESHWARA TEMPLE TEMPLE KALYANI 3 4 ROAD ROAD ROAD ROAD ROAD ROAD Section showing the fort, site and the temple Section 5 Section 3 Section 1 VIII URBAN DESIGN I SECTIONS 1 - ACCOMODATION 3 - BANQUET HALL 3 - GALLERY SPACE 4 - LIBRARY 5- NEEL KITCHEN BUILDING 6 - PARKING -6000MM 0MM 3500MM 7000MM -12000MM -20000MM -20000MM 0MM 3500MM 7200MM 8400MM -4000MM -12000MM 3500MM 7000MM -6000MM -4000MM 0MM 1 2 PARKING WEDDING HALL 2 1- ACCOMODATION 2- BANQUET HALL 3- WEDDING HALL KODAVA SAMAJ OFFICE AREA FOOT BRIDGE 1 2 1 1- POLICE STATION 2- GALLERY SPACE 3- PARKING 6 1 1 2 3 4 +7200MM 0MM 3500MM 7200MM 8400MM -4000MM -12000MM 1 2 FORT COMPLEX KODAVA SAMAJ OFFICE AREA FOOT BRIDGE ROAD @ -20M OMKARESHWARA TEMPLE TEMPLE KALYANI 3 4 ROAD ROAD ROAD ROAD ROAD ROAD
AD
URBAN DESIGN I SECTIONS
1-
2-
3-
I
VIII URBAN DESIGN I SECTIONS
SHREYAS C MAHIT 4CM19AT066 BATCH 2019 WCFA, MYSURU SCALE 1:250 7000MM -4000MM -12000MM 8500MM -12000MM -8000MM -7500MM 8200MM -8000MM -4000MM 0MM -3000MM 1 1 2 3 3 4 5 NOTE: ROAD AT +0M IS THE REFERENCE LEVEL -19000MM ROAD ROAD SHREYAS C MAHIT 4CM19AT066 BATCH 2019 WCFA, MYSURU SCALE 1:250 0M 5M 10M -20000MM -20000MM 0MM 3500MM 7000MM -4000MM -12000MM 8500MM -12000MM 0MM -4000MM -8000MM -7500MM -8000MM -4000MM 0MM -3000MM 1 1 3 2 3 5 NOTE: ROAD AT +0M IS THE REFERENCE LEVEL -19000MM 5 6 ROAD ROAD SHREYAS C MAHIT 4CM19AT066 BATCH 2019 WCFA, MYSURU SCALE 1:250 0M 5M 10M -20000MM -20000MM 0MM 3500MM 7000MM -4000MM -12000MM 8500MM -12000MM 0MM -4000MM -8000MM -7500MM 4000MM 6850MM 8200MM -8000MM -4000MM 0MM -3000MM 1 3 2 3 5 NOTE: ROAD AT +0M IS THE REFERENCE LEVEL -19000MM 5 6 ROAD ROAD Section 4 Section 2 SHREYAS C MAHIT 4CM19AT066 BATCH 2019 WCFA, MYSURU SCALE 1:250 0M 5M 20M 10M -20000MM -20000MM 0MM 3500MM 7000MM -4000MM -12000MM 8500MM -12000MM 0MM -4000MM -8000MM -7500MM 4000MM 6850MM 8200MM -8000MM -4000MM 0MM -3000MM 1 1 3 2 3 5 NOTE: ROAD AT +0M IS THE REFERENCE LEVEL -19000MM 5 6 ROAD ROAD

Industry Design

Weaving Centre

Sem 07 , 2022

Studio guides:

Prof Shrutie Shah

Asst Prof Asijith Khan

Prof Anand Krishnamurthy

Prof Prashant Pole

Asst Prof Surendran Aalone

The semester was about designing a weaving centre for the workers of kanchipuram. The studio was worked out by making physical models. Exercises were about making mechanisms, apertures, intent models, diagramming and implementing the same during the design process. The Business and Architecture intents were to be framed by the students and worked upon it.

Site Location - Kanchipuram

Site Area - 10000m²

Kanchipuram map
Typical house plan
Street elevations Section BB’ Sectional view Section AA’

Sorting the masses by minimising acute angles at the corners and the entrance to the weaving-2 space is from the side. Accomodation [laced in isolation.

Scattered masses were brought together and coutyard in the center was made to break the huge space and to attain physica thermal comfort of workers.

Block massing of individual spaces considering the are requirement and placed on site w.R.T wind direction on the site. The approach to the retail had more travelling of the customers.

Weaving-2 space was broken by the central placing of the mezzanine which has view towards the weaving space, entered from the stairs. Admin block shifted to front for surveillance reason.

Accomodation was shifted to southwest part of the site and an auction space is placed between the manufacturing block and the accomodation with a temporary shelter as a shading device. A part of site towars the road left for public activities.

PROCESS
1 2 3 11 12 13 14 14 1 2 3 Ground floor plan
with site context 4 5 6 7 8 9 10 15 1. Weaving area 2. Admin space 3. Storage for raw silk 4. Degumming area 5. Dyeing area 6. Drying area 7. Recreational area 8. Canteen for weavers 9. Washrooms 10. Retail area 11. Dormitory 12. Auction area 13. Public front 14. Parking 15. Service entry 1 2 3
3 Wall section of weaving area Intent models Circulation Wind flow Un-hinge Aperture Wind channeling Circulation Enclosure Privacy Privacy AD VII WEAVING CENTER I WALL SECTION
Section 1 Section
Weaving area section view
AD VII WEAVING WEAVING Weaving area circulation,wind
Weaving area view
Section 2 WEAVING CENTER I WEAVING SPACE PLAN
circulation,wind movement and sunlight path entering inside
Physical model

Institute Design

Culinary Institute Sem 06 , 2022

Studio guides:

Asst Prof Surendran Aalone

Asst Prof Kiran Kumar

Prof S G Srinivas

Prof Ryan Thomas

The client is a third-generation farming family, who passed out from Centre For Food, Durham College, Canada and wants to build an institution from nature’s point of view. The program is a cooking school and would be based on “field-to-fork concept”. It will include harvest, storage, processing, packaging, sale and consumption of food, with a strong focus on the production of local food for local consumers.

PRECONDITIONS:

The place of learning needs to be physically connected to the place of growing.

Pavilion in a garden.

The spatial grid needs to be articulated

Site Location - Crescent University, Chennai

Site Area - 4000m²

Splitting of the block at the end to accommodate the tree, giving ambience for the restaurant space in the ground floor

MASSING FSI = 1.5 BUILT UP AREA = 4365m GROUND COVERAGE = 1297m² / 32.4% TOTAL HEIGHT = 24m MASSING 2 FSI = 1.5 BUILT UP AREA = 5500m GROUND COVERAGE = 1350m² / 33.75% TOTAL HEIGHT = 20m MASSING 3 FSI = 1.5 BUILT UP AREA = 4540m GROUND COVERAGE = 1310m² / 32.75% TOTAL HEIGHT = 24m ASSIGNMENT 04_MASSING STUDIES SHREYAS C MAHIT MASSING 4 FSI = 1.5 BUILT UP AREA = 5200m GROUND COVERAGE = 1310m² / 32.75% TOTAL HEIGHT = 20m MASSING 5 FSI = 1.5 BUILT UP AREA = 4460m GROUND COVERAGE = 1320m² 33% TOTAL HEIGHT = 24m MASSING 6 FSI = 1.5 BUILT UP AREA = 5550 GROUND COVERAGE = 1305m² / 32.6% TOTAL HEIGHT = 20m ASSIGNMENT 04_MASSING STUDIES SHREYAS C MAHIT Massing model development
1. Massing helping in vertical connection
1 1 1 2 2 2
2. Massing helping for gathering at one place
`
1. The place of learning needs to be physically connected to the place of growing. 3. The spatial grid needs to be articulated 2. Pavilion in a garden. 1. Stepped place of growing 2. Consecutive floors used for place of growing 1. Single block split in two 2. Main planter box is design in the front to attain visual focus
PROCESS

Accomodation

Lecture room 3

Locker room and washroom

Kitchen 3

Library

Skill test kitchen

Demonstration class

Kitchen and dining

Lecture room 2

Student lounge

Locker room and washroom

Kitchen 2

Research lab

Multipurpose hall

Demonstration class

Lecture room 1

Computer lab

Kitchen 1

Admin area

Processing and packing

Restaurant Retail

Exploded view
Roof
1 5 8 7 6 7 9 12 13 13 Ground floor plan

1. Storage for Arecanut 2. Cold and dry storage 3. Processing and packing 4.Retail 5. Restaurant 6. Parking 7. Arecanut trees 8. Rice cultivation 9. Ginger farm

10. Coconut and Banana farm 11. Front farm 12. Mechanical Science block

Accomodation

4
11 10 13 10 6 Road
13.
3 2 5 1
Road with site context
Pedestrian entry
Aerial view of the institute with the context.
View from the 3rd floor towards the areca nut farm. View from the areca nut farm towards the institute

Working Drawings

Housing unit deisgn Sem 06 , 2022

Studio guides:

Asst Prof Surendran Aalone

Prof S G Srinivas

Prof Manoj Ladhad

Asst Prof Gregory M Anto

Asst Prof Thyagarajan C

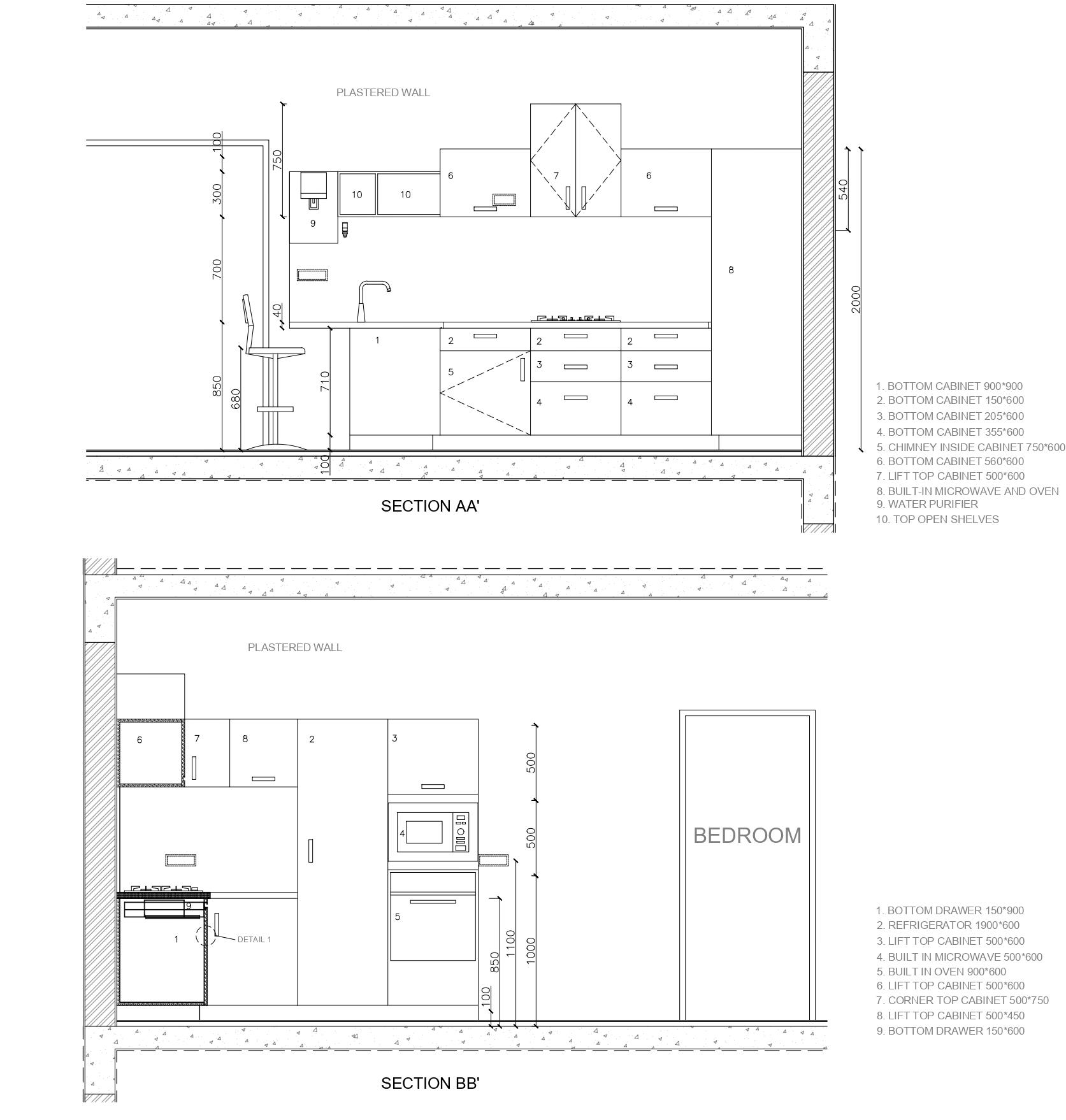
The primary role or function of working drawings is to convert design data into construction information and to clearly communicate that information to building industry etc. A unit from the 4th semester housing project chosen and the detailed drawings are made which include the beam layout, electrical layout, kitchen and toilet drawings and wall sections.vvvv

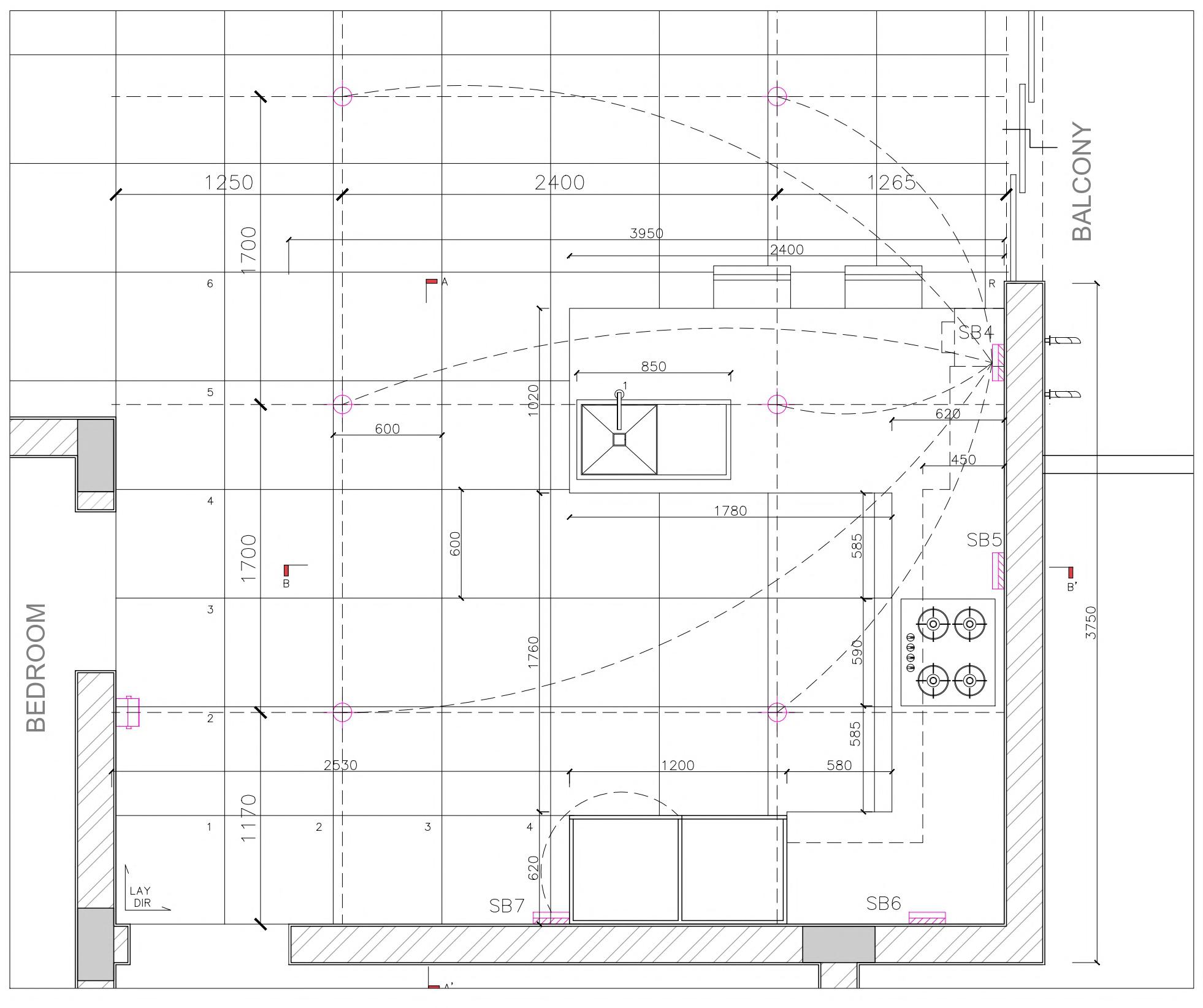
Site location - Gokulam park, Mysore Unit area – 130m²

Unit Architectural plan
Unit Electrical conduit
Unit Beam and Slab layout
Toilet Plan
Kitchen Plan
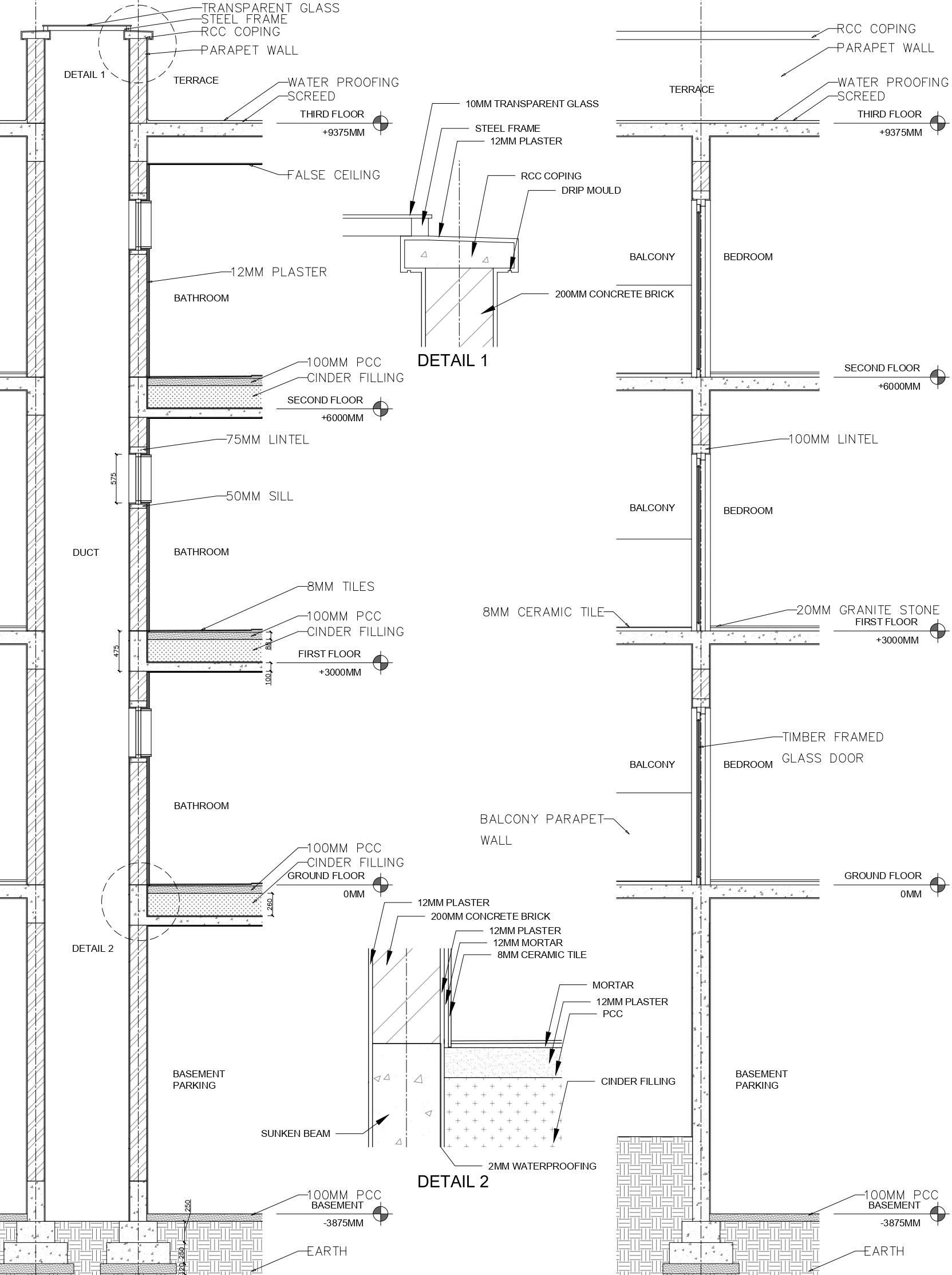
Wall Sections
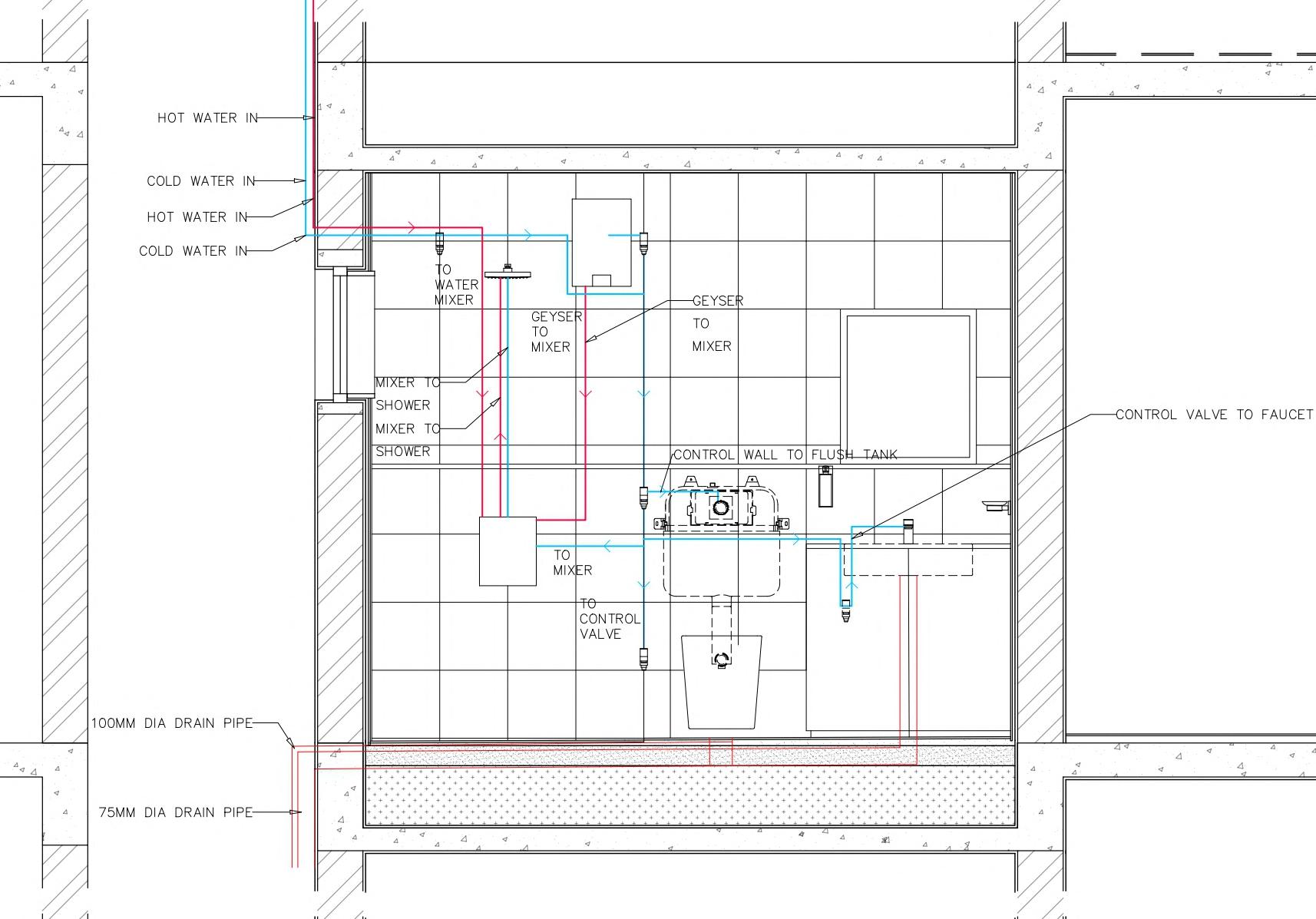
Toilet Plumbing
Toilet Section BB’ Detail
Toilet Section AA’
Kitchen Section
MODEL NO. TYPE NO. VENDOR TYPE REMARKS 01 02 03 04 05 06 SPECIFICATION 40937 Outline, bronze PHILIPS WP1,2,3,4,5,6,8,9 5W - LED WALL LIGHTS Star Surface, White PHILIPS CP1,2,3,4,5,6,7,8,9,10, 11,12,13,14,15,41,42 7W - LED CEILING LIGHTS FOR LIVING AND DINING 1 x E27 bulb, Metal, glass, Black, 220-240 V 919215850237 PHILIPS 8W WALL LIGHTS FOR BEDROOM WP7,10,11,12 5W, Aluminium, Black, IP 65 PHILIPS 5W - LED OUTDOOR WALL LIGHT WP27,28,29,30,31,32, 33,34 1 x E27 bulb, Aluminium, Gold, 220-240 V PHILIPS FLOOR LAMP 3W FL1,2,3,4,5,6,7,8,9, 10,11,12 FHCSBSTDUC52 HAVELLS 1200 mm Special Finish Fan STEALTH AIR CRUISE CEILING FAN CF1,2,3,4,5 SPECIFICATIONS Specifications Switch box matrix Detail 1 Section BB’
+91 6363725302
shreyascmahit2001@gmail.com

Turn static files into dynamic content formats.

Create a flipbook
Issuu converts static files into: digital portfolios, online yearbooks, online catalogs, digital photo albums and more. Sign up and create your flipbook.