ARCHITECTURE PORTFOLIO | SHRAMESH SHAKYA

Page 1

PORTFOLIO
SHAKYA | 2080
SHRAMESH

SHRAMESH SHAKYA

Hello, I’m a 3rd year undergraduate architecture student at Thapathali Campus, Nepal, aspiring to bring my imaginations & sketches to reality. Delving into architecture I’ve found a different approach to everyday life, seeing everything in a new light. As an aspiring Architecture student, nothing excites me more than imagining what architectural journey awaits me.

Mobile no.: +977 9861824774

Email: shrameshshakya@gmail.com

Address: Chabahil-07, Kathmandu, Nepal

Linkedin: www.linkedin.com/in/shramesh-shakya

PORTFOLIO |2080

EDUCATION

KU City School, Saraswotinagar, Kathmandu 2062-2073

School Education Examination (S.E.E)

National School of Sciences (NIST), Lainchaur Kathmandu 2073-2077 10+2 (School Leaving Certificate/S.L.C)

I.O.E., Thapathali Engineering Campus, Thapathali, Kathmandu 2077-Today Bachelor’s in Architecture (B.Arch)

SKILLS

CAD/BIM AutoCad | Sketchup

Rendering V-Ray | Enscape

Adobe Photoshop | Indesign | Illustrator

MS Office Word | Excel | Powerpoint

PARTICIPATIONS

Utsarga_079 Model Making Team

Hilly Vernacular Architecture

Yathartha_080 Model Making Team

Krishna Degah, Patan

Yathartha_080 Place Making Workshop

Speaker: Ar. Niharika Mathema

INTERESTS

Sketching

Model Making

Photo editing

COMPETITIONS

Utsarga_2079

Photobooth Design Competition

Marga_2080

The Pedestrian Pulse

Yathartha_2080

Adaptive Reuse of Juddha Barun Yantra

CURRICULUM VITAE
PORTFOLIO |Shramesh Shakya BAIKUNTHA AMUSEMENT FACTORY LUKAMARI 01 02 03
CONTENTS |Selected Works
AGNIPATH MODELS
05 06
MISCELLANEOUS
04

A Scenic Retreat

Location: Thecho, Lalitpur

Typology: Residential

Year: 2023

Nestled amidst picturesque landscapes, BAIKUNTHA seamlessly blends traditional charm with modern elegance, framing breathtaking eastern vistas at every turn. This haven is meticulously crafted to capture not just scenic beauty, but also the essence of life’s moments. Designed as a tranquil retreat, it offers a perfect balance of relaxation and rejuvenation, inviting inhabitants to immerse themselves in serene surroundings and create cherished memories. Welcome to a place where architecture meets tranquility, and every moment is a canvas for beauty and bliss.

PORTFOLIO |Shramesh Shakya
BAIKUNTHA|Selected Works

MASTER PLAN

Designed in a way that there’s scenic background at every turn. Designed to capture the best of moments in the best of backgrounds.

Combination of modern architecture with traditional materials like wood & brick brings new life to the spaces within.

PORTFOLIO |Shramesh Shakya 3
Initially conceptualized
4
sketch
conceptualized
PORTFOLIO |Shramesh Shakya
6 BAIKUNTHA |Selected Works
SECTION AT X-X
PORTFOLIO |Shramesh Shakya 7
SECTION MASTER BEDROOM FAMILY ROOM
8 BAIKUNTHA |Selected Works
SECTION AT Y-Y DINING ROOM LIVING ROOM

AMUSEMENT FACTORY

A Potato Chips & Vodka Factory

Location: Hattiban, Lalitpur

Typology: Mixed Used Urban Manufacturing

Mentors: Ar. Niranjan Shrestha Ar. Ranjan Prajapati

Year: 2024

Amidst the monotony of Hattiban’s to-be concrete jungle, the Amusement Factory emerges as a beacon of change, injecting life and excitement into the urban landscape. Gone are the rigid and bland structures, replaced instead by a vibrant tapestry of amusing shapes and forms that ignite curiosity and engage the senses. Placemaking initiative transforms normal greenery into bustling hubs of activity, while a rentable platform for events becomes a focal point for community gatherings. Thrill-seekers find their fix through exhilarating activities, while self-production workshops offer a unique twist with hands-on experiences crafting potato chips and potato vodka. With the Amusement Factory leading the charge, Hattiban sheds its tiredness and dullness, blossoming into a dynamic haven of entertainment and creativity.

PORTFOLIO |Shramesh Shakya 9

Site context: The site features contoured land layers, with the busy eastern side near a major road junction and bus stop. However, the western area is isolated but offers scenic cityscape views. Surrounded by residential buildings, it holds untapped potential for development.

Envisioning the future scenarios people tend to concentrate at the aimed at opening the Northeast for all park as a relief for the concentrated means to attract people within site

PORTFOLIO |Shramesh Shakya 11

scenarios of the area, circulation of the junction/bus stop. Design portion of the site as a open concentrated population & as a site premises.

Designing the park as a vantage point for many attractions the design has to offer. Open for all park to keep people occupied & attractions at various levels to incite curiosity to further mobilize/ disperse some of the population towards the many activities offered within the site.

12
AMUSEMENT FACTORY|Selected Works

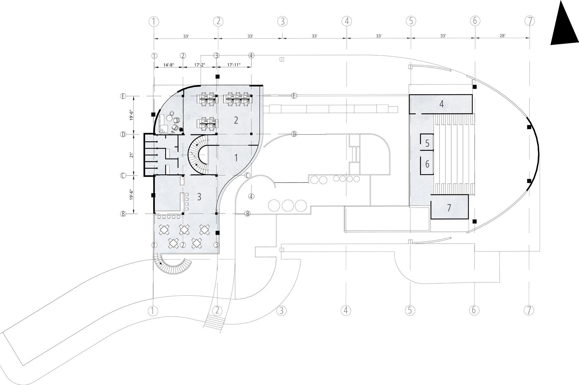
1. Public Park

2. Paintball Park

3. Retails + Outlets

4. Cafeteria

5. Event hall

6. Ticketing

7. Workshop/Outlet

8. Technical I

9. Warehouse II

10. Vodka Distillery

11. Quality check/laboratory

12. Chips production line

13. Conference room

14. Staff quarters/changing/toilets

15. Potato prep room

16. Warehouse I

17. Tools storage

18. Potato cultivation

19. Dispatch dock

PORTFOLIO |Shramesh Shakya 13
14 AMUSEMENT FACTORY|Selected Works

In the heart of the bustling city to be, Amusement Factory offers an oasis amidst the concrete jungle. Here, weary commuters accompanied by the joyful screams of riders. Yet, beyond the thrills, the park offers a sanctuary for the soul, a place where In this vibrant park, amidst the chaos of urban life,

15

commuters find solace from the daily grind as they wait for their buses. Towering roller coaster capture their attention, where friends gather beneath shady trees, lost in conversation, and where every corner holds the promise of amusement. people find respite, laughter, and the simple joys.

16

1. Waiting

2. Executive office

3. Managerial office

4. Meeting room

5. Balcony/Viewing deck

1. Viewing deck

2. Admin

3. Cafeteria

4. Changings

5. Technical 1

6. Technical 2

7. Waiting/Practice

PORTFOLIO |Shramesh Shakya 17
18 AMUSEMENT FACTORY|Selected Works
PORTFOLIO |Shramesh Shakya 19
STAFF CAFETERIA OVERLOOKING THE PRODUCTION AREA ROOF TOP ROLLER
20
OUTLETS &
AMUSEMENT FACTORY|Selected Works
ROLLER COASTER RETAILS,
CAFETERIA

ARTS MUSEUM

Project: Design studio V project

Typology: Commercial

Location: Balmandir, Naxal, Kathmandu

Type: Adaptive reuse

Supervisors: Ar. Chandra Hakumila Prajapati Ar. Prajal Pradhan

Year: 2023

Tucked away amidst the urban bustle, yet captivated in a tranquil setting reminiscent of a forest, LUKAMARI arts museum stands on the grounds of a historic Rana palace. Its design aims to evoke a sense of hide-and-seek, echoing the palace’s past as an orphanage by infusing playful elements into the visitor’s journey. Inspired by the palace’s hidden allure, the museum’s layout strategically hints at the grandeur of the structure, sparking curiosity along the way. Through carefully crafted spaces and whimsical touches, the museum encourages visitors to embrace the joy of exploration, culminating in the awe-inspiring revelation of the palace as the masterpiece, awaiting discovery at journey’s end.

PORTFOLIO |Shramesh Shakya 21

People admire the artworks, installations & the crafts within the old palaces turned museum. However, they forget the palaces throughout the day & throughout the seasons go unnoticed just how Balmandir stood right in front of the general museum premises & reveals bit by bit, teasing the

23
PORTFOLIO|Shramesh Shakya

the beauty of the architecture itself. The beauty of the dynamic art that nature paints on the white stucco canvas of the general public & no one noticed. The museum aims to capture this beauty & nature of the palace that hides within the viewers’ curiosity & keeping the journey engaging.

24
LUKAMARI|Selected Works
Transitioning through dark towards light Gallery I

People admire the artworks, installations & the crafts within the old palaces turned museum. However, they forget the palaces throughout the day & throughout the seasons go unnoticed just how Balmandir stood right in front of the general within the museum premises & reveals bit by bit, teasing

PORTFOLIO|Shramesh Shakya

the beauty of the architecture itself. The beauty of the dynamic art that nature paints on the white stucco canvas of the general public & no one noticed. The museum aims to capture this beauty & enriched history of the palace that hides teasing the viewers’ curiosity & keeping the journey engaging.

LUKAMARI|Selected Works

A JOURNEY THROUGH FLAMES

Competition: Yathartha: Juddha Barun Yantra

Team: Samikshya Shrestha, Sukriti Gyawali

Type: Adaptive reuse

Year: 2024

About Competition: The competition aimed at participants to transform the existing and underutilized Juddha Barun Yantra building into a vibrant architectural masterpiece. The goal was to encourage designers to think outside the box and reimagine the iconic structure as a blank canvas awaiting their innovative ideas.

About AGNIPATH: The Forest Fire Museum embodies a fusion of history, architecture, and environmental awareness. Retaining the neoclassical charm of the oldest fire station in Nepal, the museum’s design delicately intertwines the past purpose of firefighting with a contemporary narrative on forest fires and their consequences.

Through innovative exhibits, the visitors embark on a journey from the ignition of a spark to the devastation of landscapes. Each space reflects a facet of the forest fire narrative, inviting reflection and inspiring collective efforts towards protection of natural ecosystems.

PORTFOLIO |Shramesh Shakya 29
PORTFOLIO |Shramesh Shakya 31

ENGULFING CHAMBER

The museum’s design blends neoclassical elements with contemporary twists, symbolizing the unpredictability of fire. Visitors ascend a circular staircase past a sculptural representation of fire’s start, then enter the ENGULFING CHAMBER, filled with red crystals that glow when someone passes by, representing forest fires. Transitioning to the CONSEQUENCES CHAMBER, visitors encounter a warm, dry environment evoking post-fire landscapes. The REFLECTION PAVILLION offers a view of Bhugol Park, urging visitors to preserve green spaces. Finally, the BREAKOUT OASIS provides a tranquil space for reflection before exiting via a staircase resembling fire exits.

REFLECTION PAVILLION

To know more about forest fire impacts in Kathmandu.

CONSEQUENCE CHAMBER

AGNIPATH |Selected Works

A SCALED MODEL OF

Scale : 1:30

Event: Yathartha Model making

Year: 2024

Team Members:

Anish Shrestha

Dikshya Maharjan Radhika Shrestha Benju Kiran Parajuli

Sakshyam Shakya Reeya Maharjan Nikita Budhair

Sarina Basnet Sushant Shakya Smriti Maharjan

Goshila Aryal Ichha Bhandari Samriddhi Aryal

PORTFOLIO |Shramesh Shakya 33
MODELS |Selected Works

A SCALED MODEL OF HILLY VERNACULAR ARCHITECTURE

Scale : 1:30

Event: Utsarga Model Making

Year: 2023

Team Members:

Sushmita Gautam Smriti Acharya Kriti Karki

Milan Shrestha Bishal Bardewa

PORTFOLIO |Shramesh Shakya
36 MODELS |Selected Works
BOSCO VERTICALE (Scaled model) CAFE RESTAURANT MODEL RESIDENCE DESIGN (Scaled model)

GROUND FLOOR PLAN

PLINTH AREA: 1448.38 SQ.FT.

MISCELLANEOUS

A collection of arts, sketches & detailed drawings.

1

2

3

4

5

6

7

PORTFOLIO |Shramesh Shakya 37
N UP UP DOWN LVL. -1'-6" LVL. ±0'-0" LVL. +4'-0" LVL. +6'-0" LVL. ±0'-0" LVL. -1'-6" 1 2 3 4 5 6 7 8 9 10 11 12 13 14 15 16 17 18 19 20 1 2 3 4 5 6 7 8 9 10 11 12 13 14 15 16 17 18 19 12' 12' 12' 36' 42'-8" 3' 2'-6" 3' 3'-6" 11' 3'
3'
36' 12' 12' 12'
2'-3"
3'
2'-3" 3'
3'
32' 10' 12' 10' 36'-11" 3'-6" 3'-6" RISER TREAD WF3, FF3, CF2 WF1, FF2, CF1 WF4, FF3, CF2 WF4, FF3, CF2 WF2, FF4 WF4, FF3, CF2 WF4, FF3, CF2 WF2, FF4 Y Y X X MD D2 D2 D2 D2 D3 W1 W1 W1 W1 W2 W2 W4 W4 W4 W4 W4 W4 W3 W3 W3 W3 W3 W3 W3 W3 W1 W1 W7 A B C D A B C D 1 2 3 4 1 2 3 4 2'-9" 2' 3'-6" 2'-9" 3'-6" 4' 3'-6" 2' 3' 2' 4' 3'-3" 2 3 1 4 5 6 LEGENDS NO. ROOM SIZE
2'-6"
3'-6"
37'-8"
3' 2'-6"
2'-3"
2'-6"
2'-3" 11'
LOBBY 8'-9" X 11'-0"
GUEST BEDROOM 9'-0" X 14'-0"
HOME OFFICE 9'-0" X 14'-0"
DINING ROOM 14'-9" X 11'-0"
LIVING ROOM 19'-3" X 11'-6"
KITCHEN 12'-9" X 11'-6"
COMMON TOILET 5'-0" X 6'-0" z z 32' 10' 12' 10' 36'-11" 2'-9" 2' 3'-6" 2'-9" 3'-6" 4' 3'-6" 2' 3' 2' 4' 3'-3"

OPEN TERRACE

LVL. +20'-0"

9" X 14" RCC BEAM

12" THK VENETIAN PLASTER

9" THK BRICK WALL IN C/S RATIO (1:5)

5" THK LINTEL BAND

12" MARBLE FLOOR FINISH

1" THK SCREED (1:2:4)

5" THK RCC SLAB IN THE RATIO (1:2:3)

9" X 14" RCC BEAM

12" TERRACOTTA TILE FINISH

1" THK SCREED (1:2:4)

5"THK RCC SLAB IN THE RATIO (1:2:3)

12" THK GYPSUM PLASTER ON CEILING

4" X 3" SALWOOD FRAME

4" X 3" SALWOOD FRAME

4MM THK TRANSPARENT GLASS

4" X 3" SALWOOD TRANSOM

12" HARDWOOD FLOOR FINISH

1" THK SCREED (1:2:4)

5" THK RCC SLAB IN THE RATIO (1:2:3)

12" THK GYPSUM PLASTER ON CEILING

12" THK VENETIAN PLASTER

9" THK BRICK WALL IN C/S RATIO (1:5)

5" THK LINTEL BAND

12" MARBLE FLOOR FINISH

1" THK SCREED (1:2:4)

5" THK RCC SLAB IN THE RATIO (1:2:3)

12" THK CEMENT PLASTER ON CEILING

12" HARDWOOD FLOOR FINISH

1" THK SCREED (1:2:4)

5" THK RCC SLAB IN THE RATIO (1:2:3)

12" THK GYPSUM PLASTER ON CEILING

12" THK VENETIAN PLASTER

9" THK BRICK WALL IN C/S RATIO (1:5)

5" THK LINTEL BAND

4" X 3" SALWOOD FRAME

4MM THK TRANSPARENT GLASS

4" X 3" SALWOOD TRANSOM

5" THK LINTEL BAND

APRON DRAIN

12" THK CEMENT PLASTER

1" THK SCREED

3" THK PCC (1:3:6)

1 LAYER BRICK SOLING

ISOLATED FOOTING

3" THK PCC (1:3:6)

ONE LAYER BRICK ON FLAT SOLING

9" THK BRICK SLEEPER WALL

9" X 9" LOWER TIE BEAM

12" THK MARBLE FLOOR FINISH

1" THK SCREED (1:2:4)

3" THK PCC (1:3:6)

ONE LAYER BRICK ON FLAT SOLING

6" THK SAND FILLING

6" THK HARDCORE

EARTH COMPACTION

38 6' VERTICAL WALL SECTION AT Z-Z ON GRID 1 LVL. ±0'-0" LVL. -1'-6"
W2
BALCONY BALCONY
4' 5' 1 7' 1 MASTER BEDROOM LVL. +10'-0" LVL. +20'-0" W2 W1
EARTH COMPACTION
10' 9'-8"
WORKING DRAWING |Selected Works

Year: 2021

Year: 2021

PORTFOLIO |Shramesh Shakya 39
Still life sketch Newari Jhyah
40 WALL OF ARTS |Selected Works
Samurai portrait Year: 2019

Year: 2019

Year: 2021

PORTFOLIO |Shramesh Shakya 41
Character portrait Year: 2022 White Tara Year: 2023 Character portrait Spiderman portrait
42 WALL OF ARTS |Selected Works
Kumari portrait Year: 2019
Email: shrameshshakya@gmail.com | Mobile no.: +977 9861824774 THANK YOU !!

Turn static files into dynamic content formats.

Create a flipbook
Issuu converts static files into: digital portfolios, online yearbooks, online catalogs, digital photo albums and more. Sign up and create your flipbook.