Shoayb Khan Internship Portfolio

Page 1

WALKWAY2MWIDE WIDE3MWALKWAY WALKWAY3MWIDEWALKWAY3MWIDE WIDE3MWALKWAY WIDE2.5MWALKWAY STAIRLOBBY13.0X5.0 LIFTACCESSTOBASEMENT LIFTLOBBY4.0X6.20 LAUNDRYSTORES22.30X11.00 14.00X13.00PHARMACYSTORES DEPARTMENTBIO-MEDICAL17.0X11.00 2.95X5.75SERVICETOILET6.0X5.0LIFTLIFT STAIRLIFTLIFTLOBBY13.50X5.00ANTESPACE5.50X4.60 RECORDROOM6.35X7.60 MORTUARY15.10X25.80 WIDE4.0MWALKWAYWIDE4.0MWALKWAY WIDE3.0MWALKWAY WORKSHOP5.50X18.80 RADIOTHERAPY26.70X14.50 WAITINGBAY9.75X11.80 BACTERIOLOGY12.90X8.0POURINGMEDIA4.0X8.0 PARASITOLOGYPREPARATIONMEDIA5.50X8.0WALKWAY2.0MWIDE6.3X5.4IMMUNOLOGY4.80X5.4 5.6X5.4ICTC WAITING14No.5.5X7.40 STAFFTOILET5.50X6.50 STAIRLIFTLOBBY6.50X5.8WALKWAY2.2MWIDECENTRALLABSTOREROOM9.80X7.8STAIRLIFTLOBBY5.50X5.8 MYCOBACTERIOLOGY/MOLECULARLAB10.0X5.2MYCOLOGY10.0X6.0SEROLOGY10.0X6.0 WIDE2.0MWALKWAY SERVICES9.85X4.2MEDICALWASTESTORE9.80X4.2WASTESTORE9.80X19.20MEDICALMEDICALRECORDSDEPARTMENT18.0X19.0RECORDSDEPARTMENT9.70X6.50 LIFTLIFT LIFT LIFT LIFTLIFT LIFTLIFT STPPUMPROOM9.30X17.50FIRESUMP/PUMPROOM9.30X7.40PUMPROOM9.30X7.40 DRIVEWAY5.8MWIDE DEPARTMENTCENTRALCENTRALSTERILESUPPLYDEPARTMENT(STERILE)15.10X7.40STERILESUPPLY(NON-STERILE)15.10X15.0 28.15X15.60LAUNDRY DRIVEWAY5.8MWIDE VANWAITINGBAY21.30X5.80 CTSIMULATORROOM6.40X5.00WALKWAY2MWIDETOWARDSMLCPLINEARACCELERATORCTSCAN6.70X7.00 CTCONTROLROOM6.70X7.00CORRIDORWIDE2.20m LIFT 11/53D,SripuramColony1ststreet,SaintThomasMount,(Opp.BankofBaroda)Chennai600016,TamilNadu,IndiaTel:+914422333587Email:ksm@ksmindia.com NOTES www.ksmindia.com ALLDIMENSIONSARE MILLIMETERS -THE-ALL-THISDRAWINGISACOPYRIGHTANDPROPERTYOFTHEARCHITECT,ISNOTTOBEPRODUCED,COPIED,HANDEDOVERTOTHIRDPARTYORUSEDFORANYOTHERPURPOSEOTHERTHANFORWHICHISINTENDED.DIMENSIONSSHALLBEVERIFIEDONSITEPRIORTOSTARTOFWORKANYDISCREPANCYSHALLBEBROUGHTTOTHENOTICEOFTHEARCHITECT.CONSTRUCTIONMANAGER/CONTRACTORMUSTCHECKALLDIMENSIONSANDDETAILSANDBERESPONSIBLEFORTHESAME.ANYDISCREPANCYSHALLBEBROUGHTTOTHENOTICEOFTHEARCHITECT. -IF-THIS-THECONSTRUCTIONMANAGER/CONTRACTORMUSTCHECKALLDIMENSIONSANDDETAILSANDBERESPONSIBLEFORTHESAME.ANYDISCREPANCYSHALLBEBROUGHTTOTHENOTICEOFTHEARCHITECT.DRAWINGSHALLBEREADINCONJUNCTIONWITHALLRELEVANTARCHITECTURAL,STRUCTURALANDSERVICESDRAWINGS.ANYDISCREPANCYNOTICEDSHALLBEBROUGHTTOTHEATTENTIONOFTHECONSULTANTSWITHINREASONABLETIMEOFRECEIPTOFTHISDRAWINGS,BUTALWAYSPRIORTOPROCUREMENTEXECUTIONOFWORKS.VARIATIONSAREFOUNDBETWEENTHEDRAWINGSANDTHETECHNICALSPECIFICATIONSORREQUIREMENTOFADDITIONALINFORMATIONTOFULFILLTHEINTENTOFTHEDESIGNFOUNDDURINGEXECUTIONOFTHEWORK,THEDECISIONASTOWHATISTOBEAPPLIEDORANYFURTHERINFORMATIONFURNISHEDBYTHEARCHITECT/PM/CONSULTANTSHALLBEFINALANDBINDINGONTHECONTRACTOR REVDATE DESCRIPTION CHKDDRN HVACELECTRICALPHESTRUCTURALCONSULTANTCONSULTANTCONSULTANTCONSULTANT PROJECTDRAWINGCLIENT DATESCALE CHECKEDDRAWN PROJECT STATUSSHEETSIZE REVDATE DESCRIPTION CHKDDRN SC SCNMV A1 SMSK23.07.211:250NMV-UniversityHospital-FloorPlans NMV-University BASEMENTFLOORPLAN N

TOBASEMENT HELPDESK/KIOSK REFRESHMENTKIOSK 3.35X6.10ULTRA VERANDAHTOACCESSLIFTCOREFORFOODSERVICE.HT3MFORVEHICLECLEARANCE CHANGE 4.35X3.20TOILETULTRA3.15X6.0CHANGEULTRA3.15X4.803.35X3.10WAITING12No.5.75X6.0ULTRAWALKWAY2.4MWIDE WAITING30No.12.625X6.0 5.57X5.80RECORD CONTROLMRIEQUIP6.85X6.00MRISCAN6.85X6.00RM3.85X6.20CHANGE3.00X3.20CHANGE3.00X3.20 RECEPTIONWAITING48No.11.35X8.804.50X5.80XRAY6.85X5.80CTSCAN 4.65X3.80XRAY 4.65X3.80XRAY 4.65X3.80XRAY WALKWAY2.0MWIDE WALKWAY2.3MWIDELANDSCAPECOURT9.75X9.40TOILET7.20X5.80TOILET7.20X5.50 6.40X6.0OT 6.0X6.0OT 6.0X6.0OT 4.95X6.0PACU OTSTORE3.90X5.80 WIDE2.4MWALKWAY WALKWAY3.4MWIDE WALKWAY3.4MWIDE 6.40X2.206.40X6.0OTUTILITY FIREEXIT 2.95X6.4LOBBY LIFT ANESTHETISTOFFICE4.55X3.80 PHARMACY4.55X3.80 PREPROOM4.95X6.20 DOCTORSOFFICE4.75X6.20 MEETINGROOMS6.30X3.80 LANDSCAPECOURT9.75X5.90 LIFT DECONTAMINATIONWAITING48No.8.15X10.20TRIAGE3.40X11.30EROFFICE4.90X4.04.90X3.60RESUSCITATION4.50X7.60ERICU30BED11.90X30.0NURSESTATION WIDE3.0MWALKWAY LIFTLOBBY4.0X7.60 STUDENT/I.PENTRY12.10X4.40 WIDE2.4MWALKWAY CENTRALRAMPACCESSCONNECTINGSPINE69.0X5.0 8.80X5.0LOBBY8.80X5.0LOBBY LANDSCAPECOURT13.0X8.5 LANDSCAPECOURT13.0X18.0 LANDSCAPECOURT13.0X8.5 REGISTRATIONINFORMATIONSTAIRCASE STAIRCASEREGISTRATIONINFORMATION REFRESHMENTKIOSK ARRIVALCONCOURSE4.0MWIDE LANDSCAPECOURT29.0X7.50 LANDSCAPECOURT15.0X7.50 LANDSCAPECOURT29.0X7.50 ENTRYTOLOBBY ENTRYTOLOBBY DOUBLEHEIGHTLOBBY WAITING68No.15.0X14.0 WAITING68No.15.0X14.0 LIFTLIFT LIFTLIFT 7.20X7.40TOILETS STAFFSUPPORTDINING9.55X15.20 3.20X10.80WASHHAND 15.10X18.80KITCHEN ELECTRICALROOM6.15X10.40 VERANDAHTOACCESSLIFTCOREFORFOODSERVICE.HT3MFORVEHICLECLEARANCECONFERENCE8.35X6.00PHYSICALMEDICALREHAB14.65X23.80CEO4.30X6.00STORE3.35X6.00TOI2.2X1.63TOILETS7.20X5.80STAFFDINING15.10X15.10 2.0X2.4TOI 3.45X6.20DMS ADMINOPENOFFICE14.95X12.00CHANGEROOMS6.30X5.10CHANGEROOMS6.30X5.10M.R3.35X3.00M.R3.35X3.002.2X1.63TOI LANDSCAPECOURT9.75X17.80 STAIRS 3.40mWIDECORRIDOR CORRIDORWIDE3.40m CORRIDORWIDE2.35mCORRIDORWIDE2.35m LANDSCAPECOURT9.75X10.40 PHARMACY10.0X6.0 ESCALATORACCESS ESCALATORACCESS LIFT LIFT WAITING40No. WAITING40No. DOUBLEHEIGHTLOBBY LIFTLIFT LIFTLIFT SCRUB/CHANGE4.75X2.9TREATMENTRM4.75X3.10 4.95X3.60SERVICE LANDSCAPECOURT9.75X4.40 11/53D,SripuramColony1ststreet,SaintThomasMount,(Opp.BankofBaroda)Chennai600016,TamilNadu,IndiaTel:+914422333587Email:ksm@ksmindia.com NOTES www.ksmindia.com ALLDIMENSIONSARE MILLIMETERS -THE-ALL-THISDRAWINGISACOPYRIGHTANDPROPERTYOFTHEARCHITECT,ISNOTTOBEPRODUCED,COPIED,HANDEDOVERTOTHIRDPARTYORUSEDFORANYOTHERPURPOSEOTHERTHANFORWHICHISINTENDED.DIMENSIONSSHALLBEVERIFIEDONSITEPRIORTOSTARTOFWORKANYDISCREPANCYSHALLBEBROUGHTTOTHENOTICEOFTHEARCHITECT.CONSTRUCTIONMANAGER/CONTRACTORMUSTCHECKALLDIMENSIONSANDDETAILSANDBERESPONSIBLEFORTHESAME.ANYDISCREPANCYSHALLBEBROUGHTTOTHENOTICEOFTHEARCHITECT. -IF-THIS-THECONSTRUCTIONMANAGER/CONTRACTORMUSTCHECKALLDIMENSIONSANDDETAILSANDBERESPONSIBLEFORTHESAME.ANYDISCREPANCYSHALLBEBROUGHTTOTHENOTICEOFTHEARCHITECT.DRAWINGSHALLBEREADINCONJUNCTIONWITHALLRELEVANTARCHITECTURAL,STRUCTURALANDSERVICESDRAWINGS.ANYDISCREPANCYNOTICEDSHALLBEBROUGHTTOTHEATTENTIONOFTHECONSULTANTSWITHINREASONABLETIMEOFRECEIPTOFTHISDRAWINGS,BUTALWAYSPRIORTOPROCUREMENTEXECUTIONOFWORKS.VARIATIONSAREFOUNDBETWEENTHEDRAWINGSANDTHETECHNICALSPECIFICATIONSORREQUIREMENTOFADDITIONALINFORMATIONTOFULFILLTHEINTENTOFTHEDESIGNFOUNDDURINGEXECUTIONOFTHEWORK,THEDECISIONASTOWHATISTOBEAPPLIEDORANYFURTHERINFORMATIONFURNISHEDBYTHEARCHITECT/PM/CONSULTANTSHALLBEFINALANDBINDINGONTHECONTRACTOR REVDATE DESCRIPTION CHKDDRN HVACELECTRICALPHESTRUCTURALCONSULTANTCONSULTANTCONSULTANTCONSULTANT PROJECTDRAWINGCLIENT DATESCALE CHECKEDDRAWN PROJECT STATUSSHEETSIZE REVDATE DESCRIPTION CHKDDRN SC SCNMV A1 SMSK23.07.211:250NMV-UniversityHospital-FloorPlans NMV-University GROUNDFLOORPLAN N 1:1

STAFFTOIUTILITYROOM ACCESSRAMP 4.975X3.40DORMS4.525X4.00STAFFTOI DELIVERY6.35X4.40STATIONNURSEWAITINGSTORE3.30X3.00ROOM5.55X7.40 PROCESSINGMILKSTORE/ROOM9.55X7.408.15X5.90NICUBRIDGEROOFBELOWLANDSCAPE 5.275X4.30RECORDS STAIR HELPDESK/KIOSK STAIR TOBASEMENT 5.40mCENTRALSPINE 15.10X51.40FUTURE 7.20X7.407.20X5.80TOILETTOILET 15.10X51.40FUTURE 4.525X4.00STAFFTOI 4.975X3.40DORMS 8.15X5.90NICU 4.75X3.904.75X3.904.75X3.90NICUNICUNICU CORRIDORWIDE2.40m 1.50mWIDECORRIDOR CORRIDORWIDE1.50m DELIVERYROOM5.55X7.40 LABOURLABOURSUITE5.55X7.40SUITE5.55X7.40LABOURSUITE5.55X7.40 LABOURLABOURSUITE5.55X7.40SUITE5.55X7.407.20X7.407.20X5.80TOILETTOILETDIALYSIS26BEDS14.80X26.90WAITINGAREA SCRUB DEMONSTRATIONTOIROOM4.50X5.80HAEMATOLOGY5.275X3.50STORAGE3.6X6.503.60X6.50ENDO TOI3.60X5.80MEDICALOFFICER COLLECTIONREFRESHMENT3.00X3.604.20X6.50SCRUB3.2mWIDECORRIDORRECEPTION4.95X3.60ADMINROOF LANDSCAPECOURT13.0X8.5 LANDSCAPECOURT13.0X18.0 LANDSCAPECOURT13.0X8.5 LANDSCAPECOURT9.75X9.40LANDSCAPECOURT9.75X5.90LANDSCAPELANDSCAPECOURT9.75X17.80COURT9.75X10.40 LANDSCAPECOURT9.75X4.40 LIFTLIFT LIFTLIFT LIFTLIFT LIFTLIFT LIFT LIFT LIFT LIFT REFRESHMENTKIOSKREFRESHMENTKIOSK 11/53D,SripuramColony1ststreet,SaintThomasMount,(Opp.BankofBaroda)Chennai600016,TamilNadu,IndiaTel:+914422333587Email:ksm@ksmindia.com NOTES www.ksmindia.com ALLDIMENSIONSARE MILLIMETERS -THE-ALL-THISDRAWINGISACOPYRIGHTANDPROPERTYOFTHEARCHITECT,ISNOTTOBEPRODUCED,COPIED,HANDEDOVERTOTHIRDPARTYORUSEDFORANYOTHERPURPOSEOTHERTHANFORWHICHISINTENDED.DIMENSIONSSHALLBEVERIFIEDONSITEPRIORTOSTARTOFWORKANYDISCREPANCYSHALLBEBROUGHTTOTHENOTICEOFTHEARCHITECT.CONSTRUCTIONMANAGER/CONTRACTORMUSTCHECKALLDIMENSIONSANDDETAILSANDBERESPONSIBLEFORTHESAME.ANYDISCREPANCYSHALLBEBROUGHTTOTHENOTICEOFTHEARCHITECT. -IF-THIS-THECONSTRUCTIONMANAGER/CONTRACTORMUSTCHECKALLDIMENSIONSANDDETAILSANDBERESPONSIBLEFORTHESAME.ANYDISCREPANCYSHALLBEBROUGHTTOTHENOTICEOFTHEARCHITECT.DRAWINGSHALLBEREADINCONJUNCTIONWITHALLRELEVANTARCHITECTURAL,STRUCTURALANDSERVICESDRAWINGS.ANYDISCREPANCYNOTICEDSHALLBEBROUGHTTOTHEATTENTIONOFTHECONSULTANTSWITHINREASONABLETIMEOFRECEIPTOFTHISDRAWINGS,BUTALWAYSPRIORTOPROCUREMENTEXECUTIONOFWORKS.VARIATIONSAREFOUNDBETWEENTHEDRAWINGSANDTHETECHNICALSPECIFICATIONSORREQUIREMENTOFADDITIONALINFORMATIONTOFULFILLTHEINTENTOFTHEDESIGNFOUNDDURINGEXECUTIONOFTHEWORK,THEDECISIONASTOWHATISTOBEAPPLIEDORANYFURTHERINFORMATIONFURNISHEDBYTHEARCHITECT/PM/CONSULTANTSHALLBEFINALANDBINDINGONTHECONTRACTOR REVDATE DESCRIPTION CHKDDRN HVACELECTRICALPHESTRUCTURALCONSULTANTCONSULTANTCONSULTANTCONSULTANT PROJECTDRAWINGCLIENT DATESCALE CHECKEDDRAWN PROJECT STATUSSHEETSIZE REVDATE DESCRIPTION CHKDDRN SC SCNMV A1 SMSK23.07.211:250NMV-UniversityHospital-FloorPlans NMV-University MEZZANINEFLOORPLAN N

DIAGNOSTICS14.85X17.00ENDOSCOPY14.85X17.00 FOROVERNIGHTOFFICEHODROOMSSPACEDEMOROOMSDORMSNIGHTDUTYDOCTORS CONSULTATIONOUTPATIENTROOMS CONSULTATIONOUTPATIENTROOMS CONSULTATIONOUTPATIENTROOMS WAITINGAREA60SEATSSTAFFTOILETDOCTORTOI.STAFFTOISTAFFTOI LOBBY BRIDGEROOF 15.10X51.40FUTURE 7.20X7.407.20X5.80TOILETTOILET 15.10X51.40FUTURE TOBASEMENT ESCALATORACCESS ESCALATORACCESSWAITINGAREA120SEATS CONSULTATIONROOM3X3 STAIR STAIR COURTLANDSCAPEBELOW COURTLANDSCAPEBELOWCOURTLANDSCAPEBELOW ARRIVALCONCOURSEROOF WAITINGAREA40SEATSWAITINGAREA60SEATS WAITINGAREA60SEATS WAITINGAREA60SEATS WAITINGAREA60SEATS WAITINGAREA60SEATS WAITINGAREA60SEATSWAITINGAREA50SEATS WAITINGAREA204SEATS WAITINGAREA120SEATSTOILET7.20X5.80TOILET7.20X7.40 WAITINGAREA32SEATS WAITINGAREA32SEATS ACCESSRAMP NICU/DORMSROOF CONSULTATION91TOTALOUTPATIENTROOMS LANDSCAPECOURT13.0X8.5LANDSCAPECOURT13.0X18.0LANDSCAPECOURT13.0X8.5 LANDSCAPELANDSCAPECOURT9.75X9.40COURT9.75X5.90LANDSCAPELANDSCAPECOURT9.75X17.80COURT9.75X10.40 LANDSCAPECOURT9.75X4.40 STORES WAITINGAREA48SEATS LIFTLOBBY4.0X4.40LIFTLOBBY4.0X4.40 WAITINGAREA54SEATS CORRIDORWIDE3.0m CORRIDORWIDE3.0m URODYNAMICS4.75X6.00 4.75X6.00ESWL TOI TOI UPPERGISCOPY4.75X6.00 TOILOWERGISCOPY4.75X6.00 4.75X6.00ERCP BRONCHOSCOPY4.50X3.60MINOROT4.50X3.60DOCTORSLOUNGE3.05X3.60 6.95X3.60POSTOPDOCTOITOI CHANGEROOMS RECEPTION/REPORT4.95X6.00 LIFTLIFT LIFTLIFT LIFTLIFT LIFTLIFT LIFT LIFT LIFT LIFT 11/53D,SripuramColony1ststreet,SaintThomasMount,(Opp.BankofBaroda)Chennai600016,TamilNadu,IndiaTel:+914422333587Email:ksm@ksmindia.com NOTES www.ksmindia.com ALLDIMENSIONSARE MILLIMETERS -THE-ALL-THISDRAWINGISACOPYRIGHTANDPROPERTYOFTHEARCHITECT,ISNOTTOBEPRODUCED,COPIED,HANDEDOVERTOTHIRDPARTYORUSEDFORANYOTHERPURPOSEOTHERTHANFORWHICHISINTENDED.DIMENSIONSSHALLBEVERIFIEDONSITEPRIORTOSTARTOFWORKANYDISCREPANCYSHALLBEBROUGHTTOTHENOTICEOFTHEARCHITECT.CONSTRUCTIONMANAGER/CONTRACTORMUSTCHECKALLDIMENSIONSANDDETAILSANDBERESPONSIBLEFORTHESAME.ANYDISCREPANCYSHALLBEBROUGHTTOTHENOTICEOFTHEARCHITECT. -IF-THIS-THECONSTRUCTIONMANAGER/CONTRACTORMUSTCHECKALLDIMENSIONSANDDETAILSANDBERESPONSIBLEFORTHESAME.ANYDISCREPANCYSHALLBEBROUGHTTOTHENOTICEOFTHEARCHITECT.DRAWINGSHALLBEREADINCONJUNCTIONWITHALLRELEVANTARCHITECTURAL,STRUCTURALANDSERVICESDRAWINGS.ANYDISCREPANCYNOTICEDSHALLBEBROUGHTTOTHEATTENTIONOFTHECONSULTANTSWITHINREASONABLETIMEOFRECEIPTOFTHISDRAWINGS,BUTALWAYSPRIORTOPROCUREMENTEXECUTIONOFWORKS.VARIATIONSAREFOUNDBETWEENTHEDRAWINGSANDTHETECHNICALSPECIFICATIONSORREQUIREMENTOFADDITIONALINFORMATIONTOFULFILLTHEINTENTOFTHEDESIGNFOUNDDURINGEXECUTIONOFTHEWORK,THEDECISIONASTOWHATISTOBEAPPLIEDORANYFURTHERINFORMATIONFURNISHEDBYTHEARCHITECT/PM/CONSULTANTSHALLBEFINALANDBINDINGONTHECONTRACTOR REVDATE DESCRIPTION CHKDDRN HVACELECTRICALPHESTRUCTURALCONSULTANTCONSULTANTCONSULTANTCONSULTANT PROJECTDRAWINGCLIENT DATESCALE CHECKEDDRAWN PROJECT STATUSSHEETSIZE REVDATE DESCRIPTION CHKDDRN SC SCNMV A1 SMSK23.07.211:250NMV-UniversityHospital-FloorPlans NMV-University FIRSTFLOORPLAN N

7.50X6.00OT WASTEMATERIALCIRCULATIONCORRIDORTOCSSDFORSTERILIZATION2.0mWIDECORRIDOR 13.00x17.30252AUDISEATS STERILEZONE22.50X5.00 ROOMSCHANGE CHANGEROOMSELECTRICALTROLLEYTOBASEMENTSTORE4.50X9.50/UPSROOM4.50X9.50A.H.UROOM4.50X9.50 4.50X9.50ROOMA.H.U LANDSCAPECOURT13.0X8.5LANDSCAPECOURT13.0X18.0LANDSCAPECOURT13.0X8.5 CENTRALCONNECTINGSPINE69.0X5.0 7.50X6.00OT 7.50X6.00OT 11.00X6.00PACU2.50X6.00PHARMAOT DOCTORLOUNGE14.00X6.00 11.00X6.00PACU 2.50X6.00PHARMAOT 7.50X6.00OT 7.50X6.00OT 7.50X6.00OT 6.00X6.00OT 6.00X6.00OT 7.00X6.00OT 7.00X6.00OT 7.00X6.00OT 7.00X6.00OT 3.00X6.00EQUIPOT LIFTLOBBY4.0X4.40LIFTLOBBY4.0X4.40 PATIENTPREP9.25X9.50 PATIENTPREP9.25X9.50SEMISTERILECORRIDOR5.85X9.40 SEMISTERILECORRIDOR5.85X9.40 3.00X3.00FAITHOTRECEPTION14.00X5.00ROOMMEETINGROOM2.75X3.00MEETINGROOM3.00X3.00 3.00X3.00MEETINGOTRECEPTION14.00X5.00ROOMMEETINGROOM2.75X3.00FAITHROOM3.00X3.00ANESTHESIADEPARTMENT14.00X8.00 STAIR STAIR CATHLAB8.50X9.50 CORRIDORWIDE3.0m CORRIDORWIDE3.0m CORRIDORWIDE3.0m WAITINGAREA48SEATSWAITINGAREA48SEATSWAITINGAREA48SEATS WAITINGAREA48SEATS CARDIOLOGISTOFFICESTATION/CATHLABFOR8.50X7.80 WAITINGAREA84SEATS WAITINGAREA84SEATS 1.50mWIDECORRIDOR STERILEZONE22.50X5.00 7.20X7.407.20X5.80TOILETTOILET1.50X1.30SCRUB1.50X1.30SLUICE 3.00X3.00STORE ISOLATIONICU14BEDS12.10X15.00WARDBEDS12.10X15.00 1.50X1.30SCRUB1.50X1.30SLUICE 3.00X3.00STORESCRUB1.50X1.301.50X1.30SLUICE 3.00X3.00STORE ICUSTAFFTOILETS6.15X6.40 ICUSTAFFTOILETS6.15X6.40 3.50X2.15SCRUB 1.75X3.00SLUICE1.75X3.00STORE ICU14BEDS12.10X15.00 1.50X3.00SCRUB2.85X3.00STOREICU14BEDS12.10X15.00ICU14BEDS12.10X15.00 1.50X3.00SLUICE 1.50X3.00SCRUB2.85X3.00STORE WARDISOLATION1.50X3.00SLUICE4BEDS9.85X13.80 ICUSTAFFTOILETS6.15X6.40WARDISOLATIONBEDS9.85X13.80 3.50X2.15SCRUB 1.75X3.00SLUICE 1.75X3.00STORE 2.85X3.00STORESCRUB1.50X3.00 1.50X3.001.50X3.00SLUICESLUICE 2.85X3.00STORE1.50X3.00SCRUBICUICU14BEDS12.10X15.0014BEDS12.10X15.00 CORRIDORWIDE3.0m 1.50X1.30SCRUB 1.50X1.30SLUICE 1.50X1.30SCRUB3.00X3.00STOREICU14BEDS12.10X15.00ISOLATIONWARDBEDS12.10X15.00 1.50X1.30SLUICE 1.50X1.30SCRUB3.00X3.00STORE 1.50X1.30SLUICE3.00X3.00STOREICU14BEDS12.10X15.00ICUSTAFFTOILETS6.15X6.407.20X7.407.20X5.80TOILETTOILET LIFTLIFT LIFTLIFT LIFTLIFT LIFTLIFT LIFT LIFT LIFT LIFT 11/53D,SripuramColony1ststreet,SaintThomasMount,(Opp.BankofBaroda)Chennai600016,TamilNadu,IndiaTel:+914422333587Email:ksm@ksmindia.com NOTES www.ksmindia.com ALLDIMENSIONSARE MILLIMETERS -THE-ALL-THISDRAWINGISACOPYRIGHTANDPROPERTYOFTHEARCHITECT,ISNOTTOBEPRODUCED,COPIED,HANDEDOVERTOTHIRDPARTYORUSEDFORANYOTHERPURPOSEOTHERTHANFORWHICHISINTENDED.DIMENSIONSSHALLBEVERIFIEDONSITEPRIORTOSTARTOFWORKANYDISCREPANCYSHALLBEBROUGHTTOTHENOTICEOFTHEARCHITECT.CONSTRUCTIONMANAGER/CONTRACTORMUSTCHECKALLDIMENSIONSANDDETAILSANDBERESPONSIBLEFORTHESAME.ANYDISCREPANCYSHALLBEBROUGHTTOTHENOTICEOFTHEARCHITECT. -IF-THIS-THECONSTRUCTIONMANAGER/CONTRACTORMUSTCHECKALLDIMENSIONSANDDETAILSANDBERESPONSIBLEFORTHESAME.ANYDISCREPANCYSHALLBEBROUGHTTOTHENOTICEOFTHEARCHITECT.DRAWINGSHALLBEREADINCONJUNCTIONWITHALLRELEVANTARCHITECTURAL,STRUCTURALANDSERVICESDRAWINGS.ANYDISCREPANCYNOTICEDSHALLBEBROUGHTTOTHEATTENTIONOFTHECONSULTANTSWITHINREASONABLETIMEOFRECEIPTOFTHISDRAWINGS,BUTALWAYSPRIORTOPROCUREMENTEXECUTIONOFWORKS.VARIATIONSAREFOUNDBETWEENTHEDRAWINGSANDTHETECHNICALSPECIFICATIONSORREQUIREMENTOFADDITIONALINFORMATIONTOFULFILLTHEINTENTOFTHEDESIGNFOUNDDURINGEXECUTIONOFTHEWORK,THEDECISIONASTOWHATISTOBEAPPLIEDORANYFURTHERINFORMATIONFURNISHEDBYTHEARCHITECT/PM/CONSULTANTSHALLBEFINALANDBINDINGONTHECONTRACTOR REVDATE DESCRIPTION CHKDDRN HVACELECTRICALPHESTRUCTURALCONSULTANTCONSULTANTCONSULTANTCONSULTANT PROJECTDRAWINGCLIENT DATESCALE CHECKEDDRAWN PROJECT STATUSSHEETSIZE REVDATE DESCRIPTION CHKDDRN SC SCNMV A1 SMSK23.07.211:250NMV-UniversityHospital-FloorPlans NMV-University SECONDFLOORPLAN N

LIFTLIFT LIFTLIFT LIFTLIFT LIFTLIFT LIFT LIFT LIFT LIFT LIFTLOBBY4.0X4.40LIFTLOBBY4.0X4.40 CENTRALCONNECTINGSPINE69.0X5.0RAMPACCESS5.50X4.20NURSE'SSTATION5.50X3.60PRIVATEWARD CORRIDORWIDEM2.4 LANDSCAPEDOUBLEHEIGHTCOURT6.35X3.60 LANDSCAPEDOUBLEHEIGHTCOURT6.35X3.60 LANDSCAPEDOUBLEHEIGHTCOURT6.35X3.60NURSE'SSTATION5.75X3.60PRIVATEWARD5.50X6.40 LANDSCAPEDOUBLE5.50X4.20NURSE'SSTATIONHEIGHTCOURT6.35X3.60 LANDSCAPELANDSCAPEDOUBLE5.50X3.60PRIVATEWARDHEIGHTCOURT6.35X3.60DOUBLEHEIGHTCOURT6.35X3.60NURSE'SSTATION5.75X3.60PRIVATEWARD5.50X6.40CORRIDORWIDEM2.4LANDSCAPELANDSCAPEDOUBLEHEIGHTCOURT5.75X5.00DOUBLEHEIGHTCOURT5.75X5.00DOUBLEHEIGHTLANDSCAPECOURT5.75X5.00 LANDSCAPEDOUBLEHEIGHTCOURT5.75X5.00DOUBLEHEIGHTLANDSCAPECOURT5.75X5.00DOUBLEHEIGHTLANDSCAPECOURT5.75X5.00 GENERALWARD9.45X5.80 CORRIDORWIDEM2.4 CORRIDORWIDEM2.4 TRIPLESHARINGWARD4.95X5.80NURSE'SSTATION4.30X5.80 TRIPLESHARINGWARD4.95X5.80NURSE'SNURSE'SSTATION4.30X5.80GENERALWARD9.25X15.70STATION3.85X4.10TOILET5.50X3.95 TRIPLESHARINGWARD4.95X5.80 NURSE'SSTATION4.30X5.80 TRIPLESHARINGWARD4.95X5.80 NURSE'SSTATION4.30X5.80NURSE'SSTATION3.85X4.105.50X3.95TOILETGENERALWARD9.25X15.70 LANDSCAPETERRACE LANDSCAPETERRACECAFETERIA LANDSCAPECOURTYARDBELOW LANDSCAPECOURTYARDBELOW LANDSCAPECOURTYARDBELOW 11/53D,SripuramColony1ststreet,SaintThomasMount,(Opp.BankofBaroda)Chennai600016,TamilNadu,IndiaTel:+914422333587Email:ksm@ksmindia.com NOTES www.ksmindia.com ALLDIMENSIONSARE MILLIMETERS -THE-ALL-THISDRAWINGISACOPYRIGHTANDPROPERTYOFTHEARCHITECT,ISNOTTOBEPRODUCED,COPIED,HANDEDOVERTOTHIRDPARTYORUSEDFORANYOTHERPURPOSEOTHERTHANFORWHICHISINTENDED.DIMENSIONSSHALLBEVERIFIEDONSITEPRIORTOSTARTOFWORKANYDISCREPANCYSHALLBEBROUGHTTOTHENOTICEOFTHEARCHITECT.CONSTRUCTIONMANAGER/CONTRACTORMUSTCHECKALLDIMENSIONSANDDETAILSANDBERESPONSIBLEFORTHESAME.ANYDISCREPANCYSHALLBEBROUGHTTOTHENOTICEOFTHEARCHITECT. -IF-THIS-THECONSTRUCTIONMANAGER/CONTRACTORMUSTCHECKALLDIMENSIONSANDDETAILSANDBERESPONSIBLEFORTHESAME.ANYDISCREPANCYSHALLBEBROUGHTTOTHENOTICEOFTHEARCHITECT.DRAWINGSHALLBEREADINCONJUNCTIONWITHALLRELEVANTARCHITECTURAL,STRUCTURALANDSERVICESDRAWINGS.ANYDISCREPANCYNOTICEDSHALLBEBROUGHTTOTHEATTENTIONOFTHECONSULTANTSWITHINREASONABLETIMEOFRECEIPTOFTHISDRAWINGS,BUTALWAYSPRIORTOPROCUREMENTEXECUTIONOFWORKS.VARIATIONSAREFOUNDBETWEENTHEDRAWINGSANDTHETECHNICALSPECIFICATIONSORREQUIREMENTOFADDITIONALINFORMATIONTOFULFILLTHEINTENTOFTHEDESIGNFOUNDDURINGEXECUTIONOFTHEWORK,THEDECISIONASTOWHATISTOBEAPPLIEDORANYFURTHERINFORMATIONFURNISHEDBYTHEARCHITECT/PM/CONSULTANTSHALLBEFINALANDBINDINGONTHECONTRACTOR REVDATE DESCRIPTION CHKDDRN HVACELECTRICALPHESTRUCTURALCONSULTANTCONSULTANTCONSULTANTCONSULTANT PROJECTDRAWINGCLIENT DATESCALE CHECKEDDRAWN PROJECT STATUSSHEETSIZE REVDATE DESCRIPTION CHKDDRN SC SCNMV A1 SMSK23.07.211:250NMV-UniversityHospital-FloorPlans NMV-University THIRD/TYPICALFLOORPLAN N

Entry LOADINGDOCK7.8X9.0 CorridorProcedurewide2mCorridorHoldingwide2m FEEDSTORAGE5.4X9.0CLINIC5.4X9.0 LADIESGENTSCHANGEROOM4.7X9.0CHANGEROOM4.7X9.0STAFFAREA10.8X9.0HOLDINGDIRTYCLEANCAGESTORAGE5.7X8.0CAGESTORAGE5.7X8.0ROOM6.0X5.0PROCEDUREROOM6.0X3.0 LABLAB14.7x8.814.4x8.8LIFTLIFTCLASSROOMCLASSROOM8.2x7.98.2x7.9CLASSROOMCLASSROOM5.2x7.95.2x7.9 LIFT LIFTLOBBY8.0x5.0 LABLAB14.7x8.814.4x8.8CLASSROOMCLASSROOMCLASSROOMCLASSROOM8.2x7.98.2x7.95.2x7.95.2x7.9LABLAB14.45x8.814.45x8.8CLASSROOMCLASSROOMCLASSROOMCLASSROOM8.2x7.98.2x7.95.2x7.95.2x7.9LABLAB14.45x8.814.45x8.8CLASSROOMCLASSROOMCLASSROOMCLASSROOM8.2x7.98.2x7.95.2x7.95.2x7.9 LIFTLIFT LIFT LIFTLOBBY8.0x5.0LIFTLIFT LIFT LIFTLOBBY8.0x5.0LIFTLIFT LIFTLOBBY8.0x5.0LIFTLIFT LIFT LIFTLOBBY8.0x3.0 HOD HOD STAFFROOM3.4x7.8 2.5x4.0 PANTRY2.35x2.0 PANTRY2.35x2.0 OFFICEOPEN9.9x4.8 HOD TOILETGENT'S8.0x4.15TOILETLADIES6.35x4.45 TOILETGENT'S8.0x4.15TOILETLADIES8.0x4.45 TOILETGENT'S8.0x4.15TOILETLADIES8.0x4.45 TOILETGENT'S8.0x4.15TOILETLADIES8.0x4.45 TOILETGENT'S8.0x4.15TOILETLADIES8.0x4.45 HOD2.5x4.0 PANTRY2.55x2.0 HOD2.7x4.0 3.0x4.0 6.2x3.0 HOD3.7x3.0 MEETINGROOM HOD3.0x4.0 6.2x3.0 3.7x3.0 HTDOUBLECOURTYARD5.0x9.0OFFICEOPENHTDOUBLECOURTYARDBELOW9.9x4.8 PANTRYTOILET 2.35x2.0 2.85x1.5 HTDOUBLECOURTYARD5.0x9.0 HTDOUBLECOURTYARD5.0x10.0STAFFROOM3.6x7.8STAFFSTAFFROOM3.6x7.8ROOM3.4x7.8 PANTRY2.35x2.0 HTDOUBLECOURTYARDBELOW HTDOUBLECOURTYARDBELOW TOILET2.55x1.5 PANTRY2.55x2.0 TOILETHOD2.7x4.0 2.55x1.5LIFT MEETINGROOM TOILET2.35x1.5 TOILET2.35x1.5 TOILET2.85x1.5 HOLDINGROOM6.0X5.0 PROCEDUREROOM6.0X3.0 HOLDINGROOM6.0X5.0 PROCEDUREROOM6.0X3.0 HOLDINGROOM6.0X5.0 PROCEDUREROOM6.0X3.0 HOLDINGROOM6.0X5.0 PROCEDUREROOM6.0X3.0 Store1.8x4.2Store1.8x4.2 Store1.8x4.2Store1.8x4.2 Store1.8x4.2Store1.8x4.2 Store1.8x4.2Store1.8x4.2 SCHOOL)(MEDICALFLOORTHIRD-1WINGSCHOOL)(MEDICALFLOORFOURTH-1WINGSCHOOL)(MEDICALFLOORFIFTH-1WINGSCHOOL)(MEDICALFLOORSIXTH-1WINGHOUSE)(ANIMALFLOORSEVENTH-1WING STORE 11/53D,SripuramColony1ststreet,SaintThomasMount,(Opp.BankofBaroda)Chennai600016,TamilNadu,IndiaTel:+914422333587Email:ksm@ksmindia.com NOTES www.ksmindia.com ALLDIMENSIONSARE MILLIMETERS -THE-ALL-THISDRAWINGISACOPYRIGHTANDPROPERTYOFTHEARCHITECT,ISNOTTOBEPRODUCED,COPIED,HANDEDOVERTOTHIRDPARTYORUSEDFORANYOTHERPURPOSEOTHERTHANFORWHICHISINTENDED.DIMENSIONSSHALLBEVERIFIEDONSITEPRIORTOSTARTOFWORKANYDISCREPANCYSHALLBEBROUGHTTOTHENOTICEOFTHEARCHITECT.CONSTRUCTIONMANAGER/CONTRACTORMUSTCHECKALLDIMENSIONSANDDETAILSANDBERESPONSIBLEFORTHESAME.ANYDISCREPANCYSHALLBEBROUGHTTOTHENOTICEOFTHEARCHITECT. -IF-THIS-THECONSTRUCTIONMANAGER/CONTRACTORMUSTCHECKALLDIMENSIONSANDDETAILSANDBERESPONSIBLEFORTHESAME.ANYDISCREPANCYSHALLBEBROUGHTTOTHENOTICEOFTHEARCHITECT.DRAWINGSHALLBEREADCONJUNCTIONWITHALLRELEVANTARCHITECTURAL,STRUCTURALANDSERVICESDRAWINGS.ANYDISCREPANCYNOTICEDSHALLBEBROUGHTTOTHEATTENTIONOFTHECONSULTANTSWITHINREASONABLETIMEOFRECEIPTOFTHISDRAWINGS,BUTALWAYSPRIORTOPROCUREMENTEXECUTIONOFWORKS.VARIATIONSAREFOUNDBETWEENTHEDRAWINGSANDTHETECHNICALSPECIFICATIONSORREQUIREMENTOFADDITIONALINFORMATIONTOFULFILLTHEINTENTOFTHEDESIGNFOUNDDURINGEXECUTIONOFTHEWORK,THEDECISIONASTOWHATISTOBEAPPLIEDORANYFURTHERINFORMATIONFURNISHEDBYTHEARCHITECT/PM/CONSULTANTSHALLBEFINALANDBINDINGONTHECONTRACTOR REVDATE DESCRIPTION CHKDDRN HVACPHESTRUCTURALCONSULTANTCONSULTANTELECTRICALCONSULTANTCONSULTANT PROJECTDRAWINGCLIENT DATESCALE CHECKEDDRAWN PROJECT STATUSSHEETSIZE REVDATE DESCRIPTION CHKDDRN SC SCNMV A2 SMSK12.08.211:250NMV-UniversityAcademic-FloorPlans NMV-University

Entry Entry LIFTLIFT LIFTLOBBY8.0x5.0 LIFTLIFT LIFTLOBBY8.0x5.0 LIFTLIFT LIFTLOBBY8.0x5.0 LIFTLIFT LIFTLOBBY8.0x5.0 LIFTLIFT LIFTLOBBY8.0x5.0 LABLAB14.7x8.814.9x8.8CLASSROOMCLASSROOMCLASSROOMCLASSROOM8.3x7.97.9x7.98.0x7.97.9x7.9LABLAB14.7x8.814.9x8.8CLASSROOMCLASSROOMCLASSROOMCLASSROOM8.3x7.97.9x7.98.0x7.97.9x7.9LABLAB14.7x8.814.9x8.8LABLAB15.7x7.815.65x7.8LABLAB15.1x8.813.8x8.8LABLAB16.3x7.816.05x7.8 HOD2.5x4.0 PANTRY2.35x2.0 HOD2.5x4.0 PANTRY2.35x2.0 STAFFROOM4.8x7.8STAFFROOM4.8x7.8 2.5x4.0HOD2.5x4.02.5x4.0HODPANTRY2.35x2.0HODPANTRY2.35x2.0 TOILETGENT'S8.0x4.15TOILETLADIES8.0x4.45 TOILETGENT'S8.0x4.15TOILETLADIES8.0x4.45 TOILETGENT'S8.0x4.15TOILETLADIES8.0x4.45 TOILETGENT'S8.0x4.15TOILETLADIES8.0x4.45 TOILETGENT'S8.0x4.15TOILETLADIES8.0x4.45 LABLAB15.1x8.813.8x8.8LABLAB16.3x7.816.05x7.8 STAFFROOM3.4x7.8 HTDOUBLECOURTYARD4.0x9.0 HTDOUBLECOURTYARD5.9x9.0 HTDOUBLECOURTYARDBELOW HTDOUBLECOURTYARDBELOW STAFFROOM3.4x7.8 PANTRY2.35x2.0 HTDOUBLECOURTYARDBELOW HTDOUBLECOURTYARDBELOW STAFFROOM3.4x7.8 HTDOUBLECOURTYARD5.0x9.0 HTDOUBLECOURTYARD5.2x10.0 TOILETTOILET2.35x1.5TOILET2.35x1.5TOILET2.35x1.5TOILET2.35x1.5 2.35x1.5 Store1.8x4.2Store1.8x4.2Store1.8x4.2Store1.8x4.2Store1.8x4.2Store1.8x4.2 Store2.4x3.6Store2.4x3.6Store1.8x4.2Store1.8x4.2Store1.8x4.2Store1.8x4.2 Store2.4x3.6Store2.4x3.6Store2.4x3.6Store2.4x3.6 (NURSING)FLOORTHIRD-2WINGPHARMACY)|(NURSINGFLOORFIFTH-2WING(PHARMACY)FLOORSIXTH-2WING(PHARMACY)FLOORSEVENTH-2WING 11/53D,SripuramColony1ststreet,SaintThomasMount,(Opp.BankofBaroda)Chennai600016,TamilNadu,IndiaTel:+914422333587Email:ksm@ksmindia.com NOTES www.ksmindia.com ALLDIMENSIONSARE MILLIMETERS -THE-ALL-THISDRAWINGISACOPYRIGHTANDPROPERTYOFTHEARCHITECT,ISNOTTOBEPRODUCED,COPIED,HANDEDOVERTOTHIRDPARTYORUSEDFORANYOTHERPURPOSEOTHERTHANFORWHICHISINTENDED.DIMENSIONSSHALLBEVERIFIEDONSITEPRIORTOSTARTOFWORKANYDISCREPANCYSHALLBEBROUGHTTOTHENOTICEOFTHEARCHITECT.CONSTRUCTIONMANAGER/CONTRACTORMUSTCHECKALLDIMENSIONSANDDETAILSANDBERESPONSIBLEFORTHESAME.ANYDISCREPANCYSHALLBEBROUGHTTOTHENOTICEOFTHEARCHITECT. -IF-THIS-THECONSTRUCTIONMANAGER/CONTRACTORMUSTCHECKALLDIMENSIONSANDDETAILSANDBERESPONSIBLEFORTHESAME.ANYDISCREPANCYSHALLBEBROUGHTTOTHENOTICEOFTHEARCHITECT.DRAWINGSHALLBEREADCONJUNCTIONWITHALLRELEVANTARCHITECTURAL,STRUCTURALANDSERVICESDRAWINGS.ANYDISCREPANCYNOTICEDSHALLBEBROUGHTTOTHEATTENTIONOFTHECONSULTANTSWITHINREASONABLETIMEOFRECEIPTOFTHISDRAWINGS,BUTALWAYSPRIORTOPROCUREMENTEXECUTIONOFWORKS.VARIATIONSAREFOUNDBETWEENTHEDRAWINGSANDTHETECHNICALSPECIFICATIONSORREQUIREMENTOFADDITIONALINFORMATIONTOFULFILLTHEINTENTOFTHEDESIGNFOUNDDURINGEXECUTIONOFTHEWORK,THEDECISIONASTOWHATISTOBEAPPLIEDORANYFURTHERINFORMATIONFURNISHEDBYTHEARCHITECT/PM/CONSULTANTSHALLBEFINALANDBINDINGONTHECONTRACTOR REVDATE DESCRIPTION CHKDDRN HVACPHESTRUCTURALCONSULTANTCONSULTANTELECTRICALCONSULTANTCONSULTANT PROJECTDRAWINGCLIENT DATESCALE CHECKEDDRAWN PROJECT STATUSSHEETSIZE REVDATE DESCRIPTION CHKDDRN SC SCNMV A2 SMSK12.08.211:250NMV-UniversityAcademic-FloorPlans NMV-University

HOD LIFTLIFT LIFTLOBBY8.0x5.0 LABLAB14.7x8.814.9x8.8CLASSROOMCLASSROOMCLASSROOMCLASSROOM7.9x7.97.9x7.98.0x7.97.9x7.9 LIFTLIFT LIFTLOBBY8.0x5.0 CLASSROOMCLASSROOMCLASSROOMCLASSROOM5.2x7.95.0x7.95.4x7.95.3x7.9 LIFTLIFT LIFTLOBBY8.0x5.0 LABLAB14.7x8.814.9x8.8CLASSROOMCLASSROOMCLASSROOMCLASSROOM7.9x7.97.9x7.98.0x7.97.9x7.9 LIFTLIFT LIFTLOBBY8.0x5.0 LABLAB15.1x8.813.8x8.8CLASSROOMCLASSROOMCLASSROOM8.0x7.98.0x7.97.9x7.9CLASSROOM7.6x7.9 LIFTLIFT LIFTLOBBY8.0x5.0 CLASSROOMCLASSROOMCLASSROOMCLASSROOM8.0x7.97.9x7.97.6x7.9 CLASSROOM5.2x8.9 CLASSROOMCLASSROOM5.0x7.95.4x7.9CLASSROOMCLASSROOMCLASSROOM9.2x8.910.6x8.910.8x8.98.0x7.9 2.5x4.0 HOD2.5x4.0HOD2.5x4.0 STAFFROOM5.2x7.8 HOD2.5x4.0PANTRY2.35x2.0 STAFFROOM5.2x7.8 PANTRY2.35x2.0 HOD2.5x4.0 STAFFROOM5.2x7.8 PANTRY2.35x2.0 STAFFROOM5.2x7.8 PANTRY2.35x2.0 STAFFROOM5.2x7.8 PANTRY2.35x2.0 TOILETGENT'S8.0x4.15TOILETLADIES8.0x4.45 TOILETGENT'S8.0x4.15TOILETLADIES8.0x4.45 TOILETGENT'S8.0x4.15TOILETLADIES8.0x4.45 TOILETGENT'S8.0x4.15TOILETLADIES8.0x4.45 TOILETGENT'S8.0x4.15TOILETLADIES8.0x4.45 LABLAB14.7x8.814.9x8.8 HTDOUBLECOURTYARD5.0x9.0 HTDOUBLECOURTYARD5.2x10.0 HTDOUBLECOURTYARDBELOW HTDOUBLECOURTYARDBELOWHTDOUBLECOURTYARD5.2x9.0 HTDOUBLECOURTYARD5.9x9.0 HTDOUBLECOURTYARDBELOW HTDOUBLECOURTYARDBELOW TOILET2.35x1.5 TOILET2.35x1.5 TOILET2.35x1.5 TOILET2.35x1.5 TOILET2.35x1.5 Store1.8x4.2Store1.8x4.2 Store1.8x4.2Store1.8x4.2 Store1.8x4.2Store1.8x4.2 Store1.8x4.2Store1.8x4.2 (PHYSIOTHERAPY)FLOORFOURTH-3WING THERAPY)OCC.|PHYSIOTHERAPY|HUMANITIES(FLOORTHIRD-3WINGTHERAPY)OCC.(FLOORFIFTH-3WINGAHS)(FLOORSIXTH-3WING)EXTENSIONHUMANITIES(FLOORSEVENTHTH-3WING Entry 11/53D,SripuramColony1ststreet,SaintThomasMount,(Opp.BankofBaroda)Chennai600016,TamilNadu,IndiaTel:+914422333587Email:ksm@ksmindia.com NOTES www.ksmindia.com ALLDIMENSIONSARE MILLIMETERS -THE-ALL-THISDRAWINGISACOPYRIGHTANDPROPERTYOFTHEARCHITECT,ISNOTTOBEPRODUCED,COPIED,HANDEDOVERTOTHIRDPARTYORUSEDFORANYOTHERPURPOSEOTHERTHANFORWHICHISINTENDED.DIMENSIONSSHALLBEVERIFIEDONSITEPRIORTOSTARTOFWORKANYDISCREPANCYSHALLBEBROUGHTTOTHENOTICEOFTHEARCHITECT.CONSTRUCTIONMANAGER/CONTRACTORMUSTCHECKALLDIMENSIONSANDDETAILSANDBERESPONSIBLEFORTHESAME.ANYDISCREPANCYSHALLBEBROUGHTTOTHENOTICEOFTHEARCHITECT. -IF-THIS-THECONSTRUCTIONMANAGER/CONTRACTORMUSTCHECKALLDIMENSIONSANDDETAILSANDBERESPONSIBLEFORTHESAME.ANYDISCREPANCYSHALLBEBROUGHTTOTHENOTICEOFTHEARCHITECT.DRAWINGSHALLBEREADCONJUNCTIONWITHALLRELEVANTARCHITECTURAL,STRUCTURALANDSERVICESDRAWINGS.ANYDISCREPANCYNOTICEDSHALLBEBROUGHTTOTHEATTENTIONOFTHECONSULTANTSWITHINREASONABLETIMEOFRECEIPTOFTHISDRAWINGS,BUTALWAYSPRIORTOPROCUREMENTEXECUTIONOFWORKS.VARIATIONSAREFOUNDBETWEENTHEDRAWINGSANDTHETECHNICALSPECIFICATIONSORREQUIREMENTOFADDITIONALINFORMATIONTOFULFILLTHEINTENTOFTHEDESIGNFOUNDDURINGEXECUTIONOFTHEWORK,THEDECISIONASTOWHATISTOBEAPPLIEDORANYFURTHERINFORMATIONFURNISHEDBYTHEARCHITECT/PM/CONSULTANTSHALLBEFINALANDBINDINGONTHECONTRACTOR REVDATE DESCRIPTION CHKDDRN HVACPHESTRUCTURALCONSULTANTCONSULTANTELECTRICALCONSULTANTCONSULTANT PROJECTDRAWINGCLIENT DATESCALE CHECKEDDRAWN PROJECT STATUSSHEETSIZE REVDATE DESCRIPTION CHKDDRN SC SCNMV A2 SMSK12.08.211:250NMV-UniversityAcademic-FloorPlans NMV-University

11SECTIONA-AWidth=1400Tread=150Riser=21Eq 1285 SpacebelowstaircaseforAHU 3020 18mmBisonBoardfixedontoaluminumboxsectionframework D11 10 SECTIONB-B AHU 15mmplasterWidth=1400Tread=300Riser=21eq(150) SpacebelowstaircaseforAHU 2483 15mmplaster B B 3020 1818150box25x50mmAluminiumsectionsframeworkmmstepasperstructuraldrawing.mmbisonboardfixedonAl.boxsectionsSpacebelowstaircaseforAHUmmbisonboardflushedwithstaircase Tread=Width=1400150Riser=21EqAHU A A A A W11 BB PLANTOWER-A 1324 3225 2475 272 800 140 819 D11 DETAILA 18mmBisonBoard25x50mmAl.boxsections25x50mmAl.boxsections18 25 18 50 25 15mmplaster DETAILB sections25x50mmAl.box12x12mmAl.Channelsection18mmbisonboard12 12 182518 50 N 11/53D,SripuramColony1ststreet,SaintThomasMount,(Opp.BankofBaroda)Chennai-600016,TamilNadu,IndiaTel:+914422333587Email:ksm@ksmindia.com NOTES www.ksmindia.com -THE-ALL-THISALLDIMENSIONSAREINMILLIMETERSDRAWINGISCOPYRIGHTANDPROPERTYOFTHEARCHITECT,ISNOTTOBEPRODUCED,COPIED,HANDEDOVERTOTHIRDPARTYORUSEDFORANYOTHERPURPOSEOTHERTHANFORWHICHITISINTENDED.DIMENSIONSSHALLBEVERIFIEDONSITEPRIORTOSTARTOFWORKANYDISCREPANCYSHALLBEBROUGHTTOTHENOTICEOFTHEARCHITECT.CONSTRUCTIONMANAGER/CONTRACTORMUSTCHECKALLDIMENSIONSANDDETAILSANDBERESPONSIBLEFORTHESAME.ANYDISCREPANCYSHALLBEBROUGHTTOTHENOTICEOFTHEARCHITECT. -IF-THIS-THECONSTRUCTIONMANAGER/CONTRACTORMUSTCHECKALLDIMENSIONSANDDETAILSANDBERESPONSIBLEFORTHESAME.ANYDISCREPANCYSHALLBEBROUGHTTOTHENOTICEOFTHEARCHITECT.DRAWINGSHALLBEREADINCONJUNCTIONWITHALLRELEVANTARCHITECTURAL,STRUCTURALANDSERVICESDRAWINGS.ANYDISCREPANCYNOTICEDSHALLBEBROUGHTTOTHEATTENTIONOFTHECONSULTANTSWITHINREASONABLETIMEOFRECEIPTOFTHISDRAWINGS,BUTALWAYSPRIORTOPROCUREMENTEXECUTIONOFWORKS.VARIATIONSAREFOUNDBETWEENTHEDRAWINGSANDTHETECHNICALSPECIFICATIONSORREQUIREMENTOFADDITIONALINFORMATIONTOFULFILLTHEINTENTOFTHEDESIGNFOUNDDURINGEXECUTIONOFTHEWORK,THEDECISIONASTOWHATISTOBEAPPLIEDORANYFURTHERINFORMATIONFURNISHEDBYTHEARCHITECT/PM/CONSULTANTSHALLBEFINALANDBINDINGONTHECONTRACTOR TowerA WDARK A3 YSSK19.07.211:40CloverTowerStaircaseLobbyACClosingDetailABytheRiveratKotturpuram APPASWAMYREALESTATESOptimalOptimalConsultantsOptimalConsultantsConsultantsSomadevNagesh

11 SECTIONA-A Width=1300Tread=300Riser=21eq(150) 1285 SpacebelowstaircaseforAHUAHU 3000 18mmBisonBoardfixedontoaluminumboxsectionframework 10SECTIONB-BWidth=1300Tread=300Riser=21eq(150) SpacebelowstaircaseforAHU 2483 15mmplaster 3020 B B 18150box25x50mmAluminiumsectionsframeworkmmstepasperstructuraldrawing.mmbisonboardfixedonAl.boxsectionsSpacebelowstaircaseforAHU W11 A B A B 1264PLANTOWER-BAHUbelowmidlanding A A 2536 322 2475 249 200 Width=1300Tread=300Riser=21eq(150) D8 DETAILA 18mmBisonBoard25x50mmAl.boxsections25x50mmAl.boxsections18 25 18 50 25 15mmplaster DETAILB sections25x50mmAl.box12x12mmAl.Channelsection18mmbisonboard12 12 182518 50 11/53D,SripuramColony1ststreet,SaintThomasMount,(Opp.BankofBaroda)Chennai-600016,TamilNadu,IndiaTel:+914422333587Email:ksm@ksmindia.com NOTES www.ksmindia.com -THE-ALL-THISALLDIMENSIONSAREINMILLIMETERSDRAWINGISCOPYRIGHTANDPROPERTYOFTHEARCHITECT,ISNOTTOBEPRODUCED,COPIED,HANDEDOVERTOTHIRDPARTYORUSEDFORANYOTHERPURPOSEOTHERTHANFORWHICHITISINTENDED.DIMENSIONSSHALLBEVERIFIEDONSITEPRIORTOSTARTOFWORKANYDISCREPANCYSHALLBEBROUGHTTOTHENOTICEOFTHEARCHITECT.CONSTRUCTIONMANAGER/CONTRACTORMUSTCHECKALLDIMENSIONSANDDETAILSANDBERESPONSIBLEFORTHESAME.ANYDISCREPANCYSHALLBEBROUGHTTOTHENOTICEOFTHEARCHITECT. -IF-THIS-THECONSTRUCTIONMANAGER/CONTRACTORMUSTCHECKALLDIMENSIONSANDDETAILSANDBERESPONSIBLEFORTHESAME.ANYDISCREPANCYSHALLBEBROUGHTTOTHENOTICEOFTHEARCHITECT.DRAWINGSHALLBEREADINCONJUNCTIONWITHALLRELEVANTARCHITECTURAL,STRUCTURALANDSERVICESDRAWINGS.ANYDISCREPANCYNOTICEDSHALLBEBROUGHTTOTHEATTENTIONOFTHECONSULTANTSWITHINREASONABLETIMEOFRECEIPTOFTHISDRAWINGS,BUTALWAYSPRIORTOPROCUREMENTEXECUTIONOFWORKS.VARIATIONSAREFOUNDBETWEENTHEDRAWINGSANDTHETECHNICALSPECIFICATIONSORREQUIREMENTOFADDITIONALINFORMATIONTOFULFILLTHEINTENTOFTHEDESIGNFOUNDDURINGEXECUTIONOFTHEWORK,THEDECISIONASTOWHATISTOBEAPPLIEDORANYFURTHERINFORMATIONFURNISHEDBYTHEARCHITECT/PM/CONSULTANTSHALLBEFINALANDBINDINGONTHECONTRACTOR TowerB WDARK A3 YSSK19.07.211:40CloverTowerStaircaseLobbyACClosingDetailBBytheRiveratKotturpuram APPASWAMYREALESTATESOptimalOptimalConsultantsOptimalConsultantsConsultantsSomadevNagesh N

50500mmwideMudgalGreyGranitemmthk.pebblesfillingonearth 2500 2500 1500 1500 500 500 DisplayunitPlatformPlan A A PlanterboxPlan 2500 1500 1500 200mmthk.Masonarywall500mmwideMudgalGreyGraniteslababove20mmthk.MudgalGreyGraniteslabMembranewaterprooflayercoveredwithplasterSoilfilling A A 200 500 500 150 400 500 1500500 50 Detail-A Section-AA UnfinishedGroundFloorslab Membrane2040mmthk.MudgalGreyGranitemmthk.MudgalGreyGraniteslabwaterprooflayercoveredwithplaster200mmthk.MasonarywallSoilfillingSoilfilling Soilfilling Pathway Earthfilling 15Kota20mmScreedlaidtoslopethk.Lapatrofinishstone50mmskirtingfinishedassameasFloorfinishWaterproofplasteringinside5x5mmnotchatbothends200mmthk.Masonarywall20mmthk.MudgalGreyGraniteassidecladdingmmPlastering40mthk.MudgalGreyGraniteSlab50mmthk.Pebblesfilling50mmthk.RCCSlab500 20450500 B Earthfilling ScaleDetail-A:10 Detail-B 205 5x5mm5x5mm40mmthk.Granitenotch20mmthk.graniteassidecladdingchamfertheedges scale:1:5 Detail 11/53D,SripuramColony1ststreet,SaintThomasMount,(Opp.BankofBaroda)Chennai-600016,TamilNadu,IndiaTel:+914422333587Email:ksm@ksmindia.com NOTES www.ksmindia.com -THE-ALL-THISALLDIMENSIONSAREINMILLIMETERSDRAWINGISCOPYRIGHTANDPROPERTYOFTHEARCHITECT,ISNOTTOBEPRODUCED,COPIED,HANDEDOVERTOTHIRDPARTYORUSEDFORANYOTHERPURPOSEOTHERTHANFORWHICHISINTENDED.DIMENSIONSSHALLBEVERIFIEDONSITEPRIORTOSTARTOFWORKANYDISCREPANCYSHALLBEBROUGHTTOTHENOTICEOFTHEARCHITECT.CONSTRUCTIONMANAGER/CONTRACTORMUSTCHECKALLDIMENSIONSANDDETAILSANDBERESPONSIBLEFORTHESAME.ANYDISCREPANCYSHALLBEBROUGHTTOTHENOTICEOFTHEARCHITECT. -IF-THIS-THECONSTRUCTIONMANAGER/CONTRACTORMUSTCHECKALLDIMENSIONSANDDETAILSANDBERESPONSIBLEFORTHESAME.ANYDISCREPANCYSHALLBEBROUGHTTOTHENOTICEOFTHEARCHITECT.DRAWINGSHALLBEREADINCONJUNCTIONWITHALLRELEVANTARCHITECTURAL,STRUCTURALANDSERVICESDRAWINGS.ANYDISCREPANCYNOTICEDSHALLBEBROUGHTTOTHEATTENTIONOFTHECONSULTANTSWITHINREASONABLETIMEOFRECEIPTOFTHISDRAWINGS,BUTALWAYSPRIORTOPROCUREMENTEXECUTIONOFWORKS.VARIATIONSAREFOUNDBETWEENTHEDRAWINGSANDTHETECHNICALSPECIFICATIONSORREQUIREMENTOFADDITIONALINFORMATIONTOFULFILLTHEINTENTOFTHEDESIGNFOUNDDURINGEXECUTIONOFTHEWORK,THEDECISIONASTOWHATISTOBEAPPLIEDORANYFURTHERINFORMATIONFURNISHEDBYTHEARCHITECT/PM/CONSULTANTSHALLBEFINALANDBINDINGONTHECONTRACTOR REVDATE DESCRIPTION CHKDDRN HVACELECTRICALPHESTRUCTURALCONSULTANTCONSULTANTCONSULTANTCONSULTANT PROJECTDRAWINGCLIENT DATESCALE CHECKEDDRAWN PROJECT STATUSSHEETSIZE REVDATE DESCRIPTION CHKDDRN ED-702(E) WDARK A3 MDSK05.08.211:50CloverPlanterBoxDetailBytheRiveratKotturpuram APPASAMYREALESTATESOptimalOptimalOptimalConsultantsConsultantsConsultantsSomadevNagesh N

200 1000 150 +0.0LVL 150200mmWallx1000mmS.Strough300x600mmColumn RS3 -50mmLVL Slope1:10RampWide1000mm PLAN DrainOut A A LOBBY±0mm A SECTIONAA 150x1000mmS.Strough DETAILAScale-1:10 DrainP.C.CSSGrating30mmscreed20mmthkCementtileSStrough(150x1000mm)Out 11/53D,SripuramColony1ststreet,SaintThomasMount,(Opp.BankofBaroda)Chennai600016,TamilNadu,IndiaTel:+914422333587Email:ksm@ksmindia.com NOTES www.ksmindia.com -THE-ALL-THISALLDIMENSIONSAREINMILLIMETERSDRAWINGISACOPYRIGHTANDPROPERTYOFTHEARCHITECT,ISNOTTOBEPRODUCED,COPIED,HANDEDOVERTOTHIRDPARTYORUSEDFORANYOTHERPURPOSEOTHERTHANFORWHICHITISINTENDED.DIMENSIONSSHALLBEVERIFIEDONSITEPRIORTOSTARTOFWORKANYDISCREPANCYSHALLBEBROUGHTTOTHENOTICEOFTHEARCHITECT.CONSTRUCTIONMANAGER/CONTRACTORMUSTCHECKALLDIMENSIONSANDDETAILSANDBERESPONSIBLEFORTHESAME.ANYDISCREPANCYSHALLBEBROUGHTTOTHENOTICEOFTHEARCHITECT. -IF-THIS-THECONSTRUCTIONMANAGER/CONTRACTORMUSTCHECKALLDIMENSIONSANDDETAILSANDBERESPONSIBLEFORTHESAME.ANYDISCREPANCYSHALLBEBROUGHTTOTHENOTICEOFTHEARCHITECT.DRAWINGSHALLBEREADINCONJUNCTIONWITHALLRELEVANTARCHITECTURAL,STRUCTURALANDSERVICESDRAWINGS.ANYDISCREPANCYNOTICEDSHALLBEBROUGHTTOTHEATTENTIONOFTHECONSULTANTSWITHINREASONABLETIMEOFRECEIPTOFTHISDRAWINGS,BUTALWAYSPRIORTOPROCUREMENTEXECUTIONOFWORKS.VARIATIONSAREFOUNDBETWEENTHEDRAWINGSANDTHETECHNICALSPECIFICATIONSORREQUIREMENTOFADDITIONALINFORMATIONTOFULFILLTHEINTENTOFTHEDESIGNFOUNDDURINGEXECUTIONOFTHEWORK,THEDECISIONASTOWHATISTOBEAPPLIEDORANYFURTHERINFORMATIONFURNISHEDBYTHEARCHITECT/PM/CONSULTANTSHALLBEFINALANDBINDINGONTHECONTRACTOR ID-211 WDSIB A3 SGSK20.07.211:15InstitutionGutterAdminRamp MrSrikanthCPRASADCONSULTANTS N

SectionAA Finished+0mmGroundFloor+1500mmTopofCompoundwall 450 2700 300300 10.20RAWWATERUGSUMPCAPACITYKLDEPTH1.2M+1.6MFB 2600 East-1050mmSecurity-800mmFFLRoadLevel-950mmEntryLevel -800mmSecurityFFL-950mmLVLEntry 150 DETAIL 'A' concrete200mmdiaExposedcolumnseeninelevation CompoundGrillseeninElevation 200 125 125mmthk-PinewoodShutterExposedConcreteslab Bottom+1800mmofSecuritySlab 50 Slope Greyconcretetile Starttile 600600 DRIVERSTOILET1450x18632800SECURITYx2000 200 B PLAN 4.25x2.00x1.20FILTERWATERUGSUMPSIZE:+1.6FBCAPACITY:10200LTRS C C A A B -800mmFFL 2000 27519252004250 1897 1450 -820mmFFL 2800 1250 400 D D RampUp Up STONEAGGREGATEFINISH-950mmFFL-1000mmUFL 2780 855 1060800200 20mmDrop150mmDrop Drop150mm -950mmFFL 22973500280020010010010011301001130-1050mmlvl 20602000 2800200 1893 R100 5305 2002 1150 1860 92733002001987 EdgeLandscape STONEAGGREGATE 1863 200200 200 ExposedConcretePrecastSpout200mmdiaConcretecolumn refSecurityToiletdwgno:AD-615(D) 450 300 2600 100 200 1860 200 800 200 10.20RAWWATERUGSUMPCAPACITYKLDEPTH1.2M+1.6MFB SectionCC -800mmSecurityFFL Finished+0mmGroundFloor+1800mmBottomofSecuritySlab -950mmLVLEast-1050mmSecurity-800mmFFLRoadLevel-950mmEntryLevel Entry 150 'A' DETAIL SB SB 1350 CL CL 1350 125mmthk-PinewoodShutterExposedConcreteslab200 125 150 1060 2100 500 50 Slope 11/53D,SripuramColony1ststreet,SaintThomasMount,(Opp.BankofBaroda)Chennai600016,TamilNadu,IndiaTel:+914422333587Email:ksm@ksmindia.com NOTES www.ksmindia.com -THE-ALL-THISALLDIMENSIONSAREMILLIMETERSDRAWINGCOPYRIGHTANDPROPERTYOFTHEARCHITECT,NOTTOBEPRODUCED,COPIED,HANDEDOVERTOTHIRDPARTYORUSEDFORANYOTHERPURPOSEOTHERTHANFORWHICHINTENDED.DIMENSIONSSHALLBEVERIFIEDONSITEPRIORTOSTARTOFWORKANYDISCREPANCYSHALLBEBROUGHTTOTHENOTICEOFTHEARCHITECT.CONSTRUCTIONMANAGER/CONTRACTORMUSTCHECKALLDIMENSIONSANDDETAILSANDBERESPONSIBLEFORTHESAME.ANYDISCREPANCYSHALLBEBROUGHTTOTHENOTICEOFTHEARCHITECT.-THECONSTRUCTIONMANAGER/CONTRACTORMUSTCHECKALLDIMENSIONSANDDETAILSANDBERESPONSIBLEFORTHESAME.ANYDISCREPANCYSHALLBEBROUGHTTOTHENOTICEOFTHEARCHITECT.-THISDRAWINGSHALLBEREADINCONJUNCTIONWITHALLRELEVANTARCHITECTURAL,STRUCTURALANDSERVICESDRAWINGS.ANYDISCREPANCYNOTICEDSHALLBEBROUGHTTOTHEATTENTIONOFTHECONSULTANTSWITHINREASONABLETIMEOFRECEIPTOFTHISDRAWINGS,BUTALWAYSPRIORTOPROCUREMENTEXECUTIONOFWORKS.-IFVARIATIONSAREFOUNDBETWEENTHEDRAWINGSANDTHETECHNICALSPECIFICATIONSORREQUIREMENTOFADDITIONALINFORMATIONTOFULFILLTHEINTENTOFTHEDESIGNFOUNDDURINGEXECUTIONOFTHEWORK,THEDECISIONASTOWHATTOBEAPPLIEDORANYFURTHERINFORMATIONFURNISHEDBYTHEARCHITECT/PM/CONSULTANTSHALLBEFINALANDBINDINGONTHECONTRACTOR WDSIB A2 SGSK15.09.211:30INSTITUTIONALSECURITYCABIN-TOILETDETAILDEVELOPMENT MrSrikanthCOPTIMALCONSULTANTSOPTIMALCONSULTANTSOPTIMALCONSULTANTSPRASADCONSULTANTS AD-615(A)

300 150 75 100 25 50 Spout-Isometric Scale-1:5 200 25 25 100 25 2600 4245 2450 200 450 21502620 450 450 600EntryEast-1050mmRoadLevel-950mmLevel-800mmSecurityFFL+0mmFinishedGroundFloor+1500mmTopofCompoundwall SectionBB -800mmSecurityFFL -820mmToiletFFL -950mmFFL150 125 ExposedPinewood125mmthk-ShutterConcreteslab 2300 Bottom+1800mmofSecuritySlab 300 200 150DETAIL 'B' DETAIL 'C' 50300 10.20RAWWATERUGSUMPCAPACITYKLDEPTH1.2M+1.6MFB EntryEast-1050mmRoadLevel-950mmLevel-800mmSecurityFFL+0mmFinishedGroundFloor+1800mmBottomofSecuritySlab SectionDD 2600 150 -950mmFFL -800mmSecurityFFL 2300 concrete200mmdiaExposedcolumnseeninelevation +1500mmTopofCompoundwall PrecastConcreteSpout 200X300mm20mmthk.CopingStonetoslopeusingadhesiveupstandRCCbeamasperstructure50mmX50mmSandCement'Vaata'tocoverslabbeamjunction20 270 200 300 125 50 DETAIL-ASCALE:1:10 20x20AluminiumLangle150mmthk-PinewoodShutterExposedConcreteslab 50 Slope Slope125 WeatheringCourse 2200 200 200 4450 200 200 200 18001893 200 1947 150 2297 11334651 5784 855 927 5305 Slope 200 150 1850 200 4250 200 300 RoofPlan 200 200X300mm20mmthk.CopingStonetoslopeusingadhesiveupstandRCCbeamasperstructure 20 270 200 125 50 DETAIL-BSCALE:1:10 20x20AluminiumLangle125mmthk-PinewoodShutterExposedConcreteslab Slope 50 Slope 25300 50 10075 75 150 SkirtingrainwaterCementWeatheringSpout25mmthk-GFRCCoursegrouttosealgapsbetweensleeveanddowntakepipetilelaidat45°angleseeninelevation -950mmFFL DETAIL-CSCALE:1:10 Eq 200 Redsoilforclimbers 75140 10 125 225 Compound20mmthkcopingwallgrillStoneaggregatefinish19mmexposedconcreterib200mmthk-PinewoodShutterExposedConcretePanelPCC-1050mmFFL 11/53D,SripuramColony1ststreet,SaintThomasMount,(Opp.BankofBaroda)Chennai600016,TamilNadu,IndiaTel:+914422333587Email:ksm@ksmindia.com NOTES www.ksmindia.com -THE-ALL-THISALLDIMENSIONSAREMILLIMETERSDRAWINGCOPYRIGHTANDPROPERTYOFTHEARCHITECT,NOTTOBEPRODUCED,COPIED,HANDEDOVERTOTHIRDPARTYORUSEDFORANYOTHERPURPOSEOTHERTHANFORWHICHINTENDED.DIMENSIONSSHALLBEVERIFIEDONSITEPRIORTOSTARTOFWORKANYDISCREPANCYSHALLBEBROUGHTTOTHENOTICEOFTHEARCHITECT.CONSTRUCTIONMANAGER/CONTRACTORMUSTCHECKALLDIMENSIONSANDDETAILSANDBERESPONSIBLEFORTHESAME.ANYDISCREPANCYSHALLBEBROUGHTTOTHENOTICEOFTHEARCHITECT.-THECONSTRUCTIONMANAGER/CONTRACTORMUSTCHECKALLDIMENSIONSANDDETAILSANDBERESPONSIBLEFORTHESAME.ANYDISCREPANCYSHALLBEBROUGHTTOTHENOTICEOFTHEARCHITECT.-THISDRAWINGSHALLBEREADINCONJUNCTIONWITHALLRELEVANTARCHITECTURAL,STRUCTURALANDSERVICESDRAWINGS.ANYDISCREPANCYNOTICEDSHALLBEBROUGHTTOTHEATTENTIONOFTHECONSULTANTSWITHINREASONABLETIMEOFRECEIPTOFTHISDRAWINGS,BUTALWAYSPRIORTOPROCUREMENTEXECUTIONOFWORKS.-IFVARIATIONSAREFOUNDBETWEENTHEDRAWINGSANDTHETECHNICALSPECIFICATIONSORREQUIREMENTOFADDITIONALINFORMATIONTOFULFILLTHEINTENTOFTHEDESIGNFOUNDDURINGEXECUTIONOFTHEWORK,THEDECISIONASTOWHATTOBEAPPLIEDORANYFURTHERINFORMATIONFURNISHEDBYTHEARCHITECT/PM/CONSULTANTSHALLBEFINALANDBINDINGONTHECONTRACTOR WDSIB A2 SGSK15.09.211:30INSTITUTIONALSECURITYCABIN-TOILETDETAILDEVELOPMENT MrSrikanthCOPTIMALCONSULTANTSOPTIMALCONSULTANTSOPTIMALCONSULTANTSPRASADCONSULTANTS AD-615(B)

ELEVATION 100 2800 100100 1130 100 1130 2800Security-800mmFFL-1050mmEastRoadLevel-950mmEntryLevel 200 +1500mmFinished+0mmGroundFloorTopofCompoundwall 2300 3150 253 RAMP 3300 70 3160 70 344 100 100 50 2400 50 2400 3600 2800 1395 50 50139550 1295 10 3160 100 200 1395mmGate3300mmCompoundWallGrill 100 100x100MSPost PLAN 1130 100 1130 'F' DETAIL 'E' DETAIL 100x100MSPost 100 50 OUTSIDEINSIDE 70 70 3300 75 2300 10 805 10 10 1280 10 1010 1010 100 COMPOUNDWALLGRILLELEVATION 3300 3160 83 175 70100 175 175175175 175175175175 917 917 917 8383 8383 838383 175 1010 1395 2800 10 1395 2400 363547363 50 176 50 0 1240 10 10 502400 50 1010 10 940 50 GATEELEVATION 10 176 176 838383 1010 363547363 176176176 838383 1010 0 1345 50 100 DETAIL-FSCALE:1:10 50x50MSBoxsection10x40MSFlat 50 5083 1010 8383 5 5 40 DETAIL-ESCALE:1:10 40 5 5 40 10x40MSFlat 83838383 10 10 11/53D,SripuramColony1ststreet,SaintThomasMount,(Opp.BankofBaroda)Chennai600016,TamilNadu,IndiaTel:+914422333587Email:ksm@ksmindia.com NOTES www.ksmindia.com -THE-ALL-THISALLDIMENSIONSAREMILLIMETERSDRAWINGCOPYRIGHTANDPROPERTYOFTHEARCHITECT,NOTTOBEPRODUCED,COPIED,HANDEDOVERTOTHIRDPARTYORUSEDFORANYOTHERPURPOSEOTHERTHANFORWHICHINTENDED.DIMENSIONSSHALLBEVERIFIEDONSITEPRIORTOSTARTOFWORKANYDISCREPANCYSHALLBEBROUGHTTOTHENOTICEOFTHEARCHITECT.CONSTRUCTIONMANAGER/CONTRACTORMUSTCHECKALLDIMENSIONSANDDETAILSANDBERESPONSIBLEFORTHESAME.ANYDISCREPANCYSHALLBEBROUGHTTOTHENOTICEOFTHEARCHITECT.-THECONSTRUCTIONMANAGER/CONTRACTORMUSTCHECKALLDIMENSIONSANDDETAILSANDBERESPONSIBLEFORTHESAME.ANYDISCREPANCYSHALLBEBROUGHTTOTHENOTICEOFTHEARCHITECT.-THISDRAWINGSHALLBEREADINCONJUNCTIONWITHALLRELEVANTARCHITECTURAL,STRUCTURALANDSERVICESDRAWINGS.ANYDISCREPANCYNOTICEDSHALLBEBROUGHTTOTHEATTENTIONOFTHECONSULTANTSWITHINREASONABLETIMEOFRECEIPTOFTHISDRAWINGS,BUTALWAYSPRIORTOPROCUREMENTEXECUTIONOFWORKS.-IFVARIATIONSAREFOUNDBETWEENTHEDRAWINGSANDTHETECHNICALSPECIFICATIONSORREQUIREMENTOFADDITIONALINFORMATIONTOFULFILLTHEINTENTOFTHEDESIGNFOUNDDURINGEXECUTIONOFTHEWORK,THEDECISIONASTOWHATTOBEAPPLIEDORANYFURTHERINFORMATIONFURNISHEDBYTHEARCHITECT/PM/CONSULTANTSHALLBEFINALANDBINDINGONTHECONTRACTOR WDSIB A2 SGSK15.09.211:30INSTITUTIONALSECURITYCABIN-TOILETDETAILDEVELOPMENT MrSrikanthCOPTIMALCONSULTANTSOPTIMALCONSULTANTSOPTIMALCONSULTANTSPRASADCONSULTANTS AD-615(C)

DRIVERSTOILET1450x18632800SECURITYx2000 200 B AC B -800mmFFL 2000 200 1897 1450 -820mmFFL 2800 1250 400 2780 855 1060 150mmDrop Drop150mm -950mmFFL 2297 200 20002060 2002800 1893 R100 5305 200927 1987EdgeLandscape 1863 200 200 ConcretePrecastSpout KEYPLANScale1:50 A PLAN A B B600 206 218 19mmPlywoodboxingfinishedwithFrostywhitelaminate 2600 80 1233 25 1233 30 SECTIONBB 600 KeyholeKeyhole 15 19 15 DetailA SCALE1:2 laminate1919mmPlywithFrostywhitelaminatefinishmmPlywithFrostywhitefinishonoutsideand1mmthklaminateinside7525 19 15 15 DETAIL-'A'19mmPlywoodboxingfinishedwithFrostywhitelaminate1233 188 1233 752600 SECTIONAA 30 80 11/53D,SripuramColony1ststreet,SaintThomasMount,(Opp.BankofBaroda)Chennai-600016,TamilNadu,IndiaTel:+914422333587Email:ksm@ksmindia.com NOTES www.ksmindia.com -THE-ALL-THISALLDIMENSIONSAREINMILLIMETERSDRAWINGISCOPYRIGHTANDPROPERTYOFTHEARCHITECT,ISNOTTOBEPRODUCED,COPIED,HANDEDOVERTOTHIRDPARTYORUSEDFORANYOTHERPURPOSEOTHERTHANFORWHICHITISINTENDED.DIMENSIONSSHALLBEVERIFIEDONSITEPRIORTOSTARTOFWORKANYDISCREPANCYSHALLBEBROUGHTTOTHENOTICEOFTHEARCHITECT.CONSTRUCTIONMANAGER/CONTRACTORMUSTCHECKALLDIMENSIONSANDDETAILSANDBERESPONSIBLEFORTHESAME.ANYDISCREPANCYSHALLBEBROUGHTTOTHENOTICEOFTHEARCHITECT.-THECONSTRUCTIONMANAGER/CONTRACTORMUSTCHECKALLDIMENSIONSANDDETAILSANDBERESPONSIBLEFORTHESAME.ANYDISCREPANCYSHALLBEBROUGHTTOTHENOTICEOFTHEARCHITECT.-THISDRAWINGSHALLBEREADINCONJUNCTIONWITHALLRELEVANTARCHITECTURAL,STRUCTURALANDSERVICESDRAWINGS.ANYDISCREPANCYNOTICEDSHALLBEBROUGHTTOTHEATTENTIONOFTHECONSULTANTSWITHINREASONABLETIMEOFRECEIPTOFTHISDRAWINGS,BUTALWAYSPRIORTOPROCUREMENTEXECUTIONOFWORKS.-IFVARIATIONSAREFOUNDBETWEENTHEDRAWINGSANDTHETECHNICALSPECIFICATIONSORREQUIREMENTOFADDITIONALINFORMATIONTOFULFILLTHEINTENTOFTHEDESIGNFOUNDDURINGEXECUTIONOFTHEWORK,THEDECISIONASTOWHATISTOBEAPPLIEDORANYFURTHERINFORMATIONFURNISHEDBYTHEARCHITECT/PM/CONSULTANTSHALLBEFINALANDBINDINGONTHECONTRACTOR AD-615(D) WDSIB A3 SGSK22.11.211:20InstitutionVanityBasinTerraceFloor Mr.SrikanthCPrasadConsultants

OpenTerrace 750 750 SB CL 1350+13600mm+13815mmFinishedCafeFloorUnFinishedTerraceFloor+16950mmUnfinishedCafeTerracefloorlvl SurfacemountedDownlight SECTIONAA 800 2990 OpenTerraceSlope1:150 +16950mmUnfinishedCafeTerracefloorlvl SLOPE 600 700 750750 1375 SECTIONBB +13600mm+13815mmFinishedCafeFloorUnFinishedTerraceFloor 1800 3565 2000 SurfacemountedDownlight +13630mmUFL +13780mm+13845mmFFLFFL FOURTHFLOORPLAN A Dn OpenTerrace 1:150Slope 1:150Slope Slope1:150 Up Kiln Rack Exhaustforkiln Claypreparation Clayrecycling SlabSunkenby150mm SlabSunkenby550mm BeamSunkenby50mm 2000 3565 A2A1 A3A4 1800 200 2000 3565 1800 200 A B B LIGHTINGLEGENDWALLSURFACEMOUNTLIGHT 4 Note:SwitchprovisionsforthewallsurfacemountedlightsintheopenterracetobegivenontheNorthernwall. 11/53D,SripuramColony1ststreet,SaintThomasMount,(Opp.BankofBaroda)Chennai600016,TamilNadu,IndiaTel:+914422333587Email:ksm@ksmindia.com NOTES www.ksmindia.com ALLDIMENSIONSARE MILLIMETERS -THISDRAWING COPYRIGHTANDPROPERTYOFTHEARCHITECT, -THE-ALLINTENDED.ORNOTTOBEPRODUCED,COPIED,HANDEDOVERTOTHIRDPARTYUSEDFORANYOTHERPURPOSEOTHERTHANFORWHICHDIMENSIONSSHALLBEVERIFIEDONSITEPRIORTOSTARTOFWORKANYDISCREPANCYSHALLBEBROUGHTTOTHENOTICEOFTHEARCHITECT.CONSTRUCTIONMANAGER/CONTRACTORMUSTCHECKALLDIMENSIONSANDDETAILSANDBERESPONSIBLEFORTHESAME.ANYDISCREPANCYSHALLBEBROUGHTTOTHENOTICEOFTHEARCHITECT. -IF-THIS-THECONSTRUCTIONMANAGER/CONTRACTORMUSTCHECKALLDIMENSIONSANDDETAILSANDBERESPONSIBLEFORTHESAME.ANYDISCREPANCYSHALLBEBROUGHTTOTHENOTICEOFTHEARCHITECT.DRAWINGSHALLBEREADINCONJUNCTIONWITHALLRELEVANTARCHITECTURAL,STRUCTURALANDSERVICESDRAWINGS.ANYDISCREPANCYNOTICEDSHALLBEBROUGHTTOTHEATTENTIONOFTHECONSULTANTSWITHINREASONABLETIMEOFRECEIPTOFTHISDRAWINGS,BUTALWAYSPRIORTOPROCUREMENTEXECUTIONOFWORKS.VARIATIONSAREFOUNDBETWEENTHEDRAWINGSANDTHETECHNICALSPECIFICATIONSORREQUIREMENTOFADDITIONALINFORMATIONTOFULFILLTHEINTENTOFTHEDESIGNFOUNDDURINGEXECUTIONOFTHEWORK,THEDECISIONASTOWHATTOBEAPPLIEDORANYFURTHERINFORMATIONFURNISHEDBYTHEARCHITECT/PM/CONSULTANTSHALLBEFINALANDBINDINGONTHECONTRACTOR WDSIB A2 SGSK04.10.211:50INSTITUTIONALTerraceFloorLightingLayoutDEVELOPMENT MrSrikanthCOPTIMALCONSULTANTSOPTIMALCONSULTANTSOPTIMALCONSULTANTSPRASADCONSULTANTS AD-615(C)

D C CL 420500 80 FPLAN F E E EqEq 980 565 EqEq 980 1200 780 1150 20 510 140 355 750 Section-EE Mirror KUSLeverKUSTopJaquarKubixTableBasin-WHT-35935JaquarKubixSingleFaucet-35011BPM A 100 CorianTop W8 CAFETERIA KEYPLANScale1:125 DETAIL90°TILEJUNCTIONC-Scale1:2 MasonryMortarWalltilebed/Tileadhesivewall 1015 Section-FF 300600 1070 750 StarttileB 1150 20 150 460 140 H KUSTopJaquarKubixTableBasin-WHT-35935 JaquarKubixSingle KUSLeverFaucet-35011BPM LEDGEWALLJUNCTIONDETAILB-Scale1:2 Mortar10mmLedgeTopFinishwithChamferedgeWalltilebed/Tileadhesive10 15 20 TILEPLASTERJUNCTIONDETAILD-Scale1:2 MasonryPlasterWalltilewall 1015 25 TILETOPSTONEFINISHDETAILA-Scale1:2 MortarChamferTopFinishwith10mmedgeWalltilebed/Tileadhesive 1015 20 20 DETAILCorianTopEdgeH-Scale1:2 100 PencilCoriantop roundedge FinishLaminateFrostyWhite 11/53D,SripuramColony1ststreet,SaintThomasMount,(Opp.BankofBaroda)Chennai-600016,TamilNadu,IndiaTel:+914422333587Email:ksm@ksmindia.com NOTES www.ksmindia.com -THE-ALL-THISALLDIMENSIONSAREINMILLIMETERSDRAWINGISCOPYRIGHTANDPROPERTYOFTHEARCHITECT,ISNOTTOBEPRODUCED,COPIED,HANDEDOVERTOTHIRDPARTYORUSEDFORANYOTHERPURPOSEOTHERTHANFORWHICHITISINTENDED.DIMENSIONSSHALLBEVERIFIEDONSITEPRIORTOSTARTOFWORKANYDISCREPANCYSHALLBEBROUGHTTOTHENOTICEOFTHEARCHITECT.CONSTRUCTIONMANAGER/CONTRACTORMUSTCHECKALLDIMENSIONSANDDETAILSANDBERESPONSIBLEFORTHESAME.ANYDISCREPANCYSHALLBEBROUGHTTOTHENOTICEOFTHEARCHITECT. -IF-THIS-THECONSTRUCTIONMANAGER/CONTRACTORMUSTCHECKALLDIMENSIONSANDDETAILSANDBERESPONSIBLEFORTHESAME.ANYDISCREPANCYSHALLBEBROUGHTTOTHENOTICEOFTHEARCHITECT.DRAWINGSHALLBEREADINCONJUNCTIONWITHALLRELEVANTARCHITECTURAL,STRUCTURALANDSERVICESDRAWINGS.ANYDISCREPANCYNOTICEDSHALLBEBROUGHTTOTHEATTENTIONOFTHECONSULTANTSWITHINREASONABLETIMEOFRECEIPTOFTHISDRAWINGS,BUTALWAYSPRIORTOPROCUREMENTEXECUTIONOFWORKS.VARIATIONSAREFOUNDBETWEENTHEDRAWINGSANDTHETECHNICALSPECIFICATIONSORREQUIREMENTOFADDITIONALINFORMATIONTOFULFILLTHEINTENTOFTHEDESIGNFOUNDDURINGEXECUTIONOFTHEWORK,THEDECISIONASTOWHATISTOBEAPPLIEDORANYFURTHERINFORMATIONFURNISHEDBYTHEARCHITECT/PM/CONSULTANTSHALLBEFINALANDBINDINGONTHECONTRACTOR ID-240(a) WDSIB A3 SGSK06.10.211:20InstitutionVanityBasinTerraceFloor Mr.SrikanthCPrasadConsultants N

11/53D,SripuramColony1ststreet,SaintThomasMount,(Opp.BankofBaroda)Chennai600016,TamilNadu,IndiaTel:+914422333587Email:ksm@ksmindia.com NOTES www.ksmindia.com -THE-ALL-THISALLDIMENSIONSAREINMILLIMETERSDRAWINGISCOPYRIGHTANDPROPERTYOFTHEARCHITECT,ISNOTTOBEPRODUCED,COPIED,HANDEDOVERTOTHIRDPARTYORUSEDFORANYOTHERPURPOSEOTHERTHANFORWHICHITISINTENDED.DIMENSIONSSHALLBEVERIFIEDONSITEPRIORTOSTARTOFWORKANYDISCREPANCYSHALLBEBROUGHTTOTHENOTICEOFTHEARCHITECT.CONSTRUCTIONMANAGER/CONTRACTORMUSTCHECKALLDIMENSIONSANDDETAILSANDBERESPONSIBLEFORTHESAME.ANYDISCREPANCYSHALLBEBROUGHTTOTHENOTICEOFTHEARCHITECT.-THECONSTRUCTIONMANAGER/CONTRACTORMUSTCHECKALLDIMENSIONSANDDETAILSANDBERESPONSIBLEFORTHESAME.ANYDISCREPANCYSHALLBEBROUGHTTOTHENOTICEOFTHEARCHITECT.-THISDRAWINGSHALLBEREADINCONJUNCTIONWITHALLRELEVANTARCHITECTURAL,STRUCTURALANDSERVICESDRAWINGS.ANYDISCREPANCYNOTICEDSHALLBEBROUGHTTOTHEATTENTIONOFTHECONSULTANTSWITHINREASONABLETIMEOFRECEIPTOFTHISDRAWINGS,BUTALWAYSPRIORTOPROCUREMENTEXECUTIONOFWORKS.-IFVARIATIONSAREFOUNDBETWEENTHEDRAWINGSANDTHETECHNICALSPECIFICATIONSORREQUIREMENTOFADDITIONALINFORMATIONTOFULFILLTHEINTENTOFTHEDESIGNFOUNDDURINGEXECUTIONOFTHEWORK,THEDECISIONASTOWHATISTOBEAPPLIEDORANYFURTHERINFORMATIONFURNISHEDBYTHEARCHITECT/PM/CONSULTANTSHALLBEFINALANDBINDINGONTHECONTRACTOR ID-211 WDSIB A3 SGSK20.07.21NTSInstitutionSpiralStaircasePattern MrSrikanthCPRASADCONSULTANTS N

THIRDFLOORLANDING TERRACEFLOORLANDING WALLSIDEPANELMIDPANELPOSTSIDEOVERLAP 1800 400 1104 1800 1124 1800 FOLDINGLINE 371 1100 1054 OVERLAPPOSTMIDWALLSIDEPANELPANELSIDE SIBQUEST-EXTERNALSPIRAL-LANDINGAREAVERTICALENCLOSURE 11/53D,SripuramColony1ststreet,SaintThomasMount,(Opp.BankofBaroda)Chennai600016,TamilNadu,IndiaTel:+914422333587Email:ksm@ksmindia.com NOTES www.ksmindia.com -THE-ALL-THISALLDIMENSIONSAREINMILLIMETERSDRAWINGISCOPYRIGHTANDPROPERTYOFTHEARCHITECT,NOTTOBEPRODUCED,COPIED,HANDEDOVERTOTHIRDPARTYORUSEDFORANYOTHERPURPOSEOTHERTHANFORWHICHITISINTENDED.DIMENSIONSSHALLBEVERIFIEDONSITEPRIORTOSTARTOFWORKANYDISCREPANCYSHALLBEBROUGHTTOTHENOTICEOFTHEARCHITECT.CONSTRUCTIONMANAGER/CONTRACTORMUSTCHECKALLDIMENSIONSANDDETAILSANDBERESPONSIBLEFORTHESAME.ANYDISCREPANCYSHALLBEBROUGHTTOTHENOTICEOFTHEARCHITECT.-THECONSTRUCTIONMANAGER/CONTRACTORMUSTCHECKALLDIMENSIONSANDDETAILSANDBERESPONSIBLEFORTHESAME.ANYDISCREPANCYSHALLBEBROUGHTTOTHENOTICEOFTHEARCHITECT.-THISDRAWINGSHALLBEREADINCONJUNCTIONWITHALLRELEVANTARCHITECTURAL,STRUCTURALANDSERVICESDRAWINGS.ANYDISCREPANCYNOTICEDSHALLBEBROUGHTTOTHEATTENTIONOFTHECONSULTANTSWITHINREASONABLETIMEOFRECEIPTOFTHISDRAWINGS,BUTALWAYSPRIORTOPROCUREMENTEXECUTIONOFWORKS.-IFVARIATIONSAREFOUNDBETWEENTHEDRAWINGSANDTHETECHNICALSPECIFICATIONSORREQUIREMENTOFADDITIONALINFORMATIONTOFULFILLTHEINTENTOFTHEDESIGNFOUNDDURINGEXECUTIONOFTHEWORK,THEDECISIONASTOWHATISTOBEAPPLIEDORANYFURTHERINFORMATIONFURNISHEDBYTHEARCHITECT/PM/CONSULTANTSHALLBEFINALANDBINDINGONTHECONTRACTOR ID-211 WDSIB A3 SGSK20.07.211:15InstitutionGutter-AdminRamp MrSrikanthCPRASADCONSULTANTS N

1.WindowFIXEDCUMTOPHUNGWITHALUMIUM.SPANDRELWINDOW:jambtobecoveredwithAlu.Extrudedsectionwithcliponsystemfixedonthesidewall/sofitandsillasshowninthedrawing2.Aluminiumspandrelmadeoutof3mmthickAluminiumsheetprofileasshownthedrawingfixedtothewall3.Sections:ExtrudedaluminiumsectionsofAlloy6063tolerancesconfirmingtoDINstandardfromapprovedrawmaterialsourcesbyNALCOorequivalent.TheSizeofprofilesectionswithaverageminimumthicknessof1.5mm.Outerframe40mmX45mm(0.653kg/mtr),Clip-(0.273kg/mtr),OutsideOpenableShutter-78mmX59mm(1.012kg/mtr),FixedPanelAdaptor40mmX54mm(0.644kg/mtr),T-mullion70mm(1.040kg/mtr).4.Finishes:AllexternallyvisiblesurfaceandtheinternalvisiblesurfaceswillhaveAnodisedof60-70micronthickness,Jotunorequivalent.Thenonvisiblealuminiumsurfaceswillhaveminimumchromatizingtreatment.5.Hardwares:shouldbeEuroGrooveType-3compatible,Rollers,concealedLock,latch,handle,stopper,hinges,CornerCleat,EPDM,allasperstandards,DOWCorningsilicon/GE/WackerswithSS304screws,etc.6.Glass:Laminatedwith6mmclearHSGlass+1.52mmthickPVB+6mmclearHSglass5.Note:(i).Sectionsizegivenaboveisindicative.RespectivevendorhastodecidethesizeswhichsuitstothemaximumofwindpressureatChennai(ii).Fabricationdrawingstobesubmittedbythevendorforapproval.(iii).Allthehardwarementionedhereisindicative.HoweverthevendortobefollowedasperrecommendedbymanufacturerandsampleapprovalbyArchitect.(iv).MockuptobeprovidedasiteforArchitectapprovaltoproceedforprocurement.(v).ForFixinglocationref.wallsectiondrawings.

PLAN 1390 1200 2590 1500 PLAN 1390 1200 2590 1200 ElevationW2-1500x2590-33nos ElevationW3-1200x2590-4nos PLAN 1740 1200 2940 1500 PLAN 1740 1200 ElevationW6-1500x2940-12nos W7-1200x29401noElevation FG FG FG FG 800 800 800 800 AluminiumSpandrelPanel SpandrelAluminiumPanel AluminiumSpandrelPanel SpandrelAluminiumPanel FFL INSIDE INSIDE OUTSIDE INSIDE OUTSIDE INSIDE OUTSIDEOUTSIDE 1200 294010mmRibbedpatternprecastGFRCPanelAluminumflashingAluminiumSpandrelPaneltomatchthejoinerywithnecessarysupportframeworkProfiledripextendedtosoffitAluminiumsillprofileslopedoutward60mmhighsecondstageconcreteledgeinopeningstoreceivejoineryGrooveOUTSIDE INSIDETopRibbedpatternprecastGFRCPanelhungWindowFixedGlass 2590 TYPICALVERTICALCROSSSECTIONOFJOINERY INSIDE PLAN 1390 1200 2590 1500 ElevationW2a-1500x2590-3nosFG 800AluminiumSpandrelPanel INSIDE OUTSIDE PLAN 1390 1200 2590 1200 ElevationW3a-1200x2590-5nosFG 800 SpandrelAluminiumPanel INSIDE OUTSIDE PLAN 1390 1200 2590 800 ElevationW11-800x25903nosFG 800SpandrelAluminiumPanel INSIDE OUTSIDE PLAN 1740 1200 2940 1500 PLAN 1740 1200 ElevationW6a1500x29401no ElevationW7a-1200x2940-3nos FG FG 800 800AluminiumSpandrelPanel SpandrelAluminiumPanel INSIDE OUTSIDE INSIDE OUTSIDE 1200 2940 PLAN 1740 800 ElevationW12-800x2940-1noFG 800SpandrelAluminiumPanel INSIDE OUTSIDE 1200 294010mmRibbedpatternprecastGFRCPanelAluminumflashingAluminiumSpandrelPaneltomatchthejoinerywithnecessarysupportframeworkProfiledripextendedtosoffitAluminiumsillprofileslopedoutward60mmhighsecondstageconcreteledgeinopeningstoreceivejoineryGrooveOUTSIDE INSIDETopRibbedpatternprecastGFRCPanelhungWindowFixedGlassspandrel 2590 TYPICALVERTICALCROSSSECTIONOFJOINERY 11/53D,SripuramColony1ststreet,SaintThomasMount,(Opp.BankofBaroda)Chennai-600016,TamilNadu,IndiaTel:+914422333587Email:ksm@ksmindia.com NOTES www.ksmindia.com -THE-ALL-THISALLDIMENSIONSAREINMILLIMETERSDRAWINGISACOPYRIGHTANDPROPERTYOFTHEARCHITECT,ISNOTTOBEPRODUCED,COPIED,HANDEDOVERTOTHIRDPARTYORUSEDFORANYOTHERPURPOSEOTHERTHANFORWHICHISINTENDED.DIMENSIONSSHALLBEVERIFIEDONSITEPRIORTOSTARTOFWORKANYDISCREPANCYSHALLBEBROUGHTTOTHENOTICEOFTHEARCHITECT.CONSTRUCTIONMANAGER/CONTRACTORMUSTCHECKALLDIMENSIONSANDDETAILSANDBERESPONSIBLEFORTHESAME.ANYDISCREPANCYSHALLBEBROUGHTTOTHENOTICEOFTHEARCHITECT. -IF-THIS-THECONSTRUCTIONMANAGER/CONTRACTORMUSTCHECKALLDIMENSIONSANDDETAILSANDBERESPONSIBLEFORTHESAME.ANYDISCREPANCYSHALLBEBROUGHTTOTHENOTICEOFTHEARCHITECT.DRAWINGSHALLBEREADINCONJUNCTIONWITHALLRELEVANTARCHITECTURAL,STRUCTURALANDSERVICESDRAWINGS.ANYDISCREPANCYNOTICEDSHALLBEBROUGHTTOTHEATTENTIONOFTHECONSULTANTSWITHINREASONABLETIMEOFRECEIPTOFTHISDRAWINGS,BUTALWAYSPRIORTOPROCUREMENTEXECUTIONOFWORKS.VARIATIONSAREFOUNDBETWEENTHEDRAWINGSANDTHETECHNICALSPECIFICATIONSORREqUIREMENTOFADDITIONALINFORMATIONTOFULFILLTHEINTENTOFTHEDESIGNFOUNDDURINGEXECUTIONOFTHEWORK,THEDECISIONASTOWHATISTOBEAPPLIEDORANYFURTHERINFORMATIONFURNISHEDBYTHEARCHITECT/PM/CONSULTANTSHALLBEFINALANDBINDINGONTHECONTRACTOR REVDATEDESCRIPTION DRNCHKDHVACELECTRICALPHESTRUCTURALCONSULTANTCONSULTANTCONSULTANTCONSULTANT PROJECTDRAWINGCLIENT DATESCALE DRAWNCHECKED PROJECT STATUSSHEETSIZE REVDATEDESCRIPTION DRNCHKD AC-451 WDSRB A2 S.M.02.11.2021SK1:40ProposedBoatALUMINIUMTOPHUNGWINDOWJOINERYDETAIL1clubroad,chennai.Residentialdevelopment@ AppaswamyrealestateOPTIMALOPTIMALOPTIMALSOMADEVNAGESHADDMMYY ADDMMYYXYZXYZ XYZXYZ N K S M CONSULTANT S P R I V A ETANNEHCDETMIL I CONSTRUCTIONGOODFOR

1.WindowFIXEDCUMTOPHUNGWITHALUMIUM.SPANDRELWINDOW:jambtobecoveredwithAlu.Extrudedsectionwithcliponsystemfixedonthesidewall/sofitandsillasshowninthedrawing2.Aluminiumspandrelmadeoutof3mmthickAluminiumsheetprofileasshownthedrawingfixedtothewall3.Sections:ExtrudedaluminiumsectionsofAlloy6063tolerancesconfirmingtoDINstandardfromapprovedrawmaterialsourcesbyNALCOorequivalent.TheSizeofprofilesectionswithaverageminimumthicknessof1.5mm.Outerframe40mmX45mm(0.653kg/mtr),Clip-(0.273kg/mtr),OutsideOpenableShutter-78mmX59mm(1.012kg/mtr),FixedPanelAdaptor40mmX54mm(0.644kg/mtr),T-mullion70mm(1.040kg/mtr).4.Finishes:AllexternallyvisiblesurfaceandtheinternalvisiblesurfaceswillhaveAnodisedof60-70micronthickness,Jotunorequivalent.Thenonvisiblealuminiumsurfaceswillhaveminimumchromatizingtreatment.5.Hardwares:shouldbeEuroGrooveType-3compatible,Rollers,concealedLock,latch,handle,stopper,hinges,CornerCleat,EPDM,allasperstandards,DOWCorningsilicon/GE/WackerswithSS304screws,etc.6.Glass:Laminatedwith6mmclearHSGlass+1.52mmthickPVB+6mmclearHSglass5.Note:(i).Sectionsizegivenaboveisindicative.RespectivevendorhastodecidethesizeswhichsuitstothemaximumofwindpressureatChennai(ii).Fabricationdrawingstobesubmittedbythevendorforapproval.(iii).Allthehardwarementionedhereisindicative.HoweverthevendortobefollowedasperrecommendedbymanufacturerandsampleapprovalbyArchitect.(iv).MockuptobeprovidedasiteforArchitectapprovaltoproceedforprocurement.(v).ForFixinglocationref.wallsectiondrawings.

PLAN 1390 1200 2590 1500 PLAN 1390 1200 2590 1200 ElevationW2-1500x2590-33nos ElevationW3-1200x2590-4nos PLAN 1740 1200 2940 1500 PLAN 1740 1200 ElevationW6-1500x2940-12nos W7-1200x29401noElevation FG FG FG FG 800 800 800 800 AluminiumSpandrelPanel SpandrelAluminiumPanel AluminiumSpandrelPanel SpandrelAluminiumPanel FFL INSIDE INSIDE OUTSIDE INSIDE OUTSIDE INSIDE OUTSIDEOUTSIDE 1200 294010mmRibbedpatternprecastGFRCPanelAluminumflashingAluminiumSpandrelPaneltomatchthejoinerywithnecessarysupportframeworkProfiledripextendedtosoffitAluminiumsillprofileslopedoutward60mmhighsecondstageconcreteledgeinopeningstoreceivejoineryGrooveOUTSIDE INSIDETopRibbedpatternprecastGFRCPanelhungWindowFixedGlass 2590 TYPICALVERTICALCROSSSECTIONOFJOINERY INSIDE PLAN 1390 1200 2590 1500 ElevationW2a-1500x2590-3nosFG 800AluminiumSpandrelPanel INSIDE OUTSIDE PLAN 1390 1200 2590 1200 ElevationW3a-1200x2590-5nosFG 800 SpandrelAluminiumPanel INSIDE OUTSIDE PLAN 1390 1200 2590 800 ElevationW11-800x25903nosFG 800SpandrelAluminiumPanel INSIDE OUTSIDE PLAN 1740 1200 2940 1500 PLAN 1740 1200 ElevationW6a1500x29401no ElevationW7a-1200x2940-3nos FG FG 800 800AluminiumSpandrelPanel SpandrelAluminiumPanel INSIDE OUTSIDE INSIDE OUTSIDE 1200 2940 PLAN 1740 800 ElevationW12-800x2940-1noFG 800SpandrelAluminiumPanel INSIDE OUTSIDE 1200 294010mmRibbedpatternprecastGFRCPanelAluminumflashingAluminiumSpandrelPaneltomatchthejoinerywithnecessarysupportframeworkProfiledripextendedtosoffitAluminiumsillprofileslopedoutward60mmhighsecondstageconcreteledgeinopeningstoreceivejoineryGrooveOUTSIDE INSIDETopRibbedpatternprecastGFRCPanelhungWindowFixedGlassspandrel 2590 TYPICALVERTICALCROSSSECTIONOFJOINERY 11/53D,SripuramColony1ststreet,SaintThomasMount,(Opp.BankofBaroda)Chennai-600016,TamilNadu,IndiaTel:+914422333587Email:ksm@ksmindia.com NOTES www.ksmindia.com -THE-ALL-THISALLDIMENSIONSAREINMILLIMETERSDRAWINGISACOPYRIGHTANDPROPERTYOFTHEARCHITECT,ISNOTTOBEPRODUCED,COPIED,HANDEDOVERTOTHIRDPARTYORUSEDFORANYOTHERPURPOSEOTHERTHANFORWHICHISINTENDED.DIMENSIONSSHALLBEVERIFIEDONSITEPRIORTOSTARTOFWORKANYDISCREPANCYSHALLBEBROUGHTTOTHENOTICEOFTHEARCHITECT.CONSTRUCTIONMANAGER/CONTRACTORMUSTCHECKALLDIMENSIONSANDDETAILSANDBERESPONSIBLEFORTHESAME.ANYDISCREPANCYSHALLBEBROUGHTTOTHENOTICEOFTHEARCHITECT. -IF-THIS-THECONSTRUCTIONMANAGER/CONTRACTORMUSTCHECKALLDIMENSIONSANDDETAILSANDBERESPONSIBLEFORTHESAME.ANYDISCREPANCYSHALLBEBROUGHTTOTHENOTICEOFTHEARCHITECT.DRAWINGSHALLBEREADINCONJUNCTIONWITHALLRELEVANTARCHITECTURAL,STRUCTURALANDSERVICESDRAWINGS.ANYDISCREPANCYNOTICEDSHALLBEBROUGHTTOTHEATTENTIONOFTHECONSULTANTSWITHINREASONABLETIMEOFRECEIPTOFTHISDRAWINGS,BUTALWAYSPRIORTOPROCUREMENTEXECUTIONOFWORKS.VARIATIONSAREFOUNDBETWEENTHEDRAWINGSANDTHETECHNICALSPECIFICATIONSORREqUIREMENTOFADDITIONALINFORMATIONTOFULFILLTHEINTENTOFTHEDESIGNFOUNDDURINGEXECUTIONOFTHEWORK,THEDECISIONASTOWHATISTOBEAPPLIEDORANYFURTHERINFORMATIONFURNISHEDBYTHEARCHITECT/PM/CONSULTANTSHALLBEFINALANDBINDINGONTHECONTRACTOR REVDATEDESCRIPTION DRNCHKDHVACELECTRICALPHESTRUCTURALCONSULTANTCONSULTANTCONSULTANTCONSULTANT PROJECTDRAWINGCLIENT DATESCALE DRAWNCHECKED PROJECT STATUSSHEETSIZE REVDATEDESCRIPTION DRNCHKD AC-451 WDSRB A2 S.M.02.11.2021SK1:40ProposedBoatALUMINIUMTOPHUNGWINDOWJOINERYDETAIL1clubroad,chennai.Residentialdevelopment@ AppaswamyrealestateOPTIMALOPTIMALOPTIMALSOMADEVNAGESHADDMMYY ADDMMYYXYZXYZ XYZXYZ N K S M CONSULTANT S P R I V A ETANNEHCDETMIL I CONSTRUCTIONGOODFOR

SD4-2050x2590-1no 2590 2050 Eq Eq OUTSIDE INSIDE PLAN 2050 Eq Eq F.F.L. CSD32750+1600X25905nos 25902590 27501600 BALCONY BEDROOMSliding40mmDrainlevelinJoineryDoor20mmSlope TYPICALVERTICALCROSSSECTIONOFJOINERY F.F.L. 2750 1600 OUTSIDEINSIDEPLAN 2590 2000 2000 KITCHEN UTILITY ElevationSD5-2000x25903nosElevationFG Elevation 2590 510 1.Sections:ExtrudedSLIDINGDOORWITHMOSQUITOSHUTTER:aluminiumsectionsofAlloy6063tolerancesconfirmingtoDINstandardfromapprovedrawmaterialsourcesbyNALCOorequivalent.TheSizeofprofilesectionswithaverageminimumthicknessof1.8mm.Mainouterframe-55mmx40mmX1.8mm(0.653kg/mtr)SlidingShutterframe66mmx30mm1.8mmwithrequirednosandtypeofrollersfixedPanelAdaptor40mmX54mm(0.644kg/mtr),T-mullion70mm(1.040kg/mtr)whereverrequired.MosquitoshutterwithSSmesh.2.Finishes:AllexternallyvisiblesurfaceandtheinternalvisiblesurfaceswillhaveAnodized finishRALShadeofapprovedwith60 PVBleat,EPDM,DOW3.aluminium-70micronthickness,Jotunorequivalent.Thenonvisiblesurfaceswillhaveminimumchromatizingtreatment.Hardwares:ShouldbeEuroGrooveType-2/concealedlockwithnecessaryaccessoriesrecommendedbythemanufacturerstandard,handle,stopper,hinges,CornerCCorningsilicon/GE/WackerswithSS304screws,etc.4.Glass:Laminatedwith6mmclearHSGlass+1.52mmthick+6mmclearHSglass5Note:(i).Sectionsizegivenaboveisindicative.RespectivevendorhastodecidethesizeswhichsuitstothemaximumofwindpressureatChennai(ii).Fabricationdrawingstobesubmittedbythevendorforapproval.(iii).Allthehardwarementionedhereisindicative.HoweverthevendortobefollowedasperrecommendedbymanufacturerandsampleapprovalbyArchitect.(iv).MockuptobeprovidedasiteforArchitectapprovaltoproceedforprocurement.(v).ForFixinglocationref.wallsectiondrawings. ElevationSD1-5550x2590-3nos 2590 5550 Eq Eq Eq OUTSIDE INSIDE PLAN 5550 Eq Eq Eq Eq FFL Eq ElevationSD2-5375x2590-3nos 2590 5375 Eq Eq Eq OUTSIDE INSIDE PLAN 5375 Eq Eq Eq Eq FFL Eq BALCONY LIVINGSliding40mmDrainlevelinJoineryDoor20mmSlope TYPICALVERTICALCROSSSECTIONOFJOINERY 2590 11/53D,SripuramColony1ststreet,SaintThomasMount,(Opp.BankofBaroda)Chennai-600016,TamilNadu,IndiaTel:+914422333587Email:ksm@ksmindia.com NOTES www.ksmindia.com -THE-ALL-THISALLDIMENSIONSAREINMILLIMETERSDRAWINGISACOPYRIGHTANDPROPERTYOFTHEARCHITECT,ISNOTTOBEPRODUCED,COPIED,HANDEDOVERTOTHIRDPARTYORUSEDFORANYOTHERPURPOSEOTHERTHANFORWHICHISINTENDED.DIMENSIONSSHALLBEVERIFIEDONSITEPRIORTOSTARTOFWORKANYDISCREPANCYSHALLBEBROUGHTTOTHENOTICEOFTHEARCHITECT.CONSTRUCTIONMANAGER/CONTRACTORMUSTCHECKALLDIMENSIONSANDDETAILSANDBERESPONSIBLEFORTHESAME.ANYDISCREPANCYSHALLBEBROUGHTTOTHENOTICEOFTHEARCHITECT. -IF-THIS-THECONSTRUCTIONMANAGER/CONTRACTORMUSTCHECKALLDIMENSIONSANDDETAILSANDBERESPONSIBLEFORTHESAME.ANYDISCREPANCYSHALLBEBROUGHTTOTHENOTICEOFTHEARCHITECT.DRAWINGSHALLBEREADINCONJUNCTIONWITHALLRELEVANTARCHITECTURAL,STRUCTURALANDSERVICESDRAWINGS.ANYDISCREPANCYNOTICEDSHALLBEBROUGHTTOTHEATTENTIONOFTHECONSULTANTSWITHINREASONABLETIMEOFRECEIPTOFTHISDRAWINGS,BUTALWAYSPRIORTOPROCUREMENTEXECUTIONOFWORKS.VARIATIONSAREFOUNDBETWEENTHEDRAWINGSANDTHETECHNICALSPECIFICATIONSORREqUIREMENTOFADDITIONALINFORMATIONTOFULFILLTHEINTENTOFTHEDESIGNFOUNDDURINGEXECUTIONOFTHEWORK,THEDECISIONASTOWHATISTOBEAPPLIEDORANYFURTHERINFORMATIONFURNISHEDBYTHEARCHITECT/PM/CONSULTANTSHALLBEFINALANDBINDINGONTHECONTRACTOR REVDATEDESCRIPTION DRNCHKDHVACPHESTRUCTURALCONSULTANTCONSULTANTELECTRICALCONSULTANTCONSULTANT PROJECTDRAWINGCLIENT DATESCALE DRAWNCHECKED PROJECT STATUSSHEETSIZE REVDATEDESCRIPTION DRNCHKD AC-452 WDSRB A2 S.M.02.11.2021SK1:40ProposedBoatALUMINIUMSLIDINGDOORJOINERYDETAIL-3clubroad,chennai.Residentialdevelopment@ AppaswamyrealestateOPTIMALOPTIMALOPTIMALSOMADEVNAGESHADDMMYY ADDMMYYXYZXYZ XYZXYZ N K S M CONSULTANT S P R I V A ETANNEHCDETMIL I CONSTRUCTIONGOODFOR

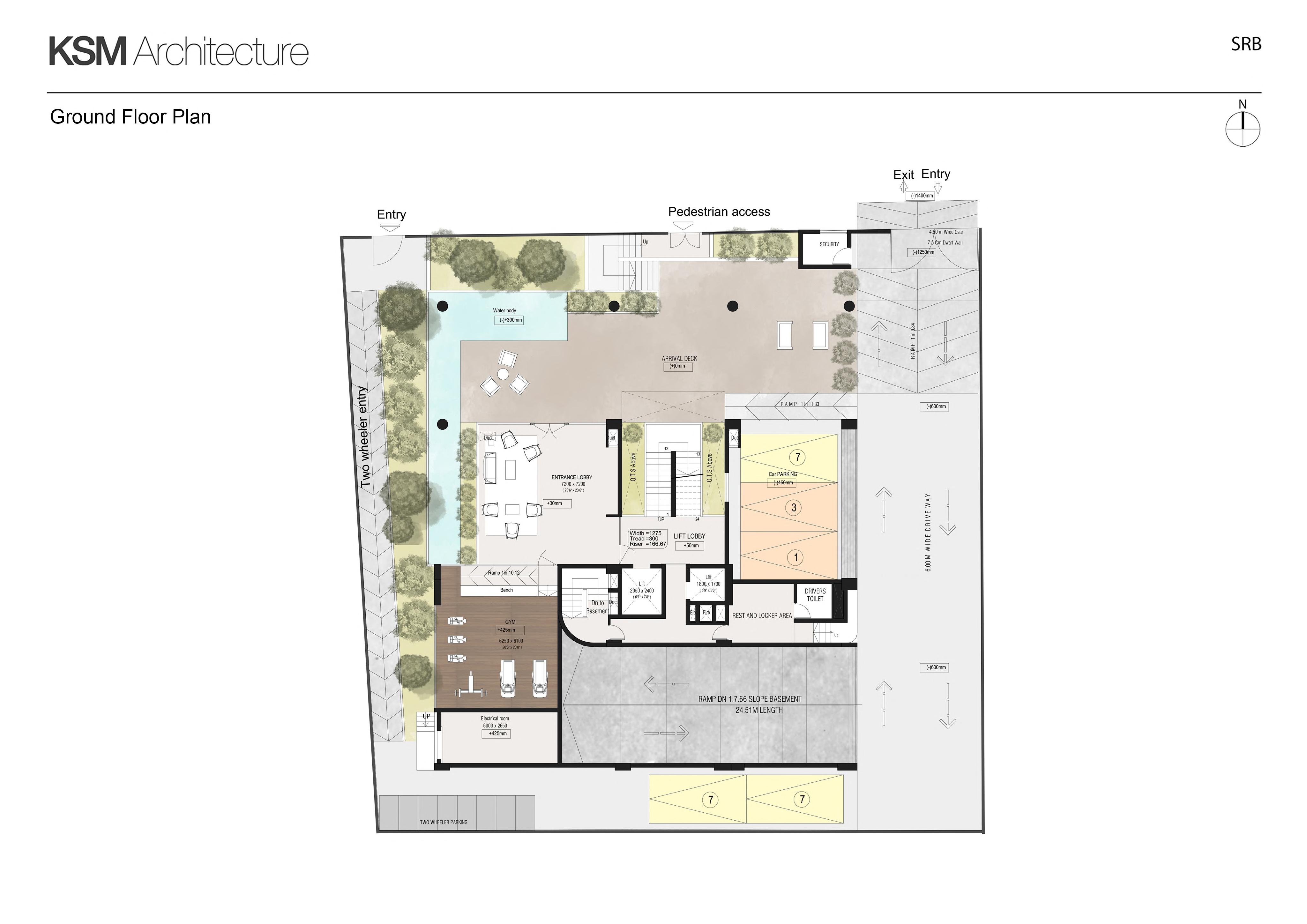
7200 1050105010501050 FGFG 2250 2100 2250 800 7200 31003100 GD/FGElevation FG FG PLAN ENTRANCELOBBYOUTSIDE FG 800559880050 800 FGFG 670067001.Sections:ExtrudedFIXED,SLIDINGCUMCASEMENTDOOR:aluminiumsectionsofAlloy6063tolerancesconfirmingtoDINstandardfromapprovedrawmaterialsourcesbyNALCOorequivalent.TheSizeofprofilesectionswithaverageminimumthicknessof1.8mm.Mainouterframe-55mmx40mmX1.8mm(0.653kg/mtr)SlidingShutterframe66mmx30mm1.8mmwithrequirednosandtypeofrollersfixedPanelAdaptor40mmX54mm(0.644kg/mtr),T-mullion-70mm(1.040kg/mtr)whereverrequired.2.Finishes:AllexternallyvisiblesurfaceandtheinternalvisiblesurfaceswillhaveAnodized finishRALShadeofapprovedwith60 PVBhandle,stopper,3.aluminium-70micronthickness,Jotunorequivalent.Thenonvisiblesurfaceswillhaveminimumchromatizingtreatment.Hardware's:ShouldbeEuroGrooveType-2/concealedlockwithnecessaryaccessoriesrecommendedbythemanufacturer,hinges,CornerCleat,EPDM,allasperstandards,DOWCorningsilicon/GE/WackerswithSS304screws,etc.4.Glass:Laminatedwith6mmclearHSGlass+1.52mmthick+6mmclearHSglass5Note:(i).Sectionsizegivenaboveisindicative.RespectivevendorhastodecidethesizeswhichsuitstothemaximumofwindpressureatChennai(ii).Fabricationdrawingstobesubmittedbythevendorforapproval.(iii).Allthehardwarementionedhereisindicative.HoweverthevendortobefollowedasperrecommendedbymanufacturerandsampleapprovalbyArchitect.(iv).MockuptobeprovidedasiteforArchitectapprovaltoproceedforprocurement.(v).ForFixinglocationref.wallsectiondrawings. 475 PLAN 1000 31002625 F.F.L 5200ENTRANCELOBBYGYM 5200 LIFTLOBBYPLAN 1000 ENTRANCELOBBY 1050 3100 1000 2450 1050 ElevationGD/FG1-5200x3100-1no 1000 GD/FG2-2450x3100-1noElevation 2450 10001000 1000 1500 ElevationGD/FG3-1500x2400-2nos 1050 2400 1000 1500 LIFTLOBBY RAMP PLAN 11/53D,SripuramColony1ststreet,SaintThomasMount,(Opp.BankofBaroda)Chennai-600016,TamilNadu,IndiaTel:+914422333587Email:ksm@ksmindia.com NOTES www.ksmindia.com -THE-ALL-THISALLDIMENSIONSAREINMILLIMETERSDRAWINGISACOPYRIGHTANDPROPERTYOFTHEARCHITECT,ISNOTTOBEPRODUCED,COPIED,HANDEDOVERTOTHIRDPARTYORUSEDFORANYOTHERPURPOSEOTHERTHANFORWHICHISINTENDED.DIMENSIONSSHALLBEVERIFIEDONSITEPRIORTOSTARTOFWORKANYDISCREPANCYSHALLBEBROUGHTTOTHENOTICEOFTHEARCHITECT.CONSTRUCTIONMANAGER/CONTRACTORMUSTCHECKALLDIMENSIONSANDDETAILSANDBERESPONSIBLEFORTHESAME.ANYDISCREPANCYSHALLBEBROUGHTTOTHENOTICEOFTHEARCHITECT. -IF-THIS-THECONSTRUCTIONMANAGER/CONTRACTORMUSTCHECKALLDIMENSIONSANDDETAILSANDBERESPONSIBLEFORTHESAME.ANYDISCREPANCYSHALLBEBROUGHTTOTHENOTICEOFTHEARCHITECT.DRAWINGSHALLBEREADINCONJUNCTIONWITHALLRELEVANTARCHITECTURAL,STRUCTURALANDSERVICESDRAWINGS.ANYDISCREPANCYNOTICEDSHALLBEBROUGHTTOTHEATTENTIONOFTHECONSULTANTSWITHINREASONABLETIMEOFRECEIPTOFTHISDRAWINGS,BUTALWAYSPRIORTOPROCUREMENTEXECUTIONOFWORKS.VARIATIONSAREFOUNDBETWEENTHEDRAWINGSANDTHETECHNICALSPECIFICATIONSORREqUIREMENTOFADDITIONALINFORMATIONTOFULFILLTHEINTENTOFTHEDESIGNFOUNDDURINGEXECUTIONOFTHEWORK,THEDECISIONASTOWHATISTOBEAPPLIEDORANYFURTHERINFORMATIONFURNISHEDBYTHEARCHITECT/PM/CONSULTANTSHALLBEFINALANDBINDINGONTHECONTRACTOR REVDATEDESCRIPTION DRNCHKDHVACPHESTRUCTURALCONSULTANTCONSULTANTELECTRICALCONSULTANTCONSULTANT PROJECTDRAWINGCLIENT DATESCALE DRAWNCHECKED PROJECT STATUSSHEETSIZE REVDATEDESCRIPTION DRNCHKD AC-451 WDSRB A2 S.M.26.10.2021SK1:40ProposedBoatALUMINIUMDOORCUMFIXEDGLAZINGJOINERYDETAIL4clubroad,chennai.Residentialdevelopment@ AppaswamyrealestateOPTIMALOPTIMALOPTIMALSOMADEVNAGESHADDMMYY ADDMMYYXYZXYZ XYZXYZ N K S M CONSULTANT S P R I V A ETANNEHCDETMIL I CONSTRUCTIONGOODFOR

ElevationSD6-5100x29401no 2940 5100 Eq Eq Eq Eq FFL BALCONYLIVING 40mmDrainlevelinJoinerySlidingDoor20mmSlope TYPICALVERTICALCROSSSECTIONOFJOINERY 2940 CSD75360+2950+815x2940-1noElevation 2940 5360 Eq Eq Eq Eq 5360 Eq Eq 2950 2950 815 815 FG PLAN OUTSIDE INSIDE BALCONY LIVINGSliding40mmDrainlevelinJoineryDoor20mmSlope TYPICALVERTICALCROSSSECTIONOFJOINERY 420 2940 11/53D,SripuramColony1ststreet,SaintThomasMount,(Opp.BankofBaroda)Chennai-600016,TamilNadu,IndiaTel:+914422333587Email:ksm@ksmindia.com NOTES www.ksmindia.com -THE-ALL-THISALLDIMENSIONSAREINMILLIMETERSDRAWINGISACOPYRIGHTANDPROPERTYOFTHEARCHITECT,ISNOTTOBEPRODUCED,COPIED,HANDEDOVERTOTHIRDPARTYORUSEDFORANYOTHERPURPOSEOTHERTHANFORWHICHISINTENDED.DIMENSIONSSHALLBEVERIFIEDONSITEPRIORTOSTARTOFWORKANYDISCREPANCYSHALLBEBROUGHTTOTHENOTICEOFTHEARCHITECT.CONSTRUCTIONMANAGER/CONTRACTORMUSTCHECKALLDIMENSIONSANDDETAILSANDBERESPONSIBLEFORTHESAME.ANYDISCREPANCYSHALLBEBROUGHTTOTHENOTICEOFTHEARCHITECT. -IF-THIS-THECONSTRUCTIONMANAGER/CONTRACTORMUSTCHECKALLDIMENSIONSANDDETAILSANDBERESPONSIBLEFORTHESAME.ANYDISCREPANCYSHALLBEBROUGHTTOTHENOTICEOFTHEARCHITECT.DRAWINGSHALLBEREADINCONJUNCTIONWITHALLRELEVANTARCHITECTURAL,STRUCTURALANDSERVICESDRAWINGS.ANYDISCREPANCYNOTICEDSHALLBEBROUGHTTOTHEATTENTIONOFTHECONSULTANTSWITHINREASONABLETIMEOFRECEIPTOFTHISDRAWINGS,BUTALWAYSPRIORTOPROCUREMENTEXECUTIONOFWORKS.VARIATIONSAREFOUNDBETWEENTHEDRAWINGSANDTHETECHNICALSPECIFICATIONSORREqUIREMENTOFADDITIONALINFORMATIONTOFULFILLTHEINTENTOFTHEDESIGNFOUNDDURINGEXECUTIONOFTHEWORK,THEDECISIONASTOWHATISTOBEAPPLIEDORANYFURTHERINFORMATIONFURNISHEDBYTHEARCHITECT/PM/CONSULTANTSHALLBEFINALANDBINDINGONTHECONTRACTOR REVDATEDESCRIPTION DRNCHKDHVACPHESTRUCTURALCONSULTANTCONSULTANTELECTRICALCONSULTANTCONSULTANT PROJECTDRAWINGCLIENT DATESCALE DRAWNCHECKED PROJECT STATUSSHEETSIZE REVDATEDESCRIPTION DRNCHKD AC-455 WDSRB A2 S.M.02.11.2021SK1:40ProposedBoatALUMINIUMSLIDINGDOORCUMFIXEDGLAZINGJOINERYDETAIL-5clubroad,chennai.Residentialdevelopment@ AppaswamyrealestateOPTIMALOPTIMALOPTIMALSOMADEVNAGESHADDMMYY ADDMMYYXYZXYZ XYZXYZ N K S M CONSULTANT S P R I V A ETANNEHCDETMIL I CONSTRUCTIONGOODFOR

FIXEDCUMGLASSLOUVER Sections: NALCOconEtrdedalinisectionsoAllotolerancesirintoDINstandardroaroedrawaterialsorcesorealentheSieoroilesectionswithaeraeinithicnessoMainoterraecaseentsectionXwithaliniholdertoreceielasslades Finishes chrooresAlleternallisilesraceandtheinternalisileaceswillhaeAnodisedoicronthicnessotnalenthenonisilealinisraceswillhaeiniatiintreatent Hardwares CornerAseranactrerrecoendationswithnecessarCleatEDMallaserstandardsDOCorninsiliconGEacerswithSSscrewsetc Glassclear:LainatedwithclearHSGlassthicVHSlass clearannealedinheadedlassor loer Note: saaattoSectionsieienaoeisindicatieResectieendorhasdecidethesieswhichsitstotheaowindressreChennaiFaricationdrawinstoesittedtheendororroalAllthehardwareentionedhereisindicatieHoweertheendortoeollowedaserrecoendedanactrerandlearoalArchitectMoctoeroidedasiteorArchitectaroaltoroceedorrocreentForFiinlocationrewallsectiondrawins ElevationGD1-1200x2590-7nos 1200 OUTSIDE INSIDE PLAN 1200 900 2590 UTILITY KITCHEN F.F.L. 1390 1200 EqEq 3050 3050 900 ElevationD/FG23050X25903nos 2590 5450 FG 2675 FG FG 1500 FG 2590 PLAN OUTSIDE INSIDE FG1-5450x2675-1noElevation FG2-1500x2590-1noElevation PLAN OUTSIDE INSIDE 2130 400800 2130 ElevationV1-600X700-10nos ElevationV2-500x600-11nos 600 2590 500 2590 700 1890 600 1990 1.Sections:ExtrudedSLIDINGCUMCASEMENTDOOR:aluminiumsectionsofAlloy6063tolerancesconfirmingtoDINstandardfromapprovedrawmaterialsourcesbyNALCOorequivalent.TheSizeofprofilesectionswithaverageminimumthicknessof1.8mm.Mainouterframe-55mmx40mmX1.8mm(0.653kg/mtr)SlidingShutterframe66mmx30mm1.8mmwithrequirednosandtypeofrollersfixedPanelAdaptor40mmX54mm(0.644kg/mtr),T-mullion-70mm(1.040kg/mtr)whereverrequired.2.Finishes:AllexternallyvisiblesurfaceandtheinternalvisiblesurfaceswillhaveAnodized inishRALShadeoaroedwith60 PVBhandle,stopper,3.aluminium-70micronthickness,Jotunorequivalent.Thenonvisiblesurfaceswillhaveminimumchromatizingtreatment.Hardware's:ShouldbeEuroGrooveType-2/concealedlockwithnecessaryaccessoriesrecommendedbythemanufacturer,hinges,CornerCleat,EPDM,allasperstandards,DOWCorningsilicon/GE/WackerswithSS304screws,etc.4.Glass:Laminatedwith6mmclearHSGlass+1.52mmthick+6mmclearHSglass5Note:(i).Sectionsizegivenaboveisindicative.RespectivevendorhastodecidethesizeswhichsuitstothemaximumofwindpressureatChennai(ii).Fabricationdrawingstobesubmittedbythevendorforapproval.(iii).Allthehardwarementionedhereisindicative.HoweverthevendortobefollowedasperrecommendedbymanufacturerandsampleapprovalbyArchitect.(iv).MockuptobeprovidedasiteforArchitectapprovaltoproceedforprocurement.(v).ForFixinglocationref.wallsectiondrawings. 11/53D,SripuramColony1ststreet,SaintThomasMount,(Opp.BankofBaroda)Chennai-600016,TamilNadu,IndiaTel:+914422333587Email:ksm@ksmindia.com NOTES www.ksmindia.com -THE-ALL-THISALLDIMENSIONSAREINMILLIMETERSDRAWINGISACOPYRIGHTANDPROPERTYOFTHEARCHITECT,ISNOTTOBEPRODUCED,COPIED,HANDEDOVERTOTHIRDPARTYORUSEDFORANYOTHERPURPOSEOTHERTHANFORWHICHISINTENDED.DIMENSIONSSHALLBEVERIFIEDONSITEPRIORTOSTARTOFWORKANYDISCREPANCYSHALLBEBROUGHTTOTHENOTICEOFTHEARCHITECT.CONSTRUCTIONMANAGER/CONTRACTORMUSTCHECKALLDIMENSIONSANDDETAILSANDBERESPONSIBLEFORTHESAME.ANYDISCREPANCYSHALLBEBROUGHTTOTHENOTICEOFTHEARCHITECT. -IF-THIS-THECONSTRUCTIONMANAGER/CONTRACTORMUSTCHECKALLDIMENSIONSANDDETAILSANDBERESPONSIBLEFORTHESAME.ANYDISCREPANCYSHALLBEBROUGHTTOTHENOTICEOFTHEARCHITECT.DRAWINGSHALLBEREADINCONJUNCTIONWITHALLRELEVANTARCHITECTURAL,STRUCTURALANDSERVICESDRAWINGS.ANYDISCREPANCYNOTICEDSHALLBEBROUGHTTOTHEATTENTIONOFTHECONSULTANTSWITHINREASONABLETIMEOFRECEIPTOFTHISDRAWINGS,BUTALWAYSPRIORTOPROCUREMENTEXECUTIONOFWORKS.VARIATIONSAREFOUNDBETWEENTHEDRAWINGSANDTHETECHNICALSPECIFICATIONSORREqUIREMENTOFADDITIONALINFORMATIONTOFULFILLTHEINTENTOFTHEDESIGNFOUNDDURINGEXECUTIONOFTHEWORK,THEDECISIONASTOWHATISTOBEAPPLIEDORANYFURTHERINFORMATIONFURNISHEDBYTHEARCHITECT/PM/CONSULTANTSHALLBEFINALANDBINDINGONTHECONTRACTOR REVDATEDESCRIPTION DRNCHKDHVACPHESTRUCTURALCONSULTANTCONSULTANTELECTRICALCONSULTANTCONSULTANT PROJECTDRAWINGCLIENT DATESCALE DRAWNCHECKED PROJECT STATUSSHEETSIZE REVDATEDESCRIPTION DRNCHKD AC-456 WDSRB A2 S.M.02.11.2021SK1:40ProposedBoatALUMINIUMJOINERYDETAIL-6clubroad,chennai.Residentialdevelopment@ AppaswamyrealestateOPTIMALOPTIMALOPTIMALSOMADEVNAGESHADDMMYY ADDMMYYXYZXYZ XYZXYZ N K S M CONSULTANT S P R I V A ETANNEHCDETMIL I CONSTRUCTIONGOODFOR

OUTSIDE INSIDEElevationD1PLAN-1050x2590-18nos SHAFT ElevationShaftdoor-10nos OUTSIDE PLAN 1050 600450 2250 1050 1990 2590340 OUTSIDE INSIDE2590PLAN80022501100340OUTSIDE INSIDE25903402250ElevationMD1PLAN-1100x2590-6nos11001100 ElevationD3-800x2590-24nos OUTSIDE INSIDE25903402250ElevationD2PLAN1050x2590-24nos10501050 OUTSIDE INSIDEPLAN8001100 2100 ElevationD5-800x2100-7nos OUTSIDE INSIDE2400PLAN90021001100300ElevationD4-900x2400-9nos 2590 (Toiletdoor)(Bedroomdoor) (Kitchendoor)(Maindoor) TYPICALDETAILOFSINGLEDOORFLUSHSHUTTERDETAILSCALE15 800/90010001200 OUTSIDE INSIDE DETAIL-C DETAILD1:5 SHUTTERRCCPLASTERPLYWOODWITHVENEERAL.BOXSECTIONTIMBEROUTERFRAMETIMBERTOPSTILETIMBERJAMBBEAMASPERSTRUCTUREPANEL DETAILE1:5 SHUTTERSHUTTERPLYWOODPLYWOODWITHVENEERAL.BOXSECTIONTIMBEROUTERFRAMETIMBERTOPSTILEAL.BOXSECTIONTIMBEROUTERFRAMEWITHVENEERPANELPANEL 1.SPECIFICATIONSFORSHAFTDOORUnequaltwoleaf/SingleleafdoorasshownusingTeakWoodof1stqualityof50x50mmformainframefinishedwithenamelpaintwithrequireprimerputtyaspersampleapproved.2.Theshutterismadeoutof19mmWPCboardfinishedwithEnamelPaintasapprovedcolour.3.100mmlongTowerboltshowninthedrawing.4.Drawerlock&Handle 1.Single125x62mm1.Single125x62mm1.SingleSPECIFICATIONSFORMAINDOORleafdoorasshownusingTeakWoodof1stqualityofformainframewithrequiredrebateasshownfinishedwithenamelpaintwithrequireprimerputtyaspersampleapproved.2.Thedoorismadeoutof50mmPannelledshuttermadeoutof125x50mmstylewith25mmthickTeakplank3.DoorCloserofDormaorequivalentshowninthedrawing.4.230mmlongTowerboltshowninthedrawing.5.230mmlongTowerboltshowninthedrawing.6.Mortiselock(RosetteTypemakeCylindricalLock.Handleis"D"Shape200mmLong.SPECIFICATIONSFORBEDROOMDOORleafdoorasshownusingTeakWoodof1stqualityofformainframewithrequiredrebateasshownfinishedwithenamelpaintwithrequireprimerputtyaspersampleapproved.2.Thedoorismadeoutof50mmFlushShutterwithTeakLippingfinishedwithMelaminepolish3.DoorCloserofDormaorequivalentshowninthedrawing.4.230mmlongTowerboltshowninthedrawing.5.230mmlongTowerboltshowninthedrawing.6.Mortiselock(RosetteTypemakeCylindricalLock.Handleis"D"Shape200mmLong.SPECIFICATIONSFORBEDROOMDOORleafdoorasshownusingHardwoodframe125x62mmformainframewithrequiredrebateasshownfinishedwithenamelpaintwithrequireprimerputtyaspersampleapproved.2.Theequaldoorismadeoutof50mmFlushShutterlaminatedontheinside,veneeredontheoutside3.DoorCloserofDormaorequivalentshowninthedrawing.4.230mmlongTowerboltshowninthedrawing.5.230mmlongTowerboltshowninthedrawing.6.Mortiselock(RosetteTypemakeCylindricalLock.Handleis"D"Shape200mmLong. Clear6215SiliconeSealant1515412538Wall/Column201010 Paint38mmthk.Flushshutter38finish OUTSIDE at20mmthk.TeakWoodLippingendoftheshutter4mmProjectedoutside62X125TeakWoodframe INSIDE DETAIL-CScale1:22 1.IMPORTANTNOTE:(MandatoryRequirements)Thesub-vendorshalldiscussthejoinerydetailswiththearchitectteamtounderstandtherequirementprecisely,beforepreparingtheshopdrawingforapproval.2.Oncetheshopdrawingisapproved,afull-fledgedmock-upfreeofcostshallbemade,forthearchitecttoapprove,beforeproceedingwiththefabrication.3.Alljoineryshallbemadeaspertheapprovedmock-up.Deviationcorrectionfoundanyshallbereplaced/rectifiedfreeofcostbytherespectivevendor.4.ForFixinglocationref.wallsectiondrawings. OUTSIDE2590 INSIDE38mmthk.flushShutterwithbothsidelaminateF.F.LTYPICALSECTIONTHROUGHDOORDETAIL-DDETAIL-E 11/53D,SripuramColony1ststreet,SaintThomasMount,(Opp.BankofBaroda)Chennai600016,TamilNadu,IndiaTel:+914422333587Email:ksm@ksmindia.com NOTES www.ksmindia.com -THE-ALL-THISALLDIMENSIONSAREINMILLIMETERSDRAWINGCOPYRIGHTANDPROPERTYOFTHEARCHITECT,ISNOTTOBEPRODUCED,COPIED,HANDEDOVERTOTHIRDPARTYORUSEDFORANYOTHERPURPOSEOTHERTHANFORWHICHITISINTENDED.DIMENSIONSSHALLBEVERIFIEDONSITEPRIORTOSTARTOFWORKANYDISCREPANCYSHALLBEBROUGHTTOTHENOTICEOFTHEARCHITECT.CONSTRUCTIONMANAGER/CONTRACTORMUSTCHECKALLDIMENSIONSANDDETAILSANDBERESPONSIBLEFORTHESAME.ANYDISCREPANCYSHALLBEBROUGHTTOTHENOTICEOFTHEARCHITECT.-THECONSTRUCTIONMANAGER/CONTRACTORMUSTCHECKALLDIMENSIONSANDDETAILSANDBERESPONSIBLEFORTHESAME.ANYDISCREPANCYSHALLBEBROUGHTTOTHENOTICEOFTHEARCHITECT.-THISDRAWINGSHALLBEREADINCONJUNCTIONWITHALLRELEVANTARCHITECTURAL,STRUCTURALANDSERVICESDRAWINGS.ANYDISCREPANCYNOTICEDSHALLBEBROUGHTTOTHEATTENTIONOFTHECONSULTANTSWITHINREASONABLETIMEOFRECEIPTOFTHISDRAWINGS,BUTALWAYSPRIORTOPROCUREMENTEXECUTIONOFWORKS.-IFVARIATIONSAREFOUNDBETWEENTHEDRAWINGSANDTHETECHNICALSPECIFICATIONSORREQUIREMENTOFADDITIONALINFORMATIONTOFULFILLTHEINTENTOFTHEDESIGNFOUNDDURINGEXECUTIONOFTHEWORK,THEDECISIONASTOWHATISTOBEAPPLIEDORANYFURTHERINFORMATIONFURNISHEDBYTHEARCHITECT/PM/CONSULTANTSHALLBEFINALANDBINDINGONTHECONTRACTOR REVDATEDESCRIPTION DRNCHKDHVACPHESTRUCTURALCONSULTANTCONSULTANTELECTRICALCONSULTANTCONSULTANT PROJECTDRAWINGCLIENT DATESCALE DRAWNCHECKED PROJECT STATUSSHEETSIZE REVDATEDESCRIPTION DRNCHKD AC-461 WDSRB A2 S.M.02.11.2021SK1:40ProposedBoatWOODENDOORJOINERYDETAILclubroad,chennai.Residentialdevelopment@ AppaswamyrealestateOPTIMALOPTIMALOPTIMALSOMADEVNAGESHADDMMYY ADDMMYYXYZXYZ XYZXYZ N K S M CONSUTANT S P R I V A ETANNEHCDETIMIL I GOOD FOR CONSTRUCTION

Duct TD2 FLOORINGLAYOUT 15StartCLTilemmDrop 200 150 1800 100 800 200 405 540 SLOPE 50 50 1800 C D B C D B AA V -10mmLVL TOILET 800 3501600 865 135 15 25 9 21 600 600 Duct CL 800440 500 200 200 150 1800 100 865 800 200 SLOPE 50 50 1800 C D B C D B AA 135 V800 3501600 150350 SANITARYFIXTURELAYOUT 15mDrop 500 TD2 -10mmLVL TOILET 1 2 3 4 9 15 21 CL Duct TD2 REFLECTEDCEILINGLAYOUT 200 150 1800 100 1000 800 200 1800 C D B C D B AA V 600 720 900 1020180180 EqEq 800 3501600 18 21 14 13 SECTIONAA 810 2415 Duct 310 415 1195950 10121426 635mmFilling+4050mmFinishedFirstfloorlvl+0.00mmFinishedArrivalDecklvl-600.00mmFinishedDrivewaylvl SECTIONBB Duct 2415 1014600 910 3450 4360 290 635mmFillingV34650+4050mmFinishedFirstfloorlvl+0.00mmFinishedArrivalDecklvl-600.00mmFinishedDrivewaylvl 175 1495 300600 StartTile SECTIONCC 810 2415 A 620 1195 B 10141219 650 2600 1400 635mmFilling825+0.00mm+4050mmFinishedFirstfloorlvlFinishedArrivalDecklvl-600.00mmFinishedDrivewaylvl 175 SECTIONDD 2415 1195 635mmFilling 950 415 4650+0.00mm+4050mmFinishedFirstfloorlvlFinishedArrivalDecklvl-600.00mmFinishedDrivewaylvl StartTile JUNCTIONDETAILA LEDGEWALLDETAIL ledge1100mm10mmgranite20mmthkjambthk25x25mmglassmosaictile200mmthkblockwork20mmthkmortar6mmchamferongranitehighwall140 30135 JUNCTIONDETAILB VENTILATORDETAIL 10mmcement20mm20mm20mmselection40mmthkventilatorasperthkmortarthkgranitejamblaidtoslopethklplasterthk25x25mmglassmosaictile N 11/53D,SripuramColony1ststreet,SaintThomasMount,(Opp.BankofBaroda)Chennai-600016,TamilNadu,IndiaTel:+914422333587Email:ksm@ksmindia.com NOTES www.ksmindia.com -THE-ALL-THISALLDIMENSIONSAREINMILLIMETERSDRAWINGISACOPYRIGHTANDPROPERTYOFTHEARCHITECT,ISNOTTOBEPRODUCED,COPIED,HANDEDOVERTOTHIRDPARTYORUSEDFORANYOTHERPURPOSEOTHERTHANFORWHICHITISINTENDED.DIMENSIONSSHALLBEVERIFIEDONSITEPRIORTOSTARTOFWORKANYDISCREPANCYSHALLBEBROUGHTTOTHENOTICEOFTHEARCHITECT.CONSTRUCTIONMANAGER/CONTRACTORMUSTCHECKALLDIMENSIONSANDDETAILSANDBERESPONSIBLEFORTHESAME.ANYDISCREPANCYSHALLBEBROUGHTTOTHENOTICEOFTHEARCHITECT.-THECONSTRUCTIONMANAGER/CONTRACTORMUSTCHECKALLDIMENSIONSANDDETAILSANDBERESPONSIBLEFORTHESAME.ANYDISCREPANCYSHALLBEBROUGHTTOTHENOTICEOFTHEARCHITECT.-THISDRAWINGSHALLBEREADINCONJUNCTIONWITHALLRELEVANTARCHITECTURAL,STRUCTURALANDSERVICESDRAWINGS.ANYDISCREPANCYNOTICEDSHALLBEBROUGHTTOTHEATTENTIONOFTHECONSULTANTSWITHINREASONABLETIMEOFRECEIPTOFTHISDRAWINGS,BUTALWAYSPRIORTOPROCUREMENTEXECUTIONOFWORKS.-IFVARIATIONSAREFOUNDBETWEENTHEDRAWINGSANDTHETECHNICALSPECIFICATIONSORREQUIREMENTOFADDITIONALINFORMATIONTOFULFILLTHEINTENTOFTHEDESIGNFOUNDDURINGEXECUTIONOFTHEWORK,THEDECISIONASTOWHATISTOBEAPPLIEDORANYFURTHERINFORMATIONFURNISHEDBYTHEARCHITECT/PM/CONSULTANTSHALLBEFINALANDBINDINGONTHECONTRACTOR REVDATEDESCRIPTION DRNCHKDHVACELECTRICALPHESTRUCTURALCONSULTANTCONSULTANTCONSULTANTCONSULTANT PROJECTDRAWINGCLIENT DATESCALE DRAWNCHECKED PROJECT STATUSSHEETSIZE REVDATEDESCRIPTION DRNCHKD WDSRB A2 SMSK04.10.211:30ProposedDriversToiletResidentialDevelopmentatBoatClub APPASWAMYREALESTATESOptimalConsultantsOptimalConsultantsOptimalConsultantsSomadevNageshK S M CONSULT A N T S P R I ETAV DEML NNEHC A I GOOD FOR CONSTRUCTION DCBA230819ExhaustcorecuttinglocationhasbeenindicatedNVSMVentilatorledgegranitecopingupdatedToppressflushplateupdated081119NVSMWashBasinWidthrevisedto800mmWCandShowerArearevised051219NVSMWashBasinWidthrevisedto700mmWCandShowerArearevised171219NVSM

SANITARYFIXTURELAYOUT CL V3 D5 -15mmDRY-30mmWETAREALVLAREALVL15mmDropSLOPESLOPE4400 Eq Eq 600 600 Eq Eq 1075 Dropmm15 1100 1840 4100 100 5200 350800 2350 2400 1100 1700 200150 200100 C 2120 75 550 35 715 5050 400 CL 1001000100 C C AA BB D D E E SECTIONAA 990 -30mmWETAREALVL 2100 StartTile 2680 770 3450 2605+7500mm+4050mmFinishedFirstfloorlvlFinishedSecondfloorlvl Locationforgeyser 950 415 SECTIONBB 10142623-15mmDRYAREALVL 9A 3450 2590+7500mm+4050mmFinishedFirstfloorlvlFinishedSecondfloorlvl ART WORK ART WORK 14951195 2590 3450 StartTile SECTIONCC 10142112 2590 -15mmDRYAREALVL-30mmWETAREALVL 2100 B Balcony+7500mm+4050mmFinishedFirstfloorlvlFinishedSecondfloorlvl ART WORK ART WORK 1495 300600 SECTIONDD 810 1195 2590 400475 2100 -30mmWETAREALVL-15mmDRYAREALVL SHAFT 950 305 1395 12142621138 B 1180 2010 3450 StartTile Balcony+7500mm+4050mmFinishedFirstfloorlvlFinishedSecondfloorlvl 1495 CL 990800 1440 JUNCTIONDETAILA LEDGEWALLDETAIL ledge1100mm10mm20mmthkgranitejambthk25x25mmglassmosaictile200mmthkblockwork20mmthkmortar6mmchamferongranitehighwall140 30135 JUNCTIONDETAILB TILEDROPDETAIL 10mmpartition10mmthkglassasperspecificaton3mmthkAluminiumUchanelmattevitrifiedtile75mmgranitejambwith6mmchamfer-10MMLVL -20MMLVL 10mmU3mmthkAluminiumchanelvitrifiedtile20mmthkgranitestone20mmthkmarblestone JUNCTIONDETAILC SHOWERPARTITIONDETAIL 28272625242322212016171918151112141310LEGENDCeilingRecessedDownlighterGypsumFalseCeilingKnaufTrapDoor(600x900mm)Kohler-Squarerainshowerhead300x600mm??????tileKohler-PresquilewallhungWCKohler-SingleleverdiverterKohler-VanityWashbasinGeyserasperselection100mmdia-ExhaustsystemLowheightMasonryLedgewallKohler-AnglestopvalveKohler-Spoutw/oDiverter75mmwideGranitestoneKohler-WCCisternKohler-GlassshowerpartitionCircularFloorDrain162954378Doorasperspecification400mmx400mmNicheinwetareaKohler-HandshowerKohler-BodyjetExhaustgrillonFalseCeilingRailing600x600mm?????tile20x20mmGlassMosaicTileFlushplateKnaufTrapDoor(400x600mm)Kohler-Showerhead CL Duct V3 D5 -30mmWETAREALVLDRYAREA-15mmLVL15mmDropSLOPE CL StartStartTileTile0 600 540 100 490 80 220 1840 800 4100 5200 3501000100 2350 2400 1100 1700 50 3195 1690 FLOORINGLAYOUT 2120 1075 C C C AA BB D D E E 35 715 115 Dropmm15 800 400 100 Duct V3 D5 800 4100 5200 3506002001000100 2350 2400 1100 1700 600 600 600 600 300300 1110 980920 1580 230 230 1070 1350550 980920 1130 470 1480 230 1070 REFLECTEDCEILINGLAYOUT C C AA BB D D E E 100 11/53D,SripuramColony1ststreet,SaintThomasMount,(Opp.BankofBaroda)Chennai600016,TamilNadu,IndiaTel:+914422333587Email:ksm@ksmindia.com NOTES www.ksmindia.com -THE-ALL-THISALLDIMENSIONSAREINMILLIMETERSDRAWINGCOPYRIGHTANDPROPERTYOFTHEARCHITECT,NOTTOBEPRODUCED,COPIED,HANDEDOVERTOTHIRDPARTYORUSEDFORANYOTHERPURPOSEOTHERTHANFORWHICHISINTENDED.DIMENSIONSSHALLBEVERIFIEDONSITEPRIORTOSTARTOFWORKANYDISCREPANCYSHALLBEBROUGHTTOTHENOTICEOFTHEARCHITECT.CONSTRUCTIONMANAGER/CONTRACTORMUSTCHECKALLDIMENSIONSANDDETAILSANDBERESPONSIBLEFORTHESAME.ANYDISCREPANCYSHALLBEBROUGHTTOTHENOTICEOFTHEARCHITECT.-THECONSTRUCTIONMANAGER/CONTRACTORMUSTCHECKALLDIMENSIONSANDDETAILSANDBERESPONSIBLEFORTHESAME.ANYDISCREPANCYSHALLBEBROUGHTTOTHENOTICEOFTHEARCHITECT.-THISDRAWINGSHALLBEREADINCONJUNCTIONWITHALLRELEVANTARCHITECTURAL,STRUCTURALANDSERVICESDRAWINGS.ANYDISCREPANCYNOTICEDSHALLBEBROUGHTTOTHEATTENTIONOFTHECONSULTANTSWITHINREASONABLETIMEOFRECEIPTOFTHISDRAWINGS,BUTALWAYSPRIORTOPROCUREMENTEXECUTIONOFWORKS.-IFVARIATIONSAREFOUNDBETWEENTHEDRAWINGSANDTHETECHNICALSPECIFICATIONSORREQUIREMENTOFADDITIONALINFORMATIONTOFULFILLTHEINTENTOFTHEDESIGNFOUNDDURINGEXECUTIONOFTHEWORK,THEDECISIONASTOWHATISTOBEAPPLIEDORANYFURTHERINFORMATIONFURNISHEDBYTHEARCHITECT/PM/CONSULTANTSHALLBEFINALANDBINDINGONTHECONTRACTOR REVDATEDESCRIPTION DRNCHKDHVACPHESTRUCTURALCONSULTANTCONSULTANTELECTRICALCONSULTANTCONSULTANT PROJECTDRAWINGCLIENT DATESCALE DRAWNCHECKED PROJECT STATUSSHEETSIZE REVDATEDESCRIPTION DRNCHKD WD WDSRB A1 SMSK21.10.211:25ProposedDriversToiletResidentialDevelopmentatBoatClub APPASWAMYREALESTATESOptimalConsultantsOptimalConsultantsOptimalConsultantsSomdevNagesh N

+7500mm+4050mmFinishedFirstfloorlvlFinishedSecondfloorlvl BedRoom SECTIONAA 415480 1195 950 310 810 2590 2590 510 34203450 -15mmDRYAREALVL ART WORK JUNCTIONDETAILA LEDGEWALLDETAIL ledge1100mm10mm20mmthkgranitejambthk25x25mmglassmosaictile200mmthkblockwork20mmthkmortar6mmchamferongranitehighwall155 30150 JUNCTIONDETAILB TILEDROPDETAIL 10mm10mmthkglasspartitionasperspecificaton3mmthkAluminiumUchanelmattevitrifiedtile75mmgranitejambwith6mmchamfer-10MMLVL -20MMLVL 10mmU3mmthkAluminiumchanelvitrifiedtile20mmthkgranitestone20mmthkmarblestone JUNCTIONDETAILC SHOWERPARTITIONDETAIL 28272625242322212016171918151112141310LEGENDCeilingRecessedDownlighterGypsumFalseCeilingKnaufTrapDoor(600x900mm)Kohler-Squarerainshowerhead300x600mm??????tileKohler-PresquilewallhungWCKohler-SingleleverdiverterKohler-VanityWashbasinGeyserasperselection100mmdia-ExhaustsystemLowheightMasonryLedgewallKohler-AnglestopvalveKohler-Spoutw/oDiverter75mmwideGranitestoneKohler-WCCisternKohler-GlassshowerpartitionCircularFloorDrain162954378Doorasperspecification400mmx400mmNicheinwetareaKohler-HandshowerKohler-BodyjetExhaustgrillonFalseCeilingRailing600x600mm?????tile20x20mmGlassMosaicTileFlushplateKnaufTrapDoor(400x600mm)Kohler-Showerhead D5 15mmDrop CL SLOPE Duct SLOPE -30mmWETAREALVL -15mmDRYAREALVL C SANITARYFIXTURELAYOUT 15mmDrop V4 C C A A B B D D 600 800 550 100 2050 100 2200 Eq Eq 1175 1740 Eq Eq 1420 1840 2590 130440360240 560 600 2750 1170 2001480 100100 750 800 1000 1150 35 715 100 400 D5 15mmDrop CL SLOPE Duct SLOPE -30mmWETAREALVL -15mmDRYAREALVL C FLOORINGLAYOUT StartTile 15mmDrop V4 C C A A B B D D 600 800 550 100 2050 100 1175 1740 1790 2590 2750 1170 2001480 750100100 800 1000 1150 600 600 190600 220115 350 575 190 590 1170 1420 2200 35 715 155 35 715 DuctD5 REFLECTEDCEILINGLAYOUT V4 C C A A B B D D 850 330 130 615 Eq Eq 600 600 6001690 300 10001000 642642 1000 523523 600 800 550 2050 100 2750 1170 2001480 750 800 1000 1150 2200 Duct 2100 990 600 1440RoomStudy SECTIONBB StartTile -30mmWETAREALVL 2605 475 3450+7500mm+4050mmFinishedFirstfloorlvlFinishedSecondfloorlvl RoomStudy SECTIONCC -15mmDRYAREALVL 2590 3450 3450 400 2790+7500mm+4050mmFinishedFirstfloorlvlFinishedSecondfloorlvl 810 100 A 950 415 CL SECTIONDD -15mmDRYAREALVL-30mmWETAREALVL StartTile 2100 2590 3450 990 2100 800 1440 1195 3450 B+7500mm+4050mmFinishedFirstfloorlvlFinishedSecondfloorlvl 11/53D,SripuramColony1ststreet,SaintThomasMount,(Opp.BankofBaroda)Chennai-600016,TamilNadu,IndiaTel:+914422333587Email:ksm@ksmindia.com NOTES www.ksmindia.com -THE-ALL-THISALLDIMENSIONSAREINMILLIMETERSDRAWINGISCOPYRIGHTANDPROPERTYOFTHEARCHITECT,ISNOTTOBEPRODUCED,COPIED,HANDEDOVERTOTHIRDPARTYORUSEDFORANYOTHERPURPOSEOTHERTHANFORWHICHINTENDED.DIMENSIONSSHALLBEVERIFIEDONSITEPRIORTOSTARTOFWORKANYDISCREPANCYSHALLBEBROUGHTTOTHENOTICEOFTHEARCHITECT.CONSTRUCTIONMANAGER/CONTRACTORMUSTCHECKALLDIMENSIONSANDDETAILSANDBERESPONSIBLEFORTHESAME.ANYDISCREPANCYSHALLBEBROUGHTTOTHENOTICEOFTHEARCHITECT.-THECONSTRUCTIONMANAGER/CONTRACTORMUSTCHECKALLDIMENSIONSANDDETAILSANDBERESPONSIBLEFORTHESAME.ANYDISCREPANCYSHALLBEBROUGHTTOTHENOTICEOFTHEARCHITECT.-THISDRAWINGSHALLBEREADINCONJUNCTIONWITHALLRELEVANTARCHITECTURAL,STRUCTURALANDSERVICESDRAWINGS.ANYDISCREPANCYNOTICEDSHALLBEBROUGHTTOTHEATTENTIONOFTHECONSULTANTSWITHINREASONABLETIMEOFRECEIPTOFTHISDRAWINGS,BUTALWAYSPRIORTOPROCUREMENTEXECUTIONOFWORKS.-IFVARIATIONSAREFOUNDBETWEENTHEDRAWINGSANDTHETECHNICALSPECIFICATIONSORREQUIREMENTOFADDITIONALINFORMATIONTOFULFILLTHEINTENTOFTHEDESIGNFOUNDDURINGEXECUTIONOFTHEWORK,THEDECISIONASTOWHATISTOBEAPPLIEDORANYFURTHERINFORMATIONFURNISHEDBYTHEARCHITECT/PM/CONSULTANTSHALLBEFINALANDBINDINGONTHECONTRACTOR REVDATEDESCRIPTION DRNCHKDHVACPHESTRUCTURALCONSULTANTCONSULTANTELECTRICALCONSULTANTCONSULTANT PROJECTDRAWINGCLIENT DATESCALE DRAWNCHECKED PROJECT STATUSSHEETSIZE REVDATEDESCRIPTION DRNCHKD WD WDSRB A1 SMSK22.10.211:25ProposedFirstFloorToiletResidentialDevelopmentatBoatClub APPASWAMYREALESTATESOptimalConsultantsOptimalConsultantsOptimalConsultantsSomdevNagesh

3450 810+7500mm+4050mmFinishedFirstfloorlvlFinishedSecondfloorlvl -15mmDRYAREALVL SECTIONAA 950 415 1195 2590 A ART WORK ART WORK 11951495 300600 1095 1570 JUNCTIONDETAILA LEDGEWALLDETAIL ledge1100mm10mm20mmthkgranitejambthk25x25mmglassmosaictile200mmthkblockwork20mmthkmortar6mmchamferongranitehighwall30155150 28272625242322212016171918151112141310LEGENDCeilingRecessedDownlighterGypsumFalseCeilingKnaufTrapDoor(600x900mm)Kohler-Squarerainshowerhead300600mm??????tileKohler-PresquilewallhungWCKohler-SingleleverdiverterKohler-VanityWashbasinGeyserasperselection100mmdia-ExhaustsystemLowheightMasonryLedgewallKohler-AnglestopvalveKohler-Spoutw/oDiverter75mmwideGranitestoneKohler-WCCisternKohler-GlassshowerpartitionCircularFloorDrain162954378Doorasperspecification400mmx400mmNicheinwetareaKohler-HandshowerKohler-BodyjetExhaustgrillonFalseCeilingRailing600600mm?????tile20x20mmGlassMosaicTileFlushplateKnaufTrapDoor(400x600mm)Kohler-Showerhead Duct CL SLOPE V -30mmWETAREALVLDRYAREA-15mmLVL SANITARYFIXTURELAYOUT C C A A B B D D 1001175800100 2075 Dropmm15 Eq 220 600 400 600 220 Eq 925 520310 595 1915 2040 Eq Eq 1125 1590 15mmDrop 1025 1200 2300 1260 100 100 825 500 1115 385 150 D5 C 715 5035 35165 715 5050 Duct SLOPE V -30mmWET-15mmDRYAREALVLAREALVL StartTile CL 15mmDrop StartTile FLOORINGLAYOUT C C A A B B D D 1260 100 100 825 500 1115 1001175800100 2075 1025 1200 2300 600 115240 275 525 1915 2040 1125 1590 D5 C Dropmm15 715 8035 115 5050 35140 715 2365 Duct V REFLECTEDCEILINGLAYOUT C C A A B B D D 1260 100 100 825 500 1115 1001175800100 2075 1025 1200 2300 888 900 1650 100 600 230 300 600700 900 600 600 220 2100 2075 1345600 1340700 540 1020 540 D5 595 3450 StartTile+7500mm+4050mmFinishedFirstfloorlvlFinishedSecondfloorlvl -15mmDRYAREALVL SECTIONBB 8109501195 415 1195 2590 ART WORK 5050 2100 StartTile+7500mm+4050mmFinishedFirstfloorlvlFinishedSecondfloorlvl -30mmWETAREALVL SECTIONCC -15mmDRYAREALVL OUTSIDE 810 1195 25902590 3450 Locationforgeyser StartTile+7500mm+4050mmFinishedFirstfloorlvlFinishedSecondfloorlvl -30mmWETAREALVLCL SECTIONDD -15mmDRYAREALVL 1105 415 480 950 990 2100 800 1440 3450 2590 25902605 ART WORK ART WORK StartDTile600300 JUNCTIONDETAILB TILEDROPDETAIL 10mm10mmthkglasspartitionasperspecificaton3mmthkAluminiumUchanelmattevitrifiedtile75mmgranitejambwith6mmchamfer-15MMLVL -30MMLVL10mmU3mmthkAluminiumchanelvitrifiedtile20mmthkgranitestone20mmthkmarblestone JUNCTIONDETAILC SHOWERPARTITIONDETAIL -15MMLVL-10MMLVL+0MMLVL BathroomTileThresholdTileRoomFloorFinish 55 2020 10 40 JUNCTIONDETAILD TILEDROPDETAIL 11/53D,SripuramColony1ststreet,SaintThomasMount,(Opp.BankofBaroda)Chennai-600016,TamilNadu,IndiaTel:+914422333587Email:ksm@ksmindia.com NOTES www.ksmindia.com -THE-ALL-THISALLDIMENSIONSAREINMILLIMETERSDRAWINGISACOPYRIGHTANDPROPERTYOFTHEARCHITECT,ISNOTTOBEPRODUCED,COPIED,HANDEDOVERTOTHIRDPARTYORUSEDFORANYOTHERPURPOSEOTHERTHANFORWHICHITISINTENDED.DIMENSIONSSHALLBEVERIFIEDONSITEPRIORTOSTARTOFWORKANYDISCREPANCYSHALLBEBROUGHTTOTHENOTICEOFTHEARCHITECT.CONSTRUCTIONMANAGER/CONTRACTORMUSTCHECKALLDIMENSIONSANDDETAILSANDBERESPONSIBLEFORTHESAME.ANYDISCREPANCYSHALLBEBROUGHTTOTHENOTICEOFTHEARCHITECT.-THECONSTRUCTIONMANAGER/CONTRACTORMUSTCHECKALLDIMENSIONSANDDETAILSANDBERESPONSIBLEFORTHESAME.ANYDISCREPANCYSHALLBEBROUGHTTOTHENOTICEOFTHEARCHITECT.-THISDRAWINGSHALLBEREADINCONJUNCTIONWITHALLRELEVANTARCHITECTURAL,STRUCTURALANDSERVICESDRAWINGS.ANYDISCREPANCYNOTICEDSHALLBEBROUGHTTOTHEATTENTIONOFTHECONSULTANTSWITHINREASONABLETIMEOFRECEIPTOFTHISDRAWINGS,BUTALWAYSPRIORTOPROCUREMENTEXECUTIONOFWORKS.-IFVARIATIONSAREFOUNDBETWEENTHEDRAWINGSANDTHETECHNICALSPECIFICATIONSORREQUIREMENTOFADDITIONALINFORMATIONTOFULFILLTHEINTENTOFTHEDESIGNFOUNDDURINGEXECUTIONOFTHEWORK,THEDECISIONASTOWHATISTOBEAPPLIEDORANYFURTHERINFORMATIONFURNISHEDBYTHEARCHITECT/PM/CONSULTANTSHALLBEFINALANDBINDINGONTHECONTRACTOR REVDATEDESCRIPTION DRNCHKDHVACPHESTRUCTURALCONSULTANTCONSULTANTELECTRICALCONSULTANTCONSULTANT PROJECTDRAWINGCLIENT DATESCALE DRAWNCHECKED PROJECT STATUSSHEETSIZE REVDATEDESCRIPTION DRNCHKD WD WDSRB A1 SMSK30.11.211:25ProposedFirstFloorToilet-3ResidentialDevelopmentatBoatClub APPASWAMYREALESTATESOptimalConsultantsOptimalConsultantsOptimalConsultantsSomdevNagesh

3450 810 1195+7500mm+4050mmFinishedFirstfloorlvlFinishedSecondfloorlvl DRYAREA-15mmLVL SECTIONAA 950 415 1195 2590 ART WORK 28272625242322212016171918151112141310LEGENDCeilingRecessedDownlighterGypsumFalseCeilingKnaufTrapDoor(600x900mm)Kohler-Squarerainshowerhead300x600mm??????tileKohler-PresquilewallhungWCKohler-SingleleverdiverterKohler-VanityWashbasinGeyserasperselection100mmdia-ExhaustsystemLowheightMasonryLedgewallKohler-AnglestopvalveKohler-Spoutw/oDiverter75mmwideGranitestoneKohler-WCCisternKohler-GlassshowerpartitionCircularFloorDrain162954378Doorasperspecification400mmx400mmNicheinwetareaKohler-HandshowerKohler-BodyjetExhaustgrillonFalseCeilingRailing600x600mm?????tile20x20mmGlassMosaicTileFlushplateKnaufTrapDoor(400x600mm)Kohler-ShowerheadDuct CL SLOPE V -30mmWETAREALVLDRYAREA-15mmLVL SANITARYFIXTURELAYOUT 1100 100 Dropmm15 Eq 2040 220 600 400 600 220 955Eq 310520 595 1840 Eq Eq 1125 1440 15mmDrop 1100 1200 2300 1260 100 100 825 500 1115 385 900 2000 C C AA BB D D D3 35 140 715 3550 715 2290 150 V Start-30mmWETDRYAREA-15mmLVLAREALVLTileCL 1515mmDropmmDrop FLOORINGLAYOUT 1260 200 100 825 500 1115 900 1100 2000 1100 1200 2300 840 240 275 450 525 1840 2040 1125 1440 C 100 C C AA BB D D D3 35 715 35115 715 140 SLOPE Duct 2290 150 V REFLECTEDCEILINGLAYOUT 1260 100 100 825 500 1115 900 1100 100 2000 1100 1200 10002300 1500 100 600 230 600 600 600 2100 2000 1000 1000 1000 540 540 595 600200 360 300 360 770 C C AA BB D D D3 StartTile+7500mm+4050mmFinishedFirstfloorlvlFinishedSecondfloorlvl DRYAREA-15mmLVL SECTIONBB 810 1195 3450 9501195 2605 415 ART WORK 2100 StartTile+7500mm+4050mmFinishedFirstfloorlvlFinishedSecondfloorlvl -30mmWETAREALVL SECTIONCC -15mmDRYAREALVL OUTSIDE 260525902590 3450 B 1195 810 1200 D StartTile+7500mm+4050mmFinishedFirstfloorlvlFinishedSecondfloorlvl -30mmWETAREALVLCL SECTIONDD -15mmDRYAREALVL 1195 415 480 950 990 2100 800 1440 Duct 3450 2590 2605 B ART WORK JUNCTIONDETAILA LEDGEWALLDETAIL ledge1100mmblockwork10mm20mmthkgranitejambthk25x25mmglassmosaictile200mmthk20mmthkmortar6mmchamferongranitehighwall30155150 JUNCTIONDETAILB TILEDROPDETAIL 10mmpartition10mmthkglassasperspecificaton3mmthkAluminiumUchanelmattevitrifiedtile75mmgranitejambwith6mmchamfer-10MMLVL -20MMLVLU3mmthkAluminiumchanel10mmvitrifiedtile20mmthkgranitestone20mmthkmarblestone JUNCTIONDETAILC SHOWERPARTITIONDETAIL -15MMLVL-10MMLVL+0MMLVL RoomBathroomTileThresholdTileFloorFinish 25 2020 10 40 JUNCTIONDETAILD TILEDROPDETAIL 11/53D,SripuramColony1ststreet,SaintThomasMount,(Opp.BankofBaroda)Chennai-600016,TamilNadu,IndiaTel:+914422333587Email:ksm@ksmindia.com NOTES www.ksmindia.com -THE-ALL-THISALLDIMENSIONSAREINMILLIMETERSDRAWINGISACOPYRIGHTANDPROPERTYOFTHEARCHITECT,ISNOTTOBEPRODUCED,COPIED,HANDEDOVERTOTHIRDPARTYORUSEDFORANYOTHERPURPOSEOTHERTHANFORWHICHITISINTENDED.DIMENSIONSSHALLBEVERIFIEDONSITEPRIORTOSTARTOFWORKANYDISCREPANCYSHALLBEBROUGHTTOTHENOTICEOFTHEARCHITECT.CONSTRUCTIONMANAGER/CONTRACTORMUSTCHECKALLDIMENSIONSANDDETAILSANDBERESPONSIBLEFORTHESAME.ANYDISCREPANCYSHALLBEBROUGHTTOTHENOTICEOFTHEARCHITECT.-THECONSTRUCTIONMANAGER/CONTRACTORMUSTCHECKALLDIMENSIONSANDDETAILSANDBERESPONSIBLEFORTHESAME.ANYDISCREPANCYSHALLBEBROUGHTTOTHENOTICEOFTHEARCHITECT.-THISDRAWINGSHALLBEREADINCONJUNCTIONWITHALLRELEVANTARCHITECTURAL,STRUCTURALANDSERVICESDRAWINGS.ANYDISCREPANCYNOTICEDSHALLBEBROUGHTTOTHEATTENTIONOFTHECONSULTANTSWITHINREASONABLETIMEOFRECEIPTOFTHISDRAWINGS,BUTALWAYSPRIORTOPROCUREMENTEXECUTIONOFWORKS.-IFVARIATIONSAREFOUNDBETWEENTHEDRAWINGSANDTHETECHNICALSPECIFICATIONSORREQUIREMENTOFADDITIONALINFORMATIONTOFULFILLTHEINTENTOFTHEDESIGNFOUNDDURINGEXECUTIONOFTHEWORK,THEDECISIONASTOWHATISTOBEAPPLIEDORANYFURTHERINFORMATIONFURNISHEDBYTHEARCHITECT/PM/CONSULTANTSHALLBEFINALANDBINDINGONTHECONTRACTOR REVDATEDESCRIPTION DRNCHKDHVACPHESTRUCTURALCONSULTANTCONSULTANTELECTRICALCONSULTANTCONSULTANT PROJECTDRAWINGCLIENT DATESCALE DRAWNCHECKED PROJECT STATUSSHEETSIZE REVDATEDESCRIPTION DRNCHKD WD WDSRB A1 SMSK15.11.211:25ProposedFirstFloorToilet-3ResidentialDevelopmentatBoatClub APPASWAMYREALESTATESOptimalConsultantsOptimalConsultantsOptimalConsultantsSomdevNagesh

15mmDrop CL SLOPE CL SANITARYFIXTURELAYOUT D5 Dropmm15 620600 470 1750 2480 1900 75 1020 670 1810 35715 150 200 600 800 500 100 1575 200 200 1000 200600200 1500 1125 200 550 1050 100100 -15mmDRY-30mmWETAREALVLAREALVL 370 50 125 SLOPE 1900 A A BB D C D C SECTIONAA 990 -30mmWETAREALVL 2100 StartTile 2680 770 3450 2605+7500mm+4050mmFinishedFirstfloorlvlFinishedSecondfloorlvl Locationforgeyser 3450 1370 SECTIONBB DRYAREA-15mmLVL 3450 2590+7500mm+4050mmFinishedFirstfloorlvlFinishedSecondfloorlvl 1195 2590 3450 A 950 415 1395 2680 810 SECTIONDD 2590 -15mmDRYAREALVL-30mmWETAREALVL 2100 B Balcony+7500mm+4050mmFinishedFirstfloorlvlFinishedSecondfloorlvl ART WORK ART WORK 300600 810 1195 2605 3450 1495 JUNCTIONDETAILA LEDGEWALLDETAIL ledge1100mm10mm20mmthkgranitejambthk25x25mmglassmosaictile200mmthkblockwork20mmthkmortar6mmchamferongranitehighwall140 30135 JUNCTIONDETAILB TILEDROPDETAIL 10mmpartition10mmthkglassasperspecificaton3mmthkAluminiumUchanelmattevitrifiedtile75mmgranitejambwith6mmchamfer-10MMLVL -20MMLVL 10mmU3mmthkAluminiumchanelvitrifiedtile20mmthkgranitestone20mmthkmarblestone JUNCTIONDETAILC SHOWERPARTITIONDETAIL 28272625242322212016171918151112141310LEGENDCeilingRecessedDownlighterGypsumFalseCeilingKnaufTrapDoor(600x900mm)Kohler-Squarerainshowerhead300600mm??????tileKohler-PresquilewallhungWCKohler-SingleleverdiverterKohler-VanityWashbasinGeyserasperselection100mmdia-ExhaustsystemLowheightMasonryLedgewallKohler-AnglestopvalveKohler-Spoutw/oDiverter75mmwideGranitestoneKohler-WCCisternKohler-GlassshowerpartitionCircularFloorDrain162954378Doorasperspecification400mmx400mmNicheinwetareaKohler-HandshowerKohler-BodyjetExhaustgrillonFalseCeilingRailing600600mm?????tile20x20mmGlassMosaicTileFlushplateKnaufTrapDoor(400x600mm)Kohler-Showerhead 15mmDropSLOPE15mmDropD5 FLOORINGLAYOUT CL CL 1750 2480 1900 75 1020 35715 150 200 600 800 500 100 1575 200 200 1000 200600200 1500 1125 200 550 1050 50 125 1900 150 490 390 150 115 35115 715 SLOPE A A BB D C D C 15mmDrop D5 REFLECTEDCEILINGLAYOUT 1000 2050 525 230600 1070 225 600 790 300 1660 365300365600250 1510 600 1465 600 800 500 100 1575 200 200 1000 200600200 1500 1125 200 550 1050 1900 A A BB D C D C SECTIONCC 2590 -30mmWETAREALVL 2100 B+7500mm+4050mmFinishedFirstfloorlvlFinishedSecondfloorlvl ART WORK 810 1195CL 990800 1440 415480 950 1395 3450 DUCT -15mmDRYAREALVL 11/53D,SripuramColony1ststreet,SaintThomasMount,(Opp.BankofBaroda)Chennai600016,TamilNadu,IndiaTel:+914422333587Email:ksm@ksmindia.com NOTES www.ksmindia.com -THE-ALL-THISALLDIMENSIONSAREINMILLIMETERSDRAWINGCOPYRIGHTANDPROPERTYOFTHEARCHITECT,NOTTOBEPRODUCED,COPIED,HANDEDOVERTOTHIRDPARTYORUSEDFORANYOTHERPURPOSEOTHERTHANFORWHICHISINTENDED.DIMENSIONSSHALLBEVERIFIEDONSITEPRIORTOSTARTOFWORKANYDISCREPANCYSHALLBEBROUGHTTOTHENOTICEOFTHEARCHITECT.CONSTRUCTIONMANAGER/CONTRACTORMUSTCHECKALLDIMENSIONSANDDETAILSANDBERESPONSIBLEFORTHESAME.ANYDISCREPANCYSHALLBEBROUGHTTOTHENOTICEOFTHEARCHITECT.-THECONSTRUCTIONMANAGER/CONTRACTORMUSTCHECKALLDIMENSIONSANDDETAILSANDBERESPONSIBLEFORTHESAME.ANYDISCREPANCYSHALLBEBROUGHTTOTHENOTICEOFTHEARCHITECT.-THISDRAWINGSHALLBEREADINCONJUNCTIONWITHALLRELEVANTARCHITECTURAL,STRUCTURALANDSERVICESDRAWINGS.ANYDISCREPANCYNOTICEDSHALLBEBROUGHTTOTHEATTENTIONOFTHECONSULTANTSWITHINREASONABLETIMEOFRECEIPTOFTHISDRAWINGS,BUTALWAYSPRIORTOPROCUREMENTEXECUTIONOFWORKS.-IFVARIATIONSAREFOUNDBETWEENTHEDRAWINGSANDTHETECHNICALSPECIFICATIONSORREQUIREMENTOFADDITIONALINFORMATIONTOFULFILLTHEINTENTOFTHEDESIGNFOUNDDURINGEXECUTIONOFTHEWORK,THEDECISIONASTOWHATISTOBEAPPLIEDORANYFURTHERINFORMATIONFURNISHEDBYTHEARCHITECT/PM/CONSULTANTSHALLBEFINALANDBINDINGONTHECONTRACTOR REVDATEDESCRIPTION DRNCHKDHVACPHESTRUCTURALCONSULTANTCONSULTANTELECTRICALCONSULTANTCONSULTANT PROJECTDRAWINGCLIENT DATESCALE DRAWNCHECKED PROJECT STATUSSHEETSIZE REVDATEDESCRIPTION DRNCHKD WD WDSRB A1 SMSK10.12.211:25ProposedFF6ResidentialDevelopmentatBoatClub APPASWAMYREALESTATESOptimalConsultantsOptimalConsultantsOptimalConsultantsSomdevNagesh N

Legend:-VitrifiedFlooringTile-600x1200mmCutTileModularWorkstationCarpetFlooring MetalPhilipsRecessedSpotLightLinearLightGridCeiling-600mmx600mm HNICabinFurniture FanServerFile750mmx450mmStorageUnitCompactorTablePointGraniteLedge FileCompacterRoom CabinCabinCabin EntireOfficeFalseCeilingHeighttobe2900mm MeetingRoom RoomServerUPSRoom FRD 100010008008008001000 1000 800800 1000 800800800800 MetalGridCeilingREFFF07RecessedSpotLightREFLF03 REFGl.Partition-2DetailID.505RecessedSpotLightREFLF03 HavellsLinearLightREFLF01 +2500mmLoweredFalseCeiling +2500mmLoweredFalseCeiling Fittings)Lightof4nos(5600 C A A B B C DD eq W1 W1 W2 W2 W2 W3 W4 W4W3 PRINTER PRINTER XEROX STORAGE PlyFalseCeilingREFAD-254 eq800800eqeqeqeq ExhaustExhaustFittings)Lightof4nos(5600 Fittings)Lightof4nos(5600950 950 950 950 950 950 950950950950 11/53D,SripuramColony1ststreet,SaintThomasMount,(Opp.BankofBaroda)Chennai600016,TamilNadu,IndiaTel:+914422333587Email:ksm@ksmindia.com NOTES www.ksmindia.com -THE-ALL-THISALLDIMENSIONSAREINMILLIMETERSDRAWINGISCOPYRIGHTANDPROPERTYOFTHEARCHITECT,ISNOTTOBEPRODUCED,COPIED,HANDEDOVERTOTHIRDPARTYORUSEDFORANYOTHERPURPOSEOTHERTHANFORWHICHITISINTENDED.DIMENSIONSSHALLBEVERIFIEDONSITEPRIORTOSTARTOFWORKANYDISCREPANCYSHALLBEBROUGHTTOTHENOTICEOFTHEARCHITECT.CONSTRUCTIONMANAGER/CONTRACTORMUSTCHECKALLDIMENSIONSANDDETAILSANDBERESPONSIBLEFORTHESAME.ANYDISCREPANCYSHALLBEBROUGHTTOTHENOTICEOFTHEARCHITECT. -IF-THIS-THECONSTRUCTIONMANAGER/CONTRACTORMUSTCHECKALLDIMENSIONSANDDETAILSANDBERESPONSIBLEFORTHESAME.ANYDISCREPANCYSHALLBEBROUGHTTOTHENOTICEOFTHEARCHITECT.DRAWINGSHALLBEREADINCONJUNCTIONWITHALLRELEVANTARCHITECTURAL,STRUCTURALANDSERVICESDRAWINGS.ANYDISCREPANCYNOTICEDSHALLBEBROUGHTTOTHEATTENTIONOFTHECONSULTANTSWITHINREASONABLETIMEOFRECEIPTOFTHISDRAWINGS,BUTALWAYSPRIORTOPROCUREMENTEXECUTIONOFWORKS.VARIATIONSAREFOUNDBETWEENTHEDRAWINGSANDTHETECHNICALSPECIFICATIONSORREQUIREMENTOFADDITIONALINFORMATIONTOFULFILLTHEINTENTOFTHEDESIGNFOUNDDURINGEXECUTIONOFTHEWORK,THEDECISIONASTOWHATISTOBEAPPLIEDORANYFURTHERINFORMATIONFURNISHEDBYTHEARCHITECT/PM/CONSULTANTSHALLBEFINALANDBINDINGONTHECONTRACTOR ID-503 WDROC A3 SSSK20.07.211:40ProposedGROUNDFLOORCABIN1OfficeRenovationatCathedralRoad RANECORPORATE N

600 750 1150 2500 plyshelf plyplyshelfshelfDrawersocketandcontrolswitch plyplyshelfshelf 2500 1150 600 750 19mmPly.ShutterDETAILADETAILB 450 FFL Counterwithpanellinglaminated19mmthk.plywhiteshelf12mmthk.plyfinishedwhitelaminatetopinwhitelaminateontopof19mmthk.ply 19mm12mmFrostyWhiteLaminateontopof19mmthk.plythk.plywithFrostyWhitelaminateasverticalstopthk.plywoodshuttervacuumformedwithfrostywhitelaminateonouterfaceandedges25 20 19 30 514 matchmadeToptrimoftheshutterwithaprofiledteaktrim,paintedontoptotoshutterlaminatefinish 3 3mmthk.t.w.lipping DetailA 12 19mmthk.plywoodshuttervacuumformedwithfrostywhitelaminateonouterfaceandedgesToptrimoftheshuttermadewithaprofiledteaktrim,paintedontoptomatchtoshutterlaminatefinish30 514 9 21 19mmthk.plywoodShelfvacuumformedwithfrostywhitelaminateonouterfaceandedges DetailB 3400 68013601360 19mmPly.ShutterDrawer19mmPly.Partitions 2500 1150 600 750 DETAILADETAILC19mmPly.Shutter DetailC FrostyWhiteLaminateontopof19mmthk.ply 19 19 19mmhandleAluminiumProfilethk.plywoodshuttervacuumformedwithfrostywhitelaminateonouterfaceandedges 11/53D,SripuramColony1ststreet,SaintThomasMount,(Opp.BankofBaroda)Chennai600016,TamilNadu,IndiaTel:+914422333587Email:ksm@ksmindia.com NOTES www.ksmindia.com -THE-ALL-THISALLDIMENSIONSAREINMILLIMETERSDRAWINGISCOPYRIGHTANDPROPERTYOFTHEARCHITECT,ISNOTTOBEPRODUCED,COPIED,HANDEDOVERTOTHIRDPARTYORUSEDFORANYOTHERPURPOSEOTHERTHANFORWHICHITISINTENDED.DIMENSIONSSHALLBEVERIFIEDONSITEPRIORTOSTARTOFWORKANYDISCREPANCYSHALLBEBROUGHTTOTHENOTICEOFTHEARCHITECT.CONSTRUCTIONMANAGER/CONTRACTORMUSTCHECKALLDIMENSIONSANDDETAILSANDBERESPONSIBLEFORTHESAME.ANYDISCREPANCYSHALLBEBROUGHTTOTHENOTICEOFTHEARCHITECT. -IF-THIS-THECONSTRUCTIONMANAGER/CONTRACTORMUSTCHECKALLDIMENSIONSANDDETAILSANDBERESPONSIBLEFORTHESAME.ANYDISCREPANCYSHALLBEBROUGHTTOTHENOTICEOFTHEARCHITECT.DRAWINGSHALLBEREADINCONJUNCTIONWITHALLRELEVANTARCHITECTURAL,STRUCTURALANDSERVICESDRAWINGS.ANYDISCREPANCYNOTICEDSHALLBEBROUGHTTOTHEATTENTIONOFTHECONSULTANTSWITHINREASONABLETIMEOFRECEIPTOFTHISDRAWINGS,BUTALWAYSPRIORTOPROCUREMENTEXECUTIONOFWORKS.VARIATIONSAREFOUNDBETWEENTHEDRAWINGSANDTHETECHNICALSPECIFICATIONSORREQUIREMENTOFADDITIONALINFORMATIONTOFULFILLTHEINTENTOFTHEDESIGNFOUNDDURINGEXECUTIONOFTHEWORK,THEDECISIONASTOWHATISTOBEAPPLIEDORANYFURTHERINFORMATIONFURNISHEDBYTHEARCHITECT/PM/CONSULTANTSHALLBEFINALANDBINDINGONTHECONTRACTOR AD-601 WDROC A3 MDSK05.08.211:25ProposedStorageUnitOfficeRenovationatCathedralRoad RANECORPORATE N

W3W3W3 AOPTION 735735 1340 110019005501900 1400 450 450 1400 450 14807507501525750 1460 2160 2160 1160 2235283328332833 22302235 8-workstationsofNo.No.ofcabins-3No.ofstorageunits-14HeightFullPartitionWallFullHeightPartitionWallFullHeightPartitionWallWallonDiffuserAirFreshWallonDiffuserAirFreshaboveFalseCeilingaboveFalseCeiling unitsACAdditionaltobeprovidedforeachcabin FixturesLightinghavetobealteredandadded CassetteExistingACsbecomeuseless 11/53D,SripuramColony1ststreet,SaintThomasMount,(Opp.BankofBaroda)Chennai-600016,TamilNadu,IndiaTel:+914422333587Email:ksm@ksmindia.com NOTES www.ksmindia.com -THE-ALL-THISALLDIMENSIONSAREINMILLIMETERSDRAWINGISCOPYRIGHTANDPROPERTYOFTHEARCHITECT,ISNOTTOBEPRODUCED,COPIED,HANDEDOVERTOTHIRDPARTYORUSEDFORANYOTHERPURPOSEOTHERTHANFORWHICHITISINTENDED.DIMENSIONSSHALLBEVERIFIEDONSITEPRIORTOSTARTOFWORKANYDISCREPANCYSHALLBEBROUGHTTOTHENOTICEOFTHEARCHITECT.CONSTRUCTIONMANAGER/CONTRACTORMUSTCHECKALLDIMENSIONSANDDETAILSANDBERESPONSIBLEFORTHESAME.ANYDISCREPANCYSHALLBEBROUGHTTOTHENOTICEOFTHEARCHITECT. -IF-THIS-THECONSTRUCTIONMANAGER/CONTRACTORMUSTCHECKALLDIMENSIONSANDDETAILSANDBERESPONSIBLEFORTHESAME.ANYDISCREPANCYSHALLBEBROUGHTTOTHENOTICEOFTHEARCHITECT.DRAWINGSHALLBEREADINCONJUNCTIONWITHALLRELEVANTARCHITECTURAL,STRUCTURALANDSERVICESDRAWINGS.ANYDISCREPANCYNOTICEDSHALLBEBROUGHTTOTHEATTENTIONOFTHECONSULTANTSWITHINREASONABLETIMEOFRECEIPTOFTHISDRAWINGS,BUTALWAYSPRIORTOPROCUREMENTEXECUTIONOFWORKS.VARIATIONSAREFOUNDBETWEENTHEDRAWINGSANDTHETECHNICALSPECIFICATIONSORREQUIREMENTOFADDITIONALINFORMATIONTOFULFILLTHEINTENTOFTHEDESIGNFOUNDDURINGEXECUTIONOFTHEWORK,THEDECISIONASTOWHATISTOBEAPPLIEDORANYFURTHERINFORMATIONFURNISHEDBYTHEARCHITECT/PM/CONSULTANTSHALLBEFINALANDBINDINGONTHECONTRACTOR ROCSC SCROC A3 SGSK08.10.20211:50ROCROCFIRSTFLOOR N

W3W3W3 BOPTION105015301050 5501900550 1650 750 750 3275 750 750 1850 1220 1308 2570 2400 2633 2570 2103 2600 1479 2570 2570 10-workstationsofNo.No.ofcabins-4No.ofstorageunits-7WallonDiffuserAirFreshaboveFalseCeiling unitACAdditionaltobeprovided unitACAdditionaltobeprovidedhasCeilingFalsetobecompletelyrevampedintersectsACCassettewithpartitionwalls FixturesLightinghavetobealteredandadded 11/53D,SripuramColony1ststreet,SaintThomasMount,(Opp.BankofBaroda)Chennai-600016,TamilNadu,IndiaTel:+914422333587Email:ksm@ksmindia.com NOTES www.ksmindia.com -THE-ALL-THISALLDIMENSIONSAREINMILLIMETERSDRAWINGISCOPYRIGHTANDPROPERTYOFTHEARCHITECT,ISNOTTOBEPRODUCED,COPIED,HANDEDOVERTOTHIRDPARTYORUSEDFORANYOTHERPURPOSEOTHERTHANFORWHICHITISINTENDED.DIMENSIONSSHALLBEVERIFIEDONSITEPRIORTOSTARTOFWORKANYDISCREPANCYSHALLBEBROUGHTTOTHENOTICEOFTHEARCHITECT.CONSTRUCTIONMANAGER/CONTRACTORMUSTCHECKALLDIMENSIONSANDDETAILSANDBERESPONSIBLEFORTHESAME.ANYDISCREPANCYSHALLBEBROUGHTTOTHENOTICEOFTHEARCHITECT. -IF-THIS-THECONSTRUCTIONMANAGER/CONTRACTORMUSTCHECKALLDIMENSIONSANDDETAILSANDBERESPONSIBLEFORTHESAME.ANYDISCREPANCYSHALLBEBROUGHTTOTHENOTICEOFTHEARCHITECT.DRAWINGSHALLBEREADINCONJUNCTIONWITHALLRELEVANTARCHITECTURAL,STRUCTURALANDSERVICESDRAWINGS.ANYDISCREPANCYNOTICEDSHALLBEBROUGHTTOTHEATTENTIONOFTHECONSULTANTSWITHINREASONABLETIMEOFRECEIPTOFTHISDRAWINGS,BUTALWAYSPRIORTOPROCUREMENTEXECUTIONOFWORKS.VARIATIONSAREFOUNDBETWEENTHEDRAWINGSANDTHETECHNICALSPECIFICATIONSORREQUIREMENTOFADDITIONALINFORMATIONTOFULFILLTHEINTENTOFTHEDESIGNFOUNDDURINGEXECUTIONOFTHEWORK,THEDECISIONASTOWHATISTOBEAPPLIEDORANYFURTHERINFORMATIONFURNISHEDBYTHEARCHITECT/PM/CONSULTANTSHALLBEFINALANDBINDINGONTHECONTRACTOR ROCSC SCROC A3 SGSK08.10.20211:50ROCROCFIRSTFLOOR N

W3W3W3 COPTION 106614807507501525750 13401340 3000150045018651400 450 7651400 1345 10-workstationsofNo.No.ofcabins-3No.ofstorageunits-16 735735 2235283328332833 22302235 1067 WallonDiffuserAirFreshaboveFalseCeiling unitsACAdditionaltobeprovidedforeachcabinPointsLightinghavetobealteredandadded CassetteExistingACsbecomeuseless 11/53D,SripuramColony1ststreet,SaintThomasMount,(Opp.BankofBaroda)Chennai-600016,TamilNadu,IndiaTel:+914422333587Email:ksm@ksmindia.com NOTES www.ksmindia.com -THE-ALL-THISALLDIMENSIONSAREINMILLIMETERSDRAWINGISCOPYRIGHTANDPROPERTYOFTHEARCHITECT,ISNOTTOBEPRODUCED,COPIED,HANDEDOVERTOTHIRDPARTYORUSEDFORANYOTHERPURPOSEOTHERTHANFORWHICHITISINTENDED.DIMENSIONSSHALLBEVERIFIEDONSITEPRIORTOSTARTOFWORKANYDISCREPANCYSHALLBEBROUGHTTOTHENOTICEOFTHEARCHITECT.CONSTRUCTIONMANAGER/CONTRACTORMUSTCHECKALLDIMENSIONSANDDETAILSANDBERESPONSIBLEFORTHESAME.ANYDISCREPANCYSHALLBEBROUGHTTOTHENOTICEOFTHEARCHITECT. -IF-THIS-THECONSTRUCTIONMANAGER/CONTRACTORMUSTCHECKALLDIMENSIONSANDDETAILSANDBERESPONSIBLEFORTHESAME.ANYDISCREPANCYSHALLBEBROUGHTTOTHENOTICEOFTHEARCHITECT.DRAWINGSHALLBEREADINCONJUNCTIONWITHALLRELEVANTARCHITECTURAL,STRUCTURALANDSERVICESDRAWINGS.ANYDISCREPANCYNOTICEDSHALLBEBROUGHTTOTHEATTENTIONOFTHECONSULTANTSWITHINREASONABLETIMEOFRECEIPTOFTHISDRAWINGS,BUTALWAYSPRIORTOPROCUREMENTEXECUTIONOFWORKS.VARIATIONSAREFOUNDBETWEENTHEDRAWINGSANDTHETECHNICALSPECIFICATIONSORREQUIREMENTOFADDITIONALINFORMATIONTOFULFILLTHEINTENTOFTHEDESIGNFOUNDDURINGEXECUTIONOFTHEWORK,THEDECISIONASTOWHATISTOBEAPPLIEDORANYFURTHERINFORMATIONFURNISHEDBYTHEARCHITECT/PM/CONSULTANTSHALLBEFINALANDBINDINGONTHECONTRACTOR ROCSC SCROC A3 SGSK08.10.20211:50ROCROCFIRSTFLOOR N

W3W3W3 DOPTION1710 110019005501900 1400 450 450 1400 2160 2160 8-workstationsofNo.No.ofcabins-3No.ofstorageunits-12 900 790790 Highmm1200HeightFullPartitionWallPartitionWall cabinsCombinedprovided.Nospecificcabinsforindividuals 11/53D,SripuramColony1ststreet,SaintThomasMount,(Opp.BankofBaroda)Chennai-600016,TamilNadu,IndiaTel:+914422333587Email:ksm@ksmindia.com NOTES www.ksmindia.com -THE-ALL-THISALLDIMENSIONSAREINMILLIMETERSDRAWINGISCOPYRIGHTANDPROPERTYOFTHEARCHITECT,ISNOTTOBEPRODUCED,COPIED,HANDEDOVERTOTHIRDPARTYORUSEDFORANYOTHERPURPOSEOTHERTHANFORWHICHITISINTENDED.DIMENSIONSSHALLBEVERIFIEDONSITEPRIORTOSTARTOFWORKANYDISCREPANCYSHALLBEBROUGHTTOTHENOTICEOFTHEARCHITECT.CONSTRUCTIONMANAGER/CONTRACTORMUSTCHECKALLDIMENSIONSANDDETAILSANDBERESPONSIBLEFORTHESAME.ANYDISCREPANCYSHALLBEBROUGHTTOTHENOTICEOFTHEARCHITECT. -IF-THIS-THECONSTRUCTIONMANAGER/CONTRACTORMUSTCHECKALLDIMENSIONSANDDETAILSANDBERESPONSIBLEFORTHESAME.ANYDISCREPANCYSHALLBEBROUGHTTOTHENOTICEOFTHEARCHITECT.DRAWINGSHALLBEREADINCONJUNCTIONWITHALLRELEVANTARCHITECTURAL,STRUCTURALANDSERVICESDRAWINGS.ANYDISCREPANCYNOTICEDSHALLBEBROUGHTTOTHEATTENTIONOFTHECONSULTANTSWITHINREASONABLETIMEOFRECEIPTOFTHISDRAWINGS,BUTALWAYSPRIORTOPROCUREMENTEXECUTIONOFWORKS.VARIATIONSAREFOUNDBETWEENTHEDRAWINGSANDTHETECHNICALSPECIFICATIONSORREQUIREMENTOFADDITIONALINFORMATIONTOFULFILLTHEINTENTOFTHEDESIGNFOUNDDURINGEXECUTIONOFTHEWORK,THEDECISIONASTOWHATISTOBEAPPLIEDORANYFURTHERINFORMATIONFURNISHEDBYTHEARCHITECT/PM/CONSULTANTSHALLBEFINALANDBINDINGONTHECONTRACTOR ROCSC SCROC A3 SGSK08.10.20211:50ROCROCFIRSTFLOOR N

W3W3W3 EOPTION1340 110019005501900 1400 450 450 1400 2160 2160 8-workstationsofNo.No.ofcabins-3No.ofstorageunits-12 651647647 900 Highmm1200Highmm1200HeightFullPartitionWallPartitionWallPartitionWall cabinsCombinedprovided.Nospecificcabinsforindividuals 11/53D,SripuramColony1ststreet,SaintThomasMount,(Opp.BankofBaroda)Chennai-600016,TamilNadu,IndiaTel:+914422333587Email:ksm@ksmindia.com NOTES www.ksmindia.com -THE-ALL-THISALLDIMENSIONSAREINMILLIMETERSDRAWINGISCOPYRIGHTANDPROPERTYOFTHEARCHITECT,ISNOTTOBEPRODUCED,COPIED,HANDEDOVERTOTHIRDPARTYORUSEDFORANYOTHERPURPOSEOTHERTHANFORWHICHITISINTENDED.DIMENSIONSSHALLBEVERIFIEDONSITEPRIORTOSTARTOFWORKANYDISCREPANCYSHALLBEBROUGHTTOTHENOTICEOFTHEARCHITECT.CONSTRUCTIONMANAGER/CONTRACTORMUSTCHECKALLDIMENSIONSANDDETAILSANDBERESPONSIBLEFORTHESAME.ANYDISCREPANCYSHALLBEBROUGHTTOTHENOTICEOFTHEARCHITECT. -IF-THIS-THECONSTRUCTIONMANAGER/CONTRACTORMUSTCHECKALLDIMENSIONSANDDETAILSANDBERESPONSIBLEFORTHESAME.ANYDISCREPANCYSHALLBEBROUGHTTOTHENOTICEOFTHEARCHITECT.DRAWINGSHALLBEREADINCONJUNCTIONWITHALLRELEVANTARCHITECTURAL,STRUCTURALANDSERVICESDRAWINGS.ANYDISCREPANCYNOTICEDSHALLBEBROUGHTTOTHEATTENTIONOFTHECONSULTANTSWITHINREASONABLETIMEOFRECEIPTOFTHISDRAWINGS,BUTALWAYSPRIORTOPROCUREMENTEXECUTIONOFWORKS.VARIATIONSAREFOUNDBETWEENTHEDRAWINGSANDTHETECHNICALSPECIFICATIONSORREQUIREMENTOFADDITIONALINFORMATIONTOFULFILLTHEINTENTOFTHEDESIGNFOUNDDURINGEXECUTIONOFTHEWORK,THEDECISIONASTOWHATISTOBEAPPLIEDORANYFURTHERINFORMATIONFURNISHEDBYTHEARCHITECT/PM/CONSULTANTSHALLBEFINALANDBINDINGONTHECONTRACTOR ROCSC SCROC A3 SGSK08.10.20211:50ROCROCFIRSTFLOOR N

FOPTION1710 110019005501900 1400 450 450 1400 2160 2160 9-workstationsofNo.No.ofcabins-2No.ofstorageunits-10HeightFullPartitionWall(Glass/Gypsum)800 800 WallHighStorageUnit 750 900 900937CorridorWidthReduced unitACAdditionaltobeprovidedNote:Existingworkstationsmovedby886MM CassetteExistingACoverabundanceforcabin 11/53D,SripuramColony1ststreet,SaintThomasMount,(Opp.BankofBaroda)Chennai-600016,TamilNadu,IndiaTel:+914422333587Email:ksm@ksmindia.com NOTES www.ksmindia.com -THE-ALL-THISALLDIMENSIONSAREINMILLIMETERSDRAWINGISCOPYRIGHTANDPROPERTYOFTHEARCHITECT,ISNOTTOBEPRODUCED,COPIED,HANDEDOVERTOTHIRDPARTYORUSEDFORANYOTHERPURPOSEOTHERTHANFORWHICHITISINTENDED.DIMENSIONSSHALLBEVERIFIEDONSITEPRIORTOSTARTOFWORKANYDISCREPANCYSHALLBEBROUGHTTOTHENOTICEOFTHEARCHITECT.CONSTRUCTIONMANAGER/CONTRACTORMUSTCHECKALLDIMENSIONSANDDETAILSANDBERESPONSIBLEFORTHESAME.ANYDISCREPANCYSHALLBEBROUGHTTOTHENOTICEOFTHEARCHITECT.

-IF-THIS-THECONSTRUCTIONMANAGER/CONTRACTORMUSTCHECKALLDIMENSIONSANDDETAILSANDBERESPONSIBLEFORTHESAME.ANYDISCREPANCYSHALLBEBROUGHTTOTHENOTICEOFTHEARCHITECT.DRAWINGSHALLBEREADINCONJUNCTIONWITHALLRELEVANTARCHITECTURAL,STRUCTURALANDSERVICESDRAWINGS.ANYDISCREPANCYNOTICEDSHALLBEBROUGHTTOTHEATTENTIONOFTHECONSULTANTSWITHINREASONABLETIMEOFRECEIPTOFTHISDRAWINGS,BUTALWAYSPRIORTOPROCUREMENTEXECUTIONOFWORKS.VARIATIONSAREFOUNDBETWEENTHEDRAWINGSANDTHETECHNICALSPECIFICATIONSORREQUIREMENTOFADDITIONALINFORMATIONTOFULFILLTHEINTENTOFTHEDESIGNFOUNDDURINGEXECUTIONOFTHEWORK,THEDECISIONASTOWHATISTOBEAPPLIEDORANYFURTHERINFORMATIONFURNISHEDBYTHEARCHITECT/PM/CONSULTANTSHALLBEFINALANDBINDINGONTHECONTRACTOR

ROCSC SCROC A3 SGSK08.10.20211:50ROCROCFIRSTFLOOR N

8420 7980 Lobby Up Up W2W2 4001200 1240 32101200 1230 120032101200 16050 2980497034024001940340 16050 Gutter Slope Slope W1a W1a A1fencing H 140519206320 140519206320 345 G F E H F E P3 PLAN@clusterlevel1 G P3 14850 1501501320 300 Gutter 600 600450 150 925 450150 B AA Slope Slope750750 18101000 2500 2500 2500 2500 1810 B 345 750 750 1000 1000 1000 1000 1000 1000 1000 1000 500 500 500 500 500 500 500 500 925 230 230 23023040 NotPalm/MediumSizedtreeheightsof5mor6mBushtypepreferred Finishedclusterlevel1 5 4 SECTION-AA FinishedFinishedclusterlevel2clusterlevel1 3250 3250 Slope P3 Slope P3 7980 GFRCPlanterBoxwithgeotextilemembraneandweepholes GrandifloraThunbergiaRangoonCreeperCatclaw JasmineStarRangoonCreeperThunbergia Grandiflora Catclaw LightweightFilling 1000 600 6001000 3250 3250 FinishedFinishedFinishedclusterlevel1clusterlevel2clusterlevel1 Plaza (Sunkenby575mm) A1fence Corridor (Sunkenby30mm) Slope Corridor (Sunkenby30mm) Formfinishedconcreteslab GFEDC SECTION-BB 1920 1405 2185 490 5210 NotPalm/heightsMediumGFRCPlanterBoxwithgeotextilemembraneandweepholesSizedtreeof5mor6mBushtypepreferred LightweightFilling 23012901000 PrabhakaranNote:-UseMediumSizedtreesthatreachmaximumheightsof5mor6m.TreetypescanbedecidedbyMr.(Horticulturist)-Palm/Bushtypetreesarenotpreferred.-TreePlanterpositioncanbestaggeredfromfloortofloor. 11/53D,SripuramColony1ststreet,SaintThomasMount,(Opp.BankofBaroda)Chennai600016,TamilNadu,IndiaTel:+914422333587Email:ksm@ksmindia.com NOTES www.ksmindia.com ALLDIMENSIONSARE MILLIMETERS -THE-ALL-THISDRAWINGISACOPYRIGHTANDPROPERTYOFTHEARCHITECT,ISNOTTOBEPRODUCED,COPIED,HANDEDOVERTOTHIRDPARTYORUSEDFORANYOTHERPURPOSEOTHERTHANFORWHICHISINTENDED.DIMENSIONSSHALLBEVERIFIEDONSITEPRIORTOSTARTOFWORKANYDISCREPANCYSHALLBEBROUGHTTOTHENOTICEOFTHEARCHITECT.CONSTRUCTIONMANAGER/CONTRACTORMUSTCHECKALLDIMENSIONSANDDETAILSANDBERESPONSIBLEFORTHESAME.ANYDISCREPANCYSHALLBEBROUGHTTOTHENOTICEOFTHEARCHITECT. -IF-THIS-THECONSTRUCTIONMANAGER/CONTRACTORMUSTCHECKALLDIMENSIONSANDDETAILSANDBERESPONSIBLEFORTHESAME.ANYDISCREPANCYSHALLBEBROUGHTTOTHENOTICEOFTHEARCHITECT.DRAWINGSHALLBEREADCONJUNCTIONWITHALLRELEVANTARCHITECTURAL,STRUCTURALANDSERVICESDRAWINGS.ANYDISCREPANCYNOTICEDSHALLBEBROUGHTTOTHEATTENTIONOFTHECONSULTANTSWITHINREASONABLETIMEOFRECEIPTOFTHISDRAWINGS,BUTALWAYSPRIORTOPROCUREMENTEXECUTIONOFWORKS.VARIATIONSAREFOUNDBETWEENTHEDRAWINGSANDTHETECHNICALSPECIFICATIONSORREQUIREMENTOFADDITIONALINFORMATIONTOFULFILLTHEINTENTOFTHEDESIGNFOUNDDURINGEXECUTIONOFTHEWORK,THEDECISIONASTOWHATISTOBEAPPLIEDORANYFURTHERINFORMATIONFURNISHEDBYTHEARCHITECT/PM/CONSULTANTSHALLBEFINALANDBINDINGONTHECONTRACTOR REVDATE DESCRIPTION CHKDDRN HVACPHESTRUCTURALCONSULTANTCONSULTANTELECTRICALCONSULTANTCONSULTANT PROJECTDRAWINGCLIENT DATESCALE CHECKEDDRAWN PROJECT STATUSSHEETSIZE REVDATE DESCRIPTION CHKDDRN WD WDVIVH A2 SMSK17.09.211:75VIVHPlanterBoxDetail VIVH

REVDATE DESCRIPTION CHKDDRN HVACELECTRICALPHESTRUCTURALCONSULTANTCONSULTANTCONSULTANTCONSULTANT: PROJECTDRAWINGCLIENT DATESCALE CHECKEDDRAWN PROJECT STATUSSHEETSIZE WD WDVIVH A3 SVSK21.09.211:25VIVHGFRCPlanterBoxDetail N

70 860 70 7501000 Plan A SectionBBSectionAA BoxTreePlanterDetail B B 1000 70 610 70 750 860 7070 975 610 70 975 50 1000 A MembraneGeotextile19mmthkGFRC 40 700 11053040110 110 19mmthkGFRC 1000906 AA 19 70 906 110 19 2525 712 962 50 5050 70 860 70 7501000 BoxCreeperPlanterDetail 1000 70 610 70 750 860 7070 A 610 70 600 25 575 Plan A B B A SectionBBSectionAA Membrane19mmthkGFRCGeotextile 11040 700 40 110 50 50 19mmthkGFRC 712 506 962 506 A 70 110 530 110 25 600575 19 19 50 50 70 50 19mmthkGFRCGeotextilemembrane DETAILAScale1:5 11/53D,SripuramColony1ststreet,SaintThomasMount,(Opp.BankofBaroda)Chennai-600016,TamilNadu,IndiaTel:+914422333587Email:ksm@ksmindia.com NOTES www.ksmindia.com -THE-ALL-THISALLDIMENSIONSAREINMILLIMETERSDRAWINGISCOPYRIGHTANDPROPERTYOFTHEARCHITECT,ISNOTTOBEPRODUCED,COPIED,HANDEDOVERTOTHIRDPARTYORUSEDFORANYOTHERPURPOSEOTHERTHANFORWHICHITISINTENDED.DIMENSIONSSHALLBEVERIFIEDONSITEPRIORTOSTARTOFWORKANYDISCREPANCYSHALLBEBROUGHTTOTHENOTICEOFTHEARCHITECT.CONSTRUCTIONMANAGER/CONTRACTORMUSTCHECKALLDIMENSIONSANDDETAILSANDBERESPONSIBLEFORTHESAME.ANYDISCREPANCYSHALLBEBROUGHTTOTHENOTICEOFTHEARCHITECT.

-IF-THIS-THECONSTRUCTIONMANAGER/CONTRACTORMUSTCHECKALLDIMENSIONSANDDETAILSANDBERESPONSIBLEFORTHESAME.ANYDISCREPANCYSHALLBEBROUGHTTOTHENOTICEOFTHEARCHITECT.DRAWINGSHALLBEREADINCONJUNCTIONWITHALLRELEVANTARCHITECTURAL,STRUCTURALANDSERVICESDRAWINGS.ANYDISCREPANCYNOTICEDSHALLBEBROUGHTTOTHEATTENTIONOFTHECONSULTANTSWITHINREASONABLETIMEOFRECEIPTOFTHISDRAWINGS,BUTALWAYSPRIORTOPROCUREMENTEXECUTIONOFWORKS.VARIATIONSAREFOUNDBETWEENTHEDRAWINGSANDTHETECHNICALSPECIFICATIONSORREQUIREMENTOFADDITIONALINFORMATIONTOFULFILLTHEINTENTOFTHEDESIGNFOUNDDURINGEXECUTIONOFTHEWORK,THEDECISIONASTOWHATISTOBEAPPLIEDORANYFURTHERINFORMATIONFURNISHEDBYTHEARCHITECT/PM/CONSULTANTSHALLBEFINALANDBINDINGONTHECONTRACTOR

AAD-302B B A B FAD-302A FAP-211 OPENTOSKY W1 750 8100 FFL:19.00mNominalslope20mm columnØ250mm FFL:17.35m 430 GutterwaterRain PLANTER 3.0MWideRampL:34.65&H:2.00m 3.0MWideRampL:4675&H:0.30m 3.0MWideRampL:19.525&H:1.15m (Slope1in17) (Slope1in15.5) (Slopein15) RampWideM5.70L:3.10&H:0.15 Drain Drain Slopeht50mm 450 750 FFL:18.50m FFL:18.55m FFL:18.85m FFL:20.00m 200 130 430 330 330 Drain STONEEDGE 2000MMWIDEWALKWAY 3.0MWideRampL:10.15&H:0.5m(Slope1in20) 130 Wallthk.200mm FFL:16.50m FFL:16.50m FFL:16.45m FFL:16.70m FFL:16.70m FFL:16.75m FFL:16.95m FFL:17.00m FFL:17.20m FFL:17.20m FFL:17.25m FFL:17.45m FFL:17.50m FFL:17.70m FFL:17.75m FFL:18.00m FFL:18.20m FFL:18.25m FFL:18.50m FFL:18.55m FFL:18.85m FFL:18.90m FFL:19.23m FFL:19.28m FFL:19.66m FFL:19.61m 34350 1015019125 4375 AD-302A AD-302A C C D D PLAN(ALONGSPINELANDSCAPESTEPS) PLANTER 150 4000 150 4100 150 4100 150 2850 1250 600 3800 150 2850 1250 600 3600 600600 10750 150 4225 4000 5925 150 3850 2500 600600 4300 600600 E E TreadWidth1275mm600mmRiser125mm TreadWidth1275mm600mmRiser125mm TreadWidth2700mm600mmRiser125mm TreadWidth1275mm600mmRiser127mm TreadWidth1175mm600mmRiser127mm 1275 100 1275 600 TreadWidth2750mm600mmRiser127mm 600 3550 600 3650 600 3650 600 3650 150 3000 1250 600 3650 150 2800 1250 600600 600600 3175 150 3775 2000 600600 5300 150 3350 2000 3100600600 3700 150 4000 150 4100 150 4100 150 3500 150 4850 150 3500 150 5250 4225 150 150 6975 150 5150 150 6550 AD-302B AD-302B AD-302B AD-302B AD-302B AD-302B AD-302B UP UP UP UP UP 150 UP UP UP UP UP UP UP FFL:18.90mTreadWidth1275mm600mmRiser115mm TreadWidth1275mm600mmRiser125mm TreadWidth1275mm600mmRiser125mm TreadWidth1275mm600mmRiser125mm TreadWidth1275mm600mmRiser125mm El.El.+16.50mFin.DrivewayLvl.+16.35m150 150 PlinthLevel:16.50m FFL:20.00m NaturalGroundLine FFL:19.61m FFL:19.28m FFL:18.90mFFL:18.90m FFL:18.20m FFL:18.25m FFL:18.55m FFL:17.70m FFL:18.00m FFL:17.50m FFL:16.75m FFL:17.00m FFL:17.25m FFL:16.50m FFL:17.75m FFL:18.50m FFL:18.85m FFL:19.66mJSPLAZA OpenTerraceEl.El.Fin.GroundFloorLvl.+16.65mFin.1stFloorLvl.+21.15mFin.DropoffLvl. 4300 2250Formedfinishedconcrete 1500 900 2250 V3 W16 W16 JSENTRY FFL:18.90m 115 115 115 SECTIONE-E(ALONGSPINELANDSCAPESTEPS) El.Fin.GroundFloorLvl.+19.00mTreadWidth1275mm600mmRiser125mm TreadWidth1275mm600mmRiser127mm TreadWidth2750mm600mmRiser127mmTreadWidth1275mm600mmRiser115mm TreadWidth1275mm600mmRiser125mm TreadWidth1275mm600mmRiser125mm AP-302B A AP-302B B AP-302B C AP-302B D AP-302B E JSPLAZA SECTIONF-F(ALONGSPINELANDSCAPESTEPS) El.Fin.GroundFloorLvl.+16.65m 4500 8100 El.El.El.El.Fin.1stFloorLvl.+21.15mUnfin.TerraceLvl.+24.75mFin.DropoffLvl.+16.50mFin.DrivewayLvl.+16.35m150 150 DRIVEWAY FFL:19.66m FFL:19.23m FFL:19.28m FFL:18.85mFFL:18.90m FFL:18.25m FFL:18.50m FFL:18.55m FFL:17.75m FFL:18.00m FFL:17.45m FFL:17.50m FFL:16.70m FFL:16.95m FFL:17.20m FFL:20.00m JSENTRY FFL:18.90m NaturalGroundLine OpenTerrace 2250Formedfinishedconcrete 1500 900 2250 V3 W16 W16 El.Fin.GroundFloorLvl.+19.00mTreadWidth1275mm600mmRiser125mm TreadWidth1275mm600mmRiser127mm TreadWidth2750mm600mmRiser127mm TreadWidth1275mm600mmRiser125mm TreadWidth1275mm600mmRiser125mm 11/53D,SripuramColony1ststreet,SaintThomasMount,(Opp.BankofBaroda)Chennai600016,TamilNadu,IndiaTel:+914422333587Email:ksm@ksmindia.com NOTES www.ksmindia.com -THE-ALL-THISALLDIMENSIONSAREINMILLIMETERSDRAWINGISCOPYRIGHTANDPROPERTYOFTHEARCHITECT,NOTTOBEPRODUCED,COPIED,HANDEDOVERTOTHIRDPARTYORUSEDFORANYOTHERPURPOSEOTHERTHANFORWHICHITISINTENDED.DIMENSIONSSHALLBEVERIFIEDONSITEPRIORTOSTARTOFWORKANYDISCREPANCYSHALLBEBROUGHTTOTHENOTICEOFTHEARCHITECT.CONSTRUCTIONMANAGER/CONTRACTORMUSTCHECKALLDIMENSIONSANDDETAILSANDBERESPONSIBLEFORTHESAME.ANYDISCREPANCYSHALLBEBROUGHTTOTHENOTICEOFTHEARCHITECT. -IF-THIS-THECONSTRUCTIONMANAGER/CONTRACTORMUSTCHECKALLDIMENSIONSANDDETAILSANDBERESPONSIBLEFORTHESAME.ANYDISCREPANCYSHALLBEBROUGHTTOTHENOTICEOFTHEARCHITECT.DRAWINGSHALLBEREADCONJUNCTIONWITHALLRELEVANTARCHITECTURAL,STRUCTURALANDSERVICESDRAWINGS.ANYDISCREPANCYNOTICEDSHALLBEBROUGHTTOTHEATTENTIONOFTHECONSULTANTSWITHINREASONABLETIMEOFRECEIPTOFTHISDRAWINGS,BUTALWAYSPRIORTOPROCUREMENTEXECUTIONOFWORKS.VARIATIONSAREFOUNDBETWEENTHEDRAWINGSANDTHETECHNICALSPECIFICATIONSORREQUIREMENTOFADDITIONALINFORMATIONTOFULFILLTHEINTENTOFTHEDESIGNFOUNDDURINGEXECUTIONOFTHEWORK,THEDECISIONASTOWHATISTOBEAPPLIEDORANYFURTHERINFORMATIONFURNISHEDBYTHEARCHITECT/PM/CONSULTANTSHALLBEFINALANDBINDINGONTHECONTRACTOR AD-302A WDCIK A2 SMSK03.11.211:150PROPOSEDSpineLandscapeDetailINTERNATIONALSCHOOLATKOCHI MOATPVT.LTD.PROJECTMANAGEMENTM/SM/SM/SM/SSTATCONSULTANCYPVT.LTD.,STATCONSULTANCYPVT.LTD.,STATCONSULTANCYPVT.LTD.,PRASADCONSULTANTS N K S M C O N S ULT NTS PR V A T E L IM DETIANNHC GOODFORCONSTRUCTION

Turn static files into dynamic content formats.

Create a flipbook
Issuu converts static files into: digital portfolios, online yearbooks, online catalogs, digital photo albums and more. Sign up and create your flipbook.