SHIZA CHAUDHARY
Selected Works
Architectural Design
2022 - 2025

![]()
Selected Works
Architectural Design
2022 - 2025

During my time in architecture school, I focused not only on designing with intention and meaning but also on deeply understanding materiality and phenomenology. Across this body of work, I have explored how design and materials merge, and how the careful articulation of both can profoundly shape spatial experiences—even down to the smallest moments of architectural interaction.
The projects are organized into two main categories: Architecture and Design-Build.
The Architecture category highlights my approach to design through contextual analysis, conceptual development, and three-dimensional visualization. From sketching to modeling to detailed documentation, I have learned to approach the design process with thoroughness and precision, exploring the full range of possibilities for each project.
The Design-Build category captures my exploration of materials and construction at a 1:1 scale. Through iterative prototyping, long hours in the woodshop, and learning through trial and error, I have developed a hands-on understanding of how architecture is built—and built well.
Together, these two approaches have greatly enriched my understanding of architecture across multiple scales. Each has informed the other, shaping my ability to think critically and design with both vision and craftsmanship.

Professor: Devin Dobrowolski
Year: Spring 2023
Category: Academic
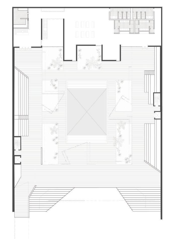
Residential neighborhood of Bronzeville, Chicago.
This project proposes a library within an urban plaza on 43rd Street in the historic neighborhood of Bronzeville. By introducing a vibrant public plaza, this library and cultural center aim to provide a vital resource for the community by creating a dynamic, inclusive, and accessible space. This project promotes literacy, art education and cultural engagement by cultivating spaces for a variety of services and resources. The project offers a diverse collection of books, multimedia materials, digital resources, workshop spaces, classes and events that promote social engagement as well as personal enrichment.




Transversal Section



Section Perspective A-A



Professor: Manuel Bailo
Year: Spring 2024
Category: Academic
This project is nestled within the vibrant heart of Mariachi Plaza, where the lively intersection of S Boyle Ave and 1st St sets the stage. Embraced by the bustling arteries of LA’s notorious traffic, the site occupies a pivotal position, ensconced within the triangle formed by surrounding highways. Seeking to breathe new life into Mariachi Plaza, the project endeavors to expand public space, particularly towards the medical center. Inspired by on-site observations, including ambient noise, stark signage, traffic exposure, and a dearth of shaded retreats, the project’s essence takes shape.























































1. Detail through Skylight 2. Concrete Floor Finish 3. Metal Capping
Waterproofing
5. Concrete Roof Finish
6. Rigid Insulation 7. Concrete
8. Metal Decking Roof
9. Reinforcing Bar
10. Steel Beam
11. Steel Beam
12. Suspended Ceiling
13. Prefab Concrete Facade
14. Insulation
15. Drywall
Section Detail: Roof Scale 3/4” = 1’

Section Detail: Floor Scale 3/4” = 1’
Longitudinal Section A-A Scale 1/16” = 1’


































Professor: Mona El Khafif
Studio Partner: Lysette Velazquez
Year: Fall 2024
Category: Academic Research Studio // Urban Design
This project addresses recent changes and a major landswap in Red Hook, NY, following Mayor Eric Adams’ May 2024 plan to rebuild three waterfront piers through a historic exchange between the Port Authority of New York and New Jersey. It reimagines waterfront living by elevating housing for flood resilience and integrating storage for boats and kayaks. Emphasizing adaptation, the design treats structures as systems coexisting with water, ecology, and the area’s industrial legacy. The proposal includes connected gateways, clustered housing, green corridors, and a soft waterfront edge to support evolving ways of living with water and the site’s ongoing development.


Red Hook has a layered and dynamic history. Originally Lenape land, it became a major shipping and industrial hub in the 19th century, attracting waves of immigrants. The mid-20th century brought decline as shipping moved elsewhere and infrastructure projects isolated the neighborhood. Today, Red Hook is marked by both resilience and renewal, balancing its industrial past with ongoing challenges like gentrification and coastal vulnerability.
The semester begun with robust studio wide research about the culture, ecology, history, infrastructure and morphology of Red Hook, NY. Students combined all discoveries into an all encompassing Atlas, through which breakthroughs in research regarding housing scarcity were discovered. The map above highlights these housing issues.




Brooklyn Cruise Terminal
Public Access to Waterfront


01 Habitat:
Soft Edge for ducks
Oyster Wall
Biodiversity

02 Community:
Maritime Education
Active Frontages
Access to Waterfront

03 Mobility
Pederstrian Walkways
Bike Lanes
Water Taxis and Ferry Stops
Potential for future

VISION PLANNING: Phase 01 + Phase 02


SECTION AA - A transition of street progression from retail to community courtyards to recreational canals, biohabitats and the industrial


SECTION BB - Section diagram above shows the existing bulkhead supporting the edge in relation to the flood projection of the next 100 years and the proposed sponge barrier against the flooding.
SECTION CC - The Canal System proposes concrete footings to support a series of floodable platforms that are open to public recreational use.


An Exhibit Columbus Project
Professors: Katie MacDonald and Kyle Schumann
Year: Summer 2023
Category: Student Research Assistantship
Site: Columbus, Indiana
Awards:
- AIA National Small Project Award, 2024
- AIA Virginia Design Awards: Honor Award in Small Project
- AIA Indiana Design Awards, Citation Awards in Non- traditonal projects
- Dezeen Awards, Longlist in Installation Design
- The Architect’s Newspaper, Best in Digital Fabrication: Honorable Mention, 2023
Sylvan Scrapple draws parallels between construction and food waste. The name comes from congealed scrapple, also known as Pennsylvania Dutch name Pannhaas, a dish made from scraps of pork meats, cornmeal and trimmings. The installation is centered around a fifteen feet dining table, the top of which contains construction waste: bricks, wood, glass and scraps, set in resin. The other pieces are curated along a line composition tresspassing the planter on site.
This project was completed by Assistant Professors at UVA, Katie MacDonald and Kyle Schumann, with research team in August, 2023. The project is part of the annual Exhibit Columbus, ‘Public by Design’ themed cycle, featuring nationally selected groups of artists, designers, architects and landscape architects.






Professors: Katie MacDonald and Kyle Schumann
Year: Spring 2024
Category: Research Research Assistantship
Site: Gilmer Hall, University of Virginia, charlottesville, VA
Awards:
- 2024 SARA National Design Award
Does isolation of material play a role in our perception of experienced space?
In this research project two identical pods, of different materials are constructed. One pod is designed with biophilic or natural wood materials and the other is constructed of off-the-shelf building materials, such as drywall. Designed as testing chambers for psychological and neurological research on normative and biomaterial environments, material composition is primary while form is secondary and archetypal, drawing from universal geometries.
The control, Sheets, is clad in drywall, while its doppleganger, Slabs, scribes live edge slabs into
The architecture department, environmental psychology and neuroscience professors, along with graudate students designed and organized this project. No windows were added to eliminate views to the outside world, so the material of enclosure is all one experiences. This study was conducted at Gilmer Hall on campus, where students participated in the collection of data.




Professor: Kyle Schumann
Year: Spring 2025
Category: Academic Research Studio
Site: Morven, University of Virginia
Project completed with Harris Agnew, Mary Cotterman, Meredith Delong-Maxey, Mairead Driscoll, Manuel Estrada, Isaac Goodin, Darien Hersh, Connie Liou, Zeya Min-Fink, Amanda Nordwall, Atlee Paterno, Elizabeth Solkey and Madeleine Zahn
Awards:
- 2025 SARA National Design Award
Timber Topographies is an installation at the Morven Sustainability Lab that explores the structural, spatial, and aesthetic potentials of timber. Sited adjacent to the Bell House, it serves as both a way finder and a place of orientation within the expansive landscape, guiding visitors toward trailheads at the Black Barn while visually linking sites of historic and geologic significance. The design acts as a transitory space and a place of pause, where students and visitors can meet, rest, and reflect on the layered history of the land.
A series of spatial pockets is defined by undulating timber panels oriented toward key views in the landscape. Integrated seating elements extrude from the walls, offering quiet moments of respite and inviting visitors to contemplate the heavier histories of the land. As visitors move along the central axis, they are simultaneously drawn through the site and encouraged to linger within its folds.


Map of Morven Sustainability Lab Morven, Charlottesville, VA 1:500
Morven is a complex site, with perpetually changing landscapes and uses. In responding to the histories of the site, this installation creates a new spaces of interaction within the landscape through spatial pockets.
The first pocket directs visitors to the trailheads in the distance at the Black Barn. The second maska the view of the mountaineous landscape and rather, oriencts one towards the fields where enslaved laborers would have worked and likely buried. The final pocket gives visitors a chance to site and take in the surrounding landscape, looking towards Carter Mountain, prompting one to explore the landscape.
In the first half of the semester, students developed material systems using dimensional lumber and non-linear timber. The systems were design with the planned use of a new robotic sawmill invented by the Before Building Labratory that enables the accurate cutting of angled and curved lumber. These explorations developed a catalog of novel timber elements that informed the spatial qualities of the final installation.
A solid, volumtric element designed by Harris Agnew became to basis for the bench element. While a porous panel, designed by Shiza Chaudhary, became the wall system.
In the first half of the semester, students developed material systems using dimensional lumber and non-linear timber. Designs were informed by the planned use of a new robotic sawmill- a conventionnal sawmill heavily modified to cut logs into curves. This robotic sawmill has been invented by the Before Building Laboratory.






















Ash Bench Supports
Pine Bench Back Supports
Ash Wall Panels
Cedar Ground Connections





In the second half of the semester, students fabricated the material systems designed using dimensional lumber and non-linear timber. Fabrication and installtion was informed by the planned use of a new robotic sawmill- a conventionnal sawmill heavily modified to cut logs into curves. As shown in the axon diagram on the left, each material plays a specific role in the assembly of the installation.
The ground connections consist of steel earth anchors, steel plates, and fasteners that securely attach the cedar boards, which in turn support the ash wall panels. Each material’s unique properties contribute to the overall effectiveness of the installation.








Bench Layout in relation to walls

Wall Panel Layout on ground, awaiting assembly
Logs were selected based on the dimensions needed for the ground, bench, and wall elements. On the left, the diagram shows the break down of wall panels based on height due to transportation constraints. Panels could be no wider than 4’ and no taller than 9’. Once assembled, panels were transported to site and attached to the already installed cedar ground connections. The prefabricated bench, once arrived, was installed to the wall panels as well.


