URBAN DESIGN PORTFOLIO

Page 1

TO CONNECT ME ON WATSAPP AND LINKEDIN SCAN THE BELOW QR CODE

CONTENTS 01 03 05 - REDENSIFICATION OF TATYA TOPE NAGAR, BHOPAL. - THE BIODIVERSITY PARK , LAHARPUR, BHOPAL. - B.ARCH THESIS - THE DOMESTIC AIRPORT AT SHIVAMOGGA. Academicproject2022 Academicproject2022 Academicproject2022 01-10 19-26 33-36
04 02 - INDUCTION PROJECT, A CASE OF NADRA BUS STAND TO BHOPAL JUNCTION. - THE BLUE CITY, JODHPUR (NETWORKS AND SYSTEMS). Academicproject2022 Academicproject2023 11-18 27-32

1ST SEMESTER DESIGN STUDIO

RE-DENSIFICATION OF TATYA TOPE NAGAR

URBAN DESIGN PORTFOLIO SHIVRAM 1 01
URBAN DESIGN PORTFOLIO 2

DOCUMENTATION OVERLAYS

BUILDING AGE

BUILDING OCCUPANCY & CONDITIONCV

BUILDING USE

URBAN DESIGN PORTFOLIO SHIVRAM 3
URBAN DESIGN PORTFOLIO 4 SERVICES LANDSCAPE
BUILDING AGE
URBAN DESIGN PORTFOLIO SHIVRAM 5

SECTION THROUGH JAWAHAR UDYAN LAKE (AA’)

URBAN DESIGN PORTFOLIO 6
URBAN DESIGN PORTFOLIO SHIVRAM 7
URBAN DESIGN PORTFOLIO 8
URBAN DESIGN PORTFOLIO SHIVRAM 9
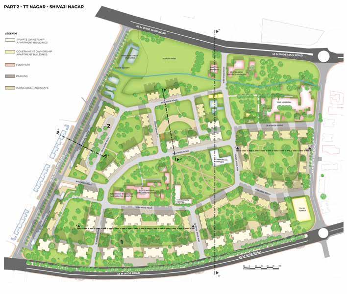
MASTER DESIGN PROPOSAL
URBAN DESIGN PORTFOLIO 10 MASTER PLAN

2nd SEMESTER DESIGN STUDIO

NETWORK AND SYSTEMS OF THE BLUE CITY, JODHPUR

URBAN DESIGN PORTFOLIO SHIVRAM 11 02

Located towards the western side of the capital city of Jaipur, this city is the second biggest city in the state of Rajasthan . Being a place of princely palaces, magnificent forts as well as age old temples, this city of Rajasthan is among the famous tourist destinations in the state as well as India.

Positioned in the Thar Desert’s stark landscape, Jodhpur experiences a bright and sunny weather all through the year. For this, the city is also known as “Sun City”. One of the specialties of this metropolitan city is that almost all the houses based around the fort of Mehrangarh are painted in blue color, due to which the city is even known as the “Blue City”.

It encompasses an area of 22,850 sq.km and houses a population of 21,53,483. It is well connected to the rest of Rajasthan by airways, road and rail links. This city basks in the golden history and heritage of the state and is located at the fringe of the great Thar desert. The city was founded in 1459 A.D by the Rathore rulers.

URBAN DESIGN PORTFOLIO 12

COMMUNITIES AND TOURIST DESTINATION

EVOLUTION

URBAN DESIGN PORTFOLIO SHIVRAM 13

WORK-CENTRE-RELATIONSHIP

HOUSING TYPOLOGIES

URBAN DESIGN PORTFOLIO 14
URBAN DESIGN PORTFOLIO SHIVRAM 15

COMMERCIAL PROXIMITY

TRANSIT NODES PROXIMITY

MOVEMENT CORRIDOR

URBAN DESIGN PORTFOLIO 16
URBAN DESIGN PORTFOLIO SHIVRAM 17
URBAN DESIGN PORTFOLIO 18

UNDERSTANDING URBAN NETWORKS & ECOLOGY OF PERI-URBAN AREAS A CASE OF LAHARPUR, BHOPAL

URBAN DESIGN PORTFOLIO SHIVRAM 19 03

The evolution of the area has started with the development along the main Katara hills road that connects the Hoshangabad road to laharpur. At first there is a presence of small villages then there is a development of private residential colonies along the water streams and at the foothills of Katara hills. We then see an increase in density along the the road towards the main road till the bypass and along water streams.

URBAN DESIGN PORTFOLIO 20
URBAN DESIGN PORTFOLIO SHIVRAM 21
URBAN DESIGN PORTFOLIO 22
URBAN DESIGN PORTFOLIO SHIVRAM 23
URBAN DESIGN PORTFOLIO 24

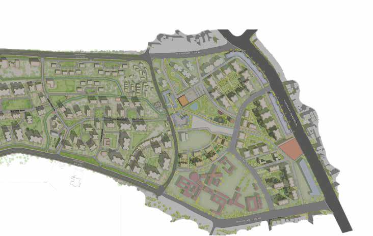
SYNTHESIS MAPPING

PROPOSAL

URBAN DESIGN PORTFOLIO SHIVRAM 25

THE MAIN OBJECTIVE OF THIS PROPOSAL

1. IS TO CREATE MORE GREEN CORRIDORS

2. DEVELOPE MOATS AT THE FOOTHILLS OF KATARA

3.TO CREATE BIO SWALES ALONG ROAD FOR MARSHY LANDS

4.TO CREATE A BUFFER AT URBAN AND GREEN INTERFACES.

5.TO RETAIN THE FARM LANDS

6.TO CREATE PUBLIC RECREATIONAL SPACES

7.CONNECTING THE OPEN SPACES WITH THE EXISTING BUILT FORM

8. MAINTAING THE ECOLOGICAL SENSITIVITY OF THE BIODIVERSITY PARK.

URBAN DESIGN PORTFOLIO 26

INDUCTION PROJECT, A CASE OF NADRA BUS STAND TO BHOPAL JUNCTION.

URBAN DESIGN PORTFOLIO SHIVRAM 27 04

Site Area= 1,05,135sq.m.

Primary roads= 30.8%

Secondary roads= 5.9%

NADRA BUS STOP

This corridor has in turn encouraged the growth of a symbiotic arrangement of multiple landuse

FRUIT MARKET

BHOPAL JUNCTION

URBAN DESIGN PORTFOLIO 28
CHOTA TALAB UPPER LAKE MOTI MASJID
KAMLA NEHRU HOSPITAL 2
MOTIA LAKE TAJ-UL-MASJID KM RADIUS
CENTRAL LIBRARY
PRECINT OF STUDY LEGENDS: RAILWAY LINE: CHHOLA RD: HAMIDIA RD: BERASIA RD: BALAJI HANUMAN TEMPLE ALPANA CINEPLEX MASJID HAMIDIA RAILWAY BRIDGE: BHARAT TALKIES RD: 80 FEET RD: The precinct is a transport oriented zone of the city. Since it has both the railway station as well as a bus stop it is considered as a transport corridor. PRECINCT & SURROUNDING MAJOR LANDMARKS

OVERLAY SHOWING BUS AND RIKSHA MOVEMENT

LEGENDS: BUS: RIKSHA:

OVERLAY SHOWING 2-WHEELERS AND 4WHEELERS MOVEMENT

MOVEMENT PATTERNS

LEGENDS: 2 W: 4 W: `

OVERLAY SHOWING PEDESTRIAN MOVEMENT

LEGENDS: PEDESTRIAN:

URBAN DESIGN PORTFOLIO SHIVRAM 29
O VERLAYS

MOBILITY CHAOS DRAMATIC DIVERSITY RECIPROCITY

The precinct portrays a diverse character, due to the relationship of formal and informal activities and generating a narrative of vibrancy with chaos.

There is a symbiotic relation and and interdependency seen in between the points, formal and informals functions of the site.

Being a transit corridor it adds the layer of a variety of transport methods which in turn affects the activities on the site.

URBAN DESIGN PORTFOLIO 30
राह हजार मंिजल� ।
एक
“ “ CHARACTER ESSENCE
The beauty of the chaos is that it is always on the move and never sleeps

ISSUES ON SITE

NODES & EDGES

URBAN DESIGN PORTFOLIO SHIVRAM 31
NADRA BUS STAND TO BHOPAL RAILWAY STATION PRECINCT

CONCEPT

Addition of traffic signals and signages will help redirect part of the traffic to secondary roads.

Redevelopment of the nodes and roads to create congestion free movement corridor.

Revitalizing abandoned liminal spaces to create zones that can be utilized by the residential public and thus enhancing the sense of safety.

Utilizing open spaces as pause point, recreation and interactive public spaces.

Providing street furniture, space for current vendors, parking and drop-off.

URBAN DESIGN PORTFOLIO 32
NADRA BUS STAND TO BHOPAL RAILWAY STATION PRECINCT
INITIAL IDEAS
Improvisation of bus stand

THE DOMESTIC AIRPORT AT SHIVAMOGGA.

URBAN DESIGN PORTFOLIO SHIVRAM 33 05

Shivamogga Airport is a greenfield airport to be built at Sogane Village, 8.8 km (5.5 mi) from Shivamogga and 8.2 km (5.1 mi) from Bhadravathi in Karnataka, India. The total land sanctioned by the Government of India is 662.38 acres.

AIM

The proposed project is a greenfield domestic airport that will be built at shivamogga, also known as ‘GATEWAY OF MALENADU’ which has a lot of potential in the field of agriculture, industry and tourism. The main means of transportation in the district is by bus and railway. To expand the connectivity of the district with various parts of India, I would like to propose a domestic airport at shivamogga which will be an iconic landmark.

NEED

Government of Karnataka has been attracting investments ranging from automobile companies to service industries, to set up their manufacturing units at shivamogga. Growing industrial development coupled with religious, leisure and domestic tourist destinations in and around shivamogga has augmented the stern need for an airport.

At an early stage KSIIDC has proposed to develop Airstrip with basic facilities that are necessary for an airline operator to provide services. The following are some of the basic facilities proposed to be developed in initial stage of operations.

i. Runway

ii. Taxi way

iii.Terminal Building & control room

iv. Parking facility

v. Fencing / Boundary wall

vi. Approach Road

vii. CC Drain

viii.Apron

ix. other facilities as per the requirements of DGCA

URBAN DESIGN PORTFOLIO 34

VIEWS

URBAN DESIGN PORTFOLIO SHIVRAM 35

PASSENGER TERMINAL BUILDING

URBAN DESIGN PORTFOLIO 36 ENTRY PUBLIC CONCOURSE BAGGAGE CLAIM AREA DEPARTURE CONCOURSE ERS COUNTER COUNTER COUNTER CLAIM SECURITY HOLD AREA .5MX8.5M MANGER AIRPORT MANAGER MANAGER JUNIOR SCANNI SECURITY FOOD COURT COUNTER COUNTER COUNTER COU KITCHEN DEPARTURE CONCOURSE PUBLIC CONCOURSE
SECTION A-A SECTION B-B
MASTER PLAN
URBAN DESIGN PORTFOLIO SHIVRAM 37 THANK YOU Email-Shivram.jetgond@gmail.com Contact.no-9945108358

Turn static files into dynamic content formats.

Create a flipbook
Issuu converts static files into: digital portfolios, online yearbooks, online catalogs, digital photo albums and more. Sign up and create your flipbook.